| Скачать .docx |
Реферат: Контрольная работа: Многоканальные системы передачи
Задание 1.
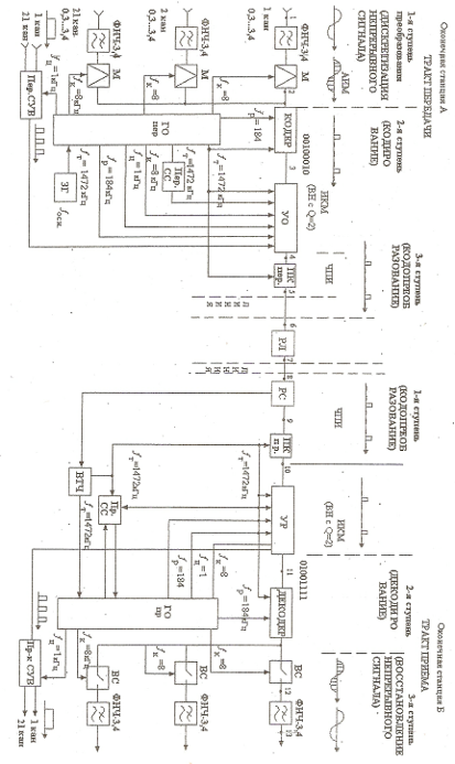
1. Составьте структурную схему, поясняющую принцип построения ЦСП ИКМ-ВД для заданного числа телефонных каналов. Кратко укажите назначение всех узлов и этапы аналого-цифрового преобразования АЦП в тракте передачи и цифро-аналогового преобразования ЦАП в тракте приёма.
2. Рассчитайте: тактовою чистоту fт, длительность тактового интервала Тт; длительность канального интервала Тки; длительность цикла Тц; длительность сверхцикла Тсц.
3. Рассчитайте частоты импульсных последовательностей, управляющих работой АИМ, ВС, кодера, декодера, передатчика и приёмника СУВ.
4. Постройте диаграмму временного цикла, сверхцикла, канального интервала, разрядного интервала.
5. Заполнить рисунок 1 по мере выполнения заданий 1, 2, 3.
Исходные данные приведены в таблице 1.
Таблица 1.
Число телефонных каналов Nтк |
Fg, кГц | m | Передача СУВ |
| 21 | 8 | 8 | За один цикл передаются СУВ для трёх телефонных каналов. |
1. АЦП исходного сообщения осуществляется в три этапа. Вначале сообщение дискретизируется по времени, далее квантуется по уровню и затем квантованные уровни кодируются.
ЦАП исходного сообщения осуществляется с помощью следующих процедур:
1 – декодирования – восстановления дискретных уровней;
2 – временной селекции – пропускание амплитудного отсчёта определённого канала;
3 – низкочастотной фильтрации – восстановление исходного сообщения из последовательности его отсчётов.
Тракт передачи:
ФНЧ-3,4 используется для ограничения спектра сигнала некоторой верхней частотой Fв. Это необходимо для эффективного представления отклика ФНЧ в виде последовательности отсчётов ( теорема Котельникова ).
М – амплитудно – импульсный модулятор используется для дискретизации телефонного сигнала.
Кодер преобразует амплитуды отсчёта АИМ сигнала в 8 разрядную кодовую комбинацию.
Устройство объединения УО – для объединения цифровых потоков: 12 телефонных каналов, СУВ, синхросигналов.
Преобразователь кода передачи ПКпер – для преобразования ИКМ сигнала в коде Q = 2 в линейный сигнал в коде ЧПИ.
Передатчик СУВ преобразует сигналы управления и взаимодействия между АТС при установлении соединения между абонентами в цифровые сигналы.
Задающий генератор ЗГ – для получения основной частоты (тактовой).
Генераторное оборудование передачи ГОпер – формирует импульсные последовательности, используемые для управления работой разных узлов аппаратуры; синхронизирует ГОпер с ГОпр и линейного тракта, также ГОпер определяет порядок и скорость обработки сигналов в тракте передачи.
Передатчик синхросигналов Персс – служит для формирования синхросигналов, обеспечивающих синхронную и синфазную работу ГОпер и ГОпр.
Линейный регенератор ЛР – служит для восстановления цифрового линейного сигнала.
Тракт приёма:
Станционный регенератор РС – восстанавливает цифровой линейный сигнал.
Преобразователь кода передачи ПКпр – для преобразования линейного сигнала в коде ЧПИ в групповой ИКМ сигнал в коде ВН с Q = 2.
Устройство разделения УР – разделяет цифровые потоки: 12 телефонных каналов, СУВ, синхросигналы.
Декодер преобразует 8 разрядную кодовую комбинацию в амплитуды отсчёта АИМ сигнала.
Временной селектор ВС – служит для пропускания амплитудного отсчёта только своего канала.
ФНЧ-3,4 – используется для восстановления исходного телефонного сигнала из последовательности его отсчётов.
Приёмник СУВ – используется для распределения СУВ по своим каналам и преобразования СУВ из цифрового вида в сигналы, передаваемые на АТС по проводам с, d.
Выделитель тактовой частоты ВТЧ выделяет тактовою частоту из цифрового линейного сигнала.
Генераторное оборудование приёма ГОпр – формирует импульсные последовательности , используемые для управления работой разных узлов аппаратуры; а также ГОпр определяет порядок и скорость обработки сигналов в тракте приёма.
Приёмник синхросигналов Приёмсс – служит для обеспечения правильного декодирования и распределения сигналов по своим телефонным каналам и каналам СУВ.
2. Тактовая частота рассчитывается по формуле:
ƒ т = F д · N ки · m
ƒ т = 8 · ( 21 + 2 ) · 8 = 1472 кГц;
Длительность тактового разрядного интервала:
Т т = 1 / ƒ т
Т т = 1 / 1472 = 0,679 мкс;
Длительность импульса:
τ и = Т т / 2
τ и = 0,679 / 2 = 0,3395 мкс;
Длительность канального интервала:
Т ки = Т т · m
Т ки = 0,679 · 8 = 5,432 мкс;
Длительность цикла:
Т ц = Т ки · N ки
Т ц = 5.432 · 23 = 125 мкс;
Длительность сверхцикла:
Т сц = Т ц · S
S – число циклов в сверхцикле
S = N т.к / 3+1
3 – число телефонных каналов, которые обеспечиваются СУВ за 1 цикл
S = 21 / 3 + 1 = 8
Т сц = 125 8 = 1000 мкс;
3. Частота следования разрядов рассчитывается по формуле:
ƒ р = ƒ т / m
ƒ р = 1472 / 8 = 184 кГц;
Частота следования каналов:
ƒ к = ƒ р / N ки
ƒ к = 184 / 23 = 8 кГц ( частота дискретизации телефонного канала );
Частота следования циклов:
ƒ ц = ƒ к / S
ƒ ц = 8 / 8 = 1 кГц.


![]() |
Рис.2. Диаграмма временных сверхцикла, цикла, канального интервала
Задание 2.
1. Начертите структурную схему нелинейного кодера. Кратко поясните: три этапа кодирования, назначение всех узлов кодера.
2. Выполните операцию нелинейного кодирования. Рассчитайте ошибку квантования.
3. На рисунке 1 задания 1 на выходе кодера приведите полученную в результате кодирования кодовую 8 – разрядную комбинацию.
Значение амплитуды отсчёта Аи М – сигнала АИМ в у.е. даны в таблице 2.
Таблица 2.
| Амплитуда АИМ сигнала, усл.ед. |
| - 37 |
1. Кодирование осуществляется в три этапа:
1 этап – кодирование полярности ( результат кодирования записывается в первом разряде );
2 этап – кодирование номера сегмента, выбор основного эталонного тока Jосн.эт. ( результат записывается в 2,3,4 разрядах );
3 этап – кодирование уровня квантования внутри выбранного сегмента, Jдоп.эт. ( результат кодирования записывается в 5,6,7,8 разрядах )
Назначение кодера – для преобразования амплитуды отсчёта АИМ сигнала в соответствующую 8-разрядную кодовую комбинацию.
Назначение узлов схемы.
Компаратор определяет знак разности между амплитудами токов кодируемого отсчёта Iс и эталона Iэт.
Генератор эталонов формирует полярность и величины эталонов. По построению он аналогичен ГЭТ линейного кодера, только количество формируемых эталонов равно 11, а значения этих эталонов равны 1, 2, 4, 8, 16, 32, 64, 128, 256, 512, 1024 усл. ед.
Цифровой регистр служит для записи решений компаратора после каждого такта кодирования и формирования структуры кодовой группы. В зависимости от решений компаратора ЦР выбирает полярность ГЭТ и управляет работой компрессирующей логики. По мере образования кодовой комбинации формирователь считывает состояние выходов 1,2, …, 8 ЦР, преобразуя параллельный код в последовательный.
Работой узлов кодера управляют устройства генераторного оборудования системы передачи.
По мере завершения тактов кодирования преобразователь кода ПК считывает состояние выходов 1…8 ЦР, преобразуя параллельный код в последовательный.
Назначение блока выбора и коммутации эталонных токов БКЭ – для подключения выбранных ГЭТ или ГЭТ2, а также для подключения выбранных эталонных токов по сигналам от КЛ.
Назначение компрессирующей логики КЛ – для коммутации поступающего от ЦР семиразрядного кода ( без первого символа полярности сигнала ) в 11-разрядный и двоичный код для управления разрядами выбранного ГЭТ.
|
|||
|
|||
![]() |
|||
Рис. 3. Структурная схема нелинейного кодера.
2.
Таблица 3.
Определе ние поля рности |
Выбор основного эталонного тока Iосн.эт. |
Вкл Iосн.эт. |
Дополнительные эталонные токи Iдоп.эт. |
|||||||
Разряды кодирования |
1 | 2 | 3 | 4 | - | 5 | 6 | 7 | 8 |
|
| Iэт. | 0 | 128 | 32 | 64 | 32 | 16 | 8 | 4 | 2 | |
| Iамп. - ΣIэт | -37-0<0 | 37-128<0 | 37-32>0 | 37- 64<0 |
- |
37- (32+ 16)<0 |
37- (32+8) <0 |
37- (32+4) >0 |
37- (32+4+2)<0 |
|
Состояние выхода компаратора |
1 |
1 |
0 |
1 |
- |
1 |
1 |
0 |
1 |
|
Запись реше ния в ЦР |
0 | 0 | 1 | 0 | - | 0 | 0 | 1 | 0 | |
Шаг кванто вания ∆ |
2 | |||||||||
Ошибка ква нтования εкв. |
1 | |||||||||
| 1-й этап | 2-й этап | 3-й этап | ||||||||
Рассчитаем ошибку квантования:
Sкв = 37 – ( 32 + 4 ) = 1.
Задание 3.
1. Начертите структурную схему нелинейного кодера. Кратко поясните: три этапа кодирования, назначение всех узлов кодера.
2. Выполните операцию нелинейного кодирования. Кратко поясните три этапа декодирования, назначение всех узлов декодера.
2. Выполните операцию нелинейного декодирования.
3. Укажите назначение эталона коррекции.
Исходные данные приведены в таблице 4.
Таблица 4.
| Кодовая комбинация |
| 00100010 |
1. Декодирование осуществляется в три этапа:
1 этап – по символу, записанному в 1 разряде, выбирается ГЭТ. Если записана «1», то выбирается ГЭТ 1 если записан «0», то выбирается ГЭТ 2;
2 этап – по кодовой комбинации, записанной в 2,3,4 разрядах, выбирается основной эталонный ток Iосн.эт.;
3 этап – из четырёх дополнительных эталонных токов данного Iосн.эт. выбираются те, в чьих разрядах записаны «единицы».
Декодер служит для преобразования восьмиразрядной кодовой комбинации в амплитудное значение отсчёта АИМ – сигнала.
Восьми разрядная кодовая группа принятого ИКМ сигнала записывается в ЦР, формируясь на его выходах 1…8 в виде параллельного 8 разрядного двоичного кода. Первый разряд этой кодовой комбинации определяет полярность включаемого ГЭТ, а 2…8 разряды – номер сегмента и уровня квантования на характеристике экспандирования.
Назначение БКЭ – для подключения выбранного ГЕТ 1 или ГЕТ 2 а также для подключения выбранных эталонных токов по сигналам от ЭЛ.
Назначение экспандирующей логики ЭЛ – для коммутации 7 разрядного кода ( без первого символа полярности сигнала ), поступившего от ЦР, в 12 разрядный двоичный код для управления разрядами выбранного ГЭТ.
Генераторы эталонных токов ГЭТ – используются для получения одиннадцати эталонных токов ( 1024, 512, 256, 128, 64, 32, 16, 8, 4, 2, 1 у.е. ) в ГЕТ ( + ) при декодировании положительных АИМ сигналов и одиннадцати эталонных токов ( 1024, 512, 256, 128, 64, 32, 16, 8, 4, 2, 1 у.е. ) в ГЭТ ( - ) при декодировании отрицательных АИМ сигналов.
Генераторное оборудование ГО приёма – для управления работой узлов декодера.
2.
Таблица 5.
Определе ние полярности |
Выбор эталонных токов Iэт. | Сумма эталонных токов ΣIэт | ||||||||
Основн ого |
Дополните льного |
Коре кции |
||||||||
| 1 | 2 | 3 | 4 | |||||||
Разряды кодовой комбинации |
1 |
2 |
3 |
4 |
5 |
6 |
7 |
8 |
- |
|
Кодовая комбинация |
0 | 0 | 1 | 0 | 0 | 0 | 1 | 0 | - | |
Значения Iэт., у.е. |
минус |
32 |
- |
- |
4 |
- |
1 |
37 |
||
| 1-й этап | 2-й этап | 3-й этап | 4-й этап | |||||||
Рис. 4. Структурная схема нелинейного кодера.
Задание 4.
1. Начертите структурную схему аппаратуры аналого-цифрового преобразования.
2. Укажите кратко назначение оборудования и всех его узлов.
Исходные данные приведены в таблице 6.
Таблица 6.
| Оборудование |
| ОГМ - 11 |
![]()
![]()
![]()
![]()
|
|
|
|
|
|
|
|
|
|
|
|
|
|
|
|
|




|
|
|
|
|
|
![]() |
Рис. 5. Структурная схема ОГМ – 11
2. Многофункциональный мультиплексор ОГМ – 30 с возможностью гибкого конфигурирования предназначен для формирования первичных цифровых потоков со скоростью передачи 2048 Кбит/с.
Оборудование может применятся на сельских, городских, ведомственных, внутризоновых и магистральных сетях связи в качестве:
- оконечного мультиплексора;
- мультиплексора ввода/вывода;
- мультиплексора ввода/вывода с конференц связью;
- кроссировочного мультиплексора.
Состав оборудования
В состав ОГМ – 30 входит базовый блок ОГМ – 11 с различными платами:
ПН
– 110 –
преобразователя напряжения, предназначена для преобразования напряжения первичного источника постоянного тока в стабилизированное напряжение + 5 В.
ЦП – 110 – плата цифровых переключателей принимает и обрабатывает информацию, поступающую от четырёх первичных групповых сигналов со скоростью 2048 Кбит/с, для перераспределения ОЦК со скоростью 64 Кбит/с между первичными цифровыми потоками 2048 Кбит/с и последовательными шинами групповых сигналов плат ОК – 110 ( оконечная каналов ), а также обработки поступающей в КИ 16 информации о сигнальных каналах.
ОК – 110 – плата окончания канала , предназначена для кодирования и декодирования аналоговых сигналов тональной частоты и организации стыковых сигнальных каналов.
КС – 110 – плата контроля и сигнализации, предназначена для автоматического контроля плат блока ОГМ – 11 и передачи аварийных сигналов в оборудовании УСО.
ЦФ – 110 – плата цифровых фильтров, определяет наличие сигнальной частоты в любом канале ОЦК.
ВС – 110 – плата внешнего стыка, предназначена для преобразования сигналов ВН с Q = 2 в квазитроичный КВП – 3 ( НDВ – 3 ) на передаче и обратного преобразования на приёме. Содержит генераторное оборудование.
Тракт передачи
Спектр 0,3 – 3,4 кГц поступает в плату ОК – 110, где преобразуется в ОЦК со скоростью 64 Кбит/с. Каждая плата рассчитана на 2 канала. Со всех плат сигналы ОЦК снимаются на шину DАТ 1. Приём информации сигнальных каналов от плат ОК – 110 подаётся на шину S 1.
ЦП – 110 – ( плата цифровых переключений ) осуществляет цифровую обработку и преобразование по заданной программе, поступающей информации о сигнальных каналах, перераспределение ОЦК между первичными потоками 2048 Кбит/с.
ВС – 110 – ( плата внешнего стыка ) формирует групповой поток 2048 Кбит/с и преобразует сигналы ВН с Q = 2 в квазитроичный код КВП – 3 ( HDB – 3 ).
Тракт приёма
Линейный сигнал в квазитроичном коде КВП – 3 ( HDB – 3 ) со скоростью 2048 Кбит/с поступает с линии в ВС – 110, где преобразуется в код ВН с Q = 2.
ЦП – 110 – осуществляет переключение до 120 ОЦК, поступающих от четырёх первичных потоков со скоростью 2048 Кбит/с. Стык RS – 232 с персональным компьютером IВМ РС предназначен для изменения программы обработки и коммутации сигналов, а также для оперативного контроля состояния каналов.
ЦП – 110 – осуществляет декодирование цифровых сигналов в сигнал с последующим восстановлением аналогового сигнала.
Задание 5.
1. Поясните назначение технологии хDSL.
2. Приведите классификацию технологии хDSL по используемым средам и способам передачи. Дайте определение симметричной и ассиметричной технологией хDSL.
3. Поясните требования к линейным кодам абонентских линий.
4. Приведите алгоритм формирования линейного кода абонентских линий типа 2В1Q. Поясните достоинства и недостатки данного кода.
5. Построить заданную в таблице 7 цифровую последовательность в коде 2В1Q.
6. Поясните методику выбора кабельных пар для возможности применения технологии АDSL. Приведите схему измерений переходных затуханий для заданного в таблице 7 типа линейного кода абонентских линий.
Исходные данные приведены в таблице 7.
Таблица 7.
| Цифровая последовательность | Для пункта 6 задания тип кода |
| 0110101110001101 | САР - 128 |
1. Назначение технологии хDSL:
Технология хDSL ( высокоскоростного абонентского доступа ) предназначена для обеспечения возможности увеличения скорости передачи в прямом ( сеть – пользователь ) и обратном ( пользователь – сеть ) направлениях, при этом возможна одновременная передача голоса и передача данных.
хDSL представляет собой технологию, которая исключает необходимость преобразования сигнала из аналоговой формы в цифровую и наоборот. Цифровые данные передаются на компьютер именно как цифровые данные, что позволяет использовать гораздо более широкую полосу частот телефонной линии. При этом существует возможность одновременно использовать и аналоговую телефонную связь, и цифровую высокоскоростную передачу данных по одной и той же линии, разделяя спектры этих сигналов.
2. Классификация технологии хDSL:
По средам передачи:
- радиопередача;
- оптоволокно;
- ЛЭП;
- телефонные линии.
Наиболее широко используется технология хDSL на телефонных линиях.
По способу передачи они разделяются на:
- Симплекс – передача данных в прямом и обратном направлениях осуществляется по каждой паре кабеля только в одну сторону;
- Дуплекс – передача данных происходит по одной паре кабеля в прямом и обратном направлениях, разделение осуществляется с помощью эхокомпенсации или частотного разделения;
- Полудуплекс – передача осуществляется только по одной паре кабеля, но поочерёдно.
При дуплексной передачи различают симметричные хDSL ( SDSL ) со скоростью передачи 100 – 2048 Кбит/с и выше. Скорости передачи в прямом и обратном направлениях одинаковы.
Асимметричные хDSL ( АDSL ) обеспечивают высокоскоростную ( до 8,2 Мбит/с и выше ) двустороннюю передачу по витой паре. Скорость в прямом направлении 8,2 Мбит/с, в обратном – 640 Кбит/с. При этом возможна одновременная передача речевых сигналов и сигналов передачи данных. С целью их разделения вводятся частотные разветвительные фильтры ( сплиттеры ).
АDSL ( AsymmetricDigitalSubscriberLine – асимметричная цифровая абонентская линия ) представляет собой высокоскоростную коммуникационную технологию, разработанную для использования на абонентских линиях ТФОП. Асимметричная цифровая абонентская линия ( АDSL ) является наиболее популярной технологией хDSL. Основной отличительной особенностью АDSL является то, что скорость передачи к пользователю и скорость передачи от пользователя не одинаковы ( именно поэтому данная цифровая абонентская линия и является ассиметричной ). При этом скорость передачи к пользователю значительно превышает скорость передачи от пользователя. Такой режим работы АDSL учитывает главную особенность сети Интернет, в соответствии с которой информационный поток от сети к пользователю, содержащий программы, графику, звук и видео, существенно превышает информационный поток от пользователя к сети, который обычно формируется нажатием клавиши клавиатуры или щелчком мыши. Скорость передачи данных к пользователю обычно составляет от 1,5 Мбит/с до 8 Мбит/с. Скорость передачи данных от пользователя обычно составляет от 64 Кбит/с до 1,5 Мбит/с.
Так как АDSL была разработана для использования индивидуальными пользователями или в небольших офисах, она наряду с организацией высокоскоростной передачи, сохраняет аналоговую телефонную связь по данной абонентской линии. Это исключает необходимость прокладывания дополнительной телефонной линии до пользователя.
3. Основные требования к линейным сигналам оборудования высокоскоростного абонентского доступа:
- энергетический спектр передаваемых цифровых сигналов должен быть сосредоточен в относительно узкой полосе частот при отсутствии постоянной составляющей;
- наличие избыточности для возможности контроля коэффициентов ошибок без прерыва связи;
- наличие в спектре сигнала с тактовой частотой.
Для формирования линейных сигналов в оборудовании абонентского доступа используют различные виды кодов:
- код с высокой плотностью единиц КВП – 3 ( HDB – 3 );
- алфавитный код 4ВЗТ и др;
- многоуровневые коды 2В1Q, САР, ТС-РАМ.
4. Алгоритм формирования кода 2В1Q:
Алгоритм формирования кода 2В1Q приведён в таблице 8.
Таблица 8.
| Значение кода | Уровень напряжения, В |
| 10 | + 2,5 |
| 11 | + 0,833 |
| 01 | - 0,833 |
| 00 | - 2,5 |
Цифровая последовательность разбивается на блоки из двух двоичных символов. Каждый блок преобразуется в один из четырёх уровней напряжения. Если блок начинается с бита 1, то импульс берётся положительной полярности, если с бита 0, то отрицательной. Во втором бите передаётся 1 при низких уровнях напряжения и 0 при высоких уровнях.
5. Построим цифровую последовательность 0110101110001101 в коде 2В1Q в виде таблицы 9.
Таблица 9.
| Значение кода | Уровень напряжения, В |
| 01 | - 0,833 |
| 10 | + 2,5 |
| 10 | + 2,5 |
| 11 | + 0,833 |
| 10 | + 2,5 |
| 00 | - 2,5 |
| 11 | + 0,833 |
| 01 | - 0,833 |
Достоинства кода 2В1Q:
- высокая скорость передачи по абонентской линии;
- простота реализации.
Недостатки кода 2В1Q:
- мощность передатчика выше, чем у кода ЧПИ;
- необходимость дополнительных мер для борьбы с длинными последовательностями одинаковых пар бит во избежание появления в спектре сигнала постоянной составляющей.
Рис. 6. Временная диаграмма кода 2В1Q.
6. Методика выбора кабельных пар для АDSL:
Для выбора кабельных пар и применения технологии АDSL необходимо:
1 – Осуществить пробное подключение оборудования АDSL.
2 – Измерить переходное затухание между цепями по схеме «каждая с каждой».
Схема измерений переходных затуханий на ближнем конце абонентских линий для заданного в исходных данных типа используемого линейного кода приведена на рисунке 7.
![]() |
![]() |
![]()
![]()
![]()
|
|
![]() |
|||||
|
|||||
Рис. 7. Схема измерений переходного затухания между цепями
На схеме указана измерительная частота генератора в соответствии с заданным в таблице 7 типом кода. Для выбора измерительной частоты используем частоту максимума энергетического спектра заданного кода САР – 150 кГц.
Имея линию АDSL можно одновременно говорить по телефону или передавать факс и находится в сети Интернет. При работе АDSL полоса пропускания телефонной линии разделяется на два частотных диапазона. Полоса частот ниже 4 кГц используется для обычной телефонной связи, а вся доступная полоса частот выше указанной частоты используется для передачи данных. Это позволяет использовать телефонную линию одновременно и для телефонных разговоров и для передачи данных.
Задание 6.
1. Приведите требования к структуре цикла передачи в ЦСП с временным группообразованием в оборудовании плезиохронной цифровой иерархии ( РDН ).
2. Осуществите расчёт структуры цикла передачи.
3. Постройте структуру цикла в виде таблицы, подставляя значения, полученные в результате расчёта.
Исходные данные приведены в таблице 10.
Таблица 10.
| Тактовая частота группового сигнала кГц | Тактовая частота входного сигнала кГц | Число сопряжённых потоков | Число корректируемых искажений КСС | Среднее время поиска синхросигнала мс ( не более ) |
| 3584 | 832 | 4 | 1 | 1 |
1. Требования к структуре цикла передачи:
1 – Соотношение количества информационных и служебных символов должно быть таким, чтобы обеспечить требуемые параметры ЦСП..
2 – Число следующих подряд служебных символов должно быть минимальным, а их распределения в цикле равномерным.
3 – Распределение символов синхросигнала и команд согласований скоростей в цикле передачи должно обеспечить минимальное время восстановления синхросигнала и максимальную помехоустойчивость КСС.
4 – Структура цикла должна обеспечить возможность простого перехода от асинхронного режима работы к синхронному и наоборот.
5 – Длительность цикла должна быть по возможности минимальной.
2. Расчёт структуры цикла:
1 – Соотношение числа информационных и служебных символов в цикле передачи для каждого входного потока рассчитывается по формуле:
ƒ з.и / ƒ сч.и – ƒ з.и = а 1 / b 1
где ƒ з.и – частота записи информации;
ƒ сч.и – частота считывания информации;
а 1 / b 1 – несократимая дробь.
ƒ з.и / ƒ сч.и – ƒ з.и = а 1 / b 1 = 832 / 3584/4 – 832 = 832 / 64 = 13
b 1 = 13 · 64/832 = 1
2 – Количество информационных символов в цикле передачи рассчитывается по формуле:
А = i · q · а 1 , симв.
где i = 1,2…
Линейное значение i рассчитывается по формуле:
i = q · т + b 1 + d сл + d к + d д + d и / q · b 1 = 4·3+1+4+4+4+4/4·1 = 7,25≈8
где q – число объединённых сопряженных потоков ( q = 4 );
т – число символов в одной команде согласования скоростей ( т = 3 );
b 1 – минимальное число служебных символов в цикле передачи;
d сл – символы цифровой служебной связи (d сл = 4 );
d к – символы контроля и сигнализации (d к = 4 );
d д – символы сигналов дискретной информации ( d д = 4 );
d и – информационные символы при ОСС – отрицательном согласовании скоростей ( d и = 4 );
а 1 – минимальное число информационных символов в цикле передачи.
А = 8 · 4 · 13 = 416
3 – Количество служебных символов в цикле рассчитывается по формуле
В = i · q · b 1 симв
В = 8 · 4 · 3 = 96 симв
4 – Количество символов в цикле передачи рассчитывается по формуле:
N = А + В симв
N = 416 + 96 = 512 симв
3. Построение структуры цикла:
Цикл разбивается равномерно на 4 группы, в каждой по 512 / 4 = 128 символов. Служебные символы распределяются в цикле равномерно, в каждой группе по 96 / 4 = 24 символа. Информационные символы в цикле также распределяются равномерно по 416 / 4 = 104 символа в каждой группе. Число символов КСС составляет т · q = 3 · 4 = 12 символов, которые распределяются равномерно на 3 группы. Рассчитанная структура цикла приведена в таблице 11.
Таблица 11.
| Вид передаваемой информации | Номера позиций в цикле | Номера групп в цикле |
Синхросигнал Информационные символы |
1 – 48 49 – 128 |
І |
Первые символы КСС Символы служебной связи Информационные символы |
1 – 4 5 – 48 49 – 128 |
ІІ |
Вторые символы КСС Символы дискретной информации Информационные символы |
1 – 4 5 – 48 49 – 128 |
ІІІ |
Третьи символы КСС Информационные символы ОСС Информационные символы |
1 – 4 5 – 48 49 – 128 |
ІV |
СПИСОК ЛИТЕРАТУРЫ
1. Скалин В., Финкевич А. Д., Бернштейн А. Г. «Цифровые системы передачи» - м.: Радио и связь, 1987.
2. Справочные материалы по проектированию. Аппаратура сетей связи. Часть 2. Типовое сетевое и каналообразующие оборудование. М. 1993.
3. Денисьева О. М. Мирошников Д. Г. «Средства связи для последней мили» ЭКО – ТРЕНДЗ – НТЦ НАТЕКС, М., 2000.





