| Скачать .docx |
Реферат: Художественные вопросы конструирования электронных средств
Художественные вопросы конструирования электронных средств
1. Композиция
Художественное конструирование представляет неотъемлемую составную часть процесса проектирования изделий, предназначенных для непосредственного использования человеком.
Целью художественного конструирования изделий является создание эстетических свойств, способных обеспечить удовлетворение эстетических требований людей, для которых предназначены данные изделия.
Непосредственным предметом художественного конструирования как процесса является формообразование промышленных изделий, осуществляемое по специфическим законам проектирования промышленного изделия.
При этом художественное конструирование использует наряду с понятиями эстетических свойств специфический аппарат понятий: композиция, объемно-пространственная структура, средства композиции. Перечисленные понятия отражают объективные признаки, свойства, соотношения, присущие форме изделия и обнаруживаемые практически при зрительном восприятии.
Построение целостного произведения, все элементы которого находятся во взаимосвязи и гармоническом единстве, определяется понятием композиции. Основу композиции в художественном конструировании составляют объемно-пространственная структура изделия, отвечающая его назначению. Объёмно-пространственная структура обусловлена назначением изделия, выполняемой им функцией и выражается в характере взаимосвязи элементов формы изделия, во взаимном расположении частей изделия, его пропорциях, в ритмическом строе элементов формы и т.п.
Композиционная организация формы изделия достигается путем установления общественно целесообразной взаимосвязи и соподчинения образующих ее элементов. При этом главные и подчиненные элементы, взаимно усиливая друг друга, образуют в целом единство.
При неоднородности формы или неравных соотношениях величин элементов композиционное единство формы возникает, если средствами композиции обеспечивается соподчинение одних элементов другим.
Это положение можно пояснить примерами. На рис. 1, а прямоугольник разделен на три равные части. Средняя часть прямоугольника из-за своего центрального положения доминирует, подчиняет себе обе боковые части. Это неравенство восприятия обусловлено соответствующим расположением частей. Усилить это соподчинение можно путем увеличения средней части (рис. 1, б) или даже путем уменьшения ее (рис. 1, в), но сохраняя ее центральное положение.

Рис. 1. Примеры статического подчинения
Кроме разобранного примера статического соподчинения элементов, композиционными средствами можно создать динамическое соподчинение, показанное на рис. 2, а и б, которые создают впечатление движения слева направо, в направлении подчинения. Динамичность движения глаза определяется ритмом членения. На рис. 2, в обе части симметричны, и движение здесь имеет центростремительный характер.

Рис. 2. Примеры динамического подчинения
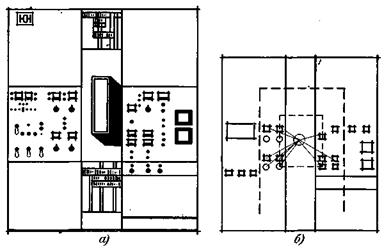
Одним из основных условий целостности формы является зрительное влияние главного функционального элемента, совмещение его с композиционным центром. Главный элемент выделяют из подчиненных элементов размерами (рис. 3, а), особым расположением приборов и органов управления (рис. 3, б), цветом, характером членения (рис. 3, в) и т.д.

Рис. 3. Примеры выделения главной ячейки комплектного распределительного устройства
В качестве примера, характеризующего это положение, можно привести художественно-конструкторский проект высокочастотной установки для выращивания монокристаллов «кристалл юн» (рис. 4). Характер членения элементов формы, компоновка элементов управления, проработанная схема зрительных маршрутов позволили художникам-конструкторам создать композиционно стройное изделие, выделив при этом композиционный центр, совмещенный с главным функциональным элементом – плавильной камерой (рис. 4, б).
Основными средствами композиции, придающими изделию соразмерность и гармонию, являются пропорции, масштаб, ритм, контраст и нюанс, симметрия и асимметрия.
Пропорции выражают соразмерность частей формы между собой и с целым. Пропорции служат средством гармонизации формы.
Масштабность – установленное соотношение величины создаваемого предмета с определенной мерой. Масштаб – это мера соответствия одного предмета другому или нескольким предметам при их сопоставлении.

Рис. 4. Пример композиционного решения высокочастотной установки для выращивания монокристаллов: а – упрощенное изображение установки; б – схема зрительных маршрутов
Ритм – средство композиции, обеспечивающее выделение и связь элементов формы путем их повторения, чередования, нарастания, убывания.
Контраст – средство композиции, используемое для выражения противопоставления элементов (по объему, цвету и т.п.), которое позволяет активнее выразить функциональные и конструктивные особенности сопоставляемых элементов и содействует обострению восприятия целого.
Нюанс – средство композиции, противоположное контрасту, незначительное различие элементов по форме, размерам и цвету и т.д.
Симметрия – принцип организации элементов композиции, основанный на правильном их размещении вокруг центра или оси. Симметричная композиция применяется обычно для подчеркивания статичности изделия (гидрогенератор, электроплитка, пульт управления), асимметричная композиция – для подчеркивания динамичности изделия (электротранспорт).
В художественном конструировании сформулированы основные требования к форме изделия, как к целому:
– форма всякого изделия должна быть законченным целым, упорядоченной и не содержащей элементов или частей, противоречащих функциональному назначению и технико-экономической основе изделия;
– система построения формы изделия как завершенного целого должна основываться на взаимоотношении главных и второстепенных элементов; создать форму изделия как подлинно гармоничное художественно-техническое произведение – значит найти единство между главным и второстепенным, между целым и частью, между различными частями изделия, а также внутри каждой части;
– форма изделия как отдельного объекта должна образовать единство с формами окружающей среды.
Следуя отмеченным положениям, художественную форму изделия нужно строить так, чтобы в процессе восприятия раскрывалась ее внутренняя логика, т.е. следует учитывать особенности зрительного восприятия формы предметов.
Процесс становления зрительного образа формы изделия, как показывают экспериментальные исследования, имеет несколько фаз. На первой фазе происходит грубое различие общих пропорций машины и ее положения в окружающем пространстве. Затем следует грубое различие основных узлов и деталей, при этом вычленяются более крупные формы независимо от места их расположения и т.д. Фазность восприятия отвечает в значительной степени складывающимся методам архитектурно-художественного анализа форм машины: от общего к частному. Отсутствие внутренней логики, четкости и ясности распределения масс препятствует построению целостного образа, снижает точность восприятия частей и элементов, а также всего изделия в целом.
Для того чтобы у человека могло сложиться определенное мнение о целостности формы изделия, необходимо, образная информация о внешнем виде изделия была согласована с возможностями ее восприятия и оценки. Если количество основных объемов, из которых сложена форма изделия, относительно невелико, то связь между отдельными частями формы, как функциональная, так и композиционная, может быть легко обнаружена наблюдателем. При небольшом количестве основных объектов человек быстро и легко осмысливает композицию изделия, ее завершенность, функциональную целесообразность, гармоничность его формы.
Исходя из того, что целостная оценка формы изделия связана на первых фазах восприятия с мгновенным «схватыванием» совокупности частей формы в целом, количество ее основных частей не должно превышать определенную величину. Ориентировочно можно считать, что если количество основных объемов изделия будет в пределах 5–7, то оценка частей его формы как визуально связанного целого возможна и оправдана. Если количество основных объемов возрастает (более 7–9), то мгновенная оценка становиться затруднительной. При очень большом количестве объемов взгляд схватывает попеременно только часть формы; целостный охват, восприятие и оценка художественных форм изделия становятся затруднительными, а при значительном числе основных объемов (25–30) практически невозможным. В этом случае весьма трудно признавать за изделием серьезные художественные достоинства.
Высказанные соображения о целостности справедливы для многоэлементных форм ЭС или для форм, состоящих из малого количества (3–5) элементов, блоков, узлов.
Значение целостности в изложенном аспекте сохраняет свою силу для мелких и большинства средних ЭС: аппараты низкого напряжения, электродвигатели, электротранспорт, большинство пультов, панелей и щитов управления и т.д.
2. Гармоничность и пропорциональность
При художественно-конструкторской разработке ЭС нередко случается, что количество основных узлов и основных объемов ограничено и почти совпадает, но все же изделие не воспринимается целостно. Причины распадения целостности формы изделия заключается в том, что, хотя основных объемов в данном случае немного, они несут много зрительно неупорядоченных элементов: технических и декоративных выступов, впадин, табличек, надписей, шкал, циферблатов, вентиляционных отверстий, швов и заметных сочленений. Излишняя информация отвлекает внимание от восприятия объемов изделий, подавляет и маскирует выражаемые свойства изделия. Подобная лишняя информация приобретает характер «шума», который мешает человеку в работе, отвлекает при управлении и снижает художественно-конструкторские достоинства ЭС. Во избежание раздробленности при построении форм изделия должна быть обеспечена гармоничность, достигаемая, в частности, средствами пропорций.
Гармоническое соответствие основных геометрических параметров целому и между собой отрабатывается (корректируется) в рамках системы пропорциональных отношений. В основе художественной отработки пропорций лежат схемы-сетки, при построении которых берутся в качестве исходных простейшие геометрические фигуры. Соотношения размеров таких фигур определяются рядом достаточно малых и простых целых чисел.
Геометрическая система пропорциональных отношений в технике создается на основе ряда предпочтительных пропорций, которые выделяются из бесконечного множества пропорций в результате учета производственных возможностей изготовления машин, ряда предпочтительных чисел, физиологии глаза, психологии наблюдателя, его эстетических требований.
Композиционная целостность изделия в значительной мере определяется удачно найденными соотношениями его конструктивных частей. При проектировании любого вида изделий изучение пропорций основано на анализе пропорциональных связей и отношений линейного характера. Плоскостные и объемные соотношения при анализе приводятся к линейным, т.е. основные размеры, характеризующие величину поверхности и объема, выражаются в виде отрезков прямых.
При определении пропорциональных соотношений в промышленности нашли широкое применение основные ряды предпочтительных чисел R 5, 10, 20, 40 (ГОСТ 8032–56) и ряды нормальных размеров Ra5, Ra10, Ra20, Rа40 (ГОСТ 6636–60). ЭС
Большая часть форм ЭС хорошо вписывается в габаритные объемы простейших геометрических фигур: параллелепипед, куб, цилиндр и т.д.
При пропорционировании изделий и последующей оценке полученных результатов важно не только выделить главные пропорциональные отношения, но и связать их с конструктивно-технологическими параметрами данных изделий. Выбирая пропорции из рядов предпочтительных чисел, можно позволить незначительные отклонения от желательных пропорциональных отношений, учитывая психофизиологические особенности зрения (верхняя граница не воспринимаемых глазом отклонений равна 2–3%).
Пропорционирование изделия целесообразно проводить на основе единого модуля. Использование модульной системы конструирования дает возможность из ограниченного числа элементов (модулей) компоновать разнообразные по внешнему виду сооружения и серии (типажи, размерные ряды) ЭТИ одного и того же назначения.
3. Масштабность
Одним из важных композиционных средств, позволяющих выразить социальную и техническую значимость части в целом, целого в комплексе, комплекса изделий в окружающей среде, является масштабность – зрительно-пространственная характеристика размеров продукции.
В основе масштабности лежит отношение части предмета к целому, предмета в целом и его частей – к иным предметам и их частям, а также к размерам человека. Масштабное сравнение может происходить, не только когда эти предметы находятся рядом в комплексе, но и когда они разобщены как по месту, так и по времени. В подобном случае сравнение может производиться по памяти, мысленно, с привлечением прошлого опыта.
Определение правильного масштабного строя формы изделия, т.е. указанных соотношений и связей, – важное условие правильного восприятия изделия. При неверно спроектированном масштабном строе возникает недооценка или переоценка истинных величин изделия.
Несмотря на некоторую противоречивость во взаимосвязи членений и масштаба, эти понятия настолько родственны, что в первом приближении масштаб определяют как степень крупности членений по отношению к целому, т.е. чем крупнее членения, тем крупнее масштаб, чем мельче членения, тем мельче масштаб.
Масштабные представления в технике складываются в большей степени на основе имеющихся знаний о свойствах материалов и конструкций, способах изготовления оборудования и самой технологии его производства.
В истории зодчества одной из первых предпосылок возникновения понятий масштабности явилось знание связи между прочностью материала и возможностью его использования как объемно-пространственного элемента в общественных сооружениях.
Накопленный опыт позволяет современному человеку четко представлять масштабность изделия по тому или иному технологическому признаку или техническому свойству материала. Придание чугунной детали (изготовленной литьем) формы, характерной для сварной детали, искажает ее масштаб. В то же время привычные масштабные представления, связанные с традиционными машиностроительными материалами и конструкциями, только дезориентировали бы нас, если бы мы пытались, исходя из них, оценивать масштаб принципиально нового изделия, основные детали которого изготовлены, например, из полимеров.
Очевидно, происходит исторический процесс изменения масштабных представлений, обусловленный развитием свойств материалов. Уже получены образцы чистого железа без дислокаций, обладающего прочностью более 14000 н/мм, т.е. в десятки раз превосходящего прочность обычного железа. Многометровые мостовые краны из такого железа будут иметь вид легкой металлической паутины, и это будет казаться естественным человеку с новыми знаниями о свойствах материалов.
Таким образом, истинный масштаб в любом виде оборудования выделяется только при условии глубокого знания свойств применяемых материалов, предельно рационального и экономного их использования, особенно в основных, крупногабаритных материалоемких узлах и деталях конструкции.
Большую роль в выявлении масштаба оборудования играют непосредственные «указатели» – элементы и части, тесно связанные с физическими размерами человека. У гидро- и турбогенераторов к ним относятся ступени лестниц, перила и пр., у ЭС меньшего размера – пульты, электродвигатели и т.д., а также стулья, рычаги, рукоятки и т.п. Таким образом, с одной стороны, изделия и оборудование рабочего места имеют большое число элементов, связанных с человеком; размеры их, а также расположение достаточно строго обусловливаются эргономическими требованиями. С другой стороны, значительная часть элементов конструкции связана непосредственно с технологическим процессом. Размеры их, а также расположение не менее строго обусловливаются инженерно-экономическими расчетами, технологией изготовления. Строгое соблюдение эргономических, инженерно-экономических и технологических требовании, безусловно, лежит в основе выявления истинного масштаба конструкции.
На масштабное восприятие формы оказывают влияние зрительные иллюзии. Постоянной иллюзией глаза является переоценка вертикальных линий по сравнению с горизонтальными. Вертикальная форма кажется зрителю длиннее равной ей горизонтальной формы. Квадрат производит впечатление прямоугольника, причем ошибка в оценке высоты «на глаз» доходит до 35% и более, а верхняя часть прямоугольника, разделенного на две половины, выглядит крупнее нижней.
Белые и вообще светлые предметы выглядят больше по сравнению с равными им темными предметами (так называемое явление иррадиации). Из двух равных по величине приборов размещенный на большой панели кажется меньше размещенного на меньшей. И, наконец, члененная форма выглядит больше нечлененной.
При проектировании ЭС конструкторские приемы, которые идут не от понимания и выражения самой конструкции, а от чисто внешних оформительских задач, приводят к экономически и функционально ложным решениям. Характерный признак ухудшения масштабности в электротехнике – это неправильный выбор «указателей масштаба». Они умаляют истинные размеры изделия, если они слишком велики. Они же могут преувеличивать размеры изделий, если они слишком малы. Указателями масштаба являются формы, хорошо знакомые оператору, технологически оправданные размеры, которых он ясно представляет.
Немасштабное изделие возникает тогда, когда при создании конструкции, не отрешившись от старых форм, не осознав достоинств и возможностей новых материалов, новой технологии, новых размеров, новых возможностей использования машины и общения ее с человеком, новой целесообразности изделия, конструктор приспосабливает старые формы к новым задачам.
4. Отделка изделия
Поверхность изделия представляет собой предметный знак, несущий определенную информацию о существенных свойствах изделия. В процессе труда эта информация используется человеком для оценки условий и результатов труда, выработки решений, выдачи команд и выполнения управляющих действий.
Оценка качества внешнего вида изделия тесно связана с проблемой значимости его элементов. Значимость элементов определяется тем объемом информации, который они несут. При всех других равных свойствах тот из элементов будет нести больший объем информации, удельная площадь которого в поле зрения больше.
Поверхность изделия может обладать частными эстетическими свойствами, входя органично в общий комплекс эстетических свойств изделия. Поверхность изделия способна обладать определенной выразительностью (например, выражать свойства материала изделия, способа изготовления и т.п.).
Цвет поверхности изделия может служить информационным средством о назначении изделия (выразительность назначения). Зарубежные фирмы применяют для окраски электросварочных аппаратов зелено-голубой цвет (похожий на цвет электрической искры).
Поверхность изделия может быть оригинальной, гармоничной, соответствовать стилю изделия и среды.
Обеспечение эстетических свойств поверхности изделия зависит от композиции элементов поверхности и от художественно-технических средств: материала, способа и средств технологии.
Поверхность изделия характеризуется тремя группами физических свойств: пространственными, световыми и цветовыми. Восприятие элементов поверхности зависит от их различимости, обусловливаемой удаленностью изделия от наблюдателя, ракурсом и углом зрения, разрешающей способностью нормального глаза. Кроме того, на различимость элементов поверхности изделия влияют:
а) соотношение элементов и фона по цвету, яркости, насыщенности, фактуре поверхности, форме (в плоскости наблюдаемой детали);
б) загроможденность пространства от наблюдателя до изделия;
в) психофизиологические особенности наблюдателя, отклонение характеристик глаза от нормы, увлеченность работой, настроение и т.п.
Пространственные признаки внешнего вида изделий характеризуются понятиями макрогеометрии и микрогеометрии, разделение которых, конечно, весьма условно. К макрогеометрии относятся понятия, определяющие геометрическую форму детали, а к микрогеометрии – степень шероховатости и гладкости ее поверхности. Промежуточным понятием между ними является волнистость. Микрогеометрическая качественность поверхности изделия воспринимается по взаиморасположению стыковых поверхностей относительно сборочных баз.
Восприятие внешнего вида изделия охватывает довольно небольшое число взаимно сопрягаемых деталей: корпусные детали, кожухи и др. Точность изготовления машины по ее внешнему виду человеческим глазом определяется главным образом при помощи двух типов сравнительных оценок:
1) сравнение однородных элементов (элементы системы управления, крепежа и т.д.); здесь в первую очередь оценивается однородность их конструктивного исполнения;
2) сравнение неоднородных элементов; сравнение по контурам узлов и деталей, а также по линиям и плоскостям совпадения; несовпадение сопрягаемых деталей у многих ЭС является основным источником визуальной информации о неточности изготовления изделия; удовлетворение эстетических требований человека к внешнему виду машины достигается повышением точности сопрягаемых деталей и применением различных художественных приемов (например, путем значительного увеличения зазора и превращения его в средство композиции).
Различные отклонения геометрической формы наружных поверхностей изделий являются в конечном итоге результатом суммарного воздействия изготовления, сборки и эксплуатации. На характер коробления наружных поверхностей и другие искажения конфигурации и размеров деталей влияют температурные изменения, коррозия, усталость, изнашивание, ползучесть, деформации при недостаточной жесткости (систематические динамические нагрузки) и др.
Рассматривая поверхность изделия, человек видит, прежде всего, чередование светлых и темных пятен в зависимости от направления падения и отражения света. Именно неравномерность светового отражения обращает внимание на те или иные неровности на поверхности и служит основой для оценки качества изготовления поверхности изделия. По количеству, яркости, размеру занимаемой удельной площади и характеру распределения бликов можно получить достаточно четкое представление о поверхности изделия как одном из визуальных элементов комфортной зоны оператора. Система бликов на перегибах поверхностей изделия создает его световой каркас, с помощью которого представляется логичным оценивать качественность поверхности, судить о неровностях и неправильностях поверхностей. Зрительное восприятие системы бликов изделия представляет простой органолептический метод выявления неправильностей наружных поверхностей изделий, рассматриваемых в том числе как элемент дискомфорта рабочей зоны.
Улучшение качества поверхности изделий достигается путем отделочных операций, предусматриваемых еще в художественно-конструкторском проекте. Отделка включает средства отделки – отделочные материалы и способы отделки – технологические средства и приемы.
Отделка должна удовлетворять следующим основным требованиям: служить хорошим защитным покрытием и улучшать внешний вид изделия.
Все разрушения и дефекты поверхности изделий можно разделить на две большие группы:
а) разрушения и дефекты, характерные для поверхностей, не имеющих защитных покрытий (металлические поверхности после различных видов механической обработки);
б) разрушения и дефекты, характерные для поверхностей, имеющих защитные покрытия (для наружных поверхностей ЭТИ это по большей части лакокрасочные покрытия).
Область отделочных материалов и способов отделки в настоящее время настолько обширна, что, на первый взгляд, может удовлетворить всем требованиям художника-конструктора и к цвету, и к фактуре и т.п. Но при проектировании конкретных изделий выбор неизбежно сужается, и в конце концов предпочтение отдается определенным видам отделки.
При выборе отделки необходимо учитывать как чисто производственные факторы (экономические возможности и преимущества используемых материалов и технологии), так и потребительские факторы.
Отделка может производиться посредством: нанесения декоративно-отделочного материала на поверхность основного металла; изменения поверхности (полированием, различными видами химической и механической обработки и т.п.); применения различных материалов (пластмасс, дерева, кожи и т.п.), в том числе использования всевозможных текстурных вариаций материалов (например, при применении лакокрасочных материалов – использование глянцевых и матовых покрытий и т.п.).
Основным видом защитно-декоративного покрытия является окраска. Качество окраски определяется: подготовкой поверхности перед окраской (грунтованием, шпаклеванием для отдельных лакокрасочных покрытий), шлифованием, выбором лакокрасочных мате риалов, технологией нанесения краски. Значительную роль в создании покрытий играет их правильный выбор. Покрытия полуглянцевые и матовые рекомендуются и применяются чаще, чем глянцевые (особенно при зрительной работе с пультами и аппаратами).
При оценке качества отделки поверхности изделия определяющими факторами становятся условия наблюдения: расстояние и угол наблюдения, значимость поверхности, совершенство отделки и т.п.
Одной из основных задач художественно-конструкторской разработки изделий является задача обеспечения технологичности изделия, о которой необходимо заботиться с самого начала работы над проектом. Необходимо найти наиболее целесообразные методы нанесения лакокрасочных материалов и добиться, чтобы при разработке было учтено их соответствие выбранным технологическим процессам. Если изделие штучное и изготовляется небольшими сериями, то чаще всего окраска производится распылением. В крупносерийном производстве целесообразно использовать какой-либо из механизированных или автоматизированных способов (окраска в электрическом поле, окунание, окраска обливом).
Кроме того, необходимо обеспечить правильную последовательность монтажа и окраски. Монтаж и демонтаж изделий могут нарушить ранее сделанное покрытие, а последующее исправление неизбежно приведет к повышению себестоимости изделия.
Выбор отделки изделий является одним из важных этапов проектирования ЭС, от которого зависит конечный результат работы.
Конструкция, способы компоновки и сборки элементов, окончательный вид изделия во многом зависят от вида выбранной отделки. Продуманная схема ее является надежной гарантией технологичности изготовления изделия. За все это основную ответственность несет художник-конструктор.
5. Цветовое решение изделия
Проблема применения цвета для окраски изделий и предметной среды рассматривается обычно в единстве ее следующих сторон: физической и психофизиологической (составляющих предмет цветоведения), психологической, социальной, эстетической.
Основная цель применения цвета заключается в повышении производительности труда и повышении эстетической удовлетворенности человека качеством продуктов труда.
При проектировании изделий приходится затрагивать все указанные стороны цвета. О цветоведении написано много в различных руководствах и пособиях, и поэтому мы не будем останавливаться на нем подробно.
Цвет не только окружает, но и постоянно воздействует на человека. Влияние его сильно сказывается на состоянии нервной системы, на поведении человека, на его трудоспособности. Психофизиологическое воздействие цвета есть первый и наиболее важный фактор, учитываемый при выборе цветового решения изделия.
Установлено, что красные, оранжевые, желтые цвета («теплые тона») действуют на человека возбуждающе: расширяют зрачки, учащают пульс и в конечном итоге вызывают общее утомление. Наоборот, синие, голубые, зеленые цвета («холодные тона») успокаивают и уменьшают зрительную утомляемость.
Один и тот же предмет, будучи окрашен в светлый цвет, зрительно выглядит более легким, а окрашенный в темный цвет будет казаться тяжелее.
Такие особенности цвета позволяют художнику-конструктору создавать впечатление легкости и тяжести, холода и тепла, простора и тесноты, выступания и отступания элементов и узлов изделия (рис. 5).

Рис. 5. Психофизиологические особенности цвета широко используются в художественном конструировании для выражения тех или иных свойств изделий, интерьеров
Окраской изделий надо пользоваться не только для того, чтобы улучшить зрительное восприятие изделий. Цвет необходимо применять и для выявления нужных деталей, элементов или частей изделий и, прежде всего – опасных в отношении травматизма.
Рациональный учет этих факторов позволяет создать определенный цветовой климат, т.е. колористическую (цветовую) гамму, обеспечивающую совокупность цветовых восприятий, влияющих на психофизиологическое состояние человека и его работу. Цветовой климат должен быть различным при длительном (пульты управления, цеха) или кратковременным (проходы, эпизодический контроль) воздействии. В первом случае выбор цветового решения изделия определяется условиями зрительной работы и оказывает в основном физиологическое воздействие. Во втором – цвет способствует ориентации, стимуляции внимания, корректировке внешних воздействий: тепла, холода, шума, инсоляции. Здесь в основном учитывается психологический фактор.
С эстетической точки зрения художник-конструктор должен дать такое композиционное колористическое решение изделия, которое удовлетворяло бы современным эстетическим требованиям.
Цвет является могучим средством воздействия на человека.
К. Маркс в статье «К критике политической экономии» назвал чувство цвета наиболее популярной формой эстетического чувства. Цвет является средством эстетического воздействия, влияя на настроение, поднимая или понижая эмоциональный тонус, вызывая ощущение творческого подъема. Хорошая отделка и приятная окраска изделий повышают настроение рабочего, вызывают у него положительно-эмоциональное отношение к доверенному ему оборудованию.
Цвет промышленного изделия способствует образному выражению сущности изделия, его тектоники, обеспечивает связь с окружающей средой.
В соответствии с особенностями воздействия цвета на человека установлены основные функциональные и декоративные факторы окраски изделий. Важнейшими из них являются соответствие окраски характеру среды потребления или эксплуатации и соблюдение законов цветовых гармоний. Создание рационального цветового климата может быть достигнуто при правильном соблюдении комплекса этих условий.
При цветовом решении формы изделия большое значение имеют такие принципы, как деление на главную и второстепенную части, выделение рабочей зоны, зрительное уравновешивание объемов и т.п.
Выбирая схему окраски для проектируемого изделия, художник-конструктор должен обязательно учитывать функциональные особенности изделий и среды, в которой оно будет работать.
Художник-конструктор должен творчески разработать схему окраски в каждом конкретном случае. Однако могут быть использованы некоторые общие рекомендации.
Крупные изделия с однородными по структуре плоскостями можно членить цветом, если ставится задача зрительно уменьшить объемы.
Подвижные машины (электротранспорт, тельферы и т.п.) и опасные части машин рекомендуется красить в предупреждающие цвета, максимально контрастирующие с окружающей средой. В статичных изделиях можно создать цветом иллюзию тяжести, монументальности, выделить основание, подчеркнуть неподвижность, связь с полом. Динамичность формы изделия можно подчеркнуть ритмичными цветовыми членениями. Правильное использование этих особенностей цветов позволяет скорректировать даже дефекты формы или композиции изделий.
В ЭТИ большое значение имеет использование цвета в качестве кода. В комплектных устройствах, в пультах, в аппаратуре управления для удобства монтажа и ремонта можно использовать различные цвета для указания назначения проводника: окраска шин по системе ЖЗК, черный – земля (корпус) и т.д.
К сожалению, стандарт такого рода до сих пор отсутствует, поэтому цветовые провода используются час-то для отличия их друг от друга, а не для указания их функционального назначения.
При выборе цветового решения ЭС рационально использовать два-три основных цвета, в связи с тем, что технологичность изготовления, монтажа и демонтажа малоцветных изделий выше, нежели многоцветных.
Среди факторов, Влияющих па выбор цветового решения ЭС, важнейшими являются вид работы и ее тяжесть (социально-психологический фактор).
Функциональное назначение изделия, находясь в теснейшей связи с формой его и во многом определяя эту форму, является одним из факторов, влияющих как на цвет изделия, так и на систему его окраски. Одновременно функциональное назначение изделия находится в очень тесной связи и зависимости от факторов среды, местонахождения изделия во время работы, температурных условий, степени запыленности и загазованности воздуха, наличия шума, освещенности и т.д.
Конструкционные и эксплуатационные факторы находятся в прямой зависимости от функции изделия и как бы дополняют условия среды, К ним относятся: габариты изделия, наличие агрессивных веществ, воздействующих на его поверхность, температура самого изделия во время работы и пр.
Технологические факторы (эмали, отвечающие требованиям данного изделия, конструкционные материалы, не требующие специальной отделки, технология нанесения эмалей и т.п.) неизбежно влияют на систему окраски, определяют марки применяемых материалов и в конечном итоге выбор цвета изделия.
Конструкция изделия и технологические факторы влияют на экономику его изготовления. Экономический эффект во многом предопределяет художественно-конструкторское решение, которое в свою очередь определяет вид применяемого материала, технологию нанесения окраски и через них влияет как на цвет, так и на систему окраски изделия.
Эти взаимоотношения группы факторов оказывают непосредственное влияние на выбор цвета и выбор системы окраски. Связи внешних условий выражаются в цветовом решении изделия с учетом законов психофизиологического восприятия цвета и подчиняются законам композиции.
При рассмотрении всего многообразия и взаимозависимости условий и факторов, влияющих на цветовое решение ЭС, можно сделать следующие выводы.
1. Как форма, так и цвет должны четко выделять особенности изделия, непосредственно связанные с процессом эксплуатации, облегчить зрительное восприятие изделия и взаимодействия между ним и человеком. В этом основа связи цвета и формы.
Цветовое решение изделия – неразрывная часть процесса художественного конструирования, которая подчиняется всем законам этого метода.
Создание оптимального цветового решения изделия возможно только при глубоком анализе всех факторов процесса производства и эксплуатации с учетом всего их многообразия и взаимозависимости.