| Скачать .docx |
Дипломная работа: Проектирование круглосуточной оптико-телевизионной системы
Оглавление.
1. Введение
2. Научно-исследовательская часть
2.1 Обоснование выбора оптической схемы КТВС
2.2 Габаритный расчет и светоэнергетический расчет
2.3 Аберрационный расчет объектива НУТВ
Вывод
3. Конструкторская часть
3.1 Анализ основных вариантов исполнения КТВС
3.2 Описание конструкции КТВС и ее узлов
Вывод
4. Технологическая часть
4.1 Общие сведения об оптических волокнах и изготовляемых из них деталях
4.2 Изготовление МКП
4.3 Изготовление ВОЭ180
4.4 Изготовление вакуумного блока ЭОП
Вывод
5. Организационно-экономическая часть
5.1 Определение сроков проведения НИОКР
5.2 Расчёт стоимости проведения НИОКР
5.3 Технико-экономическое обоснование
Вывод
6. Охрана труда и экология
Вывод
7. Заключение
1. Введение
Российская Федерация является одним из самых богатых морскими биоресурсами государств. Качество продуктов, добытых в Каспийском и дальневосточных морях, известно во всем мире. Морской промысел приносит существенную прибыль частным и государственным компаниям и, если ведется легально, является весьма доходной статьей местных бюджетов.
Однако в последнее время наблюдается существенный рост нелегального промысла, который не только не приносит дохода государству, но и наносит непоправимый вред окружающей среде.
Двумя основными причинами этого явления являются несовершенство законодательства, а также разница в технической оснащенности т. н. "браконьеров" и сотрудников правоохранительных органов. Первые пользуются новейшими техническими достижениями:
· системы спутниковой навигации;
· акустические приборы для поиска рыбы;
· оптические приборы наблюдения за окружающей обстановкой;
В результате при приближении сотрудников правоохранительных органов преступники сбрасывают в море нелегально добытую живность и несоответствующую нормам снасть. Юридически доказать факт незаконного промысла становится практически невозможно.
Эта неблагоприятная ситуация лишь усугубляется в ночных условиях, когда заниматься браконьерством можно почти безнаказанно.
Ясно, что назрела необходимость оснащения сотрудников правоохранительных органов наблюдательными комплексами, которые позволили бы:
· скрытно (с большого расстояния) вести наблюдение за рыболовецким судном;
· распознавать название судна, нанесенное на его борт;
· определять географические координаты судна;
· проводить видеосъемку обстановки на палубе;
· работать в круглосуточном режиме.
Проводящиеся в данный момент в мире научные разработки в области:
· технологии изготовления видеокамер на основе матричных приемников излучения (МПИ) с пространственно-зарядовой связью (ПЗС);
· технологии изготовления усилителей яркости – электронно-оптических преобразователей;
· технологии изготовления быстродействующих микропроцессоров для цифровой обработки информации и управления приборами;
· технологии изготовления микрогироскопов и микроакселерометров для создания на их основе миниатюрных систем позиционирования;
· технологии автоматизированного расчета оптических систем;
· развития спутниковых систем навигации (в том числе отечественных) позволяют создать такой комплекс.
В данном дипломном проекте приведено техническое обоснование оптико-электронной системы комплекса.
Конструкторские проработки предусматривают такой подход к проектированию системы, который обеспечит технические требования при минимальной стоимости. По своему принципу построения разработанная в дипломном проекте круглосуточная оптико-телевизионная система (КТВС) является модульной, базируется на трех основных узлах:
· низкоуровневая телевизионная система (НУТВ), имеющая в своем составе ЭОП;
· дневная телевизионная система (ДТВ);
· лазерная осветительная система (ЛОС) на основе пяти полупроводниковых лазеров.
Данная КТВС располагается на поворотном устройстве, оснащенном бесплатформенной инерциальной системой (БИНС), которая определяет угловые координаты цели относительно комплекса.
ЭОП работает в режиме стробирования. Это позволяет не только уменьшить помеху обратного рассеяния (что крайне важно в плохих погодных условиях), но и использовать НУТВ как дальномер, определяющий расстояние до цели.
В системе цифровой обработки изображения применен алгоритм распознавания надписей, существенно повышающий надежность распознавания.
Спутниковая система навигации при известных географических координатах комплекса, относительных угловых координатах цели, расстоянии до цели может определить ее географические координаты.
Все эти данные выводятся на монитор, где их наблюдает человек-оператор.
Таким образом, КТВС – это сложный оптико-электронный прибор, выполняющий задачи в составе наблюдательного комплекса. Дипломный проект посвящен созданию современной КТВС, не уступающей по своим характеристикам зарубежным аналогам.
В дипломном проекте на тему "Проектирование круглосуточной оптико-телевизионной системы" содержатся следующие части: научно-исследовательская, конструкторская, технологическая, организационно-экономическая, охрана труда и экология.
2. Научно-исследовательская часть
2.1 Обоснование выбора оптической схемы КТВС
Обоснование выбора оптической схемы объектива ночного канала
Задача объектива ночного канала – осуществить оптическое сопряжение плоскости объекта и плоскости фотокатода ЭОП.
Предметная плоскость находиться ориентировочно на расстоянии
L = 7000 м от первой поверхности объектива, а фокусное расстояние (см. "Габаритный расчет") равно f’= 1,307 м. Согласно известному критерию L ≥ 20 f’ можно считать, что предмет находится в бесконечности, а следовательно объектив является фотографическим.
Однако классическая схема такого объектива имеет существенный недостаток – продольные габариты объектива более чем в 2 раза превышают заданные в ТЗ габариты всего прибора. Рациональным решением будет введение в оптическую схему зеркальных поверхностей.
При относительном отверстии 1 : 5,2 (см. "Габаритный расчет") возникнут аберрации, для компенсации которых понадобятся линзовые элементы.
В итоге получим тип оптической схемы: зеркально-линзовый фотографический объектив.
Обоснование выбора оптической схемы объектива переноса ночного канала
Задача объектива ночного канала – осуществить оптическое сопряжение плоскости ПЗС матрицы и плоскости люминофорного экрана ЭОП.
Очевидно, что тип оптической схемы в данном случае: проекционный объектив.
Обоснование выбора оптической схемы объектива дневного канала
При относительном отверстии 1 : 10 и меньшем в 2 раза, по сравнению с объективом ночного канала, фокусном расстоянии рационально применить схему: двухлинзовый склеенный фотографический объектив.
Обоснование выбора оптической схемы коллиматора лазерной системы подсветки
В связи с тем, что расчет оптических систем при гауссовом распределении энергии в поперечном сечении пучка лучей существенно более сложен, чем при равномерном, доверим выбор оптической схемы специальному ПО, разработанному на кафедре РЛ2 МГТУ им. Н. Э. Баумана.
В результате получим: двухлинзовый склеенный объектив в обратном ходе лучей (коллиматор) без дефокусировкиотносительно перетяжки лазерного пучка.
2.2 Габаритный расчет и светоэнергетический расчет
Габаритный расчет
Габаритный расчет оптической схемы НУТВ
1) Определение фокусного расстояния объектива.
Найдем размер изображения ПЗС матрицы на фотокатоде ЭОП.
(1)
(2)
Где
Ver, gor – вертикальная и горизонтальная стороны изображения матрицы соответственно,
lv = 4,8 мм – длина вертикальной стороны матрицы,
lh = 6,4 мм – длина горизонтальной стороны матрицы,
Г = -0,46х – линейное увеличение объектива переноса (см. ниже).
Линейное увеличение ЭОП равно единице и не учитывается.
Определим фокусное расстояние объектива как:
(3),
где
2ωгор = 0,61° - заданное в ТЗ угловое поле оптической системы в горизонтальной плоскости.
Проверим, соответствует ли угловое поле в вертикальном направлении требованиям ТЗ при данном фокусе:
(4),
где
2ωвер = 0,46° - заданное в ТЗ угловое поле оптической системы в вертикальной плоскости.
2) Определение диаметра входного зрачка объектива.
Очевидно, что дальность распознавания будет увеличиваться с увеличением диаметра входного зрачка, и его следует сделать как можно большим. Верхнее ограничение обуславливают технологические возможности, условия коррекции аберраций, массогабаритные рамки. Исходя из этого, примем: Dнутв = 250 [мм].
3) Расчет увеличения объектива переноса.
Диаметр экрана ЭОП равен 18 мм. Изображение ПЗС-матрицы объективом переноса должно быть вписано в экран, чтобы обеспечить комфортное наблюдение.
Размеры матрицы – 6,4 х 4,8 [мм2 ]. Следовательно, её диагональ равна 8 мм, а увеличение объектива переноса: |Гtr | = 8/18 = 0,46(5)
Габаритный расчёт оптической схемы дневного канала.
1) Найдем фокусное расстояние объектива.
В данном случае изображение ограничивается полевой диафрагмой, геометрически являющейся входным окном самой ПЗС матрицы размером 6,4 х 4,8 мм2 .
Проведя расчет, аналогичный п. 2.2.2.1, получим
мм.
Примем
= 600 мм.
2) Расчет диаметра входного зрачка объектива.
См. расчет дальности распознавания.
Габаритный расчёт оптической схемы лазерного коллиматора
В данном осветителе используется лазерный излучатель ИЛД-20 самарского предприятия "Инжект". Его технические данные:
· Тип активной среды: полупроводниковая структура на основе Ga-As.
· Тип накачки: инжекция носителей электрическим током.
· Длина волны излучения λ = 850 нм.
· Длительность импульса τи = 10-7 с.
· Частота следования импульсов Fи = 10 кГц.
· Мощность одного импульса Pи = 20 Вт.
· Размер излучающей области dлаз вер xdлаз гор = 0,001 х 0,470 мм2 .
· Расходимость излученияδлаз вер xδлаз гор = 30° х 10°.
· Поляризация излучения ТЕ (Е в плоскости p-n перехода).
1) Определим фокусное расстояние коллиматора.
Так как протяженность излучающей области по горизонтали намного больше, то очевидно, что при нахождении нужно обеспечить горизонтальную расходимость. Удовлетворяющее этому условию фокусное расстояние обеспечит вертикальную расходимость автоматически.
Для согласованности каналов примем расходимость по горизонтали лазерного пучка 2σ не более 1,8°. Тогда:
мм(6)
2) Определение диаметра входного (в обратном ходе лучей) зрачка коллиматора.
Излучение лазера по уровню 0,5 должно попадать на коллиматор. Так как в вертикальной плоскости его расходимость больше, то именно она и будет определять диаметр коллиматора:
мм (7)
3) Определение истинных габаритных размеров.
Очевидно, что проведенные выше расчеты по формулам классической оптики являются приблизительными для лазерного излучения. Уточнив расчет при помощи компьютерной программы, разработанной на кафедре РЛ2, получим:
![]()
![]()
Расчёт дальности распознавания объекта
Дальность видения (предельная) – это расстояние, на котором изображение, полученное оптико-электронным прибором, воспринимается с требуемым уровнем видения. Для введения критериев, определяющих возможный уровень видения, вводится понятие эквивалентной миры. Объект исследования характеризуется критическим размером Hкр . На нём укладывается несколько (N) периодов (Tmir ) эквивалентной миры. Число N определяет уровень восприятия и вероятность восприятия. Контраст миры и условия её наблюдения должны соответствовать контрасту и условиям наблюдения объекта.
Критерии Джонсона [1]связывают число N с вероятностью восприятия:
| Уровень видения | N ( p = 50% ) | N ( p = 95% ) |
| Обнаружение | 1 | 2 |
| Различение | 4 | 8 |
| Идентификация | 8 | 16 |
Установив связь между контрастом изображения шпальной миры и воспринимаемым отношением сигнал/шум, мы можем найти такое расстояние L, при котором воспринимаемое отношение сигнал/шум примет пороговое значение.
Так как в приборе будет использоваться алгоритм цифрового распознавания надписей, то нет необходимости обеспечивать вероятность визуальной идентификации p = 95% при N=16. Примем N = 10.
Расчет дальности распознавания объекта НУТВ
Данные для расчёта:
1) Входной объектив.
Фокусное расстояние Fob = 1307 мм.
Диаметр входного зрачка (кольцевой зрачок имеет минимальный и максимальный диаметры) D = 250 мм, d = 120.
Рабочий диапазон: ∆λ = 0,6 – 0,9 мкм.
Интегральный коэффициент пропускания в рабочем диапазоне: Kob (λ) = 0,8.
Центральная длина волны λ0 = 0,75 мкм.
2) Электронно-оптический преобразователь 58 ЭГ.
Увеличение Гamp = 1х .
Диаметр фотокатода 18 мм.
Интегральная чувствительность фотокатода SpcΣ = 1200 мкА/лм.
Шум-фактор ЭОП Fn = 4,6.
Коэффициент преобразования 25000.
Плотность темнового тока Jth = 9∙10-14 А/см2 .
Коэффициент умножения МКП
= 200.
Эффективность люминофора
= 0,06 Вт/Вт.
Напряжение разгона электронов
= 5600 В.
ФПМ на частоте 55 мм-1 имеет значение 0:
· Нормированная спектральная чувствительность фотокатода Spc _ norm (λ):
3) Объектив переноса.
· Коэффициент преобразования плотности излучения экрана оптикой переноса, равный отношению освещённости на ПЗС-матрице к светимости экрана ЭОП
= 0,095.
· Увеличение |Гtr | = 0,46x .
· Коэффициент передачи модуляции объективом на пространственной частоте 60 мм-1 в пространстве изображений: для точки на оси не менее 0,7; для края линейного поля зрения оптической системы в пространстве изображений не менее 0,6.
4) ПЗС-матрица.
· Коэффициент спектрального соответствия люминофора экрана чувствительности ПЗС
= 0,9.
· Интегральная чувствительность ПЗС
= 0,19 А/Вт.
· Коэффициент использования времени накопления глаза
= 1.
· Размерность по горизонтали и вертикали Nv = 596, Nh = 795 элементов.
· Эффективные (с учётом локальных линз и анти-алиас фильтров) размеры элемента матрицы по горизонтали и по вертикали
.
· Шаг матрицы по горизонтали и вертикали
мкм,
мкм.
· Темновой ток матрицы Idk = 1,5∙10-9 А.
5) Электронный тракт.
В расчетах не учитываем.
7) Фоноцелевая обстановка.
7.1) Цель №1: буква на борту судна, являющаяся частью его названия.
Имеет высоту 1,8 м, ширину 0,5 м, покрашена белилами свинцовыми № 20 с алюминиевым наполнителем[4].
Фон - борт судна. Покрыт алкидной смолой № 3875 с сажевым наполнителем.
Рис. 1. Спектральный коэффициент отражения алкидной смолы с сажевым наполнителем.
7.2) Цель №2: корма судна в море. Имеет высоту 3 м, ширину 6 м. Покрыта алкидной смолой № 3875 с сажевым наполнителем[4] (см. рис. 5).
Фон – морская поверхность.
· Естественная ночная освещённость ЕV = 5 ∙ 10-3 лк.
· Расчёт отношения сигнал/шум для цели №1 .
Найдём максимум спектральной чувствительности фотокатода ЭОП к энергетическому потоку по известной интегральной чувствительности фотокатода к световому потоку по формуле:
[мА/Вт], (8),
где
V(λ) – нормированная кривая спектральной чувствительности глаза:
- интегральная чувствительность фотокатода [мкА/лм],
- нормированная спектральная чувствительность фотокатода,
- относительная спектральная плотность излучения источника типа А.
Спектральную плотность излучения источника типа А (Т = 2856 К) найдём по формуле Планка[3]:
[Вт/м3
], где(9)
λ – длина волны [м],
Т – температура [К],
c1 = 3,7415∙10-16 [Вт∙м2 ],
c2 = 1,43880∙10-2 [м∙К].
Продифференцировав это выражение, а затем приравняв результат к нулю, мы найдём из полученного уравнения длину волны λмакс , на которой излучение наиболее интенсивно:
λмакс
= 1,015 [мкм].
Очевидно, что
:(10)

Рис. 2. Нормированная кривая спектральной яркости источника типа А .
Таким образом, после интегрирования получим:
= 152,448 [мА/Вт].
· Относительная спектральная яркость ночного неба Rnight (λ) в диапазоне 0,4 – 1 мкм соответствует относительной спектральной яркости источника типа А (см. рис. 7).
Найдем яркость объекта:
Если считать Солнце абсолютно черным телом с температурой Т = 5217 К, то коэффициент использования глазом излучения такого источника будет равен:
, где(11)
- относительная спектральная яркость Солнца.
Интегральную облученность объекта найдём по формуле:
(12)
Максимум спектральной облученности:
(13)
Спектральная облученность объекта:
(14)
И, наконец, спектральная энергетическая яркость
диффузно отражающего объекта:
(15)
· Число электронов, испускаемое фотокатодом за время
=0,2 с вследствие темновой эмиссии, определяется следующим соотношением:
, где(16)
Jth – плотность темнового тока [А∙см-2 ],
e – заряд электрона [Кл],
Smir – площадь миры [м2 ],
L – расстояние до объекта [м],
Fob – фокусное расстояние объектива [мм].
·
- число электронов, полученное от фотокатода за время ![]()
(постоянная времени глаза) при облучении от зон миры, соответствующих объекту и фону:
(17)

Где:
D – внешний диаметр входного зрачка [мм],
d – внутренний диаметр входного зрачка,
Kob (λ) – спектральная характеристика пропускания объектива,
Spc (λ) – спектральная чувствительность фотокатода [мА∙Вт-1 ],
W – коэффициент погоды,
α = 3,91/Sm , где Sm – метеорологическая дальность видимости [м],
Рекомендуемые значения для расчётов: Sm = 18 [км] и W = 0,5, что соответствует нормальным условиям.
- спектральные коэффициенты отражения объекта и фона.
Спектральная чувствительность фотокатода Spc (λ) определяется по формуле
и имеет тот же вид, что и нормированная спектральная чувствительность, приведённая в данных к расчёту.
Nлаз – число лазеров в батарее подсветки.
= 0,9 – коэффициент пропускания объектива на длине волны лазерного излучения.
- коэффициент отражения объекта на длине волны лазерного излучения.
- коэффициент отражения фона на длине волны лазерного излучения.
- спектральная чувствительность на фотокатода длине волны лазерного излучения.
= 3 ∙ 108
[м/с] – скорость распространения импульса подсвечивающего излучения.
Pи - мощность лазерного излучения в импульсе [Вт].
Q – скваженость импульсов.
2 σ – расходимость лазерного излучения [рад].
· Рассчитаем коэффициент умножения электронов:
, где(18)
- коэффициент умножения МКП,
- напряжение разгона электронов ЭОП [В],
- эффективность люминофора экрана ЭОП [Вт/Вт],
- коэффициент преобразования плотности излучения экрана оптикой переноса, равный отношению освещённости на ПЗС-матрице к светимости экрана ЭОП,
- коэффициент спектрального соответствия люминофора экрана чувствительности ПЗС,
- интегральная чувствительность ПЗС [А/Вт],
- коэффициент заполнения матрицы ПЗС, определяется по формуле:
, где(19)
- эффективные (с учётом локальных линз и анти-алиас фильтров)
размеры элемента матрицы по горизонтали и по вертикали [мкм х мкм],
,
- шаг матрицы по горизонтали и вертикали [мкм х мкм].
Подставив численные значения, получаем:
.
.
· Число темновых электронов, получаемое от ПЗС-матрицы за время
с площади изображения миры рассчитывается как:
, где(20)
- количество пикселей на площади изображения миры на ПЗС;
- число темновых электронов, получаемое от одной чувствительной площадки ПЗС-матрицы за время
.
Количество пикселей на площади изображения миры на ПЗС:
(21)
Число темновых электронов, получаемое от одной чувствительной площадки ПЗС-матрицы за время
:
, где(22)
Idk – темновой ток матрицы [А],
Nv , Nh – размерность матрицы.
Таким образом: ![]()
Проведём расчёт сквозной передаточной функции ночного канала.
1) ФПМ входного объектива.
Пространственная частота для объектива (в его фокальной плоскости):
[мм-1
] (23)
ФПМ определим по данным CАПР Zemax

Рис. 3. Функция передачи модуляции объектива ночного канала.
2) Рассчитаем ФПМ электронно-оптического преобразователя.
Пространственная частота для ЭОП (в плоскости фотокатода):
[мм-1
].(24)
ФПМ ЭОП была приведена в данных к расчёту.
3) Рассчитаем ФПМ объектива переноса.
Пространственная частота для объектива переноса (в плоскости люминофорного экрана ЭОП):
[мм-1
].(25)
ФПМ объектива переносаприведена в данных к расчёту.
4) Рассчитаем ФПМ ПЗС-матрицы.
Пространственная частота для ПЗС – матрицы (в её чувствительной плоскости):
[мм-1
](34)
ФПМ ПЗС, определяемая геометрией матрицы:
(26)
ФПМ ПЗС, определяемая диффузией заряда ПЗС-матрицы в направлении, перпендикулярном считыванию:
,(27)
где 𝛽 – размер плоской вершины пикселя, мкм .
Для большинства современных ПЗС на пространственных частотах 20…40 1/мм
снижение
составляет 3…4%, следовательно можно принять линейную аппроксимацию:
(28)
ФПМ ПЗС, определяемую диффузией заряда ПЗС-матрицы в направлении считывания, можно принять за единицу.
Очевидно, что передаточная функция всего прибора равна:
(29)
· Рассчитаем воспринимаемое отношение сигнал/шум:
(30)
Рис. 4. Зависимость воспринимаемого отношения сигнал/шум от дальности распознавания цели №1.
· Рассчитаем требуемое отношение сигнал/шум.
Согласно критерию Неймана-Пирсона[2]:
, где (31)
Pлт = 0.05 – вероятность ложной тревоги,
Pобн = 0.95 – вероятность правильного обнаружения,
u = Lp-1 (v ) – обратная функция Лапласа, т.е. аргумент u функции Лапласа v = Lp(u ) при значении самой функции, равном v .
Подставив значения, получим:
= 13.68
Таким образом Lрасп = 6772 [м].
Расчет дальности распознавания для цели №2.
Аналогичен расчету для цели №1, но с изменением одной из зависимостей (17). Поверхность фона в данном случае практически параллельна оси распространения излучения лазера, поэтому отражением этого излучения от фона можно пренебречь.
(32)
В результате получимLрасп = 6704 [м].

Рис . 5. Зависимость воспринимаемого отношения сигнал/шум от дальности распознавания цели №2.
Дальность распознавания объекта дневной ПЗС-камерой.
Данные для расчёта:
1) Входной объектив.
Фокусное расстояние Fob = 600 мм.
Дальность распознавания не менее 6700 м.
Интегральный коэффициент пропускания в рабочем диапазоне: Kob = 0,82.
Предположим, что для достижения необходимой дальности распознавания достаточно будет иметь диаметр входного зрачка, удовлятворяющий условию параксиальной системы (D : f’ = 1 : 10). Тогда DДТВ = 60 мм.
ФПМ дифракционно ограниченной системы определяется как[2]:
, где(33)
[мм-1
].

Рис. 6. Функция передачи модуляции входного объектива дневного канала.
2) ПЗС матрица
Помимо указанных в предыдущем разделе параметров, необходима относительная спектральная чувствительность ПЗС-матрицы:
3) Фоноцелевая обстановка отличается от описанной в разделе 2.2.2.1 уровнем освещённости Земной поверхности: Ev = 104 лк.
· Рассчитаем спектральную яркость объекта и фона:
Аналогично п. 2.2.2.1, но относительная спектральная яркость источника (Солнце) описывается исходя из соотношения Планка для АЧТ, нагретого до температуры 5217 К.

Рис. 7. Относительная спектральная яркость Солнца.
·
- число электронов, полученное от фотокатода за время ![]()
(постоянная времени глаза) при облучении от зон миры, соответствующих объекту и фону:
![]()
(34),
Где

- максимум спектральной чувствительности приёмника.
· Число темновых электронов, получаемое от одной чувствительной площадки ПЗС-матрицы за время
:
Расчёт совпадает с приведённым в разделе 2.2.2.1.
Сквозная передаточная функция дневного канала.
1. Функция передачи модуляции объектива.
Пространственная частота для объектива находится так же, как и в разделе 2.2.2.1.
График ФПМ объектива приведен на рис.14.
2. Геометрическая ФПМ ПЗС-матрицы.
Пространственная частота для ПЗС матрицы в данном случае совпадает с пространственной частотой объектива. Геометрическая ФПМ ПЗС-матрицы приведена на рис. 10.
3. ФПМ растекания заряда ПЗС матрицы.
Приведена на рис.11.
Очевидно, сквозная передаточная функция прибора:
(35)
Найдём отношение сигнал/шум:
(36)
Требуемое отношение сигнал/шум – аналогично разделу 2.2.
Таким образом получим для цели №1 Lрасп = 10800 [м].
Для цели №2 Lрасп = 15500 [м].
2.3 Аберрационный расчет объектива НУТВ
Коррекция двухзеркальной системы

Рис. 8. Оптическая схема двухзеркального объектива
Принципиальная схема двухзеркалькой системы[6] показана на рис. 18. Расстояние с от вершины большого зеркала до плоскости изображения обычно оговаривается в технических условиях на расчет системы и зависит от конкретного назначения объектива. Будем считать, что центр входного зрачка совпадает с вершиной большого зеркала.
Для вспомогательных лучей примем следующие условия нормировки: α1 = 0; h1 = 1; α3 =1; β1 = 1; Н1 = 0; β2 = -1. Отрезки -d, с и S’f’ на рис. 18 приведены к фокусному расстоянию, равному единице.
Видно, что двухзеркальная система имеет два свободных параметра (α2 и d), которые следует выбирать с учетом габаритных условий.
Для расширения коррекционных возможностей рассмотренной системы используют различные линзовые компенсаторы или деформируют поверхности зеркал, делая их несферическими.
Компенсация сферической аберрации. Определение коррекционных параметров
Линза поз. 1 (см. оптическую схему принципиальную) имеет отрицательную сферическую аберрацию, так же как и главное зеркало поз. 2, если его изготовить с наружной отражающей поверхностью ("собирающие элементы"). Известно [6], что отрицательная линза имеет положительную сферическую аберрацию. Поэтому комбинация положительной линзы, имеющей отрицательную сферическую аберрацию, с отрицательной линзой позволяет получить систему с исправленной сферической аберрацией. К сожалению, устранить сферическую аберрацию можно только для некоторых лучей, но нельзя ее полностью исправить в пределах всего входного зрачка.
Исходя из вышесказанного, выполним главное зеркало в виде зеркала с внутренней отражающей поверхностью (т.н. зеркало Манжена). Тогда преломляющая поверхность и ее отражение в развертке хода лучей образуют отрицательную линзу. Это обеспечит нам один корректирующий параметр (при фиксированной толщине) – радиус преломляющей поверхности зеркала.
Компенсация комы. Определение коррекционных параметров
Рассмотрим компенсатор, состоящей из линзы, расположенной в сходящихся пучках лучей (линза поз. 4 на оптической схеме).
При фиксированной оптической силе и толщине компенсатор имеет один свободный параметр (радиус одной из поверхностей). При определении конструктивных параметров компенсатора следует иметь ввиду, что его коррекционные возможности зависят от положения компенсатора относительно плоскости малого зеркала. Если компенсатор располагать ближе к малому зеркалу, то он сильнее будет влиять на сферическую аберрацию системы, если компенсатор приближать к задней фокальной плоскости, то возрастает его влияние на полевые аберрации.
Применение компенсатора целесообразно при относительных отверстиях до 1 : 5, что соответствует данному случаю.
Расчет конструктивных параметров
Рассчитаем конструктивные параметры оптической системы методом проб[6].Метод проб состоит в исследовании и использовании зависимостей между изменениями отдельных параметров оптической схемы с известной конструкциейи вызываемыми ими изменениями значений аберраций.
Первоначально из каталогов, архивных данных или патентов выбирают наиболее подходящую оптическую систему, которую пересчитывают, если это необходимо, на требуемое фокусное расстояние или увеличение и принимают за исходную. Последовательно изменяя значения отдельных параметров исходной системы, получают конечный ряд вариантов оптической системы. Рассчитывают ход ряда лучей осевого и наклонного пучков через оптическую систему каждого из полученных вариантов, вычисляют аберрации и, сравнивая их с аберрациями исходной системы, находят указанные выше зависимости. Результаты исследований анализируют по таблицам или графикам, иллюстрирующим влияние изменений параметров на аберрации и другие величины, характеризующие свойства оптической системы. Путем интерполяции или экстраполяции по таблицам или графикам находят вариант оптической системы, который удовлетворяет техническому заданию. В качестве изменяемых параметров могут быть взяты конструктивные параметры (r, d, n). Очевидно, что метод проб достаточно трудоемок по времени, так как требуется проводить большое количество расчетов хода лучей через систему. Однако интенсивное развитие ЭВМ в последние годы позволяет сделать это в автоматическом режиме.
Исходная система:
Исходной системой является объектив, разработанный на ОАО "НПО Геофизика-НВ". Он не удовлетворяет требованиям к качеству изображения и результатам габаритного расчета. Имеет следующие характеристики:
· Заднее фокусное расстояние 270 мм.
· Диаметр входного зрачка 200 мм, диаметр экранированной части 100 мм.
· Угловое поле 5,3°.

Рис. 9. Оптическая схема исходного объектива.
Конструктивные параметры объектива:
Номер поверхности (по ходу лучей) |
Радиус, мм | Толщина по оси, мм | Материал |
| 1 | 656,10 | ||
| 21 | К8 | ||
| 2 | ∞ | ||
| 146,01 | воздух | ||
| 3 | -364,13 | ||
| 18 | К8 | ||
| 4 | -570,2 | Зеркало | |
| -18 | К8 | ||
| 5 | -364,13 | ||
| -146,01 | воздух | ||
| 6 | ∞ | Зеркало | |
| 90,23 | воздух | ||
| 7 | 88,92 | ||
| 5 | ТФ5 | ||
| 8 | 69,02 | ||
| 13,4 | ТК14 | ||
| 9 | 625,2 |
Опишем поэтапно расчет конструктивных параметров при помощи САПР Zemax (в диалоговом режиме).
1) Моделирование исходной оптической системы.
2) Масштабирование всей системы с целью получения искомого фокусного расстояния (1307 мм).
3) Задание искомого диаметра входного зрачка (250 мм).
4) Задание искомого размера изображения (18 мм).
5) Приведение коррекционных элементов к виду, описанному в п. 2.3.1, 2.3.2.
6) Задание оптимизационных требований и ограничений:
o Минимизация размера усредненного (по зрачку и по длинам волн) кружка рассеяния, содержащего 70% энергии.
o Максимальная длина оптической системы, максимальное отношение светового диаметра компонент к их толщине, минимальное расстояние между компонентами, допустимость отклонения от заданного фокусного расстояния.
7) Назначение коррекционных параметров соответственно с п. 2.3.1, 2.3.2.
8) Автоматизированный расчет.
С результатами аберрационного расчета объектива НУТВ и объектива можно ознакомиться в приложении 1.
С конструктивными параметрами объектива ДТВ, его МПФ, и конструктивными параметрами коллиматора ЛОС можно ознакомиться в приложении 2.
Вывод
· Приведено обоснование оптической схемы КТВС.
· Проведен габаритный расчет, который, к сожалению, показывает, что одновременное соблюдение требований ТЗ по габаритам и угловому полю не представляется возможным.
· Проведен расчет сквозной передаточной функции системы. Проведен расчет дальности действия, на основании которого выбрано число лазеров в ЛОС. Расчет показал, что дальность распознавания для ночного канала составляет 6700 м, для дневного – 11000 м.
· Проведен аберрационный расчет, в результате которого были получены конструктивные параметры оптических схем КТВС.
3. Конструкторская часть
3.1 Анализ основных вариантов исполнения КТВС
Рассмотрим основные технические варианты, позволяющие выполнять задачу распознавания цели при изменении естественной освещённости окружающих объектов от 10-4 до 104 лк.
Телевизионная камера на основе ПЗС – матрицы
Современные высокочувствительные видеокамеры на основе ПЗС-матрицы имеют достаточно низкую пороговую освещенность объекта – порядка 10-4 лк. (табл. 1)

Таблица 1. Чувствительность ТВ камер в режиме накопления.
о достигается за счёт:
А) Интегрированного накопления сигнала с нескольких фоточувствительных площадок ПЗС – матрицы, что приводит к снижению разрешающей способности и затруднению задачи распознавания.
Б) Накопления сигнала нескольких кадров, что так же приводит к затруднению задачи наблюдения за обстановкой.
Доведение же порога чувствительности видеокамер до 10-4 лк при сохранении качественного изображения на данный момент является нерешённой в серийном производстве ПЗС-матриц технической задачей.
Поэтому данный вариант исполнения КТВС не отвечает техническим требованиям.
Низкоуровневая телевизионная камера, работающая в круглосуточном режиме.
Структурная схема такого прибора приведена на рис. 1.2.1

Рис. 10. Структурная схема КТВС.
Рассчитаем динамический диапазон освещённости фотокатода ЭОП. Примем "комфортный" уровень наблюдения обстановки, не приводящий к выгоранию фотокатода, равным 10-1 лк. Тогда динамический диапазон
(37)
Применим фотохромный жидкостный светофильтр. Его динамический диапазон равен отношению коэффициентов пропускания в "затемнённом" и "просветлённом" состоянии
(38)
Тогда динамический диапазон изменения площади открытой части ирисовой диафрагмы камеры
(39)
Диапазон изменения диаметра входного зрачка:
(40)
При диаметре входного зрачка Dmax = 250 мм :
мм(41)
Такое соотношение приводит к:
1) Высоким требованиям к конструкции ирисовой диафрагмы.
2) Сильному вкладу дифракции в кружок рассеяния объектива. При фокусном расстоянии объектива 1307 мм на длине волны излучения 0,85 мкм обусловленный только дифракцией размер кружка рассеяния будет равен:
мм(42),
чтосовершенно недопустимо.
Вывод: оптимальным вариантом реализации КТВС является система с двумя каналами наблюдения (дневным и ночным), переключение между которыми осуществляется при определённом уровне освещённости, определяемом оператором.
Анализ основных вариантов исполнения НУТВ.
Выделим два основных эргономических требования к такой системе:
1) Удобство наблюдения. Оператор должен иметь возможность наблюдать сцену на мониторе, в комфортных для своего зрительного анализатора условиях.
2) Возможность цифровой обработки для улучшения изображения и процесса распознавания.
Очевидно, что единственной системой ночного канала, удовлетворяющей этим требованиям, будет НУТВ – низкоуровневая телевизионная система.
Рассмотрим разные варианты реализации НУТВ.
1. Наиболее простое решение - присоединение к ПНВ вместо окуляра телекамеры. Некоторые ПНВ комплектуются адаптерами для присоединения телекамер, легко осуществляемого самим пользователем прибора.
С помощью специальных адаптеров экран ЭОП может быть оптически сопряжен с матрицей ПЗС ТВ видеокамеры. Это достигается с помощью оптики переноса изображения. Это позволяет получить изображения на электронных носителях, упрощает и ускоряет процесс создания изображений, их тиражирования, допускает их обработку в реальном масштабе времени или с накоплением информации. При этом ПНВ выполняют в виде малогабаритной насадки для фото- или видеокамеры. Для того чтобы перенести изображение с экрана ЭОП ПНВ на светочувствительный элемент фото- или видеокамеры, чаще всего применяют линзовые адаптеры, которые входят в комплект ПНВ. Типичная оптическая схема такого адаптера дана на рис. 21. Адаптеры называют линзами Релея. Они могут переносить изображение в масштабе 1:1, либо с увеличением 1,5 – 2,5х , либо с уменьшением до 0,5х . Уменьшение часто бывает необходимо для согласования линейных полей зрения экрана ЭОП и матрицы ПЗС, а также для повышения ее освещенности. Относительное отверстие адаптера может быть от 1:1,5 до 1:6, фокусное расстояние от 15 до 40 мм.
2. Использование ЭОП и ПЗС матрицы в одном приборе. ПЗС – матрица с электронной чувствительностью, TEP-фотокатод.
Разработка таких систем стала возможна благодаря созданию ЭОП с фотокатодом на основе барьеров Шоттки – так называемым ТЕР-фотокатодом (ТЕР – Transferred Electron Photocathode). На рис. 22 представлена кривая спектральной чувствительности ТЕР-фотокатода (кривая 1) в сравнении с кривой чувствительности обычного фотокатода ЭОП III поколения. Принимая во внимание меньшую чувствительность ТЕР-фотокатода, представляется целесообразным использовать его в ТВ-камере на базе ПЗС с электронной бомбардировкой. На рис. 23 представлена схема построения такой ТВ-камеры, где 1 – ТЕР-фотокатод; 2 – поток электронов; 3 – вакуумированный объем; 4 – матрица ПЗС; 5 – видеоусилитель; 6 – жидкокристаллический (ЖК) ТВ-монитор. Разработана ТВ-камера с форматом 2/3 дюйма, числом пикселей 768х244, при частоте кадров 60 Гц. Предельная разрешающая способность ТВ-камеры составляет 45 л/мм. При работе ТВ-камеры в течение 12000 часов чувствительность фотокатода падает на 50%. ТВ-камера допускает режим стробирования. Это позволяет использовать ее совместно с импульсным лазерным осветителем, генерирующим на длине волны 0,85 мкм, в качестве активно-импульсной ТВ-системы. При этом время фронта и среза импульса строба не превышает 100 нс. При напряжении 2 кВ коэффициент усиления камеры свыше 150. В ТВ-камере отсутствуют обычные для ЭОП III поколения микроканальная пластина и волоконно-оптические детали, снижающие качество изображения. Видеосигнал с выхода матрицы ПЗС (4) усиливается в видеоусилителе (5) и поступает в ЖК ТВ-монитор (6), на экране которого создается ТВ-изображение.
3. Использование ЭОП и ПЗС матрицы в одном приборе. Перенос изображения с экрана ЭОП на чувствительный слой ПЗС-матрицы осуществляется проекционным объективом.
Функциональную схему такого устройства можно представить следующим образом:
![]()
Рис. 11. Функциональная схема ночного телевизионного канала.
Объектив 1 - приемный объектив; ЭОП - электронно-оптический преобразователь; объектив 2 - проекционный объектив; камера - видеокамера с ПЗС.
Электронно-оптический преобразователь предназначен для формирования на люминесцентном экране ЭОП усиленного по яркости изображения.
Проекционный объектив переносит изображение с люминесцентного экрана ЭОП на ПЗС телевизионной камеры.
Видеокамера с ПЗС формирует телевизионный сигнал ночного канала.
Видеокамера с ФПМ ПЗС формирует полный телевизионный видеосигнал, который по кабелю связи поступает в блок электронной обработки и в комплекс средств автоматики. Из блока обработки полный видеосигнал в аналоговом виде поступает на блок индикации.
4. Использование ЭОП и ПЗС матрицы в одном блоке. Перенос изображения с экрана ЭОП на чувствительный слой ПЗС-матрицы осуществляется волоконной пластиной.
Функциональную схему такого устройства можно представить следующим образом:
Расчёт таких систем почти аналогичен расчёту предыдущей.
Преимущество: в десять раз больший КПД переноса. Если проекционным объективом переносится порядка 6% светового потока, то ВОП переносится порядка 60% светового потока, излучаемого люминофорным экраном ЭОП.

Рис. 12. Функциональная схема ночного телевизионного канала.
ЭОП - электронно-оптический преобразователь с люминесцентным экраном на выходе; ВОП - волоконно-оптическая пластина; S1, S2, S3 - оптические сигналы: S1 - от объекта наблюдения и фона; S2 - от люминесцентного экрана ЭОП; S3 - после прохождения через ВОП; S4 - электрический сигнал на выходе ФПМ ПЗС.
Недостаток: ВОП имеет разрешающую способность около 30…40 л/мм, что критично сказывается на предельной дальности распознавания небольших объектов. Однако при использовании ЭОП четвёртого и пятого поколений, имеющих большую разрешающую способность, применение ВОП может быть целесообразно.
В данном проекте будет воплощен вариант 3 , так как он имеет явные преимущества:
· По сравнению с вариантом 1 более удобен в эксплуатации, устойчив к внешним воздействиям, лучше качество изображения, меньше энергетических потерь.
· По сравнению с вариантом 2 более высокое отношение сигнал/шум, которое можно получить, не прибегая к сложному охлаждению.
· По сравнению с вариантом 4 лучше качество изображения.
3.2 Описание конструкции КТВС и ее узлов
Конструкция лазерной осветительной системы
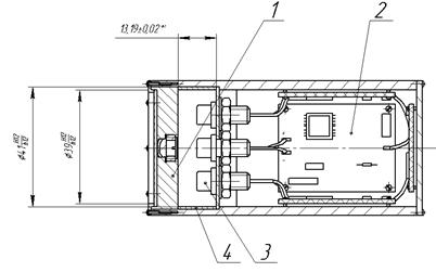
Конструкция ЛОС представлена на рис. 26.

Рис. 13. Конструкция лазерной осветительной системы.
При сборке базовым узлом является корпус с предустановленными печатными платами поз 2. В него устанавливается лазерная батарея поз. 3. Посадка происходит по гладкой цилиндрической поверхности диаметром 41 мм. Затем на ту же поверхность устанавливается кольцо поз. 4, которое определяет расстояние между лазерами и коллиматорами. Это расстояние (13,19 мм) обеспечивается подрезкой торца кольца поз 4.
Затем на кольцо устанавливается растр коллиматоров поз. 1, в него по гладкой цилиндрической поверхности диаметром 39 мм – защитное стекло.
Последнее в свою очередь прижимается крышкой.
Обоснование допусков.
Очевидно, что посадки с зазором по 12-му квалитету приведут к поперечному смещению друг относительно друга коллиматорного и лазерного узлов. Это приведет к тому, что оптическая ось выходящего излучения будет не параллельна оптическим осям лазеров. Однако при сборке всей КТВС юстировка приемных каналов будет проводиться именно относительно пучка лучей осветителя, поэтому такие допуски можно признать удовлетворительными. В свою очередь, расходимость пучка чувствительна к дефокусировке, поэтому на нее назначен допуск ±20 мкм.
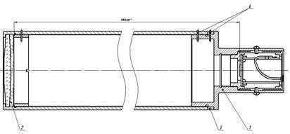
Конструкция дневной телевизионной системы.

Рис. 14. Конструкция ДТВ.
Камера телевизионная в оправе поз. 1 соединяется по резьбовой поверхности с объективом в оправе поз. 2. Для обеспечения размера заднего фокального отрезка с заданной точностью (0,6 мм) используется юстировочное кольцо поз.3. Его толщина уменьшается путем вытачивания на токарном станке до нужного значения.
После юстировки кольцо и оправа объектива соединяются штифтами поз. 4 с оправой камеры.
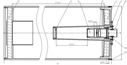
Конструкция низкоуровневой телевизионной системы.

Рис. 15 Конструкция НУТВ.
Здесь объектив переноса поз. 5 вкручивается по резьбовой поверхности в оправу ЭОП 6. Затем к этой оправе присоединяется винтами телевизионная камера 2. Размер между объективом переноса и камерой обеспечивается подрезкой торца оправы ЭОП.
Затем получившийся узел из двух оправ по цилиндрической поверхности диаметром 60 мм соединяют оправой сб. ед. поз 4, и фиксируют крышкой поз. 8 при помощи кольца поз. 7. Расстояние между линзой и ЭОП регулируется подрезкой одной из поверхностей сб. ед. поз. 6.
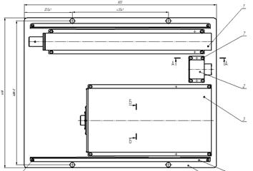
Конструкция КТВС .

Рис.16. Конструкция КТВС.
На данном этапе сборки проводится юстировка каналов. Сначала на коллиматор (не показан) наводится излучение лазерной системы подсветки поз. 2. Затем с помощью высокоточных подвижек коллиматора изображение на его экране совмещают с центром перекрестия. ЛОС поз. 2 штифтуют штифтами поз. 10.
Затем коллиматор перемещается в плоскости, перпендикулярной осям каналов, в положение для юстировки ДТВ поз 1. В автоколлимационном режиме сборщик получает изображение блика от первой оптической поверхности. Перемещая сб. ед. в горизонтальной плоскости вручную (это позволяют выполненные с зазором отверстия плиты поз. 5), а в вертикальной – с помощью установочных винтов поз. 8, добиваются совпадения изображения блика с центром перекрестия экрана коллиматора.
Затем сб. ед. штифтуют
Юстировку НУТВ поз. 3 проводят аналогично.
Точность современных коллиматоров и их подвижек (до 20’’ ) позволяет легко добиться отклонения от параллельности каналов
Величиной не более 3’ .
В завершение на КТВС закрепляется защитный кожух поз. 4.
Вывод
· Проведен анализ вариантов конструкции КТВС, выбран вариант с раздельными каналами для дневной и ночной работы прибора.
· Проведен анализ вариантов конструкции НУТВ, выбран вариант со структурой Объектив+ЭОП+Объектив+ПЗС.
· Разработана конструкция основных узлов КТВС. В конструкцию были внедрены конструктивные элементы, позволяющие провести юстировку осей трех каналов с точностью до 3’ .
4. Технологическая часть
Электронно-оптический преобразователь (ЭОП) — это устройство, преобразующее электронные сигналы в оптическое излучение или в изображение, доступное для восприятия человеком (или другим приемником). Термином ЭОП называют устройство, содержащее:
а) фотокатод, преобразующий слабые световые потоки в потоки электронов,
б) усилитель этих электронных потоков,
в) бомбардируемый электронным потоком люминесцентный экран, на котором воспроизводится усиленное изображение.
В проектируемом приборе (КТВС) используется ЭОП 58 ЭГ
(ДТУА 433244.005 ТУ). В качестве усилителей электронных потоков в таком ЭОПе используется микроканальная пластина (МКП).
Для оборачивания изображения используется волоконно-оптический элемент с углом поворота изображения 180° (ВОЭ180).
Эти детали изготавливаются на основе технологии производства волоконно-оптических пластин (ВОП). Рассмотрим эту технологию
4.1 Общие сведения об оптических волокнах и изготовляемых из них деталях
В соответствии с физическими и технологическими ограничениями, присущими оптическим волокнам, их размеры колеблются в пределах:
• диаметр жилы - 5... 50 мкм;
• толщина оболочки - 0,1...5 мкм. Оптические волокна, как правило, применяются не в одиночку, а в виде многоволоконных структур, содержащих до десятков миллионов отдельных волокон, размещенных вплотную друг к другу. Плотность укладки волокон лежит в пределах 1500... 100000 волокон на один квадратный сантиметр.
Волоконные жгуты, у которых волокна скреплены жестко только по концам, являются гибкими жгутами. Волоконные жгуты, у которых волокна скреплены жестко по всей длине, являются жесткими.
Жесткое соединение отдельных волокон в обоих случаях производится спеканием оболочек, и иногда при помощи эпоксидных смол.
Жгуты с упорядоченным расположением волокон (регулярной укладкой), у которых концы каждого волокна во входном и выходном сечениях занимают одинаковые места, применяются для передачи изображения без искажения ее вида.
Волоконные жгуты с неупорядоченным расположением волокон (нерегулярной укладкой) используются только для передачи оптического сигнала (света).

Рис. 15. Оптическое волокно.
db - диаметр волокна;
dc - диаметр жилы;
t - толщина оболочки;
db = dc + 2t(43)
nl - показатель преломления материала жилы;
n2 - показатель преломления материала оболочки; nl >n2
αl - угол полного внутреннего отражения;
sinαl = n2 /n1 (44)
α2 - наибольший угол падения луча на торец жилы, соответствующий предельному углу полного внутреннего отражения;
sinα2
=
(45)
Предварительно изготовленные заготовки в производстве волоконно-оптических деталей применяются следующих видов: штабики, трубки, кубики. Это продиктовано двумя методами производства волоконно-оптических деталей:
• штабиковый метод, где в качестве заготовок применяются штабики и трубки, и вытягивание волокна осуществляется с разогретого до размягчения торца штабика и трубки;
• из расплава, при котором вытягивание волокна производится через фильеру, и где в качестве заготовки применяются кубики, подающиеся в расплавленную стекломассу.
К качеству заготовок предъявляются очень высокие гребования по однородности материала, по отсутствию таких дефектов, как свиль, пузыри и т. д. Например, если в штабике имеется свиль, то при вытягивании тонкого волокна она также будет вытянута, причем на длину весьма значительную (измеряемую километрами). Это приведет к браку законченного изделия (так как порок может быть определен только в готовом изделии) и к длительной работе оборудования "в холостую". Так же дефекты кубиков через расплав могут привести к браку волоконно-оптические изделия.
4.2 Изготовление МКП
Технические требования, предъявляемые к МКП
Согласно [7], техническими требованиями являются.
Требования к конструкции.
А) МКП должны изготавливаться по утвержденной, конструкторской и технологической документации.
Б) Общий вид, габаритные размеры, геометрическая структура МКП, размера форма и материал проводящего покрытия контактного электрода (далее КЭ) должны соответствовать чертежу "Микроканальная пластина", приведенному в графической части.
В) МКП должны иметь форму диска диаметром 32,85-0,1 мм.
Г) Расстояние от края МКП до контактного электрода должно быть в пределах (0,3 - 0,8) мм.
Д) Диаметр круга рабочей площади МКП должен быть не менее 26 мм.
Е) Толщина МКП должна быть в пределах (0,305-0,335) мм. Отклонение от параллельности торцевых поверхностей МКП (ГОСТ 24642-81) должно быть не более 0,010 мм.
Ж) Номинальное (среднее по рабочей площади МКП) значение диаметров каналов должно быть в пределах (7,5±0,5) мкм.
Разброс диаметров каналов (коэффициент вариации) в пределах рабочей площади МКП должен быть не более 1,6%.
З) Шаг структуры каналов должен быть не более 9,5 мкм.
И) Угол между осью единичного канала и нормалью к плоскости торца МКП должен быть в. пределах (4°-6°).
К) Глубина запыления каналов слоем контактного электрода должна быть:
на входе МКП - в пределах (0,3-0,8) диаметра канала,
на выходе МКП - в пределах ( 1-2,5) диаметра канала.
Л) Отклонение от соосности микроканальной вставки МКП (ГОСТ 24642-81) должно быть не более 0,2 мм.
M) Ширина монолитного обрамления (далее МО ) МКП должна быть не менее 1,6 мм.
Н) Отклонение от плоскостности (ГОСТ 24642 - 81) МКП должно быть не более 0,03 мм.
О) Расчетный коэффициент прозрачности МКП после металлизации должен быть не менее 0,59 со стороны входа МКП.
П) Масса МКП должна быть не более 1,0 г.
Требования к внешнему виду и оптическому качеству поверхностей.
А) Чистота торцевых поверхностей МКП (в терминах и определениях ГОСТ 11141-84) должна соответствовать требованиям, указанным в Таблице 2.
Б) Чистота фасок и цилиндрической поверхности (образующей) МКП должна соответствовать требованиям, указанным в Таблице 2.
Таблица 2:
Наименование критерия |
Допустимое количество | |||||
| В рабочей зоне Диаметром 6 мм | В кольце между рабочей зоной и монолитным обрамлением | На монолитномобрамлении | ||||
| вход | выход | вход | выход | вход | выход | |
Точки и посторонние частицы, мм |
||||||
| 0,015 и менее | Не нормируются | |||||
| Св. 0,015 до 0,05 | Не допускаются | 5 | Не допускаются | 5 | Не допускаются | Не контролируются |
| Св. 0,05 до 0,1 | Не допускаются | 3 | ||||
| Более 0,1 | Не допускаются | |||||
| Царапины шириной, мм | ||||||
| Св. 0,005 до 0,01 | 10 ммСуммарная длина | 15 ммСуммарная длина | 10 ммСуммарная длина | 10 ммСуммарная длина | 15 ммСуммарная длина | 15 ммСуммарная длина |
| Св. 0,01 до 0,015 | Не допускаются | 5 | 5 | 5 | 5 | |
| Более 0,015 | Не допускаются | |||||
| Отверстия и следы от электропробоя | Не допускаются | |||||
| Забитые каналы | Не более 0,5% от общего количества каналов | |||||
Таблица 3:
| Наименование критерия | Допустимое количество, шт. |
| Сколы размером, мм | |
| 0,1 и менее | Не нормируются |
| Св. 0,1 до 0,2 | 2 |
| Более 0,2 | Не допускаются |
В) Максимальный линейный размер и количество межканальных отверстий (МКО) не должны превышать требований, указанных в Таблице 4.
Таблица 4:
Наименование критерия |
Допустимое количество, шт. | |
В центральном круге диаметром 0,5 диаметра рабочей зоны |
В кольце свыше 0,5 и до 1,0 диаметра рабочей зоны |
|
| Линейный размер МКО, мм | ||
| От 1 до 2 вкл. диаметров каналов | Не нормируется | |
| От 2 до 3 вкл. диаметров каналов | Не допускается | 4 |
| Более 3 диаметров каналов | Не допускается | |
Г) Металлическое покрытие контактных электродов на входе и выходе МКП должно быть зеркальным, плотно сцеплено с подложкой и не иметь шелушений, в том числе после термического обезгаживания. На поверхности КЭ на выходе МКП допускаются местные изменения цвета покрытия на отражение, не видимые на электронном изображении (далее ЭИ). Контроль производится по утвержденным образцам.
Изготовление единичного волокна для МКП.
Изготовление гибкого волокна может осуществляться "трубочным" методом [9]. Он заключается в том, что вытягивание единичного оптического волокна производится из предварительно изготовленной заготовки - трубки.

Рис. 16. Изготовление единичного волокна.
Заготовка:
• трубка, с внутренним диаметром 6 мм, толщиной стенки 7,6 мм. Это обеспечивает нужное соотношение шага каналов и размер канала МКП.
Заготовку - трубку - закрепляют в зажимном устройстве подающего механизма. Нижний торец заготовки подается в нагревательное устройство, где под воздействием нагревателя материал трубки размягчается. Размягченный материал вытягивается в волокно роликами (см. рис. 31) и отрезается ножами для сбора в накопитель.
Параметры вытягиваемого единичного волокна (из одной трубки) регулируются скоростью подачи комплекта заготовки и температурой нагревателя. Качество и постоянство размеров волокна в установившемся режиме работы зависит от стабильности следующих технологических режимов:
• скорость вытягивания волокна;
• вязкость размягченных заготовок;
• скорость подачи заготовки.
Стабильность вязкости заготовок обеспечивается поддержанием постоянной температуры нагревателя через систему стабилизации. Стабильность скорости подачи заготовок обеспечивается системой стабилизации двигателя.
Изготовление пластины методом перетяжки пакета
Затем изготовленные на предыдущем этапе волокна вручную укладываются в шестигранные пакеты

Рис. 17. Двукратная перетяжка пакета.
Размер пакета "под ключ" равен 81 мм при первой перетяжке, и 6,5 мм при второй. В специальном перетяжном устройстве пакет устанавливается в зажимном устройстве подающего механизма.
Нижний конец пакета подается в нагревательное устройство (с фильерой), где нагревателем трубки нагреваются до размягчения, спекаются и тянущими валками пакет перетягивается в многожильный "световод" 15. Ножами он рубится на куски, которые попадают в накопитель.
В данном случае применяется двукратная перетяжка с коэффициентом уменьшения 12,5 в обоих случаях. Отдельные куски многожильных "световодов" укладываются в прессформу и прессуются в вакуумно-плотную пластину.
Контроль параметров МКП.
Согласно [7]:
Проверка на соответствие требованиям конструкции.
А) Диаметр МКП измеряют на микроскопе ИМЦ-150-50,5 (ГОСТ 8074-82) в двух взаимно -перпендикулярных направлениях.
Б) Толщину МКП измеряют скобой типа СР-25 (ГОСТ 11098-75). Контроль толщины производят в пяти точках (четыре измерения - по краю на концах взаимно-перпендикулярных диаметров и одно измерение - в центре пластины) и находят среднее арифметическое значение толщины МКП.
В) Отклонение от параллельности торцевых плоскостей. МКП оценивают по результатам измерений толщины МКП в пяти точках. Разность между наибольшим и наименьшим значениями определяет величину отклонения от параллельности торцевых плоскостей МКП.
Г) Диаметр каналов и шаг структуры каналов измеряют на МКП со стороны входа в отраженном свете на микроскопе МБС - 9 (ТУЗ-3.1210-78) с помощью винтового окулярного микрометра МОВ-1-16х (ТУЗ-3.2048-88). Допускается измерение на других типах приборов.
Измерения производят в пяти произвольно выбранных в пределах рабочей зоны МКС (ОСТ 3 - 5862), причем в каждой МКС измеряют диаметр и шаг структуры 20-и каналов, расположенных произвольно внутри этой МКС. Общий объем выборочных значений диаметра каналов и шага структуры равен 100.
Средний диаметр каналов и средний шаг структуры рассчитывают по формулам (46) и (47):
(46)
(47)
Среднеквадратичное отклонение диаметра канала рассчитывают формуле (6):
(48)
Коэффициент вариации диаметров по формуле (49):
(49)
Д) Расстояние от края МКП до края контактного электродаизмеряют на микроскопе МБС-10 в отраженном свете. Измеряют максимальное и минимальное расстояние от края МКП до КЭ. Допускается использование других средств измерений.
Е) Угол наклона каналов МКП измеряют на невытравленных заготовках по ОСТ 3-3200-86.
Ж) Глубину запыления каналов МКП измеряют на изломе МКПО подмикроскопом МБС - 9 (ТУЗ-3.1210 - 78) с помощью винтового окулярного микрометра МОВ 1-16х (ТУЗ-3.2048-88) путем перемещения перекрестия вдоль каналов МКП.
И) Ширину монолитного обрамления МКП и отклонение от соосности микроканальной вставки измеряют на невытравленных заготовках МКП с помощью микроскопа МБС-9 (ТУЗ-3.1210-78) с помощью объектива увеличением 2х и штриховой окулярной головки с увеличением 8х . Измерения проводят в проходящем свете по 12-и угловым МКС от острия зубца до края МКП, при этом определяют максимальную и минимальную ширину монолитного обрамления МКП (lmo max , lmo min ). При этом величина lmo min должна быть больше 1,6 мм/ Отклонение от соосности микроканальной вставки (Δl) рассчитывают по формуле (50):
(50)
К) Размер фаски МКП измеряют на не вытравленных заготовках с помощью микроскопа МБС-9 (ТУЗ-3.1210-78) с объективом увеличением 4х и винтового окулярного микрометра MOB 1-16х (ТУЗ-3.2048-88) в отраженном свете путем перемещения перекрестия вдоль радиуса (диаметра) от края МКПО до края фаски, определяя максимальный и минимальный размер фаски.
Л) Отклонение от плоскостности торцов МКП измеряют на интерферометре типа МИИ-4 с увеличением. Г=33,4х ценой деления микрометрического винта для фокусировки 3 мкм, определяя максимальную разность показаний прибора между центральной зоной и произвольной точкой поверхности торца МКП в пределах ее рабочего диаметра. Под центральной зоной понимается участок МКП расположенный на расстоянии не более ± 1,5 мм от ее геометрического центра.
М) Точки посторонние частицы, царапины, отверстия от электропробоя, потертости (ОСТ 3-5862) и разводы (белесые пятна) (ОСТЗ -5862) просматривают визуально с помощью лупы 6х в необходимых случаях под микроскопом МБС-9 с помощью МОВ 1-16х .
Н) Процентное соотношение забитых каналов МКП определяют в пределах рабочей зоны как отношение среднего арифметического значения количества забитых каналов по десяти случайно расположенных МКС к количеству каналов в одной МКС. Определяют на микроскопе с увеличением не менее 112х .
О) Межканальные отверстия МКП контролируют с помощью микроскопа МБС-9 с помощью МОВ1-16х в проходящем свете с увеличением не менее 112х . Допускается использование другого типа микроскопа с аналогическими метрологическими характеристиками.
П) Массу МКПО проверяют взвешиванием на весах ВЛА-200г-М (ТУ25-06-383-68) с погрешностью измерения не более ± 2%.
Перечень оборудования:
1. Установка измерения электрических и электронно-оптических параметров МКП ИЧ 031.0060, ИЧ 031.0060-01.
2. Микроскоп МБС-9 по ТУ 3-3.1210-78.
3. Микрометр винтовой окулярный МОВ-1-16х по ТУ 3-3.2048-88. 4 . Микроскоп МИМ-8 по ГОСТ 8074 - 82
5. Фотометр ФПН-УХАЧ по ТУ 3-3,1658-78.
6. Микроскоп ИМЦ-150 -50,5 Б по ГОСТ 8074 - 82.
7. Пластина ПИ-100 по ГОСТ 2923-75.
8. Скоба рычажная СР-25 по ГОСТ 11098-75.
9. Секундомер механический по ГОСТ 8.423-81.
10. Весы ВЛА 200Г-М по ТУ25 – 06.383-68.
11. Меры длины концевые по ГОСТ 9038-90.
12. Прибор Ц-4341 по ГОСТ 10374-093.
4.3 Изготовление ВОЭ180
Технические требования, предъявляемые[8] к ВОЭ180
Требования к светотехническим параметрам
А) Размер (диаметр) единичного волокна должен быть не более 6 мкм, при этом разрешающая способность в световом диаметре не менее 100 мм-1 (расчетная).
Б) Коэффициент пропускания ВОЭ180 на длине волны λ= 550 нм в зоне диаметром 5 мм должен быть не менне 0,45, в зоне диаметром 15 мм не менее 0,38.
В) Коэффициент передачи контраста в световом диаметре BОЭ180, измеренный при освещении диффузнымсветом, должен быть не менее указанного в таблице 5.
Г) Структурная неравномерность пропускания ВОЭ180 в световом диаметре при освещении диффузным светом и сканировании световым пятном 20x20 мкм не должна превышать плюс минус 5%.
Таблица 5:
| Частота миры, мм-1 | КПК |
| 5 | 0,98 |
| 12,5 | 0,96 |
| 25 | 0,93 |
| 35 | 0,83 |
Д) Отклонение угла поворота изображения от 180° в световом
диаметре ВОЭ180 должно быть не более плюс минус 1,0°.
Е) Искривление изображения прямой линии В0Э180 должно быть в зоне диаметром 8,5 мм не более 60 мкм, в кольцевой зоне диаметром (8,5-18,0) мм не более 100 мкм.
Ж) Размер сдвигов изображения прямой линии должен быть в зоне диаметром 8,5мм не более 50 мкм; в кольцевой зоне диаметров (8,5-18,0) мм не более 75мкм.
З) Наличие сотового рисунка (полных шестигранников, образованных единичными темными волокнами) по всему световому диаметру не допускается. Допускается в зоне 13,5-18,0 мм наличие отдельных элементов сетки, в с соответствии с согласованными образцами сравнения.
И) Смещение центральной точки при передаче ее изображения с одного торца BОЭ180 на другой должно быть не более 0,2 мм.
Требования к физическим свойствам.
А) Температурный коэффициент линейного расширения ВОЭ180, средний в интервале температур от 20° до 300°С, должен быть (73±3)∙10-7 С-1 .
Б) Вакуумная плотность В0Э180, определяемая величиной вытекания гелия, не должна превышать 1∙10-4 см3 ∙мкм/с.
Изготовление ВОЭ180.
Технологический процесс изготовления пластины для ВО180 аналогичен технологическому процессу изготовления пластины для МКП. Отличие: на этапе вытяжки единичного волокна используется не одна заготовка-трубка, а комплект штабик-трубка.
Еще одно существенное отличие заключается в наличии операции поворота торца ВОЭ180 на 180° (см. рис. 33).

Рис. 18. Поворот торца на 180°.
Здесь один торец заготовки закрепляется неподвижно, другой соединен с вращающимся валом редуктора. Поворот осуществляется либо вручную, либо при помощи высокоточного шагового двигателя.
Контроль ВОЭ180.
Проверка геометрических параметров.
А) Диаметры входного и выходного торцов и диаметра
21,8-0,21 ВОЭ180 измеряют с помощью микрометра MK-25-1 по ГОСТ 6507.
Б) Длину В0Э180 измеряют индикатором ИЧ-ГО кл. II ГОСТ 577.
В) Отклонение от параллельности торцевых поверхностей ВОЭ180 проверяют по разности между наибольшим и наименьшим значениями длины.
Г) Размеры 6,1±0,1; 7,8+1 мм проверяют на микроскопе БМИ-1 ГОСТ 8074 или на любом другом .позволяющем измерить данный параметр.
Д) Угол 135°±2° проверяют на микроскопе БИМ-1 ГОСТ 8074.
Е) Радиус сопряжения торцевой и боковой поверхностей ВОЭ18О (0,5 мах) проверяют на микроскопе БИМ-1 ГОСТ 8074 с применением экрана АЦ 7031-9738.
Ж) Соосность цилиндрических поверхностей проверяют индикатором ИЧ-10 кл. I ГОСТ 577 с применением приспособлений АЦ 7031-8032; АЦ7031-9751.
З) Шероховатость поверхностей ВОЭ180 не проверяют, обеспечивается технологическим процессом изготовления.
И) Чистоту полированных поверхностей ВОЭ180 контролируют до ГОСТ 11141. Наличке выколок проверяют визуально. Размер выколок контролируют по ГОСТ 11141 с помощью лупы ЛИЗ-10х ГОСТ 25706.
Проверка светотехнических параметров.
А) Размер единичного волокна контролируют в соответствии с "Методикой измерения размера единичного волокна ВОЭ18О".
Б) Коэффициент пропускания ВОЭ180 контролируют в
соответствии с "Методикой измерения коэффициента пропускания ВОЭ18О".
В) Коэффициент передачи контраста контролируют в
соответствии с "Методикой измерения коэффициента передачи контраста ВОЭ18О".
Г) Структурную неравномерность пропускания контролируют в соответствии с "Методикой измерения структурной неравномерности пропускания ВОЭ18О".
Д) Отклонение угла поворота контролируют в соответствии с "Методикой измерения отклонения угла поворота ВОЭ18О".
Методика приведена на чертеже "Контроль отклонения угла поворота".
Е) Искривление изображения прямой линии (ИИПЛ) контролируют в соответствии с "Методикой измерения ИИПЛ ВОЭ18О".
Методика приведена на чертеже "Контроль ИИП".
Ж) Сотовую структуру оценивают в соответствии с "Методикой оценки сеток ВОЭ18О".
4.4 Изготовление вакуумного блока (ВБ) ЭОП
Технические требования.
Технические требования представлены на сборочном чертеже.
Технологический процесс сборки ВБ
Технологический процесс сборки ВБ является коммерческой тайной ОАО "НПО Геофизика-НВ".
Контроль параметров ВБ
Параметры ВБ контролируются в составе всего ЭОП при контроле параметров последнего.
Вывод
· Разработан технологический процесс изготовления и контроля вакуумно-плотной волоконной пластины, являющейся основой для МКП. Разработан процесс контроля МКП.
· Разработан технологический процесс изготовления и контроля ВОЭ180.
· Разработан сборочный чертеж для сборки вакуумного блока ЭОП.
5. Организационно-экономическая часть
Целью данной главы является организация научно-исследовательской и опытно-конструкторской работы (НИОКР) по проектированию системы наблюдения и созданию программного обеспечения для управления им. Глава включает в себя определение сроков проведения НИОКР, затрат на ее проведение и технико-экономическое обоснование данной НИОКР.
5.1 Определение сроков проведения НИОКР
Рассмотрим этапы проведения НИОКР по созданию системы наблюдения, начиная от разработки технического задания и кончая создания рабочей документации.
Ожидаемое время выполнения этапов
определено на основе экспертной оценки. Исходя из опыта проведения подобных НИОКР, к выполнению данной работы привлечено 3 отдела с 9 сотрудниками – 3 инженерами-разработчиками (исследования, расчёты, создание оптических схем и выпусков и т.д.), 3 инженерами-конструкторами (работа с CAD/CAM-системами, создание рабочей документации) и 3 инженерами-программистами (создание программного обеспечения).
Перечень этапов приведен в таблице 6. Буквами обозначены: Р – разработчики, К – конструкторы, П – программисты. Перечень составлен на основе типовой структуры НИОКР.
Таблица 6.
| Этап | Содержание | Исполнители | |||
| Р | К | П | |||
| 1. Разработка технического задания. | |||||
| 1.1 | Установление требований, предъявляемых к разрабатываемому изделию: назначение, состав, технические требования, требования к ПО и т.д. Согласование ТЗ. Заключение договора с Заказчиком. | 3 | 4 | – | 1 |
| 2. Разработка технического предложения. | |||||
| 2.1 | Проведение патентных исследований, изучение технических описаний, анализ прототипов. Теоретические исследования и предварительные расчёты | 6 | 2 | – | – |
| 2.2 | Разработка предварительных структурно-функциональной схемы и схемы деления. Разработка пояснительной записки. Защита технического предложения. | 4 | 3 | – | 1 |
| 3. Разработка эскизного проекта | |||||
| 3.1 | Разработка структурной и функциональной схем. | 2 | 2 | – | – |
| 3.2 | Проведение габаритных, энергетических, аберрационных расчётов оптической системы. Разработка оптической схемы и оптического выпуска. |
4 | 2 | – | – |
| 3.3 | Разработка схемы деления и чертежа общего вида. | 2 | 2 | – | – |
| 3.4 | Разработка алгоритмов цифровой обработки сигнала. Предварительная разработка интерфейса пользователя. | 3 | – | – | 2 |
| 3.5 | Разработка пояснительной записки. Защита эскизного проекта. | 2 | 3 | – | 1 |
| 4. Разработка рабочей документации. | |||||
| 4.1 | Разработка схемы оптической принципиальной. | 1 | 2 | – | – |
| 4.2 | Разработка электрических схем (принципиальной, общей, подключения) | 2 | 2 | – | – |
| 4.3 | Разработка спецификаций, сборочных чертежей на изделие в целом и составные части. Разработка и согласование ведомости покупных изделий. Разработка рабочих чертежей деталей. Разработка инструкции по сборке и настройке. | 8 | 1 | 3 | – |
| 4.4 | Разработка программного обеспечения. Разработка программной документации (спецификация, тексты программ, руководства и т.д.) | 5 | – | – | 2 |
| 4.5 | Разработка программы и методики испытаний. Разработка технических условий. Разработка формуляра (паспорта). | 4 | 2 | 1 | 1 |
Далее строим сетевой график и сетевую модель[14] и определяем ранние сроки, поздние сроки и резервы событий (табл. 7), ранние и поздние начала и окончания этапов (табл. 8).
Таблица 7.

Таблица 8

Исходя из сетевого графика, определяем длину критического пути:
нед. Т.к. в рабочей неделе 5 рабочих дней, то
дней.
5.2 Расчёт стоимости проведения НИОКР
Стоимость проведения НИОКР определяется ее себестоимостью, которая в свою очередь является суммой затрат по калькуляционным статьям[13].
При проведении данной НИОКР необходимо рассмотреть следующие статьи:
- затраты на материалы и покупные изделия;
- амортизация спецоборудования и программного обеспечения;
- затраты на оплату труда работников;
- отчисления на социальные нужды;
- накладные расходы.
Ниже подробно рассмотрим каждую из этих статей.
Затраты на материалы и покупные изделия.
В данном НИОКР используются следующие материалы и покупные изделия (табл. 9).
Суммарная стоимость материалов и покупных изделий
руб.
Пусть транспортно-заготовительные расходы (ТЗР) составляют 5% от суммарной стоимости:
руб.
Тогда с учётом ТЗР затраты составляют:
руб.
Таблица 9.

Спецоборудование и программное обеспечение
В настоящее время программное обеспечение стало одной из существенных статей затрат по НИОКР, поэтому целесообразно выделение специальной статьи для их исчисления. Приобретаемое предприятиями программное обеспечение относится к категории нематериальных активов, поэтому их отнесение на себестоимость НИОКР проводится по аналогии с расчетами затрат по спецоборудованию, т.е. через амортизационные отчисления. В данном НИОКР используется следующее оборудование и программное обеспечение (табл. 10). Для учёта его влияния на себестоимость НИОКР для каждого вида оборудования и программного обеспечения необходимо посчитать амортизационные отчисления по формуле:
![]()
где
– стоимость оборудования и ПО (считаем, что оно приобретается перед началом НИОКР, и его стоимость равна балансовой),
– норма амортизации (10%),
– время работы оборудования и ПО (считаем, что оно используется в течение всего НИОКР (
дней),
– годовой фонд времени (
дней).
Таблица 10.
Суммарные амортизационные отчисления
.
Затраты на оплату труда работников.
Эта статья калькуляции включает основную заработную плату, а также премии за достигнутые результаты, стимулирующие и компенсирующие выплаты, а также выплаты по договорам гражданско-правового характера, относящимся к выполнению НИОКР. Пусть основная ежемесячная заработная плата инженера (разработчика, конструктора, программиста), участвующего в выполнении данной НИОКР, составляет в среднем 15000 руб, а дополнительная заработная плата работников обычно составляет 20% от основной.
Затраты на оплату труда сотрудника рассчитываются по формуле:
![]()
где
– месячный оклад (руб),
– фактически отработанное сотрудником время (раб. дни),
– месячный фонд времени (
дня). Для расчёта используем табл. 11.
Таблица 11.
| Работник | Оклад, руб. | Время работы, дни | Затраты, руб. |
| Разработчик 1 | 15000 | 185 | 126136,36 |
| Разработчик 2 | 15000 | 155 | 105681,82 |
| Разработчик 3 | 15000 | 50 | 34090,91 |
| Конструктор 1 | 15000 | 60 | 40909,09 |
| Конструктор 2 | 15000 | 40 | 27272,72 |
| Конструктор 3 | 15000 | 40 | 27272,72 |
| Программист 1 | 15000 | 50 | 34090,91 |
| Программист 2 | 15000 | 40 | 27272,72 |
| Программист 3 | 15000 | 40 | 27272,72 |
| ИТОГО | 450000 |
Расходы на дополнительную заработную плату:
руб.
Общие расходы на оплату труда
руб.
Отчисления на социальные нужды .
Отчисления от суммы затрат на оплату труда работников, непосредственно занятых в НИОКР.
Рассчитываются в соответствии с законодательством по принятой ставке единого социального налога. В настоящее время ставка налога равна 26%, поэтому:
![]()
Накладные расходы.
Эта статья включает в себя управленческие и общехозяйственные расходы, и прочие, которые не представляется возможным взаимоувязать с конкретными НИОКР. Таким образом, все накладные расходы будут включаться в себестоимость НИОКР как косвенные. Данные расходы определяются в процентах от основной заработной платы. Известны следующие нормативы накладных расходов (табл. 12).
Таблица 12.
| Наименование вида расходов | Норматив, % от осн. зарплаты |
| Эксплуатационные расходы на содержание производственных помещений (в том числе на электроэнергию, отопление, водоснабжение, услуги связи, ремонт помещений и т.д.) | 55 |
| Расходы на содержание службы охраны | 33 |
| Расходы на содержание административно-управленческого персонала | 20 |
| Расходы на содержание общетехнических служб (служба стандартов, научно- техническая библиотека и т.д.) | 17 |
| Расходы на мероприятия по охране труда, пожарной безопасности и производственной санитарии | 7 |
| Налоги и сборы в бюджет (налоги на автодороги, имущество, на содержание жилищного фонда и т.д.) | 3 |
| ИТОГО | 135 |
Таким образом, накладные расходы составляют
руб.
Расчёт себестоимости НИОКР.
Себестоимость НИОКР определяется суммой затрат по всем калькуляционным статьям (табл. 13).
Таблица 13.
| Наименование | Сумма, руб | Доля, % |
| Затраты на материалы и покупные изделия | 24927 | 1,78 |
| Амортизация спецоборудования и программного обеспечения | 83768 | 6,00 |
| Затраты на оплату труда работников | 540000 | 38,67 |
| Отчисления на социальные нужды | 140400 | 10,05 |
| Накладные расходы | 607500 | 43,50 |
| ИТОГО | 1396595 | 100,00 |
По рассчитанным долям строим круговую диаграмму распределения затрат Видно, что наиболее существенную долю себестоимости составляют накладные расходы. Это объясняется спецификой такого рода деятельности, как проведение НИОКР.

Рис. 19 Круговая диаграмма распределения затрат.
5.3 Технико-экономическое обоснование
Если результаты НИОКР будут использованы предприятием для собственных нужд, экономические результаты будут "отложены" их оценка будет представлять отдельную задачу, поэтому в ОЭЧ оцениваются только научно-технические результаты НИОКР. Следует отметить, что уровень научно-технических результатов не всегда соответствует уровню экономических. Научно-технические показатели характеризуют оригинальность и новизну результатов НИОКР. Эти показатели сложно регламентировать. Для каждой НИОКР их перечень, значения и весомость различны, поэтому определяются дипломником совместно с руководителем дипломного проекта (работы). В связи с высокой степенью неопределенности оценки этих показателей часто используют системы баллов и экспертные опросы. Например, количественно научно-техническую ценность результатов НИР (
) можно вычислить следующим образом:
![]()
где
– оценка результата НИР по i
–тому признаку в баллах;
– коэффициент значимости i
–того признака;
– вероятность получения ожидаемого результата (считаем
). Показатели признаков, их характеристика и оценка в баллах приведены в табл. 14.
Будем считать, что результаты НИОКР находятся на уровне мировых достижений (8 баллов), имеют среднюю широту применения (6 баллов) и среднюю степень воздействия на качество объекта (8 баллов).
Таким образом, ценность равна
![]()
Это не очень большое значение, тем не менее, разрабатываемая аппаратура не имеет аналогов в нашей стране, и необходимость ее разработки была обусловлена низкими результатами борьбы с браконьерством.
Таблица 14.
| Признак(весомость признака |
Показатели признака | Характеристика | Оценка |
Новизна результатов НИР (0,34) |
Превышает мировые достижения | Получение принципиально новых результатов, неизвестных науке, разработка оригинальных теорий, принципиально новых устройств, веществ, способов | 9-10 |
| Находится на уровне мировых достижений | Установление некоторых общих закономерностей, разработка новых устройств, методов, способов, алгоритмов, принципиальные усовершенствования | 7-8 | |
| Приближается к мировым достижениям | Положительное решение поставленных задач на основе простых обобщений, анализ связей между фактами, распространение известных принципов на новые объекты, воспроизводство устройств, агрегатов. | 3-5 | |
| Тривиальный | Описание отдельных элементарных факторов, реферативные обзоры, передача и распространение опыта | 1-2 | |
Широта использования результатов НИР (0,33) |
Значительная | Могут найти применение в изделиях нескольких отраслей | 8-10 |
| Средняя | Могут найти применение в изделиях одной отрасли | 4-7 | |
| Слабая | Могут найти применение в изделиях одного типа | 1-3 | |
Степень воздействия результатов на качество объекта НИР (0,33) |
Значительная | Позволяют существенно улучшить основной признак, характеристику, процесс | 9-10 |
| Средняя | Улучшают основные параметры изделия или процесса | 6-8 | |
| Слабая | Позволяют существенно улучшить второстепенные, вспомогательные устройства или параметры | 3-5 | |
| Незначительная | Способствуют незначительному улучшению второстепенных параметров и устройств | 1-2 |
Вывод
· Проведен расчет сроков и оценка трудоемкости проведения НИОКР.
· Проведен расчет затрат на выполнение НИОКР, который показал, что полная себестоимость разработки КТВС составляет 1 396 595 руб., при этом максимальные затраты связаны с накладными расходами (607500 руб.)
· Проведена оценка технического уровня НИОКР по разработке КТВС, на основе которой был сделан вывод о высоком техническом уровне создаваемого изделия.
6. Охрана труда и экология
6.1 Описание прибора
Разрабатываемый прибор представляет собой систему круглосуточного видеонаблюдения за морскими судами и имеет в своем составе два основных узла:
1) Телевизионная система (ночная видеокамера).
Является системой на основе ПЗС видеокамеры, в оптическую схему которой встроен электронно-оптический преобразователь (ЭОП), усиливающий яркость изображения. ЭОП работает в режиме стробирования по дальности, поэтому имеет сложную электронную схему управления, выполненную на печатной плате. Электронная схема обработки видеосигнала в видеокамере также выполнена на печатной плате.
2) Система подсветки. Представляет собой пять сонаправленных полупроводников инжекционных лазеров, работающих в импульсном режиме. Управление излучением осуществляется электронной схемой, выполненной на печатной плате. Излучение лазеров невидимо для глаза и преобразуется оптикой системы подсветки в коллимированные пучки.
Характеристики лазерной системы:
· Тип активной среды: полупроводниковая структура на основеGa-As.
· Тип накачки: инжекция носителей электрическим током.
· Длина волны излучения λ = 850 нм.
· Длительность импульса τи = 10-7 с.
· Частота следования импульсов Fи = 10 кГц.
· Мощность одного импульса Pи = 20 Вт.
· Угловая расходимость пучка
на выходе из коллиматораσ = 0,5°.
· Диаметр коллимированного пучка
на выходе из коллиматора dп = 8 · 10-3 м.
Из вышесказанного следует, что необходимо уделить внимание вопросам безопасности электромонтажа и лазерной безопасности при сборке и эксплуатации изделия.
6.2 Анализ вредных и опасных факторов при изготовлении и эксплуатации изделия
Анализ вредных и опасных факторов при сборке.
Анализ вредных и опасных факторов при пайке
Пайка мелких изделий сплавами, содержащими свинец, производится при температуре 180—350° вручную с помощью электропаяльника, на автоматах различной конструкции, методом окунания (лужения) и волновой пайки.
Процесс пайки может сопровождаться загрязнением воздушной среды свинцом как непосредственно при пайке, так и в периоды, когда паяльники и ванночки находятся в рабочем состоянии. Может также происходить загрязнение свинцом рабочих поверхностей и кожи рук работающих.
Анализ вредных и опасных факторов при сборке лазерного изделия.
Уровни опасных и вредных производственных факторов на рабочем месте не должны превышать значений, установленных действующими нормативными документами. Биологические эффекты воздействия лазерного излучения на организм определяются механизмами взаимодействия излучения с тканями (тепловой, фотохимический, ударно-акустический и др.) и зависят от длины волны излучения, длительности импульса (воздействия), частоты следования импульсов, площади облучаемого участка, а также от биологических и физико-химических особенностей облучаемых тканей и органов. Лазерное излучение с длиной волны от 380 до 1400 нм наибольшую опасность представляет для сетчатой оболочки глаза. Повреждение кожи может быть вызвано лазерным излучением любой длины волны.
Оценим вероятность возникновения всех сопутствующих опасностей.
· Лазерное излучение (прямое, отраженное и рассеянное).
Прямое лазерное излучение может попасть на сетчатку глаза при взгляде в коллимированный пучок, также оно может попасть на кожу.
Отраженное лазерное излучение может попасть на сетчатку глаза, если облученная область какой-либо поверхности попадет в поле зрения рабочего. На кожу отраженное лазерное излучение воздействует постоянно.
Так как сборка происходит в цехах с чистой атмосферой, а мощность излучения невелика, то рассеянием можно пренебречь.
· Сопутствующие ультрафиолетовое, видимое и инфракрасное излучения от источников накачки отсутствует, так как накачка осуществляется электрическим током.
· Высокое напряжение в цепях управления и источниках электропитания.
Напряжение на p-n переходе в рабочем режиме согласно техническому паспорту лазера составляет 8 В и не является опасным.
· Электромагнитное излучение промышленной частоты и радиочастотного диапазона.
Имеет пренебрежимо малую амплитуду из-за небольшого напряжения тока накачки.
· Рентгеновское излучение отсутствует.
· Шум и вибрация отсутствуют ввиду отсутствия движущихся частей.
· Токсические газы и пары отсутствуют, так лазер не требует охлаждения токсичными хладагентами.
· Температура поверхностей лазерного изделия не повышается до опасного уровня, так как тепло эффективно отводится в массивный металлический корпус системы подсветки.
· Опасность взрыва отсутствует.
Анализ вредных и опасных факторов при эксплуатации.
При эксплуатации лазерного изделия будет иметь место только один из вышеперечисленных факторов:
Лазерное излучение (прямое).
Прямое лазерное излучение может попасть на сетчатку глаза при взгляде в коллимированный пучок.
6.3 Расчет параметров лазерного изделия, необходимых для определения предельно допустимого уровня мощности
Определение времени воздействия на рабочего
Согласно [15], время воздействия лазерного излучения на сетчатку следует принимать равнымt = 10 с,так как длина волны излучения лежит за границами видимого диапазона и мигательный рефлекс не сработает, а время неподвижности рабочего принимают равным 10 с.
Определение типа воздействия.
Так как лазер излучает в импульсном режиме, то типом воздействия является серия импульсов.
Определение числа импульсов в серии.
Число импульсов в серии определяется по формуле[15]:
N = Fи · t = 100 000(51),
где
Fи – частота следования импульсов,
t– время воздействия на рабочего.
Определение средней мощности излучения в серии.
Средняя мощность излучения в серии на выходе из коллиматора определяется как
(52),
где
Pи - мощность одного импульса.
τи - длительность импульса.
Определения угла зрения на источник отраженного излучения.
Примем θ = 60°.
Определение площади апертуры при воздействии на глаз и на кожу.
Согласно [15], примем
Sa кожа = 106 м2 ,
Sa зр = 3,85 ∙ 10-5 м2 .
6.4 Определение ПДУ лазерного излучения
Общие положения
Нормируемыми параметрами лазерного излучения являются энергетическая экспозиция H и облученность E, усредненные по ограничивающей апертуре.
Для определения предельно допустимых уровней Hпду и Eпду при воздействии лазерного излучения на кожу усреднение производится по ограничивающей апертуре диаметром 1,1 х 103 м (площадь апертуры Sа = 106 м2 ).
Наряду с энергетической экспозицией и облученностью нормируемыми параметрами являются также энергия W и мощность P излучения, прошедшего через указанную ограничивающую апертуру.
При оценке воздействия на глаза лазерного излучения в диапазоне II (380 < λ <= 1400 нм) нормирование энергии и мощности лазерного излучения, прошедшего через ограничивающую апертуру диаметром 7 х 10-3 м, является первостепенным.
Указанные выше энергетические параметры связаны соотношениями:
;
(53)
Параметры Hпду , Eпду и Wпду , Pпду могут использоваться независимо в соответствии с решаемой задачей.
Воспользовавшись параметрами, рассчитанными в п.6.3, и таблицами (3.1)-(3.7)[15], а так же зависимостями (3.1)-(3.15)[15], определим предельно допустимые уровни вышеперечисленных характеристик излучения.
ПДУ лазерного излучения при однократном воздействии коллимированного лазерного излучения в диапазоне II .
P пду (t) = 1,39 · 10-4 Вт.
ПДУ при воздействии на глаза серии импульсов коллимированного лазерного излучения в диапазоне II .
= 8,62 · 10-5
Вт.
ПДУ лазерного излучения в диапазоне 380 < l£ 1400 нм при хроническом воздействии на глаза.
Для определения предельно допустимых значений W пду и Рпду коллимированного или рассеянного лазерного излучения в диапазоне II (380 < l£ 1400 нм) при хроническом воздействии на глаза необходимо уменьшить в 10 раз соответствующие предельные значения для однократного воздействия
ПДУ лазерного излучения в диапазоне 380 < l£ 1400 нм при однократном облучении кожи.
E пду (t) = 1,58 · 103 Вт· м-2 ;
P пду (t) = 10-6 · E пду (t) = 1,58 · 10-3 Вт.
ПДУ лазерного излучения в диапазоне 380 < l£ 1400 нм при хроническом облучении кожи.
Для определения предельно допустимых значений Нпду и W пду при хроническом воздействии на кожу коллимированного или рассеянного лазерного излучения в диапазоне II (380 < l£ 1400 нм) необходимо уменьшить в 10 раз соответствующие предельные значения
Определение класса лазерной опасности.
Согласно таблице для определения классов лазеров по степени опасности генерируемого излучения [15], исследуемый лазер принадлежит ко II классу опасности.
6.5 Расчет лазерноопасной зоны
Для коллимированного излучения
Так как в результате расходимости излучения освещенность постепенно падает с расстоянием, выведем формулу для нахождения мощности излучения на заданном расстоянии от коллиматора.

Рис. 20 . Геометрия распространения лазерного излучения.
На выходе из коллиматора пучок имеет радиус AB = dп /2 = 4 мм .
При этом мощность равна ![]()
Угол CBD – это половина угла расходимости лазерного излучения σ = 0,9°.
Будем считать, что зрачок наблюдателя находится на отрезке CE.
Тогда отрезок AE равен L – расстоянию до наблюдателя.
Найдем длину отрезка CE. Из прямоугольного треугольника BCD следует:
CD = L ∙ tg(σ)(54)
Очевидно, что
CE = CD + DE = dп /2 + L ∙ tg(σ)(55)
Значит, площадь пятна лазерного излучения на расстоянии LSL равна:
SL = π∙ (dп /2 + L ∙ tg(σ))2 (56)
Освещенность в пятне равна отношению мощности излучения к площади пятна[6]:
(57)
Чтобы найти мощность, воздействующую на зрачок наблюдателя на расстоянии L, необходимо умножить освещенность на площадь ограничивающей зрачок апертуры[6]:
(58)
Если мы приравняем эту мощность к предельно допустимой (см. п. 6.4.3) и решим полученное уравнение относительно L, то получим: Lбез = 3,1 м
Надо заметить, что диаметр пучка на таком расстоянии увеличиться с 8 мм до 49 мм, и зона опасности имеет форму очень узкого усеченного конуса.
Для диффузно отраженного излучения
Предположим, что отражающая поверхность имеет коэффициент отражения ρ = 0,7 и расположена прямо за коллиматором (самый опасный случай) Тогда сила излучения пятна будет равна[6]:
(59)
Телесный угол, опирающийся на зрачок наблюдателя, будет равен[]:
(60)
где l – расстояние, с которого ведется наблюдение.
Тогда согласно основным законам фотометрии[6] мощность, воздействующая на зрачок:
Pl = I ∙ Ω ∙ cos(θ)(61)
где θ = 60° - угол, под которым ведется наблюдение.
Подставив (59) и (60) в (61), и выразив l , получим
(62)
Можно сделать вывод: опасная зона для отраженного излучения так мала, что этим опасным факторов можно пренебречь.
6.7 Средства защиты от опасных факторов
Защита при изготовлении изделия
Защита от вредных испарений при пайке печатных плат и проводов питания и управления ЭОП, лазера.
Обеспечивается требованиями к вентиляционным системам [16]:
Эксплуатация или ввод в эксплуатацию участков пайки, не оборудованных вентиляцией, запрещается. Вентиляционные установки должны включаться до начала работ и выключаться после их окончания. Работа вентиляционных установок должна контролироваться с помощью специальной сигнализации (световой, звуковой). Рабочие места следует оборудовать местными вытяжными устройствами, обеспечивающими скорость движения воздуха непосредственно на месте пайки не менее 0,6 м/сек, независимо от конструкции воздухоприемников. Все вентиляционные установки, обслуживающие участки, на которых производится пайка, должны иметь паспорта с указанием скорости воздуха на месте пайки — 0,6 м/сек. Запрещается совмещение в одну вентиляционную установку вентиляционных устройств, обслуживающих посты пайки и другое производственное оборудование. Внутренние поверхности воздуховодов вытяжных систем и вентиляторы должны периодически очищаться от флюса, загрязненного свинца. Конструкция и разводка вентиляционной сети должна обеспечивать возможность регулярной очистки воздуховодов. Необходимо соблюдать сроки очистки вентиляционных установок с интервалами от 0,5 до 1 месяца в зависимости от интенсивности технологического процесса. Паяльники, находящиеся в рабочем состоянии, постоянно должны находиться в зоне действия вытяжной вентиляции. Автоматы для пайки необходимо конструктивно обеспечивать аспирационными устройствами. Помещения, в которых размещаются участки пайки, необходимо обеспечивать приточным воздухом, подаваемым равномерно в верхнюю зону в количестве составляющем, примерно, 90% объема вытяжки. Подвижность воздуха в рабочей зоне должна быть не более 0,3 м/сек. Недостающие 10% приточного воздуха должны подаваться в смежные, более чистые помещения. Применение рециркуляции воздуха в помещении пайки не допускается.
Защита от лазерного излучения.
Средства защиты должны снижать уровни лазерного излучения, действующего на человека, до величин ниже ПДУ. Они не должны уменьшать эффективность технологического процесса и работоспособность человека. Их защитные характеристики должны оставаться неизменными в течение установленного срока эксплуатации.
Средства защиты от лазерного излучения подразделяются на коллективные и индивидуальные. Выбор средства защиты в каждом конкретном случае осуществляется с учетом требований безопасности для данного процесса.
Средства коллективной защиты (СКЗ) должны соответствовать требованиям ГОСТ 12.4.011 и ГОСТ 12.2.049.
Средства индивидуальной защиты (СИЗ) применяются при проведении пуско-наладочных и ремонтных работ, работ с открытыми лазерными изделиями типа лидара и т.п.
Средства индивидуальной защиты должны соответствовать требованиям ГОСТ 12.4.011 и маркироваться в соответствии с ГОСТ 12.4.115.
Средства индивидуальной защиты от лазерного излучения включают в себя средства защиты глаз и лица (защитные очки, щитки, насадки), средства защиты рук, специальную одежду.
При выборе средств индивидуальной защиты необходимо учитывать:
- рабочую длину волны излучения;
- оптическую плотность светофильтра.
Оптическая плотность светофильтров, применяемых в защитных очках, щитках и насадках, должна удовлетворять требованиям:
(63)
или (для диапазона 380 < l£ 1400 нм)
(64)
где Hmax , Emax , Wmax , Pmax - максимальные значения энергетических параметров лазерного излучения в рабочей зоне,
Нпду , Епду , W пду , P пду - предельно допустимые уровни энергетических параметров при хроническом облучении.
Подставив в эти зависимости значения
Pmax
=
и Pпду
=
, получим:
Dλ ≥ 2,366
Из приложения 6[15] выберем подходящие очки.
| Марка очков | Марка светофильтров | Диапазон защиты, нм | Оптическая плотность |
| ЗН22-72-СЗС22 | СЗС22 | 630-680 | 3 |
| 680-1200 | 6 | ||
| 1200-1400 | 3 | ||
| ЗНД4-72-СЗС22-СС23-1 | СЗС22 | 630-680 | 3 |
| 680-1200 | 6 | ||
| 1200-1400 | 3 | ||
| ОС23-1 | 400-530 | 6 | |
| ЗН62-Л17 | Л17 | 600-1100 | 4 |
| 530 | 2 | ||
| ЗН62-ОЖ | ОЖ | 200-510 | 3 |
Марка очков ЗН62-Л17.
Марка светофильтра Л17.
Защитные лицевые щитки необходимо применять в тех случаях, когда лазерное излучение представляет опасность не только для глаз, но и для кожи лица, однако в данном случае излучение безвредно для кожи.
Защита от опасных факторов при эксплуатации.
Осуществляется путем нанесения соответствующих знаков и надписей.
Знаки должны быть четкими, хорошо видимыми и надежно укреплены на изделии. Рамки текста и обозначения должны быть черными на желтом фоне. Если размеры или конструкция изделия не позволяют прикрепить к нему знак или надпись, то они должны быть внесены в паспорт. Любое лазерное изделие II класса должно иметь предупреждающий знак в соответствии с ГОСТ 12.4.026 (рис.36) и пояснительный знак с надписью:
ЛАЗЕРНОЕ ИЗЛУЧЕНИЕ
НЕ СМОТРИТЕ В ПУЧОК
ЛАЗЕРНОЕ ИЗДЕЛИЕ КЛАССА II

Pиc..21. Предупреждающий знак - знак лазерной опасности
6.8 Охрана окружающей среды
Загрязнение атмосферы
В данном изделии отсутствует протекание каких-либо химических реакций, в том числе и горения. При выходе из строя электрических цепей возможно короткое замыкание и расплав электронных компонентов, однако количество испарений пластиков и полупроводников при этом незначительно и ими можно пренебречь.
Температура же испарения металла и стекла слишком высока и не может быть достигнута даже при внештатных режимах работы.
Загрязнение гидросферы
В приборе не используются жидкости, и загрязнение сточных вод отсутствует.
Твердые отходы
Основными отходами (в порядке уменьшения массы) являются металл (сталь, алюминиевые сплавы), стекло, керамика, пластик.
В настоящее время отсутствует общая научная классификация твердых отходов, охватывающая все их многообразие по тем или иным принципам, что объясняется широтой их номенклатуры даже в рамках данного изделия.
Существующие классификации многообразны.
Так, твердые отходы классифицируют по отраслям промышленности (отходы химической, металлургической, топливной и других отраслей) или их группам, по конкретным производствам (например, отходы сернокислотного, содового и других производств), по тоннажности, степени использования, ценностным показателям, воздействию на окружающую среду, способности к возгоранию, коррозионному воздействию на оборудование и т. п.
Многообразие видов твердых отходов, значительное различие состава даже одноименных отходов в значительной степени усложняют задачи их утилизации, вызывая в ряде конкретных случаев необходимость изыскания своеобразных путей их решения.
Тем не менее, для большинства основных видов твердых отходов в настоящее время разработаны и частично реализуются экономически целесообразные технологии их утилизации.
Вывод
· Проведен анализ вредных и опасных факторов при производстве и эксплуатации изделия.
· Проведен расчет лазерно опасной зоны.
· Рассмотрен вопрос обеспечения безопасности при сборке и эксплуатации изделия.
· Произведен анализ возможности загрязнения окружающей среды.
7. Заключение
В данном дипломном проекте была разработана круглосуточная телевизионная система. В частности:
Приведено обоснование оптической схемы КТВС. Проведен габаритный расчет, который, к сожалению, показывает, что одновременное соблюдение требований ТЗ по габаритам и угловому полю не представляется возможным. Проведен расчет сквозной передаточной функции системы. Проведен расчет дальности действия, на основании которого выбрано число лазеров в ЛОС. Расчет показал, что дальность распознавания для ночного канала составляет 6700 м, для дневного – 11000 м. Проведен аберрационный расчет, в результате которого были получены конструктивные параметры оптических схем КТВС. Проведен анализ вариантов конструкции КТВС, выбран вариант с раздельными каналами для дневной и ночной работы прибора.Проведен анализ вариантов конструкции НУТВ, выбран вариант со структурой Объектив+ЭОП+Объектив+ПЗС.Разработана конструкция основных узлов КТВС. В конструкцию были внедрены конструктивные элементы, позволяющие провести юстировку осей трех каналов с точностью до 3’ . Разработан технологический процесс изготовления и контроля вакуумно-плотной волоконной пластины, являющейся основой для МКП. Разработан процесс контроля МКП. Разработан технологический процесс изготовления и контроля ВОЭ180. Разработан сборочный чертеж для сборки вакуумного блока ЭОП. Проведен расчет сроков и оценка трудоемкости проведения НИОКР.
Проведен расчет затрат на выполнение НИОКР, который показал, что полная себестоимость разработки КТВС составляет 1 396 595 руб., при этом максимальные затраты связаны с накладными расходами (607500 руб.). Проведена оценка технического уровня НИОКР по разработке КТВС, на основе которой был сделан вывод о высоком техническом уровне создаваемого изделия. Проведен анализ вредных и опасных факторов при производстве и эксплуатации изделия. Проведен расчет лазерноопасной зоны. Рассмотрен вопрос обеспечения безопасности при сборке и эксплуатации изделия. Произведен анализ возможности загрязнения окружающей среды.
Подытожить работу можно сравнением разработанной КТВС с зарубежным аналогом:
| Критерий сравнения | КТВС (дипломный проект) |
ARGC-2400 (компания "Obzerv", Канада) |
| Разрешение изображения (пикс.) | 800 х 600 | 640 х 480 |
| Угловое поле | 0,61° х 0,46° | 0,61° х 0,46° |
| Диаметр вх. зрачка | 250 мм | 240 мм |
| Мощность импульсаподсветки | 100 Вт | 15 Вт |
| Габариты | 55 х 52 х 37 см3 | 80 х 63 х 30 см3 |
Дальность распознавания ночного канала (объект 1,8 х 0,5 м2 ) |
6700 м | 2600 м |

