| Скачать .docx |
Реферат: Автоматический быстродействующий выключатель постоянного тока
Федеральное агентство по образованию
ГОУ ВПО «Уральский Государственный Технический Университет - УПИ»
Кафедра “Техника высоких напряжений”
Допустить к защите
Зав.кафедрой
проф.д.т.н. Черных И.В.
Автоматический быстродействующий
выключатель постоянного тока
Дипломный проект
Пояснительная записка
1802 345022 024 ПЗ
Руководитель В.В. Шипицын
проф.д.т.н.
Консультант
к.э.н., доцент С.А. Дубровина
Консультант
ст. препод. В.В. Сидоров
Нормоконтролер
проф.д.т.н. В.В. Шипицын
Студент
Группы Э5022 Р.Е. Середко
2005
Задание
Содержание
ПЕРЕЧЕНЬ ЛИСТОВ ГРАФИЧЕСКИХ ДОКУМЕНТОВ .. 6
1.1. Обзор конструкций аппаратов – аналогов проектируемого аппарата 8
1.2. Устройство и работа проектируемого аппарата . 18
1.3.1. Отключенное состояние выключателя. 21
1.3.2. Включение выключателя . 21
1.3.3. Защита от звонковости . 22
1.3.4. Аварийное отключение выключателя .23
1.3.5. Оперативное отключение выключателя . 24
1.3.6. Отключение по входам УЗО и РМН. 24
2.2. Расчет токоведущей системы выключателя . 27
2.2.1. Расчет гибкой связи . 29
2.2.3. Расчет катушек магнитного дутья . 36
2.3.1. Продолжительный режим работы выключателя . 38
2.3.2. Кратковременный режим работы выключателя . 39
2.4.2. Расчет магнитной системы .. 44
2.4.3. Согласование характеристик . 63
2.5. Расчет дугогасительного устройства . 65
3. МОНТАЖ И ЭКСПЛУАТАЦИЯ .. 68
4.2. Задачи технико - экономического обоснования проекта. 71
4.3. Сравнительные характеристики выключателя ВБ-7/2 и ВБ-3/2. 72
4.4. Возможные покупатели товара. 72
4.5. Отличие выключателя ВБ-7/2 от ВБ-3/2. 72
4.6. Отличие выключателя ВБ-7/2 от аналогичных выключателей конкурентов. 73
4.7. Факторы конкурентоспособности. 73
4.8. Расчет себестоимости . 75
5. Безопасность жизнедеятельности. 81
5.2. Безопасность проекта . 82
5.3. Экологичность проекта. 94
5.4. Чрезвычайные ситуации . 95
5.4.1. Чрезвычайные ситуации . 95
5.4.2. Оценка пожароопасных зон. 97
5.4.3. Средства локализации и тушения пожаров. 98
5.4.4. Дерево причин и опасностей. 100
БИБЛИОГРАФИЧЕСКИЙ СПИСОК .. 107
Дипломный проект, 108 стр., 5 рис., 40 табл.
В данном дипломном проекте на основании изучения специальной литературы и знаний, приобретенных в процессе обучения в университете, проведен расчет быстродействующего автоматического выключателя постоянного тока на номинальное напряжение 550В и номинальный ток 250 А. Конкретно произведены: обзор аналогов, расчет изоляции, расчет токоведущей системы, расчет электромагнитного привода методом участков, расчет дугогасительного устройства, расчет катушек параллельного дутья. Проведен расчет себестоимости нового изделия по фактическим затратам. Рассмотрены вопросы безопасности производства проектируемого аппарата.
ПЕРЕЧЕНЬ ЛИСТОВ ГРАФИЧЕСКИХ ДОКУМЕНТОВ
| № | Наименование документа | Обозначение | Формат |
| 1 | Привод, контактная система | 1802 345022 024 | А1 |
| 2 | Общий вид выключателя | 1802 345022 024 | А1 |
| 3 | Согласование тяговой и механической характеристик, схема замещения | 1802 345022 024 | А1 |
| 4 | Дугогасительное устройство | 1802 345022 024 | А1 |
| 5 | Блок схема станции управления | 1802 345022 024 | А1 |
| 6 | Оценка факторов конкурентоспособности | 1802 345022 024 | А1 |
Обеспечение надежности эксплуатации преобразовательных установок электротранспорта от разрушительного действия аварийных токов зависят в большой степени от быстроты действия защитной аппаратуры. В настоящее время требуется не только большая разрывная способность автоматического выключателя, но и его динамическая и термическая устойчивость.
Если выключатель обладает большой термической и динамической устойчивостью, но работает медленно, то он не может защитить агрегат от чрезмерных перегревов, не в состоянии предотвратить разрушений, вызываемых огромными электродинамическими силами, или воспрепятствовать возникновению кругового огня на коллекторе машины постоянного тока. Разрушения могут быть предотвращены лишь в том случае, когда выключатель не только быстро обрывает ток короткого замыкания в цепи, но и ограничивает его до сравнительно небольшой величины в процессе роста путем меньшего собственного времени аппарата.
Немалую роль имеет быстрота действия выключателя на пути к достижению селективности отключения при перегрузках и коротких замыканиях. Поэтому нормальная эксплуатация мощных преобразовательных устройств, немыслима без наличия быстродействующих выключателей. Роль быстродействующих выключателей в деле обеспечения бесперебойной подачи электроэнергии потребителю наглядно показывают наиболее характерные примеры использования этих аппаратов в схемах защиты.
Быстродействующие выключатели необходимы для защиты мощных генераторов и двигателей постоянного тока, для обеспечения защиты вращающихся электрических машин от перегрузок и коротких замыканий при круговом огне на коллекторе или повреждении изоляции.
Применяемые для этой цели выключатели должны быть неполяризованными.
В соответствии с определением, изложенным в ГОСТ 2585-57, выключатели, собственное время отключения которых не превышает пяти тысячных долей секунды, называются быстродействующими.
1.1. Обзор конструкций аппаратов – аналогов проектируемого аппарата
Автоматические быстродействующие выключатели подразделяются на следующие виды:
1. Быстродействующие автоматические выключатели обратного тока (катодные выключатели), применяемые для селективного отключения выпрямителя от шин при повреждение вентиля (например, при обратном зажигании), или для селективного отключения коллекторной машины при возникновении на ее коллекторе кругового огня.
2. Линейные быстродействующие автоматические выключатели ,применяемые для отключения линий постоянного тока при перегрузках и коротких замыканиях.
3. Анодные быстродействующие автоматические выключатели для защиты анодных цепей выпрямителей.
Однако классификация быстродействующих выключателей по назначению является неполной, так как не определяет электрических параметров и защитных характеристик этих аппаратов, без которых не может быть решен вопрос об эффективности их применения для тех или иных условий работы.
Поэтому классификация быстродействующих выключателей дополняется следующими данными:
а) номинальный ток и напряжение;
б) номинальный режим работы;
с) принцип достижения быстроты действия;
г) нормальное положение контактов;
д) направленность действия;
е) наличие органов избирательности и селективности действия.
Рассмотрим каждый из этих признаков классификации в отдельности.
а) Номинальный ток и номинальное напряжение
В настоящее время отечественными заводами электропромышленности автоматические выключатели выпускаются на следующие номинальные токи: 1000, 1500, 2000, 4000, 6000 А и номинальные напряжения: 600, 825, 1000, 3000, 5000 В.
б) Номинальные режимы работы быстродействующих автоматических выключателей
Номинальный режим работы каждого типа быстродействующего автоматического выключателя устанавливается заводом изготовителем.
Как и для каждого электрического аппарата, для работы быстродействующих автоматических выключателей возможны в соответствии с ГОСТ 2774-74, следующие номинальные режимы:
a. Продолжительный режим работы, при котором период нагрузки выключателя номинальным током без отключения продолжается как угодно долго.
b. Прерывисто-продолжительный режим работы, при котором в период нагрузки выключателя температура всех его частей достигает установившегося значения, причем период нагрузки не превышает указанного заводом-изготовителем времени.
c. Кратковременный режим работы, при котором в период нагрузки температура частей выключателя не успевает достигнуть установившегося значения, а в период отсутствия нагрузки снижается до температуры окружающей среды.
d. Повторно-кратковременный режим работы, при котором период нахождения под нагрузкой чередуется с кратковременным периодом отключенного состояния так, что температура частей выключателя в период включения не достигает установившегося значения, а в период паузы не успевает достигнуть температуры холодного состояния.
Из всех перечисленных режимов наиболее тяжелым является продолжительный. Быстродействующие выключатели, предназначенные для работы в этом режиме, должны проектироваться с учетом пониженных плотностей тока в токоведущих частях, что, разумеется, отражается на увеличении габарита, веса, а следовательно, и стоимости.
в) Принцип достижения быстроты действия
В зависимости от способа осуществления быстродействия автоматические выключатели делятся на:
a. быстродействующие выключатели с пружинным отключением;
b. быстродействующие выключатели с магнитно-пружинным отключением;
c. быстродействующие выключатели с электромагнитным отключением;
d. быстродействующие выключатели с электродинамическим отключением;
Характерной особенностью быстродействующего выключателя с пружинным отключением является наличие мощных пружин, которые являются единственным источником усилий, движущих контакт.
Собственное время отключения быстродействующих выключателей с пружинным отключением мало зависит от величины тока короткого замыкания и от его крутизны нарастания. Быстрота осуществляется, помимо усилий пружин, крутизной спада электромагнитных сил, удерживающих во включенном положении якорь выключателя.
В выключателях с магнитно-пружинным отключением быстродействие достигается за счет усилий, создаваемых пружинами, и электромагнитными силами, создаваемыми током защищаемой цепи.
В этих выключателях скорость отключения определяется почти исключительно электромагнитными силами, создаваемыми током короткого замыкания, в результате чего собственное время отключения в значительной степени зависит от крутизны нарастания тока короткого замыкания и его установившейся величины. Поэтому выключатели типа ВАБ-2, являющиеся характерными представителями этой группы, при больших скоростях нарастания тока (например, di/dt=10*106 а/сек) имеют весьма малое собственное время отключения, равное 0,002-0,003 сек.
Наиболее характерным представителем группы быстродействующих выключателей с электромагнитным приводом отключения является выключатель типа ВАБ-20-1500М. В этом выключателе усилия пружины стремятся не разомкнуть контакты, как это имеет место в большинстве известных выключателей, а сомкнуть их. Быстрота действия этого выключателя определяется исключительно электромагнитными силами, и такой выключатель эффективен в случае защиты цепей, где при аварийных режимах скорости нарастания и пиковые значения тока весьма велики.
Группа быстродействующих выключателей с электродинамическим отключением немногочисленна и не получила широкого применения на преобразовательных установках электротранспорта, однако возможность создания такого выключателя практически подтверждена (быстродействующие выключатели Ю.Г.Комарова и некоторые выключатели Чехословакии).
г) Нормальное положение контактов
Подавляющее большинство известных систем и конструкций быстродействующих автоматических выключателей имеют замыкающие (нормально-открытые) контакты.
Известны также быстродействующие автоматические выключатели, у которых контакты размыкающие (нормально-замкнутые), например выключатель ВАБ-20-1500М.
Наиболее существенным достоинством выключателя с размыкающими контактами является жесткая связь якоря с подвижным контактом, в результате чего движение якоря и раскрытие контактов начинаются одновременно, что значительно снижает собственное время отключения.
Недостатком выключателей этого типа является зависимость контактного давления от величины тока, что приводит иногда к свариванию контактов при резких изменениях тока в защищаемой цепи. Этого явления нет у выключателей с замыкающими контактами.
Выключатели с размыкающими контактами можно применять и в установках с резко меняющейся нагрузкой, как, например, для электрической тяги при условии дополнительного введения в его конструкцию искрогасительного контакта. Это подтвердил длительный опыт эксплуатации на подстанциях Свердловского трамвая.
д) Направленность действия
Быстродействующие выключатели независимо от принципа действия и конструктивного оформления делятся на две группы в зависимости от направленности действия:
A. Группа поляризованных выключателей;
B. Группа неполяризованных выключателей.
Поляризованными называются выключатели, реагирующие только на постоянные токи одного направления. К поляризованным относятся как выключатели прямого тока, осуществляющие защиту при коротких замыканиях и перегрузках в линии, так и выключатели обратного тока, применяемые для защиты при обратных зажиганиях.
Неполяризованными называются быстродействующие выключатели, автоматическое отключение которых обуславливается только величиной тока в защищаемой цепи независимо от его направления.
Поляризованные быстродействующие выключатели могут быть разделены на две подгруппы:
1. Поляризованные быстродействующие выключатели с удерживающим электромагнитом;
2. Поляризованные быстродействующие выключатели с притягивающим электромагнитом.
Характерная особенность выключателей первой подгруппы состоит в том, что каждый из них имеет удерживающую катушку, питаемую от источника постоянного тока, за счет намагничивающей силы (н.с.) которой якорь выключателя удерживается во включенном положении.
Типичным представителем этой подгруппы может служить быстродействующий выключатель типа БВП.
Поляризованные быстродействующие выключатели с притягивающими электромагнитами, объединенные во второй подгруппе, характерны тем, что они все имеют размыкающие контакты. Поляризация выключателей осуществляется за счет подмагничивающей катушки.
Якорь жестко связан с подвижным контактом, что сокращает время отключения по сравнению с выключателями, где связь якоря и контактного рычага шарнирная. Скорость действия выключателей, входящих в эту подгруппу, в сильной степени зависит от крутизны нарастания тока в защищаемой цепи, так как сила, притягивающая якорь, растет пропорционально квадрату этого тока. Из выключателей этой группы можно указать на ВАБ-10 и ВАБ-22-6П.
Неполяризованные быстродействующие выключатели представляется возможным также разделить на две подгруппы:
1. Неполяризованные быстродействующие выключатели с удерживающим электромагнитом;
2. Неполяризованные быстродействующие выключатели с притягивающим электромагнитом.
Неполяризованный быстродействующий выключатель с удерживающим электромагнитом, так же как и поляризованный этой подгруппы, имеет катушку, за счет н.с. которой якорь выключателя удерживается во включенном положении и осуществляется необходимое давление между контактами.
У быстродействующих выключателей второй подгруппы главные контакты размыкающие. Нажатие главных контактов обеспечивается мощной пружиной.
При малых скоростях нарастания тока выключатель отключается электромагнитом или соленоидным приводом, которыми управляет реле перегрузки, не встроенное в конструкцию выключателя.
При коротком замыкании подвижной контакт приходит в движение под действием электромагнитных сил главного тока настолько быстро, что реле перегрузки не успевает срабатывать. Скорость отключения выключателя в сильной степени зависит от величины тока и от крутизны его нарастания.
К описанной группе относится выключатель типа ВАБ-20.
е) Наличие органов избирательности или селективности действия
Как указывалось выше, основным и главным достоинством быстродействующего автоматического выключателя являются его малое собственное время отключения и большая ограничивающая способность дугогасительного устройства, что в совокупности позволяет снизить электродинамические усилия между токоведущими частями при коротком замыкании и защитить агрегаты от разрушения. Однако от быстродействующего автоматического выключателя можно получить и другой важный эффект.
Если параллельно катушке главного тока выключателя присоединить индуктивный шунт, то такой выключатель приобретает свойство менять свою уставку в зависимости от крутизны нарастания тока в защищаемой цепи.
Используя такое свойство быстродействующего автомата, представляется в ряде случаев возможным осуществить защиту отходящих линий, где токи перегрузок и короткого замыкания вдали от подстанции мало отличаются по абсолютной величине, но имеют разную крутизну нарастания
При трогании подвижного состава возможен и такой случай, когда кривая изменения тока в цепи имеет крутизну нарастания на каждой ступени пускового устройства даже большую, чем начальная крутизна кривой непрерывного роста при коротком замыкании в удаленной от подстанции точке сети. В этом случае также возможно отличить пуск двигателя от короткого замыкания, так как прирост тока на любой из ступеней реостата в отключающем витке будет меньше той величины тока, по которой он может вырасти в том же витке при непрерывном росте вплоть до величины установившегося тока короткого замыкания.
Конструкция любого автоматического выключателя состоит из следующих основных частей: камеры, контактного блока, блока сигнализации, блока быстродействующего привода, рамы. Быстродействие рассматриваемых аппаратов во многом определяется применением специальных электромагнитных систем.
Рассмотрим конструкцию выключателя автоматического быстродействующего типа ВБ-3/2-400/6-1-У2 и ВБ-3/2-400/6-2-У2.
Эти выключатели предназначены для защиты силовых цепей и электрооборудования троллейбуса от токов короткого замыкания и перегрузок. Выключатели предназначены для работы в следующих условиях:
· климатическое исполнение У, категория размещения 2 по ГОСТ15150-69;
· высота над уровнем моря – до 1400 м;
· температура окружающего воздуха от -50 до +45 С;
· окружающая среда невзрывоопасная.
Выключатель устанавливается на крыше троллейбуса. Полюсы выключателя устанавливаются последовательно.
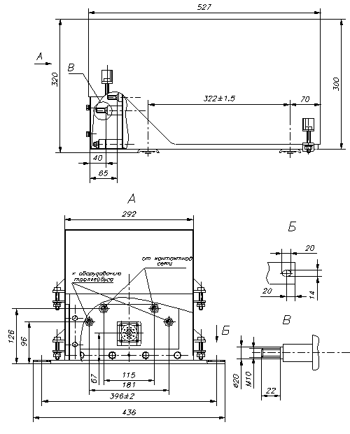
Общий вид выключателя показан на рисунке 1 в Приложении.
Выключатель показан во включенном положении. Элементы выключателя показаны на рисунке 2, 3, 4, 5. Принципиальная электрическая схема показана на рисунке 6. Габаритно-установочные чертежи показаны на рисунке 7, 8. Все элементы выключателя крепятся на изоляционной панели 1 (рис 1). Изоляционная панель крепится к корпусу 2. Быстродействующий привод (рис2) состоит из электромагнита с магнитопроводом 1, главным якорем 2, якорем свободного расцепления 3.На средний сердечник магнитопровода установлена включающая (она же держащая) катушка 4. На оси 5 установлен главный якорь 2, якорь свободного расцепления 3, а также рычаг свободного расцепления 6 с изоляционной траверсой 7, на которой закреплены подвижные контакты 8. Контактное давление создается пружиной 19. Провал главного контакта (3мм) обеспечивается регулировочным болтом 18 (рис 2).
Одно плечо рычага свободного расцепления 6 связано с главным якорем 2 через пружины 9 с помощью тяг 10. второе – с якорем свободного расцепления 3 гайками 11, 12. На якоре свободного расцепления установлен упор 13. Между якорем свободного расцепления и упором установлен буфер 14. В отключенном положении выключателя в упор 13 упирается регулировочный болт 15, установленный на рычаге свободного расцепления 6.
Главный якорь отключается с помощью отключающих пружин 16. На главном якоре установлен изоляционный рычаг 17, переключающий блок-контакт выключателя, установленного на станции управления 10 (рис 1).
Выключатель имеет два неподвижных главных контакта (рис 3). Неподвижный контакт состоит из выводной шины 1, катушки главного тока 4, закрепленной на магнитопроводе магнитного дутья 2, неподвижного контакта 5, дугогасительного рога 3. Магнитопроводе 2 закреплен на изоляционной панели 1 (рис 1).
Быстродействующий привод и неподвижные контакты разделены изоляционными перегородками. На силовые контакты установлены дугогасительные камеры (рис 4). Дугогасительная камера построена по принципу деионной решетки: камера состоит из набора стальных пластин 3, изолированных друг от друга с помощью изоляционных пластин 4, 5 и пламягасительных жалюзи 9, изолированных друг от друга набором изоляционных шайб 8.
Камеры устанавливаются на изоляционной панели и прижимаются гайками 10, 12 к панели выключателя. Подвижный контакт электрически связан кабелем 11 с рогом камеры.
На выключателе над одним неподвижным контактом установлен электромагнитный датчик тока (КА1), над другим герконовый датчик (КА2) (рис 5). Магнитопроводом реле максимального тока, а также и герконового датчика служат магнитопроводы магнитного дутья 3. Реле максимального тока и герконовый датчик отделены от магнитопроводов 3 изоляционной панелью 1. На панели 1 установлен подшипник 10 электромагнитного датчика. В подшипнике установлен якорь 2, вращающийся на оси 4, регулировочный винт 11, шкала 5.
При срабатывании якорь 2 своим изоляционным рычагом 14 воздействует на контактную систему 15. Уставка датчика регулируется зазором 1 (2-5 мм) болтом 13 и натяжением пружины 12. Зазор 2 (1мм) устанавливается между изоляционным рычагом 15 якоря и контактной системой 15 с помощью регулировочных гаек 16. Геркон 8 установлен в изоляционном корпусе, который поворачивается на угол от 10 до 80 градусов, имеет стрелку и шкалу 7.Фиксация герконового датчика осуществляется гайкой 9.
На панели станции управления установлены плата, разъемы цепей управления, конденсаторы, резисторы, предохранитель, блокконтакты, контактор на рис 1 не показаны (см. Схему рис 6). Габаритно-установочный чертеж выключателя ВБ-3/1-400/6-2-У2 показан на рисунке 8.
1.2. Устройство и работа проектируемого аппарата
Назначение
Выключатель автоматический быстродействующий ВБ-7/2-250/6-У2 с дистанционным управлением предназначен для защиты силовых цепей и электрооборудования троллейбуса.
Выключатели предназначены для работы в следующих условиях:
· климатическое исполнение У, категория размещения 2 по ГОСТ15150-69:
· высота над уровнем моря - до 1400 м;
· температура окружающего воздуха от -500 до +450 С;
· окружающая среда невзрывоопасная;
· в части воздействия механических факторов внешней среды по группе условий эксплуатации М28 ГОСТ 17516.1-90.
Выключатель устанавливается на крыше троллейбуса.
Структура условного обозначения типа выключателя:
В Б – 7 – 250 / 6 - У 2
![]()
![]()
![]()
![]()
![]()
![]()
![]()
категория размещения по ГОСТ 15150-69
климатическое исполнение
номинальное напряжение (550 В)
номинальный ток, А
порядковый номер конструкции
быстродействующий
выключатель
Основные параметры выключателя приведены в табл.1.1
Таблица 1.1
| Наименование параметра | Норма |
| 1. Род тока главной цепи | Постоянный, пульсирующий |
| 2. Номинальный ток при постоянной во времени нагрузке, А | 250 |
| 3. Номинальное напряжение главной цепи, В | 550 |
| 4. Диапазон изменения напряжения главной цепи, В | 400-720 |
| 5. Пределы токов уставки, А | 250-800 |
6. Отклонение уставок по току срабатывания, не более, %: - при нормальных условиях - при климатических и механических воздействиях |
+ 5 + 7 |
7. Выключатели должны отключать 3 раза аварийные токи в индуктивной цепи, где максимальное значение аварийного тока равно, А, при индуктивности, мГн: 1.4 4.8 10.3 15.0 |
16000 8000 6000 4000 |
| 8. Собственное время при отключении цепи с максимальным значением аварийного тока, указанного в п.7 настоящей табл., не более, с | 0,006 |
| 9. Напряжение на контактах выключателя при отключении аварийного тока, не более, В | 1600 |
| 10. Номинальное напряжение постоянного тока цепей управления, В | 24 |
| 11. Диапазон изменения постоянного напряжения цепи управления, при котором обеспечивается надежное включение и отключение выключателя (на клеммах разъема выключателя), В | 16,8 – 30 |
12. Параметры цепи оперативного управления выключателем при номинальном напряжении: 1) Ток включающей катушки, не более, А 2) Длительный ток удерживающей катушки, не более, А 3) Кратковременно потребляемая мощность в течение не более 0,5 с., не более, Вт 4) Длительно потребляемая мощность, не более, Вт 5) Собственное время включения, не более, с |
35 0.9 840 30 0,5 |
| 13. Полное время отключения в цепи с индуктивностью 1,4 мГн, не более, с | 0,022 |
14. Масса выключателей, не более, кг ВБ-7-250/6-У2 |
50 |
Изоляция выключателей должна выдерживать в течение 1 минуты испытательное напряжение переменного тока частоты 50 Гц между следующими частями выключателя:
· между выводами разомкнутого главного контакта – 2000В;
· между силовой цепью и корпусом – 3250В;
· между силовой цепью и цепями управления – 3250В;
· между цепями управления и корпусом – 750В.
Ресурс по механической износостойкости (количество включений и отключений при отсутствии тока в главной цепи) не менее 100 000 циклов.
Потери в токопроводе каждого полюса выключателя при токе 250А – не более 20Вт.
Устройство выключателя аналогично ВБ 3/2, но есть отличие в кинематической части и по своим габаритам проектируемый аппарат меньше.
На конструкцию Н-образного привода получен патент на изобретение №2239253 и патент на полезную модель №35923, одним из авторов которых является студент Р.Е. Середко.
1.3. Работа выключателя .
1.3.1. Отключенное состояние выключателя.
В отключенном положении по катушке L (см. рис?) не протекает держащий ток.При номинальном напряжении цепей управления 24В во включенном состоянии выключателя держащий ток должен быть не более 0,9А. Датчики тока и силовые модули катушек параллельного дутья запитаны постоянно. Генератор на элементах DD1.5 и DD1.6 выдает сигнал прямоугольной формы частотой 100кГц. Триггеры DD2.1, DD2.2, DD4.1 и DD4.2 передают информацию с входа Dна выход Q, с частотой генератора.
DD1.1 подает сигнал на отключение выключателя и препятствует включению в следующих случаях:
· при пропадании тока в цепи питания датчиков тока;
· при пропадании питания силовых модулей катушек параллельного магнитного дутья, в том числе перегорании предохранителя;
· при подаче сигнала на входы УЗО и/или РМН;
· при обрыве в цепи сигнала уставки датчика тока, в том числе при срабатывании уставки датчика тока;
· при нажатии кнопки «ОТКЛ» SB4.
1.3.2. Включение выключателя .
При нажатии кнопки «Вкл.» подается сигнал на катушку контактора КМ, по катушке контактора КМ начинает протекать ток, и силовые контакты контактора КМ замыкаются. По катушке электромагнита YA начинает протекать включающий ток. Якорь свободного расцепления 7 (рис.2 приложения) притягивается к сердечнику магнитопровода 2. Главный якорь 6 так же начинает движение к сердечнику магнитопровода 2, приводя в движение пружины свободного расцепления 11 и, через эти пружины, винты 12, изоляционную тягу 15 приводятся в движение подвижные контакты 16 до момента упора винтов 12 в стержни 10. При этом между подвижными 16 и неподвижными 28 контактами остается зазор δ1 =3±0,5 мм. Продолжая движение до полного прилегания к магнитопроводу 2, главный якорь 6 поджимает пружины свободного расцепления 11. Выключатель становится в предвключенное положение.
В ходе своего движения главный якорь 6 (рис.2 приложения) ударяет упором 20 по стержню 26, стержень приходит в движение и через рычаг 19 (рис.1 приложения) переключает блок-контакты цепей сигнализации 21. По истечении 0,5с питание катушки контактора КМ отключается. Контакты контактора КМ отключают включающий ток выключателя, и по катушке YA начинает протекать держащий ток.
Якорь свободного расцепления 7 (рис.2 приложения) не может удерживаться магнитным потоком держащего тока и отходит от магнитопровода 2 вместе со стержнями 10. Под действием пружин свободного расцепления 11 винты 12 перемещаются следом за стержнями 10, увлекая за собой изоляционные тяги 15 и подвижные контакты 16. Выключатель переходит во включенное положение, его быстродействующий привод 7 (рис.1 приложения) готов к немедленному отключению. При этом во включенном положении выбирается провал подвижных контактов 16 (рис.2 приложения) δ2 =2+0,5 мм.
Если в момент включения в защищаемой цепи возникает ток, величина которого превышает величину тока уставки, то замедления в процессе отключения выключателя не происходит, т.е. обеспечивается свободное расцепление выключателя. При этом даже если после момента отключения продолжает быть нажата кнопка ВКЛ, повторного включения выключателя не происходит. Для повторного включения выключателя необходимо отпустить кнопку ВКЛ и вновь нажать ее.
1.3.3. Защита от звонковости .
Если в момент включения в защищаемой цепи возникает ток, величина которого превышает величину уставки датчиков А1, А2, то замедления в процессе отключения выключателя не происходит, то есть обеспечивается свободное расцепление выключателя.
Цепочка С10 и R23 служит для предотвращения многократных включений и отключений выключателя («звонковости») в том случае, когда аварийный ток возникает в защищаемой цепи в момент включения выключателя при нажатии кнопки ВКЛ. При нажатии и удерживании сколько угодно долго кнопки ВКЛ, на вход Dтриггера DD4.1 подается один импульс длительностью 0.1с, привод аппарата пойдет на включение, отключится включающий ток,контакты сомкнутся, датчик тока подаст сигнал на отключение держащего тока и перевод схемы в исходное состояние, но для повторного включения сигнал на входе D триггера DD4.1 отсутствует, аппарат не включится повторно. Для повторного включения необходимо отпустить кнопку ВКЛ и вновь нажать её.
1.3.4. Аварийное отключение выключателя .
При достижении током защищаемой цепи величины тока уставки срабатывают датчики А1, А2. сигнал уставки с датчиков тока через инвертор DD1.1 переводит по входу R триггеры DD4.1 и DD4.2 в исходное состояние, транзисторы держащего тока VT10 и VT11 запираются, отключается держащий ток катушки L.
Одновременно сигнал с инверсного выхода Q поступает на формирователь импульса на инверторе DD1.2, с выхода последнего импульс длительностью 200мс поступает на управляющие входы DD3.1, DD3.2, DD3.3 и DD3.4, а также на вход остановки генератора – базу VT1.
В то же время, сигналы направления с датчиков тока, поступившие на входы D триггеров DD2.1 и DD2.2 на момент отключения держащего тока, фиксируются на выходах Q триггеров DD2.1 и DD2.2, путем остановки генератора.
Далее сигналы с выходов Q триггеров DD2.1 и DD2.2 поступают на инверторы DD1.3 и DD1.4 соответственно. Сигналы с выходов DD2.1, DD2.2, DD1.3 и DD1.4 через коммутаторы DD3 на время 200мс поступают на силовые модули катушек параллельного магнитного дутья. Как результат, отсутствует обратная связь по магнитному полю между датчиком тока и катушкой параллельного магнитного дутья.
Катушки на магнитопроводе создают постоянное магнитное поле, направление которого определяется уровнем сигнала выходов направления датчиков тока. Управление катушками магнитного дутья независимое на каждый полюс, этим обеспечивается правильная работа магнитного дутья при аварийном режиме, в том числе токах утечки.
Под воздействием контактных (они же отключающие) пружин 19 (рис. 2 приложения) приходят в движение подвижные контакты 16, изоляционные тяги 15 и главный якорь 6. Движение продолжается до момента удара главного якоря 6 в демпфирующий упор 25 и образования между подвижными и неподвижными контактами зазора δ3=15±1 мм. Дуга, возникающая в момент расхождения контактов, затягивается в дугогасительные камеры под воздействием магнитного поля, создаваемого катушками магнитного дутья 29, установленными на магнитопроводах 30. Дуга растягивается между рогами 5 и 20 (рис.1 приложения), попадает в камеры, где разбивается между стальными пластинами на короткие дуги. Интенсивно охлаждаясь, дуга гаснет.
1.3.5. Оперативное отключение выключателя .
Для оперативного отключения надо нажать кнопку ОТКЛ, сигнал с которой поступает на вход DD1.1. Далее работа схемы полностью повторяет работу при аварийном отключении выключателя.
1.3.6. Отключение по входам УЗО и РМН.
Сигнал с входов УЗО и РМН через диоды поступает на базу транзистора VT4 с коллектора которого инвертированный сигнал поступает на вход DD1.1. Далее работа схемы полностью повторяет работу при аварийном отключении выключателя.
Изоляция аппарата при выпуске его с завода должна иметь требуемые изоляционные и механические свойства и должна сохранять их на достаточно высоком уровне в процессе нормальной эксплуатации под действием тепла, электрической дуги и влаги.
По ГОСТ 9219-88 «Тяговые электрические аппараты» изоляция выключателя, устанавливаемого на троллейбусы должна выдерживать в течение одной минуты испытательное напряжение переменного тока частоты 50 Гц между следующими частями выключателя:
- между выводами разомкнутых главных контактов каждого полюса при закрытых камерах - 2000В;
- между силовой цепью и корпусом – 3250В;
- между силовой цепью и цепями управления – 3250В;
- между цепями управления и корпусом – 750В;
Uр .р . = 1,25×(2×U+1500) (2.1)
Uр.р. =1,25×(2×550+1500) =3250 В
1. Промежуток между выводами разомкнутых главных контактов
Uр.р. = Uисп × Кзап , (2.2)
где Uр.р. – расчетное разрядное напряжение;
Кзап = (1,05 - 1,1) – коэффициент запаса
Uр.р. = 2000 ×1,05=2100 В
Аппроксимируем этот промежуток, как игла-игла, тогда по эмпирической фор-муле определяем допустимое расстояние по формуле (3-13) [13]
L = 12,78- Ö163.27-3,7×Uисп (2.3)
L = 12,78 -Ö163,27-3,7×3,4125 = 0,51 см
2. Промежуток между силовой цепью и корпусом (игла-заземленная плос-кость) аналогично по формуле (2.2) и (2.3)
Uр.р. = 3250 ×1,05 = 3412,5 В
L= 12,78-Ö163,27-3,7×3,4125 = 0,51 cм
3. Промежуток между силовой цепью и цепями управления (игла- игла)
Uр.р. = 3250×1,05 = 3412,5 В
L= 12,78- Ö163,27-3,7×3,4125 = 0,51 см
4. Промежуток между цепями управления и корпусом
Uр.р. = 750 ×1,05 = 787,5 В
L= 12,78-Ö163,27-3,7×0,7875 = 0,12 см
Для аппаратов низкого напряжения (до 1000 В) при обсуждении норм МЭК было решено никаких допустимых расстояний не указывать, так как они сами по себе лишь в небольшой степени определяют надежность изоляции.
Ввиду того, что выключатель устанавливается на крышу троллейбуса, для обеспечения безопасности пассажиров принимаем конструктивно изоляцион-ные промежутки на порядок больше.
Таким образом, имеем:
- между выводами разомкнутых главных контактов каждого полюса при закрытых камерах 40 мм;
- между силовой цепью и корпусом принимаем 60 мм;
- между силовой цепью и цепью управления 10 мм;
- между цепями управления и корпусом 60 мм.
2.2. Расчет токоведущей системы выключателя
Токоведущий контур выключателя обычно состоит из частей, различных по конфигурации, размерам и конструкции. К ним относятся: зажимы контактных выводов, провода, кабели, шины, стержни, перемычки, токовые (в том числе дугогасительные) катушки, контактодержатели, коммутирующие контакты, траверсы, гибкие шунты шарнирных контактных соединений, термоэлементы токовых реле и расцепители автоматических выключателей и др.
Задачей расчетов токоведущей системы выключателей является определение размеров сечения отдельных ее частей. Сечение частей в значительной степени определяет их габариты, а, следовательно, габариты аппарата. Сечение является исходной величиной для многих последующих расчетов вышеперечисленных частей аппаратов.
Исходя из формулы Ньютона, в которой один коэффициент теплоотдачи охватывает все три вида переноса тепла, получаем следующее выражение:
I2 ×R= Kт×S×(Jдоп - Jо ), (2.4)
где:
I – номинальный ток выключателя, А
R – электрическое сопротивление, Ом
Кт – коэффициент теплоотдачи, Вт/м2 ×о С
S – площадь поверхности, м2
Jдоп – допустимая температура нагрева детали, о С
Jо – температура окружающего воздуха, о С
Из этого выражения имеем
Jдоп =I2 ×R/Кт ×S+Jо (2.5)
По ГОСТ 9219-88 допустимые превышения температуры для электричес-ких контактов в аппаратах низкого напряжения при температуре окружающего воздуха Jо = 40 о С допустимая температура Jдоп = 65о С.
Гибкая связь выполнена из медных пластин толщиной 0,1 мм. Характеристики материала меди по П.7 [2]
r=8700-8900 кг/м3 – плотность материала
rуд =1,62×10-8 Ом×м – удельное сопротивление при 0о С
a=4,3×10-3 1/о С – температурный коэффициент сопротивления
l=390 Вт/м×о С – теплопроводность при 0о С
Тпл =1356 К – температура плавления
Тисп =2600 о С – температура испарения
С=390 Дж/кг×о С – теплоемкость
Принимаем следующие исходные данные:
а=5 мм – толщина пластины
в=20 мм – ширина гибкой связи
l=100 мм – длина гибкой связи
Активное сопротивление проводника
R=r×l/S=rуд ×(1+a×J)×l/(a×b) (2.6)
R=1,62×10-8 ×(1+4,3×10-3 ×100)×100×10-3 /(5×10-3 ×20×10-3 ) = 2,32×10-5 Ом
Площадь охлаждаемой поверхности
S=2×l×b (2.7)
S=2×100×10-3 ×20×10-3 =4×10-3 м2
Коэффициент теплоотдачи равен сумме коэффициентов теплоотдачи конвекцией и излучением. Коэффициент теплоотдачи конвекцией определяем по критериальным уравнениям по [2]
Ктк =Nu×l/L, (2.8)
где:
Nu – критерий Нуссельта;
L – определяющий размер; L=b=20×10-3 м
λ – теплопроводность для воздуха; λ=2,96∙10-2 Вт/м2 о С
Nu= c×(Gr×Pr )n , (2.9)
где Gr-критерий Грасгофа, который определяется по формуле (16-13) [2]
Gr=β∙g∙L³∙(υ-υm )/γ², (2.10)
где β – коэффициент объемного расширения определяем по (2.11)
β=1/(273+ υm ) (2.11)
β=1/(273+72,5)=2,89∙10-3
υm =(υ+υ0 )/2=(105+40)/2=72,5о С
g – ускорение свободного падения
g=9,8 м/с2
γ- кинематическая вязкость
γ=20,02∙10-6 м2 /с
Gr=2,89∙10-3 ∙9,8∙ (20∙10-3 )3 ∙(105-40)/(20,02∙10-6 )2 =3,67∙104
Pr – критерий Прандтля, по (П.9 [2])Pr = 0,694
[Pr∙Gr]=[0,694∙3,67∙104 ]=2,55∙104
по таблице 1.2 [2] определяем с=0,54 n=0,25, тогда по формуле (2.9)
Nu=0,54(2,55∙104 )0,25 =6,82
Коэффициент теплоотдачи конвекцией определяем по (2.8)
Кт.к =(6,82∙2,96∙10-2 )/(20∙10-3 )=10,1 Вт/м2 о С
Коэффициент теплоотдачи излучением определяем по формуле (2.12)
Кт.и =5,67∙ε∙ [(Т1 /100)4 - (Т2 /100)4 ]/(υдоп -υо ), (2.12)
где:
ε=0,6 – степень черноты полного излучения материала;
Т1 и Т2 соответственно допустимая температура нагрева и температура окружающего воздуха.
Кт.и =5,67∙0,6∙[(378/100)4 -(313/100)4 ]/(105-40)=5,66 Вт/м2 о С
Коэффициент теплоотдачи для гибкой связи
Кт =5,66+10,1=15,76 Вт/м2 о С
Допустимая температура нагрева по формуле (2.5)
Jдоп =(2502 ∙2,32∙10-5 )/(15,76∙4∙10-3 )+40=63 о С
Расчетное значение допустимой температуры нагрева имеет большой запас. С учетом технико-экономической точки зрения, принимаем новые размеры гибкой связи (уменьшаем затраты на материал) и проводим повторный расчет, аналогичный выше приведенному, до тех пор, пока не получим наименьший запас расчетной допустимой температуры по отношению к значению ГОСТ 9218-88.
Принимаем:
а=3 мм
b=20 мм
l=100 мм
Активное сопротивление проводника по формуле (2.6)
R= 1,62×10-8 ×(1+4,3×10-3 ×100)×100×10-3 /(3×10-3 ×20×10-3 )=3,87×10-5 Ом
Площадь охлаждаемой поверхности по формуле (2.7)
S=2×100×10-3 ×20×10-3 =4×10-3 м2
Расчетная допустимая температура нагрева гибкой связи по (2.5)
Jдоп =(2502 ∙3,87∙10-5 )/(15,76∙4∙10-3 )+40=78 о С
Принимаем:
а=2,5 мм
b=20 мм
l=100 мм
Активное сопротивление проводника по формуле (2.6)
R= 1,62×10-8 ×(1+4,3×10-3 ×100)×100×10-3 /(2,5×10-3 ×20×10-3 )=4,64×10-5 Ом
Площадь охлаждаемой поверхности по формуле (2.7)
S=2×100×10-3 ×20×10-3 =4×10-3 м2
Расчетная допустимая температура нагрева гибкой связи по (2.5)
Jдоп =(2502 ∙4,64∙10-5 )/(15,76∙4∙10-3 )+40=86 о С
Принимаем:
а=2 мм
b=20 мм
l=100 мм
Активное сопротивление проводника по формуле (2.6)
R= 1,62×10-8 ×(1+4,3×10-3 ×100)×100×10-3 /(2×10-3 ×20×10-3 )=5,8×10-5 Ом
Площадь охлаждаемой поверхности по формуле (2.7)
S=2×100×10-3 ×20×10-3 =4×10-3 м2
Расчетная допустимая температура нагрева гибкой связи по (2.5)
Jдоп =(2502 ∙5,8∙10-5 )/(15,76∙4∙10-3 )+40=97,5 о С
Принимаем:
а=1,8 мм
b=20 мм
l=100 мм
Активное сопротивление проводника по формуле (2.6)
R= 1,62×10-8 ×(1+4,3×10-3 ×100)×100×10-3 /(1,8×10-3 ×20×10-3 )=6,4×10-5 Ом
Площадь охлаждаемой поверхности по формуле (2.7)
S=2×100×10-3 ×20×10-3 =4×10-3 м2
Расчетная допустимая температура нагрева гибкой связи по (2.5)
Jдоп =(2502 ∙6,4∙10-5 )/(15,76∙4∙10-3 )+40=103,45 о С
Итак, оптимальные размеры гибкой связи:
толщина 1,8 мм; ширина пластины 20 мм; длина 100 мм.
Материал контактов – медь. Характеристики приведены в пункте 2.2.1.
Принимаем:
а=13 мм – толщина контактов (боковая поверхность)
b=50 мм – высота контакта
с=10 мм – длина (место соприкосновения двух контактных поверхностей)
Активное сопротивление проводника по формуле (2.6)
R= 1,62×10-8 ×(1+4,3×10-3 ×100)×50×10-3 /(13×10-3 ×10×10-3 )=8,9×10-6 Ом
Площадь охлаждаемой поверхности по формуле (2.13)
S=2∙(a∙b)+b∙c (2.13)
S=2×13×10-3 ×50×10-3 +50∙10-3 ∙10∙10-3 =1,8×10-3 м2
Коэффициент теплоотдачи
Кт =5,66+8,03=13,69 Вт/м2 о С,
где коэффициент теплоотдачи излучением по (2.12)
Кт.и =5,67∙0,6∙[(378/100)4 -(313/100)4 ]/(105-40)=5,66 Вт/м2 о С ;
коэффициент теплоотдачи конвекцией по (2.8)
Кт.к =(13,57∙2,96∙10-2 )/(50∙10-3 )=8,03 Вт/м2 о С.
где Pr – критерий Прандтля, по (П.9 [2]) Pr=0,694; критерий Грасгоффапо формуле (2.10)
Gr=2,89∙10-3 ∙9,8∙ (50∙10-3 )3 ∙(105-40)/(20,02∙10-6 )2 =5,74∙104
[Pr∙Gr]=[0,694∙5,74∙104 ]=3,98∙104
по таблице 1.2 [2] определяем с=0,54 n=0,25, тогда по формуле (2.9)
Nu=0,54(3,98∙104 )0,25 =13,57
Расчетная допустимая температура нагрева контактов по (2.5)
Jдоп =(2502 ∙8,9∙10-6 )/(13,69∙1,8∙10-3 )+40=62,57 о С
Принимаем:
а=10 мм
b=50 мм
с=5 мм
Активное сопротивление проводника по формуле (2.6)
R= 1,62×10-8 ×(1+4,3×10-3 ×100)×50×10-3 /(10×10-3 ×5×10-3 )=2,32×10-5 Ом
Площадь охлаждаемой поверхности по формуле (2.13)
S=2×10×10-3 ×50×10-3 +50∙10-3 ∙5∙10-3 =1,25×10-3 м2
Расчетная допустимая температура нагрева контактов по (2.5)
Jдоп =(2502 ∙2,32∙10-5 )/(13,69∙1,25∙10-3 )+40=124 о С
Расчетное значение превышает значение ГОСТ 9219-88, что не допустимо.
Принимаем:
а=10 мм
b=50 мм
с=7 мм
Активное сопротивление проводника по формуле (2.6)
R= 1,62×10-8 ×(1+4,3×10-3 ×100)×50×10-3 /(10×10-3 ×7×10-3 )=1,65×10-5 Ом
Площадь охлаждаемой поверхности по формуле (2.13)
S=2×10×10-3 ×50×10-3 +50∙10-3 ∙7∙10-3 =1,35×10-3 м2
Расчетная допустимая температура нагрева контактов по (2.5)
Jдоп =(2502 ∙1,65∙10-5 )/(13,69∙1,35∙10-3 )+40=96 о С
Итак, оптимальные размеры контактов:
Боковая поверхность 10 мм; высота 50 мм; линия соприкосновения 7 мм.
2.2.3. Расчет катушек магнитного дутья
Катушки предназначены для создания магнитного поля в сердечниках, за счет которого дуга затягивается в дугогасительные устройства.
Гашение малых токов обратной полярности посредством последовательного магнитного дутья не было достигнуто, и было принято решение разработать систему параллельного магнитного дутья.
Цель разработки:
- обеспечить уверенное гашение всего диапазона рабочих токов за время не более 0,08с;
- обеспечить две ступени электрической изоляции между цепями управления, и токоведущей системой. Первая ступень – обмотка катушки параллельного магнитного дутья – магнитопровод магнитного дутья, вторая ступень – магнитопровод магнитного дутья – токоведущая система;
- разработать систему управления аппаратом, включая датчик тока с выходом направления тока, схему обработки информации с блоком коммутации держащего тока привода и силовой модуль катушек параллельного магнитного дутья.
На аппарате применено параллельное магнитное дутьё, патент на полезную модель №35923. Магнитное поле создается катушкой из 200витков провода ПЭТВ-2-0.5, рабочий ток 15А, время протекания тока 0,2с.
Расчет сводится к подбору соотношений количества витков и рабочего тока, исходя из мдс катушек последовательного дутья, устанавливаемых на аппарат ранее. Параметры подбирались опытным путем, проводя опыты гашения всего диапазона отключаемых токов, одновременно изучая конструкции магнитного дутья других аппаратов, конечным результатом являлся факт гашения всего диапазона отключаемых токов.
МДС катушек последовательного дутья по формуле:
, (2.14)
где: I – отключаемый ток главной цепи аппарата, А;
n – количество витков, 3 витка.
МДС катушек параллельного дутья по формуле:
, (2.15)
где: Iр – рабочий ток, 15А;
n – количество витков, 200витков.
Расчеты по формулам (2.14) и (2.15) сведены в диаграмму рис.1:

Рис.1.
Задачей расчета контактов является определение контактного нажатия в продолжительном режиме работы аппарата (при протекании номинального тока) и определение сил отталкивания, возникающих при токе короткого замыкания в кратковременном режиме работы.
Цель расчета – проверить на отсутствие сваривания контактов и их расхождения при возникновении электродинамических сил.
2.3.1. Продолжительный режим работы выключателя .
Контактное нажатие на одном полюсе при плоских контактах (две точки соприкосновения) определяем по формуле (5-4 [5])
Fк1 =(I2 ∙А∙π∙НB )/(16∙λ2 ∙[arcCos (Tк /Тк.пл ). ]2 , (2.17)
где:
Tк – температура в удаленной от контактной площадки точке, К;
Тк.пл – температура контактной площадки, К;
Tк =105+273=378 К
√Тк.пл = Tк +10=378+10=388 К
λ – теплопроводность меди, Вт/м о С;
λ=390 Вт/м о С;
НB – твердость по Бринеллю, при 115 о С по эмпирической зависимости по (стр.96 [5]) для мягкой меди НB =40кгс/мм2 ; для твердой меди принимаем в два раза больше НB = 800∙106 Н/м2 ;
А – число Лоренца, А=2,3∙10-8 (В/гр)2
π=3,14
Fк1 =(2502 ∙2,3∙10-8 ∙3,14∙800∙106 )/(16∙3902 ∙[arcCos (378/388). ]2 =28,7≈30 Н
Контактное нажатие на один контакт по формуле (2.18)
Fк =2∙ Fк1 (2.18)
Fк =2∙30=60 Н
Переходное сопротивление контактов по формуле (5-14 [5])
R=К/(Fк )m , (2.19)
где:
К – коэффициент, учитывающий материал и состояние контактной поверх-ности; при очищенных от окислов контактов по [2] для линейных контактов, выполненных из меди К=(0,09-0,14)∙10-3 ;
m=0,7 - 0,5 – для линейных контактов.
R=0,12∙10-3 / (6)0,6 =41∙10-6 Ом
Падение напряжения в переходном сопротивлении по (2.20)
U=Iн ∙R(2.20)
U=250∙41∙10-6 =10,25∙10-3 В
Ток сваривания контактов по теоретической зависимости (5-23 [5])
Iн.св. =А∙√f∙√F, (2.21)
где А – постоянная, от которой зависит начальный ток сваривания
А=√(32∙λ∙υ∙(1+1/3∙α∙υ))/[π∙НВ ρ∙(1+2/3∙α∙υ)], (2.22)
где:
υ – температура плавления меди, υ=1083 о С;
α – температурный коэффициент сопротивления, 1/о С;
α=4∙10-3 1/о С.
А=√(32∙3,9∙1083∙(1+1/3∙0,004∙1083))/(3,14∙8000∙1,62∙10-6 ∙(1+2/3∙0,004∙1083)=1760
Iн.св. =1760∙√2,5∙√6=7870 А
2.3.2. Кратковременный режим работы выключателя .
При кратковременном режиме работы в контактах возникают силы электродинамического отталкивания, которые не должны приводить к их расхождению. Силы отталкивания определяем по формуле (2.23)
Q=(Iк.з )2 ∙10-7 ∙ln√(Sк /Sк.пл. ), (2.23)
где Sк.пл. = Fк1 / НB
Sк.пл. = 30/ 637∙106 =0,047∙10-6 м2
Площадь контактной поверхности
Sк =7∙10-3 ∙6∙10-3 =42∙10-6 м2
Ток короткого замыкания на одну точку касания
Iк.з =15000/2=7500 А
Q=(7500)2 ∙10-7 ∙ln√(42/0,047)=19,1 Н
Таким образом, имеем силу контактного нажатия большую, чем электродинамическую силу. Следовательно, расхождения контактов не произойдет.
В отличие от механизмов вращающихся машин механизмы аппаратов обычно передают движение в ограниченных пределах – до упора.
При изучении движения механизма аппарата необходимо рассматривать два процесса – включение и отключение его.
В процессе включения движущие силы преодолевают силы, оказывающие сопротивление движению, в том числе силы полезного сопротивления (напри-мер, силы нажатия коммутирующих контактов аппарата).
Задача расчета – определение действующих сил, построение характерис-тик сил сопротивления, корректирование (по необходимости) кинематической схемы и выполнение расчетов на основании анализа полученных результатов, конструктивная разработка.
Определяем силы пружин; необходимые величины принимаем по предварительно определенной конструкции.
1) во включенном положении выключателя из формулы (2.24)
FA ∙ОА=FC ∙ОС (2.24)
FC =FА ∙АО/СО,
где FС , FА – силы соответственно в точках С, А; FА =Fк =60 Н;
АО, СО – соответственно отрезки АО=132 мм; СО=42 мм.
FC =60∙132/42=188,57 Н
С учетом коэффициента запаса определяем по ГОСТ 13766-86 пружину
FC =188,57∙1,2=226 Н
Для F=226 Н выбираем пружину с параметрами:
d=3 мм – диаметр провода;
D=21 мм – наружный диаметр пружины;
с1 =136,1 Н/мм – жесткость одного витка;
s=1,734 мм – максимальная деформация одного витка.
Принимаем число витков n=10, тогда жесткость всей пружины
с=c1 /n(2.25)
с=136,1/10=13,6 Н/мм
2) при отключенном положении
δ=15 мм – ход контактов;
х=11 мм – ход якоря
FВ =FА ∙АО/ОВ=60∙132/80=99 Н
При замкнутых контактах сила в точке В
FВ =FС ∙АС/АВ, (2.26)
где FС – сила необходимая при провале.
3) силы сопротивления при разных значениях зазоров:
при δ=15 мм,
F1=5∙c (2.27)
В формуле (2.27) учитываем предварительное нажатие пружины 5 мм.
F1=5∙13,6=68,05 Н
при δ=3 мм – предвключенное положение
F2=F1+c∙х (2.28)
где х=3 мм
F2=68,05+13,61∙3=108,88 Н
При притянутом контакте и якоре (2,1 мм)
F3=F2+c∙х=108,88+13,61∙3=149,71 Н
При дожатии пружины на провал
F4=F3+c∙х=149,71+13,61∙3=190,54 Н
Усилие необходимое в точке В по (2.26)
FB =190,54∙90/52=329,78 Н
4) вторая пружина должна создавать усилие большее силы в точке В, для того, чтобы дожать контактную пружину. Исходя из последнего, по ГОСТ 13766-86 выбираем для F=335 Н:
d=3,5 мм – диаметр провода;
D=22 мм – наружный диаметр пружины;
с1 =232,3 Н/мм – жесткость одного витка;
s=1,442 мм – максимальная деформация одного витка.
Принимаем число витков n=10, тогда жесткость всей пружины по (2.25)
с=232,3/10=23,23 Н/мм
6) силы сопротивления при разных значениях зазоров:
Предвключенное положение по (2.27)
F1=5∙23,23=116,15 Н
Включенное положение (без провала)
F2=F1+х∙с=116,15+2,3∙23,23=169,379 Н
С учетом провала
F3=F2+х∙с=169,379+1,5∙23,23=204,096 Н
Значение рассчитанной силы меньше силы в точке В, следовательно пружина 2 не сможет преодолеть сопротивление контактной пружины. Принимаем число витков n=7 и повторяем расчет.
Жесткость всей пружины по (2.25)
с=232,3/7=33,19 Н/мм
F1=5∙33,19=165,95 Н
F2=165,95+2,3∙33,19=242,287 Н
F3=242,287+1,5∙33,19=292,87 Н
Принимаем число витков n=6
Жесткость всей пружины по (2.25)
с=232,3/6=38,72 Н/мм
F1=5∙38,72=193,58 Н
F2=193,58+2,3∙38,72=282,636 Н
F3=282,636+1,5∙38,72=340,716 Н
7) значения приведенных сил контактной пружины к якорю по формуле (2.29)
Fпр. =F∙ВС/DЕ (2.29)
F1пр =68,05∙38/112=23,09 Н – начальное усилие
F2пр =108,88∙38/112=36,94 Н – в предвключенном положении
F4пр =190,54∙38/112=64,65 Н – в конечном положении контактов
По расчетным значениям строим характеристику сил сопротивления на графическом документе.
2.4.2. Расчет магнитной системы
Требования, предъявляемые к электромагнитам в различных областях техники, привели к большому разнообразию конструктивных форм и исполнений электромагнитов. Физические процессы, происходящие в электромагнитах, очень сложны. Они описываются сложными нелинейными уравнениями.
Решение задачи не однозначно. Необходимо по ряду соображений выбирать некоторые параметры, производить предварительный расчет, определять размеры, корректировать их (если это необходимо).
2.4.2.1. Теоретические вопросы.
Общий вид электромагнитного механизма показан на графическом документе. Расчет проводим методом участков. Порядок расчета:
1) По аналогии с электрической цепью составляется схема замещения магнитной цепи. Магнитный поток Ф и намагничивающая сила Q соответствуют электрическому току и ЭДС. Участки магнитопровода и воздушных промежутков представляются как сопротивления (проводимости), которые считаются неизменными вдоль участка.
2) Определяются магнитные проводимости воздушных зазоров и промежутков методом простых фигур по теоретическим зависимостям по (П.28 [2]).
G1=μo ∙a2 ∙b/δ (2.30)
G2=μo ∙0,26∙b (2.31)
G3=μo ∙0,64∙b/(δ/m+1) (2.32)
G4=2∙μo ∙0,26∙b (2.33)
G5=2∙μo ∙0,64∙b/(2∙δ/m+1) (2.34)
G6=μo ∙0,26∙a2 (2.35)
G7=μo ∙0,64∙а2 /(δ/m+1) (2.36)
G8=μo ∙0,077∙δ (2.37)
G9=μo ∙0,25∙m (2.38)
где G1 – промежуток непосредственно межу якорем и сердечником; G2 – полуцилиндр; G3 – полукольцо; G4 – половина полуцилиндра; G5 – половина полукольца; G6 – полуцилиндр с торца; G7 – полукольцо с торца; G8 – сферический квадрант; G9 – квадрант сферической оболочки.
Полная проводимость рабочего зазора по (2.39)
G=G1+G2+G3+G4+G5+2∙G6+2∙G7+4∙G8+4∙G9 (2.39)
Удельная проводимость рассеяния по (2.43)
g1= μo ∙1∙b/c (2.40)
g2= μo ∙1∙0,26 (2.41)
g3= μo ∙1∙0,64/[(c/a2 )+1] (2.42)
g=g1+2∙g2+2∙g3 (2.43)
3) Cоставляем уравнения по законам Кирхгоффа для схемы замещения
Uј+1 =Uј +(H1ј +H2ј )∙Δℓ (2.44)
Фј+1 =Фј + Uј+1 ∙g∙Δℓ (2.45)
U1 =Фδ /G +Hя ∙ℓя (2.46)
где Uј+1 – падение напряжения на одном участке; Фј+1 – поток на этом участке; U1 – падение напряжения на участке 1,то есть в основании якоря.
4) Определяем поток в рабочем зазоре из формулы Максвелла
Ф=(2∙μо ∙F∙S)1/2 (2.47)
где F – сила необходимая для притяжения якоря; S – площадь поперечного сечения сердечника; μо = 1,256∙10-6 Гн/м – магнитная проницаемость.
5) По уравнениям п.3 проводим ряд последовательных приближений и опреде-ляем необходимую н.с. обмотки. Предел сходимости ε = Uј n2 -Uј n1 =3%.
6) По расчетным данным строим тяговую характеристику.
Геометрические параметры электромагнитного механизма:
ℓ=45 мм
с=60 мм
а1 =а2 =20 мм
а3 =35 мм
а4 =18 мм
а5 =22 мм
b=60 мм
1) Схема замещения на графическом документе.
2) Магнитные проводимости воздушных промежутков:
для якоря свободного расцепления по (2.30) при δ=0,1 мм
Gя.с.р. =1,256∙10-6 ∙20∙10-3 ∙60∙10-3 /(0,1∙10-3 )=1,51∙10-5 Гн
для рабочего якоря по (2.39)
при δ=0,1 мм:
G1=1,256∙10-6 ∙20∙10-3 ∙60∙10-3 / /(0,1∙10-3 )=1,51∙10-5 Гн
G2=1,256∙10-6 ∙0,26∙60∙10-3 =1,96∙10-8 Гн
G3=1,256∙10-6 ∙0,64∙60∙10-3 //(0,1∙10-3 /0,003+1)=4,67∙10-8 Гн
G4=1,256∙10-6 ∙2∙0,26∙60∙10-3 =3,92∙10-8 Гн
G5=2∙1,256∙10-6 ∙0,64∙60∙10-3 /(2∙0,1∙10-3 /0,003+1)=9,04∙10-8 Гн
G6=1,256∙10-6 ∙0,26∙20∙10-3 =6,53∙10-9 Гн
G7=1,256∙10-6 ∙0,64∙20∙10-3 /(0,1∙10-3 /0,003+1)=1,56∙10-8 Гн
G8=1,256∙10-6 ∙0,077∙0,1∙10-3 =9,67∙10-11 Гн
G9=1,256∙10-6 ∙0,25∙0,003= 9,42∙10-10 Гн
G=1,51∙10-5 +1,96∙10-8 +4,67∙10-8 +3,92∙10-8 + 9,04∙10-8 +2∙6,53∙10-9 +2∙1,56∙10-8 + +4∙9,67∙10-11 +4∙9,42∙10-10 =1,53∙10-5 Гн
при δ=2 мм:
G1=1,256∙10-6 ∙20∙10-3 ∙60∙10-3 / /(2∙10-3 )=7,54∙10-7 Гн
G2=1,256∙10-6 ∙0,26∙60∙10-3 =1,96∙10-8 Гн
G3=1,256∙10-6 ∙0,64∙60∙10-3 //(2∙10-3 /0,003+1)=2,89∙10-8 Гн
G4=1,256∙10-6 ∙2∙0,26∙60∙10-3 =3,92∙10-8 Гн
G5=2∙1,256∙10-6 ∙0,64∙60∙10-3 /(2∙2∙10-3 /0,003+1)=4,13∙10-8 Гн
G6=1,256∙10-6 ∙0,26∙20∙10-3 =6,53∙10-9 Гн
G7=1,256∙10-6 ∙0,64∙20∙10-3 /(2∙10-3 /0,003+1)=9,65∙10-9 Гн
G8=1,256∙10-6 ∙0,077∙2∙10-3 =1,93∙10-9 Гн
G9=1,256∙10-6 ∙0,25∙0,003= 9,42∙10-10 Гн
G=7,54∙10-7 +1,96∙10-8 +2,89∙10-8 +3,92∙10-8 + 4,13∙10-8 +2∙6,53∙10-9 +2∙9,65∙10-9 + +4∙1,93∙10-9 +4∙9,42∙10-10 =9,27∙10-7 Гн
при δ=4,4 мм:
G1=1,256∙10-6 ∙20∙10-3 ∙60∙10-3 / /(4,4∙10-3 )=3,43∙10-7 Гн
G2=1,256∙10-6 ∙0,26∙60∙10-3 =1,96∙10-8 Гн
G3=1,256∙10-6 ∙0,64∙60∙10-3 //(4,4∙10-3 /0,003+1)=1,96∙10-8 Гн
G4=1,256∙10-6 ∙2∙0,26∙60∙10-3 =3,92∙10-8 Гн
G5=2∙1,256∙10-6 ∙0,64∙60∙10-3 /(2∙4,4∙10-3 /0,003+1)=2,45∙10-8 Гн
G6=1,256∙10-6 ∙0,26∙20∙10-3 =6,53∙10-9 Гн
G7=1,256∙10-6 ∙0,64∙20∙10-3 /(4,4∙10-3 /0,003+1)=6,52∙10-9 Гн
G8=1,256∙10-6 ∙0,077∙4,4∙10-3 =4,26∙10-9 Гн
G9=1,256∙10-6 ∙0,25∙0,003= 9,42∙10-10 Гн
G=3,43∙10-7 +1,96∙10-8 +1,96∙10-8 +3,92∙10-8 + 2,45∙10-8 +2∙6,53∙10-9 +2∙6,52∙10-9 + +4∙4,26∙10-9 +4∙9,42∙10-10 =4,92∙10-7 Гн
при δ=11 мм:
G1=1,256∙10-6 ∙20∙10-3 ∙60∙10-3 / /(11∙10-3 )=1,37∙10-7 Гн
G2=1,256∙10-6 ∙0,26∙60∙10-3 =1,96∙10-8 Гн
G3=1,256∙10-6 ∙0,64∙60∙10-3 //(11∙10-3 /0,003+1)=1,03∙10-8 Гн
G4=1,256∙10-6 ∙2∙0,26∙60∙10-3 =3,92∙10-8 Гн
G5=2∙1,256∙10-6 ∙0,64∙60∙10-3 /(2∙11∙10-3 /0,003+1)=1,16∙10-8 Гн
G6=1,256∙10-6 ∙0,26∙20∙10-3 =6,53∙10-9 Гн
G7=1,256∙10-6 ∙0,64∙20∙10-3 /(11∙10-3 /0,003+1)=3,45∙10-9 Гн
G8=1,256∙10-6 ∙0,077∙4,4∙10-3 =1,06∙10-8 Гн
G9=1,256∙10-6 ∙0,25∙0,003= 9,42∙10-10 Гн
G=1,37∙10-7 +1,96∙10-8 +1,03∙10-8 +3,92∙10-8 + 1,16∙10-8 +2∙6,53∙10-9 +2∙3,45∙10-9 + +4∙1,06∙10-8 +4∙9,42∙10-10 =2,84∙10-7 Гн
Удельная проводимость по (2.43)
g1=1,256∙10-6 ∙1∙60∙10-3 /60∙10-3 =1,256∙10-6 Гн/м
g2=1,256∙10-6 ∙1∙0,26=0,327∙10-6 Гн/м
g3=1,256∙10-6 ∙1∙0,64/[(60∙10-3 /20∙10-3 )+1]=0,2∙10-6 Гн/м
g=g1+2∙g2+2∙g3=1,256∙10-6 +2∙ 0,327∙10-6 +2∙0,2∙10-6 =2,31∙10-6 Гн/м
3) Поток в рабочем зазоре по (2.47)
При δ=0,1 мм, F=100 Н
Ф =(2∙μо ∙F∙S)1/2 =(2∙1,256∙10-6 ∙100∙20∙10-3 ∙60∙10-3 )1/2 =5,49∙10-4 Вб
Магнитное напряжение по (2.46)
U1 =Фδ /G +Hя ∙ℓя ,
где Ня – магнитная напряженность, А/м определяем по кривой намагничивания для стали марки 2212. Индукция по (2.48)
В=Ф/( b∙а4 ) (2.48)
В=5,49∙10-4 /(60 ∙10-3 18∙10-3 )=0,508 Тл
Ня =358 А/м
U1 =5,49∙10-4 /1,53∙10-5 +358∙0,1=71,6 В
Далее расчет для рабочего якоря по таблице 2.1, для якоря свободного расцепления по таблице 2.2
Таблица 2.1
| U1 | Ф1 | В1 | Н1 | 2*Н1 | U12 | U22 | Фs | Ф2 | |
| 1 | 71.6 | 5.49E-04 | 0.458 | 322.2 | 644.4 | 5.7 | 77.4 | 1.6E-06 | 5.51E-04 |
| 2 | 77.44 | 5.51E-04 | 0.458 | 323.1 | 646.2 | 5.8 | 83.2 | 1.72E-06 | 5.52E-04 |
| 3 | 83.26 | 5.52E-04 | 0.460 | 324.1 | 648.3 | 5.8 | 89.0 | 1.84E-06 | 5.54E-04 |
| 4 | 89.09 | 5.54E-04 | 0.461 | 325.2 | 650.4 | 5.8 | 94.9 | 1.97E-06 | 5.56E-04 |
| 5 | 94.95 | 5.56E-04 | 0.463 | 326.3 | 652.7 | 5.8 | 101 | 2.09E-06 | 5.58E-04 |
Таблица 2.2
| U1 | Ф1 | В1 | Н1 | 2*Н1 | U12 | U22 | Фs | Ф2 | |
| 1 | 69.9 | 5.84E-04 | 0.4860 | 342.5 | 685.0 | 6.165 | 76.02 | 1.57E-06 | 0.000585 |
| 2 | 76.02 | 5.85E-04 | 0.4876 | 343.4 | 686.8 | 6.181 | 82.20 | 1.7E-06 | 0.000587 |
| 3 | 82.20 | 5.87E-04 | 0.4890 | 344.4 | 688.8 | 6.199 | 88.40 | 1.83E-06 | 0.000589 |
| 4 | 88.40 | 5.89E-04 | 0.4906 | 345.5 | 691.0 | 6.219 | 94.62 | 1.96E-06 | 0.000591 |
| 5 | 94.62 | 5.91E-04 | 0.4922 | 346.6 | 693.3 | 6.239 | 101.0 | 2.09E-06 | 0,000593 |
Предел сходимости ε=101-101=0
Поток в основании Ф=(5,93+5,58)∙10-4 =11,51∙10-4 Вб
Индукция В=Ф/( а3 ∙b)= 11,51∙10-4 /(20∙10-3 ∙60∙10-3 )=0,548 Тл
Напряженность Н=386 А/м
Магнитное напряжение в ярме
U=Н∙(с+ а1 +а2 )=386∙(60+20+20)∙10-3 =38,6 В
Необходимая намагничивающая сила при F=100 Н
Q=∑Uј n +U= (76,03+82,21+88,41+94,62+101)+38,6=484 А
При δ=0,1 мм, F=200 Н
Ф =(2∙μо ∙F∙S)1/2 =(2∙1,256∙10-6 ∙200∙20∙10-3 ∙60∙10-3 )1/2 =7,76∙10-4 Вб
Магнитное напряжение по (2.46)
U1 =Фδ /G +Hя ∙ℓя ,
где Ня – магнитная напряженность, А/м определяем по кривой намагничивания для стали марки 2212. Индукция по (2.48)
В=Ф/( b∙а4 )= 7,76∙10-4 /(60 ∙10-3 18∙10-3 )=0,719 Тл
Ня =506 А/м
U1 =7,76∙10-4 /1,53∙10-5 +506∙0,1=10,1 В
Далее расчет для рабочего якоря по таблице 2.3, для якоря свободного расцепления по таблице 2.4
Таблица 2.3
| U1 | Ф1 | В1 | Н1 | 2*Н1 | U12 | U22 | Фs | Ф2 | |
| 1 | 101.0 | 7,76E-04 | 6,47E-01 | 455,6 | 911,3 | 8,201 | 109,5 | 2,27E-06 | 0,000779 |
| 2 | 109,5 | 0,000779 | 0,648934 | 456,9 | 913,9 | 8,225 | 117,7 | 2,44E-06 | 0,000781 |
| 3 | 117,7 | 0,000781 | 0,650965 | 458,4 | 916,8 | 8,251 | 126,0 | 2,61E-06 | 0,000784 |
| 4 | 126,0 | 0,000784 | 0,653139 | 459,9 | 919,9 | 8,279 | 134,2 | 2,78E-06 | 0,000787 |
| 5 | 134,2 | 0,000787 | 0,655455 | 461,5 | 923,1 | 8,308 | 143.0 | 2,95E-06 | 0,000789 |
Таблица 2.4
| U1 | Ф1 | В1 | Н1 | 2*Н1 | U12 | U22 | Фs | Ф2 | |
| 1 | 99.0 | 8,27E-04 | 0.6890 | 485,4 | 970,8 | 8,738 | 107,7 | 2,23E-06 | 0,000829 |
| 2 | 107,7 | 0,000829 | 0,6911 | 486,7 | 973,5 | 8,761 | 116,5 | 2,41E-06 | 0,000832 |
| 3 | 116,5 | 0,000832 | 0,6932 | 488,1 | 976,3 | 8,787 | 125,3 | 2,59E-06 | 0,000834 |
| 4 | 125,3 | 0,000834 | 0,6953 | 489,6 | 979,3 | 8,814 | 134,1 | 2,78E-06 | 0,000837 |
| 5 | 134,1 | 0,000837 | 0,6976 | 491,3 | 982,6 | 8,843 | 143.0 | 2,96E-06 | 0,00084 |
Предел сходимости ε=143-143=0
Поток в основании Ф=(8,4+7,89)∙10-4 =16,3∙10-4 Вб
Индукция В=Ф/( а3 ∙b)= 16,3∙10-4 /(20∙10-3 ∙60∙10-3 )=0,776 Тл
Напряженность Н=547 А/м
Магнитное напряжение в ярме
U=Н∙(с+ а1 +а2 )= 547∙(60+20+20)∙10-3 =54,7 В
Необходимая намагничивающая сила при F=200 Н
Q=∑Uј n +U=(107,75+116,51+125,3+134,12+143)+54,7=685 А
При δ=0,1 мм, F=300 Н
Ф =(2∙μо ∙F∙S)1/2 =(2∙1,256∙10-6 ∙300∙20∙10-3 ∙60∙10-3 )1/2 =9,51∙10-4 Вб
Магнитное напряжение по (2.46)
U1 =Фδ /G +Hя ∙ℓя ,
где Ня - магнитная напряженность, А/м определяем по кривой намагничивания для стали марки 2212. Индукция по (2.48)
В=Ф/( b∙а4 )= 9,51∙10-4 /(60 ∙10-3 18∙10-3 )=0,881 Тл
Ня =620 А/м
U1 =9,51∙10-4 /1,53∙10-5 +620∙0,1=124 В
Далее расчет для рабочего якоря по таблице 2.5, для якоря свободного расцепления по таблице 2.6
Таблица 2.5
| U1 | Ф1 | В1 | Н1 | 2*Н1 | U12 | U22 | Фs | Ф2 | |
| 1 | 1,24E+02 | 9,51E-04 | 7,92E-01 | 558,0736 | 1116,147 | 10,04532 | 134,1418 | 2,78E-06 | 0,000954 |
| 2 | 134,14176 | 0,000954 | 0,794778 | 559,7031 | 1119,406 | 10,07466 | 144,2164 | 2,99E-06 | 0,000957 |
| 3 | 144,21641 | 0,000957 | 0,797266 | 561,4551 | 1122,91 | 10,10619 | 154,3226 | 3,19E-06 | 0,00096 |
| 4 | 154,3226 | 0,00096 | 0,799928 | 563,3298 | 1126,66 | 10,13994 | 164,4625 | 3,4E-06 | 0,000963 |
| 5 | 164,46254 | 0,000963 | 0,802765 | 565,3276 | 1130,655 | 10,1759 | 1,75E+02 | 3,62E-06 | 0,000967 |
Таблица 2.6
| U1 | Ф1 | В1 | Н1 | 2*Н1 | U12 | U22 | Фs | Ф2 | |
| 1 | 1,21E+02 | 1,01E-03 | 8,44E-01 | 594,1147 | 1188,229 | 10,69406 | 131,8735 | 2,73E-06 | 0,001015 |
| 2 | 131,87351 | 0,001015 | 0,845918 | 595,7167 | 1191,433 | 10,7229 | 142,5964 | 2,95E-06 | 0,001018 |
| 3 | 142,59641 | 0,001018 | 0,848378 | 597,4489 | 1194,898 | 10,75408 | 153,3505 | 3,17E-06 | 0,001021 |
| 4 | 153,3505 | 0,001021 | 0,851023 | 599,3118 | 1198,624 | 10,78761 | 164,1381 | 3,4E-06 | 0,001025 |
| 5 | 164,13811 | 0,001025 | 0,853854 | 601,3058 | 1202,612 | 10,8235 | 1,75E+02 | 3,62E-06 | 0,001028 |
Предел сходимости ε=175-175=0
Поток в основании Ф=(10,28+9,67)∙10-4 =19,95∙10-4 Вб
Индукция В=Ф/( а3 ∙b)= 19,95∙10-4 /(20∙10-3 ∙60∙10-3 )=0,95 Тл
Напряженность Н=669 А/м
Магнитное напряжение в ярме
U=Н∙(с+ а1 +а2 )= 669∙(60+20+20)∙10-3 =66,9 В
Необходимая намагничивающая сила при F=300 Н
Q=∑Uј n +U=(131,87+142,6+153,35+164,14+175)+66,9=839 А
При δ=0,1 мм, F=400 Н
Ф =(2∙μо ∙F∙S)1/2 =(2∙1,256∙10-6 ∙400∙20∙10-3 ∙60∙10-3 )1/2 =10,98∙10-4 Вб
Магнитное напряжение по (2.46)
U1 =Фδ /G +Hя ∙ℓя
где Ня - магнитная напряженность, А/м определяем по кривой намагничивания для стали марки 2212. Индукция по (2.48)
В=Ф/( b∙а4 ) (2.48)
В=10,98∙10-4 /(60 ∙10-3 18∙10-3 )=1,02 Тл
Ня =716 А/м
U1 =10,98∙10-4 /1,53∙10-5 +716∙0,1=143В
Далее расчет для рабочего якоря по таблице 2.7, для якоря свободного расцепления по таблице 2.8
Таблица 2.7
| U1 | Ф1 | В1 | Н1 | 2*Н1 | U12 | U22 | Фs | Ф2 | |
| 1 | 1,43E+02 | 1,10E-03 | 9,15E-01 | 644,4079 | 1288,816 | 11,59934 | 154,8936 | 3,21E-06 | 0,001101 |
| 2 | 154,89356 | 0,001101 | 0,917731 | 646,2895 | 1292,579 | 11,63321 | 166,5268 | 3,45E-06 | 0,001105 |
| 3 | 166,52677 | 0,001105 | 0,920604 | 648,3125 | 1296,625 | 11,66962 | 178,1964 | 3,69E-06 | 0,001108 |
| 4 | 178,19639 | 0,001108 | 0,923678 | 650,4772 | 1300,954 | 11,70859 | 189,905 | 3,93E-06 | 0,001112 |
| 5 | 189,90498 | 0,001112 | 0,926953 | 652,7841 | 1305,568 | 11,75011 | 2,02E+02 | 4,17E-06 | 0,001117 |
Таблица 2.8
| U1 | Ф1 | В1 | Н1 | 2*Н1 | U12 | U22 | Фs | Ф2 | |
| 1 | 1,40E+02 | 1,17E-03 | 9,76E-01 | 687,2845 | 1374,569 | 12,37112 | 152,5541 | 3,16E-06 | 0,001174 |
| 2 | 152,55408 | 0,001174 | 0,978576 | 689,1377 | 1378,275 | 12,40448 | 164,9586 | 3,41E-06 | 0,001178 |
| 3 | 164,95856 | 0,001178 | 0,981421 | 691,1416 | 1382,283 | 12,44055 | 177,3991 | 3,67E-06 | 0,001181 |
| 4 | 177,3991 | 0,001181 | 0,984481 | 693,2966 | 1386,593 | 12,47934 | 189,8784 | 3,93E-06 | 0,001185 |
| 5 | 189,87844 | 0,001185 | 0,987757 | 695,6033 | 1391,207 | 12,52086 | 2,02E+02 | 4,19E-06 | 0,001189 |
Предел сходимости ε=202-202=0
Поток в основании Ф=(11,17+11,89)∙10-4 =23,06∙10-4 Вб
Индукция В=Ф/( а3 ∙b)= 23,06∙10-4 /(20∙10-3 ∙60∙10-3 )=1,1 Тл
Напряженность Н=773 А/м
Магнитное напряжение в ярме
U=Н∙(с+ а1 +а2 )= )= 773∙(60+20+20)∙10-3 =77,3 В
Необходимая намагничивающая сила при F=400 Н
Q=∑Uј n +U=(152,55+165+177,3+190+202)+77,3=969 А
При δ=2 мм, F=100 Н
Ф =(2∙μо ∙F∙S)1/2 =(2∙1,256∙10-6 ∙100∙20∙10-3 ∙60∙10-3 )1/2 =5,49∙10-4 Вб
Магнитное напряжение по (2.46)
U1 =Фδ /G +Hя ∙ℓя ,
где Ня - магнитная напряженность, А/м определяем по кривой намагничивания для стали марки 2212. Индукция по (2.48)
В=Ф/( b∙а4 ) (2.48)
В=5,49∙10-4 /(60 ∙10-3 18∙10-3 )=0,508 Тл
Ня =358 А/м
U1 =5,49∙10-4 /9,27∙10-7 +358∙0,1=628В
Далее расчет для рабочего якоря по таблице 2.9, для якоря свободного расцепления по таблице 2.10
Таблица 2.9
| U1 | Ф1 | В1 | Н1 | 2*Н1 | U12 | U22 | Фs | Ф2 | |
| 1 | 6,28E+02 | 5,49E-04 | 4,58E-01 | 322,2039 | 644,4079 | 5,799671 | 634,179 | 1,31E-05 | 0,000562 |
| 2 | 634,17897 | 0,000562 | 0,468469 | 329,9079 | 659,8158 | 5,938342 | 640,1173 | 1,33E-05 | 0,000575 |
| 3 | 640,11731 | 0,000575 | 0,479511 | 337,684 | 675,3679 | 6,078311 | 646,1956 | 1,34E-05 | 0,000589 |
| 4 | 646,19562 | 0,000589 | 0,490658 | 345,5339 | 691,0677 | 6,21961 | 652,4152 | 1,35E-05 | 0,000602 |
| 5 | 652,41523 | 0,000602 | 0,501912 | 353,4593 | 706,9187 | 6,362268 | 6,59E+02 | 1,36E-05 | 0,000616 |
Таблица 2.10
| U1 | Ф1 | В1 | Н1 | 2*Н1 | U12 | U22 | Фs | Ф2 | |
| 1 | 4,57E+02 | 3,82E-03 | 3,18E+00 | 2239,259 | 4478,519 | 40,30667 | 497,0404 | 1,03E-05 | 0,003826 |
| 2 | 497,04039 | 0,003826 | 3,188322 | 2245,297 | 4490,595 | 40,41535 | 537,4557 | 1,11E-05 | 0,003837 |
| 3 | 537,45575 | 0,003837 | 3,197593 | 2251,826 | 4503,653 | 40,53288 | 577,9886 | 1,2E-05 | 0,003849 |
| 4 | 577,98862 | 0,003849 | 3,207564 | 2258,848 | 4517,695 | 40,65926 | 618,6479 | 1,28E-05 | 0,003862 |
| 5 | 618,64788 | 0,003862 | 3,218235 | 2266,363 | 4532,726 | 40,79453 | 6,59E+02 | 1,37E-05 | 0,003876 |
Предел сходимости ε=0
Поток в основании Ф=(6,16+38,76)∙10-4 =44,91∙10-4 Вб
Индукция В=Ф/( а3 ∙b)= 44,91∙10-4 /(20∙10-3 ∙60∙10-3 )=2,14 Тл
Напряженность Н=1510 А/м
Магнитное напряжение в ярме
U=Н∙(с+ а1 +а2 )= 1510∙(60+20+20)∙10-3 =151В
Необходимая намагничивающая сила при F=100 Н
Q=∑Uј n +U= (497+537,5+578+618,6+659)+151=3380 А
При δ=2 мм, F=200 Н
Ф =(2∙μо ∙F∙S)1/2 =(2∙1,256∙10-6 ∙200∙20∙10-3 ∙60∙10-3 )1/2 =7,76∙10-4 Вб
Магнитное напряжение по (2.46)
U1 =Фδ /G +Hя ∙ℓя ,
где Ня – магнитная напряженность, А/м определяем по кривой намагничивания для стали марки 2212. Индукция по (2.48)
В=Ф/( b∙а4 ) (2.48)
В=7,76∙10-4 /(60 ∙10-3 18∙10-3 )=0,719 Тл
Ня =506 А/м
U1 =7,76∙10-4 /9,27∙10-7 +506∙0,1=889 В
Далее расчет для рабочего якоря по таблице 2.11, для якоря свободного расцепления по таблице 2.12
Таблица 2.11
| U1 | Ф1 | В1 | Н1 | 2*Н1 | U12 | U22 | Фs | Ф2 | |
| 1 | 8,89E+02 | 7,76E-04 | 6,47E-01 | 455,6652 | 911,3304 | 8,201973 | 896,8645 | 1,86E-05 | 0,000795 |
| 2 | 896,8645 | 0,000795 | 0,662515 | 466,5602 | 933,1204 | 8,398083 | 905,2626 | 1,87E-05 | 0,000814 |
| 3 | 905,26259 | 0,000814 | 0,678131 | 477,5572 | 955,1144 | 8,59603 | 913,8586 | 1,89E-05 | 0,000833 |
| 4 | 913,85862 | 0,000833 | 0,693895 | 488,6587 | 977,3173 | 8,795856 | 922,6545 | 1,91E-05 | 0,000852 |
| 5 | 922,65447 | 0,000852 | 0,709811 | 499,867 | 999,734 | 8,997606 | 9,32E+02 | 1,93E-05 | 0,000871 |
Таблица 2.12
| U1 | Ф1 | В1 | Н1 | 2*Н1 | U12 | U22 | Фs | Ф2 | |
| 1 | 6,46E+02 | 5,39E-03 | 4,49E+00 | 3165,152 | 6330,303 | 56,97273 | 702,5573 | 1,45E-05 | 0,005408 |
| 2 | 702,55734 | 0,005408 | 4,506634 | 3173,686 | 6347,372 | 57,12635 | 759,6837 | 1,57E-05 | 0,005424 |
| 3 | 759,68369 | 0,005424 | 4,519739 | 3182,915 | 6365,829 | 57,29246 | 816,9762 | 1,69E-05 | 0,005441 |
| 4 | 816,97616 | 0,005441 | 4,533832 | 3192,839 | 6385,678 | 57,47111 | 874,4473 | 1,81E-05 | 0,005459 |
| 5 | 874,44726 | 0,005459 | 4,548916 | 3203,462 | 6406,924 | 57,66231 | 9,32E+02 | 1,93E-05 | 0,005478 |
Предел сходимости ε=0
Поток в основании Ф=(54,78+8,71)∙10-4 =63,49∙10-4 Вб
Индукция В=Ф/( а3 ∙b)= 63,49∙10-4 /(20∙10-3 ∙60∙10-3 )=3,02Тл
Напряженность Н=2130 А/м
Магнитное напряжение в ярме
U=Н∙(с+ а1 +а2 )= 2130∙(60+20+20)∙10-3 =213В
Необходимая намагничивающая сила при F=200 Н
Q=∑Uј n +U=(702,56+759,68+817+874,44+932)+213=4780 А
При δ=2 мм, F=400 Н
Ф =(2∙μо ∙F∙S)1/2 =(2∙1,256∙10-6 ∙400∙20∙10-3 ∙60∙10-3 )1/2 =10,98∙10-4 Вб
Магнитное напряжение по (2.46)
U1 =Фδ /G +Hя ∙ℓя ,
где Ня – магнитная напряженность, А/м определяем по кривой намагничивания для стали марки 2212. Индукция по (2.48)
В=Ф/( b∙а4 ) (2.48)
В=10,98∙10-4 /(60 ∙10-3 18∙10-3 )=1,02 Тл
Ня =716 А/м
U1 =10,98∙10-4 /9,27∙10-7 +716∙0,1=1260 В
Далее расчет для рабочего якоря по таблице 2.13, для якоря свободного расцепления по таблице 2.14
Таблица 2.13
| U1 | Ф1 | В1 | Н1 | 2*Н1 | U12 | U22 | Фs | Ф2 | |
| 1 | 1,26E+03 | 1,10E-03 | 9,15E-01 | 644,4079 | 1288,816 | 11,59934 | 1268,358 | 2,63E-05 | 0,001124 |
| 2 | 1268,3579 | 0,001124 | 0,936938 | 659,8158 | 1319,632 | 11,87668 | 1280,235 | 2,65E-05 | 0,001151 |
| 3 | 1280,2346 | 0,001151 | 0,959022 | 675,3679 | 1350,736 | 12,15662 | 1292,391 | 2,68E-05 | 0,001178 |
| 4 | 1292,3912 | 0,001178 | 0,981316 | 691,0677 | 1382,135 | 12,43922 | 1304,83 | 2,7E-05 | 0,001205 |
| 5 | 1304,8305 | 0,001205 | 1,003824 | 706,9187 | 1413,837 | 12,72454 | 1,32E+03 | 2,73E-05 | 0,001232 |
Таблица 2.14
| U1 | Ф1 | В1 | Н1 | 2*Н1 | U12 | U22 | Фs | Ф2 | |
| 1 | 9,15E+02 | 7,65E-03 | 6,37E+00 | 4487,782 | 8975,563 | 80,78007 | 996,1368 | 2,06E-05 | 0,007668 |
| 2 | 996,1368 | 0,007668 | 6,389833 | 4499,883 | 8999,765 | 80,99789 | 1077,135 | 2,23E-05 | 0,00769 |
| 3 | 1077,1347 | 0,00769 | 6,408414 | 4512,967 | 9025,935 | 81,23341 | 1158,368 | 2,4E-05 | 0,007714 |
| 4 | 1158,3681 | 0,007714 | 6,428396 | 4527,039 | 9054,078 | 81,48671 | 1239,855 | 2,57E-05 | 0,00774 |
| 5 | 1239,8548 | 0,00774 | 6,449783 | 4542,101 | 9084,202 | 81,75781 | 1,32E+03 | 2,74E-05 | 0,007767 |
Предел сходимости ε=0
Поток в основании Ф=(12,32+77,67)∙10-4 =89,99∙10-4 Вб
Индукция В=Ф/( а3 ∙b)= 89,99∙10-4 /(20∙10-3 ∙60∙10-3 )=4,29 Тл
Напряженность Н=3020 А
Магнитное напряжение в ярме
U=Н∙(с+ а1 +а2 )= 3020∙(60+20+20)∙10-3 =302 В
Необходимая намагничивающая сила при F=400 Н
Q=∑Uј n +U= (996,13+1077,14+1158,37+1239,86+1320)+302=6770 А
При δ=4,4 мм, F=100 Н
Ф =(2∙μо ∙F∙S)1/2 =(2∙1,256∙10-6 ∙100∙20∙10-3 ∙60∙10-3 )1/2 =5,49∙10-4 Вб
Магнитное напряжение по (2.46)
U1 =Фδ /G +Hя ∙ℓя ,
где Ня – магнитная напряженность, А/м определяем по кривой намагничивания для стали марки 2212. Индукция по (2.48)
В=Ф/( b∙а4 ) (2.48)
В=5,49∙10-4 /(60 ∙10-3 18∙10-3 )=0,508 Тл
Ня =358 А/м
U1 =5,49∙10-4 /4,92∙10-7 +358∙0,1=1150 В
Далее расчет для рабочего якоря по таблице 2.15, для якоря свободного расцепления по таблице 2.16
Таблица 2.15
| U1 | Ф1 | В1 | Н1 | 2*Н1 | U12 | U22 | Фs | Ф2 | |
| 1 | 1,15E+03 | 5,49E-04 | 4,58E-01 | 322,2039 | 644,4079 | 5,799671 | 1156,869 | 2,39E-05 | 0,000573 |
| 2 | 1156,8686 | 0,000573 | 0,477486 | 336,2575 | 672,5149 | 6,052634 | 1162,921 | 2,41E-05 | 0,000597 |
| 3 | 1162,9212 | 0,000597 | 0,497546 | 350,3845 | 700,769 | 6,306921 | 1169,228 | 2,42E-05 | 0,000621 |
| 4 | 1169,2281 | 0,000621 | 0,517715 | 364,5881 | 729,1763 | 6,562586 | 1175,791 | 2,43E-05 | 0,000646 |
| 5 | 1175,7907 | 0,000646 | 0,537998 | 378,8715 | 757,743 | 6,819687 | 1,18E+03 | 2,45E-05 | 0,00067 |
Таблица 2.16
| U1 | Ф1 | В1 | Н1 | 2*Н1 | U12 | U22 | Фs | Ф2 | |
| 1 | 8,18E+02 | 6,84E-03 | 5,70E+00 | 4011,407 | 8022,813 | 72,20532 | 890,3976 | 1,84E-05 | 0,006854 |
| 2 | 890,39757 | 0,006854 | 5,711557 | 4022,223 | 8044,446 | 72,40002 | 962,7976 | 1,99E-05 | 0,006874 |
| 3 | 962,79759 | 0,006874 | 5,728165 | 4033,919 | 8067,838 | 72,61054 | 1035,408 | 2,14E-05 | 0,006895 |
| 4 | 1035,4081 | 0,006895 | 5,746026 | 4046,497 | 8092,994 | 72,83695 | 1108,245 | 2,29E-05 | 0,006918 |
| 5 | 1108,2451 | 0,006918 | 5,765143 | 4059,96 | 8119,92 | 73,07928 | 1,18E+03 | 2,45E-05 | 0,006943 |
Предел сходимости ε=0
Поток в основании Ф=(6,7+69,43)∙10-4 =76,13∙10-4 Вб
Индукция В=Ф/( а3 ∙b)= 76,13∙10-4 /(20∙10-3 ∙60∙10-3 )=3,63 Тл
Напряженность Н=2550 А
Магнитное напряжение в ярме
U=Н∙(с+ а1 +а2 )= 2550∙(60+20+20)∙10-3 =255 В
Необходимая намагничивающая сила при F=100 Н
Q=∑Uј n +U=(890,4+963+1035,4+1108,2+1180)+255=6100 А
При δ=4,4 мм, F=200 Н
Ф =(2∙μо ∙F∙S)1/2 =(2∙1,256∙10-6 ∙200∙20∙10-3 ∙60∙10-3 )1/2 =7,76∙10-4 Вб
Магнитное напряжение по (2.46)
U1 =Фδ /G +Hя ∙ℓя ,
где Ня – магнитная напряженность, А/м определяем по кривой намагничивания для стали марки 2212. Индукция по (2.48)
В=Ф/( b∙а4 ) (2.48)
В=7,76∙10-4 /(60 ∙10-3 18∙10-3 )=0,519 Тл
Ня =506 А/м
U1 =7,76∙10-4 /4,92∙10-7 +506∙0,1=1630 В
Далее расчет для рабочего якоря по таблице 2.17, для якоря свободного расцепления по таблице 2.18
Таблица 2.17
| U1 | Ф1 | В1 | Н1 | 2*Н1 | U12 | U22 | Фs | Ф2 | |
| 1 | 1,63E+03 | 7,76E-04 | 6,47E-01 | 455,6652 | 911,3304 | 8,201973 | 1636,059 | 3,39E-05 | 0,00081 |
| 2 | 1636,0592 | 0,00081 | 0,675267 | 475,5398 | 951,0797 | 8,559717 | 1644,619 | 3,4E-05 | 0,000844 |
| 3 | 1644,6189 | 0,000844 | 0,703636 | 495,5185 | 991,037 | 8,919333 | 1653,538 | 3,42E-05 | 0,000879 |
| 4 | 1653,5383 | 0,000879 | 0,73216 | 515,6055 | 1031,211 | 9,280899 | 1662,819 | 3,44E-05 | 0,000913 |
| 5 | 1662,8192 | 0,000913 | 0,760843 | 535,8052 | 1071,61 | 9,644494 | 1,67E+03 | 3,46E-05 | 0,000948 |
Таблица 2.18
| U1 | Ф1 | В1 | Н1 | 2*Н1 | U12 | U22 | Фs | Ф2 | |
| 1 | 1,16E+03 | 9,67E-03 | 8,06E+00 | 5672,986 | 11345,97 | 102,1137 | 1259,212 | 2,61E-05 | 0,009693 |
| 2 | 1259,2123 | 0,009693 | 8,077361 | 5688,283 | 11376,57 | 102,3891 | 1361,601 | 2,82E-05 | 0,009721 |
| 3 | 1361,6014 | 0,009721 | 8,100849 | 5704,823 | 11409,65 | 102,6868 | 1464,288 | 3,03E-05 | 0,009751 |
| 4 | 1464,2882 | 0,009751 | 8,126108 | 5722,611 | 11445,22 | 103,007 | 1567,295 | 3,24E-05 | 0,009784 |
| 5 | 1567,2952 | 0,009784 | 8,153144 | 5741,65 | 11483,3 | 103,3497 | 1,67E+03 | 3,46E-05 | 0,009818 |
Предел сходимости ε=0
Поток в основании Ф=(9,48+98,18)∙10-4 =107,66∙10-4 Вб
Индукция В=Ф/( а3 ∙b)= 107,66∙10-4 /(20∙10-3 ∙60∙10-3 )=5,13Тл
Напряженность Н=3610 А
Магнитное напряжение в ярме
U=Н∙(с+ а1 +а2 )=3610∙(60+20+20)∙10-3 =361 В
Необходимая намагничивающая сила при F=200 Н
Q=∑Uј n +U=(1259+1362+1464,3+1567,3+1670)+316=8630 А
При δ=4,4 мм, F=300 Н
Ф =(2∙μо ∙F∙S)1/2 =(2∙1,256∙10-6 ∙300∙20∙10-3 ∙60∙10-3 )1/2 =9,51∙10-4 Вб
Магнитное напряжение по (2.46)
U1 =Фδ /G +Hя ∙ℓя ,
где Ня – магнитная напряженность, А/м определяем по кривой намагничивания для стали марки 2212. Индукция по (2.48)
В=Ф/( b∙а4 ) (2.48)
В=9,51∙10-4 /(60 ∙10-3 18∙10-3 )=0,881 Тл
Ня =620 А/м
U1 =9,51∙10-4 /4,92∙10-7 +620∙0,1=1990 В
Далее расчет для рабочего якоря по таблице 2.19, для якоря свободного расцепления по таблице 2.20
Таблица 2.19
| U1 | Ф1 | В1 | Н1 | 2*Н1 | U12 | U22 | Фs | Ф2 | |
| 1 | 1,99E+03 | 9,51E-04 | 7,92E-01 | 558,0736 | 1116,147 | 10,04532 | 2003,755 | 4,15E-05 | 0,000992 |
| 2 | 2003,7551 | 0,000992 | 0,827029 | 582,415 | 1164,83 | 10,48347 | 2014,239 | 4,17E-05 | 0,001034 |
| 3 | 2014,2386 | 0,001034 | 0,861775 | 606,8837 | 1213,767 | 10,92391 | 2025,163 | 4,19E-05 | 0,001076 |
| 4 | 2025,1625 | 0,001076 | 0,896709 | 631,4852 | 1262,97 | 11,36673 | 2036,529 | 4,22E-05 | 0,001118 |
| 5 | 2036,5293 | 0,001118 | 0,931839 | 656,2247 | 1312,449 | 11,81204 | 2,05E+03 | 4,24E-05 | 0,001161 |
Таблица 2.20
| U1 | Ф1 | В1 | Н1 | 2*Н1 | U12 | U22 | Фs | Ф2 | |
| 1 | 1,42E+03 | 1,18E-02 | 9,87E+00 | 6947,96 | 13895,92 | 125,0633 | 1542,214 | 3,19E-05 | 0,011871 |
| 2 | 1542,2138 | 0,011871 | 9,892707 | 6966,695 | 13933,39 | 125,4005 | 1667,614 | 3,45E-05 | 0,011906 |
| 3 | 1667,6143 | 0,011906 | 9,921473 | 6986,953 | 13973,91 | 125,7652 | 1793,379 | 3,71E-05 | 0,011943 |
| 4 | 1793,3795 | 0,011943 | 9,952409 | 7008,739 | 14017,48 | 126,1573 | 1919,537 | 3,97E-05 | 0,011983 |
| 5 | 1919,5368 | 0,011983 | 9,985521 | 7032,057 | 14064,11 | 126,577 | 2,05E+03 | 4,24E-05 | 0,012025 |
Предел сходимости ε=0
Поток в основании Ф=(11,61+120,25)∙10-4 =131,86∙10-4 Вб
Индукция В=Ф/( а3 ∙b)= 131,86∙10-4 /(20∙10-3 ∙60∙10-3 )=6,28 Тл
Напряженность Н=4420 А/м
Магнитное напряжение в ярме
U=Н∙(с+ а1 +а2 )= 4420∙(60+20+20)∙10-3 =442 В
Необходимая намагничивающая сила при F=300 Н
Q=∑Uј n +U= (1542+1667,6+1793,4+1919,5+2050)+442=10600 А
При δ=4,4 мм, F=400 Н
Ф =(2∙μо ∙F∙S)1/2 =(2∙1,256∙10-6 ∙400∙20∙10-3 ∙60∙10-3 )1/2 =10,98∙10-4 Вб
Магнитное напряжение по (2.46)
U1 =Фδ /G +Hя ∙ℓя ,
где Ня – магнитная напряженность, А/м определяем по кривой намагничивания для стали марки 2212. Индукция по (2.48)
В=Ф/( b∙а4 ) (2.48)
В=∙10-4 /(60 ∙10-3 18∙10-3 )=1,02 Тл
Ня =716 А/м
U1 =10,98∙10-4 /4,92∙10-7 +716∙0,1=2300 В
Далее расчет для рабочего якоря по таблице 2.21, для якоря свободного расцепления по таблице 2.22
Таблица 2.21
| U1 | Ф1 | В1 | Н1 | 2*Н1 | U12 | U22 | Фs | Ф2 | |
| 1 | 2,30E+03 | 1,10E-03 | 9,15E-01 | 644,4079 | 1288,816 | 11,59934 | 2313,737 | 4,79E-05 | 0,001146 |
| 2 | 2313,7371 | 0,001146 | 0,954971 | 672,5149 | 1345,03 | 12,10527 | 2325,842 | 4,81E-05 | 0,001194 |
| 3 | 2325,8424 | 0,001194 | 0,995092 | 700,769 | 1401,538 | 12,61384 | 2338,456 | 4,84E-05 | 0,001243 |
| 4 | 2338,4562 | 0,001243 | 1,03543 | 729,1763 | 1458,353 | 13,12517 | 2351,581 | 4,87E-05 | 0,001291 |
| 5 | 2351,5814 | 0,001291 | 1,075995 | 757,743 | 1515,486 | 13,63937 | 2,37E+03 | 4,9E-05 | 0,00134 |
Таблица 2.22
| U1 | Ф1 | В1 | Н1 | 2*Н1 | U12 | U22 | Фs | Ф2 | |
| 1 | 1,64E+03 | 1,37E-02 | 1,14E+01 | 8055,099 | 16110,2 | 144,9918 | 1787,961 | 3,7E-05 | 0,013763 |
| 2 | 1787,9614 | 0,013763 | 11,46908 | 8076,819 | 16153,64 | 145,3827 | 1933,344 | 4E-05 | 0,013803 |
| 3 | 1933,3441 | 0,013803 | 11,50243 | 8100,305 | 16200,61 | 145,8055 | 2079,15 | 4,3E-05 | 0,013846 |
| 4 | 2079,1496 | 0,013846 | 11,5383 | 8125,562 | 16251,12 | 146,2601 | 2225,41 | 4,61E-05 | 0,013892 |
| 5 | 2225,4097 | 0,013892 | 11,57669 | 8152,596 | 16305,19 | 146,7467 | 2,37E+03 | 4,91E-05 | 0,013941 |
Предел сходимости ε=0
Поток в основании Ф=(13,4+139,41)∙10-4 =152,81∙10-4 Вб
Индукция В=Ф/( а3 ∙b)=152,81∙10-4 /(20∙10-3 ∙60∙10-3 )=7,28Тл
Напряженность Н=5120 А/м
Магнитное напряжение в ярме
U=Н∙(с+ а1 +а2 )= 5120∙( 60+20+20)∙10-3 =512 В
Необходимая намагничивающая сила при F=400 Н
Q=∑Uј n +U=(1787,96+1933,3+2079,15+2225,4+2370)+512=12200 А
При δ=11 мм, F=25 Н
Ф =(2∙μо ∙F∙S)1/2 =(2∙1,256∙10-6 ∙25∙20∙10-3 ∙60∙10-3 )1/2 =2,75∙10-4 Вб
Магнитное напряжение по (2.46)
U1 =Фδ /G +Hя ∙ℓя ,
где Ня – магнитная напряженность, А/м определяем по кривой намагничивания для стали марки 2212. Индукция по (2.48)
В=Ф/( b∙а4 ) (2.48)
В=2,75∙10-4 /(60 ∙10-3 18∙10-3 )=0,254 Тл
Ня =179 А/м
U1 =2,75∙10-4 /2,84∙10-7 +179∙0,1=985В
Далее расчет для рабочего якоря по таблице 2.23, для якоря свободного расцепления по таблице 2.24
Таблица 2.23
| U1 | Ф1 | В1 | Н1 | 2*Н1 | U12 | U22 | Фs | Ф2 | |
| 1 | 9,85E+02 | 2,75E-04 | 2,29E-01 | 161,102 | 322,2039 | 2,899835 | 987,4694 | 2,04E-05 | 0,000295 |
| 2 | 987,4694 | 0,000295 | 0,245799 | 173,0976 | 346,1953 | 3,115757 | 990,5852 | 2,05E-05 | 0,000315 |
| 3 | 990,58516 | 0,000315 | 0,262886 | 185,1312 | 370,2623 | 3,332361 | 993,9175 | 2,06E-05 | 0,000336 |
| 4 | 993,91752 | 0,000336 | 0,280031 | 197,2052 | 394,4103 | 3,549693 | 997,4672 | 2,06E-05 | 0,000357 |
| 5 | 997,46721 | 0,000357 | 0,297238 | 209,3223 | 418,6445 | 3,767801 | 1,00E+03 | 2,07E-05 | 0,000377 |
Таблица 2.24
| U1 | Ф1 | В1 | Н1 | 2*Н1 | U12 | U22 | Фs | Ф2 | |
| 1 | 6,96E+02 | 5,81E-03 | 4,84E+00 | 3409,886 | 6819,772 | 61,37795 | 756,8802 | 1,57E-05 | 0,005826 |
| 2 | 756,88018 | 0,005826 | 4,855094 | 3419,081 | 6838,161 | 61,54345 | 818,4236 | 1,69E-05 | 0,005843 |
| 3 | 818,42363 | 0,005843 | 4,869212 | 3429,023 | 6858,045 | 61,72241 | 880,146 | 1,82E-05 | 0,005861 |
| 4 | 880,14603 | 0,005861 | 4,884395 | 3439,715 | 6879,429 | 61,91486 | 942,0609 | 1,95E-05 | 0,005881 |
| 5 | 942,06089 | 0,005881 | 4,900645 | 3451,159 | 6902,317 | 62,12085 | 1,00E+03 | 2,08E-05 | 0,005902 |
Предел сходимости ε=0
Поток в основании Ф=(3,77+59,02)∙10-4 =62,79∙10-4 Вб
Индукция В=Ф/( а3 ∙b)=62,79∙10-4 /(20∙10-3 ∙60∙10-3 )=2,99 Тл
Напряженность Н=2110 А/м
Магнитное напряжение в ярме
U=Н∙(с+ а1 +а2 )= 2110∙( 60+20+20)∙10-3 =211 В
Необходимая намагничивающая сила при F=25 Н
Q=∑Uј n +U=(756,88+818,42+880,15+942+1000)+211=5180 А
При δ=11 мм, F=100 Н
Ф =(2∙μо ∙F∙S)1/2 =(2∙1,256∙10-6 ∙100∙20∙10-3 ∙60∙10-3 )1/2 =5,49∙10-4 Вб
Магнитное напряжение по (2.46)
U1 =Фδ /G +Hя ∙ℓя ,
где Ня – магнитная напряженность, А/м определяем по кривой намагничивания для стали марки 2212. Индукция по (2.48)
В=Ф/( b∙а4 ) (2.48)
В=5,49∙10-4 /(60 ∙10-3 18∙10-3 )=0,508 Тл
Ня =358 А/м
U1 =5,49∙10-4 /2,84∙10-7 +358∙0,1=1970 В
Далее расчет для рабочего якоря по таблице 2.25, для якоря свободного расцепления по таблице 2.26
Таблица 2.25
| U1 | Ф1 | В1 | Н1 | 2*Н1 | U12 | U22 | Фs | Ф2 | |
| 1 | 1,97E+03 | 5,49E-04 | 4,58E-01 | 322,2039 | 644,4079 | 5,799671 | 1974,939 | 4,09E-05 | 0,00059 |
| 2 | 1974,9388 | 0,00059 | 0,491597 | 346,1953 | 692,3906 | 6,231515 | 1981,17 | 4,1E-05 | 0,000631 |
| 3 | 1981,1703 | 0,000631 | 0,525772 | 370,2623 | 740,5246 | 6,664722 | 1987,835 | 4,11E-05 | 0,000672 |
| 4 | 1987,835 | 0,000672 | 0,560063 | 394,4103 | 788,8206 | 7,099386 | 1994,934 | 4,13E-05 | 0,000713 |
| 5 | 1994,9344 | 0,000713 | 0,594475 | 418,6445 | 837,2891 | 7,535602 | 2,00E+03 | 4,15E-05 | 0,000755 |
Таблица 2.26
| U1 | Ф1 | В1 | Н1 | 2*Н1 | U12 | U22 | Фs | Ф2 | |
| 1 | 1,39E+03 | 1,16E-02 | 9,65E+00 | 6796,9 | 13593,8 | 122,3442 | 1508,683 | 3,12E-05 | 0,011613 |
| 2 | 1508,6834 | 0,011613 | 9,677622 | 6815,227 | 13630,45 | 122,6741 | 1631,358 | 3,38E-05 | 0,011647 |
| 3 | 1631,3575 | 0,011647 | 9,705763 | 6835,044 | 13670,09 | 123,0308 | 1754,388 | 3,63E-05 | 0,011683 |
| 4 | 1754,3883 | 0,011683 | 9,736026 | 6856,357 | 13712,71 | 123,4144 | 1877,803 | 3,89E-05 | 0,011722 |
| 5 | 1877,8027 | 0,011722 | 9,768418 | 6879,168 | 13758,34 | 123,825 | 2,00E+03 | 4,14E-05 | 0,011764 |
Предел сходимости ε=0
Поток в основании Ф=(7,55+117,64)∙10-4 =125,18∙10-4 Вб
Индукция В=Ф/( а3 ∙b)=125,18∙10-4 /(20∙10-3 ∙60∙10-3 )=5,96 Тл
Напряженность Н=4200 А/м
Магнитное напряжение в ярме
U=Н∙(с+ а1 +а2 )=4200∙( 60+20+20)∙10-3 =420 В
Необходимая намагничивающая сила при F=100 Н
Q=∑Uј n +U=(1508,68+1631,35+1754,39+1877,8+2000)+420=10400 А
При δ=11 мм, F=200 Н
Ф =(2∙μо ∙F∙S)1/2 =(2∙1,256∙10-6 ∙200∙20∙10-3 ∙60∙10-3 )1/2 =7,76∙10-4 Вб
Магнитное напряжение по (2.46)
U1 =Фδ /G +Hя ∙ℓя ,
где Ня – магнитная напряженность, А/м определяем по кривой намагничивания для стали марки 2212. Индукция по (2.48)
В=Ф/( b∙а4 ) (2.48)
В=7,76∙10-4 /(60 ∙10-3 18∙10-3 )=0,719 Тл
Ня =506 А/м
U1 =7,76∙10-4 /2,84∙10-7 +506∙0,1=2780 В
Далее расчет для рабочего якоря по таблице 2.27, для якоря свободного расцепления по таблице 2.28
Таблица 2.27
| U1 | Ф1 | В1 | Н1 | 2*Н1 | U12 | U22 | Фs | Ф2 | |
| 1 | 2,78E+03 | 7,76E-04 | 6,47E-01 | 455,6652 | 911,3304 | 8,201973 | 2792,985 | 5,78E-05 | 0,000834 |
| 2 | 2792,9852 | 0,000834 | 0,695224 | 489,5941 | 979,1881 | 8,812693 | 2801,798 | 5,8E-05 | 0,000892 |
| 3 | 2801,7979 | 0,000892 | 0,743555 | 523,63 | 1047,26 | 9,42534 | 2811,223 | 5,82E-05 | 0,00095 |
| 4 | 2811,2233 | 0,00095 | 0,792048 | 557,7804 | 1115,561 | 10,04005 | 2821,263 | 5,84E-05 | 0,001009 |
| 5 | 2821,2633 | 0,001009 | 0,840715 | 592,0528 | 1184,106 | 10,65695 | 2,83E+03 | 5,86E-05 | 0,001067 |
Таблица 2.28
| U1 | Ф1 | В1 | Н1 | 2*Н1 | U12 | U22 | Фs | Ф2 | |
| 1 | 1,96E+03 | 1,64E-02 | 1,36E+01 | 9612,268 | 19224,54 | 173,0208 | 2133,601 | 4,42E-05 | 0,016423 |
| 2 | 2133,6006 | 0,016423 | 13,68622 | 9638,186 | 19276,37 | 173,4874 | 2307,088 | 4,78E-05 | 0,016471 |
| 3 | 2307,0879 | 0,016471 | 13,72602 | 9666,213 | 19332,43 | 173,9918 | 2481,08 | 5,14E-05 | 0,016523 |
| 4 | 2481,0798 | 0,016523 | 13,76882 | 9696,352 | 19392,7 | 174,5343 | 2655,614 | 5,5E-05 | 0,016578 |
| 5 | 2655,6141 | 0,016578 | 13,81463 | 9728,613 | 19457,23 | 175,115 | 2,83E+03 | 5,86E-05 | 0,016636 |
Предел сходимости ε=0
Поток в основании Ф=(10,67+166,36)∙10-4 =177,04∙10-4 Вб
Индукция В=Ф/( а3 ∙b)=177,04∙10-4 /(20∙10-3 ∙60∙10-3 )=8,43 Тл
Напряженность Н=5940 А/м
Магнитное напряжение в ярме
U=Н∙(с+ а1 +а2 )= 5940∙( 60+20+20)∙10-3 =594 В
Необходимая намагничивающая сила при F=200 Н
Q=∑Uј n +U=(2133,6+2307+2481,1+2655,6+2830)+594=14700 А
При δ=11 мм, F=300 Н
Ф =(2∙μо ∙F∙S)1/2 =(2∙1,256∙10-6 ∙300∙20∙10-3 ∙60∙10-3 )1/2 =9,51∙10-4 Вб
Магнитное напряжение по (2.46)
U1 =Фδ /G +Hя ∙ℓя ,
где Ня – магнитная напряженность, А/м определяем по кривой намагничивания для стали марки 2212. Индукция по (2.48)
В=Ф/( b∙а4 ) (2.48)
В=9,51∙10-4 /(60 ∙10-3 18∙10-3 )=0,881 Тл
Ня =620 А/м
U1 =9,51∙10-4 /2,84∙10-7 +620∙0,1=3410 В
Далее расчет для рабочего якоря по таблице 2.29, для якоря свободного расцепления по таблице 2.30
Таблица 2.29
| U1 | Ф1 | В1 | Н1 | 2*Н1 | U12 | U22 | Фs | Ф2 | |
| 1 | 3,41E+03 | 9,51E-04 | 7,92E-01 | 558,0736 | 1116,147 | 10,04532 | 3420,694 | 7,08E-05 | 0,001022 |
| 2 | 3420,6944 | 0,001022 | 0,851471 | 599,6278 | 1199,256 | 10,7933 | 3431,488 | 7,1E-05 | 0,001093 |
| 3 | 3431,4877 | 0,001093 | 0,910665 | 641,3131 | 1282,626 | 11,54364 | 3443,031 | 7,13E-05 | 0,001164 |
| 4 | 3443,0313 | 0,001164 | 0,970057 | 683,1387 | 1366,277 | 12,2965 | 3455,328 | 7,15E-05 | 0,001236 |
| 5 | 3455,3278 | 0,001236 | 1,029661 | 725,1136 | 1450,227 | 13,05205 | 3,47E+03 | 7,18E-05 | 0,001307 |
Таблица 2.30
| U1 | Ф1 | В1 | Н1 | 2*Н1 | U12 | U22 | Фs | Ф2 | |
| 1 | 2,40E+03 | 2,01E-02 | 1,67E+01 | 11772,58 | 23545,15 | 211,9064 | 2613,116 | 5,41E-05 | 0,020115 |
| 2 | 2613,1164 | 0,020115 | 16,76213 | 11804,32 | 23608,64 | 212,4777 | 2825,594 | 5,85E-05 | 0,020173 |
| 3 | 2825,5941 | 0,020173 | 16,81087 | 11838,64 | 23677,29 | 213,0956 | 3038,69 | 6,29E-05 | 0,020236 |
| 4 | 3038,6897 | 0,020236 | 16,86329 | 11875,56 | 23751,12 | 213,76 | 3252,45 | 6,73E-05 | 0,020303 |
| 5 | 3252,4498 | 0,020303 | 16,9194 | 11915,07 | 23830,14 | 214,4712 | 3,47E+03 | 7,18E-05 | 0,020375 |
Предел сходимости ε=0
Поток в основании Ф=(13,07+203,75)∙10-4 =216,82∙10-4 Вб
Индукция В=Ф/( а3 ∙b)= 216,82∙10-4 /(20∙10-3 ∙60∙10-3 )=10,3 Тл
Напряженность Н=7270 А/м
Магнитное напряжение в ярме
U=Н∙(с+ а1 +а2 )= 7270∙( 60+20+20)∙10-3 =727 В
Необходимая намагничивающая сила при F=300 Н
Q=∑Uј n +U=(2613,12+2825,6+3039+3252,45+3470)+727=17900 А
2.4.3. Согласование характеристик
Все расчеты по п.2.4.2. сведены в таблице 1 Приложение 2. Тяговая характеристика, построенная расчетным путем, изображена на графическом документе.
Задача: определить геометрические размеры катушки
Исходные данные: намагничивающая сила Q =13600А, питание станции управления от U=16 В (это минимальное значение), материал провода – медь.
Сечение обмоточного провода определяем по (14-6 [5])
S=(Q∙ρ∙ℓв.ср )/(Кп.т. ∙U) , (2.49)
где:
ρ=ρо ∙(1+α∙υ)=1,62∙10-8 ∙(1+4,3∙10-3 ∙65)=2,35∙10-8 Ом∙м;
ℓв.ср. =π∙dc р =3,14∙75,7=237,74 мм – средняя длина витка;
dc р =(4∙S/π)1/2 =(4∙60(35+20+20)/3,14)1/2 =75,7мм – средний диаметр витка;
Кп.т. =1 – коэффициент перегрузки по току.
S=(13600∙2,35∙10-8 ∙237,74∙10-3 )/(1∙16)=4 мм2
Диаметр провода по (2.50)
d=(4∙S/π)1/2 (2.50)
d=(4∙S/π)1/2 =(4∙4/3,14)1/2 =2,23 мм
Принимаем диаметр провода 2,24 мм. Для обмоточного провода марки ПЭВ2 по (табл. 14-3 [5]) двойная толщина изоляции 0,13 мм.
Диаметр провода с изоляцией
dпр = 2,24+0,13=2,37 мм.
Число витков по (2.51)
W=Кз.об ∙b∙h/S, (2.51)
где Кз.об =0,95 – коэффициент заполнения обмотки; h,b – соответственно высота и радиус катушки; S – площадь провода.
W=0,95∙40∙56/4,4=483,64
Ток включения, протекающий по катушке при питании станции управле-ния от напряжения U=30 В, по (2.52)
Iвкл =Q/W (2.52)
Iвкл =13600/483,64= 28,12 А
Держащий ток, при котором якорь свободного расцепления не свободно отходит от сердечника, при Q=400 А
Iдер =Q/W=400/484 =0,82 А
2.5. Расчет дугогасительного устройства
Дугогасительная камера представляет собой два блока деионной решетки с горизонтальным расположением дугогасительных пластин. Между блоками дугогасительных пластин имеются щеки, предназначенные для крепления блоков пластин между собой, и защиты магнитопроводов магнитного дутья от воздействия плазмы электрической дуги. Для уменьшения выхлопа в торцах камеры установлены блоки дугогасительных жалюзей. С целью обеспечить раскаленным газам наибольший путь вдоль поверхностей жалюзи, для максимального охлаждения установлены торцевые крышки.
Дугогасительная система должна обеспечивать отключение больших токов короткого замыкания в ограниченном объеме. Под воздействием возникающих электродинамических сил дуга быстро растягивается и гаснет, но ее пламя занимает очень большое пространство. Задача дугогасительного устройства заключается в том, чтобы ограничить размеры дуги и обеспечить ее гашение в малом объеме.
Дуга под как проводник с током, в электромагнитном поле, созданном сердечниками и катушками параллельного магнитного дутья движется в камеру, частично отдавая энергию щекам камеры и воздушной среде. После разделения дуги на участки между вершинами пазов дугогасительных пластин,на дугу воздействует электромагнитная сила, созданная током дуги и магнитным полем, наведенным в дугогасительной пластине. Стальные дугогасительные пластины втягивают дугу в пазы. Форма пазов и взаимное расположение пластин обеспечивает быстрое удлинение дуги её охлаждение, интенсивную деионизацию и гашение.
Гашение электрической дуги в аппаратах низкого напряжения является одной из актуальных проблем, содержащей весьма сложный комплекс вопросов электротехники и физики. На ряд явлений в дуге и на ее гашение не существует единых взглядов. Это обуславливает трудность в проектировании дугогасительных систем.
Задача проектирования дугогасительной системы заключается в том, чтобы она удовлетворяла следующим требованиям:
1) имела заданную коммутационную – отключающую способность, то есть величину отключаемых токов при заданных условиях;
2) имела минимальное время горения дуги с целью уменьшения износа контактов и дугогасительной камеры;
3) не имела недопустимых перенапряжений;
4) имела минимальные размеры, минимальный выброс пламени и ионизированных газов, вызывающих пробой изоляции;
5) имела минимальный звуковой и световой эффект.
Некоторые из требований противоречивы. Например, уменьшение времени горения дуги приводит к увеличению перенапряжений. Поэтому в процессе проектирования дугогасительных систем, как и других систем аппарата, необходимо находить оптимальные решения в данных условиях.
Выясним, необходимо ли в данном случае какое-либо дугогасительное устройство.
При конечном растворе контактов 15 мм, величина тока при котором гасится дуга без какого-либо ДУ определяется по (рис.6-8 [5]). При 550 В и разомкнутых контактах (15 мм) ток Iот. =0,6 А. По (6-15а [5])
Iот. = (ℓкр /(0,42∙10-2 ∙U))2 (2.53)
Iот. = (1,5/(0,42∙10-2 ∙550))2 = 0,42 А
Поскольку дуга должна гаснуть при токах от 0 до 25∙Iн , необходимо дугогасительное устройство.
Число пластин ДУ по (3.14 [2])
m=U/(Uк +Uа )+1, (2.54)
где U, Uк , Ua – соответственно максимальное рабочее напряжение, падение напряжения на катоде и на аноде. Сумма падений напряжения на катоде и на аноде равна 20-25 В. Принимаем 23 В, тогда число пластин по (2.54)
m=720/23+1=32.3≈32шт
Аппарат двух полюсный, на каждой камере установлены 2 секции пластин по 8 штук.
Долговечная и безотказная работа быстродействующего выключателя возможна лишь в том случае, если правильно выполнен его монтаж, надлежащим образом отрегулированы элементы схемы управления, а в процессе эксплуатации соблюдаются правила, предписываемые заводской инструкцией.
Выключатели транспортируются к месту монтажа по группе «С» по ГОСТ 23216-78 в заводской упаковке. Доставленный на место установки выключатель следует освободить от заводской упаковки, соблюдая осторожность, чтобы не разрушить его части. Затем его нужно протереть тряпкой, с тем, чтобы удалить с него влагу и пыль.
При монтаже и эксплуатации выключателя необходимо руководствоваться «Правилами эксплуатации электроустановок потребителей» и «Правилами техники безопасности при эксплуатации электроустановок потребителей», правилами, действующими у потребителя, а также дополнительными правилами:
1) работать с выключателем только при снятом напряжении главной цепи;
2) не эксплуатировать выключатель при открытых или не полностью закрытых камерах.
После удаления пыли и влаги выполняют подвод внешних проводников к главной цепи, закрепив их к выводам контактов 13, 14. Затем выполняют подвод цепей управления с помощью штепсельного разъема провода-ми сечением 0,75-4,0 мм2 .
При подготовке к работе необходимо:
· проверить визуально состояние главных контактов – на рабочей поверхности не должно быть нагара, вмятин и рисок глубиной более 1мм;
· протереть чистой ветошью и смазать тонким слоем смазки ЦИАТИМ-201 ГОСТ 6267-74 плоскости соприкосновения якоря 2 с магнитопроводом 1;
· проверить затяжку всех крепежных деталей; правильность и надежность всех электрических соединений;
· провести испытание электрической прочности изоляции выключателя;
· опробовать выключатель при дистанционном управлении десяти кратным включением и отключением;
· осмотреть дугогасительные камеры, на предмет механических разрушений и прогаров, внутри не должно быть посторонних предметов между дугогасительными пластинами;
· проверить правильность регулировки и настройки. При существенных отклонениях – отрегулировать выключатель;
· установить дугогасительные камеры. Затянуть гайки крепления камер.
· установить кожух выключателя. Закрепить кожух с помощью гаечно-болтового соединения.
Установите выключатель на сухой чистой и ровной поверхности, сняв кожух 2 (рис.1).
Во включенном положении выключателя проверьте плотность прилегания гаек 31 (рис.2) к упору 20 главного якоря 6. При наличии зазора подтяните пружины свободного расцепления 11 вращением гаек 32.
Во включенном положении выключателя проверьте зазор δ2 =2+0,5 мм. Зазор регулируется гайками 31.
В отключенном положении проверьте раствор между подвижными 16 и неподвижными 28 контактами δ3 =15±1 мм. Раствор регулируется перемещением упора 25.
Снимите дугогасительные камеры 6 (рис. 1) и проверьте усилие контактного давления в точке К (рис. 2) с помощью динамометра. Величина усилия должна составлять 70±10 Н. При необходимости усилие можно подрегулировать вращением болтов 22.
После регулировки произведите 50 оперативных включений выключателя без тока в главной цепи и убедитесь, что зазоры δ1 , δ2 , и δ3 не изменились.
Произведите включение и отключение выключателя при напряжении цепей управления от 16,8 до 30В.
Справочные размеры рабочих регулируемых зазоров выключателя приведены в таблице 2.
Таблица 1
| Наименование параметров | Обозначение и величина | Контрольный инструмент |
| Провал главных контактов | δ2 =2+0,5 мм | Щуп набор №4 ГОСТ 882-75 |
| Зазор в предвключенном положении | δ1 =3±0,5 мм | Щуп набор №4 ГОСТ 882-75 |
| Раствор главных контактов | δ3 =15+ 1 мм | Штангенциркуль ЩЦ-1-125-01ГОСТ 166-80 |
| Контактное нажатие | 70±10 Н | Динамометр ДПУ-0,02-2ГОСТ 13837-79 |
В отключенном положении проложите между главными контактами пластину толщиной 1 мм, лист белой и лист копировальной бумаги. Включая и удерживая кнопку SB3, при включении выключателя убедиться, что подвижный контакт останавливается в предвключенном положении и на белой бумаге не появляется отпечаток.
При проверке механизма свободного расцепления необходимо учитывать, что при удержании кнопки SB3 по катушке привода протекает большой включающий ток, длительность которого не должна превышать 10 секунд.
1. Проверить усилие контактного давления. Усилие определяется оттягиванием подвижного контакта гибким шнуром присоединенным к динамометру, момент размыкания контакта определяется с помощью лампы накаливания и источника питания включенных последовательно с контактами полюса.
2. После регулировки произвести 10 оперативных включений выключателя без тока главной цепи и убедиться, что все зазоры и раствор контактов не изменились.
3. Произвести включение и отключение выключателя при напряжении цепей управления от 16,8 до 30 В.
4. Проверить ток уставки электронных датчиков тока А1 и А2 путем прогрузки выключателя главным током.
4. Экономическая часть
Описанный в данном проекте аппарат предназначен для применения в электрической схеме защиты троллейбуса от разрушающего действия токов короткого замыкания, которые могут возникать в системе энергоснабжения троллейбусного транспорта. Проектируемый аппарат не имеет аналогов в своей области, тем самым он является единственным в своем роде на рынке подобной аппаратуры и не имеет конкурентов. Этот фактор является главным основанием для подтверждения экономической выгоды его разработки и серийного производства.
4.2. Задачи технико - экономического обоснования проекта.
При проектировании аппарата необходимо исходить не только из технических задач, но и из экономической целесообразности принимаемых решений. Задачи экономического анализа состоят в том, чтобы оценить проект и отдельные его технические решения с точки зрения их экономической эффективности. В процессе разработки экономической части проекта определяются технико - экономические показатели количественной оценки качества спроектированного аппарата.
Расчеты технико - экономического обоснования производятся при сравнении разработанной конструкции с существующими, а также с другими разработанными вариантами конструкции.
Технико - экономическое обоснование проекта или отдельного технического решения представляет собой выводы о его экономической эффективности, сделанные на основе стоимостных показателей с учетом технико - экономических показателей, и факторов, которые не выражены в деньгах и имеют важное самостоятельное значение.
В результате технико - экономического анализа спроектированного аппарата обычно выявляются резервы для его последующего улучшения.
4.3. Сравнительные характеристики выключателя ВБ-7/2 и ВБ-3/2.
Выключатель автоматический быстродействующий (ВБ-7/2) предназначен для коммутации цепей постоянного тока, троллейбусного транспорта. Показатели сравниваемых аппаратов приводятся ниже.
Таблица 4.1
| Показатели сравниваемых аппаратов | ВБ – 7/2 | ВБ – 3/2 |
| Масса аппарата, кг | 50 | 75 |
Габаритные размеры выключателя, (ширина * длина * высота), мм |
450*550*300 | 550*800*350 |
| Собственное время отключения, с | 0,006 | 0,008 |
| полное время отключения малых токов, с | 0,08 | Не отключает |
| Механический ресурс выключателя | 150000 | 100000 |
4.4. Возможные покупатели товара.
Возможными покупателями являются строящиеся линии троллейбусного транспорта Российских и зарубежных городов. В настоящее время предприятие поставляет ВБ-7/2 на трамвайно троллейбусные заводы городов Энгельса, Уфы, Вологды, Минска, Москвы, троллейбусы, которых эксплуатируются по всей России, в том числе и за рубежом.
4.5. Отличие выключателя ВБ-7/2 от ВБ-3/2.
Мы видим, что проектируемый выключатель имеет меньшую массу, т.е. происходит экономия материала, также выключатель имеет большее быстродействие, а этот факт имеет большое значение, как для самого выключателя (сокращается воздействие на аппарат электродинамических усилий, и термических воздействий), а также для отключаемой сети (сеть при коротком замыкании подвергается меньшим перегрузкам). Проектируемый выключатель имеет больший ресурс включений и отключений, следовательно, увеличивается срок эксплуатации выключателя. Вследствие меньших габаритных размеров выключатель занимает меньшую площадь. Проектируемый выключатель имеет меньшую себестоимость изготовления вследствие меньших затрат материала. Существенным достоинством ВБ-7/2 является его более низкая цена (55 000 руб.) в отличие от ВБ-3/2 (110 000 руб.)
Все перечисленные выше основные факторы делают проектируемый выключатель более конкурентоспособным на рынке данных типов выключателей, и также более рентабельным по отношению к старому типу выключателей.
4.6. Отличие выключателя ВБ-7/2 от аналогичных выключателей конкурентов.
На Российском рынке не существует конкурентов данному типу выключателей. На зарубежном рынке конкурентами данному типу выключателя являются японская фирма “Toschiba”, а также немецкая фирма “AEG”, продукция этих фирм широко известна и высокого качества, но очень высокая цена является их существенным недостатком. Выключатель ВБ-7/2 не уступает по качеству и другим техническим показателям этим аналогам, но имеет более низкую цену в отличие от цены зарубежных фирм.
4.7. Факторы конкурентоспособности.
Основными факторами конкурентоспособности выключателя ВБ-7/2, как уже отмечалось выше, является его цена, также упор делается на проведение рекламы - это участие ООО «Технос» в различных международных выставках, выпуск рекламных проспектов, создание своего сайта в глобальной сети Internet, проводит гарантийное обслуживание выключателя. Существует гибкая система скидок при покупке больших партий товара.
Ниже в таблице приводятся факторы конкурентоспособности выключателей зарубежных фирм, и также выключателя ВБ-3/2 по сравнению с выключателем ВБ-7/2. Оценка факторов производится по пятибалльной шкале.
Таблица 4.2
|
конкуренто- способности |
Выключатель ВБ-7/2 |
Выключатель ВБ-3/2 |
Выключатель фирмы Toschiba |
Выключатель фирмы |
1.Качество |
5 |
4 |
5 |
5 |
2.Технико- экономич. показатели |
5 |
3 |
5 |
5 |
3.Престиж торговой марки |
4 |
4 |
5 |
5 |
4. После-продажное обслуживание |
5 |
5 |
4 |
4 |
5.Защищен- ность патентами |
4 |
0 |
3 |
2 |
6.Цена |
5 |
3 |
2 |
2 |
7.Процент скидки с цены |
4 |
4 |
2 |
3 |
8.Реклама |
4 |
1 |
4 |
4 |
Общее количество баллов |
35 |
24 |
30 |
30 |
Для расчета себестоимости продукции необходимо определить все затраты, которые имеют место в процессе производства. Расход денежных средств будет производиться на приобретение сырья и вспомогательных материалов, выплаты заработной платы основным производственным рабочим, оплату за энергоносители и прочие.
Производственная себестоимость (Ссеб ) определяется по формуле (4.1)
Ссеб = Смат +Сзп + Сцех + Со-пр (4.1)
Затраты на материалы складываются из затрат на основные материалы (Сосн.мат ) и затраты на покупные изделия (Спок.из ) по (4.2):
Смат = Сосн.мат + Спок.из (4.2)
Затраты на выплату заработной платы.
Основная зарплата (ЗПосн ) ‑ сумма из табл.3.2.3. Отчисления на выплату дополнительной зарплаты (ЗПдоп ) ‑ 25% от основной зарплаты (ЗПосн ), единый налог на социальные нужды (ЗПсоц ) ‑ 26 % от суммы основной и дополнительной зарплаты. По формуле (4.3)
ЗПсоц = (ЗПдоп + ЗПосн )*0.26 (4.3)
Затраты на выплату зарплаты с учетом отчислений на ЕСН по формуле (4.4)
Сзп = ЗПдоп +ЗПосн + ЗПсоц (4.4)
Цеховые затраты (Сцех ) ‑ затраты на амортизацию и содержание оборудования, инструменты. Общезаводские (Соз ) ‑ затраты на организацию и управление производством, освещение, аренду и др.
Полная себестоимость (Сполн ) с учетом коммерческих затрат(Ском ), которые принимаются 6500 руб., рассчитывается по формуле (4.5)
Сполн = Ссеб + Ском (4.5)
Цена выключателя (Ц) вычисляется по формуле (4.6),
Ц = Сполн + 0,2*Сполн (4.6)
Прибыль (П) рассчитывается по формуле (4.7)
П = Ц ‑ Сполн (4.7)
Смета затрат на основные материалы
Расчет затрат на основные материалы сведен в табл.4.3 из расчета на один выключатель.
Таблица 4.3
| Наименование материала | Единица измерен | Норма расхода | Цена за кг в руб. | Общая стоимость в руб. |
| Черные металлы | ||||
| сталь конструкционная | кг | 37,18 | 15 | 557 |
| сталь электротехническая | кг | 13,85 | 18 | 249 |
| цветные металлы | ||||
| медь | кг | 4,55 | 113 | 514,15 |
| Провод ПЭТВ-2-2,24 | кг | 4,3 | 155 | 465 |
| Провод ПЭТВ-2-0,5 | кг | 0,14 | 134 | 18,76 |
| Провод | ||||
| неметаллические материалы | ||||
| СТЭФ | кг | 8,12 | 169,4 | 1375 |
| Пресс материал ГСП | кг | 3 | 120 | 360 |
| DALMAT | кг | 0,45 | 276 | 124 |
| Резина | кг | 0,001 | 43 | 0,043 |
| Асбест, лист | кг | 0,3 | 450 | 135 |
| грунтовка | кг | 0,15 | 120 | 18 |
| Эмаль серая | кг | 0,15 | 234 | 35 |
Электроизоляционный лак МЛ-92 |
кг | 0,7 | 152 | 106 |
| Итого | 3957 |
Смета затрат на покупные изделия
Расчет затрат на покупные изделия в табл.4.4
Таблица 4.4
| № Наименование изделия | Норма расхода | Цена за единицу в руб. | Общая стоимость в руб. |
| Контактор КМ 1100 | 1 | 600 | 600 |
| Радиоэлектронные комплектующие | 250 | 4,8 (средняя цена) | 1200 |
| Разъем типа ШР | 1 | 800 | 800 |
| Блок контактов Д702 | 1 | 120 | 120 |
| Печатная плата ДТ | 2 | 40 | 80 |
| Печатная плата СУ | 1 | 90 | 90 |
| Провод МГШВ, м | 7 | 15 | 105 |
| Термоусадочная трубка, м | 0,48 | 150 | 72 |
| Метизы (гайки, шайбы, гровер, болты, винты, саморезы, заклепки) | 350 |
1,2 (средняя цена) | 420 |
| Табличка технических данных | 1 | 70 | 70 |
| Детали из пресс материала | |||
| Панель нижняя | 1 | 300 | 300 |
| Стойки под камеру | 4 | 30 | 120 |
| Перегородка с вводами | 1 | 340 | 340 |
| полукаркас катушки привода | 2 | 70 | 140 |
Корпус (стакан +крышка) катушек магнитного дутья |
2 | 70 | 140 |
| Корпус датчика тока | 2 | 80 | 160 |
| Итого | 4757 |
Смета затрат на изготовление, выполнение монтажных и испытательных работ для изготовления 1-го выключателя
Расчет приведен с учетом месячного оклада рабочих и сведен в табл.4.5
Таблица 4.5
| № Наименование работ | Затраты в норма часах | Стоимость норма часа в руб. | Общая стоимость в руб. |
| Фрезерование | 13 | 130 | 1690 |
| Токарные | 15 | 130 | 1950 |
| Слесарно сборочные | 16 | 102 | 1632 |
| Сварочные | 2 | 110 | 220 |
| Покрасочные, лакировочные | 3 | 72 | 216 |
| Проведение испытаний (регулировка, настройка, приёмосдаточные испытания) | 2 | 85 | 170 |
| Итого Основная ЗП | 5878 | ||
| Дополнительная ЗП (30%) | 1763 | ||
| ЗПсоц | 1986 | ||
| Итого (Сзп) | 9628 |
Расчет составляющих себестоимости продукции
Результаты расчетов сведены в итоговую таблицу 4.6
Таблица 4.6
| № | Статьи затрат | Сумма в руб. |
| 1 | Основные материалы, Сосн.мат | 3957 |
| 2 | Покупные изделия, Спок.изд. | 4757 |
| 3 | Расходы на оплату труда, Сзп | 9628 |
| 4 | Цеховые расходы, Сцех | 9000 |
| 5 | Общепроизводственные расходы, Со-пр | 11000 |
| 6 | Производственная себестоимость, Ссеб | 38342 |
| 7 | Коммерческие расходы, Ском | 6500 |
| 8 | Полная себестоимость, Сполн | 44842 |
| 9 | Цена, Ц | 55000 |
| 10 | Прибыль, П | 10158 (18%) |
Как видно, из выше перечисленных данных и расчетных значений, проектируемый аппарат имеет меньшую стоимость, и при одинаковых характеристиках новый аппарат имеет улучшенные показатели: время срабатывания, масса и коммутационный ресурс, повышенная устойчивость к превышениям питающего напряжения цепей управления, что обеспечивает увеличение срока службы проектируемого аппарата, по сравнению, с базовым в несколько раз.
5. Безопасность жизнедеятельности .
В этом разделе дипломного проекта обосновываются вопросы безопасности и экологичности проектируемого выключателя в месте установки по отношению к обслуживающему персоналу и окружающей среде, а также рассматриваются возможные чрезвычайные ситуации, методы их оценки и способы защиты.
Вся деятельность человека протекает в мире опасностей ‑ природных, технических. Из опыта жизни становится ясно, что любая деятельность потенциальна опасна. И в тоже время опасность можно прогнозировать, следовательно, предупреждать ее ‑ значит управлять, пытаясь снизить ее до минимального уровня.
Изучение курса БЖД и более комплексная переработка вопросов безопасности производства и его влияния на организм человека и среду его обитания позволяет прогнозировать возникновение чрезвычайных ситуаций и по возможности их предотвращать.
В данном диплом проекте рассматривается вопрос проектирования автоматического быстродействующего выключателя постоянного тока для установки на троллейбусах. Параметры аппарата: номинальное напряжение Uном =550 B, номинальный ток Iном =250А. При работе аппарат не выделяет в окружающую среду каких-либо вредных веществ, не нагревает окружающее пространство.
В конструкции не используются взрывоопасные и легковоспламеняющиеся материалы.
Полностью безопасных и безвредных производств не существует. На рассматриваемом предприятии на рабочих влияют следующие факторы:
1. Параметры микроклимата на всех участках.
2. Шум от работы станков, особенно на металлообрабатывающем, сварочном участках.
3. Влияние химических веществ, только на малярном участке.
4. Вибрация влияет на рабочих, работающих на станках.
5. Влияние магнитных полей и радиационных излучений пренебрежимо мало.
6. 6.Освещение является важным фактором для всех подразделений предприятия.
5.2.2.1. Параметры микроклимата.
Микроклимат производственных помещений ‑ это климат внутренней среды этих помещений, который определяется действующими на человека сочетаниями температуры, влажности и скорости движения воздуха, а также температурой окружающих поверхностей.
В ГОСТ 12.1.005 – 88 [19] указаны оптимальные и допустимые показатели микроклимата в производственных помещениях. Для создания оптимальных микроклиматических условий производственных помещений предусматриваются следующие мероприятия:
· рациональные объемно-планировочные и конструктивные решения производственных зданий;
· рациональное распределение оборудования внутри помещений;
· механизация и автоматизация производственных процессов;
· рациональная тепловая изоляция оборудования;
· дистанционное управление и наблюдение;
· защита работающих различными видами экранов;
· рационализация режимов труда и отдыха;
· использование средств индивидуальной защиты;
· рациональная вентиляция и отопление.
Допустимая температура окружающей среды 20-23о С, относительная
влажность 30-60%, скорость воздуха 0,1-0,5 м/с, теплоизлучение 10-50 Вт/м2
Превышение норм отрицательно влияет на человека: превышение температуры вызывает потливость и как следствие обезвоживание организма, большая скорость воздуха является следствием всех простудных заболеваний, избыточная или недостаточная влажность также вредят здоровью людей.
Фактические данные па рабочем месте конструктора следующие:
· допустимая температура окружающего воздуха 21о С;
· относительная влажность 50%;
· скорость воздуха 0,2 м/с;
· теплоизлучение 12 Вт/м2 .
Таким образом, уровень допустимых значений не превышается ни по одному из перечисленных параметров. Следовательно, не надо принимать дополнительных мер по защите людей от неблагоприятных воздействий.
5.2.2.2. Влияние постоянных магнитных полей.
Источниками постоянных магнитных полей (ПМП) являются постоянные магниты, электромагниты, линии передачи постоянного тока др. Воздействуя на живую ткань организма, электромагнитное поле вызывает переменную поляризацию молекул и атомов, составляющих клетки, в результате чего происходит их опасный нагрев. Развиваются нарушения со стороны нервной, сердечно-сосудистой систем, органов дыхания, пищеварения и некоторых биохимических показателей крови. Электромагнитное поле, как совокупность переменных электрического и магнитного полей, оценивается векторами напряженностей – электрической E, В/м, магнитной H, А/м. Воздействие электромагнитного поля зависит от величин напряженностей Е и Н, времени воздействия, частоты. Основным параметром, характеризующим биологическое действие электромагнитного поля промышленной частоты (50 Гц), является электрическая напряженность Е. Магнитная составляющая при промышленной частоте заметного влияния на организм не оказывает, так как при 50 Гц вредное биологическое действие проявляется при Н = 150 - 200 А/м, а в действующих установках значение Н не превышает 25 А/м.Сильные магнитные поля вызывают головные боли, нарушают сердечную деятельность человека, являются виновником повышенного давления и др. Нормирование происходит по ГОСТ 12.1.006‑84[20]. Допустимое значение действия магнитного поля 0,72 (А/м)2. На рабочем месте конструктора действие магнитного поля отсутствует за счет использования специальных экранов.
Защита от воздействия МП сводится к защите расстоянием и экранированию. Экран изготовляют из магнитомягких (легко намагничивающихся) материалов, причем он должен быть замкнут. Вместе с тем МП (постоянное и низкочастотное) быстро убывает по мере удаления от источника.
Шумом принято называть любой нежелательный для человека звук. Шум представляет собой беспорядочное сочетание звуков различной частоты и интенсивности. Возникает шум при механических колебаниях в твердых, жидких и газообразных средах. Механические колебания с частотами 20-20000 Гц воспринимаются слуховым аппаратом в виде звука. Под звуком понимается колебательное движение частиц упругой среды, распространяющееся волнообразно. Колебания с частотой ниже 20 и выше 20000 Гц не вызывают слуховых ощущений, но оказывают вредное биологическое воздействие на организм человека. В зависимости от уровня и характера шума, его продолжительности, а также от индивидуальных особенностей человека шум может оказывать на него различное действие. Шум, даже когда он невелик (при уровне 50-60 дБ), отрицательно влияет на организм человека, и в первую очередь на центральную нервную систему, оказывая на человека психологическое воздействие. Сильный продолжительный шум может стать причиной функциональных изменений сердечно-сосудистой и нервной систем. Длительное воздействие шума снижает остроту слуха и зрения, повышает кровяное давление, утомляет центральную нервную систему, в результате чего ослабевает внимание, увеличивается число ошибок в действиях рабочего, снижается производительность его труда.
Источниками шума являются машины, оборудование, инструменты.
Нормируемые параметры шума на рабочих местах определены ГОСТ 12.1.003‑83[21]. Допустимый уровень звука80 дБ. Фактический – 76 дБ. Такое большое значение шума возникает из-за того, что рядом с рабочим местом конструктора находится испытательный стенд.
Для снижения шума можно применить следующие методы: уменьшение шума в источнике, изменение направленности излучения, рациональная планировка предприятия в целом, акустическая обработка помещений. Для защиты органов слуха применяются специальные средства индивидуальной защиты, которые устанавливает ГОСТ 12.1.029-80[22]. Это противошумные сильфоны, наушники, заглушки вкладыши. Но в данном случае они не используются, так как уровень шума не превышает допустимого значения.
Для снижения шума устанавливаем перегородку между стендом и рабочим местом конструктора.
Вибрацией называют механические колебания упругих тел или колебания движения механических систем. Причиной возбуждения вибраций являются возникающие при работе машин и агрегатов неуравновешенные силовые воздействия. Часто вибрации сопровождаются слышимым шумом.
С физической точки зрения разницы между шумом и вибрацией нет. Разница имеет место лишь в восприятии: вибрация воспринимается вестибулярным аппаратом и органами осязания, а шум – органом слуха.
По характеру действия на организм человека вибрацию принято подразделять на общую и локальную. Общая вибрация передается на все тело человека, а локальная на отдельные части тела. Возможно комбинированное действие общей и локальной вибрации. Действие общей вибрации, вызванное работой технологического оборудования (машин, механизмов, станков и др.), вследствие сотрясения пола, площадки, сидения, на котором находится работающий, распространяется на весь организм. Действие локальной вибрации распространяется на участки тела, непосредственно соприкасающиеся с источником вибрации, например при работе, ручными машинами: сверлильными, клепальными, шлифовальными и т. д.
Опасность воздействия вибрации объясняется следующим. Внутренние органы и отдельные части тела человека (сердце, желудок, голову и др.) можно рассматривать как колебательные системы, имеющие различные сосредоточенные массы и соединенные между собой упругими элементами. Большинство внутренних органов имеют собственную частоту колебаний в пределах от 6 до 9 Гц. Воздействие на организм внешних колебаний с такими же частотами может вызвать резонансные колебания внутренних органов, что представляет опасность их смещения и механических повреждений. Локальные вибрации могут вызвать ухудшение кровоснабжения кистей рук, пальцев, предплечья и сосудов сердца. В результате может быть нарушена чувствительность кожи, отложение солей, окостенение сухожилий в кистях рук и пальцев и, как следствие, деформация и снижение подвижности суставов. Так же, как и при общей вибрации, нарушается деятельность сердца и центральной нервной системы. Организм особенно чувствителен к вертикальным сотрясениям, когда человек стоит на вибрирующей поверхности, и сотрясения распространяются от ног к голове.
Длительное воздействие вибрации ведет к развитию профессиональной вибрационной болезни.
Разработаны гигиенические нормы вибрации в соответствии с СанПиН 2.2.2.542-96. [93] В помещениях, в которых работа с ПЭВМ является основной, а также во всех помещениях с ПЭВМ вибрация на рабочих местах не должна превышать допустимые нормы. Допустимые величины вибрации приведены в таблице 5.1:
Таблица 5.1.
Допустимые величины вибрации в помещениях
Среднегеометрические Частоты октавных Полос, Гц |
Допустимые значения | |||||
| По виброускорению | По виброскорости | |||||
| м/с | дБ | м/с | дБ | |||
| Оси X,Y | ||||||
| 2 | 5,3 x 10 | 25 | 4,5 x 10 | 79 | ||
| 4 | 5,3 x 10 | 25 | 2,2 x 10 | 73 | ||
| 8 | 5,3 x 10 | 25 | 1,1 x 10 | 69 | ||
| 16 | 1,0 x 10 | 31 | 1,1 x 10 | 69 | ||
| 31,5 | 2,1 x 10 | 37 | 1,1 x 10 | 69 | ||
| 63 | 4,2 x 10 | 43 | 1,1 x 10 | 69 | ||
Методы борьбы с вибрацией: снижение вибрационного воздействия на источник возбуждения, отстройка от режимов резонанса, вибродемпфирование, динамическое гашение колебаний. Для снижения вибрации перемещаем испытательный стенд как можно дальше от рабочего места конструктора.
Правильно спроектированное и выполненное освещение на предприятиях обеспечивает возможность нормальной производственной деятельности. От освещения в значительной мере зависит сохранность зрения человека, состояние его центральной нервной системы и безопасность на производстве. От условий освещения так же зависят производительность труда и качества выпускаемой продукции. Согласно СНиП 23.05-95[25] для производственных помещений величина освещенности нормируется не менее 200 лк.
Расчет освещения
В лаборатории рекомендуется применять общее освещение, а так же установить розетки для подключения местного освещения. Для питания электрических ламп применяется напряжение до 220 В. включительно.
Высота установки люминесцентных ламп не ограничивается, т.к. в соответствии с ГОСТом все светильники имеют недоступные контактные части, что соответствует требованиям ПЭУ. При размещении светильников учитывается удобство обслуживания, равномерность освещения и направление света. Они должны быть доступны для ремонта и профилактики.
Для бытовых помещений, лабораторий расчет ведется методом удельной мощности или коэффициент использования.
Расчет ведется по коэффициенту использования. При этом световой поток ламп F каждого светильника определяется по формуле 5.1 [16] (Князевский, «Охрана труда в электрических установках»).
(5.1)
где:
E – номинальная освещенность;
Z – коэффициент неравномерности освещенности;
k – коэффициент запаса;
S – площадь помещения (М2 );
N – количество светильников;
Затем определим показатель помещения по формуле 5.2:
где:
A – длина помещения;
B – ширина помещения;
H – высота подвеса светильников.
Расчет необходимого количества светильников. Выбираем светильник с люминесцентными лампами типа ОДР2x40 укомплектованными лампами ЛДЦ – 40.
Определяем минимальную освещенность рабочего места. Для средней точности зрительной работы, рассматриваемого помещения при к = 1.5 это будет 100 лк. [25] Расчетная высота H = 4-1=3 м, площадь пола:
S = 20*5.8 = 116 м2 .
Т.е. i = 1.5
По найденному значению i коэффициент отражения потока (р = 50%) и стен (р = 30%) по [25] находим коэффициент использования светового потока п=0.52. Световой поток ламп определяется их мощностью и составляет 1520 лм.
Принимая z = 1.1 можно определить количество ламп
![]()
Таким образом, требуется 12 двухламповых светильников. Их надо расположить так, чтобы свет в помещении был равномерным.
5.2.2.6. Электробезопасность на производстве.
Электронасыщенность современного производства формирует электрическую опасность, источником которой могут быть электрические сети, электрифицированное оборудование и инструмент, вычислительная и организационная техника, работающая на электричестве.
Электротравматизм по сравнению с другими видами производственного травматизма составляет небольшой процент, однако по числу травм с тяжелым, и особенно летальным, исходом занимает одно из первых мест. Наибольшее число электротравм (60...70 %) происходит при работе электроустановок напряжением до 1000 В. Это объясняется широким распространением таких установок и сравнительно низким уровнем подготовки лиц эксплуатирующих их. Электроустановок напряжением свыше 1000 В в эксплуатации значительно меньше и обслуживает их специально обученный персонал, что и обусловливает меньшее количество электротравм.[15]
Электрический ток, протекая через тело человека, производит термическое, электролитическое, биологическое, механическое и световое воздействие. Термическое воздействие характеризуется нагревом кожи, тканей вплоть до ожогов. Электролитическое воздействие заключается в электролитическом разложении жидкостей, в том числе и крови. Биологическое действие электрического тока проявляется в нарушении биологических процессов, протекающих в организме человека, и сопровождается разрушением и возбуждением тканей и судорожным сокращением мышц. Механическое действие приводит к разрыву ткани, а световое — к поражению глаз.
Различают два вида поражения организма электрическим током: электрические травмы и электрические удары.
Электрические травмы — это местные поражения тканей и органов. К ним относятся электрические ожоги, электрические знаки и электрометаллизация кожи, механические повреждения в результате непроизвольных судорожных сокращений мышц при протекании тока (разрыва кожи, кровеносных сосудов и нервов, вывихи суставов, переломы костей), а также электроофтальмия – воспаление глаз в результате воздействия ультрафиолетовых лучей электрической дуги.
Электрический удар представляет собой возбуждение живых тканей организма проходящего через него электрическим током, сопровождающееся непроизвольным сокращением мышц. Различают четыре степени электрических ударов: I — судорожное сокращение мышц без потери сознания; II — судорожное сокращение мышц с потерей сознания, но с сохранением дыхания и работы сердца; Ш — потеря сознания и нарушение сердечной деятельности или дыхания (либо того и другого вместе); IV — клиническая смерть, т.е. отсутствие дыхания и кровообращения.
Поражение человека электрическим током может произойти при прикосновениях: к токоведущим частям, находящимся под напряжением; отключенным токоведущим частям, на которых остался заряд или появилось напряжение в результате случайного включения; к металлическим нетоковедущим частям электроустановок после перехода на них напряжения с токоведущих частей. Кроме того, возможно электропоражение напряжением шага при нахождении человека в зоне растекания тока на землю, электрической дугой в установках с напряжением более 1000 В; при приближении к частям, находящимся под напряжением, на недопустимо малое расстояние, зависящее от значения высокого напряжения. характер и последствия поражения человека электрическим током зависят от ряда факторов, в том числе и от электрического сопротивления тела человека, величины и длительности протекания через него, тока, рода и частоты тока, схемы включения человека в электрическую цепь, состояния окружающей среды и индивидуальных особенностей организма.
Электрическое сопротивление тела человека складывается из сопротивления кожи и сопротивления внутренних тканей. Кожа, в основном верхний ее слой толщиной 0,2 мм, состоящий из мертвых ороговевших клеток, обладает большим сопротивлением, которое определяет общее сопротивление тела человека. При сухой, чистой и неповрежденной коже сопротивление тела человека составляет 2000...20 000 Ом. При увлажненной и загрязненной коже сопротивление тела снижается до 300...500 Ом, т.е. до сопротивления внутренних органов. При расчетах сопротивление тела человека принимается равным 1000 Ом.[15]
Сила тока, протекающего через тело человека, является главным фактором, от которого зависит исход поражения: чем больше сила тока, тем опаснее последствия. Человек начинает ощущать проходящий через него ток промышленной частоты 50 Гц относительно малого Значения 0,5...1,5 мА. Этот ток называется пороговым ощутимым током. Ток силой 10...15 мА вызывает сильные и непроизвольные судороги, мышц, которые человек не в состоянии преодолеть, т.е. он не может разжать руку, которой касается токоведущей части, отбросить от себя, провод, оказываясь как бы прикованным к токоведущей части. Такой ток называется пороговым неотпускающим.
При силе тока 20...25 мА у человека происходит судорожное сокращение мышц грудной клетки, затрудняется и даже прекращается дыхание, что может привести к смерти вследствие прекращения работы легких. Ток силой 100 мА является смертельно опасным, так как он в этом случае оказывает непосредственное влияние на мышцы сердца, вызывая его остановку или фибрилляцию (быстрые хаотические и разновременные сокращения волокон сердечной мышцы), при которой сердце перестает работать.
Длительность протекания тока через тело человека определяет исход поражения им, так как с течением времени резко возрастает сила тока вследствие уменьшения сопротивления тела, и также потому, что в организме человека накапливаются отрицательные последствия воздействия тока.
Род и частота тока также в значительной степени определяют степень поражения электрическим током. Наиболее опасен переменный ток частотой 20...1000 Гц. При частоте меньше 20 Гц или более. l000 Гц опасность поражения током значительно снижается.
Состояние окружающей среды (температура, влажность, наличие, пыли, паров кислот) влияет на сопротивление тела человека и сопротивление изоляции, что в конечном итоге определяет характер и последствия поражения электрическим током. С точки зрения состояния окружающей среды производственные помещения могут быть сухие, влажные, сырые, особо сырые, жаркие, пыльные с токопроводящей и не токопроводящей пылью, с химически активной или органической средой. Во всех помещениях, кроме сухих, сопротивление тела человека уменьшается.
Согласно Правилам устройства электроустановок (ПУЭ) все производственные помещения по опасности поражения электрическим током разделяются на три категории:
1. Помещения с повышенной опасностью, характеризующиеся наличием одного из следующих факторов (признаков): сырости, когда относительная влажность превышает 75%; высокой температуры воздуха, превышающей 35о С; токопроводящей пыли; токопроводящих полов; возможности одновременного прикосновения к имеющим соединение с землей металлоконструкциям зданий, технологическим аппаратам, механизмам и т.п., с одной стороны, и к металлическим корпусам электрооборудования — с другой.
2. Особо опасные помещения, характеризующиеся наличием одного из трех условий: особой сырости, когда относительная влажность воздуха ближе к 100 %; химически активной среды; когда содержащиеся пары или образующиеся отложения действуют разрушающе на изоляцию и токоведущие части оборудования; двух и более признаков одновременно, свойственных помещениям с повышенной опасностью.
3. Помещения без повышенной опасности, характеризующиеся отсутствием признаков повышенной и особой опасности.
Рабочее место инженера конструктора относится к третей категории - помещение без повышенной опасности.
Анализ сравнивания реальных и допустимых значений для факторов, влияющих условия работы и безопасность конструктора в испытательной лаборатории (Категория тяжести работы ‑ кат. А, сред. тяжести). Все показатели сведены в таблица 5.2.
Таблица 5.2
| № | Показатель | По факту | Норма (оптимальная) |
| 1 | Температура | 22 | 21‑23 |
| 2 | Относительная влажность | 40‑60% | 40‑60% |
| 3 | Скорость воздуха | 0.2 м/с | не более 0.3 м/с |
| 4 | Освещенность при КЭО=1.2 | 240 лк | 200 лк |
| 5 | Вредные хим. вещества | отсутствуют | ПДК(малоопасных веществ) более 10 мг/м3 |
| 6 | Шум |
Уровень звука 76 дБ А |
Уровень звука 80 дБ А |
| 7 | Вибрация |
Уровень виброскорости 68 дБ |
Уровень виброскорости 79дБ |
| 8 | Действие маг. поля | отсутствует | 0.72 (А/м)^2 |
Экологической экспертизе подвергаются различные агрегаты, производства, которые в процессе работы осуществляют загрязнение окружающей среды отходами, шумом, различными излучениями и т.д.
В данном дипломном проекте, разработанный аппарат на окружающую среду, своей работой, загрязняющего действия не оказывает. Но следует отметить что в процессе производства данного аппарата используется электроэнергия, электротехнические материалы, средства производства (станки). То есть факторы влияющие не благотворно на окружающую среду и могут привести к: вырубке лесов при прохождении линий электропередач, опасность радиации на атомных станциях, вредные выбросы заводов производящих электротехнические материалы, шум при работе станков.
Для уменьшения влияния на окружающую среду, в зависимости от принадлежности предприятия к категории опасности необходимо контролировать ряд параметров производства и производить мероприятия, направленных на охрану окружающей среды.
При создании электрической энергии с помощью ГЭС нарушается равновесие водного состава, а именно изменение химического состава приводит к уничтожению флоры и фауны, то есть погибают растения, которыми питаются рыбы. Следствием недостатка пищи является уменьшение живых организмов. Как результат всего взаимосвязанного кругооборота – загрязнение водохранилища и даже его «смерть».
Чрезвычайная ситуация (ЧС) — состояние, при котором в результате возникновения источника чрезвычайной ситуации на объекте, определенной территории или акватории нарушаются нормальные условия жизни и деятельности людей, возникает угроза их жизни и здоровью, наносится ущерб имуществу населения, народному хозяйству и окружающей природной среде.
Под источником чрезвычайной ситуации понимают опасное природное явление, аварию или опасное техногенное происшествие, широко распространенную инфекционную болезнь людей, сельскохозяйственных животных и растений, а также применение современных средств поражения, в результате чего произошла или может возникнуть чрезвычайная ситуация
(ГОСТ Р 22.0.02 — 94).
Чрезвычайные ситуации, в том числе аварии на промышленных объектах, в своем развитии проходят пять условных типовых фаз:
1. Накопление отклонений от нормального состояния или процесса;
2. Инициирование чрезвычайного события (аварии, катастрофы или стихийного бедствия), причем под чрезвычайным событием можно понимать событие техногенного, антропогенного или природного происхождения. Для случая аварии на производстве в этот период предприятие или его часть переходят в нестабильное состояние, когда появляется фактор неустойчивости: этот период можно назвать “аварийной ситуацией” — авария еще не произошла, но ее предпосылки налицо. В этот период, в ряде случаев еще может существовать реальная возможность либо ее предотвратить, либо существенно уменьшить ее масштабы;
3. Процесс чрезвычайного события, во время которого происходит непосредственное воздействие на людей, объекты и природную среду первичных поражающих факторов; при аварии на производстве в этот период происходит высвобождение энергии, вещества, которое может носить разрушительный характер; при этом масштабы последствий и характер протекания аварии в значительной степени определяются не начальным событием, а структурой предприятия и используемой на нем технологией; эта особенность затрудняет прогнозирование развития наступившего бедствия;
4. Выход аварии за пределы территории предприятия и действие остаточных факторов поражения;
5. Ликвидация последствий аварии и природных катастроф; устранение результатов действия опасных факторов, порожденных аварией или стихийным бедствием; проведение спасательных работ в очаге аварии или в районе стихийного бедствия и в примыкающих к объекту пострадавших зонах.
В настоящее время существуют два основных направления минимизации вероятности возникновения и последствий ЧС на промышленных объектах. Первое направление заключается в разработке технических и организационных мероприятий, уменьшающих вероятность реализации опасного поражающего потенциала современных технических систем. В рамках этого направления технические системы снабжают защитными устройствами — средствами взрывозащиты и пожарозащиты технологического оборудования, электрозащиты и молниезащиты, локализации и тушения пожаров и т. д.
Второе направление заключается в подготовке объекта, обслуживающего персонала, служб гражданской обороны и населения к действиям в условиях ЧС. Основной второго направления является формирование планов действий в ЧС, для создания которых нужны детальные разработки сценариев возможных аварий и катастроф на конкретных объектах. Для этого необходимо располагать экспериментальными и статистическими данными о физических и химических явлениях, составляющих возможную аварию; прогнозировать размеры и степень поражения объекта при воздействии на него поражающих, факторов различных видов.
5.4.2. Оценка пожароопасных зон.
Под пожаром обычно понимают неконтролируемый процесс горения, сопровождающийся уничтожением материальных ценностей и создающий опасность для жизни людей. Пожар может принимать различные формы, однако все они, в конечном счете, сводятся к химической реакции между горючими веществами и кислородом воздуха (или иным видом окислительных сред), возникающей при наличии инициатора горения или в условиях самовоспламенения. Образование пламени связано с газообразным состоянием веществ, поэтому горение жидких и твердых веществ предполагает их переход в газообразную фазу. В случае горения жидкостей этот процесс обычно заключается в простом кипении с испарением у поверхности. При горении почти всех твердых материалов образование веществ, способных улетучиваться с поверхности материала, и попадание в область пламени происходит путем химического разложения (пиролиза). Большинство пожаров связано с горением твердых материалов, хотя начальная стадия пожара может быть связана с горением жидких и газообразных горючих веществ, широко используемых в современном промышленном производстве. Для оценки пожароопасных зон используется табл.5.3 (из табл.3.2 [7]).
Категории помещений и зданий по пожарной и взрывной опасности
Таблица 5.3.
| Категория помещения | Характеристика веществ и материалов, находящихся (обращающихся) в помещении |
| А (взрывопожарная) | Вещества и материалы, способные. взрываться и гореть при взаимодействии с водой, кислородом воздуха или друг с другом в таком количестве, что расчетное избыточное давление взрыва в помещении превышает 5 кПа |
Б (взрывопожароопасная) |
Горючие пыли или волокна, легковоспламеняющиеся жидкости с температурой вспышки более 28 С, горючие жидкости в таком количестве, что могут образовывать взрывоопасные пылевоздушные или паровоздушные смеси, при воспламенении которых развивается расчетное избыточное давление взрыва в помещении, превышающее 5 кПа |
В1 — В4 (пожароопасные) |
Горючие и трудногорючие жидкости, твердые горючие и трудногорючие вещества и материалы (в том числе пыли и волокна), вещества и материалы, способные при взаимодействии с водой, кислородом воздуха или друг с другом только гореть при условии, что помещение, в котором они имеются в наличии или обращении, не относятся к категориям А или Б |
| Г | Горючие вещества и материалы в горячем, раскаленном или расплавленном состоянии, процесс обработки которых сопровождается выделением лучистой теплоты, искр пламени; горючие газы, жидкости и твердые вещества, которые сжигаются или утилизируются в качестве топлива |
| Д | Негорючие вещества и материалы в холодном состоянии |
5.4.3. Средства локализации и тушения пожаров.
К основным видам техники, предназначенной для защиты различных объектов от пожаров, относятся средства сигнализации и пожаротушения. Пожарная сигнализация должна быстро и точно сообщать о пожаре с указанием места его возникновения. Наиболее надежной системой пожарной сигнализации является электрическая пожарная сигнализация. Наиболее совершенные виды такой сигнализации дополнительно обеспечивают автоматический ввод в действие предусмотренных на объекте средств пожаротушения.
Комплекс мероприятий, направленных на устранение причин возникновения пожара и создание условий, при которых продолжение горения будет невозможным, называется пожаротушением. Для ликвидации процесса горения необходимо прекратить подачу в зону горения либо горючего, либо окислителя, или уменьшить подвод теплового потока в зону реакции. Это достигается:
· сильным охлаждением очага горения или горящего материала с помощью
· веществ (например воды), обладающих большой теплоемкостью;
· изоляцией очага горения от атмосферного воздуха или снижением концентрации кислорода в воздухе путем подачи в зону горения инертных компонентов;
· применением специальных химических средств, тормозящих скорость реакции окисления;
· механическим срывом пламени сильной струей газа или воды;
· созданием условий огнепреграждения, при которых пламя распространяется через узкие каналы, сечение которых меньше тушащего диаметра.
Для достижения вышеуказанных эффектов в настоящее время в качестве средств тушения используют:
· воду, которая подается в очаг пожара сплошной или распыленной струей;
· различные виды пен (химическая или воздушно-механическая), представляющих собой пузырьки воздуха или углекислого газа, окруженные тонкой пленкой воды;
· инертные газовые разбавители, в качестве которых могут использоваться углекислый газ, азот, аргон, водяной пар, дымовые газы и т. д.;
Вода является наиболее широко применяемым средством тушения.
В данном дипломном проекте рассматривается предприятие общей площадью S = 1800 м2 .На территории предприятие находится сварочный участок, в подвальном помещении водонагревательный котел с дизельными горелками, производственный цех, административный этаж и др.
Опасность возможных зон радиоактивных облучений исключается, в виду их отсутствия. Определение категории помещений н зданий по пожарной и взрывной опасности происходит по табл.5.2
Площадь сварочного участка (по пожарной и взрывной опасности, относящегося к категории А) S = 40 м2 ,что соответствует 0.2% от общей площади производственного здания.
Площадь помещения с водонагревательным котлом (Категории – Г) ‑ S =40 м2 , это 0.2% от18 общей площади производственного здания.
Тем самым относим данное предприятие, по пожарной и взрывной опасности к категории Д. Вместе с этим предприятие оснащено пенными огнетушителями, которые находятся на каждом участке и системой пожарного водоснабжения
5.4.4. Дерево причин и опасностей .
Одним из определяющих безопасность методов является метод прогнозирования чрезвычайных ситуаций. При этом сложность заключается в том, что требуется оценить район, характер и масштабы чрезвычайных ситуаций в условиях неполной и ненадежной информации, а на их основе ориентировочно определить характер и объем работ по ликвидации последствий ЧС. В качестве примера рассмотрим отказ выключателя как одну из наиболее вероятных чрезвычайных ситуаций.
Рис.5.1 Дерево причин и опасностей
А – отказ выключателя
Б – отказ работы привода
В – отказ работы станции управления
Г – отказ электромагнитного привода
1 – заклинивание контактов контактора
2 – неисправность блокконтактов
3 – обрыв в цепях управления
4 – просадка отключающей пружины
5 – заклинивание подвижного контакта
6 – неисправность датчика тока
7 – неправильное подключение цепей управления
Безопасность деятельности одна из важных сторон научных и практических интересов человечества. Человек всегда стремится обеспечить свою безопасность. С развитием промышленности эта задача потребовала специальных знаний. Так при разработке и производстве данного аппарата нужны высококвалифицированные кадры.
При соблюдении всех правил норм при производстве и эксплуатации данного вида аппаратов его можно сделать практически безопасным.
По результатам проделанной работы можно сделать следующие выводы:
1. Проектируемый выключатель, по сравнению со своими предшественниками, меньше по габаритам, что в свою очередь привело к высоким технико-экономическим показателям: меньше затраты на материалы, и как результат низкая себестоимость аппарата. Удалось снизить стоимость продукции, что приведет к большему спросу на товар (выключатель).
2. С точки зрения безопасности – аппарат никакой опасности для пассажиров троллейбуса не представляет. Угрозы для водителя также нет, так как управление им осуществляется дистанционно;
3. За счет уменьшения габаритов удалось достичь еще большего быстродействия выключателя, что снижает максимальные значения аварийных токов в сетях питания троллейбусного транспорта;
4. Аппарат, в отличии своего прежнего аналога, может работать в составе с системами устройств защитного отключения (УЗО), для защиты от токов утечки на корпус троллейбуса. Как следствие, защита пассажиров от поражения электрическим током в момент посадки – высадки, при нарушении изоляции в высоковольтной силовой цепи троллейбуса.



Рис.3
1. Брон О.Б. Низковольтные электрические аппараты. М: ВИНИТИ,1958.
2. Буткевич Г.В, Дегтярь В.Г, Сливинская А.Г. Задачник по электрическим аппаратам. М: Высшая Школа, 1987.
3. Голубев А.И. Выключатели автоматические быстродействующие. Л-М: Энергия,1964.
4. Кузнецов Р.С. Аппараты распределения электрической энергии на напряжение до 1000 В. М: Энергия, 1970.
5. Сахаров П.В. Проектирование электрических аппаратов. М: Энергия, 1971.
6. Безопасность жизнедеятельности. Учебник для вузов. Под общ. ред. С.В. Белова. М.: Высшая Школа.1999.
7. Безопасность жизнедеятельности. Под ред. О. Н. Русака. Л.,1991.
8. Таев И.С. Электрическая дуга в аппаратах низкого напряжения. Л-М: Энергия, 1965.
9. Чунихин А.А. Электрические аппараты. М: Энергоатомиздат, 1988.
10. Кукин П.П. Безопасность жизнедеятельности. Безопасность технологических процессов и производств (Охрана труда).М.,1999.
11. Методические указания по экономическому обоснованию дипломных проектов. Ханин В.В. Свердловск. 1982.
12. Проектирование электрических аппаратов. Под ред. Проф. Г.Н. Александров. Л.: Энергоатомиздат,1985.
13. Справочник по электрическим аппаратам высокого напряжения. Под ред. В.В. Афанасьева. Л: Энергоатомиздат, 1987.
14. Теория электрических аппаратов: Учебник для вузов. Г.Н. Александров, В.В. Борисов и др.; Под ред. Проф. Г.Н. Александрова.СПб.:2000.
15. Электрические и электронные аппараты: Учебник для вузов. Под ред. Ю.К. Розанова. М.: Энергоатомиздат,1998.
16. Юдин Е.Я. Охрана труда в машиностроении. М.: Машиностроение.1983.
17. ГОСТ 1516.1-
18. ГОСТ 9219-88 Аппараты электрические тяговые
19. ГОСТ 2585-81 Выключатели автоматические быстродействующие постоянного тока. Общие технические условия. Взамен. ГОСТ 2585-69; Введ. 01.01.83. С: издательство стандартов, 1987.
20. ГОСТ 12.1.005-88
21. ГОСТ 12.1.006-84
22. ГОСТ 12.1.003-83 ССБТ. Шум. Общие требования безопасности.
23. ГОСТ 12.1.029-80 ССБТ. Средства и методы защиты от шума.
24. ГОСТ 12.1.012-90 ССБТ. Вибробезопасность.
25. ГОСТ Р22.0.02-92
26. СНиП 23.05-95 Строительные нормы и правила. Нормы проектирования. Естественное и искусственное освещение. Минстрой РФ.