| Скачать .docx |
Реферат: Разработка конструкции ШИ -стабилизатора тока
КАЗАНСКИЙ ГОСУДАРСТВЕННЫЙ ТЕХНИЧЕСКИЙ УНИВЕРСИТЕТ
ИМЕНИ А. Н. ТУПОЛЕВА
Кафедра конструирования и производства микроэлектронной аппаратуры
Разработка конструкции ШИ -стабилизатора тока
Расчетно-пояснительная записка к курсовой работе
по дисциплине
Основы эргономики и дизайна
Руководитель : Ю.И. Фетистов
Выполнил: студент группы 5403 Гарипов Р.Р.
Казань 2008 г.
Реферат
В данной курсовом проекте составлен набор документации, состоящий из схемы электрической принципиальной и перечня элементов, чертежа общего вида и электромонтажного чертежа. Также в таблицы соединений начальных и конечных пунктов проводов, их марок и диаметров сечения. Обоснованно выбран способ конструирования, конструкция корпуса прибора, состав лицевой панели.
В работе были произведены следующие расчеты:
- печатных плат, выбор коэффициента заполнения элементов на печатной плате,
- расчет внутренних размеров корпуса,
- размеров функциональных групп на надписей,
- расчет размеров лицевой панели.
Рисунок прибора представлен в приложении.
Содержание
Введение 7
1. Анализ задания 9
2. Обоснование выбора конструкции 12
2.1. Выбор конструкции корпуса прибора 12
2.2. Состав лицевой панели прибора 15
3. Расчетная часть 17
3.1. Расчет платы печатной 19
3.2. Определение внутренних размеров корпуса 22
3.3. Расчёт размеров надписей 24
3.4. Расчет размеров функциональных групп 25
3.5. Расчет размеров лицевой панели 28
Заключение 30
Список литературы 31
Приложение 1. Рисунок прибора 32
Приложение 2. СЭП 33
Приложение 3. Перечень элементов 35
Приложение 4. Таблица общего вида 37
Приложение 5. Таблица соединений 38
Введение
В мире радиоэлектроники существует большое количество различных стабилизаторов тока.Одним из разновидностей таких устройств является ШИ-стабилизатор тока разрабатываемый в данной курсовой работе.
В настоящее время импульсные стабилизаторы благодаря своей высокой экономичности и оптимальным массо-габаритным показателям вытесняют устройства линейного регулирования. Один из эффективных способов регулирования напряжения и мощности на нагрузке – широтно-импульсное (ШИ) управление,когда частота импульсов остается неизменной, а варьируется их скважность. Именно так регулируется выходное напряже-ние в большинстве импульсных источнико питания, в том числе и самых современных телевизионных приемниках и другой аппаратуре. Тем не менее существуют устройства, где необходимо стабилизировать не напряжение, а ток в нагрузке – нити накаливания (подогревателя) в кинескопе и осветительных приборах, при управление процессами гальванизации и электролиза и для зарядки автомобильных аккумуляторных батарей.
Описываемый ШИ-стабилизатор тока может быть использован при решении перечисленных задач.
1.Анализ задания
Прибор является переносным, поэтому к корпусу источника питания предъявляются такие требования как: малогабаритность, легкость, прочность. Для обеспечения этих требований выбирается металлический корпус. Материал выбираем КП8- толщина 0.7 мм.
Анализ элементной базы:
В стабилизаторе тока применены постоянные резисторы С3:33; подстроечные резисторы R2 и R13 – СП3-38б.Резистор R11 может быть либо самодельный проволочный, либо заводского и изготовления мощностью не менее 4 Вт. Конденсатор С2 – К50-35, остальные – керамические К10-17-1б, возможна их замена на КМ, КЛС и др. Дроссель L1 – высокочастотный – ДМ-0,2 индуктивностью от 60 до 200 мкГн. Стабилитрон VD1 – любой с напряжением стабилизации 12…14 В. Светодиод HL1 желательно выбрать с красным цветом свечения: АЛ307А, АЛ307АМ, АЛ307Б, АЛ307БМ или серии АЛ102, а светодиод HL2 – зеленным или желтым: АЛ307В – АЛ307Е. Вместо микросхемы К561ТР2 можно установить К564ТР2, если с помощью пинцета предварительно отформовать ее выводы .Однопереходный транзистор – КТ117 с любым буквенным индексом;в крайнем случае его можно заменить на общеизвестный аналог из двух маломощных кремниевых транзисторов различной структуры. Транзисторы КТ208А и КТ312В заменимы на приборы серий КТ361, КТ3107 и КТ3102 соответственно,с любым буквенным индексом. По коэффициенту усиления подборка транзисторов не требуется. Мощный составной транзистор КТ825 тоже может быть с любым индексом, но если их несколько, желательно после измерений выбрать с наименьшим напряжением насыщения коллектор – эмиттер при токе коллектора 3…6 А.
В приборе будет одна печатная плата. Стабилизатор напряжения будет сильно нагреваться, его теплоотводом будет задняя стенка прибора.
Заполним таблицу элементов:
Таблица 1. Таблица элементов
| Позиционное обозначение | Тип | Позиционное обозначение | Тип |
| С2 | К50-35 | T1 | ТП-201 |
| С1-С7 | К10-17 | VD1 | Д814Д |
| DD1 | K561TP2 | VD2 | КС133А |
| HL1 | АЛ307А | VD3 | КД 521А |
| FU1 | ВПБ6-1 (0,5А) | VT1 | КТ117А |
| R1,R3-R12,R14-R22 | C2-33 | VT2,VT8,VT9 | KT312B |
| R2 | СП3-38А | VT3-VT7 | KT208A |
| R13 | СП4-1б | XS1-XS4 | КП-1А |
| L1 | ДМ-0.2 | ||
| SA1 | ВК-42 10А |
Исходя из работы схемы и анализа работы оператора с прибором, можно определить функции прибора.
Таблица 2. Таблица функций(инструментальная)
| № | Функция | Органы управления |
Индикаторы | Надписи | ||||
| Подготовка к работе и работа | ||||||||
| 1 | Собрать схему | |||||||
| 2 | Проверка предохранителей | Держатель предохранителя FU1: ДВП4-2 |
- | ‘ 0,5 А’ | ||||
| 3 | Присоединение к сети | Шнур питания | - | “220В” | ||||
| 4 | Включение прибора | Переключатель SA1: ВК-42 10А |
При этом загорается индикатор, встроенный в кнопку | «Сеть» | ||||
| 5 | Калибровка | Переменный резистор R13 СП4-1б |
Светодиод HL2 АЛ307А |
Калибровка |
||||
| Работа | ||||||||
| 6 | Переключение режимов | Переключатель SA2: ВК-42 10А |
При этом загорается индикатор | КАЛИБР/ДИАПАЗОН | ||||
| 7 | Установка диапазонов | Переключатель диапазонов ПР2-5П2Н |
«10», «50» , «500» |
«10», «50» , «500» ДИАПАЗОН |
||||
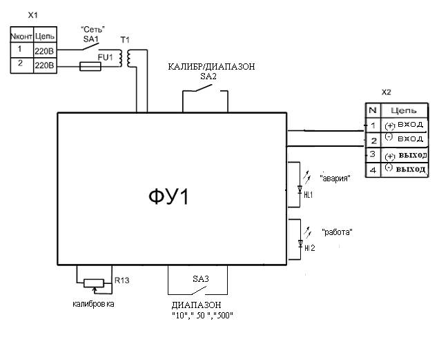
Исходя из принципа работы прибора, составлена схема электрическая функциональная
Рис. 1: Схема электрическая функциональная
На основании таблицы функций составить сортировочную таблицу.
Таблица № 3 Сортировочная таблица
Элемент |
Размещение |
Размер внутренний | Размер внешний | ||||||
| ЛП | ЗП | Внут | X | Y | Z | X | Y | Z | |
Переключатель “Сеть” SA1: ВК-42 10А |
+ | 8 | 24 | 16,5 | 10 | 27 | 5 | ||
Держатель предохранителя “0,5A” FU2: ДВП4-2 |
+ | 8 | 8 | 15 | 8 | 8 | 4 | ||
Держатель светодиода RTF 5010 |
+ | 8 | 8 | 10 | 10 | 10 | 2,5 | ||
Трансформатор питания Т1: ТП-201 |
+ | 63,5 | 66 | 64 | - | - | - | ||
Переменный резистор “Калибровка” R13: СП4-1б |
+ | 16 | 16 | 20 | 20 | 20 | 18 | ||
Клеммы “вход” XS1, XS2:КП-1 |
+ | 10 | 10 | 18 | 14 | 14 | 18 | ||
Клеммы “выход” XS3, XS4: КП-1 |
+ | 10 | 10 | 18 | 14 | 14 | 18 | ||
Переключатель SA2: ВК-42 10А |
+ | 8 |
24 |
16,5 |
10 |
27 |
5 |
||
Переключатель диапазонов ПР2-5П2Н |
+ | 16 | 16 | 20 | 20 | 20 | 18 | ||
2. Обоснование выбранного конструирования.
2.1. Выбор варианта конструкции корпуса .
Рассмотрим теперь какие варианты корпуса могут использоваться при конструирования устройства и выберем наиболее оптимальную форму. Выбор формы будет осуществляться согласно заданию, т.е. из расчета хорошей ремонтопригодности, возможности перевозить всеми видами транспорта без каких либо негативных последствий.
Но специфика данного прибора накладывает некоторые другие условия. Прежде всего, оно должно быть максимально привлекательным с точки зрения дизайна, удобным в использовании, т.е. занимать по возможности меньшее пространство.

Рис. 2 Варианты формы корпуса.
Вариант корпуса на рис. 2.1 характеризуется прямоугольным корпусом и малой высотой. В таком корпусе печатные платы лучше расположить в горизонтальном положении. Трансформатор будет расположен на одной половине прибора, а печатная плата и остальные органы управления с другой стороны, это сделано для сохранения центра тяжести в центре прибора. Это улучшает устойчивость конструкции.
Вариант корпуса на рис. 2.2. В этом корпусе плата размещена вертикально и крепится на боковой стенке. На дне стоит трансформатор. В нижней части лицевой панели расположены клеммы, затем выше органы управления . Таким образом основной вес прибора расположен в нижней его части. Данная конструкция меньше остальных вариантов по ширине и длине, но значительно превосходит их по высоте. Из недостатков: стабилизатор с такой высотой и достаточно маленьким основанием не обладает хорошей устойчивостью.
Корпус на рис. 2.3. Такая форма корпуса хороша для переноски, сверху будет ручка. Печатная плата и трансформатор расположены в одну линию. Данная конструкция устойчива, но габариты ее велики. Поскольку на лицевой панели большое количество элементов управления, лицевая панель будет широкой, и по краям прибора будет много свободного места.
Наиболее предпочтительным вариантом выглядит корпус на рисунке 2.1.
Рассмотрим детальнее выбранный вариант конструкции и составные части прибора. Конструкция прибора приведена на рис. 3.
Корпус источника выполнен в форме коробки, состоящей из деталей: лицевой и задней панели ,нижней и верхней крышки, стяжки, шасси и ручкой для переноски. Крепление происходит за счет гаек и болтов, расположенных в боковых ответвлениях задней и лицевой панелях. Печатная плата крепится на шасси винтовым соединением. При снятии крышки перед потребителем предстают все элементы прибора. Шнур питания крепится на специальном фиксаторе . Он надежно сжимает шнур, не давая ему смещаться.



Рис №3. состав и конструкция корпуса.
2.2. Состав лицевой панели
Варианты компоновки лицевой панели приведены на рис 5-7. При разработке лицевой панели следует стремиться получить равновесие форм и удобство пользования прибора.

Рис.5 Вариант лицевой панели.

Рис.6 Вариант лицевой панели.

Рис.7 Вариант лицевой панели.
Лицевая панель на рис № 5 является представителем симметричных лицевых панелей. Площадь элементов слева равна площади справа. Органы регулировки (переменный резистор и кнопки) отделены от опасного места клемм напряжения. Следствием будет увеличение габаритов прибора.
Рассмотрим рисунок №6. является представителем ассиметричных лицевых панелей. Данная лицевая панель хороша тем, что в одной ее части находятся элементы управления, а в другой клеммы питания Ручка калибровки находится слева, при регулировании выходного напряжения рука не будет заслонять показания светодиодов.
Вариант лицевой панели на рисунке 7 также ассиметричный. Ручка амплитуды расположена в центре лицевой панели, это облегчает регулировку выходного тока. Но переменный резистор расположен слишком близко к клеммам, а также при регулировке рукой будут заслоняться показания светодиодов. Все элементы управления расположены в две линии, что увеличивает эстетические свойства лицевой панели. Сетевой переключатель расположен в левом вернем углу для удобства ее включения.
Я выбираю лицевую панель, показанную на рисунке №7. Исходя из особенностей прибора, габариты его будут меньше при такой расстановке.
3.Расчетная часть
3.1 Расчет платы печатной
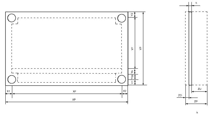
Покажем размещение и размеры областей на печатной плате 
Рис.12
Краевые поля X1,X2,Y1,Y2 – необходимые для удобства изготовления и закрепления платы. Размеры краевых полей X1,X2,Y1,Y2 выбираются, прежде всего, исходя из способа закрепления платы в приборе. Крепление осуществляется винтами, значит в месте установки винтов размеры полей должны превышать диаметр головки винта, а в остальных местах ширина поля выбирается кратной шагу координатной сетки.
Для платы был выбран шаг координатной сетки 2,5 мм.
Для обеспечения минимизации размеров печатной платы, а следовательно, и всего прибора выберем X1=X2=Y2=2,5мм. Y1= 0.2 мм.
Определим размер зоны присоединения, на которой размещаются контактные площадки, обеспечивающие электрическое соединение с внешними цепями.
Xпр = N*DK1+(N+1)*SZпр = 17*1,8+(17+1)*0,7 = 35,7 мм.
Yпр = DK1+6* Tпп = 1,8+6*1 = 7,8 мм.
Теперь определим размеры коммутационной зоны, на которой дорожки подходят к краю платы
YK=(N-1)*XA/2+SZ(N+1)/2=(17-1)*0,5/2 +0,7*(17+1)/2 = 8,5 мм.
XK = YF
Функциональная область XF*YF=SF, где размещаются элементы электрической схемы и соединительные проводники.
Итак, чтобы определить размеры ФУ, нужно:
Выписать из справочника размеры элементов XU, YU, ZU, Z0 и занести их в таблицу.
Таблица 5. Установочные размеры элементов
№ |
Позиционное обозначение | Название элемента | ВарУст | Кол-во (N) | Установочные размеры | SE, мм2 |
|||
| ZO | XU | YU | ZU | ||||||
| 1 | С2 | К50-22 | 180 | 1 | 1 | 21 | 21 | 42 | 441 |
| 2 | С1-С7 | К10-17 | 180 | 6 | 1 | 3.2 | 4 | 12 | 72 |
| 3 | DD1 | K561TP2 | 330 | 1 | 1 | 50 | 15 | 3 | 750 |
| 4 | R1,R3-R12,R14-R22 | C2-33 | 140 | 20 | 1 | 10 | 2 | 3 | 400 |
| 5 | R2 | СП3-38А | 390 | 1 | 1 | 8 | 5 | 5,2 | 40 |
| 6 | L1 | ДМ-0.2 | 140 | 1 | 1 | 34 | 14 | 13 | 476 |
| 7 | VD1 | Д814Д | 390 | 1 | 1 | 15 | 7 | 10 | 105 |
| 8 | VD2 | КС133А | 390 | 1 | 1 | 15 | 7 | 10 | 105 |
| 9 | VD3 | КД 521А | 390 | 1 | 1 | 4 | 2 | 4 | 8 |
| 10 | VT1 | КТ117А | 190 | 1 | 1 | 7 | 6 | 13.5 | 42 |
| 11 | VT2,VT8,VT9 | KT312B | 190 | 3 | 1 | 7.3 | 7.3 | 30 | 157 |
| VT3-VT7 | KT208A | 190 | 5 | 1 | 6 | 7 | 13.5 | 210 | |
| Итого | ZUmax | 42 | 1631 | ||||||
Площадь всех элементов на плате SE = 1631 мм2
Размеры печатного узла по третьей координате Z образуется размерной цепью.
ZP = ZU+h+ZO = 42+1+1= 44мм
ZU = max(ZU1 ,…,ZUk )
ZO = max(ZO1 ,…,ZOk )
h - толщина материала платы
ZUk ,ZOk – высота монтажа элементов с обоих сторон платы (установочные размеры).
Для печатной платы выбран материал СФ2-35-1. Это стеклотекстолит фольгированный двухсторонний. Толщина фольги равна 35 мкм, толщина платы 1мм. Метод изготовления комбинированный.
С учетом зазоров между элементами, общая площадь для элементов электрической схемы можно представить как площадь функциональной поверхности SF:
SF = SE / CZ
CZ – коэффициент заполнения (0,1<CZ<0,2 при наличии микросхем)
Для определения размеров функциональных областей необходимо ввести коэффициент формы платы CF.
CF = XF. YF = (1…3)
XF = √ (SF. CF)
YF = √ (SF / CF)
Вычислим площадь функционального узла SF и найдем размеры печатного узла при различных коэффициентах заполнения CZ и коэффициентах формы CF:
На моей печатной плате одна коммутационная область, поэтому размеры печатного узла находятся по следующим формулам:
XP = X1+XF +X2
YP = Y1+YF+YK1+Yпр+Y2
Таблица 6. Размеры печатных плат
| CZ | CF | XF | XP | XP округл. | YF | XP | YP округл. |
0,1 |
1,25 | 192,8 | 203 | 210 | 134,2 | 144 | 150 |
| 1,5 | 206,4 | 206 | 210 | 124,3 | 134 | 140 | |
| 1,75 | 240,9 | 249 | 250 | 116,5 | 127 | 140 | |
| 2 | 230,6 | 231 | 240 | 110,3 | 120 | 120 | |
0,15 |
1,25 | 166,6 | 177 | 180 | 93,3 | 103 | 105 |
| 1,5 | 177,7 | 188 | 190 | 85,1 | 95 | 100 | |
| 1,75 | 187,9 | 148 | 150 | 78,8 | 89 | 90 | |
| 2 | 207,5 | 207 | 210 | 73,7 | 84 | 90 | |
0,2 |
1,25 | 151,0 | 161 | 170 | 80,8 | 91 | 100 |
| 1,5 | 160,6 | 17 0 | 180 | 73,7 | 84 | 90 | |
| 1,75 | 169,5 | 179 | 180 | 68,3 | 78 | 80 | |
| 2 | 177,7 | 188 | 190 | 63,9 | 74 | 80 |
Наиболее оптимальным для данной платы будет выбор CZ=0,2 и CF=1,5.
При таких параметрах CF,CZ плата имеет наименьшие размеры.Такой коэффициент формы выбран для того чтобы эта печатная наилучшим способом вписалась во внутреннюю компоновку элементов в корпусе. Окончательные размеры платы согласно ОСТ 4.010.020-83. составят:
XP1хYP1xZP1 = 180х90х44 мм.
3.2.Определение внутренних размеров корпуса
Определим внутренние размеры корпуса, внутри которого размещены печатная плата и трансформатор. Размеры печатных плат А1: XP1´YP1´ZP1 = 180х90х44мм. Составим компоновочный рисунок прибора.

Рис.13 Компоновочная модель корпуса. Вид сверху.
Рис.14 Компоновочная модель корпуса. Вид сбоку.
По данным сортировочной таблицы (см таблица 3) можно определить максимально выступающие элементы, которые будут влиять при расчетах зазоров внутри корпуса.
При механической сборке зазор можно представить в виде совокупности слагаемых:
где GZ - гарантированный зазор (GZ = 2+ 0,5 мм)
Xi, Xi+1 - допуски на размеры Xi, Xi+p (если рассматривают зазор между деталью и корпусом, то второй деталью считают корпус без зазоров)
Xi = 0, 01×Xi
Xip, X(i+1)p - допустимый прогиб i и i+1 частей
Xip = 0,01×max (Yi,Zi)
Для расчета зазоров находятся приближенные размеры корпуса при условии равенства нулю зазоров между частями прибора.
Корпус без зазоров:
XK= XP1+XR= 170+31= 201 мм.
ZK = max(ZT;ZP1)=max(30+13; 31+40) = 71 мм.
YK = max(YP1+YT;YR+YSB+YSB+YSA)=max(90+63,5; 40+10+10+10) =
= 153,5мм.
Ширина
X1 X2
| Обозн | Формула | Результат | Обозн | Формула | Результат |
| GZ | 2 | GZ | 2 | ||
| 0,01XP1 | 1,2 | 0,01XP1 | 1,2 | ||
| 0,01YP1 | 0,9 | 0,01YP1 | 0,9 | ||
| 0,01XK | 1,51 | 0,01XR | 0,31 | ||
| 0,01YK | 1,53 | 0,01ZR | 0,4 | ||
| Итого 7,14 | Итого 4,81 | ||||
Длина
Y1 Y2 Y3
| Обозн | Формула | Результат | Обозн | Формула | Результат | Обозн | Формула | Результат |
| GZ | 2 | GZ | 2 | GZ | 2 | |||
| 0,01YP1 | 2,9 | 0,01YP1 | 2,9 | 0,01YT | 0,63 | |||
| 0,01XP1 | 2,2 | 0,01XP1 | 2,2 | 0,01XT | 0,66 | |||
| 0,01YK | 2,53 | 0,01YT | 1,63 | 0,01YK | 1,53 | |||
| 0,01XK | 2,51 | 0,01XT | 1,66 | 0,01XK | 1,51 | |||
| Итого 11,14 | Итого 10,39 | Итого 6,33 | ||||||
Y4 Y5 Y6
| Обозн | Формула | Результат | Обозн | Формула | Результат | Обозн | Формула | Результат |
| GZ | 2 | GZ | 2 | GZ | 2 | |||
| 0,01YFU | 0,08 | 0,01YR | 0,4 | 0,01YPA | 0,4 | |||
| 0,01ZFU | 0,15 | 0,01ZR | 0,4 | 0,01ZPA | 0,4 | |||
| 0,01YFU | 0,08 | 0,01YK | 1,53 | 0,01YSB | 0,22 | |||
| 0,01ZFU | 0,15 | 0,01XK | 1,51 | 0,01ZSB | 0,23 | |||
| Итого 2,46 | Итого 5,84 | Итого 3,12 | ||||||
Y7 Y8 Y9
| Обозн | Формула | Результат | Обозн | Формула | Результат | Обозн | Формула | Результат |
| GZ | 2 | GZ | 2 | GZ | 2 | |||
| 0,01YSB | 0,22 | 0,01YSB | 0,22 | 0,01YSA | 0,1 | |||
| 0,01ZSB | 0,23 | 0,01ZSB | 0,23 | 0,01XSA | 0,27 | |||
| 0,01YSB | 0,22 | 0,01YSA | 0,1 | 0,01YK | 1,53 | |||
| 0,01ZSB | 0,23 | 0,01XSA | 0,27 | 0,01XK | 1,51 | |||
| Итого 2,64 | Итого 2,74 | Итого 5,41 | ||||||
Высота
Z1=Z2 Z3 Z4=Z5
| Обозн | Формула | Результат | Обозн | Формула | Результат | Обозн | Формула | Результат |
| GZ | 2 | GZ | 2 | GZ | 2 | |||
| 0,01ZP2 | 0,44 | 0,01ZT | 0,64 | 0,01ZR | 0,4 | |||
| 0,01XP2 | 1,2 | 0,01XT | 0,66 | 0,01YR | 0,4 | |||
| 0,01ZK | 0,71 | 0,01ZK | 0,71 | 0,01ZK | 0,71 | |||
| 0,01YK | 1,53 | 0,01YK | 1,53 | 0,01YK | 1,53 | |||
| Итого 5,88 | Итого 5,54 | Итого 5,04 | ||||||
В итоге получим следующие округленные значения:
| X1 | X2 | |||||||
| 8 | 5 | |||||||
| Y1 | Y2 | Y3 | Y4 | Y5 | Y6 | Y7 | Y8 | Y9 |
| 12 | 11 | 7 | 4 | 7 | 4 | 4 | 4 | 6 |
| Z1 | Z2 | Z3 | Z4 | Z5 | ||||
| 7 | 7 | 6 | 6 | 6 |
Размеры корпуса:
YK= max(Y1+ YP1+ Y2+YT+Y3; Y5+YR+Y6+YSB+Y7+YSB+Y8+YSA+Y9) = max(12+90+11+63,5+7; 7+40+4+10+4+10+4+10+6) =
max(165,45; 89,75) = 166 мм.
XK= X1+XP1+ X2+ XR = 12+170+6+31 =213 мм.
ZK= max(Z1+ZP1+Z2; ZT+Z3; Z4+ZR+Z5) =
= max(7+44+7; 64+6;6+40+6) = max(55,76; 69,54; 50,08) = 70 мм.
Окончательно после округления и придерживаясь рекомендованного стандарта ГОСТ 6636-68 и размерного ряда Ra20 мы получаем размеры корпуса´180х80х220 мм.
3.3.Расчёт размеров надписей
Для расчетов размеров лицевой панели необходимо произвести расчет функциональных групп. Так как все группы содержат надписи, произведем расчет их размеров. Для выполнения надписей на приборах наиболее распространенным является прямой рубленный шрифт ГОСТ 2330-76.
L – расстояние до символа
β – угловой размер символа
t – толщина обводки
XS - ширина символа
YS- высота символа
Высота буквы YS определяется как YS >
*L.
- зависит от сложности.
Расстояние L обычно выбирают, исходя из возможности оператора дотянуться рукой до регулятора, не сходя с места. Средняя величина составляет (500 ±200)мм. Расстояние рекламных надписей Lрек=1±0,5м.
Коэффициент формы характеризуется CF = XS / YS.
СF = 0.65 ±0.05 – нормальное начертание (Н);
СF<= 0.6 – узкое начертание (У);
t- толщина обводки
Степень обводки: t/YS = 0.15 ±0.05 – светлое (НС);
Длина предложения рассчитывается по формуле:
XN= åXSi + (N-1) * t
Результаты вычислений в таблице
Таблица 7. Расчет надписей
| Надпись | L,мм | b, рад | Выс. шриф YS,мм | Толщ обвод.t, мм | Шир букв XS, мм | Кол. букв Nб |
Длина надп. XN, мм |
| STAR | 1000 | 21' | 10 | 1 | 6 | 4 | 27 |
| СЕТЬ | 400 | 21' | 4 | 0,6 | 2,4 | 4 | 11.4 |
| ВХОД | 400 | 33' | 6 | 0,6 | 2,4 | 4 | 11,4 |
| ВЫХОД | 400 | 33' | 6 | 0,6 | 2,4 | 5 | 14,4 |
| РАБОТА | 400 | 21' | 4 | 0,6 | 2,4 | 6 | 18 |
| АВАРИЯ | 400 | 21' | 4 | 0,6 | 2,4 | 6 | 18 |
| КАЛИБРОВКА | 400 | 21' | 6 | 0,6 | 2,4 | 10 | 29.4 |
| СТАБИЛИЗАТОР | 600 | 21' | 4 | 0.6 | 3.2 | 12 | 47.3 |
| ДИАПАЗОН | 400 | 33' | 6 | 0,6 | 2,4 | 8 | 24.4 |
| 10,50,500 | 400 | 21' | 4 | 0,6 | 2,4 | 10 | 31,4 |
| 0,5А | 400 | 21' | 4 | 0,6 | 2,4 | 3 | 8,4 |
| 220В | 400 | 21' | 4 | 0,6 | 2,4 | 4 | 11,4 |
3.4.Расчет размеров функциональных групп .
Минимальное расстояние между строчками надписи Yi выбирается из условия: Yi=0,5Ys. Также вычисляются краевые поля.
Расстояние по координате X между элементами функциональной группы, а также краевые поля выбираются по следующему принципу:
Ximin =Xs
Необходимо определить минимальные размеры функциональных групп для лицевой и задней панелей, представленных на рисунках .
Функциональная группа №1

XF1=X1+XN+X2=2,4+11,4+2,4=16,2 мм.
YF1=Y1+YN+Yi+YSA+Yi+YN +Y2= =2+4+2+27+2= 37мм
Функциональная группа №2

XF2= X1+XN+X2 = 2,4+19,4+2,4=24,2мм
YF2= Y1+ 2*YN +Y2+Y3+YSA+Y4 = 2+8+2+2+27+2=43 мм
Область аварийного включения
XF3=X1+ XN +X2 = 2,4+26,4+2,4=34,2 мм.
YF3=Y1+YN+Yi+ YHL+Y2=2+4+2+10+2 =25 мм
Область рабочего включения

XF4= X1+ XN +X2 = 2,4+26,4+2,4=34,2 мм.
YF4=Y1+YN+Yi+ YHL+Y2=2+4+2+10+2 =25 мм
Область калибровки

XF5= X1+ XN +X2 = 2,4+26,4+2,4=34,2 мм.
YF5=Y1+YN+Yi+ YHL+Y2=2+4+2+10+2 =25 мм
Область диапазон

XF6=X1+ XN +X2 = 2,4+36,6+2,4=41,4 мм.
YF6=Y1+YN+Yi+Yi+Yi+YR+Y2=2+4+2+2+2+20+2 =34 мм
3.5.Расчет размеров лицевой панели
Лицевая панель - основная рабочая поверхность, которая содержиТ несколько функциональных групп. Задача - определить размеры, занимаемые функциональными группами на лицевой панели. Эскиз лицевой панели приведен на рисунке. Составим компоновочную модель лицевой панели.

Рис.25 Компоновочная модель лицевой панели
Размеры, по которым определяются габариты лицевой панели, помещены в
таблицу
Таблица 8 Определение размеров лицевой панели
| XL, мм | YL, мм | ||
| Обозначение | Размер | Обозначение | Размер |
X1 XFG5 X2 XFG4 X3 XFG6 X4 XFG1 X5 |
10 28.8 10 34.6 10 28,8 10 27,8 10 |
Y1 YFG5 Y2 YFG2 Y3 |
10 25 10 25 10 |
| Итого 180 мм | Итого 80 мм | ||
Размеры Xiи Yi необходимы для разделения функциональных групп друг от друга, правильной компоновки групп на лицевой панели, а также это краевые поля. Они нужны, так как информация на самом краю лицевой панели будет плохо восприниматься.
Размеры лицевой панели немного меньше ранее рассчитанных размеров корпуса, поэтому просто увеличиваем краевые поля и расстояния между функциональными группами лицевой панели так, чтобы размеры лицевой панели совпадали с размерами корпуса.
В соответствии ГОСТ 6636-68 и размерного ряда Ra20 окончательные размеры корпуса равныXK´YK´ZK: 220´180´80 мм. Габариты же всего прибора вместе с ножками и ручкой для переноски составляют: 240´180´110мм.
Заключение
В данной работе произведена разработка конструкции СТАБИЛИЗАТОРА ТОКА. Были выполнены соответствующие расчеты и предоставлен сокращенный набор конструкторской документации.
Таким образом, на основании выполненной работы можно сделать следующие выводы:
- Выбрана и обоснована конструкция прибора, его форма, элементная база, материалы;
Размеры стабилизатора составляют 240´180´110мм.
- Выполнены расчеты размеров печатной платы (180х90х44мм), лицевой панели, корпуса прибора, подтверждающие правильность выбранного способа конструирования;
- Внешнее оформление прибора сделано в соответствии с нормами дизайна и эргономики;
- Подготовлен конструкторской документации согласно теме задания.
При разработке учтены технологические возможности сборки и разборки узлов прибора, доступ инструментов, ремонтопригодность.
Список используемой литературы
1. Лавренов О. П. Введение в конструирование радиоэлектронных средств. Казань: ОАО «Радиоприбор» , 2002г., 86с.
2. Ю.И.Фетистов, Лавренов О. П.,Самигуллина Г.Р. Проектирование и технология радиоэлектронных средств. Основы художественного конструирования радиоэлектронной аппаратуры. Казань. КАИ-КГТУ им А.Н.Туполева.2007г., 126с
3. Конденсаторы: Справочник/ под ред. И.И Четверткова, М. Н. Дьяконова, Радио и связь, 1993, 392с.
4. Резисторы: Справочник/ под ред. И.И Четверткова, М. Н. Дьяконова и др., Радио и связь, 1991, 528с.
5. Лавренов О. П., Гулин В. И. Методические указания по выполнению пояснительной записки к курсовому проекту: КАИ, 1988, 23с.
6. Полупроводниковые приборы: транзисторы. Справочник
Под ред. Горюнова, Москва, Энергоатомиздат 1985г.
7. Полупроводниковые приборы: диоды, тиристоры, оптоэлектронные приборы. Справочник. Под ред. Горюнова, Москва, Энергоатомиздат 1983г.
8. Электронный магазин радиоаппаратуры www.Platan.ru
9. ГОСТ 21937-91
10. Программный продукт «Полупроводниковые приборы№2» Справочник по отечественным и импортным полупроводниковым приборам
Авторы: Шульгина О.Б, Шульгин О.А., Воробьев А. Б.
Рисунок прибора
