| Скачать .docx |
Дипломная работа: Дипломная работа: Расчет спутниковой линии связи Алматы Лондон
Казахский энергетический университет
Кафедра Многоканальной Связи
Диплом
Расчет спутниковой линии связи Алматы -Лондон
Мазмұндама
Бүл диплом жобасында халықаралық корпоративтік байлаііыс жүйссі қарастырылады. Осы моселе дамыган нарықтық жағдайьшдагы бизнес саласында сеыімді сандық байланыс қажеттілігімен байланысты түсіндіріледі. Жобаның негізгі міндеті — Алматыдан тартылған радиожеліні Лондон арқылы отетін тікелсй халықаралық байланыс арнасына жеткізу.
Қарастырылған міндетті жүзеге асыру үшіІІ жобада жолсеріктік скі аралық өткіннен және ІКТ қызмст сту аймагынан түратыи жолссріктік жслі жоне радиорелсйлік жслінің өлпіемдсрі қарастырылады. Сондай-ақ, еңбекті қоргау жаіудайлары мсп орындаушылардың өмірлік әрекетінің қажеггі корссткіштсріне сссптелген бизнес-жоспар да қүрылган.
Аннотация
В данном дипломном проекте рассматриваются вопросы построения межгосударственной корпоративной системы связи и ее качественные показатели. Это обусловленно тем, что в условиях развивающегося рынка, как в сфере бизнеса, необходима надежная цифровая сеть связи. Задача проекта – разработать сеть связи от Алматы до прямых международных каналов связи через Лондон.
В проекте рассчитываются параметры спутниковой линии, радиорелейной линии, и зону обслуживания IRT. Расматриваются вопросы охраны труда и экологии, проведены технико – экономические расчеты подтверждающие верность решений.
Содержание
![]()
1 Анализ существующего положения . 8
2 Обоснования темы проекта. 13
3 Энергетический расчет спутниковой связи. 14
3.1 Исходные данные для проектирования . 14
3.2 Уравнения связи для двух участков. 17
4 Прохождение сигналов в системах космической связи. 22
4.1 Расчет ослабления уровня сигнала в атмосфере. 23
4.2 Расчет ослабления уровня сигнала, в зоне дождя. 26
5.2 Расчет мощностей передатчиков. 37
6. Расчет электромагнитной совместимости двух спутниковых систем. 38
7. Расчет РРЛ прямой видимости. 45
7.1.Построение профилей пролетов и определение минимального просвета 45
7.2 Расчет запаса на замирание. 48
7.3 Расчет времени ухудшения связи из-за дождя. 48
7.4 Расчет времени ухудшения связи, вызванного субрефракцией волн 50
7.5 Расчет времени ухудшения связи из-за многолучевого распространения. 51
8. Определение зоны обслуживания ЦС системы радиодоступа ІRТ-2000 54
9. Охрана труда и безопасность жизнедеятельности. 59
9.1. Меры безопасности при монтаже и эксплуатации антенны.. 59
9.2. Безопасность труда оператора при работе с ЭВМ.. 61
9.3 Расчет искуственного освещения . 63
9.4. Пожарная безопасность. 65
9.5 Расчет защитного заземления. 68
10.2 Характеристика проекта. 72
10.6 Сравнение данной системы с системой использующей кабельные соединения 83
Перечень принятых сокращений. 89
Введение
В условиях развивающегося рынка как в сфере телекоммуникаций, так и в сфере бизнеса необходима надежная цифровая сеть связи. Система радиодоступа и радиорелейное оборудование необходимо для непосредственного предоставления услуг потребителям, а спутниковая линия связи для выхода на прямые международные телефонные каналы связи через Лондон.
Возможность передачи информации с помощью искусственных спутников Земли (ИСЗ) появилась в 1957 г. после запуска в нашей стране первого ИСЗ. Успешный вывод на орбиту первых связных ИСЗ в 1960 - 1962 гг. положил начало созданию нового типа линий дальней радиосвязи и послужил основой для развития теории и практики спутниковой радиосвязи.
Следующий этап развития, связанный с запуском спутников «Молния» и «Еагlу Вігd» в 1965 г., ознаменовал переход от отдельных линий к системам спутниковой связи (ССС) и их практическому использованию.
Высокие технико-экономические показатели определили широкое внедрение в коммерческую эксплуатацию большого числа различных ССС. К концу 1985 г. только на геостационарной орбите (ГО) действовало более 110 спутников связи. Были созданы международные системы («Интелсат», «Интерспутник», «Инмарсат»), региональные ССС для групп государств и национальные системы в десятках государств мира.
Связь через ИСЗ заняла, таким образом, лидирующее положение среди других видов электросвязи. Это, прежде всего, объясняется высокой пропускной способностью линий спутниковой связи, большой экономической эффективностью передачи информации на большие расстояния, возможностью организации глобальной (всемирной) связи, а также простотой организации новых линий и направлений связи.
Сегодня спутники связи - неотъемлемая часть повседневной жизни и трудно представить нашу деятельность без них. Все страны мира связаны телефонной, телексной и факсимильной связью.
Особое значение развития спутниковой связи имеет для нашей страны, с ее громадной территорией, большими малоосвоенными регионами с невысокой плотностью населения, неразвитой инфраструктурой. Только с созданием ССС многие регионы могут получить надежные средства связи с центром и другими районами страны.
Первая в мире национальная ССС начала создаваться в СССР в 1965 г., когда впервые был осуществлен обмен телепрограммами между Москвой и Владивостоком через ИСЗ «Молния».
Происходящий в странах СНГ процесс демонополизации связи привел к появлению многих фирм-операторов, работающих через спутники и обеспечивающих соединения внутри выделенной сети, а также выход на сеть общего пользования и даже международные соединения. При этом на отечественном рынке и на отечественных сетях появились земные станции западного производства. Некоторые из операторов используют в своей работе емкости спутников международных организаций, таких как Intelsat, что и предлагается использовать в данном проекте.
1 Анализ существующего положения .
Международный консорциум спутниковой связи Іntelsat образован в 1964 г. Главной целью создания данной организации было обеспечение международных коммуникаций для всех стран на недискриминационной основе. Сегодня в организации 145 стран-подписантов и сотни других пользователей ее услуг [2]. Іntelsat сегодня предоставляет спутниковые коммуникации для передачи всех видов информации: речь, Іnternet, данные и видео. Через спутники системы Іntelsat размещенные группами над Атлантическим, Индийским и Тихим океанами, передается примерно 2/3 международного трафика и осуществляется почти весь ТВ обмен. Часть стволов сдается в аренду более чем 30 странам для организации национальных ССС [1]. За прошедшие годы были разработаны и эксплуатированы восемь поколений ИСЗ Іntelsat, каждый следующий
характеризовался применением технических новшеств и возрастанием пропускной способности.
Іntelsat владеет одной из самых мощных и надежных группировок спутников. Надежность находится в пределах 99,9 %. Наземный сегмент составляет более 2000 станций с диаметрами антенн от менее 1 м до 30м и более [2].
Іntelsat имеет группировку из 19 спутников, размещенных на геостационарной орбите : Іntelsat 5/5А, Іntelsat 6, Іntelsat 7/7А и Іntelsat 8/8А. Следующее поколение спутников серии Іntelsat 9 находится в разработке [2].
Структура данной системы связи приведена на рисунке 1.

Рисунок 1. - Структурная схема межгосударственной корпоративной системы связи.
На данном рисунке видно, что в качестве ретранслятора используется искусственный спутник земли системы Іntelsat.
Используемый в данном проекте в качестве ИСЗ спутник Іntelsat 804, то есть восьмой серии четвертого запуска, был выведен на орбиту ракетоносителем Аrіаnе 421 21 октября 1997 г. Введен в действие 21 декабря того же года. Размещен над Индийским океаном на геостационарной орбите— 64 в.д. Зона покрытия данного ИСЗ привидена в приложении А.
Все остальные данные по ИСЗ Іпtelsat804 превидены в исходных данных для проектирования.
Система радиодоступа ІКТ-2000, используется в случае, если абонент находится удаленно от основных кабельных магистралей. ІКТ-2000-это система типа точка-много точек разработанна главным образом для соединения изолированных абонентов с телефонной сетью.
Характеристики службы:
• Соединение телефонных (проводных или беспроводных ) и телеграфных
абонентов, а также абонентов передачи данных.
• Совместимость с ISDN.
• Качество обслуживания, соответствующее обеспечиваемому телефонными станциями.
• Сеть и оборудование могут быть развернуты быстро с большой
гибкостью.
Система IRT-2000 адаптирована для большого числа разнообразных приложений, включая сельские системы связи, специализированные городские сети передачи данных, ISDN, соединение и контроль морских платформ, инфраструктура связи подвижных радиосетей и сетей контроля.
Система IRT-2000 соединяет большую емкость с широкой зоной перекрытия. Абоненты могут быть соединены без существенного ограничения по дальности до 2000 км.
Система обеспечивает доступ абонента ко всем услугам, предлагаемыми самыми современными сетями связи, с прозрачностью для пользователя. Центральная станция соединяется с телефонной станцией цифровым 2 Мбит/с линиями. Каждый абонент соединяется с удаленной станцией (вблизи абонента) по проводной линии.
Субмодуль радиооборудования ТDМА центральной станции может быть удаленным, если этого требует топология сети. В этом случае станция делится на две части: телефонное оборудование в главной телефонной станции; удаленная радиостанция (RRS) в удаленной стороне сети. Эти два модуля могут быть связаны на скорости 2,048 Мбит/с по стандартному кабелю или радиолинии.
Рисунок 2. - Структурная схема сети использующейтолько кабельные соединения
Технологическое развитие привело к значительному уменьшению размеров ЗС. На начальном этапе спутник не превышал нескольких сотен килограммов, а ЗС представляли собой гигантские сооружения с антеннами более 30 метров в диаметре. Современные спутники весят несколько тонн, а антенны зачастую не превышают 1 метра в диаметре, могут быть установлены в самых разнообразных местах, тенденция уменьшения размеров ЗС вместе с упрощением установки оборудования приводит к снижению его стоимости. На сегодняшний день стоимость ЗС является, пожалуй, главной характеристикой, определяющей широкое распространение ССС. Преимущество спутниковой связи основано на обслуживании географически удаленных пользователей без дополнительных расходов на промежуточное хранение и коммутацию. Любые факторы, понижающие стоимость установки новой ЗС, однозначно содействуют развитию приложений, ориентированных на использование ССС. Относительно высокие издержки развертывания ЗС позволяют наземным волоконно-оптическим сетям в ряде случаев успешно конкурировать с ССС. Следовательно, главное преимущество спутниковых систем состоит в возможности создавать сети связи, предоставляющие новые услуги связи или расширяющие прежние, при этом с экономической точки зрения преимущество ССС обратно пропорционально стоимости ЗС.
В зависимости от типа, ЗС имеет возможности передача и/или приема. Как уже отмечалось, фактически все интеллектуальные функции в спутниковых сетях осуществляются в ЗС. Среди них - организация доступа к спутнику и наземным сетям, мультиплексирование, модуляция, обработка сигнала и преобразование частот. Отметим, что большинство проблем в спутниковой передаче решается оборудованием ЗС. В настоящее время выделяются четыре типа ЗС. Наиболее сложными и дорогостоящими являются ориентированные на большую интенсивность пользовательской нагрузки ЗС с очень высокой пропускной способностью. Станции такого типа предназначены для обслуживания пользовательских популяций, требующих для обеспечения нормального доступа к ЗС волоконно-оптических линий связи. Подобные ЗС стоят миллионы долларов. Станции средней пропускной способностью эффективны для обслуживания частных сетей корпораций. Размеры подобных сетей ЗС могут быть самыми разнообразными в зависимости от реализованных приложений (передача речи, данных, видео).
2 Обоснования темы проекта.
Для решения какой-либо технической задачи, поставленной перед предприятием, для воплощения в действия определенного проекта, необходимо перебрать все оптимальные варианты по внедрению идей проектировщиков «жизнь». Наиболее перспективными экономически выгодными являются сейчас радиолинейные системы передач. Это обусловлено тем, что в условиях развивающегося рынка, как в сфере телекоммуникаций, так и в сфере бизнеса необходима надежная цифровая сеть связи. Цифровая сеть связи от Алматы до прямых международных каналов связи через Лондон дает большую возможность для непосредственного представления услуг потребителя, а спутниковая линия связи для выхода на международные телефонные каналы связи. В дипломном проекте, ставится цель проверить качественные показатели межгосударственной корпоративной системы связи. Даная тема обусловлена тем, что была поставлена задача – рассчитать параметры спутниковой линии, радиорелейной линии, состоящую из двух пролетов и зону обслуживания ЦС систему радио доступа IRT .
Кроме того, в дипломном проекте, дается представление о целесообразности применения такой системы, с точки зрения технического обоснования и с экономической точки зрения, сравнения ее с системой использующей только кабельные соединения.
3 Энергетический расчет спутниковой связи.
3.1 Исходные данные для проектирования .
Линия спутниковой связи состоит из двух участков: Земля—спутник и спутник—Земля. В энергетическом смысле оба участка весьма напряженные.
Первый — из-за тенденции к уменьшению мощности передатчиков и упрощению земной станции, второй — из-за ограничений на массу, габаритные размеры и энергопотребление бортового ретранслятора, лимитирующих его мощность.
Основная особенность спутниковых линий — наличие больших потерь сигнала, обусловленных затуханием его энергии на трассах большой физической протяженности. Так, при высоте орбиты ИСЗ, равной 36 тыс. км., затухание сигнала может достигать 200 дБ [3]. Помимо этого основного затухания в пространстве, сигнал в линиях спутниковой связи подвержен влиянию большого числа других факторов. Таких как поглощение в атмосфере, рефракция, влияние дождевых осадков и т.д. С другой стороны, на приемное устройство спутника и земной станции кроме собственных флуктуационных шумов воздействуют разного рода помехи в виде излучения космоса, Солнца и планет. В этих условиях правильный и точный учет влияния всех факторов позволяет осуществить оптимальное проектирование системы, обеспечить ее уверенную работу в наиболее трудных условиях и в то же время исключить излишние энергетические запасы, приводящие к неоправданному увеличению сложности земной и бортовой аппаратуры. Нормы на некоторые качественные показатели спутниковых каналов (например, отношение сигнал-шум) имеют статистический характер. Это заставляет оценивать возмущающие факторы также статистически, т. е. при расчетах вводить не только количественную меру воздействия того или иного фактора, но и вероятность (частоту) его появления. Необходимо учитывать характер и число передаваемых сигналов, а также характер их преобразования (обработки) в спутниковом ретрансляторе. При передаче телефонных сигналов с многостанционным доступом через бортовой ретранслятор проходит несколько сигналов, разделенных по частоте, времени или форме и оказывающих взаимное влияние, которое должно учитываться при расчете энергетики спутниковых линий.
В настоящей главе приводится расчет спутниковой линии ЗС1 (Алматы) – ИСЗ (Іntelsat-804) - ЗС2 (Лондон) по участкам (3).
| Исходные данные для расчета: |
|
| Географическое расположение ЗС 1 (Алматы) |
|
| Широта (Север) |
43°13' |
| Долгота (Восток) |
76°54' |
| Отметка над уровнем моря |
+876 м |
| ЗС 2 (Лондон) |
|
| Широта (Север) |
51°30' |
| Долгота (Восток) |
0 |
| Отметка над уровнем моря |
+200 м |
| Вид доступа |
МДЧР |
| Вид модуляции |
QPSK |
| Параметры антенны и волнового тракта ЗС |
|
| Размер антенны |
9,3 м |
| Тип антенны |
параболическая двух зеркальная |
| Стандарт |
В |
| Коэффициент усиления на передаче Опер .з , дБ |
54 |
| Коэффициент усиления на приеме Опр .з , дБ |
51 |
| Система слежения |
Автоматическая |
| КПД волнового тракта ŋb |
0.9 |
| Угол места ЗС 1 |
38,5° |
| ЗС 2 |
8° |
| Эквивалентная шумовая температура приемника обусловленная его внутренними шумамиТпрз., К |
12 |
| Поляризация на передачу |
левая круговая |
| Поляризация на прием |
правая круговая |
| Параметры ИСЗ Intelsat 804 |
|
| Позиция на ГО |
64° в.д. |
| Расчетный срок существования, лет |
14-17 |
| Диапазон, ГГц |
6/4 14/11 |
| Число стволов: С-band Кu-band |
38 6 |
| Номер транспондера |
23А |
| ЭИИМ, дбВт |
35 |
| Полоса частот ствола , Мгц |
36 |
| Пропускнаяспособность, каналы |
22500 |
| Коэффициент усиления на передаче Gпер .б , дБ |
18 |
| Коэффициент усиления на приеме Gпр.б , дБ |
18 |
| КПД волнового тракта ŋв |
0,9 |
| Эквивалентная шумовая температура приемника, обусловленная его внутренними шумами Тпр б, К |
30 |
| Суммарное отношение (Рс/Pm)∑, дБ |
14,2 |
| Допустимое отношение сигнал/шум, дБ |
12 |
3.2 Уравнения связи для двух участков
Эквивалентная изотропно-излучаемая мощность (ЭИИМ) передающей станции
Е=Рпер ŋпер Gпер (1)
где Рпер — эффективная мощность сигнала на выходе передатчика;
ŋпер — коэффициент передачи (по мощности) волноводного тракта;
(КПД волноводного тракта) между передатчиком и антенной;
Gпер — коэффициент усиления передающей антенны относительно изотропного излучателя.
В техническом задании ЭИИМ задана.
Затухание энергии в свободном пространстве, определяемое уменьшением плотности потока мощности при удалении от излучателя оприделяется по формуле [1]
Lo= 16π²d²/λ², (2)
где λ – длина волны (λ = с/f, с = 3*108 м);
d – наклонная дальность (расстояние между передающей и приемной антеннами)
Найдем значения L0 для обоих участков. Для этого сначала вычислим расстояние d. Так как спутник геостационарный, то величина d, км, называемая часто наклонной дальностью, рассчитывается по формуле (3)
d = 42164 [1-(0,151266 соs Ө)2 ]1/2 -6378 sіn Ө, (3)
где Ө — угол места антенны земной станции, Ө1 =38,5, Ө2 =8 (находится из графика в приложении Б).
Для участка 1 :
d1 =42164 [1-(0,151266 соs 38,5)2 ] 1/2 -6378 sіn 38,5 = 37897 км,
λ1 =с/f=3*108 /6383*106 =0,047 м,
Lo = 16π2 (37897*103 ) /(0,047) =1,02*1020 или 200дБ.
Для участка 2:
d2 = 42164 [1-(0,151266 соs8)2 ]1 /2 -6378 sin 8 = 40800 км,
λ2 = с/f = 3*108 /3794*10б =0,079 м,
L0 = 16 π2 (40800*103 )/(0,079) =3,98*1019 или 196дБ.
Здесь и далее величины, относящиеся к участку Земля — спутник, имеют индекс «1», относящиеся к участку спутник — Земля — индекс «2».
Кроме этих основных потерь, на трассе присутствуют и дополнительные потери Lдоп , которые будут вычислены в последующих пунктах; полное значение потерь на трассе L∑ =L0 Lдоп .
Когда параметры антенны заданы в виде эффективной площади ее аппаратуры Sпр , связанной с коэффициентом усиления соотношением [1].
Gпр = 4πS пр / λ 2 ,
Рпер = 4 πd2 Lдоп Рпр /Gпер Sпр ŋпер ŋпр (4)
Формула (4) позволяет определить необходимую мощность передатчика по заданному значению мощности сигнала на входе приемника. Отметим, что в нее не входит длина волны. Следовательно, когда передающая антенна имеет постоянный коэффициент усиления на всех частотах, а приемная — эффективную постоянную площадь аппаратуры (может эффективно работать по мере возрастания частоты), мощность сигнала на входе приемника в первом приближении не зависит от частоты (в действительности некоторая зависимость от частоты имеется, так как Lдоп в значительной степени определяется диапазоном частот).
При расчете линии часто оказывается заданной не мощность сигнала на входе приемника, а отношение сигнал-шум на входе приемника (Рс /Рш )вх , тогда в формулу (4) следует подставить Рпр = Рш (Рс /Рш )вх ,где Рш — полная мощность шума на входе приемника.
Посколъку в диапазонах частот, где работают спутниковые системы, шумы, создаваемые различными источниками, имеют аддитивный характер, их суммарная мощность выражается формулой.
Рш = кТΣ ΔFш (5)
где к = 1,38 * 10 - ²³ Вт/Гц*град — постоянная Больцмана;
ТΣ — эквивалентная шумовая температура всей приемной системы с учетом внутренних и внешних шумов;
ΔFш — эквивалентная (энергетическая) шумовая полоса приемника.
Структурная схема и диаграмма уровней линии спутниковой связи, состоящей из двух участков, приведены на рисунке 3
Рисунок 3- Структурная схема и диаграмма уровней линии связи из двух участков
Воспользовавшись формулами (1), (5), для этих участков можно записать следующие соотношения: для участка Земля — спутник:
Рпер =(16π2 d1 2 L1 доп Рш .б /λ1 2 Gпер . з . Gпр . б . ŋпер . з . ŋпр . б .)(Рс /Рш )вх . б ,
где Рш.б .=кТ∑б Δfш.б .;
для участка спутник — Земля:
Рпер б =(16π2 d2 2 L2 доп Рш .з /λ2 2 Gпер . б . Gпр . з . ŋпер . б . ŋпр . з .)(Рс /Рш )вх . з ,
где Рш.з .=кТ∑з Δfш.з .;
Здесь и далее всем показателям, относящимся к земной аппаратуре, присваивается индекс «з», а показателям, относящимся к бортовой аппаратуре — индекс «б».
Чтобы перейти от уравнений для отдельных участков к общему уравнению для всей линии, необходимо установить связь между отношениями сигнал-шум на выходе линии и на каждом из участков.
В отсутствие обработки сигнала на борту происходит сложение шумов каждого из участков, при этом суммарное отношение сигнал-шум на конце линии связи.
(Рш /Рс ) ∑ = (Рш /Рс )вх . б + (Рш /Рс )вх . з . (6)
Очевидно, что отношение сигнал-шум на каждом из участков должно быть выше, чем на конце линии:
(Рс /Рш )вх . б =а(Рс /Рш ) ∑ , (Рс /Рш )вх . з , = b (Рс / Рш ) ∑ , (7)
где а > 1 , b > 1 .
Из (6) и (7) следует, что
a = b/(b-1), b = а/(а-1). (8)
Выражение (8) позволяют распределить заданное отношение (Рс /Рш )∑ ; по двум участкам линии связи. Например, задавшись превышением отношения сигнал-шум на участке спутник — Земля, равным 1 дБ (b=1,26), найдем, что необходимое превышение на участке Земля — спутник должно составлять 7 дБ (а≈5). Приведенное распределение коэффициентов запаса а и b предполагает, что полосы шумов бортового ретранслятора и земного приемника равны; если Δfш.з < Δfш.б , то мощность шума на входе бортового приемника следует вычислять в полосе Δfш.з .
С учетом изложенного уравнения для линии спутниковой связи, состоящей из двух участков, окончательно примут вид [3]:
для участка Земля — спутник
Pпер . з . =(16π2 d1 2 L1 доп кТ∑ б . Δfш . з / /λ1 2 Gпер . з . Gпр . б . ŋпер . з . ŋпр . б .)а(Рс /Рш ) ∑ , (9)
для участка спутник — Земля
Pпер . б . =(16π2 d2 2 L2 доп кТ∑ б . Δfш . з / /λ2 2 Gпер . б . Gпр . з . ŋпер . б . ŋпр . з .)b(Рс /Рш )∑ , (10)
4 Прохождение сигналов в системах космической связи
На распространение радиоволн на линиях Земля — космос (или космос — Земля) заметное влияние оказывает атмосфера Земли — как ионосфера, так и тропосфера. Это влияние особенно заметно на частотах от 10 ГГц и выше, а также при малых углах прихода волны (малых углах места антенны земной станции)[4].
Влияние ионосферы может проявляться в поглощении энергии, дисперсии сигнала, т. е. неравномерном времени задержки в полосе, «мерцании» сигнала, вызванном рассеянием локальными нерегулярностями концентрации электронов, вращении плоскости поляризации линейно поляризованной волны (фарадеево вращение). Все эти эффекты обратно пропорциональны квадрату частоты сигнала, а дисперсия — кубу частоты. Поэтому космические службы, работающие на частотах выше 1 ГГц, могут не учитывать влияние ионосферы, за исключением вращения плоскости поляризации.
Изменение вращения носит регулярный характер, подчиняющийся суточному и сезонному ходу, циклам солнечной активности, а также подвержено значительным и непредсказуемым отклонениям от регулярного хода в малых процентах времени. Максимальная амплитуда вращения на частоте 1 ГГц может достигать 108° при угле места 30°, а на частотах 4,6 и 1,2 ГГц максимальные амплитуды достигали 9, 4 и 1° соответственно [5].
Применение круговой поляризации волны, как и в нашем случае позволяет полностью устранить влияние этого явления.
Изменения уровня сигнала могут быть вызваны интерференцией прямой волны и волны, отраженной от земной поверхности
| Рисунок 4.Интерференция прямой волны и волны, отраженной от земной поверхности |
Влияние тропосферы на распространение радиоволн на линиях Земля — Космос может проявляться во многих явлениях.
Изменения индекса рефракции в тропосфере и его нерегулярности могут вызывать дефокусировку луча антенны, изменения угла прихода волны, уменьшение эффективного усиления антенн, возникновение многолучевой структуры сигнала и «мерцание». Дефокусировка луча вызывает потери сигнала менее 0,4 дБ даже при угле места 3° и больших изменениях рефракции. По данным измерений изменения угла прихода волны, вызванные рефракцией, составляли около 0,65°, 0,35°. и 0,25° при углах места 1°, 3° и 5° соответственно в морской тропической атмосфере. В полярном континентном климате соответствующие значения были 0,44°; 0,25° и 0,17° [4]. С этим явлением можно не считаться, поскольку антенны земных станций обычно снабжены устройствами автоматического или ручного наведения по максимуму сигнала.
Явления многолучевости и «мерцания» сигнала не могут оказывать сколько-нибудь существенного влияния на его уровень и поэтому не учитываются. Наиболее существенное влияние тропосферы проявляется в поглощении энергии радиоволн в газах атмосферы, поглощении и деполяризации волны в гидрометеорах, особенно в дожде.
4.1 Расчет ослабления уровня сигнала в атмосфере
Основное поглощение энергии сигнала вызывают кислород и водяной пар. На рисунке 5 показаны теоретические зависимости погонного ослабления уровня сигнала у, дБ/км, от частоты при стандартном давлении воздуха, температуре 20°С и концентрации р водяного пара 7,5 г/м3 .
На линиях связи Земля — космос волна проходит через всю толщу тропосферы, и на ее пути содержание кислорода и водяного пара существенно меняется, поэтому для расчета ослабления сигнала применяется концепция эквивалентной высоты кислорода и водяного пара, в пределах которой их содержание принимается постоянным.

Рисунок 5. - Зависимости погонного ослабления уровня сигналов от частоты при стандартном давлении воздуха, температуре 20° С и концентрации водяного пара 7,5 г/м3
Величина ослабления сигнала Аа , дБ, определяется следующими формулами
[5]:
Аа =(һо2 γо2 +һн2 оγ2 о)/sin Ө при Ө>10 (11)
Aa=√Re cosӨ{γH о2 √ho 2 Fo 2 + γH о2 √hH 2 o Fh 2 o } при 0<Ө<10, (12)
где Ө—угол места антенны земной станции;
Rе —эквивалентный радиус Земли с учетом рефракции (8500 км);
γо2 —погонное ослабление в кислороде, дБ/км, определяется по графику на рисунке 5 в зависимости от частоты;
γ2 O —погонное ослабление в водяном паре, дБ/км, определяется по р/7,5, учитывающее влагосодержание водяного пара р, которое может отличаться от значения 7,5 г/м3 , указанного на графике;
Һо2 — эквивалентная высота кислорода, км; Һo 2 = 6 км при Г<50 ГГц; ҺН2О - эквивалентная высота водяного пара, км.
һН2О = 2,2+3/[3+(f-22,3)2 ]+0,3/[1+(f-118,3)2 +1/[1+(f-323,8)2 ], (13)
FO 2 ,НH 2 O =[0,661tg Ө√Re/hO 2 ,HO 2 +0,339√(tgӨ/hO 2 )2 +5,51] (14)
В приложении В на мировой карте показаны среднемесячные значения концентрации водяного пара р атмосферы в августе. Эти значения можно использовать в расчетах как наибольшие.
Найдем величины ослабления сигнала, вызванного поглощением энергии радиоволн в газах атмосферы, для обоих участков, используя формулы (11 - 14).
Для участка 1:
Из рисунка 5: γO2 =0,007 дб/км,
γН2О = 0,003*10/7,5=0,004 дБ/км,
ҺН20 =2,2+3/[3+(6383-22,3)2 ]+0,3/[1+(6383-118,3)2 ]+1/[1+(6383323,8)2 ]=2,2км.
Тогда: Аа =(6*0,007+2,2*0,004)/sin38,5=1,02 что соответствует 0,08 дБ .
Для участка 2
γO 2 =0,007 дб/км,
γH 2 O =0,003* 10/7,5=0,004 дБ/км,
һH 2 O =2,2+3/[3+(3794-22,3)2 ]+0,3/[1+(3794-118,3)2 ]+1/[1+(3794-23,8)2 ]=2,2 км,
РO 2 =[0,661 tg8 √8500/6 +0,339√(tg√8500/6)2 +5,51]=0,18,
РH 2 O =[0,661 tg8 √8500/2,2 +0,339√(tg√8500/6)2 +5,51]=0,11.
Тогда:
Аа =√8500соs8 [0,007 √6 0,18+0,004 √2,2 0,11 ]=0,34 или -4,67 дБ.
4.2 Расчет ослабления уровня сигнала, в зоне дождя
Ослабление уровня сигнала при прохождении радиоволн через зону дождя вызвано рассеянием электромагнитной энергии частицами, при этом каждая частица рассеивает энергию в разных направлениях, вследствие чего энергия, приходящая в точку приема, уменьшается. Кроме того, энергия поглощается в частицах дождя, что вызывает ослабление уровня сигнала. Интенсивность рассеяния и поглощения зависит от количества частиц в единице объема, отношения размеров этих частиц к длине волны, размеров области, занятой частицами, и их электрических свойств, зависящих от температуры. Количество частиц в единице объема и их размеры характеризуются интенсивностью дождя.
Интенсивность дождя различна в разных географических районах и в разное время года. В приложении Г, взятом из Отчета 563-—2 МККР, на мировой карте показаны дождевые климатические зоны, обозначенные буквами от А до Р, а в таблице данного же приложения приведены значения интенсивности дождя, превышаемые в указанные проценты времени среднего года. Лондон относится согласно карте к зоне F, тогда согласно таблице в приложении В, интенсивность дождя на участке ИСЗ - ЗС1 составляет Іт = 28 мм/ч.
В приложении Д на карте СССР показаны дождевые климатические районы, обозначенные цифрами от 1 до 29, а в таблице 3.2 [5] даны значения интенсивности дождя, превышаемые воопределенном проценте времени «худшего» месяца. Согласно упомянутым картам и таблице, для участка ЗС 1 - ИСЗ интенсивность дождя равна Іт =22 мм/ч.
На рисунке 6, показаны зависимости погонного ослабления сигнала в зоне дождя γд частоты и интенсивности дождя [5].
Чтобы определить ослабление сигнала в зоне дождя на линии Земля — космос (или Космос — Земля), нужно знать длину пути сигнала в зоне дождя. Очевидно, уровень зоны дождя определяется высотой изотермы 0°С (или уровнем замерзания), ниже которой ледяные капли дождя переходят в жидкую фазу. Согласно Отчету 563 — 2 МККР средняя высота нулевой изотермы определяется формулой (в километрах) [5]:
ҺF =5,1-2,15lg(1+10)(ψ-27)/25 , (15)
где ψ — широта земной станции в градусах.
Высота дождя определяется умножением Һf на эмпирический коэффициент, который учитывает, что в тропических зонах высота дождя часто значительно ниже уровня замерзания:
Һд=С*һF , (16)
где С=0,6 при 0°≤│ψ│<20°;
С=0,6+0,02(│ψ│-20) при 20°≤│ψ│≤40°
С=1 при │ψ│>40°
Необходимо также учесть пространственную неравномерность дождя в горизонтальном направлении. В Отчете 564—2 МККР предложен следующий метод расчета ослабления сигнала в зоне дождя [5]:
а) определяется высота нулевой изотермы, км, в зависимости от широты
станции по (16);
б) определяется высота дождя, км, по (17);
в) определяется длина пути сигнала, км, по наклонной трассе от станции до высоты дождя (км):
dд =2(һд-һо)/[sin2 Ө+2(һд-һо)/Rc ] 1/2 +sinӨ при Ө< 10,
dд =(һд-һо)/sinӨ при Ө> 10, (17)
где Һ0 — высота станции над уровнем моря;
Ө- угол места антенны;
Rc =8500 км — эквивалентный радиус Земли;
г) горизонтальная проекция наклонной трассы, км,
dG =dд cosӨ (18)
д) фактор уменьшения, учитывающий неравномерность дождя для 0,01% времени,
r0.01 =90/(90+4dG ); (19)
е) определяется интенсивность дождя Іm, мм/ч, превышаемая в 0,01% среднего года (с временем интеграции 1 мин) для климатического района, где находится станция;
ж) определяется погонное ослабление сигнала в зоне дождя үд , дБ/км, для данной частоты сигнала и интенсивности дождя по графикам на рисунке 6;
з) определяется ослабление сигнала в дожде, дБ, превышаемое в 0,01 % среднего года,
Ад0.01 =γд dд r0.01 . (20)
Рисунок 6. Погонное ослабление сигнала взоне дождя в зависимости от частоты
Используя вышепривиденный метод найдем значения ослабления в зоне дожде для обоих участков.
Для участка 1:
һғ =5,1-2,151§(1+10)(43,13-27)/25 =3,52 км,
һд =1*3,52=3,52км,
dд=(3,52-0,87)/sin38,5=4,26 км,
dG =4,26соs538,5=3,33 км,
r0.01 =90/(90+4*3,33)=0,87,
Іm =22 мм/ч,
γд=0,07дБ=1,02,
Ад0.01 = 1,02*4,26*0,87=3,78 или 5,77 дБ .
Для участка 2:
һғ =5,1-2,151§(1+10)(51,.30-27)/25 =2,9км,
һд =1*2,9=3,52км,
dд=2(2,9-0,2)/sin2 Ө+2(2,9-0,2)/8500]1/2 +sin8=12,86км,
dG =12,86соs8=12,73 км,
r0.01 =90/(90+4*12,73)=0,64,
Іm=28 мм/ч,
γд =0,12 дБ=1,03,
Ад 0.01=1,03*12,86*0,64=8,48 или 9,28 дБ.
Таким образом, дополнительные потери на участках линии связи обусловлены главным образом влиянием двух факторов, рассмотренных выше. Их можно определить по формуле:
Для участка 1 :
Lдоп.1 =Аа1 *Ад1 ,
Lдоп.1 =Аа1 *Ад1 =1,02*3,78=3,85 или 5,85 дБ,
Для участка 2:
Lдоп.2 =Аа2 *Ад2 =0,34*8,48=2,9 или 4,61 дБ.
5 Расчет шумов
5.1 Расчет шумов
При расчете энергетики спутниковых радиолиний важно определить полную мощность шумов, создаваемых на входе приемного устройства спутника и земной станции различными источниками. Как показано в § 3.2,
мощность шума на входе приемника может быть определена по формуле (5).
Полная эквивалентная шумовая температура приемной системы, состоящей из антенны, волноводного тракта и собственно приемника, пересчитанная ко входу приемника [5]:
Т∑ =ТАŋв +То (1-ŋв )+ТПр , (21)
где ТА — эквивалентная шумовая температура антенны;
Т0 — абсолютная температура среды (290 К);
Тпр —эквивалентная шумовая температура собственно приемника,
обусловленная его внутренними шумами;
ŋв —коэффициент передачи волнового тракта.
Эквивалентная шумовая температура антенны может быть представлена в виде составляющих:
ТА = Тк +Та +Т3 +Та .з +Тш.А +Тоб . (22)
которые обусловлены различными факторами: приемом космического радиоизлучения- Тк ; излучением атмосферы с учетом гидрометеоров - Та ;
излучением земной поверхности, принимаемым через боковые лепестки антенны — Т3 ; приемом излучения атмосферы, отраженного от Земли — Та .3 ; собственными шумами антенны из-за наличия потерь в ее элементах—ТШ .А ;
влиянием обтекателя антенны (если он имеется) — Тоб . Общая методика, определения этих составляющих основана на том, что антенна, находящаяся в бесконечном объеме поглощающей среды с однородной кинетической температурой, при термодинамическом равновесии поглощает и переизлучает мощность, равную мощности излучения. В этом случае
ТА =(1/4π)Tя(β,ψ)G(βψ)dΩ
где Tя(β,ψ) — яркостная температура излучения в направлении β,ψ в сферической системе координат;
G(βψ)— усиление антенны (относительно изотропного излучателя) в том же направлении.
Понятие «яркостная температура» вводится для характеристики источников излучения; она определяется как температура абсолютно черного тела, имеющего на данной частоте и в данном направлении такую же яркость, как рассматриваемый источник.
Для характеристики источников излучения с неравномерным распределением яркостной температуры используется понятие усредненной или эффективной температуры излучения
Tср =(1/Ωи) Tя(β,ψ)dΩ
где Ωи — телесный угол источника излучения.
Если угловые размеры источника излучения больше ширины главного
лепестка диаграммы антенны Ωи , то Тср =Тя , в противном случае
Тср =Тя Ωи /ΩА (23)
Для упрощения последующих расчетов примем усиление антенны в пределах главного лепестка постоянным и равным Gгл , а в пределах задних и боковых лепестков также постоянным и равным Gбок ; тогда
ТA =G гл ./4π Tя(β,ψ)dΩ (1/4π)∑∫G бок. i Tя(β,ψ)dΩ
Решая это выражение для всех составляющих шума (22) с учетом (23),
получим для земной антенны
ТА .з= Тя .к (β)+Тя .а (β)+с(Тя ,+Тя .а ,)+ТшА +Тоб (β), (24)
для бортовой антенны
ТA .б = Тя.а +Тя .з +2сТя .к +ТША , (25)
где с — коэффициент, учитывающий интегральный уровень энергии боковых лепестков.
Количественная оценка величины с для различных типов антенн в зависимости от формы облучения поверхности зеркала антенны с=0,1 ... 0,4 [5].
Как следует из (24), первая составляющая температуры шумов антенны определяется яркостной температурой космического пространства (изофоты, дающие количественную оценку Тяк ). Основу его составляет радиоизлучение Галактики и точечных радиоисточников (Солнца, Луны, планет и некоторых звезд).
Частотная характеристика усредненных по небесной сфере значений Тя .к показана на рисунке 7, из которого следует, что космическое излучение существенно на частотах ниже 4... 6 ГТц; максимальное значение на данной частоте отличается от минимального в 20... 30 раз [5], что обусловлено большой неравномерностью излучения различных участков неба; наибольшая яркость наблюдается в центре Галактики; имеется также ряд локальных максимумов. Следует отметить, что излучение Галактики имеет сплошной спектр и слабо поляризовано; поэтому при приеме его на поляризованную антенну (с любым видом поляризации) можно с достаточной степенью точности считать, что принимаемое излучение будет половиной интенсивности (т. е. принимается 1/2 всей мощности излучения, попадающей в раскрыв антенны). На том же рисунке показан вклад излучения Солнца в спокойном состоянии (в годы минимума активности) и в состоянии «возмущения», свойственного годам максимума активности. Солнце — самый мощный источник радиоизлучения и может полностью нарушить связь, попав в главный лепесток диаграммы направленности антенны. Однако вероятность такого попадания мала.

Рисунок 7-Частотная зависимость яркостной температуры Галактики, Солнца и атмосферы
Следует отметить, что спутник довольно редко проходит через центр солнечного диска, а обычно пересекает его по линиям, смещенным относительно центра. Точная дата и время «засветки» земных антенн солнечным диском обычно рассчитывают по данным орбиты ИСЗ и сообщают земным станциям.
Следующий по мощности радиоисточник—Луна — практически не может нарушить связи, так как ее яркостная температура не более 220 К [5]. Остальные источники (планеты и радиозвезды) дают существенно меньший вклад; вероятность встречи антенн с этими источниками меньше, чем с Солнцем, так как угловые размеры их малы.
Радиоизлучение земной атмосферы имеет тепловой характер и в полной мере обусловлено рассмотренным в предыдущем разделе поглощением сигналов в атмосфере. В силу термодинамического равновесия среда (атмосфера) излучает такое же количество энергии на данной частоте, которое поглощает соответственно
Тя .а =Та .Ср . (Lа -1)Lа
Как показывают расчеты атмосферы, средняя термодинамическая температура атмосферы для углов места β>5° в рассматриваемых диапазонах частот
Та.ср=Т≈То-32≈260 К.
Влияние осадков можно учесть по той же методике, т. е. определить Тя .а через потери в дожде Ад. Хотя ряд исследований показывает, что непосредственная корреляция между интенсивностью дождя и температурой неба невелика (т. е. может наблюдаться повышение шумовой температуры неба из-за дождевых туч, когда собственно дождь не выпадает), тем не менее корреляция с многолетней статистикой дождя все же имеется.
Раздельное вычисление температуры спокойного неба и температуры дождя с последующим их суммированием приведет к ошибке (примерно удвоит результат), поэтому вычисление следует проводить по формуле
Тя .а=Та .ср (Аа Ад-1)/Аа Ад. (26)
Максимальная температура шумов неба не превышает 260 К и начинает играть существенную роль в диапазонах частот выше 5 ГГц.
Приведенная выше оценка температуры атмосферы, по существу, относится к тропосфере; радиоизлучением ионосферы в диапазоне частот выше 1 ГГц можно пренебречь, так как поглощение в ионосфере обратно пропорционально квадрату частоты.
Яркостная температура Земли определяется ее кинетической температурой Тя3 = 290 К и коэффициентом отражения электромагнитной энергии от поверхности Земли
Тя.з.=Тоз(1-Ф)^2. (27)
Комплексный коэффициент отражения определяется известными формулами Френеля:
для горизонтальной поляризации
ФГ =(sin β- √ε + j 60σλ - соs 2 β )/(sіn β+ √ε + j 60σλ - соs 2 β), (28)
для вертикальной поляризации
Фв =[(є+ j 60σλ)sinβ-√ε + j 60σλ - соs 2 β)]/ [(є+ j 60σλ)sinβ+√ε + j 60σλ - соs 2 β)]
(29)
где є — диэлектрическая проницаемостьЗемли;
σ — электропроводимость Земли.
Значения є и σ для некоторых видов земной поверхности приведены в таблице 1.
Результаты расчетов по формуле (27) с учетом горизонтальной и вертикальной поляризаций (28-29) при отражении от участков земной поверхности, представленных в таблице, приведены на рисунке 8 (номера кривых на рисунке 8 соответствуют нумерации почв в таблице).
Таблица 1. Виды земной поверхности.
| № п/п |
Видземной поверхности |
Є , В/М |
σ, Сим/м |
| 1 |
Морская вода |
80 |
1...6 |
| 2 |
Пресная вода |
80 |
10-3 5*10-3 |
| 3 |
Влажная почва |
5. ..30 |
10-2 10-3 |
| 4 |
Сухая почва |
2...6 |
10-4 10-5 |

Рисунок 8-Зависимость яркостной температуры Земли от угла места антенны земной станции для вертикальной (а) и горизонтальной (б) поляризаций
Для определения Тя .3 при .круговой поляризации в первом приближении следует усреднить значения Тя .3 для горизонтальной и вертикальной поляризаций. При определении величины ТЯІЗ , входящей в формулу (25) для бортовой антенны, следует учитывать вид и характер земной поверхности, попадающей в зону видимости этой антенны. Для бортовых антенн с глобальным охватом следует принимать Тя .3 ≈60 К. Можно принять следующее,
Тя.з +Тя .а.з ≈290 К.
т. е. отраженная от Земли компонента атмосферных шумов дополняет термодинамическое излучение Земли, и в сумме они дают излучение с яркостной температурой, близкой к 290 К.
Рассмотрим еще одну составляющую шумов антенны в формулах (24) и (25), обусловленную омическими потерями в антенне,
Т Ш.А. =То(Lм-1)/Lм
где Т0 =290 К; Lм — потери в материале зеркала антенны.
Современные металлические зеркальные антенны имеют весьма низкие потери, поэтому значения ТшА весьма малы и составляют на разных частотах значения, указанные в таблице 2.
Таблица 2 значения потерь на частотах.
| F,ГГц |
0.3 |
1 |
3 |
10 |
30 |
60 |
| ТША ,К |
0.018 |
0.04 |
0,06 |
0,09 |
0,18 |
0.3 |
Теперь определим Т∑б и Т∑З по формуле (21) с учетом входящих в нее величин, представленных формулами (24) и (25), а также рисунками 7— 8. Полученные значения Т∑б и Т∑З также будут квазипиковыми, так как они вычислены на основе квантилей распределения интенсивности осадков.
Тя .а =260*(1,02*3,78-1)/(1,02*3,78)=192,5 К;
Тя .кб =0 К; Тя .к .(β)3 =4 К (из рисунка 7),
Тя .3 з=250 К; Тя .зб =90 К (из рисунка 8).
Из таблицы 2 находим:
ТшАз =0,075 К,
Т ш.А .б =0,065 К,
Тя .а-з =290-250=40 К,
Т об =0 К, с=0,4,
ТА .з=4+0,4*(250+40)+0,075=120 К, Та.б. =192,5+90+2*0,4*0+0,065=282,5 К.
Таким образом получим:
Т∑б =120+290*[(1-0,9)/0,9]+12/0,9=165,5К.
Т∑б =282,5+290*[(1-0,9)/0,9]+30/0,9=348К.
5.2 Расчет мощностей передатчиков
Подставляя полученные значения в (9) и (10), получаем мощности земного и бортового передатчиков, необходимые для обеспечения требуемого отношения сигнал-шум (12 дБ согласно рекомендации SSОG 308.2 для QPSK IDR) на конце линии связи в течение заданного процента времени (99,9%):
P пер.з =[(16π2 *37,897*106 )2 *3,85*1,38*10-23 *384*1,75*106 )/((0,047)2 *251 188,6*316*0,9*0,9)]*5*15,84=4 Вт,
Рпер.б =[(16π2 *(40,8*106 )2 *2,9*1,38*10-23 *165,5*36*106 )/ /((0,079) 2 *63* 125892*0,9*0,9)]*1,26*26,3=52 Вт .
Следует отметить, что найденные значения мощностей передатчиков обеспечит получение требуемого значения отношения сигнал/шум в канале (12 дБ в течении 99,9 % времени).
6. Расчет электромагнитной совместимости двух спутниковых систем.
Расчет электромагнитной совместимости основан на представлении, что по мере возрастания уровня мешающего излучения, увеличивается шумовая температура системы, подвергающейся помехам.
Согласно этому методу рассчитывается кажущееся увеличение эквивалентной шумовой температуры линии, обусловленное помехами, создаваемыми мешающей станции и отношение этого увеличения к эквивалентной шумовой температуры спутниковой линии, выраженной в процентах [1].
Для конкретного случая выберем земную станцию находящуюся на территории г.Алматы эта станция является мешающей станцией для рассматриваемой системы.
Мешающая система работает на тех же частотах, что и рассматриваемая система и использует геостационарный спутник российского производства «Экспресс 6А». Исходные данные: Система А —> Система В Плотность мощности:
РКМА= -52,8 дБВт/Гц Ркмв = -51,4 дБВт/Гц
РЗМА = -27,4 дБВт/Гц Рзмв = -40,4 дБВт/Гц
Координаты земной станции А: 76°13' восточной долготы
43°54' северной широты
Координаты земной станции В: 76° 13' восточной долготы
43°54' северной широты
Диаметр антенны ЗСА 9,3 м
Диаметр антенны ЗСВ 4,5 м
Коэффициент усиления антенны спутника для ЗСл, дБ 18
Коэффициент усиления антенны спутника для ЗСв, дБ 17
Шумовая температура ЗСд, К 165,5
Шумовая температура ЗСв, К 150
Координаты спутника А: 64° восточной долготы
Координаты спутникаВ: 80° восточной долготы
Дополнительные данные для расчета, по ИСЗ Экспресс-бА: Назначение: передача данных, телевидение, телефония, Интернет,
радиовещание, видеоконференцсвязъ, и др.
Орбита геостационарная;
Срок службы 7 лет;
Мощность, потребляемая ретранслятором 1450 Вт; Мощность источников питания 36ОО Вт;
Антенны- фиксированные:
1 приемная 17°х17°, глобальная;
1 приемная 5°х11°, зоновая;
1 передающая 5°х11°, зоновая;
1 передающая 15°х15°, квазиглобальная- перенацеливаемые 1 передающая 5°х11°, зоновая;
1 передающая 5°х5°, зоновая;
1 передающая 3,5°х7°, зоновая;
Транспондеры:
Параметры
С-диапазон;
Центральные частоты (передача/прием) МГц:
№5 - 5950/3625,
№6 - 6000/3675,
№7 - 6050/3725,
№8-6100/3775,
№9-6150/3825,
№10-6200/3875,
№11 -6250/3925,
№14-6300/3975,
№15-6350/4025,
№16-6400/4075,
№17-6450/4125,
Выходная мощность, Вт:
20 (9 транспондеров),
40 (2 транспондера),
75 (1 транспондер),
35 (5 транспондеров),
Поляризация сигнала круговая правого вращения и левого вращения.
ЭИИМ в центре луча, дБВт 32,0 - 48,0;
Добротность в центре луча, дБ/К1,0 (1 1 транспондеров).
В системе используют простые ретрансляторы с преобразованием частоты, приращение эквивалентной шумовой температуры линии может быть определено из выражения/1/,
ΔТл=ΔТзс↑+γ ΔТкс↓ (30)
где ΔТз - увеличение шумовой температуры приемной системы ЗС на выходе приемной антенны ЗС, (К);
ΔТб - увеличение шумовой температуры приемной системы космической станции на выходе приемной антенны космической станции, (К);
γ- коэффициент передачи спутниковой линии между выходом приемной антенны космической станции и выходом приемной антенны ЗС, его значение обычно меньше 1 и характеризует степень влияния помех, создаваемых на линии Земля - спутник. Подробнее можно записать
ΔТкс↓= (Рз.м.*Gз.м.(θt)*Gк.с(δ))/(к*Lu) , (31)
ΔТзс↑= (Рк.м.*Gк.м.(η)*Gз.c.(θt))/(к*Ld) , (32)
где Рз.м, Рк.м - максимальная плотность мощности в полосе 1 Гц, усредненная в наихудшей полосе 4 кГц для несущих ниже 15 ГГц, подводимая к антеннам мешающего спутника и мешающей земной станции соответственно;
Ок.м.( η) - усиление передающей антенны мешающего спутника в направлении ЗС, подверженной помехам;
Оз.с.( θt) - усиление приемной антенны ЗС, подверженной помехам, в направлении на мешающий спутник;
Оз.м.( θt) - усиление передающей антенны мешающей ЗС в направлении на спутник, подверженный помехам;
Ок.с(δ) - усиление приемной антенны спутника, подверженного помехам в направлении на мешающую ЗС; К - постоянная Больцмана (1,38*10-23 Вт/Гц*К);
Lu; Ld - потери на передачу в свободном пространстве на линии Земля — спутник и спутник - Земля соответственно; Өі - топоцентрический угловой разнос между спутниками. Потери (дБ) на передачу в свободном пространстве
L = 20*(Lgf+Lgd)+ 32,45 , (33)
где f— частота, МГц;
d - расстояние (км) между земной станцией и геостационарным спутником;
а = 42644* √1 - 0,2954соsψ, (34)
где соsψ = соsξ *соsβ;
ξ- широта земной станции;
β - разность по долготе между спутником и ЗС.
Соsψ=cos 43,2°*соs3° = 0,7289*0,9986 = 0,73,
dA =42644* √1-0,2954*0,73 = 42644*0,885 = 37767 км,
cosψ = соs43,2°*соs13° = 0,7289*0,9743 = 0,71,
dв = 42644* -71-0,2954*0,71 = 42644*0,889 = 37909 км.
Lu - потери на передачу в свободном пространстве на линии Земля -спутник;
Ld - потери на передачу в свободном пространстве на линии спутник-Земля.
Lu = 20*(Lg 6268+Lg 37909)+32,45 = 199,9 дБ, Ld = 20*(Lg 3794+Lg 37767)+32,45 - 195,6 дБ.
Рисунок 9.- Пояснение к расчету ЭМС
Топоцентрический угловой разнос между двумя геостационарными спутниками
θt = аrc соs((dа2 +dв2 -(84322*sin(θg/2))2 )/2*dа*dв), (35)
где θg - геоцентрический угловой разнос между спутниками;
θg —16 градусов.
θt = аrc соs((377672 +379092 -(84322*0,139)2 )/2* 37767 * 37909) = 5°
.
Коэффициенты усиления антенн земной станции в направлении на другой спутник, определяется в зависимости от отношения В/Х и топоцентрического угла между спутниками и земными станциями.
Станция А:
λ= с/f = 3*108 /6383*106 = 0,047 м,
D/λ= 93,7/0,047 = 197,87>10°
Формула для расчета Gзс (Ө) выбирается для случая D/ λ > 100,
Өr = 15,85*(197,87)-0,5 =1,1°,
Тогда
GЗС (Ө) = 32-25*lg Ө при Ө≤Ө≤48°,
GЗС (Ө) = 32-25* lg 5 =14,5 дБ.
Станция В:
λ=c/f=3*108 /3794*106 = 0,079 м,
D/λ=4,5/0,079=56,9<100
Формула для расчета GЗС (Ө)= выбирается для случая D/λ<100,
λ/D = 0,017,
GЗМ (Ө)= 52-10*lg(D/λ)-25*lgӨ при 100*λ/D≤ Ө < 48 т.е.1,7 ≤ 5 < 48,
GЗМ (Ө) =52 -10 * lg 57 - 25 * lg 5 = 16,5 дБ.
Так как известны сведения об используемой в системах поляризации, то учтем поляризационную развязку Ү.
Δ Тл = Δ Тл/Yd+γ* Δ Ткс/Yu
В связи с тем, что в системах используются системы с круговой поляризацией с разными направлениями вращения, тоҮ=4. Подставим найденные значения в выражения (32) и(33)
Т кс = Рзм + G зм (Ө) + Gкс (δ) + 228,6 - Іи = -40,4+ 1 6,5+1 8+228,6- 1 99,9=22 дБК,
Следовательно Δ Ткс =186 К.
Δ Тзс=Р км+Gкм(η)+Gзс(Өi)+228,6-Ld =-51,4+17+14+228,6-195,6 = 12,6 дБК,
Следовательно Δ Тзс =18,2 К.
Δ Тл = Δ Тл/Yd+γ* Δ Ткс/Yu= 18,2/4 + 0,032 * 186/ 4= 4,5 + 1,4 = 5,9 К.
Отсюда Δ Т/T * 100% =5,9/150*100 = 3,99% .
Полученное значение 3,99 % не превышает пороговое 6%, то есть мешающая система В не оказывает существенного влияния на рассматриваемую систему А, следовательно координация не нужна.
7. Расчет РРЛ прямой видимости
Расчет РРЛ сводится к тому, что нужно определить качественные показатели двух пролетов, протяженность которых меньше средней дальности, на которую рассчитано оборудование РРЛ /8/.
Радиорелейная трасса состоит из двух пролетов: «Атакент»-«Рахат Палас» и «Рахат Палас»-«ТехаКа-банк» их протяженность 2,3 км и 5,8 км соответственно.
Данные пролеты находятся на территории города Алматы. Производитель оборудования Місrowave radio corporation Модель: Сalifornia Microwave-MNS
Диапазон частот 17,7-19,7 ГГц в соответствии с рекомендацией G.703.823,
| Модуляция 2FSK |
| Диаметр антенны 60 см |
| Усиление антенны 38 дБ |
| Мощность передатчика 21 дБ |
| Коэффициент системы 110 дБ |
| Средняя дальность 10 км |
7.1.Построение профилей пролетов и определение минимального просвета
Пролет «Атакент»-«Рахат-Палас»
Определим условный нулевой уровень по следующей формуле [8]:
y=﴾R2 0 /2*a)*k(1-k) , (36)
Где а - радиус кривизны Земли 6370 км;
Rо - протяженность пролета;
к = Ri / R0 - относительная координата точки, определения радиуса кривизны Земли.
К = Ri / Ro =1 / 2,3 = 0,43
Y1 = (R2 0 /2*a ) K(1-k) = (2,32 / 26370)*0,43 (1-0,43) = 1*10 –4 км = 0,1 м,
К = Ri / Ro =2 / 2,3 = 0,87
Y2 = (R2 0 / 2*a ) K (1-k) = (2,32 / 26370)*0,87 (1-0,87) = 5*10 –5 км = 0,05 м,
Профиль данного пролета приведен на рисунке 10.
Рисунок 10. - Профиль пролета РРЛ «Атакент»-«Рахат-Палас»
Определим радиус минимальной зоны Френеля в любой точке пролета, по следующей формуле:
Н0 = √ 1/3 *R 0 λ* k*(1-k),(37)
λ= c/f = 3*10-8 /18*109 =0,016 м,
к = Ri / R0 = 2/2,3 = 0,87
Н 0 =√ 1/3 *2,3* 0,016 * 0,87 * (1 - 0,87) = 0,037м
Определим приращение просвета за счет рефракции:
ΔH(g+σ) = - R2 0 /4* (g+σ)*K*(1-K) (38)
где g - среднее значение вертикального градиента, для Алматы равен -11*10-8 1/м;
σ - стандартное отклонение, для Алматы равно - 11*10 - 8 1/м.
ΔH(g+σ) = - 23002 /4*(- 11*10 -8 +11 * 10 - '8 ) * 0,87* (1 – 0,87 ) = 0 м.
Тогда, просвет без учета рефракции (а именно для этого случая построен профиль пролета).
H (o) = H0 – ΔH (g+σ) = 0,037 - 0 = 0,037 м.
Аналогично производим расчет .
Пролет «Рахат-Палас»-«ТехаКа-банк»
Определим условный нулевой уровень по формуле:
к = Ri / R0 = 1/5,8 = 0,17,
y1 = (R2 0 /2*a)*k(1-k) = (5,82 /2*6370)*0,17*(1-0,17) = 3*10 –4 км = 0,3м.
к = Ri / R0 = 2/5,8 = 0,34,
y2 = (R2 0 /2*a)* k(1-k) =(5,82 /2*6370)*0,34*(1-0,34) = 6*10 –4 км = 0,6м.
к = Ri / R0 = 3/5,8 = 0,51,
y3 = (R2 0 /2*a)* k (1-k) = (5,82 /2*6370)*0,51*(1-0,51) = 6,6*10 –4 км = 0,66 м.
к = Ri / R0 = 4/5,8 = 0,68,
y4 = (R2 0 /2*a)* k (1-k) = (5,82 /2*6370)*0,68*(1-0,68) = 5,7*10 –4 км = 0,57 м.
к = Ri / R0 = 5/5,8 = 0,86,
y5 = (R2 0 /2*a)* k (1-k) = (5,82 /2*6370)*0,86*(1-0,86) = 3,1*10 –4 км = 0,31 м.
Профиль данного пролета приведен на рис. 11.
Рисунок 11. - Профиль пролета РРЛ «Рахат-Палас»-«Техака»
Определим радиус минимальной зоны Френеля в любой точке пролета, по формуле(37) :
K = Ri / R0 = 0,1/5,8 = 0,017
H0 = √ 1/3*5,8*0,016*0,017*(1-0,017) = 0,022 м.
Определим приращение просвета за счет рефракции по формуле (38)
ΔH (g+σ) = -58002 /4*(-11*10-8 + 11*10-8 )*0,017*(1-0,017) = 0.
Тогда, просвет без учета рефракции (а именно для этого случая построен профиль пролета).
H (0) = H0 - ΔH (g+σ) = 0,022 – 0 = 0,022 м.
7.2 Расчет запаса на замирание
Определим запас замирания по следующей формыле
F1 = SG + Gпрд + Gпрм – L0 - 2η, (39)
где SG - коэффициент усиления системы;
GПРМ, GПРД - усиление передающей и приемной антенны
соответственно ;
2η - КПД антенно-фидерного тракта, примем равным 3 дБ, так как используется компактное расположение наружного блока (ODU);
L0 = 20 * (lg f + lg R0 ) + 32,45 – где затухание радиоволн в свободном
пространстве;
f - средняя частота диапазона, МГц;
Rо - длина пролета в км.
Пролет «Атакент»-«Рахат-Палас»
L0 = 20 * (lg 18000 + lg 2,3) + 32,45 = 1 44,8 дБ,
Ft = 110 + 38 + 38 - 144,8 - 3 = 35 дБ.
Пролет «Рахат-Палас»-«ТехаКа-банк»
L0 = 20 * (lg 18000 + lg 5,8) + 32,45 = 152 дБ,
Ft = 110 + 38 + 38 - 152 - 3 = 31 дБ.
7.3 Расчет времени ухудшения связи из-за дождя
Казахстан относится к зоне Е, для которой интенсивность осадков
(превышаемая в 0,01% времени) и R0,01 = 22 мм/час[9].
Коэффициенты а и к для горизонтальной и вертикальной поляризации на частоте 18 ГГц, равны:
ан =1,132, ау =1,1028,
ки = 0,0597, кү = 0,05486.
Опорное расстояние определяется по следующей формуле:
d 0 = 35*ехр(-0,015*R001 ) = 35*ехр(-0,015*22) = 25,16 км.
Коэффициент уменьшения определяется по следующей формуле
r = 1/1 + (R0 / d0 ) определим для пролетов «Рахат – Палас»
Пролет «Атакент» - «Рахат – Палас»
r = 1/ 1 + (2,3/25,16) = 0,91.
Пролет «Рахат Палас»-«ТехаКа-банк»
r=1/ 1 + (5,8/25,16)= 0,81.
Удельное затухание в дожде для горизонтальной и вертикальной поляризаций:
ү h = кн *ан *R 001 = 0,0597*1,132*22 = 1,48дБ/км,
ү v = к v *а v * R 001 = 0,05486 * 1,1028*22 = 1,33 дБ/км.
Эффективная длина трассы определяется по формуле:
dэ = r*R0 для пролетов:
Пролет «Атакент»-«Рахат Палас»
dЭ =0,91* 2,3=2,09км.
Пролет «Рахат Палас»-«ТехаКа-банк»
dЭ = 0,81*5,8 = 4,7 км.
Оценка затухания на трассе, которое превышается для 0,01% времени определяется выражением:
А0,01 =ү* dЭ для пролетов:
Пролет «Атакент»-«Рахат Палас»
А0,01 = 1,48* 2,09 = 3,1 дБ.
Пролет «Рахат Палас»-«ТехаКа-банк»
А0,01 = 1,33* 4,7 = 6,25 дБ.
Затухание, которое превышается для другого процента времени Т может
быть определено из уравнения:
Ат /А0,01 = 0,12*Т –(0,546 + 0,043* lg T )
Подставляя сюда А r = F 1 получим время в течении которого дождь вызовет затухание, больше запаса на замирание.
T = 10 11,628*(-0.546+√ 0,29812 + 0,172* lg (0.12* (А 0,01 /F1 )) (%).
Причем, если величина А0,01 /F1 < 0,154023, то для получения действительного значения необходимо принять А0,01 /F1 = 0,155 .
Для отдельных пролетов:
Пролет «Атакент»-«Рахат Палас»
А0,01 /F1 = 3,1/35 = 0,088 < 0,154023 = 0,155
Т = 10 11,628*(-0,546+√ 0,29812 + 0,172* lg (0,12*0,155)) = 8*10 –7 %
Пролет «Рахат Палас»-«ТехаКа-банк»
А0,01 /F1 = 6,25/35 = 0,2,
Т = 10 11,628*(-0,546+√ 0,29812 + 0,172* lg (0,12*0,2)) = 1,9*10 –7 %
7.4 Расчет времени ухудшения связи, вызванного субрефракцией волн
В связи с тем, что протяженность пролетов очень мала, а размеры препятствий не значительны, а также то, что антенны расположены в зоне устойчивой видимости с большим относительным просветом, в то же время ухудшения связи, вызванное субрефракцией радиоволн можно не рассчитывать. Условно примем его равным 10 -5
Проверка норм на неготовность:
Норма на неготовность вычисляется по формуле:
URдоп = 0,3*L/2500.
Для отдельных пролетов:
Пролет «Атакент»-«Рахат Палас»
URдоп = 0,3*2,3/2500 = 0,000276 %
Пролет «Рахат Палас»-«ТехаКа-банк»
URдоп = 0,3*5,8/2500 = 0,000696 %
Время ухудшения связи, вызванное дождем и субрефракцией радиоволн на пролетах:
Пролет «Атакент»-«Рахат Палас»
Т% = 8*10-7 + 10 -5 = 10 -5 %.
Пролет «Рахат Палас»-«ТехаКа-банк»
Т% = 1,9*10 –7 + 10 –5 = 10 –5 %.
При сравнении полученных значений с нормами, видно, что эти начения меньше норм, т.е. нормы выполняются.
7.5 Расчет времени ухудшения связи из-за многолучевого распространения.
Общая длительность нарушения связи, вызванная многолучевым замиранием, равна сумме нарушений вызванных медленными и селективными замираниями [7]:
Р = Pflat + Рsel
Длительные нарушения связи, вызванные медленными замираниями, определяются по формуле [7].
Pflat = К *Q* Fb *dc *(W/Wb )= К * Q * Fb *dc *10 a/ 10, %
где А - глубина замирания, дБ, которая принимается равной запасу на замирание Ғt ;
Wо - мощность принимаемого сигнала в отсутствии замирания;
d - длинна трассы, км;
f - частота несущей, ГГц;
В и С- коэффициенты, учитывающие региональные эффекты;
К- коэффициент, учитывающий влияние климата и рельефа местности;
Q - коэффициент, учитывающий другие параметры трассы, отличные от d и f.
Для наземной радиолинии, на которой наименьшая высота подвеса антенн приемника и передатчика составляет не менее 700 м над уровнем моря коэффициент К вычисляется по следующей формуле,
К = Р1,5 l *10 –(6,5 – С lat +C lon )
где РL = 5% - процент времени с вертикальным градиентом рефракции,из четырех месяцев берут худший. Коэффициенты Clat = 0 и Clon = 0 для данной местности.
Коэффициент Q вычисляется по формуле,
Q = (1+│ ε p │)-1,4 ,
Где │ ε p │угол наклона радиолуча
│ ε p │= │h1 – h2 │/ d,
где h1 , h2 , высота подвеса антенн над уровнем моря, м;
d - длина трассы, км.
Рассчитаем длительность ухудшения связи из-за медленных замираний на каждом пролете: Пролет «Атакент»-«Рахат Палас»
К = 0,05 1,5 *10 –6,5 = 3,5*10 –9 ,
│ ε p │=│900-872│/2,3 =12 мрад,
Q = (1+│12│) –1,4 = 0,027,
В = 0,89, С = 3,6,
Р flat = 3,5 *10 -9 * 0,027 *І8 0,89 *2,33 '6 * 10 35/10 = 7,8*10 -12 %.
Пролет «Рахат Палас»-«ТехаКа-банк»
К = 0,05 1,5 *10 –6,5 = 3,5*10 -9 ,
│ ε p │=│872 - 1100│/5,8 =39 мрад,
Q = (1+│39│) –1,4 = 0,0056,
В = 0,89, С = 3,6,
Р flat =3,5 *10 -9 * 0,0056* 180,89 *5,81,6 *1031/10 = 181*10 –6 %
Определим норму на допустимое время ухудшения связи по пролетно: Пролет «Атакент»-«Рахат Палас»
SES = 0,054* L/2500 = 0,054*2,3/2500 = 49*10 -6 %
Пролет «Рахат Палас»-«ТехаКа-банк»
SES = 0,054* L/2500 = 0,054*5,8/2500 = 125*10 –6 %
При сравнении полученных значений с нормами, видно, что эти значения меньше норм, т.е. нормы выполняются.
8. Определение зоны обслуживания ЦС системы радиодоступа ІRТ-2000
Исходные данные для расчета:
Мощность передатчика 1 Вт
Минимальный порог уровня на входе приемника -77 дБм
Частота приема 2314 МГц
Частота передачи 2384 МГц
Затухание в фильтрах и антенных разделителях 7дБ
В качестве антенны ЦС используется четвертьволновой штырь
Диаграмма направленности 360 градусов
Коэффициент усиления антенны ЦС 8 дБ
В качестве антенны АС используется полупорабола
Диаграмма направленности 6,1 градус
Коэффициент усиления антенны АС 28,3 дБ
Высота на которой расположена антенна ЦС составляет 48 м
При этом длина соединительного фидера 12 м
В качестве фидера используется кабель АNDREW LDFS - 50А НЕLIАХ
Высота приемной антенны 10 м
Погонное затухание данного кабеля на частоте 2300 МГц равно 7,05 дБ на 100 м.
Напряженность поля при которой обеспечивается достаточное качество
приема равна 45 дБ
Определим зону обслуживания [10], для этого определим неровность местности по четырем направлениям относительно антенны ЦС: северное, южное, восточное, западное. При этом оставим неизменными все значения:
а) определим затухание в фидере ЦС по формуле [10]:
Вф =а*1Ф , (40)
где a - погонное затухание фидера, равное 7,05 дБ на 100 м;
1ф - длинна фидера, равна 12 м. подставим эти значения в формулу (40),
ВФЦС =7,05*0,12 = 0,8 дБ.
б) рассчитаем ВР .Н . -поправку, которая учитывает отличие номинальной мощности передатчика от мощности 1 кВт, по формуле:
В р. н. = 10 *lg (1000/Рн ), (41)
тогда В р. н. = 10*lg(1000/1) = 30 дБ
в) рассчитаем Вһ2 -поправку, учитывающую высоту приемной антенны отличную от 10 м, по формуле:
Вһ2 =10*lg(10/h2 )
тогда Вһ2 = 10*lg (10/10) = 0 дБ (42)
г) Определяем Врел - поправку, учитывающую рельеф местности следующим образом. График для определения рельефа местности, приведен на рисунке 12 (а). Чтобы определить колебание уровня местности ΔҺ , рисуют рельеф местности и определяют колебание ΔҺ . Когда ΔҺ отличается от 50 м в ту или иную сторону, следует вносить поправки, определяемые по графикам рисунка 12 (6) и рисунка 13 (в). Причем коэффициент Врел определим интерполируя между графиками рисунка 12 (6) и рисунка 13 (в) для г<100 км.

Рисунок 12.-График для определения поправки учитывающей рельеф местности
Северное направление:
ΔҺ1 = 20 м - преобладают 4-5 этажные постройки на расстоянии до 8 км все постройки и деревья на более дальнем расстоянии не превышают 14 м.
ΔҺ2 = 14 м
Следовательно поправка учитывающая рельеф местности равна:
В р. Н. =-6 дБ.
Восточное направление:
ΔҺ1 = 14м - на протяжении 3,5 км жилые постройки отсутствуют, но есть деревья, на более дальнем расстоянии высота строений достигает 28 м.
ΔҺ1 = 28 м
Следовательно поправка учитывающая рельеф местности равна: В р. Н. = - 4 дБ.
Южное направление:
Данное направление характеризуется тем, что строения не превышают ΔҺ1 = 10 м на расстоянии до 3 км на более дальнем расстоянии начинается предгорье Заилийского Алатау и на расстоянии 5 км высота местности достигает ΔҺ2 = 200 м, относительно уровня на котором расположена ЦС
Врел = 7 дБ.
Западное направление:
Данное направление характеризуется тем, что высоты строений достигает 28
м, так как преобладают в основном 9-и этажные жилые дома
Врел = - ЗдБ.
д) РассчитаемΔВ0 - поправку, учитывающую уменьшение восприимчивости к помехам по сравнению с четвертьволновым штырем.
ΔВ0 = 10*lg (Өк /360), (43)
Тогда ΔВ0 = 10*lg (6,1/360) = - 17,7 дБ
е) Определим затухание в фидере АС по формуле (39):
ВФАС = 7,05*0,1 = 0,7 дБ.
ж) Определим напряженность поля, реально создаваемое передающей
станций ЦС в пункте приема АС по основной расчетной формуле:
Е = Ес + Вр.н. + Вфцс + Вфас + ВҺ2 + ВРеЛ +2*Вф – DАЦС - DААС + ΔВ0 , (44)
тогда:
Северное направление:
Е = 45 + 30 + 0,8 + 0,7-6 + 14- 8 - 28,3 - 17,7 = 30,5 Д Б.
Восточное направление:
Е = 45 + 30 + 0,8 + 0,7 - 4 + 14 - 8 - 28,3 - 17,7 = 32,5 Д Б.
Южное направление:
Е = 45 + 30 + 0,8 + 0,7 + 7 + 14 – 8 - 28,3 - 17,7 = 43,5 Д Б.
Западное направление:
Е = 45 + 30 + 0,8 + 0,7 - 3 + 14 - 8 - 28,3 - 17,7 = 33,5 Д Б.
По графику рисунка 13 определим ожидаемую дальность связи для рассчитанной напряженности поля при высоте передающей антенны 48 м.

Рисунок 13. - Кривые для определения дальности связи
В северном направлении дальность связи составляет 25 км.
В восточном направлении дальность связи составляет 22 км.
В южном направлении дальность связи составляет 12 км.
В западном направлении дальность связи составляет 21 км.
Следует отметить, что даже в условиях города с довольно плотной застройкой и высотой антенны ЦС 48 м, целесообразно использовать абонентские станции с установкой антенны на высоте 15 м.
Для проверки правильности расчетов. Минимальный порог уровня на входе
приемника, определяется по следующей формуле:
Р прм = Рпрд *G прд *G прм * λ2 /(4πr)2 *Lдоп *Z(ВТ),
или в ДБ
Рпрм = Рпрд + Gпрд + Gпрм +20*lg λ – 20 lg(4π) – 20lgr -Lдоп - z,(45),
Где z = 5 дБ - запас помехоустойчивости к внешним помехам;
Lдоп = 10 дБ - дополнительные потери.
Подставим все известные значения в формулу (45)
Рпрм = -30 +8+ 28,3 +20* lg 0,125 -20lg (4*3,14) – 20 lg25 – 10 – 5 = -77 дБм.
Полученное значение получилось такое же как и в задании, следовательно расчет произведен верно.
9. Охрана труда и безопасность жизнедеятельности.
9.1. Меры безопасности при монтаже и эксплуатации антенны
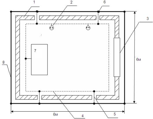
Антенная система земной станции компании «Рахат Телеком» состоит из опорно-поворотного устройства и двух зеркальной антенны выполненной по схеме Касегрейна. Опорно-поворотное устройство, высота которого составляет 4,7 м. крепится к специально подготовленному фундаменту. Диаметр большого зеркала двух зеркальной антенны составляет 9,3 м. Общая масса конструкции 5 тонн.
В связи с тем, что антенная система представляет собой громоздкое сооружение, работающему персоналу следует соблюдать правила техники безопасности при проведении механосборочных и наладочных работ. В случае не соблюдения правил техники безопасности работающему персоналу грозит получение травм различной степени тяжести, начиная от ушибов и зажимов в движущихся элементах конструкции и заканчивая облучением электромагнитным полем в случае включенного передатчика. В связи с этим предусматривается ряд мер соблюдение которых исключает травматизм. Среди этих мер выделим такие как: работы ведутся квалифицированным персоналом, изучившим инструкцию по установке антенной системы, не моложе 18 лет и прошедшие медицинское освидетельствование; все производимые работы оформляются нарядом; перед выполнением работ бригадир бригады проводит инструктаж личного состава по мерам и правилам безопасности, при этом уделяет особое внимание на меры безопасности при перемещении грузов. Работы по сборке антенны выполняет бригада не менее 3-х человек; работающий персонал использует средства индивидуальной защиты такие как каски, страховочные ремни безопасности и т.д. Работы с составными частями антенной системы проводятся при помощи крана с вылетом стрелы не менее 10 метров и грузоподъемностью не менее 3-х тонн; разгрузочные работы осуществляются под руководством специально выделенного лица из административно-технического персонала, который определяет безопасные способы разгрузки и несет непосредственную ответственность за соблюдение правил техники безопасности при проведении этих работ. Автокрановщик имеет удостоверение на право проведения подъемно перегрузочных работ, имеет классность не ниже 2-го и выбирается из самых опытных автокрановщиков автохозяйства; автокран укомплектован стропом грузоподъемностью не менее 3-х тонн, количеством каналов не менее 4-х и длиной не менее 2-х метров, расстояние между поворотной частью крана и выступающими частями конструкции не менее 1 метра. По сигналу «стоп» машинист немедленно прекращает работу крана, не зависимо от того, кто подал сигнал, при подаче команды явно противоречащей правилам техники безопасности, машинист ее не выполняет; перед подъемом груза лицо подающее команду, сообщает вес поднимаемого груза. Вес поднимаемого груза с учетом грузозахватных устройств и приспособлений не превышает грузоподъемности крана при данном вылете стрелы. Перед выполнением рабочих операций (подъем груза, изменение вылета стрелы, поворот стрелы и т.д.) машинист подает звуковой сигнал; подъем и опускание груза и стрелы, поворот стрелы, перемещение крана, а также торможение во всех направлениях выполняются плавно, без рывков; в работе используется исправное такелажное оборудование; применяемые при такелажных работах подъемные механизмы и вспомогательные приспособления соответствуют по своей грузоподъемности поднимаемым грузам, на всех подъемных механизмах сделаны надписи о предельной нагрузке и указана дата последнего испытания, вспомогательные средства снабжены клеймом, указывающим время проведения последнего осмотра
Кроме этого запрещается: проводить работы при ветре более 3 м/сек; использовать инструмент и приспособления не по назначению; во время подъемно-перегрузочных работ находиться под грузом; проводить подъемно-перегрузочные работы автокраном вблизи ЛЭП ближе 10 метров; вставлять какие-либо предметы в подвижные сочленения, прикасаться руками к подвижным частям при работающих приводах; ослаблять винты крепления приводов к опорно-поворотному устройству во избежание потери ориентации антенны; изгибать кабели смонтированные на приводах при температуре воздуха ниже минус 10 градусов С; при включенном оборудовании и подаче мощности, обслуживающему персоналу проводить какие либо работы; находиться около заземлителей во время грозы и при ее приближении.
9.2. Безопасность труда оператора при работе с ЭВМ
Обслуживающий персонал компании «Рахат Телеком » работающий в спутниковом отделе, в основном имеет дело со считыванием информации обработанной ЭВМ. В качестве отображения обработанной информации служит монитор фирмы LG (модель "Flatгоп") с размерами по диагонали 15 дюймов, с возможностью настройки яркости, цветности и контастности, с плоским экраном, снабженным защитным фильтром, снижающим излучение.
Деятельность оператора при приеме информации связана с восприятием информации о состоянии объекта управления и внешней среды, а его действия заключаются в обнаружении, выделении, опознавании сигналов.
Для того, чтобы деятельность оператора была наиболее результативна и адекватна принимаемой информации и на него не действовали такие психофизические факторы, как умственное перенапряжение, перенапряжение зрительных анализаторов, монотонность труда, эмоциональные перегрузки. Компания уделяет большое внимание эргономике, микроклимату и устройству рабочего места оператора.
Температура воздуха оказывает существенное влияние на самочувствие и результаты труда человека. Низкая температура вызывает охлаждение организма и может способствовать возникновению простудных заболеваний. При высокой температуре возникает перегрев организма, что ведет к повышенному потовыделению и снижению работоспособности персонала. Работник теряет внимание, что может стать причиной несчастного случая[11].
Повышенная влажность воздуха затрудняет испарение влаги с поверхности кожи и легких, что ведет к нарушению терморегуляции организма и, как следствие, к ухудшению состояния человека и снижению работоспособности . При пониженной относительной влажности (менее 20 %) у человека появляется ощущение сухости слизистых оболочек верхних дыхательных путей [11].
Для обеспечения оптимальных микроклиматических условий в здании предусмотрена система отопления и кондиционирования воздуха, в результате чего параметры микроклимата удовлетворяют ГОСТ12.1.005-88 ССБТ «Воздух рабочей зоны, общие санитарно-гигиенические требования» для 1а категории работ (легкая физическая). Температура воздуха поддерживается постоянно на одном уровне 22-24 градуса С0 , относительная влажность воздуха 40-60 %
Для того, чтобы оператор чувствовал себя комфортно, устройство рабочего места имеет очень важное значение, поэтому монитор размещается на столе или подставке так, чтобы расстояние до экрана не превышало 700 мм (оптимальное 450-500 мм), по высоте располагается так, что угол между нормалью к центру экрана и горизонтальной линии взгляда составлял 20 градусов и в горизонтальной плоскости угол наблюдения не превышал 60 градусов. Клавиатура размещается на стандартном столе высотой 750 мм под углом 15 градусов к плоскости стола, на расстоянии 100-130 мм от края. Используется кресло с регулируемой высотой сидения. Документ для ввода оператором данных располагается на расстоянии 450-500 мм от глаз оператора, слева, при этом угол между монитором в горизонтальной плоскости составляет 30-40 градусов [11].
9.3 Расчет искуственного освещения .
Большое внимание уделено освещению рабочего места оператора, так как свет влияет, а состояние организма человека. Правильно организованное освещение стимулирует протекание процессов высшей нервной деятельности и повышает работоспособность. При недостаточном освещении человек работает менее продуктивно, быстро устает, растет вероятность ошибочных действий. В зависимости от длины волны свет может оказывать возбуждающее (оранжево-красный) или успокаивающее (желто-зеленый) действие. Спектральный состав влияет на производительность труда. Исследования показывают, что если выработку человека при естественном освещении принять за 100 %, то при красном и оранжевом освещении она составляет лишь 76 %. У людей, которые по каким либо причинам частично или полностью лишены естественного света может возникнуть световое голодание. В связи с этим в компании уделяют болъшое внимание освещению рабочего места оператора и оно удовлетворяет следующим условиям [12]:
• Уровень освещенности рабочих поверхностей соответствует гигиеническим нормам для данного типа работы;
• Обеспечена равномерность и устойчивость уровня освещенности в помещении, отсутствуют резкие контрасты между освещенностью рабочей поверхности и окружающего пространства;
• В поле зрения не создается блеска источниками света и другими предметами;
• Искусственный свет, используемый в помещении, посвоему спектральному составу приближается к естественному в помещении используется совмещенная система освещения, недостаток естественного освещения компенсируется искусственным освещением, для этого используются люминесцентные лампы типа ЛДЦ (лампы дневного света улучшеной цветопередачи).
Так как при работе оператора размер объекта различения составляет 0,15 мм, то его работу можно отнести к 1 разряду зрительной работы (работы наивысшей точности) [13].
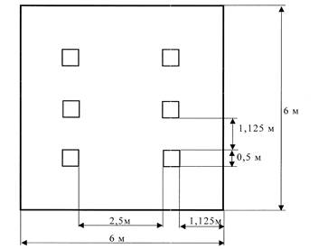
Для того чтобы обеспечить приемлемую освещенность, удовлетворяющую 1 разряду зрительной работы, данного помещения необходимо рассчитать количество светильников. В связи с тем что разряд зрительной работы 1 г, освещенность должна составлять 400 лк. Для обеспечения этой освещенности зададимся тем, что подвесной потолок оборудуется потолочными осветителями для общего равномерного освещения (четырехламповые) с люминесцентными лампами типа ЛДЦ-80. Помещение имеет следующие размеры: длина А = 6 м, ширина В = 6 м, высота Н = 2,5 м, потолок белый, стены светлые.
Коэффициенты отражения потолка стен пола, соответственно равны ρп = 70% и рс = 50 %,ρП= 30%
Для данного помещения уровень рабочей поверхности (стол) над полом
Һ1 = 0,75 м.
Определим расстояние между рабочей поверхностью (стол) и потолком:
Һр = Н-Һ1 = 2,5-0,75 = 1,75 м.
У данного типа наивыгоднейшееотношение [14].
λ = L/h = 1,4,
где L - расстояние между рядами светильников, м.
H - высота подвеса, м.
hP –расчетная высота.
Определим расстояние между рядами светильников .
L = Һ* λ = 1,75*1,4 = 2,45 м,
тогда число рядов светильников будет =2
Расстояние между стенами и крайними рядами светильников определяется по следующей формуле:
L = 0,3*L = 0,3*2,45 = 0,7 м.
С учетом значений коэффициента рс , рн при I = A*B/h*(A+B) = 6*6/1,75*(6+6) = 1,7 тогда коэффициент использования светового потока равен η = 0,48. Номинальный световой поток лампы ЛДЦ-80 равен Fл = 2720 лм. Следовательно световой поток светильника, равен
Fсв = Fл *n
где n = 4 - число ламп в светильнике. Тогда
Fсв = 2720*4 = 10880 лм.
Определим необходимое число светильников в ряду по следующей формуле:
N = E*K*S*Z*/n*Fсв * η, (46)
где Z =1,1-коэффициент неравномерности освещения;
К =1,5 - коэффициент запаса, учитывающий запыление светильников, при условии чистки светильников не реже двух раз в год;
n - число рядов светильников.
Подставим известные значения в формулу (46) и определим число светильников в ряду:
N = 400*1,5*36*1,1/2*10880*0,48 = 3.
По результатам проведенного расчета можно сделать вывод, что для обеспечения требуемой освещенности (400 лк) помещения площадью 36 кв. метров, в котором работает оператор, достаточно использовать шесть 4-х ламповых светильников с лампами ЛДЦ-80.
Схема расположения светильников на потолке помещения приведена на рисунке 
Рисунок 14.План помещения операторской с размещением светильников.
9.4. Пожарная безопасность
Согласно прил.2. СНиП 2.04.09-84 здание «Телепорт» компании «Рахат Телеком» по степени опасности развития пожара, от функционального назначения и пожарной нагрузки горючих материалов, относится к 1-ой группе, категории В. К категории В, помещение относится по тому, что в смежной комнате с комнатой обслуживающего персонала, расположена дизельная установка.
В помещении горючими компонентами являются строительные материалы для акустической и эстетической отделки, перегородки, двери, полы, изоляция силовых, сигнальных кабелей, обмотки радиотехнических деталей, изоляция соединительных кабелей ячеек, шкафов, жидкости для очистки элементов и узлов ЭВМ от загрязнения и др.
Источниками зажигания могут оказаться электронные схемы ЭВМ, приборы, применяемые для технического обслуживания, устройства электропитания, кондиционеры воздуха, и др.
В связи с тем, что в помещении находится дорогостоящее оборудование, и многие процессы выполняются в автоматическом режиме, следует установить газовую систему автоматического пожаротушения дренчерного типа[14].
В качестве огнетушащего вещества применяется комбинированный углекислотно-хладоновый состав.
Расчетная масса комбинированного углекислотно-хладонового состава md кг, для объемного пожаротушения определяется по формуле[14]:
md =k*gn *V,
где k = 1,2 - коэффициент компенсации не учитываемых потерь углекислотно-хладонового состава,
gп = 0,4 - нормативная массовая концентрация углекислотно-хладонового состава,
V - объем помещения,
V = А*В*Н, (47)
где А = 6 м- длина помещения,
В = 6 м- ширина помещения,
Н = 2,5 м- высота помещения.
Тогда: V = 6*6*2,5=90 м3 . Следовательно:
md =1,2*0,4*90 = 43 кг.
• При наличии постоянно открытых проемов, площадь которых составляет от 1% до 10% площади ограждающих конструкций помещений, следует принять дополнительный расход углекислотно-хладонового состава, равный 5 кг на 1 м2 площади проемов.
Расчетное число баллонов ε определяется из расчета вместимости в 40 - литровый баллон 25 кг углекислотно - хладонового состава.
• Внутренний диаметр магистрального трубопровода di мм, определяется по формуле
dі = 12* √2= 17 мм.
•Эквивалентная длинна магистрального трубопровода I2, м, определяется по формуле:
I2 = k1 *I.
где k1 = 1,2 - коэффициент увеличения длины трубопровода для компенсации не учитывающих местных потерь, I = 33м- длина трубопровода по проекту тогда, I2 = 1,2*33 = 40 м.
Площадь сечения выходного отверстия оросителя Аз, мм2 , определяется по формуле:
Аз = S/ ε1 , (48)
где S - площадь сечения магистрального трубопровода, мм2 ;
ε1 - число оросителей, тогда
Аз = 3,14*8,52 /3 = 75 мм2 .
Расход углекислотно-хладонового состава Q, кг/с, в зависимости от эквивалентной длины и диаметра трубопровода равна 1,4 кг/с
Расчетное время подачи углекислотно-хладонового состава t, мин, определяется по формуле:
t = md /60Q = 43/60*1,4 = 0,5 мин.
• Масса основного запаса углекислотно-хладонового состава m, кг, определяется по формуле:
m = 1,1*md *(1+k2 /k),
где k2 = 0,2 - коэффициент учитывающий остаток углекислотно - хладонового состава в баллонах и трубопроводах тогда:,
m = 1,1*43*(1+0,2/1,2) = 55 кг.
Таким образом из полученных результатов можно сделать вывод, что для обеспечения нормального функционирования системы автоматического пожаротушения потребуется 2 баллона углекислотно-хладонового состава вместимостью 40 литров, с массой смеси 25 кг и рабочим давлением 12,5 МПа. В помещении установлено 3 оросителя, продолжительность выпуска заряда составляет 0,5 с.
Расстояние между двухструйными насадкамине более 4-х метров, а от насадок до стен не более 2-х м.
Автоматические установки газового пожаротушения имеют устройства для автоматического пуска в соответствии с ГОСТ 12,4.009-83
Магистральные и распределительные трубопроводы выполняются из стальных труб ГОСТ 8734-75.
Кроме того в помещении находятся ручные огнетушители, плакаты, запрещающие использование открытого пламени, пожарные щиты, а также плакаты запрещающие курение, так как в помещении установлен дымовой извещатель ионизационного вида, размещенный под потолком на высоте 2,45 м.
9.5 Расчет защитного заземления
Требования к заземлению электрооборудования:
Заземление теллекоммуникационного оборудования должно выполнятся с целью:
-защиты персонала от поражения электрическим током при повреждения изоляции.
-защиты от электрических разрядов.
-защиты оборудования от электромагнитных помех.
Стойки, металлические кронштейны с изоляторами, антенные устройства ТВ, а также металлические части шкафов, кроссов, пультов и другие металлоконструкции, должны быть заземлены .
Заземление оборудования связи следует выполнять согласно техническим требованиям на это оборудование.
Исходные данные.
Все оборудование здания питается от трехфазной сети, напряжением 380В с изолированной нетралью.Общая мощность источников питания сети превышает 100 кВА. Здание имеет железобетонный фундамент на суглинистом грунте.
Поскольку питающая сеть не привышает 1000 В, имеет изолированую нейтраль и мощность источников питания более 100 кВА, в качестве нормативного сопротивления заземления берем Rh =4 Ом.
Тип заземления - контурный, при котором заземлители располагаются по контуру внутри помещения. Помещение имеет следующие размеры: А=6 м, В =6 м
Контур состоит из вертикальных электродов — стальных труб длиной 1 = 2.6 м, из угловой стали шириной полки b = 0.5м, соединенных горизонтальной полосой длиной равной периметру контура.
В качестве горизонтального электрода применим стальную полосу сечением 50x4 мм. Глубина заложения электродов в землю t0 = 0,7 м.
Расчет сопротивления одноэлектроных вертикальных заземлений :
Сопротивление R трубчатого вертикального заземления,помещеного на глубину h от поверхности земли определяем по формуле:
Rв =p/6.28•I•(In• 2•I/d+I/2•In•3I+4h/I+4h),
Rв =80/6.28·2.6·(In·2·1/0.05+1/2·In·3·2.6+4·0.7/2.6+4·0.7)=25.5Ом
Удельное сопротивление грунта Р = 80 Ом*м,I-длина трубы (0.05м), h-расстояние поверхности земли до верхнего конца трубы (h=0.7м)
Rв =25.5 Ом.
Значения угловой стали d=0.95·b=0.0475
Расчет горизонтальных заземлений:
Сопротивление заземления в виде вытянутой металлической полосы, определим по формуле:
Ri =p/6.28·I·In·I2 /0.5·b·h ,
Ri =80/6.28·2.6 ·In·2.62 /0.5·0.05·0.7=28.91Ом
I-длина заземления (2.6м)
h-глубина прокладки полосы (0.7м)
b-ширина полосы (0.05м)
Ri =28.91Ом
Для снижения сопротивления горизонтального заземления более целесобразно увеличить его длину, а не диаметр и примерить оцинкованую стальную проволоку (4-5мм).
Расчет сопротивления многоэлектроных заземлений:
Так как вертикальные и горизонтальные заземлители имеют большое сопротивление, для получения требуемой величены сопротивления необходимо устраивать заземляющиее устройство из нескольких заземлителей, включеных параллельно.
Полное сопротивление нескольких вертикальных заземлителей одинакового сопротивления, соединеных параллельно с помощю горизонтальных заземлителей (полос или провода), определяется по формуле:
Ru =Rв ·Rr / q1 ·Rr + q2 ·n·Rв , (49)
Ru = 25.5·28.91/0.82·28.91+0.81·10·25.5=3.2 Ом
Rв - сопротивления горизонтального заземления
Rr -сопротивление вертикального заземления
q1 -коэффицеинт использования горизонтальных заземлений.
(табличное значение при n=10 q1 = 0.82)
q2 – коэффициент использования вертикальных заземлений (табличные значения при n=10 q2 = 0.81)
n- количество вертикальных заземлителей .
Примечание: заземлители размещены в ряд.
Ru =3.2 Ом меньше чем Rн = 4 Ом.
На рисунке 15. изображена схема расположения заземлителей.

1-расположение стойки оборудования (вид сверху)
2-электрическая розетка
3- входная дверь
4- магистраль заземления
5- металичиский стержинь
6- заземлитель
7- стойка оборудования
8- заземляющие устройство контурного вида
10.Бизнес - план
10.1 Сущность проекта
Использование спутниковых систем для передачи информации в последнее время получает весьма широкое распространение, так как имеет большие перспективы развития и является выгодным капиталовложением.
Фиксированная спутниковая служба это служба, занимающаяся организацией международных и национальных сетей связи, в которых обеспечивается передача различных видов информации: в данном случае телефонного обмена и обмена данными.
Проектирование данной радиолинии обусловленно созданием конкуренции и тем самым демонополизации рынка.
В партнерстве с австралийской компанией Теlstга и Вгitish Теlekom, Ratel предоставляет ряд услуг, включающих:
• Высококачественную цифровую международную и междугородную телефонную связь по прямым международным каналам.
• Беспроводные стационарные телекоммуникационные сети
• Высокоскоростные магистрали передачи данных
• Доступ к глобальной компьютерной сети Іnternet;
• Интегрированные телекоммуникационные решения на базе оборудования Егісssоn, Nortel, Siemens для корпоративных сетей.
Развиваться будет наземный сегмент.
10.2 Характеристика проекта
Цель данного бизнес-плана- экономическое обоснование эффективности организации международной корпоративной системы связи в том, что данный проект является выгодной инвестицией. Компания «Рахат телеком» как телекоммуникационный оператор фиксированной спутниковой службы, предоставляет услуги международной и междугородней связи, посредством собственной выделенной телекоммуникационной сети. В соответствии с проектом на территории города Алматы будет введен в действие спутниковый телепорт, который соответствует международным стандартам. Вкладывание финансовых средств в данный проект, способствует развитию спутниковой связи в нашем государстве, в частности высокоскоростной связи за счет использования цифровой спутниковой системы связи.
Задача данной компании состоит в том, чтобы войти на мировой рынок на высоком техническом уровне при оптимальных затратах и укрепиться на нем в сфере предоставления услуг связи.
Продукцией данной компании являются услуги всех видов связи.
10.3 Маркетинг
а) Рынки
Сейчас в мире существует множество фирм предоставляющих услуги спутниковой телефонной связи, однако в Казахстане их не так много, т.е. данный род услуг не достиг своего насыщения. Путем совершенствования бортовой аппаратуры и земной станции (повышение качества приема, обработки и передачи сигнала, увеличение срока службы бортовой аппаратуры, точности удержания спутника на орбите) соответственно упрощая земные приемники и передатчики, снижая их стоимость. Данная компания пытается привлечь абонентов на свою сторону. Ниже перечислена информация о положении данной компании на рынке города Алматы.
Тарифная политика заключается в возможности доступа всех категорий к услугам связи, т.е. это означает что для разных категорий потребителей будут установленны различные тарифы. Кроме того, будут предположены различные виды тарифных планов учитывающие время суток, дни недели, праздничные дни, а таже проведение различных акций, таких как: ВОВ, женские праздники, для детей и т. д.
Как видно из таблицы самым сильным конкурентом является компания «Теlsat». В следующем пункте будет описана стратегия расширения рынка.
б) Продвижение услуг
Данная компания придерживается следующей политики: компания начинает свою деятельность с выходом рекламы, подчеркивая высокое качество связи, предоставляя такие услуги как: высококачественная цифровая международная, междугородняя телефонная связь по прямым международным каналам; беспроводные стационарные телекоммуникационные сети с использованием системы радиодоступа (ІRТ) и радиорелейного оборудования, что позволяет обеспечивать связью районы города и пригорода где не возможны кабельные соединения; высокоскоростные магистрали передачи данных; доступ к сети Internet и т.д.
Конкурентно способные тарифы на услуги международной связи, а также полный пакет услуг связи. Благодаря проведенным мероприятиям, таким как различные тарифные планы, акции, цены на услуги связи будут дешевле чем у конкурентов и при этом будет гарантированно соединение включая часы пик, при высоком качестве связи. Успехам данной компании будет содействовать такое же высокое сервисное обслуживание специалистами высокого класса по подключению, ремонту настройке аппаратуры, т.е. в случае поломки оборудования приезд специалистов и замена неисправных модулей и восстановление соединения.
Намечено четыре основных этапа реализации проекта:
• Создание телекоммуникационной спутниковой линии связи, включающей в себя ЗС, взятый в аренду ствол бортового ретранслятора и абонентское оборудование.
• Дальнейшее расширение потенциальных возможностей системы расширение телекоммуникационной сети, осуществление передачи через другие спутники. В осуществлении описанного плана возможны следующие трудности: невозможность сразу привлечь необходимое число абонентов, что сразу не позволит получить необходимое число прибыли. Низкая абонентская плата, что также будет отрицательно влиять на получение прибыли.
• Длительный срок осуществления плана.
• Развертка активной рекламной компании, поддержка высокого уровня квалификации обслуживающего персонала, а также предъявив высокие требования к исправности работы бортового ретранслятора на испытаниях.
Офис данной компании расположен в центре города, где в дальнейшем будет производиться ремонт и обслуживание абонентской аппаратуры.
10.4 Организационный план
Данный проект компания будет осуществлять в сотрудничестве с компаниями Теlstra (Австралия) и Вгitish Теlekom (Англия). Финансирование данного проекта осуществляет компания Теlstra, которая вкладывает свои инвестиции в страну. Установку и обслуживание будут осуществлять местные специалисты работающие в данной компании. Поставку всего необходимого оборудование будет осуществлять зарубежный партнер, являющийся одним из крупнейших мировых производителей оборудования ЗС. Для реализации данного проекта потребуется следующее оборудование.
Примем стоимость 1 у.е. равной 137 тг. по курсу Нац.банка РК.
Таблица 3 Стоимость оборудования
| Наименование оборудования |
Цена оборудования у.е., тыс.тг. |
Количество оборудования |
Сумма с учетом транспортных расходов тыс.тг. |
|||
| 1 |
2 |
3 |
4 |
|||
| Передатчик ЗС |
120 000 у.е. |
1 |
122 400у.е. |
|||
| 16 440 000 тг. |
16 768 800 тг. |
|||||
| Приемник ЗС |
30 000 у.е. |
1 |
30 600 у.е. |
|||
| 1 110 000 тг. |
4 192 000 тг. |
|||||
| Антенна ЗС |
100 000 у.е. |
1 |
102 000у.е. |
|||
| 13 700 000 тг. |
13 974 000 тг. |
|||||
| Блок питания |
200 у.е. |
1 |
200 у.е. |
|||
| Продолжение таблицы 3 |
||||||
| 27 400 тг. |
27 400 тг. |
|||||
| Маршрутизатор |
5 000 у.е. |
2 |
10 200у.е. |
|||
| 685 000 тг. |
1 397 400 т.г |
|||||
| Спутниковый |
4 000 у.е |
1 |
4 080 у.е |
|||
| Модем |
548 000 тг. |
558 960 тг. |
||||
| Система |
35 000у.е. |
1 |
35 700 у.е. |
|||
| радиодоступа ІКТ |
4 795 000 тг. |
4 890 900 тг. |
||||
| Оборудование РРЛ с мультиплексорами |
12000у.е. 1 644 000 т.г |
1 |
12 240у.е. 1 676 880 тг. |
|||
| Вышка системы радиодоступа |
11 000 у.е. 1 507 000 тг. |
1 |
11 200 у.е. 1 537 140 тг. |
|||
| Стоимость всего оборудования с учетом доставки. |
317 420у.е. 43 486 540 тг. |
|||||
Отдельная смета на установку оборудования не выделяется, так как установку оборудования будут осуществлять специалисты данной компании.
Предполагается следующая расстановка рабочего персонала для обеспечения функционирования разработанной системы.
Таблица 4 - штат сотрудников необходимых для функционирования системы
| Занимаемая должность |
Количество человек |
|
| Генеральный директор |
1 человек |
|
| Главный бухгалтер |
1 человек |
|
| Главный менеджер по продвижениюи реализации услуг |
1 человек |
|
| Менеджеры по продвижению и реализации услуг |
2 человека |
|
| Инженерыэлектронщики обслуживающие ЗС, систему радиодоступа и осуществляющие подключение абонентов. |
5 человек |
|
| Операторы ЭВМ следящие за спутникового оборудования и состоянием радиодоступа системы состоянием радиодоступа. |
2 человека |
|
| Монтер |
1 человек |
|
| Итого |
13 человек |
|
Заработная плата данного рабочего персонала будет производится за счет вырученных средств за предоставление услуг связи.
В процессе эксплуатации данной системы связи необходимо приобретение транспортного средства стоимость которого составляет 3% от стоимости оборудования т.е. 9 522 у.е. или 1304514 тг.
а) Капитальные вложения включают в себя:
К вл = К обр + К транс + К доп. об. и монт. ср. + К за.обл.част., (50)
где К 0бор - стоимость приобретаемого оборудования для функционирования данной системы связи;
К Трапс. - стоимость транспортного средства необходимого для эксплуатации, установки и ремонту данной системы связи. Определяется укрупненным методом и берется равным 3 % от стоимости оборудования.
КТра „с . = 0,03 * К0бор = 0,03 * 3 17420 = 9 522 у.е. или 1 304 514 тг.
К доп..об.имонт. ср . стоимость дополнитсльного оборудования (кабеля, изоляционная лента и т.д.) и монтажные средства (болты, гайки и т.д.). Определяется укрупненным методом и берется равным 3 % от стоимости оборудования.
К доп. об. и монт. ср. =0,03 * К06ор = 0,03 * 317420 = 9522у .е . или 1 304 514 тг.
К за.обл.част ., - плата за обладание частотой, в настоящее время единовременной
платы за обладание частотой в Р.К. отсутствует.
Определим капитальные вложения по формуле (47).
К вл = 317420+9522 + 9522 + 0 = 336464у .е .или 46 095 568 тг.
б) Текущие затраты на эксплуатацию данной системы связи.
Эр = ФЗП + ОСС + А + Ап + Зэ „„ + Ккр +Нр + АРС + НСрч . (48)Определим фонд заработной платы
ФЗП = ФОТ +3доп (51)
Таблица 5 Заработная плата .
| Должность |
Кол-во человек |
Оклад тг/мес |
Сумма тг/мес |
| Генеральный директор |
1 |
40000 |
40000 |
| Главный бухгалтер |
1 |
25000 |
25000 |
| Главный менеджерпо продвижению и реализации услуг |
1 |
25000 |
25000 |
| Менеджеры по продвижению и реализации услуг |
2 |
20000 |
40000 |
| Техники электронщики |
5 |
15000 |
75000 |
| Операторы ЭВМ |
2 |
12000 |
24000 |
| Монтер |
1 |
9000 |
9000 |
| Итого |
238 000 |
||
Соответственно фонд оплаты труда за год составит:
ФОТ = 238 000* 12 = 2856000 тг.
Заработная плата с учетом премиальных составит:
Здоп =0,2*2856000 = 571200 тг.
Подставим найденные значения в формулу (51)
ФЗП = 2856000+571200 = 3427200 тг.
•Отчисления на социальный налог за вычетом пенсионного фонда составят:
ОСС = 0,21 *0,9*ФЗП = 0,21 *0,9*3427200 = 647740,8 тг.
•Амортизационные отчисления на систему связи по существующему положению в настоящее время 15%.
А = На (%)*Квл /100% = 15*52151920/100 = 7822788 тг.
•Аренда помещения находящегося на территории торгово-выставочного комплекса «Атакент» площадью 100 кв.м. стоимостью 600 тг. за 1 кв.м за месяц.
АРП = ПаР * S *T = 600*100*12* =720000 тг/год.
•Расходы на электроэнергию для производственных нужд, включают в себя расходы электроэнергии на оборудование и дополнительные.
ЗЭЛ.ЭН. = ЗЭЛ.ЭН.ОБР. + ЗДОП.НУЖ.,
ЗЭЛ . ЭН . ОБР = W*T*S*
где W = 15 кВт - потребляемая мощность;
Т = 8670ч - время работы;
S - тариф (1кВтч = 5,22тг).
ЗЭЛ.ЭН.ОБР = 15 * 8670* 5,22 = 678861 тг/год.
Затраты на дополнительные нужды возьмем по укрупненному показателю 5% от затрат на оборудование.
ЗДОП. НУЖ., = 0,05 * ЗЭЛ.ЭН.ОБР = 0,05 * 678861 =33943 тг/год,
тогда ЗЭЛ.ЭН = 678861+33943 = 712804 тг/год.
•Арендная стоимость одного ствола бортового ретранслятора за 3 года составляет 231000 у.е. или 31647000 тг., данная сумма выплачивается ежегодно хозяину спутника т.е. организации Іntelsat;.
Арс = 3 1647000 тг/Згод.
• Так как кредит берется на сумму 43 486 540 тг. на оборудование и 31647000 тг за аренду ствола бортового ретранслятора сроком на 3 года, согласно процентной ставке равной 10% .
Кр = 1,1 * (31647000 + 43486540) / 3 = 27548964 тг.
•Накладные расходы составят:
Нр = 0,75 * ФЗП = 0,75 * 43486540= 32614905 тг.
• Определим налог за использование радиочастотного спектра в казну РК: спутниковая связь без НUВ-технологии (за использование частоты одной станции) 100 минимальные расчетные показателей.
Радиорелейные линии (за дуплексный ствол на одном пролете), местных 40 минимальных расчетных показателей, т.к. имеется 2 пролета, то оплата за РРЛ составит 80 минимальные расчетные показателей.
WLL (за дуплексный канал шириной 2,1 МГц на прием/2,1 МГц на передачу) 90 минимальных расчетных показателей.
Соответственно налоги за использование спектра радиочастот составят:
НРч = 825 * (100 + 80 + 90) = 222750 тг.
Таким образом годовые эксплуатационные расходы составят, по формуле (49)
ЭР = 3427200 + 647740 + 7822788 + 720000 + 712804 + 29975036 + 11935000 +32614905 +222750 = 87176751 тг.
10.5 Доходы компании
Доходы компании состоят из разовых и постоянных платежей клиентов, за установку и подключение оборудования 250 у.е. или 34250 тг. (1 линия) и за постоянное использование цифровых каналов связи по следующим тарифам :
Казахстан и страны СНГ 164 тг/мин.
Дальнее зарубежье 46 тг/мин.
Тарифы взяты, исходя из существующих на сегодняшний день тарифов других компаний.
Будем считать, что в среднем каналы связи одним клиентом используются со следующей интенсивностью:
Казахстан и СНГ 100 мин. в год
Дальнее зарубежье 100 мин в год
расчет проводим без учета инфляции, дисконтной ставки и прочих потерь, а также с нарастающим итогом. Дисконтирование – это предвидение разновременых затрат и результатовк текущему моменту времени.
Таблица 6 Технико- экономические показатели
| Период ввода системы в эксплуатацию |
||||||||||
| 1 год |
2 года |
3 года |
4 года |
5 лет |
||||||
| Число |
500 |
1500 |
2500 |
4500 |
6500 |
|||||
| абонентов, |
||||||||||
| По нарастающей. |
||||||||||
| Разовые |
19375000 |
58125000 |
96875000 |
174375000 |
251875000 |
|||||
| Продолжение таблицы 6 |
||||||||||
| Платежи |
||||||||||
| за подкл. |
||||||||||
| тг., по |
||||||||||
| нараст. |
||||||||||
| Трафик по |
50000 |
150000 |
250000 |
450000 |
650000 |
|||||
| СНГ |
||||||||||
| (мин),по |
||||||||||
| нараст. |
||||||||||
| Трафик по |
50000 |
150000 |
250000 |
450000 |
650000 |
|||||
| Д.З.(мин) , |
||||||||||
| по нараст. |
||||||||||
| Средняя |
164 |
164 |
164 |
164 |
164 |
|||||
| Доходная |
||||||||||
| такса 1 мин |
||||||||||
| ММТРпо |
||||||||||
| СНГ,тг. |
||||||||||
| Доходы за |
8200000 |
24600000 |
41000000 |
73800000 |
106600000 |
|||||
| трафик по |
||||||||||
| СНГ тг. , |
||||||||||
| по нараст. |
||||||||||
| Средняя доходная |
246 |
246 |
246 |
246 |
246 |
|||||
| такса 1 мин |
||||||||||
| ММТР по |
||||||||||
| ДЗ, тг. |
||||||||||
| Доходы за |
13950000 |
41850000 |
69750000 |
125550000 |
181350000 |
|||||
| тр. по Д.З. |
||||||||||
| тг., по |
||||||||||
| нараст. |
||||||||||
| Общие доходы тг. по нараст. |
42625000 |
127875000 |
213125000 |
383625000 |
554125000 |
|||||
| Эксплуат. |
58033718 |
115057436 |
174101154 |
232134872 |
290168590 |
|||||
| Расходы |
||||||||||
| Т.Г.,ПО |
||||||||||
| нараст. |
||||||||||
| Прибыль |
-15408718 |
11807564 |
39023846 |
151490128 |
463956410 |
|||||
| тг., по |
||||||||||
| нараст. |
||||||||||
| Накоплен- |
7822788 |
15645576 |
23468364 |
31291152 |
79113940 |
|||||
| ие аморт. |
||||||||||
отч. тг., по |
||||||||||
| нараст. |
||||||||||
| Денежные |
-7585930 |
27453140 |
62492210 |
182781280 |
543070350 |
|||||
| поступлен |
||||||||||
| ия тг., по |
||||||||||
| нараст. |
||||||||||
| Инв-ции |
52151920 |
52151920 |
52151920 |
52151920 |
52151920 |
|||||
| тг., по |
||||||||||
| нараст. |
||||||||||
| Чистая прибыль, тг |
-59737850 |
-24698780 |
10340290 |
130629360 |
490918430 |
|||||

Рисунок 17.- Определение срока окупаемости
Из данного графика видно, что система окупает себя уже через 2 года и 9 месяцев и начинает приносить стабильно увеличивающуюся чистую прибыль, что в дальнейшем послужит для ее расширения не только в городе Алматы, но и по городам Республики Казахстан.
10.6 Сравнение данной системы с системой использующей кабельные соединения
В качестве сравнения, возьмем, предприятие которое тоже занимается предоставлением услуг международной и междугородней телефонии. В качестве абонентских линий используются кабельные соединения по медным кабелям и по оптоволокну. Сравнение будем проводить при равных условиях, т.е. тарифы на предоставляемые услуги одинаковые, при одинаковом количестве абонентов, одинаковой заработной плате работающего персонала, и т.д.
Предположим, что этому предприятию для предоставления услуг связи по кабельным соединениям потребуется 100 км. кабеля со средней стоимостью 100 тг за 1м. , для создания оптоволоконного кольца 5 км оптоволокна со средней стоимостью 3100 тг за 1 м., стоимость оптических мультиплексоров возьмем такую же как и обычных, также учтем аренду емкости в канализации у компании «Казахтелеком» предположим что стоимость прокладки 1м кабеля в канализации состаляет 10 тг за 1 м в год. , потребуется 50 км емкости в канализации.
Определим капитальные затраты:
Таблица 7 Капитальные затраты.
| Наименование оборудования |
Цена оборудования у.е. тыс.тг. |
Количество оборудования |
Сумма с учетом транспортных расходов тыс.тг. |
| Передатчик ЗС |
120 000 у.е. |
1 |
122400у.е. |
| 16 440 000 тг. |
16 768 800 тг. |
||
| Приемник ЗС |
30 000 у.е. |
1 |
30 600 у.е. |
| 4 110 000 тг. |
4 192 200 тг. |
||
| Антенна ЗС |
100 000 у.е. |
1 |
102000у.е. |
| 13 700 000 тг. |
13 974 000 тг. |
||
| Блок питания |
200 у.е. |
1 |
200 у.е. |
| 27 400 тг. |
27 400 тг. |
||
| Маршрутизатор |
5 000 у.е. |
2 |
10200у.е. |
| 685 000 тг. |
1 397 400 т.г |
||
| Спутниковый модем |
4000 у.е 548 000 тг |
1 |
4080 у.е 558 960 тг. |
| Оптоволокно, 1м |
3100 тг |
5000 |
1 5500000 тг |
| Емкостьв |
10 тг |
50000 |
500000 тг |
| канализации ,1м |
|||
| Медный кабель, |
100 тг |
100000 |
100000000 тг |
| 1м |
|||
| Оптические |
12000 у.е. |
1 |
12240 у.е. |
| мультиплексоры и модемы |
1 644 000 тг. |
1 676 880 тг. |
Стоимость всего оборудования с учетом доставки. 64 595 640 г.
Капитальные затраты определяются по формуле в тг. (49):
К Вл = 64595640 +1759998 +1759998 = 8115636
Определим текущие затраты:
Э Р = ФЗП + ООС+ А + АП + З ЭЛ.ЭН. + ККР + НР + АР.С. + Н Срч. ,
где - ФЗП, ОСС, Ап, Зэл.эн, АР.С- остаются такими же как и для предыдущей системы:
Кр = 1,1*(Квл+Арс) =1,1*(68115636+31647000)/3 = 36579633 тг,
А = 0,15*Квл = О,15*68115636 = 10217345 тг,
Нрч = 100*825 = 82500тг.
Тогда,
Эр = 3427200+647741+720000+712804+35805000+2570400+36579633+
+10217345+82500 = 88823202 тг.
Построим для сравнения таблицу в которой отразим только изменения по сравнению с предыдущей системой.
Таблица 8 Период ввода системы.
| Период ввода системы в эксплуатацию |
||||||||
| 1 год |
2 года |
3 года |
4 года |
5 лет |
||||
| Общие |
42625000 |
127875000 |
213125000 |
383625000 |
554125000 |
|||
| доходы тг. |
||||||||
| По нараст. |
||||||||
| Эксплуат. |
85957499 |
171914998 |
257872497 |
343829996 |
429787495 |
|||
| расходы |
||||||||
| тг., по |
||||||||
| нараст. |
||||||||
| Прибыль |
-43332499 |
-44039998 |
-44747497 |
39795004 |
124337505 |
|||
| тг., по |
||||||||
| нараст. |
||||||||
| Накоплен-ие аморт. |
9327989 |
18655978 |
27983967 |
37311956 |
46639945 |
|||
| отч. тг., по |
||||||||
| нараст. |
||||||||
| Денежные |
-34004510 |
-25384020 |
-16763530 |
77106960 |
170977450 |
|||
| поступлен |
||||||||
| ия, тг., по |
||||||||
| нараст. |
||||||||
| Инв-ции |
62186596 |
62186596 |
62186596 |
62186596 |
62186596 |
|||
| тг., по нар |
||||||||
| Чистая |
-96191106 |
-87570616 |
-78950126 |
14920364 |
108790854 |
|||
| прибыль, тенге |
||||||||

Рисунок 18. - Определение срока окупаемости для системы использующей кабельные соединения
Из данного графика видно, что система окупает себя через 3 года и 10 месяцев и начинает приносить прибыль.
При проведении сравнительного анализа двух систем использующих различные виды соединений с абонентами, видно, что система использующая кабельные соединения значительно уступает нашей системе, это отражается в сроке окупаемости системы, а также в приносимой ею прибыли.
Заключение
В дипломном проекте произведен энергетический расчет спутниковой линии связи ЗС 1 (Алматы) - ИСЗ (Іntelsat 804) - ЗС 2 (Лондон). Исходя из расчетов которые показывают, что на данной линии связи происходит незначительное ослабление сигнала из-за поглощения энергии радиоволн в газах атмосферы и чуть большее ослабление происходит в результате влияния дождевых осадков, особенно на втором участке ИСЗ (Іntelsat) - ЗС 2 (Лондон). Шумы атмосферы и планет оказывают влияние на качество передачи сигналов, но не очень существенное.
Полученные значения мощностей бортового передатчика и передатчика ЗС, при их практическом применении, обеспечат необходимое качество связи на всем участке .
Расчет качественых показателей радиорелейной трассы, а именно ухудшение связи вызванное дождем, замирания вызванные рефракцией радиоволн, замирания вызванные многолучевым распространением, показывает, что полученные значения норм не превышают. Связь на данном участке будет устойчевой и надежной.
Расчет зоны обслуживания ЦС системы радиодоступа позволяет утверждать, что требуемая дальность устойчивой связи обеспечивается. Предлагаемые в проекте мероприятия по эксплуатации и технике безопасности обеспечиваемый безаварийный проектный срок работы оборудования и позволяет свести к минимуму травматизм и несчастные случаи.
Разработанный бизнес-план оператора связи и произведено сравнение данной корпоративной международной системы связи системой использующий только кабельные соединения, при чем АТС поддерживает дальность до 5 км без применения дополнительных усилителей и регенераторов с абонентами по медным кабелям и по оптоволокну.
Перечень принятых сокращений
ЦС- центральная станция,
ИСЗ- искусственный спутник Земли,
ССС- система спутниковой связи,
ГО- геостационарная орбита,
ЗС- земная станция,
ЭИИМ- эффективно излучаемая изотропная мощность,
РРЛ- радиорелейная линия,
SЕS- сильно пораженные секунды,
АС- абонентская станция,
ЛЭП- линии электропередачи,
ЭВМ- электронная вычислительная машина,
ЛДЦ- лампы дневного света правильной цветопередачи,
СНиП- санитарные нормы и правила.
Список литературы
1 Спутниковая связь и вещание: Справочник. - 3-е изд., перераб. и доп. / В.А. Бартенев, Г.В. Болотов, В.Л. Быков и др.; под ред. Л.Я. Кантора. - М.: Радио и связь, 1997.
2 АлекперовА.Геостационарная орбита заселена плотно// Мир связи. - 1999. - №2. - С. 84-93.
3 Спутниковая связь и вещание: Справочник. - 2-е изд., перераб. и доп. / Г.В. Аскинази, В.Л. Быков, М.Н. Дьячкова и др.; под ред. Л.Я. Кантора. - М.: Радио и связь, 1988. - 344 с.
4 Кантор Л.Я., Тимофеев В.В. Спутниковая связь и проблема геостационарной орбиты. - М.: Радио и связь, 1988. - 168 с.
5 Бородич С.В. ЭМС наземных и космических радиослужб. Критерии, условия и расчет. - М.: Радио и связь, 1990. - 272 с.
6 Системы спутниковой связи / А.М. Бонч-Бруевич, В.Л. Быков, Л.Я. Кантор и др.; под ред. Л.Я. Кантора: Учебное пособие для вузов. - М.: Радио исвязь, 1992. -224 с.
7 Меныников В.А., Чернов В.В., Феоктистов Н.Н., Александров И.Е. Космос и связь // Электросвязь. - 1995. - №6. - С. 10-12.
8 Мордухович Л.Г. Радиорелейные линии связи: курсовое и дипломное проектирование. - М.: Радио и связь, 1989.-160 с.
9 Мордухович Л.Г., Степаненко А.П. Системы радиосвязи: курсовое проектирование. - М.: Радио и связь, 1987.-191 с.
10 Мясковский Г.М. Системы производственной радиосвязи: Справочник. - М.: Связь 1980.
11 Баклашов Н. И. и др. Охрана труда на предприятиях связи и охрана окружающей среды: Учебник для вузов/Н. И. Баклашов, Н. Ж. Китаева, Б. Д. Терехов. — М.: Радио и связь, 1989.—288 с.: ил.
12 Сабиров Ю.Г., Сколотнев Н.И. Охрана труда в вычислительных центрах. - М.: Машиностроение,1985. - 210 с
13 Производственное освещение. Методические указания к выполнению раздела "Охрана труда" в дипломном проекте (для студентов энергетических специальностей всех форм обучения)-Алма-Ата,изд. РУМКД989, 40 с.
14 Иванов Е.Н. Расчет и проектирование систем противопожарной защиты. М.: Химия,1990.
15 Буров В.П., Морошкин О.К., Новиков О.К. Бизнес-план. Методика составления. Реальный пример. — М.: Изд-во ЦИПКК АП — Отраслевая библиотека "Технический прогресс и повышение квалификации кадров в авиационной промышленности", 1995.
Приложение А
Зона покрытия ИСЗ INTELSAT 804

Приложение Б
Диаграмма для определения угла места и азимута при направлении антенны ЗС на геостационарный ИСЗ (ф° - широта ЗС; λ – λ0 - долгота ЗС относительно долготы позиции ИСЗ)

Приложение В
Среднемесячные значения концентрации водяного пара в августе на Земле 
Приложение Г
Дождевые климатические районы на карте мира


Приложение Д

Приложение Е