| Скачать .docx | Скачать .pdf |
Реферат: Водозаборные скважины
Контрольная работа
По геологии
Задача 1
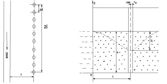
Определить понижение уровня в центральной скважине водозабора, состоящего из n=3 скважин, расположенных параллельно совершенному урезу реки на расстоянии 2
100 м друг от друга. Расход каждой скважины Q0
=800 м3
/сут, радиус фильтра r0
=0.1м. Водоносные аллювиальные пески имеют мощность hст
=40 м, коэффициент фильтрации К=8 м/сут ; водоотдача
0.1 Прогноз выполнить для t=700 сут . Рассмотреть два варианта расстояния скважин до реки d1
=100м ;и d2
=500 м. Сопоставить полученные решения.
Решение:
Рассмотрим 1 вариант d1 =100м Величина уровнепроводности определяется по формуле:
а=
м2
/сут
Время наступления стационарного режима фильтрации определим по формуле:
tс
=![]()
Rк
=2(d+
н.д
) т.к река с совершенным урезом то Rк
=2d
tс
=
31 сут.
Так как длинна водозаборного ряда 2l=(n-1)*2
=(3-1)*100=200 м и соблюдается условие d
l, можем использовать формулу Маскета Лейбензона:
S0
=
*
*[
]=4.52 м
Так как S
0.25hст
данное решение не подлежит корректировке.
Рассмотрим 2 вариант при d2 =500 м.
tс
=
= 781 сут
Радиус контура питания Rк =2d2 =2*500=1000 м .
Так как расстояние между взаимодействующими скважинами ri
=2
0.3Rk
, можем использовать формулу:
S=![]()
S=![]()
Увеличение расстояния скважины от реки существенно увеличило период нестационарного режима фильтрации, но мало повлияло на величину понижения.
Задача 2
Кольцевой водозабор ,состоящий из n=8 скважин ,вскрывает напорный пласт известняков мощностью m=50 м, коэффициент фильтрации К=4 м/сут. Выше залегает весьма водообильный горизонт грунтовых вод, отделенный от известняков слоем суглинков мощностью m0
=25 м и коэффициентом фильтрации К0
=10-4
м/сут. Упругая водоотдача известняков
=4*10-5
. Расстояние между скважинами 2
, суммарный водоотбор Qсум
=8000м3
/сут. Радиус фильтра скважины r0
=0.15м, длина фильтра l0
=15м. Фильтр расположен в средней части пласта. Избыточный напор над кровлей известняков Н=25 м.
Необходимо определить: время наступления стационарного режима фильтрации в скважинах, величину сработки уровня и остаточный напор.
Решение:
Определим радиус кольцевого водозабора:
R0
=
=![]()
Оценим величину параметра перетекания по формуле:
В=
7071м
Величина радиуса контура питания:
Rk =1.12*B=1.12*7071=7919.5м
Условие ri
k
соблюдается
Величина пьезопроводности известняков:
а#
=
м2
/сут
Стационарный режим наступит через время :
tс
=
=31 сут
Величину понижения уровня в совершенной скважине определим по формуле:
S=![]()
S=
+
*![]()
Величину сопротивления, учитывающего несовершенство скважин, определяем по графику:

=![]()
нс
=8 , тогда дополнительное понижение за счет несовершенства определим по формуле:
м
А общее понижение уровня :
S=23.9+6.37=30.27м
Остаточный напор над кровлей отсутствует.
Понижение ниже кровли :
25-30.27=-5.27 м , что сопоставимо с
.
Задача 3
Водоносный горизонт мощностью 40 м приурочен к водоносным аллювиальным пескам с коэффициентом фильтрации К=15 м/сут, водоотдачей
0.05. На расстоянии d=300 м от уреза реки эксплуатируются две скважины с расходами Q1
=1500 м3
/сут и Q2
=1000 м3
/сут, расположенные на расстоянии 2
друг от друга. Радиус фильтра скважин r0
=0.1м. Определить: понижение уровня в скважине 2 на моменты времени 1;3;10;100 и 500 суток. Качественно описать развитие понижения во времени. Построить график S-
. Графически сравнить полученные результаты с понижением уровня в неограниченном пласте.
Решение:

Определим величину уровнепроводности пласта:
а =
=
=12000 м2
/сут
Понижение в скважине 2 будет формироваться под воздействием четырех скважин: двух реальных и двух отображенных. Определим расстояние до каждой из них.
До скв1: r1
=2
250м; до скв 2: r2=
r0
;
По теореме Пифагора:
=![]()
До отображенной скв 2:
![]()
Используя формулы:
rкв
;
t
;
Т
=
;
Определим начало влияния каждой скважины на формирование понижения в скважине 2 и время наступления квазистационарного режима от влияния каждой скважины. Вычисления сводим в таблицу 1
Таблица 1
| Номер скважины | tвл , сут | tкв ,сут |
| 1 |
|
|
| 2 |
|
|
| 1/ | ||
| 2/ |
Для t= 1сут согласно таблице 1 ,учитывается влияние скважины 1, однако ее режим неустановившийся:
S0
= ![]()
S0
=![]()
Для t=3 сут, согласно таблице 1, учитывается влияние скважины 1 и скважины 2/ , но режим неустановившийся. С учетом того что имеем расчетную схему в виде реки (Н=const), то отображенная скважина задается как нагнетательная (-Q0 ),тогда:
S0
= ![]()
S0
=
2.27 м
Для t= 10 сут учитывается влияние скважин 1 , 1/ ,и 2/ , но режим неустановившийся:
S0
= 
S0
=
=2.38 м
Для t=100 сут учитывается влияние всех скважин при этом режим во всех скважинах квазистационарный , тогда:

![]()
Расчет для t=500 суток аналогичен расчету при t=100сут так как режим квазистационарный, а центральная скважина еще раньше выходит на стационарный режим, что связано с границей постоянного напора.
Отразим полученные результаты расчетов на графике и убедимся, что график для схемы неограниченного пласта является медианным по отношению к схемам полуоткрытого и полузакрытого пласта.

Задача 4
Водозабор из двух скважин работает в напорном, неограниченном в плане пласте известняков с К= 25 м/сут, мощностью m=30 м ,упругой водоотдачей
10-4
. Остаточный напор на начало эксплуатации Н=20 м . Расходы скважин изменяются во времени. Первые t1
=700 сут , 1 скв эксплуатируется с расходом
м3
/сут, а скв 2-
м3
/сут; затем
2000 м3
/сут;
м3
/сут. Скважины расположены на расстоянии 2
друг от друга. Скважины совершенные по степени вскрытия пласта, r0
=0.1м.
Определить понижение уровня в СКВ 2 спустя t=1500 сут после начала работы этой скважины.
Решение:
График изменения дебита взаимодействующих водозаборных скважин

Определим величину пьезопроводности пласта:
а#
=
м2
/сут
Найдем время наступления квазистационарного режима по формуле:
![]()
![]()
Т.е к расчетному периоду, режим можно считать квазистационарным и используя формулы имеем:
S2
=![]()
S2
=
Т.е меньше остаточного напора.
Задача 5
Водозаборный ряд из n = 10 скважин эксплуатирует с суммарным расходом Qсум = 20000 м /сут грунтовые воды в долине реки с совершенным врезом. Водоносный горизонт приурочен к аллювиальным пескам. Мощность обводненной толщи hе = 40 м, коэффициент фильтрации k=20 м/сут, водоотдача μ= 0,2. Расстояние между скважинами в ряду составляет 2σ=200м. Оценить время наступления стационарного режима фильтрации. Определить понижение уровня в центральной скважине, радиус фильтра которой ro =0,1м. Скважина совершенная. Рассмотреть два варианта размещения водозабора относительно реки: параллельно урезу на расстоянии L1 =300м и L2 = 1200м от него.
Решение:

1 Определяем величину коэффициента уровнепроводности
а=
=![]()
Время наступления стационарного режима фильтрации для обоих вариантов размещения водозабора составит:
по первому варианту
tc
=
=
сут,
по второму варианту
tc
=
=3600сут.
2. Определяем величину понижения уровня в скважине водозабора при его размещении в L1 =300 м от уреза реки. Учитывая, что длина ряда 2l=2σ·n=200·10=2000 м и L1 <l, воспользуемся формулой (7.15)

Так как S<0,25hе (6.1<10,0), данное решение не подлежит корректировке.
3. Определяем величину понижения уровня в скважине водозабора при ее размещении на расстоянии L2 =1200 м от уреза реки. Учитывая что, L2 > l , можем воспользоваться методом обобщенных систем, используя формулы:
S=Sw +ΔSСКВ ;
Sw
=
;
ΔSСКВ
=
;
Rw
=![]()
rn
=![]()
Отметим, что полученное решение будет справедливо для периода эксплуатации водозабора, превышающего время наступления стационарного режима, т.е. tпрог >3600 сут. Предварительно схематизируем пласт как неограниченный, принимая Rk = 2L, тогда Rотобр =0.
Sw
=![]()
ΔSСКВ
=![]()
Суммируя получим:
S=
8.63 м
Так как S> 0,25hе , переходим к расчету для грунтовых вод, составляя квадратное уравнение:
2*mSн =(2he -S)*S
2*40*8.36=2*40S-S2 ; S2 -80S+668.8=0;
откуда определяем понижение в грунтовых водах:
S=40-
=9.48 м.
Задача 6
Песчаный карьер имеет размеры b х L равные 600 х 1200 м. По контуру карьера пробурены скважины с шагом 2σ =300 м, из которых осуществляется водоотбор с целью водопонижения с расходом Qо =1200м3 /сутиз каждой скважины. Водоносный горизонт заключен в песках и имеет мощность hе =40м. Коэффициент фильтрации песков k=10 м/сут, водоотдача μ=0,1. Определить величину понижения уровня под карьером и в скважинах, имеющих радиус фильтра ro =0,1м. Скважины совершенные. Продолжительность разработки карьера t=5 лет.
Решение:

1. Определим количество скважин по контуру карьера:
n=![]()
Суммарный водоотбор равен:
Qсум =n*Q0 =12*1200=14400 м3 /сут
2. Величина коэффициента уровнепроводности пласта:
а=
м2
/сут
Проверяем условии:
![]()
R0
=
=479 м.
что меньше расчетного срока в 1825 сут.
Это означает наступление квазистационарного режима фильтрации к этому времени по всему водозабору, что позволяет использовать для его расчета метод обобщенных систем.
4. Так как режим фильтрации квазистационарный, определим величину понижения уровня под карьером по формулам:
Sw
=
;
Rw
=
;
rпр =R0 ;
Sw
=![]()
Дополнительное понижение в скважинах определим по формулам:
ΔSСКВ
=
;
rn
=![]()
ΔSСКВ
=
;
Общее понижение в скважине равно:
S=Sw + ΔSСКВ =12.26+1.48=13.74 м.
Так как S>0.25he , то переходим к расчету для грунтовых вод:
(2he -S)S=2*40*13.74; S2 -80S+1099.2=0;
S=40-
=17.6м.