| Похожие рефераты | Скачать .docx | Скачать .pdf |
Дипломная работа: Рекомендации по утилизации шахтного метана для угольных шахт Кузбасса
Содержание
Аннотация
Введение
1 Дегазация газоносных угольных пластов
2 Опыт использования шахтного метана
2.1 Общие сведения
2.2 Проект «APPIN & TOWER» в Австралии
2.3 Шахтный метан: эффективная утилизация на примере Вайоминга
2.4 Опыт утилизации шахтного метана в ФРГ возможности утилизации шахтного метана
2.5 Возможность утилизации шахтного метана в России
3 Утилизация шахтного метана
3.1 Оборудование по утилизации шахтного метана. Сепаратор СВЦ-7
3.2 Программа внедрения сепаратора для очистки попутного газа
4 Технология разделения газов
4.1 Мембранная технология
4.2 Адсорбционная технология
4.3 Криогенная технология
5 Разделение газов с помощью мембранной технологии
5.1 Экономическая целесообразность применения мембранной технологии
5.2 Принципиальная схема мембранных установок
6 Утилизация каптируемого шахтного метана
6.1 Утилизация вентиляционного газа
6.2 Способ извлечения метана из вентиляционных струй шахт
6.3 Утилизация шахтного метана в газогенераторных установках с выработкой тепло- и электроэнергии
6.4 Утилизация шахтного метана в модульных установках с выработкой теплоэнергии
6.5 Установка каталитического окисления шахтного метана с низкой концентрацией для выработки тепло- и электроэнергии
7 Роль государственного регулирования
8 Блочная комплексная установка утилизации каптируемого метана
9 Сравнительная экономическая оценка различных технологий утилизации шахтного метана
Заключение
Список использованных источников
Аннотация
«Рекомендации по утилизации шахтного метана для угольных шахт Кузбасса». Дипломная работа по специальности «Комбинированная разработка пластовых месторождений» (130404). – Новокузнецк, 2008 г., 86 стр., таблиц 3, источников 14.
Рассмотрены различные варианты использования шахтного метана. Для более рационального использования выбрана блочная установка, которая позволяет добиваться максимальной финансовой отдачи, в то же время, обеспечивая шахту и близлежащие населенные пункты надежным источником электричества и тепла и снижая выбросы в атмосферу парникового газа.
Блочная установка утилизации метана дает возможность не только сжигать метан в специальной камере тем самым, предотвращая выделения в атмосферу вредного парникового газа, но и для выработки электроэнергии и дополнительно для производства тепловой энергии при использовании газа в качестве топлива. Использования шахтного метана позволяет повышать безопасность ведения горных работ.
Исполнитель
Введение
Актуальность работы. Международное внимание к проблемам изменения климата и недавняя ратификация Киотского Протокола повлекли за собой усиление интереса к проблеме утилизации шахтного газа. В данный момент в мире существуют несколько коммерчески испытанных технологий, которые работают на шахтном и вентиляционном газе. Среди них наиболее используемым методом, позволяющим утилизировать шахтный газ и снижать вредные выбросы, остается использование его в двигателях внутреннего сгорания.
Шахтный газ является значительным, но практически неосвоенным ресурсом с основными запасами, находящимися в примерно десятке стран. Китай. Россия, Польша и США являются крупнейшими «загрязнителями» атмосферы, совместно отвечая за три четверти от всего мирового выброса шахтного газа. По прогнозам, количество выбрасываемого шахтного газа в мире увеличится на 2 % к 2020 г. в основном за счет роста угольной добычи в Китае.
С одной стороны, шахтный газ, сродни природному газу обладает полезными свойствами горючего топлива, с другой стороны, при попадании в атмосферу он наносит сильнейший урон экологической обстановке. Основной компонент шахтного газа, метан (СН4), в 21 раз сильнее, чем углекислый газ (С02) по своей способности создавать парниковый эффект на планете.
В 2000 г мировой выброс шахтного и вентиляционного газа составил 32 млрд куб. м чистого метана, что является эквивалентом 456 млн. т углекислого газа. К 2010 г выброс метана из угольных шахт вырастет до 51 млрд. куб. м чистого метана в год (724 млн. т углеродного газа), что равносильно ежегодному выхлопу 171 млн. автомобилей[1].
Цель работы - разработка рекомендаций по утилизации шахтного метана для угольных шахт Кузбасса.
Идея работы заключается в создании единой блочной установки по утилизации каптируемого шахтного метана.
Методы исследований. Для достижения поставленной цели использовался комплекс методов, включающий анализ и обобщение данных научно-технической литературы по рассматриваемому вопросу.
1 Дегазация газоносных угольных пластов
В настоящий момент только маленькая часть шахтного газа пригодна для производства электроэнергии или тепла, и только одна пятая этой доли используется для производства энергии или других промышленных нужд.
Процесс дегазации, с помощью которого извлекается шахтный газ, изначально развивался в целях повышения безопасности угольных шахт. При подземной добыче угля угольной компании приходится бороться с шахтным метаном, который выделяется в процессе разработки угольных пластов. Так как метано-воздушная смесь является взрывоопасной при концентрации метана от 5 до 14%, угольной компании необходимо принимать соответствующие меры, чтобы избегать опасного диапазона[3].
До середины 1970-х годов общепринятым способом борьбы с метаном было проветривание горных выработок с помощью больших объемов воздуха. Однако с развитием подземного способа добычи и разработкой более метаноносных угольных пластов использование одной лишь системы вентиляции стало недостаточным. Введение заблаговременной дегазации посредством бурения дегазационных скважин и вакуумного отсасывания позволило снизить нагрузку на системы вентиляции и дополнительно повлекло за собой увеличение производительности угольных шахт. Дело в том, что при неэффективной вентиляции приходится приостанавливать добычу угля всякий раз, когда доля метана в воздушной смеси приближается к взрывоопасному уровню[14]. Адекватная система дегазации позволила значительно снизить время подобных простоев и свести к минимуму количество чрезвычайных происшествий на шахтах.
Развитие технологии также облегчило задачу дегазации угольных шахт. В зависимости от геологических особенностей пластов дегазация может проводиться посредством бурения вертикальных скважин в неотработанные и отработанные участки или горизонтальных и наклонных скважин из шахтного пространства. Накопленный опыт в изучении метаноносных пластов позволил лучше адаптировать систему дегазации к конкретному резервуару и повысить эффективность производимых операций.
2 Опыт использования шахтного метана
2.1 Общие сведения
Сегодня, используя современные технологии для изучения шахтных пластов и проведения дегазационных работ, угольная компания может добиться значительного увеличения количества каптируемого метана в высоких концентрациях. Осознавая потенциал шахтного метана, все больше компаний продают его для различных индустриальных нужд или производят тепло или электроэнергию для собственных нужд.
В том случае, когда концентрация каптируемого шахтного газа близка к 100%, поставки его для промышленного использования (продажа в газопровод) являются наиболее привлекательным способом использования метана. Однако помимо высокой концентрации газ должен удовлетворять другим жестким требованиям, таким как отсутствие примесей, воды и пыли. Как правило, такой газ добывается из скважин заблаговременной дегазации или путем бурения в необрабатываемые пласты, где не происходит смешения шахтного газа и вентиляционного газа.
На сегодняшний день шахтный газ продается в газопровод только в немногих странах. В США, например, где цена на природный газ высока, около 1,3 млрд.куб.м шахтного метана ежегодно поставляется в газопровод. В Европе шахтный газ используется в газопроводе в Великобритании и Чехии.
Однако в большинстве стран основными препятствиями подобному использованию являются недостаточная концентрация каптируемого шахтного газа, недоступность газопровода в непосредственной близости от шахты и/или низкая цена на природный газ[3].
В отличие от использования в газопроводе, производство электричества из шахтного газа не требует очень высоких концентраций. Как правило, шахтный газ может использоваться в газовых двигателях или турбинах при содержании метана свыше 25% и при проведении предварительной очистки и сушки. Каптируемый газ наиболее часто используется в двигателях внутреннего сгорания, которые способны производить тепло- или электроэнергию.
На сегодняшний день в мире существует ряд проектов, где шахтный метан используется для производства электричества. Наибольшим опытом ведения подобных проектов (свыше десяти лет) обладают Австралия, Германия, Япония, Великобритания и США. За последние два года утилизация шахтного газа стала все больше применяться на шахтах в развивающихся странах, таких как Китай, Польша, Россия и Украина. Согласно данным за 2005г., в мире существует около пяти десятков электростанций, работающих на шахтном газе, суммарной мощностью свыше 300 МВт. Индивидуальная производственная мощность таких электростанций может сильно различаться, начиная от мини-электростанций в 150 кВт до самой крупной станции в 94 МВт.
2.2 Проект «APPIN & TOWER» в Австралии
Самая крупная электростанция, работающая на шахтном метане, начала свою работу десять лет назад в Австралии, в штате New South Wales. В качестве топлива для 94-х газовых двигателей внутреннего сгорания, каждый из которых мощностью в один МВт, используется шахтный газ трех подземных угольных шахт, принадлежащих компании ВНР Billiton. При разработке проекта было принято решение использовать модульные энергопроизводящие установки малой мощности, так как это позволяет оптимизировать нагрузку электростанции. При колебаниях подачи шахтного газа только необходимое количество двигателей находится в работе, функционируя со стопроцентной нагрузкой, в то время как остальные двигатели останавливаются. Подобный модульный подход часто применяется на действующих шахтах, где количество и концентрация шахтного газа подвержены постоянным колебаниям. Помимо оптимизации нагрузки использование небольших модулей, заключенных в контейнеры, удобно из-за возможности дистанционной сборки, легкости перемещения (например, на другую шахту) и возможности постепенного наращивания мощности[2].
2.3 Шахтный метан: эффективная утилизация на примере Вайоминга
Утилизация запасов шахтного метана, расположенных на территории угольного бассейна Паудер Ривер (Powder River Basin) в штате Вайоминг, которая реализована на основе микротурбин Capstone, наглядно демонстрирует преимущества экологически чистых энергетических технологий для сохранения естественного состояния окружающей среды при одновременном соблюдении экономических законов построения и развития прибыльного бизнеса, связанного с удовлетворением растущих потребностей в природном газе.
Инновация — это синоним производства шахтного метана. С самого начала его промышленной добычи в середине 70х годов, применение инновационных технологий позволило сделать этот процесс экономически выгодным способом производства природного газа.
Экспоненциальный рост потребления газа привел к смещению фокуса интересов со стороны энергетических компаний и рыночных инвесторов от сырой нефти в сторону природного газа. Расчеты показывают, что объем потребления газа в США вырастет до 1 триллиона м3 в год к 2010—2015 годам. Следовательно, пришло время активно наращивать добычу. Как же микротурбины вписываются в эту картину?
Представим себе вытянутую область длиной более 100 километров, пересекающую графства Кэмпбелл, Джонсон и Шеридан штата Вайоминг. По оценкам экспертов, недра региона содержат более 700 миллиардов м3 газа, что сравнимо с разведанными запасами в Мексиканском заливе. Только в течение последних нескольких лет Паудер Ривер занял лидирующие позиции по добыче шахтного метана благодаря усилиям нескольких независимых нефтегазовых компаний, среди которых можно выделить CMS Energy.
В соответствии с топографическими особенностями региона перед тем, как добыть газ, угольные пласты должны быть обезвожены. Компания CMS Energy ежегодно бурит сотни скважин для того, чтобы с помощью устанавливаемых на этих скважинах насосов вести откачку пластовых вод. При этом насосные группы периодически перемещаются между группами скважин, расположенными на площади в 2000 км2, многие из которых находятся в километрах и десятках километров от ближайшей линии электропередачи.
Исходя из этих условий, компания CMS Energy остановила свой выбор на микротурбинах Capstone и в настоящее время эксплуатирует в непрерывном режиме парк из десятков модулей. Компактный дизайн и модульная конструкция микротурбин, позволяет свести к минимуму процедуры перемещения и запуска турбогенератора на новом месте. В качестве топлива в большинстве случаев используется шахтный метан, но иногда и пропан (на период подготовки скважины).
Со слов управляющего директора Джима Волката, микротурбины позволяют компании не просто генерировать электроэнергию в местах ее потребления, но и делать это с учетом строгих ограничений по выбросам оксидов азота и других парниковых газов, установленных администрацией штата Вайоминг.
До применения микротурбин компания CMS Energy использовала дизельные поршневые двигатели для энергоснабжения удаленных скважин. Однако, сопровождение таких установок сопровождалось существенными расходами на транспортировку топлива и проведение частых регламентных работ. Кроме того, экологические нормы требовали установку дополнительных фильтров.
Использование микротурбин Capstone позволило на порядок сократить выбросы оксидов азота без какой-либо дополнительной обработки выхлопных газов и свести к минимуму расходы на сопровождение генерирующего оборудования[2].
Согласно официальной статистике Американского Агентства Защиты окружающей среды, генерирующие мощности, расположенные на территории штата Вайоминг, выбрасывают в атмосферу 2.4 грамма NOx при производстве 1 квт-часа электроэнергии. И это, включая экологически чистые гидроэлектростанции. В соответствии с актуальными требованиями администрации штата, новые генерирующие мощности должны удовлетворять уровню выбросов не выше 1.4 грамм NOx на 1 квт-час. Получение разрешительных документов занимает не менее 30 дней и для генерирующего оборудования, превышающего указанных уровень, требует публичного обсуждения в течение неопределенного времени. Уровень выбросов NOx микротурбин, эксплуатируемых компанией CMS Energy, не превышает 0.3 грамм на 1 квт-час.
Применение электронных систем контроля и каталитической очистки выхлопа на поршневых двигателях существенно увеличивает их стоимость и экономически оправдано только на наиболее мощных моделях. Но при условии постоянного ужесточения экологических требований, инвестиции в такое оборудование оцениваются потенциальными пользователями как сильно рискованные. Решение проблемы в виде ограничения по времени работы еще более ухудшает экономику применения поршневых двигателей.
По мнению Джима Волката, микротурбины идеально соответствуют технологии добычи шахтного метана. «Снимаете модуль с грузовика, подключаете к газовой трубе и нагрузке и запускайте. Никаких фундаментов, никакого масла или антифриза. И мы используем газ прямо из скважины. Зачастую доставка до места занимает больше времени, чем пуск», — комментирует он.
Ключевое преимущество микротурбин — гибкость по отношению к топливу. На подготовительном этапе одна или несколько микротурбин могут использовать пропан для откачки воды из угольных пластов. После того, как достаточно количество газа начинает поступать из скважин, те же микротурбины переключаются на метан простым нажатием управляющей клавиши на панели управления микротурбины.
Безусловно, распределенная генерация не может конкурировать с большими электростанциями, работающими на угле в части себестоимости энергии, но расходы и время, затрачиваемые на прокладку линий, не позволяют обеспечить необходимую динамику развития.
«Проще говоря, преимущество этой новой экологически чистой технологии состоит в возможности обеспечения энергией тогда и где это необходимо, без головной боли, связанной с получением разрешений, сопровождением и авариями», — резюмирует Джим Волкат.
Успех, достигнутый в результате применения микротурбин в Вайоминге, носит универсальный характер и может тиражироваться нефтегазовыми компаниями в других угледобывающих регионах по всему миру.
2.4 Опыт утилизации шахтного метана в ФРГ, возможности утилизации шахтного метана
Конференция 19-20 июня 2006г. в г. Кемерово по утилизации шахтного метана показала, что имеется много технических решений использования шахтного метана. К сожалению, в большинстве докладов не рассматривались экономические и законодательные вопросы реализации этих проектов. Большие надежды участники конференции, как и многие другие ученые, политики, журналисты и руководители угольных шахт возлагают на предоставляемые возможности механизма Киотского протокола. При этом не все различают политические и экономические решения по данным проектам. Рассмотрению данных вопросов с учетом опыта ФРГ, где достигнуты наилучшие в мире результаты по утилизации шахтного метана и реализации принципов Киотского протокола [13], и посвящен данный обзор. На начало 2006г. только в Рурском бассейне работали более 130 контейнерных ТЭС на шахтном газе с установленной мощностью более 150 МВт электрической энергии (на шахте «Антрацит Иббенбюрен» кроме четырех КТЭС действует еще стационарная установка мощностью 27 МВт). Большинство из них установлено на отработанных шахтных полях, где их показатели примерно на 20 % лучше, чем на активных шахтах. В мае 2006г. фирма Эмиссионс-Традер ЕТ подала заявки на 55 эмиссионных проектов по шахтному газу. Два из них (г. Херне) уже полностью признаны и функционируют как «утилизационные — эмиссионные проекты»; они, по нашей информации, на данный момент единственные в мире реально действующие эмиссионные проекты на шахтном газе, соответствующие всем критериям Киотского протокола [13]. То есть в ФРГ шахтный газ используется уже в больших промышленных масштабах и Киотский протокол уже действует в рамках ЕС и развивающихся стран.
Интенсивное внедрение КТЭС стало возможно благодаря:
— закону ФРГ о возобновляемых видах энергии, гарантирующего передачу электроэнергии в сеть по цене около 7 евроцентов за 1 кВт-ч в течение 20 лет;
наличию Указаний Земли Северная-Рейн-Вестфалия об использовании установок на шахтном газе, позволяющих использовать шахтный газ при любой концентрации метана, если содержание кислорода меньше 6 %, что наблюдается практически всегда на отработанных шахтных полях;
активной поддержке правительства Земли Северная-Рейн-Вестфалия и методическому, инженерному сопровождению немецкого института прикладных исследований УМЗИХТ (Государственного института экологии, безопасности и новых видов энергии).
Широкомасштабное использование в ФРГ шахтного газа для выработки электроэнергии выявило и имеющиеся проблемы:
—на отдельных закрытых шахтах газ после 3-5 лет работы резко убывает, падает концентрация, происхождение шахтного газа еще недостаточно изучено, интенсивность отсасывания газа следует оптимизировать; бурение скважин на полях закрытых шахт является очень рискованным, сложным и дорогостоящим;
- на действующих шахтах среднее время работы КТЭС не превышает 7 000 ч в год, причины: технологические и профилактические работы в шахтах, а также нестабильность концентрации СН4, периодическое ее снижение ниже 25-30%;
резкое возрастание эксплуатационных затрат при длительной концентрации СН4 менее 30 % в шахтной смеси (сравнимо с работой автомобиля на первой передаче);
большие капитальные (1 млн евро за 1 МВт) и эксплуатационные затраты (более 200-300 тыс. евро в год на 1 МВт):
электрическую и тепловую энергию из-за отсутствия потребителей не всегда можно использовать.
Дополнительные возможности утилизации шахтного газа предоставляет Киотский протокол. По нашим оценкам, действующие и прогнозируемые цены до 2012-2017гг. могут дать дополнительную прибыль в размере 2-6 евро-центов за 1кВТ'Ч электроэнергии.
Сегодня никто не знает, какими будут цены на ECB/ERU в 2008-2012 гг. На этот счет имеется много предположений, которые зачастую не имеют никакой связи с фактическими данными рынка. В целом следует различать сертификаты, которыми уже торгуют ЕС, и сертификаты, которые будут продаваться после 2008 г во всем мире в рамках торговли по Киотскому протоколу[1]. Торговля эмиссионными сертификатами в ЕС — достаточно замкнутая система, условия которой после 2008г. существенно изменятся. Из-за задержки ратификации Киотского протокола [13], отдельными развивающимися странами и еще ограниченного эмиссионного рынка сертификаты CCB/CER из проектов МЧР/CDM производятся пока в небольших количествах. Поэтому в ЕС в настоящее время любые незначительные политические и экономические изменения значительно влияют на неустойчивый рынок эмиссионных сертификатов. В конце апреля 2006 г. цены на сертификаты уже достигли 30 евро за 1 т СО2 и прогнозы были на 40-50 евро, но в первой декаде мая цены в ЕС упали до 9 евро за уже реализованные снижения эмиссий, а в конце июня стабилизировались на уровне 15 евро.
Однако с 2008г. рынок эмиссионных сертификатов значительно увеличится, возрастет число покупателей и продавцов, сертификаты можно будет получать и из проектов совместного осуществления (ПСО/Л), и цены должны стабилизироваться. На сертификаты с 2008г прогнозируются цены от 6 до 15 евро, если речь идет о скупке большого количества и соответствующих гарантиях их поставок при продаже сертификатов вперед (фьючерсные сделки). Стоимость сертификатов, полученных по проектам от закрытых шахт, будет дороже, чем от действующих шахт из-за значительно большего риска нарушения выполнения договора поставок сертификатов с этих шахт. Штрафы могут в несколько раз превышать договорную цену, договоры заключаются по 2012-2017г.г.
Не все действующие сегодня утилизационные проекты могут быть признаны эмиссионными, они должны соответствовать всем критериям Киотского протокола регистрация эмиссионного проекта до начало утилизации:
- наличие зарубежного инвестора или покупателя эмиссионного сертификата уже на стадии регистрации проекта :
- отсутствие государственных дотаций;
- без продажи эмиссионных сертификатов утилизационный проект реализовываться не будет из-за отсутствия экономического интереса или по другим причинам (законодательным, техническим и др) ;
— прозрачность всего проекта (инвесторы, покупатели, экономические показатели, аудиторы, доступность полной информации в интернете).
Из-за отсутствия в странах СНГ закона о сбыте электроэнергии, полученной от утилизации шахтного газа, сегодня невозможно провести полную экономическую оценку различных технологий утилизации. Шахте нужно двойное электроснабжение, рассчитанное на определенную установленную мощность потребителей, и владельцы энергосети не допустят, чтобы шахты перешли на собственное электроснабжение, сохраняя их электросеть в качестве резервной. Безусловно, что без законодательной директивы они могут по очень низким ценам закупать излишки шахтной электроэнергии в свою сеть и по завышенным ценам предоставлять шахтам свою энергосеть в качестве резервной. Данный вопрос требует законодательного решения. И следует говорить не о цене электроэнергии для потребителя, а о законодательной (согласованной) цене передачи дополнительной энергии в местную сеть и о стоимости резервного электроснабжения шахты из местной энергосети. Без законодательного решения региональные энергосети не допустят широкого распространения, а выработки электроэнергии из шахтного газа, так как это противоречит их экономическим интересам.
К технологии утилизации ближайшего будущего не следует относить и проекты по сжиганию газа вентиляционной струи, этот вопрос технически еще не решен. В настоящее время ни на одной шахте мира данные установки не работают, экспериментальная работа подобных установок в других отраслях экономически себя не оправдывает. Информация в прессе о подобных проектах была недостоверной, разработчики выдают желаемое за действительное, а трудности финансирования эксперимента задерживают его реализацию.
Доработка этих инженерных предложений до серийного производства потребует еще более пяти лет, а Киотский протокол действует в настоящее время только до 2012 г., то есть только до этого времени можно реально учитывать доходы от снижения выбросов.
Таблица 1- Ориентировочная сводная таблица по различным технологиям утилизации шахтного метана (опыт ФРГ)
| Показатели | КГУУ 5/8 | Котельная | Конт. ТЭС |
| Оптимальная мощность, МВт | 5 тепла | 15 тепла | 1,35 эл. |
| Расход метана, 100% СН4, м3/мин | 8,36 | 25 | 6,27 |
| Реальное количество часов работы в году | 7.700 | 2.000 | 6.000 |
| Получаемые снижения эмиссий СО2 т/год | 50.000 | 65.000 | 37.000 |
| Количество снижаемых эмиссий СО2 т/г на 1м3/мин сжигаемого 100 %СН4 в установке из перерасчета 7.700 часов в году работы | 6.000 | 700 | 4.600 |
| Капитальные затраты всего проекта*, евро | 400.000 | 500.000 | 1.300.000 |
| Годовые эксплуатационные затраты, евро/г | 50.000 | 70.000 | 300.000 |
| Снижение СО2 т/г на 100.000 евро капзатрат | 12.500 | 13.000 | 2.800 |
| Снижение СО2 т/6 лет на 100.000 евро всех затрат по 2012 г | 43.000 | 43.000 | 7.200 |
| Дополнительный доход к снижению эмиссий | Дегазация | Тепло | Электро- и теплоэнергии |
2.5 Возможность утилизации шахтного метана в России
При оценке различных технологий следует правильно учитывать требуемые затраты. Для утилизации метана надо его предварительно каптировать, как правило, это требует значительных дополнительных затрат по шахтной дегазации, чтобы концентрация метана превысила 25-40%, что требуется по существующим технологиям утилизации. Применяемое импортное утилизационное оборудование требует сертификации, доставки, растоможивания с уплатой таможенной пошлины и НДС. Почему-то проектные организации на предварительной проработке не хотят учитывать данные затраты или принимают их заниженными в несколько раз. Как правило, не учитываются или значительно занижены и общие затраты по проекту: дополнительные мероприятия по дегазации, документация, разрешения, насосы, трансформаторы, эксплуатационные затраты, дополнительные измерительные и контрольные приборы ликвидации проекта, ежегодные затраты по сертификации полученных эмиссионных снижений. Эксплуатационные затраты в ФРГ по контейнерным ТЭС превышают 300тыс. евро в год на 1 МВт электроэнергии. Вероятно, что и в странах СНГ они не будут значительно ниже. Возможно, это является одной из причин того, что ни одна из американских контейнерных ТЭС фирмы Катерпиллер, поставленных 5-9 лет назад в Кузбасс, Воркуту и Донбасс, так и не начала работать[1].
Киотский протокол дал дополнительную возможность проверки эффективности всех предложений по поставке оборудования для выработки электроэнергии: производитель-поставщик не продает оборудование, а инвестирует его в проекты совместного осуществления (ПСО) и получает отчисления от прибыли. Такие предложения делает группа немецких поставщиков КТЭС и организаторов ПСО (немецкие фирмы Демета, А-ТЕС Анлагентехник, Эмис-сионс-Традер ЕТ, Про-2 Анлагентехник совместно с СП -Новая энергетика- в Кемерово, «Эко-Альянс» в Киеве, «Кар-Метан" в Караганде). Мы предлагаем шахтам покупать наше оборудование или совместно осуществлять ПСО с нашим финансированием до 100%. При собственном инвестировании и зависимости от конечного результата каждый поставщик кооперационных установок начинает более конкретно рассчитывать конечные результаты.
Из-за некачественной газовой смеси на действующих шахтах в ФРГ полностью вышли из строя уже 10 газогенераторных моторов. Действующие в ФРГ системы стимулирования шахт по качественному и стабильному снабжению ТЭС газом недостаточно эффективны, и 7 евроцентов за 1 кВт-ч уже не всегда покрывают фактические производственные затраты эксплуатационных фирм КТЭС.
Особенно следует остановиться на стоимости финансирования эмиссионных проектов ПСО/Л- Инвестирование в утилизацию газа действующей шахты в сравнении с другими эмиссионными проектами по критериям инвесторов является наиболее рискованным вложением денег, что отражается на стоимости капитала. При заключении данных проектов в настоящее время, с передачей сертифицированных сертификатов начиная с 2008-2009 годов, инвесторы хотят получить за финансирование до 50-70% от возможной прибыли или предлагают только до 6-7 евро за 1 т СО2. Поэтому важно, чтобы владельцы газа (шахт) также участвовали в финансировании ПСО, это повысит их ответственность за качество газа и снизит затраты.
3 Утилизация шахтного метана
3.1 Оборудование по утилизации шахтного метана. Сепаратор СЦВ-7
Учитывая положительный опыт угледобывающих отраслей промышленности ряда государств, можно предположить, что в ближайшее время на подземных работах найдут широкое применение очистные комплексы для производства угля на протяженных выемочных участках с длиной лав 250- 300 м. На таких участках ожидается повышенная среднесуточная добыча угля. Но, такие нагрузки на очистные забои в метанообильных шахтах РФ, Украины не всегда могут быть достигнуты по газовому фактору, поскольку согласно требованиям действующих нормативных документов метаноносность пластов в этом случае ко времени их отработки должна быть не выше 9 куб.м/т (РФ). В пластах с более высокой метаноносностью, такая добыча угля возможна только при использовании комплекса современных способов проветривания выемочных участков и средств снижения метановыделения из основных источников, в том числе и применение высокопродуктивных средств дегазации разрабатываемых пластов с эффективностью дегазации не менее 40-50%. При этом, нижнее значение упомянутой эффективности подземной дегазации пласта в настоящее время является предельно достижимой величиной, а верхнее (50%) может быть обеспечено в случаях применения гидроразрыва пласта или более эффективных гидроимпульсных методов повышения газоотдачи угольного массива в дегазационные скважины. Но, гидроимпульсные методы практического применения на шахтах пока не получили из-за отсутствия серийно выпускаемых средств воздействия на массив угля с целью повышения его газопроницаемости, хотя технические решения по способам и параметрам обработки угольных пластов с целью повышения их газопроницаемости и газоотдачи научно обоснованы. Анализ показателей подземного способа добычи угля на метаноносных месторождениях России свидетельствует о том, что, например, в 2000 г. среднедействующее число метанообильных очистных забоев на шахтах различных угольных компаний с достаточно сложными горно-геологическими условиями достигало 3, а на таких высокопроизводительных шахтах, как “Воргашорская” и “Распадская” - 5, средняя длина лав составляла 138- 199 м, добыча угля из действующего очистного забоя – 1276-3215 т/сут при скорости подвигания лав 43-99 м/мес. Длина лав на российских шахтах в 1,6-1,9 раза меньше, чем в высокопроизводительных шахтах США. Даже на шахте “Распадская” средняя длина очистных забоев, равная 199 м, короче в 1,6 раза, а среднесуточная добыча угля в 6-13 раз меньше, чем на лучших шахтах США.
На российских шахтах, 77% из которых метанообильны, влияние газового фактора на производительность очистных забоев весьма ощутимо, поскольку угольные месторождения, расположенные на территории России, наиболее метаноносные в мире. В среднем в каждой тонне российского угля заключено 8,3 кг метана, что в 1,7 и 2,4 раза выше, чем в природных углях США и Австралии соответственно. Поэтому фактору газа должно уделяться больше внимания, причем дегазации следует подвергать не только сближенные пласты, но и разрабатываемые, поскольку интенсивная выемка угля комбайнами приводит к обильным выделениям метана из обнажаемых поверхностей пласта и отбиваемого угля. Например, при снижении метаноносности пласта за счет его дегазации на 2 куб.м/т и отбойке 10 т угля в минуту метановыделение в призабойном пространстве лавы будет уменьшено на 15-20 куб.м/мин и фактор газа в меньшей степени будет лимитировать производительность угледобывающей техники, повысится и коэффициент машинного времени, что весьма положительно скажется на показателях работы комплексно-механизированных забоев.
При разработке рекомендаций по способам и параметрам дегазации угольных пластов для обеспечения безопасной и высокопроизводительной работы очистных забоев необходимо учитывать горно-геологические условия залегания угольных пластов, информацию о глубине горных работ, газоносности и мощности пластов угля, прогнозных значениях метанообильности очистных забоев и планируемых объемах добычи угля, а также учитывать требования нормативных документов и методических указаний. Кроме того, необходимы современные буровые установки для бурения подземных длинных (до 350м) и сверхдлинных (до 1,5-2 км) скважин заданной трассы.

Рисунок 3.1 - Область применения сепаратора СЦВ-7
В работе предлагается программа по внедрению сепараторов СЦВ-7 в схеме утилизации метана – газа с различной концентрацией метана, который образуется в угольных пластах и концентрируется в стволах шахт при добыче угля. Техническое решение конструкции сепаратора позволило увеличить эффективность очистки воздуха до 99.99%. Содержание взвешенных частиц на выходе – 0, «воздух Кл.1 ГОСТ 17433-80». СЦВ-7 не имеет аналогов по своим техническим характеристикам.
Первый вариант использования сепаратора СЦВ-7. В целях обеспечения безопасности шахтеров, находящихся в забое, производится интенсивная вентиляция. Концентрация метана (горючих газов) в данном газовом потоке составляет не более 0,75% на выходе из шахты [12], что делает непригодным этот газ для дальнейшего использования. В данном случае сепаратор СЦВ-7 необходимо устанавливать на выходе вентиляционной шахты, для очистки выходящего воздуха от угольной пыли, что предотвращает загрязнение окружающей среды.
Второй вариант использования сепаратора СЦВ-7 в системе дегазационного трубопровода, когда метан по трубам подается на поверхность. Таким образом, происходит утилизация метана.
Такое решение вопроса позволяет:
- уменьшить количество метана в местах, где работают шахтеры;
-попутно добывать метан из угольных шахт.
Концентрация метана в дегазационном трубопроводе составляет порядка 25-40%, что делает возможным его дальнейшее использование в качестве топлива для газо-поршневых, газотурбинных установок, теплоэлектростанций. В данном случае также возникает проблема в работе вакуумного насоса и кроме того после вакуумного насоса газ необходимо подать в ГТУ, ГПУ, ТЭЦ, поэтому необходима его дальнейшая очистка. Данный вариант добычи горючих газов из шахт может применяться также на законсервированных угольных шахтах[5].
Основными элементами данного оборудования являются:
• эжектор;
• сепаратор СЦВ с накопительной емкостью;
• насос;
• иное вспомогательное оборудование.

Рисунок 3.2 - Сепаратор СЦВ-7 в схеме утилизации шахтного газа метана
Принцип работы элементов оборудования подготовки сжатого газа:

Рисунок 3.3 - Принцип работы элементов оборудования подготовки сжатого газа
Эжектор. Устройство, в котором происходит обмен энергиями между активным потоком (рабочим, эжектирующим) и пассивным потоком (эжектируемый) посредством их контакта с образованием в результате смешанного потока, имеющего энергию меньшую, чем активный и большую, чем пассивный. В качестве потока может быть использован газовый, жидкостной и газожидкостной потоки. Распределение давлений эжектирующего, эжектируемого и смешанного потоков по длине эжектора будет выглядеть следующим образом, где Рр - давление активной среды, Рн - давление пассивной среды и Рс - давление смешанной среды.
Эжектирующий поток перед контактом с эжектируемым потоком разгоняется в сопле. Далее в виде струи он поступает в приемную камеру, куда подается также эжектируемый поток. В результате наличия вязкостного трения на границе рабочей струи образуется струйный турбулентный пограничный слой (результат захвата - эжекции пассивного потока). Через этот слой происходит обмен энергиями между активным и пассивным потоками. Струя рабочей среды окружена струйным турбулентным пограничным слоем, нарастающим вниз по течению и сопровождающим ее, а также не захваченный еще пограничным слоем поток пассивной среды из приемной камеры поступают в камеру смешения. В камере смешения продолжается интенсивный обмен энергиями между активным и пассивным потоками, выравнивание профиля скоростей с некоторым повышением статического давления потока по течению. При этом активный поток замедляется, а пассивный разгоняется. Смешанный поток из камеры смешения вытекает в диффузор, где происходит его торможение, сопровождающееся дальнейшим возрастанием статического давления до величины, определяемой сопротивлением оборудования, в которое нагнетается смешанная среда.
При изменяющемся массовом расходе пассивной среды (Gн) и неизменных параметрах рабочей (Рр, tр) работа эжектора характеризуется зависимостями Рс = f(U) и Рн=f(U), приведенными на рисунке, которые называют характеристиками. Рс - давление смешанной (сжатой) среды, которое может обеспечить эжектор, Рн - давление эжектируемой среды на входе в эжектор, U - массовый коэффициент эжекции, равный отношению расходов эжектируемой и рабочей сред: Gн/Gр.
Характеристики состоят из двух зон, то есть соответствуют двум режимам работы аппарата: допредельному и предельному. Характеристика вида Рс=f(U) имеет пологую и вертикальную ветви. Точки характеристики, лежащие на пологой ветви отвечают допредельным режимам, то есть таким, в которых подача эжектора зависит от его противодавления. Точки характеристики на вертикальной ветви отвечают предельным режимам работы эжектора, то есть таким, в которых его подача не зависит от его противодавления. Предельные режимы работы определяются достижением эжектируемым или смешанным потоками критической скорости в каком-либо сечении проточной части аппарата.

Рисунок 3.4 - График режима эжектора
Предельные режимы работы эжектора возникают в случае, если фактическое противодавление (Pc)ф=f(U) не превышает предельное (Рс)пр=f(U). Рабочими режимами работы эжектора в многоступенчатых пароэжекторных вакуумных насосах являются предельные. Расчетный режим эжектора при его проектировании определяется точками пересечения предельной и фактической характеристик (точки А и Б).
Энергетическая эффективность струйного аппарата характеризуется коэффициентом эжекции (U): отношением расхода пассивной среды, который эжектируется единицей расхода рабочей среды, то есть: U=Gн/Gр. Чем больше U при выбранных параметрах потоков, тем эффективней аппарат.
В паровом или газовом эжекторе может быть достигнута степень повышения давления пассивного (Рс/Рн) потока равная = 20. При таких высоких значениях степеней повышения давления коэффициенты эжекции очень малы, соответственно и расходы рабочего пара для таких условий слишком велики. Поэтому обычно при конструировании одиночного эжектора его степени повышения давления пассивной среды ограничивают величинами от 3 до 6. При таких степенях повышения давления коэффициенты эжекции обычно равны значениям в диапазоне: 0.6-0.2, соответственно, расходы рабочего пара для сжатия единицы массы эжектируемой среды составляют 1.7-5.
Часто "степень повышения давления" эжектируемой среды в струйном аппарате (Рвх/Рвых) ошибочно называют "степенью сжатия", которая равна отношению удельных объемов (Vвх/Vвых). Равенство отношений давлений и объемов может иметь место только при изотермическом процессе в аппарате. В действительности реальный процесс в эжекторе происходит с повышением температуры, то есть является политропным, поэтому степень повышения давления в эжекторе не равна степени сжатия.
Сепаратор. Подбирается по модификации, в зависимости от производительности и необходимого давления.
Насос. Необходимы параметры насоса по давлению и производительности, а также по используемой жидкости и ее плотности.
Иное вспомогательное оборудование. Дроселирование газового потока. После сепаратора газ выйдет на точке насыщения. Если произвести компремирование газа до 10атм, то растворенная влага в газе составит 1350мг/кг, при сбросе давления до 6атм. количество растворенной влаги будет соответствовать точке росы на 7 градусов меньше.
Эжектор нашел свое применение и в нефтяной промышленности. Для утилизации низконапорных нефтяных газов можно использовать насосно-эжекторные установки, важной частью которых является жидкостно-газовый эжектор (ЖГЭ). Принцип работы заключается в следующем: насос откачивает рабочую жидкость из сепаратора и подает ее на эжектор, который откачивает и компремирует газ. Газ может отбираться из установки комплексной обработки нефти, концевых ступеней сепарации, блока очистки сточных вод, сырьевых резервуаров. Образовавшаяся газожидкостная смесь из эжектора направляется в сепаратор, где происходит отделение газа от рабочей жидкости. Отсепарированный газ из сепаратора под давлением достаточным для подачи потребителю, поступает в систему газосбора. Рабочая жидкость вновь откачивается насосом из сепаратора и подается к эжектору. Таким образом, рабочая жидкость непрерывно циркулирует по контуру «сепаратор – насос – эжектор – сепаратор», осуществляя при этом откачку, компремирование и транспорт газа. В качестве рабочей жидкости могут применяться техническая вода, различные водные растворы, нефть.
Использование эжекторного компремирования обладает следующими преимуществами перед компрессорными станциями:
- высокая эксплуатационная надежность;
- отсутствие движущихся частей;
- незначительные капитальные затраты и численность обслуживающего персонала.
Кроме того, в сепараторе эжекторного типа дополнительно утилизируется газовый конденсат, который на обычном компрессоре безвозвратно теряется.

Рисунок 3.5 - Схема эжектора
Малогабаритные центробежно-вихревые сепараторы СЦВ-7/159, СЦВ-7/219, СЦВ-7/250
Характеристики:
Высокая степень сепарации (99,99%) при любом давлении и производительности.
Отсутствие сменных фильтрующих элементов.
Рабочая среда – воздух, газ, газожидкостная смесь.
Содержание жидкости на выходе, г/м3 - 0.
Содержание взвешенных частиц на выходе – соответствует «воздух Кл.1» ГОСТ 17433-80
Потеря напора, МПа (мм. вод.ст.) – не выше 0,003 (300).
Не требует освидетельствования в органах Госгортехнадзора (Постановление от 11.06.03 г. № 91 Госгортехнадзора РФ).
Малые размеры и вес (до 50 кг).
Устойчивая работа в пробковом режиме;
Способ удаления взвеси - через сливной вентиль или самотеком
Гарантийный срок эксплуатации - 10 лет
Под заказ СЦВ могут исполняться на любое давление и производительность, в нержавеющей стали, а также комплектоваться автоматикой или механикой слива.
Преимущества:
• очистка как воздушного (газового), так и газожидкостного потоков, способен осуществлять разгазирование жидких фаз;
• высокая эффективность очистки - «воздух Кл.1 ГОСТ 17433-80»;
• степень сепарации – 99,99% при любом давлении и производительности;
• отсутствие сменных фильтрующих элементов;
• широкий диапазон нагрузок;
• устойчивая работа в пробковом режиме;
• низкая металлоемкость;
• малые размеры и вес;
• гарантийный срок эксплуатации составляет 10 лет.
Базовые сепараторы не подлежат освидетельствованию в органах Госгортехнадзора.
По желанию заказчика сепаратор может быть изготовлен:
• на любое давление и производительность;
• с различными присоединительными фланцами;
• из нержавеющей стали.
Так, сепараторы СЦВ-7 используются в схеме утилизации шахтного газа – газа с различной концентрацией метана, который образуется в угольных пластах и концентрируется в стволах шахт при добыче угля, а также, выделяется законсервированными угольными шахтами. Выброс метана в атмосферу оказывает губительное влияние на окружающую среду и является одной из причин возникновения явления глобального потепления на планете (его воздействие на окружающую среду в 21 раз выше чем у СО2). В настоящее время внедряется масштабная программа по конверсии шахтного газа, проводимой Донецкой шахтой им. А.Ф. Засядько, которая стала одной из первых в Украине по дегазации горных массивов и последующей безвредной утилизации спутника угля – метана. Шахтный газ будет служить источником энергии для 22-х когенерационных систем с суммарной тепловой и электрической мощностью 131 МВт. Вырабатываемое тепло и электроэнергию предполагается использовать для нужд производственных комплексов шахты и жилых массивов Донецка. Данный проект стал возможным благодаря оборудованию, установленному:
- на обводной ветви вентиляционного ствола в разрыв существующего дегазационного трубопровода для очистки природного шахтного газа от влаги и угольной пыли, с целью обеспечения бесперебойной дегазации шахты;
- на поверхности перед вакуумно-насосной станцией, с целью снижения концентрации угольной пыли в газовой смеси для увеличения срока службы вакуумных насосов.
Одной из перспективных программ использования сепараторов СЦВ-7, является их применение в нефтегазовой отрасли. При разработке новых нефтегазовых месторождений выделяемый попутный нефтяной газ (ПНГ), как правило, утилизируется путем сжигания из-за отсутствия оборудования, способного качественно отделить имеющийся в газе газоконденсат, что наносит значительный вред экологии. Очищенный газ может быть использован как продукт для реализации или в качестве топлива для газо-поршневых или газотурбинных электростанций, в целях его дальнейшей генерации в электроэнергию.
Сепараторы СЦВ-7 применяются практически на всех предприятиях, использующих компремируемый воздух, для его очистки от капельной, мелкодисперсной, аэрозольной влаги и механических примесей. После компрессоров сжатый воздух, как правило, содержит капли воды, и мельчайшие частицы пыли, которые свободно проходят через фильтры. Под воздействием этой смеси выходит из строя оборудование. Влага приводит к износу и коррозии пневматического оборудования, при этом понижается и качество продукции, появляется брак, возникают дополнительные расходы на запчасти и ремонт, вплоть до остановки производственного процесса. Проведенные компанией маркетинговые исследования показывают, что востребованность данного оборудования является очень высокой. Только по приоритетному направлению, – топливно-энергетическому комплексу, – для производимого компанией оборудования открывается обширный рынок сбыта. В первую очередь это связано с вводом в эксплуатацию новых скважин, которые должны комплектоваться, в соответствии с современными требованиями, оборудованием, позволяющим проводить качественную первичную подготовку газового углеводородного сырья, и, в особенной степени, попутного нефтяного газа, для целей его промышленной утилизации. Исследования показывают, что нефтяными компаниями в год вводится в эксплуатацию более 4000 скважин. По газодобывающим компаниям ситуация аналогична. ОАО «Газпром», имея порядка 10000 скважин, в год вводит в эксплуатацию около 200 новых. С учетом доли «Газпрома» (90%) в общем объеме добычи, можно сделать вывод, что газодобывающие компании вводят более 3600 скважин в год. По экспертным оценкам вновь вводимые объекты комплектуются на 55-70% оборудованием, созданным по новым технологиям.
3.2 Программа внедрения сепаратора для очистки попутного газа
Предлагаю перспективную программу, направленную на предотвращение нанесения ущерба окружающей среды и использование дополнительных энергетических ресурсов.
В последнее время, проблемы связанные с экологией приобрели чрезвычайно острый характер. При этом, одними из самых животрепещущих являются вопросы, связанные с вредными выбросами в атмосферу твердых и жидких частиц, которые имеют место во многих видах производств и технологий. Очистные сооружения большинства промышленных предприятий уже не соответствуют международным стандартам по допустимым промышленным выбросам.
На территории Краснодарского края данная проблема особенно остро стоит перед нефтедобывающими предприятиями, которые путем сжигания утилизируют добываемый попутный газ. В результате окружающая среда и население подвергаются воздействию экологически вредных продуктов сгорания попутного нефтяного газа, в том числе и канцерогенных, что приводит к существенному повышению заболеваемости населения в регионе нефтедобычи. За год, в целом по России в результате сжигания попутного нефтяного газа в атмосферу выбрасывается 400 тыс. тонн вредных веществ – окиси углерода, окислов азота, углеводородов, сажи. В то же самое время платежи за загрязнение окружающей среды от выбросов попутного газа не превышают 0,8-1,2% от стоимости реализуемой нефти и только мизерная доля этих средств остается в распоряжении Администрации края и как-то покрывает ущерб, наносимый экологии региона.
При разработке новых месторождений и бурении скважин добываемый попутный газ утилизируется путем сжигания. Основной причиной такой утилизации попутного газа является экономическая нецелесообразность его использования, а именно:
- добываемый попутный газ имеет значительные примеси в виде влаги, газоконденсата и нефти, в связи, с чем газ без дополнительной промышленной переработки неприемлем для использования;
- разрабатываемые скважины не привязаны к коммуникационным сетям в связи, с чем транспортировка газа потребует капитальных вложений, окупаемость которых без детального анализа скважины сомнительна.
Предлагаемое нами оборудование с высокой степенью эффективности очистит газовый поток от нефти, газоконденсата, влаги и механических примесей, таким образом, добываемый попутный газ может быть использован без дополнительной промышленной переработки, а выделенный газоконденсат и нефть использованы по назначению.
Очищенный газ может быть использован для реализации или в качестве топлива для газо-поршневых или газотурбинных электростанций.
Были проведены соответствующие испытания, которые подтвердили возможность работы следующей схемы: попутный газ – сепаратор – газо-поршневая электростанция – электроэнергия. Сегодня на территории Краснодарского края в Славянском районе (НГДП 6 ОАО «Роснефть-Краснодарнефтегаз») ежедневно утилизируется путем сжигания порядка 1,5 млн.м3/сутки, а для выработки 1 кВт электроэнергии необходимо 0,5 м3 газа при использовании газо-поршневой электростанции (АРЗ «Синтур-НТ»), а при использовании более мощных двигателей или турбин необходимое количество газа еще меньше.
Проблема, что делать с газом, фракция которого почти всегда есть в нефтяных месторождениях, не считая попутного нефтяного газа, который растворен в нефти и выделяется при ее первичной обработке на скважинах, существует давно. Газ сжигают на месторождениях, иногда закачивают обратно в пласт для поддержания давления. Нами предлагается вариант использования попутного газа для выработки электроэнергии.
Исследования рынка показали, что сегодня такие нефтяные компании, как Лукойл, ЮКОС и Сургутнефтегаз объявили о своих планах производства природного газа. Руководители Лукойла даже говорят о своей цели производить 100 млрд. кубометров в год, в пересчете на нефтяной эквивалент – это примерно столько же, сколько нефти сегодня добывает этот крупнейший в стране ее производитель (хотя это в 5 раз меньше, чем добыча Газпрома сегодня). Понятно, что эти компании не стремятся получить убыточный сегмент к своему портфелю активов. Очевидно, что в будущем цены на внутреннем рынке повысятся до разумного уровня, и, конечно, эти компании хотят попасть в экспортную квоту Газпрома.
По ценам внутреннего рынка, которые сегодня установлены на весьма низком уровне, производство газа для поставки на внутренний рынок – убыточно. В этом году Газпром ожидает, что внутренний рынок принесет ему 15 млрд. руб. убытков. Повышение тарифов планируется на много лет вперед, оно будет постепенным, и цены явно не достигнут точки окупаемости в ближайшие годы. Газпром покрывает убытки за счет прибыли от экспорта газа, при этом общая добыча газа Газпрома сокращается на 1,5-2% в год. Тем не менее, Газпром заявляет о предстоящем увеличении поставок газа на экспорт в страны ЕС. Этим лишний раз подчеркивается отношение газовой монополии к убыточному внутреннему рынку – повышение экспорта возможно только за счет сокращения поставок на внутренний рынок.
В секторе электроэнергетики, в отличие от нефтяного и газового, уже существует рынок, на котором представлено большое число более-менее независимых производителей, есть ФОРЭМ, есть возможность заключать прямые договоры о поставках электроэнергии крупным ее потребителям. Есть и возможность экспортировать электроэнергию. Конечно, построить ЛЭП – это немалые капиталовложения, но все же значительно меньше, чем при строительстве магистрального газопровода. Отсюда – интерес нефтяных компаний к генерации электроэнергии. В Томске, например, где ЮКОС сотрудничает с РАО ЕЭС и местной энергетической компанией, у него немалые запасы природного газа. Отсюда интерес к крупным пакетам акций в региональных энергетических компаниях.
Таким образом, можно сказать, что нами выверен как технический путь решения проблемы попутного газа, так и экономический, так как в целом по России аналогичные намерения имеют крупные нефтедобывающие компании, что говорит о правильности выбранного пути.
4.Технологии разделения газов
4.1 Адсорбционная технология
В основе процесса адсорбционного разделения газовых сред лежит явление связывания твердым веществом, называемым адсорбентом, отдельных компонентов газовой смеси. Это явление обусловлено силами взаимодействия молекул газа и адсорбента. Работа адсорбционных газоразделительных систем основана на том, что поглощение компонента газовой смеси сильно зависит от температуры и парциального давления. Таким образом, регулирование процесса поглощения газов и регенерации адсорбента происходит путем изменения давления и/или температуры.
4.2 Криогенная технология
Принцип работы криогенных установок основан на сжижении воздуха и последующем его разделении на азот, кислород и аргон. Сначала воздух охлаждается до температуры 93° К и превращается в жидкость. Затем благодаря различию температуры кипения его компонентов (азот — 77,36° К, кислород — 90,18° К) выпаривается азот, а остающаяся жидкость всё более обогащается кислородом.
4.3 Мембранная технология
Основой мембранной технологии разделения газов является мембрана, с помощью которой происходит разделение газов. Современная газоразделительная мембрана представляет собой отнюдь не плоскую пластину или плёнку, а полое волокно. Для технологий мембранного разделения газов применяется современная половолоконная мембрана, состоящая из пористого полимерного волокна с нанесенным на его внешнюю поверхность газоразделительным слоем. Пористое волокно имеет сложную асимметричную структуру, плотность полимера возрастает по мере приближения к внешней поверхности волокна. Применение пористых подложек с асимметричной структурой позволяет разделять газы при высоких давлениях(до 6,5 MПа). Толщина газоразделительного слоя волокна не превышает 0,1 мкм, что обеспечивает высокую удельную проницаемость газов через полимерную мембрану. Существующий уровень развития технологии позволяет производить полимеры, которые обладают высокой селективностью при разделении различных газов, что, соответственно, обеспечивает высокую чистоту газообразных продуктов. Современный мембранный модуль, используемый для технологии мембранного разделения газов, состоит из сменного мембранного картриджа и корпуса. Плотность упаковки волокон в картридже достигает значений 500–700 квадратных метров волокна на один кубический метр картриджа, что позволяет минимизировать размеры газоразделительных установок.

Рисунок 4.1 - Схематическое изображение газоразделительного картриджа
Корпус модуля имеет один патрубок для входа исходной смеси газов и два патрубка для выхода разделенных компонентов.
Разделение смеси с помощью мембранной технологии происходит за счет разницы парциальных давлений на внешней и внутренней поверхностях половолоконной мембраны. Газы, «быстро» проникающие через полимерную мембрану (например, H2, CO2, O2, пары воды, высшие углеводороды), поступают внутрь волокон и выходят из мембранного картриджа через один из выходных патрубков. Газы, «медленно» проникающие через мембрану (например, CO, N2, CH4), выходят из мембранного модуля через второй выходной патрубок.
5 Разделение газов с помощью мембранной технологии
5.1 Экономическая целесообразность применения мембранной технологии
Мембранные технологии разделения веществ, отличающиеся высокой эффективностью при низких энергозатратах, малой материалоемкостью, мобильностью, модульной структурой и простотой управления, представляют собой новые наукоемкие перспективные технологии, ориентированные на активное практическое использование в XXI веке. Наука о мембранах является междисциплинарной и вбирает в себя знания, по крайней мере, в области физики кинетических явлений, физики и химии твердого тела, жидкостей и газов, полимерной Химии, биологии и экологии.
В настоящее время наряду с традиционными мембранными технологиями, такими как микро- и ультрафильтрация, обратный осмос, диализ, электродиализ, .динамично развиваются такие направления как первапорация, газоразделение, мембранная дистилляция, гибридные мембранные процессы.
Первые коммерческие разработки мембранной газоразделительной технологии были реализованы в 80-х годах в СССР, США, Франции и Японии. В настоящее время промышленно реализованы мембранные процессы разделения воздуха (получение технического азота и/или воздуха, обогащенного кислородом), выделения водорода в процессах химии и нефтехимии, выделение диоксида углерода, осушка природного газа. Мембраны используются также в создании регулируемой газовой среды для длительного хранения и транспортировки сельскохозяйственной продукции, при переработке биогаза и т.д.
Мембранное разделение газов и жидкостей вступает в следующий этап своего развития - в эру направленного дизайна новых высокопроницаемых полимерных и керамических материалов, сверхтонких мембран на их основе, отличающихся химической и биостойкостью, стабильностью при повышенных температурах, новыми функциями. Разрабатываются активные мембранные системы с подвижными и фиксированными переносчиками, отличающиеся высоким уровнем избирательности газоразделения и возможностью одностадийного разделения многокомпонентных смесей.
С появлением новых типов керамических мембран связывают развитие новых каталитических нанореакторных технологий, обеспечивающих экономичные и легко управляемые процессы переработки жидкого и газообразного сырья в ценные химические продукты. В связи с этим активно ведутся исследования и разработки функциональных мембранных систем для катализа (каталитические мембранные реакторы) и биотехнологии (активные мембранные системы с подвижными химическими и микробиологическими носителями). Сочетание микробиологических процессов с мембранными позволит смоделировать и реализовать, например, циклическую биоутилизацию СО2 с получением энергоносителей.
Особое внимание уделяется разработке прямых и обратных «сквозных» экспертных подходов в иерархии «полимер-мембрана-модуль-система-процесс», что, в целом, даст возможность значительно расширить круг задач, решаемых мембранной технологией[6].
|
5.2 Принципиальная схема работы мембранных установок
![]() |
Мембранная азотная установка |
![]() |
Мембранная кислородная установка |
![]() |
Схематическое изображение работы мембраного картриджа |
![]() |
Производительность мембранного модуля в зависимости от чистоты азота при различных давлениях |
![]() |
Чистота азота в зависимости от отношения потоков на входе и выходе мембранного модуля при различных давлениях |
Мембранные азотные установки
Одним из основных видов продукции, выпускаемых компанией ГРАСИС, являются азотные установки на базе технологии мембранного разделения воздуха.
Установка азотного пожаротушения предназначена для тушения пожара при возгорании различных горючих веществ, горение которых не может происходить без доступа воздуха, например нефти, нефтепродуктов или газового конденсата, в замкнутых объемах и помещениях, а также для предотвращения возникновения пожаро- и взрывоопасных ситуаций на нефтегазодобывающих предприятиях.
Принцип работы установки азотного пожаротушения основан на инертных свойствах создаваемой воздушной смеси с содержанием азота 95–99%. При таком содержании азота в воздухе процесс горения становится невозможным. Газообразный азот, производимый газоразделительным мембранным блоком азотной установки пожаротушения, подаётся под давлением в ресивер, объём которого рассчитывается исходя из объема помещений и резервуаров, пожаробезопасность которых обеспечивает установка[10].
В случае возгорания происходит автоматическая подача азота в объём, где возник пожар. Это обеспечивает быстрое и надёжное тушение пожара без причинения какого-либо ущерба оборудованию и персоналу. Конструкция азотной установки пожаротушения также позволяет использовать вырабатываемый азот для продувки технологических объёмов, при этом происходит его автоматическое восполнение.
Азотное пожаротушение имеет ряд объективных преимуществ, которые связаны с простотой установки, легкостью обслуживания и ее высокой экономической эффективностью.
Техническая характеристика
| Наименование параметра | Значение |
| Параметры азота на выходе из установки | |
| –чистота азота, % | 95–99,95 |
| –объемный выход газовой смеси, нм³/ч* | 5–5000 |
| –давление, ати | 5–40 |
| –точка росы, °С | −40…−60 |
| Температура окружающей среды | |
| –во время работы, °С | +5…+40 |
| –во время хранения, °С | −20…+50 |
| Время выхода на рабочий режим не более, мин | 10 |
| Ресурс работы мембранных модулей (уменьшение производительности на 10%), тыс. часов | 130–180 |
* производительность приведена к нормальным условиям (t=20° C, P=1 атм.)
Кислородные мембранные установки
Компания ГРАСИС производит на базе мембранной технологии высокоэффективные системы для получения кислорода из воздуха. Мембранные кислородные установки позволяют получать кислород чистотой до 50%, применение таких систем оказывается с экономической точки зрения очень эффективным. Заказчик получает воздух, обогащенный кислородом в требуемой концентрации (от 30 до 50%) и не переплачивает за ненужную ему высокую чистоту.
Принцип работы мембранных кислородных установок повторяет основу функционирования азотных мембранных систем — он заключается в различной скорости проникновения азота и кислорода через материал мембраны. Отличие заключается в том, что в отличие от азота кислород является целевым продукт, который выходит под небольшим избыточным давлением.
Кислород чистотой до 50%, вырабатываемый воздухоразделительные мембранными установками, может использоваться в различных отраслях промышленности для решения широкого круга задач. Например, кислород такой чистоты применяется в тех. процессах на металлургических предприятиях, при сварке и резке металлов. Компании, занимающиеся разведением рыбы, выращиванием креветок, крабов и мидий используют мембранные кислородные установки в инкубационных целях.
Общие технические характеристики
| Наименование параметра | Значение |
| Параметры кислорода на выходе из установки | |
| чистота, % | 30–45 |
| производительность, нм³/ч* | 3–5000 |
| давление, ати | 0,03–0,3 |
| точка росы, °С | -60 – -70 |
| Температура окружающей среды | |
| во время работы, °С | +5 – +40 |
| во время хранения, °С | -20 – +50 |
| Время выхода на рабочий режим не более, мин | 10 |
| Ресурс работы мембранных модулей (уменьшение производительности на 10%), тыс. часов | 130–180 |
6 Утилизация каптируемого шахтного метана
6.1 Утилизация вентиляционного газа
Выбросы метана через систему вентиляции в шахтах составляют наибольшую пропорцию от общего выброса метана процессе добычи угля. Ежегодно выбрасывается в атмосферу около 1,5 млрд. куб.м метана, что является эквивалентом 200 млн. т СО2.
В силу низкой концентрации метана в вентиляционном потоке (как правило, ниже 1 % СН4) полезное использование вентиляционного газа является затруднительным.
В вентиляционных выбросах угольных шахт содержится малоконцентрированный шахтный метан в количестве 0,5…2% от вентиляционного воздуха[11]. Утилизация метана является актуальной задачей, особенно для угольных регионов с шахтной добычей угля, таких как Кузбасс.
Малоконцентрированный шахтный метан можно использовать в системах подачи воздуха в топочных устройствах. Достаточно обоснованных предложений по сжиганию вентиляционного метана не существует, и технология его энергетического использования является новой и перспективной. Потенциальные объемы использования метана угольных шахт в Кузбассе в 2004 г. составляли 890 млн. м3 или около 2% по тепловому эквиваленту от добываемого на этих шахтах угля. Объемы каптажа метана на порядок меньше общей эмиссии и составляли в 2004 г. 52,6 млн. м3, т.е. в топливно-энергетический баланс региона по предварительным оценкам может быть потенциально вовлечено около 60 тыс. т.у.т высококалорийного экологически чистого топлива – газа с применением малозатратных технологий и свыше 900 тыс. т.у.т с применением новых технологий извлечения метана.
Прямое сжигание метана при этом практически невозможно и наиболее приемлемый путь – совместное сжигание с другими видами топлива и, прежде всего, с углем в котлах «малой» и «большой энергетики» на энергетических объектах, находящихся на приемлемом по технико-экономическим показателям расстоянии от шахты.
Предлагаемая технология должна разрабатываться по трем направлениям:
1) для улучшения горения рядового угля в традиционных угольных котлах;
2) для совместного сжигания в газомазутных котлах с углем ультрамелкого помола (до 15-20 мкм);
3) в котлах «большой энергетики» - подача воздуха с вентиляционным метаном в пылеугольную топку.
Каждое из направлений требует отработки технологии и технико-экономического обоснования её эффективности применительно к конкретным условиям.
При применении технологии сжигания вентиляционного метана, может быть достигнут ряд положительных эффектов в том числе:
- экологический эффект: сократятся прямые выбросы метана в атмосферу и при замещении им угля в котлах снизятся выбросы загрязняющих веществ СО2, NO, SO;
- энергетический эффект: улучшатся энергетические характеристики горения угля за счет поддува воздуха с дополнительным высококалорийным топливом, замещающим по эквиваленту сжигаемый уголь, что приведет к повышению к.п.д. оборудования;
- экономический эффект: в зависимости от концентрации вентиляционного метана может снизиться расход основного топлива – угля до 20% (на каждый кг угля расходуется 5ч10 кг воздуха с 0,.5…2% концентрацией метана), снизятся ущербы от выбросов метана, снизятся ущербы за счёт улучшения структуры топливно-энергетического баланса региона, снизится топливная составляющая в тарифе за счет использования «бросового» энергоресурса. И, наконец, использование механизмов Киотского протокола можно получить дополнительные финансовые ресурсы для реализации проектов по использованию вентиляционного метана[8].
На укрупненном теплоэнергетическом стенде проведены эксперименты по совместному сжиганию газа и угля микропомола, показавшие эффективность совместного сжигания газа и угля.
Эффективность совместного использования низко концентрированного шахтного метана в современных экономических условиях просматривается для энергетических объектов, удаленных от шахты на расстоянии, не превышающем 3 км, с учетом ущерба от выбросов метана и использования механизмов Киотского протокола.
6.2 Способ извлечения метана из вентиляционных струй шахт
Сущность технологии: извлечение метана из сжатой метановоздушной смеси вентиляционной струи путем низкотемпературной адсорбции с получением холода путем кристаллизационных процессов.
Способ позволяет: на основе комбинирования газогидратных и сорбционных энергозатратных процессов извлечь метан из вентиляционной струи шахты; одновременно с извлечением метана осуществлять и другие необходимые для шахты мероприятия – охлаждение шахтного воздуха и деминерализацию шахтной воды, компенсируя энергетические затраты одних процессов за счет избытка их в других[4].
Назначение: предотвращение выбросов метана вентиляционных струй шахт в атмосферу с целью улучшения экологической обстановки и его утилизация.
Область применения: газоносные угольные шахты.
Основные характеристики:
концентрация метана на выходе из установки - 100 %;
получение низких температур до - 50oС;
попутное получение пресной воды.

Рис. 6.1. Принципиальная схема: К - компрессор; Д - детандер; Аб - водяной барботажный абсорбер; Т - теплообменники; ХМ - холодильная машина; Ад - адсорберы; р - кристаллизатор; П - сепарационная промывочная колонна
6.3 Утилизация шахтного метана в газогенераторных установках с выработкой тепло- и электроэнергии

Рисунок 6.1 – Модульная газогенераторная установка
Газогенераторные установки выпускаются в модульном исполнении и включают систему подготовки газа, двигатель внутреннего сгорания и электрический генератор. Газогенератор потребляет метановоздушную смесь с концентрацией метана от 30% и выше.
При анализе технологии утилизации шахтного метана на «Шахте им. С.М. Кирова» рассмотрен вариант установки газогенераторной станции, включающей 7 газогенераторов с электрической мощностью каждого 1,021 МВт. Газогенераторы, поставляются в контейнерном исполнении и могут оснащаться устройствами утилизации тепла с производительностью 1,2 Гкал/МВт. Общий срок службы газогенератора составляет 150 – 250 тыс. часов[3].
Для обеспечения работы станции требуется дебит метана в объеме 4,5 м3/мин. (в пересчете на его 100% концентрацию)
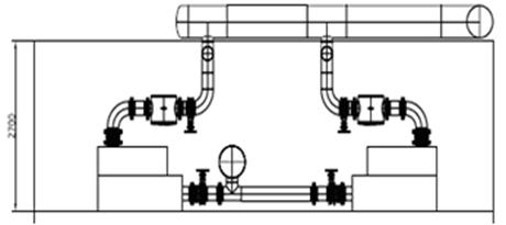
6.3.1 Контейнерные ТЭС
Данный агрегат предназначен для выработки электроэнергии и дополнительно для производства тепловой энергии при использовании газа в качестве топлива. Для этого газ подается через систему трубопроводов на электрогенераторный агрегат.
Данный агрегат состоит из представленных ниже главных составных частей и узлов:
-контейнер (или корпус)
-Газовый двигатель с несущей рамой и генератором (генераторная установка)
-Система подачи газа
-Распределительное устройство, система управления
-Система охлаждения
-Система отвода отработанных газов
-Система подачи смазочного масла
-Приточно-вытяжная вентиляция
Стальной контейнер предназначен для размещения и монтажа всех элементов установки. Посредством использования стального контейнера была достигнута необходимая мобильность установки. Данный контейнер в пространственном отношении делится на две зоны:
Машинное отделение
Отделение распределительного устройства
В машинном отделении устанавливается непосредственно генераторная установка, а так же периферийное оборудование, необходимое для эксплуатации данной установки. В машинном отделении возле самого агрегата (мотором с регулятором газа и генератором) установлена система смазочного маслопитания, а также различные вспомогательный агрегаты. Машинное отделение оборудуется двумя входными дверями (одна на продольной боковой стороне, одна в отделении распределительного устройства) и одной двойной дверью на передней стороне. Данные двери оснащаются запорами аварийного срабатывания. К дополнительному оборудованию машинного отделения так же относятся осветительное оборудование и штепсельные розетки.
Отделение распределительного устройства включает в себя распределительное устройство для осуществления управления установкой и ее регулирования в целом. К дополнительному оборудованию отделения относятся осветительное оборудование, штепсельные розетки, а так же электрический тепловентилятор для обогрева отделения.
В отделении распредустройства находится распределительное устройство, которое состоит из шкафа управления (вкл. вспомогательные приводы) и элемента мощности.
Благодаря, расположенного, в отделении распределительного устройства установки управления и контроля установка рассчитана на продолжительный автоматический режим работы без привлечения персонала, при этом ежедневные контрольные операции с оптической и акустической проверкой отдельных деталей установки должны предотвращать неисправности.
Все необходимые для эксплуатации приборы контролируются автоматически, так что выход из строя отдельных секций машины ведет к отключению агрегата.
Обслуживание установки происходит преимущественно посредством панели OP170 центрального управления установкой, которая находится в отделении распределительного устройства.
Ориентировочная калькуляция по контейнерной ТЭС, 1,35 МВт, евро
| Наименование статей затрат, дохода | Евро, +/- 10%, примерно | ||||
| 1. | Капитальные затраты | оптимист | пессимист | среднее | |
| 1.1. | Конт. ТЭС, 1,35 МВт, от завода | 600.000 | 750.000 | ||
| 1.2. | Контейнер с трафо 400/660В, (при необходимости) | 20.000 | 100.000 | ||
| 1.3. | Контейнер компрессора с измер. аппаратурой | 50.000 | 160.000 | ||
| 1.4. | Транспортные расходы | 10.000 | 60.000 | ||
| 1.5. | Таможенная пошлина, 2 - 7% | 13.600 | 74.900 | ||
| 1.6. | Сертификация | 0 | 50.000 | ||
| 1.7. | Проектная документация, разрешения | 20.000 | 50.000 | ||
| 1.8. | Оформление эмиссионного ПСО/JI | 50.000 | 150.000 | ||
| 1.9. | Другие расходы, 10% | 76.360 | 139.490 | ||
| Капзатраты | 839.960 | 1.534.390 | 1.187.175 | ||
| 1.10. | НДС, который не всегда возможно получить назад | 0 | 306.878 | 153.439 | |
| Всего: | 839.960 | 1.841.268 | 1.340.614 | ||
| 2. | Эксплуатационные расходы в год | ||||
| Полная загрузка в год, кол-во часов | 7.000 | 6000 | |||
| 2.1. | Стоимость от ТО до сред. ремонта с ЗИП и маслом | 0,014 | 132.300 | 113.400 | |
| 2.2. | Возврат кредита за 10 / 10 / 5 лет (10%, 10% и 20%) | соотв. | 83.996 | 184.127 | 268.123 |
| 2.3. | Стоимость кредита, 8-12% в год | 83.996 | 184.127 | 134.062 | |
| 2.4. | Амортизация в 20 лет, 5% в год | 41.998 | 92.063 | ||
| 2.5. | Охрана: 6 чел.* 200€*12мес. | 0 | 20.000 | ||
| 2.6. | Ежегодная сертификация ЕСВ/ERU | 10.000 | 15.000 | ||
| 2.7. | Другие расходы, 10% | 52.844 | 91.308 | ||
| Всего эксп. расходы в год | 405.134 | 700.025 | 552.579 | ||
| 3. | Доход | ||||
| 3.1. | Эл. энергия, отпускная цена, без НДС, евро/кВтчас | 0,03 | 283.500 | 243.000 | 263.250 |
| 3.2. | Используемое тепло, мВтчас тепла в год | 5000 | 10.000 | 7.000 | |
| 2000 | 4.000 | ||||
| 3.3. | Эмиссионные сертификаты, 37.000 т СО2/г, 5-25€ | 20 | 740.000 | 555.000 | |
| 10 | 370.000 | ||||
| Всего доход в год | 1.033.500 | 617.000 | 825.250 | ||
| 4. | Прибыль, брутто, евро в год | 628.367 | - 83.025 | 272.671 | |
| Прибыль, после уплаты 30% налога, евро в год | 439.857 | - 83.025 | 190.870 | ||
Затраты по стационарным и мобильным ТЭС на 1 МВт примерно одинаковы.
Ожидаемый доход от эмиссионных сертификатов составляет около 67%, от выработки электроэнергии 32% и от получения тепла менее 1%.
Недостаточная информация о затратах по ТЭС на шахтном газе приводит при ТЭО к завышению эффективности проектов в несколько раз. Основными характерными ошибками при этом являются:
- завышение рабочих часов в году ТЭС до 30%;
- недостаточный учет стоимости инвестиционного кредита;
- игнорирование требований кредиторов по возврату кредитов по 2012, пока не будет решена дальнейшая судьба Киотского протокола;
- недооценка рискованности ПСО с шахтным газом, того, что при финансировании через фонды и покупателей ЕСВ стоимость эмиссионных сертификатов снижается до 30-50%;
- заниженные эксплуатационные затраты;
- непринятие в расчет стоимости необходимого для шахт резервного источника электроснабжения;
- завышенная цена электроэнергии при передаче ее в общую сеть.

Рисунок 6.2 - Контейнерные ТЭС
Мощность, МВт: 0,2-1,8 эл. эн. и 0,3-1,9 теп. эн. КПД: > 0,9
Контейнер: 12 х 3,2 х 2,9 м вес: 30т СН4: > 25 (30)%

Рисунок 6.3 – Блочная электростанция

Рисунок 6.4 –Устройство блочной электростанции
6.3.2 Контейнерные экологические газосжигательные установки КГУУ-5/8
Концентрация метана:> 25%
Размеры:контейнера L x B x H = 6 х 2,65 х 2,75 м
трубы: D 2,1 х Н 5, 4м
вес: 11т 2 т
комплектация: + распредустройство с системой анализа и учета количества газа + вакуумно-компрессорная станция (ВКС)
+ камера сжигания Данные о подключении контейнера: - всасывающий газопровод: DN200 / PN10 - электроснабжение 400 В, 250 А Данные всасывающего агрегата: Тип: ротационный насос FLC 86 RB-24H/R-G, c внутренним износостойким покрытием Производительность: 570 – 1551 м3/час перепад давления:до 460 мбар мощность эл. мотора55 кВт число оборотов2965 об/мин Данные камеры сжигания: тип D1900 размеры камеры: L x B x H = 2,2 х 2,2 х 1,3 м дымоотвод:D=1,9 м, Н=7,6 м, |
![]() |
тепловая мощность: Pth = 1710... 8525 кВт температура сжигания: 1.000 – 1.200 °C |
Варианты подключения КГУУ-5/8 |
Выбросы в атмосферу: СО< 80мг/м3, NOx < 20 мг/м3
Техника безопасности: - пламяпреградители всасывающих и напорных трубопроводах,
- анализ всасываемого газа на: СН4, СО2, О2

Рисунок 6.4 - Контейнерная газоутилизационная установка КГУУ -5/8 для шахтного газа
Снижение выбросов метана в атмосферу: 50.000 - 80.000 т СО2 в год
Котельные на шахтном газе, кпд > 90%
Сушильные установки ОФ
Калориферные установки стволовМетановые автозаправочные станции Инвестирование (до100%)
КГУУ-5/8 предназначена для утилизации шахтного газа (действующих и закрытых шахт) через сжигания его в специальной камере и предотвращения этим выделения в атмосферу вредного парникового газа - метана (СН4). Метан в 21 раз вреднее образуемого при его сгорании углекислого газа СО2.
КГУУ-5/8 может работать самостоятельно с электроснабжением от общей энергосети, так и от газовой контейнерной теплоэлектростанции (КТЭС). В последнем варианте газ КТЭС поддается от компрессора КГУУ-5/8, а излишнее количества газа, отсасываемого компрессором, сжигается в самой КГУУ-5/8.
КГУУ-5/8 могут отсасывать газ непосредственно из дегазационной скважины одной установкой или несколькими параллельно работающими установками. Кроме этого КГУУ-5/8 может подключаться к дегазационному трубопроводу впереди или позади передвижной поверхностной вакуумно-насосной станции (ППНС). В последнем варианте подключение дегазационного трубопровода к КГУУ-5/8 производиться непосредственно после ее компрессора, т.е. компрессор КГУУ не работает.
Техническая производительность КГУУ-5/8 ограничена 8МВт тепловой энергии, оптимальной длительной мощностью считается 5 МВт.
КГУУ-5/8 производит постоянный автоматический анализ поступающего газа на содержание СН4, О2 и СО2. На действующих шахтах допускается сжигать утилизируемый газ при содержание метана не менее 25% вне зависимости от содержания кислорода.
На закрытых шахтах при содержании кислорода менее 6% допускается работы КГУУ-5/8 при любом содержании метана, а при содержании кислорода 6% и более допускается работа установки при содержании метана 25 % и более.
Мощность одного контейнера: от 5 до 180 м3/мин
Количество насосов (компрессоров) в контейнере: до 4
Мощность одного насоса: 45 м3/мин при 0,9/1,1 бар (можно и 70 или 130 м3)
Разница в давлении: до 500 мбар; давление: в 60-110 мбар; байпас
Диаметр трубопроводов: 200 мм, давление до 10 бар
Вес компрессора без мотора: 1.255 кг
Мотор: 75 кВт, 400 В, 2.970 – 750 мин-1
Размеры контейнера, м: 12(9) х 2,5 х 2,5 Вес контейнера: до 11 т
![]() |
1) Пласт 2) Контейнеры с насосами 3) Дегазационная скважина 4) Поверхность |
Рисунок 6.5 - Схема дегазации через скважины с поверхности
В каждом контейнере предусмотрено отделение для автоматики работы компрессоров и анализа газа (СН4, О2) и дистанционного управления


Достоинства: - отсутствие воды; - все в 1 контейнере; - мобильность, автономность; - бесступенчатая регулировка мощности; - легкость монтажа, удобство для ремонта и ТО; |
![]() |
- автоматический режим работы, дистанционное управление;
- приспособленность к работе с утилизационными установками;
- уменьшение необходимого резерва по мощности компрессоров на 75%;
- при работе несколько контейнеров многократно увеличивается надежность всей станции в сравнении с крупными стационарными компрессорами[7].
Описанная ниже установка применяется для активного отсасывания шахтного метана из угольных пластов действующих и закрытых шахт и последующей тепловой утилизации метана в камере сжигания или для энергетического применения в контейнерных электростанциях.
Оборудование установлено в звуко и тепло изолированном стальном 20´футовом контейнере согласно ISO-нормам (LхВхН=6058 x 2438 x 2591мм), который через трубопровод связан со скважиной в выработанном пространстве. Благодаря использованию контейнера установка очень компактна и может, в короткий срок перенесена с одного местонахождения в другое.
Контейнер разделен на машинное отделение, помещение для камеры сжигания и помещение для распределительного устройства. В машинном отделении находится насос по отсасыванию газа. К распределительному устройству относится и комплект автоматического регулирования компрессора, камеры сжигания, а также техника для анализа газа. В каждое из отделений можно попасть снаружи через отдельную дверь.
КГУУ состоит из 7 блоков и может быть для определенных условий расширена 2 дополнительными узлами.
Передвижные наземные ротационные ВНСтанции до 260 м3/мин 2- 4 насоса мощностью 50-130 м3/мин, полная автоматика, стандартный контейнер:12 х 2,5 х 2,5 м, вес: до 11 т, вакуум до 0,5 и давление до 1,2 бар отсутствие воды


Рисунок 6.9 - Изопен для изоляции выработанного пространства
6.4 Утилизация шахтного метана в модульных котельных установках (МКУ) с выработкой теплоэнергии

Рисунок 6.10- Модульная котельная установка
В качестве топлива в МКУ используется дегазационный метан с концентрацией 25-100 %. Теплопроизводительность 0,5 - 10 МВт.
Оборудование МКУ может включать водогрейный котел, резервуар для приема подпиточной воды, насосное оборудование и трубопроводы, оборудование газоснабжения, электроснабжения, щитовые устройства электроснабжения, КИПиА для работы, как в ручном режиме, так и в режиме полной автоматизации, с выводом всех параметров на компьютер[3].
6.5 Установка каталитического окисления шахтного метана с низкой концентрацией для выработки тепло- и электроэнергии
Каталитическая энергоустановка (установка каталитического окисления) предусматривает беспламенное (каталитическое) окисление метана в керамической камере для утилизации метановоздушной смеси низкой концентрации (менее 1%).

Рисунок 6.11 - Установка каталитического окисления шахтного метана
Вентиляционный метан, проходя через нагретую керамическую камеру внутри энергоустановки, постепенно нагревается ее теплом. Нагретый метан окисляется, с выделением тепла. Для поддержания работы каталитической энергоустановки в автономном режиме необходима концентрация метана в метановоздушной смеси 0,15%, при концентрации свыше 0,15% оставшийся метан используется для получения пара. Полученный перегретый пар может использоваться в стандартном турбинном генераторе для выработки электроэнергии или для получения теплоэнергии. Поскольку в системе распределение температуры чрезвычайно однородно, образования NОx не происходит[3].
7 Роль государственного регулирования
После ратифицирования Киотского протокола в феврале 2005 г., наметился учительный сдвиг в утилизации шахтного метана.
В основе Киотского Протокола — идея контроля за выбросами вредных газов, число которых входит метан. Эти выбросы измеряются в тоннах углекислого газа. По своему воздействию на окружающую среду метан является более опасным газом и поэтому 1 т сокращенных сбросов метана приравнивается к 21 т углеродного газа.
Компании, которые применяют технологию, позволяющую избегать вредных выбросов, получают углеродные квоты. Эти квоты могут быть проданы на специальной европейской бирже тем компаниям, которые превышают дозволенные выбросы, благодаря «механизмам гибкости», прописанным в Киотском Протоколе, углеродные квоты, произведенные в одной стране и зарегистрированные специальными международными органами, могут быть куплены, использованы в другой стране. Таким образом, проекты по утилизации метана. расположенные в странах, вступавших в Киотское Соглашение, получили еще один источник дохода — от продажи углеродных квот. Для большинства проектов это явилось решающим фактором, гак как прежде подобные проекты не окупались на одних только продажах электричества и тепла. По недавней оценке Американского Агентства по Охране Окружающей Среды, во всем мире из шахтного метана могло бы вырабатываться около 5 600 MB" электроэнергии. Однако необходимо заметить, что коммерческая целесообразность развития этих проектов (или скорее всего только их небольшой части) зависит от цены на углеродных квот[2].
В настоящий момент несколько крупных и средних проектов по утилизации шахтного метана находятся в стадии развития или уже начали работу. Из них пять проектов подали заявки на регистрацию в комиссию, которой необходимо для получения углеродных квот.
Помимо Киотского Протокола государственное законодательство страны играет важную роль в развитии утилизации метана на угольных шахтах. С помощью цен на электроэнергию, субсидий или, наоборот, штрафов государство имеет возможность поощрять развитие проектов по утилизации шахтного газа. В большинстве стран основным препятствием к осуществлению утилизации метана являются низкие цены на энергоносители, поэтому с помощью специальных цен на экологически чистую электроэнергию государство может сделать проекты коммерчески привлекательными. Например, когда правительство Германии в 2000 г. приняло закон, повышающий цену на экологически чистую энергию в два раза, это послужило толчком к развитию дополнительных энергетических проектов на угольных шахтах общей мощностью более чем 200 МВт.
В некоторых странах, например в Соединенных Штатах, государство предлагает налоговые льготы компаниям, которые утилизируют шахтный газ.
В России стимулом для утилизации метана служит государственный налог, или «Плата за вредные выбросы», которая за последний год была сильно увеличена и в настоящий момент является ощутимой статьей расходов для угольной промышленности.
8 Блочная комплексная установка утилизации каптируемого метана
При подземной добыче угля угольной компании приходится бороться с шахтным метаном, который выделяется в процессе разработки угольных пластов. Так как метано-воздушная смесь является взрывоопасной при концентрации метана от 5 до 14% системы вентиляции стало недостаточно. Введение заблаговременной дегазации посредством бурения дегазационных скважин и вакуумного отсасывания позволило снизить нагрузку на системы вентиляции и дополнительно повлекло за собой увеличение производительности угольных шахт. Дегазация может проводиться посредством бурения вертикальных скважин в неотработанные и отработанные участки или горизонтальных и наклонных скважин из шахтного пространства.
Первый вариант. Производится откачка шахтного газа из стволов шахты вентиляторными установками. Концентрация метана (горючих газов) в данном газовом потоке составляет 0,75%, что делает непригодным этот газ для дальнейшего использования в связи с тем, что в газовом потоке, откачиваемом из шахты идет большое количество угольной пыли, которая негативно влияет на работу вакуумного насоса. Данную пыль необходимо удалять. Сепаратор устанавливается перед вакуум-насосом для удаления мельчайших частиц пыли и влаги.
Второй вариант. Использования сепаратора СЦВ-7 в системе дегазационного трубопровода когда метан по трубам подается на поверхность. Таким образом, происходит утилизация метана.
Концентрация метана в дегазационном трубопроводе составляет 25-40%, что делает возможным его дальнейшее использование в качестве топлива для газо-поршневых, газотурбинных установок, теплоэлектростанций. В данном случае также возникает проблема в работе вакуумного насоса и кроме того после вакуумного насоса газ необходимо подать в ГТУ, ГПУ, ТЭЦ, поэтому необходима его дальнейшая очистка.
Техническое решение конструкции сепаратора СЦВ-7 позволило увеличить эффективность очистки воздуха до 99.99%.
Для обогащения очищенного газа применяем мембранную технологию.
В основе разделения газовых сред с помощью мембранных систем лежит разница в скоростях проникновения компонентов газовой смеси через вещество мембраны. Процесс разделения обусловлен разницей в парциальных давлениях на различных сторонах мембраны. Половолоконная мембрана состоит из пористого полимерного волокна с нанесенным на его внешнюю поверхность газоразделительным слоем[6].
После обогащения метан поступает на одну из утилизационных установок.
метан сжигается в сжигательных установках, тем самым, предотвращая выделения в атмосферу вредного парникового газа;
производство тепла и электроэнергии;
КГУУ-5/8 предназначена для утилизации шахтного газа (действующих и закрытых шахт) через сжигания его в специальной камере и предотвращения этим выделения в атмосферу вредного парникового газа - метана (СН4).
КТЭС предназначен для выработки электроэнергии и дополнительно для производства тепловой энергии при использовании газа в качестве топлива. Для этого газ подается через систему трубопроводов на электрогенераторный агрегат. Газовый двигатель приводит в действие генератор. Производимая при этом избыточная электрическая энергия подается через трансформаторную станцию, расположенную на площадке, на общественную сеть электроснабжения.
Тепло воды охлаждения двигателя, формируемое в процессе его эксплуатации, отбирается через пластинчатый теплообменник, и используется для обогрева всего рабочего оборудования, либо отводится в атмосферу посредством дополнительных устройств охлаждения.
Если тепло, образуемое в процессе охлаждения смеси, равно как содержащееся в выхлопных газах не используется, то оно отводится в атмосферу.
В качестве теплоносителя в контурах охлаждения используется смесь воды с этиленгликолем (60% воды, 40% гликоля).
Для эффективного использования каптируемого метана по результатам анализа мирового и отечественного опыта предлагается блочная установка утилизации метана дает возможность не только сжигать метан в специальной камере тем самым, предотвращая выделения в атмосферу вредного парникового газа, но и для выработки электроэнергии и дополнительно для производства тепловой энергии при использовании газа в качестве топлива. Для этого газ подается через систему трубопроводов на электрогенераторный агрегат.

Рисунок 8.1 – Пример блочной установки
Данная блочная установка позволяет работать обеим установкам вместе как от общей энергосети, так и от газовой контейнерной теплоэлектростанции (КТЭС). Газ КТЭС поддается от компрессора КГУУ-5/8, а излишнее количества газа, отсасываемого компрессором, сжигается в самой КГУУ-5/8.
Блочная установка может отсасывать газ непосредственно из дегазационной скважины одной установкой или несколькими параллельно работающими установками. Кроме этого, может подключаться к дегазационному трубопроводу впереди или позади передвижной поверхностной вакуумно-насосной станции (ППНС).
Сравнительная экономическая оценка различных технологий утилизации шахтного метана
Вступление в действие с 01.01.2008г. Киотского протокола открывает новые возможности для дегазации и утилизации шахтного метана. Подготовительный период с 2002 г. к торговле эмиссионными единицами сокращения выбросов (ЕСВ = 1 т С02) позволяет сделать первые выводы по возможностям утилизации шахтного газа:
Готовые к реализации технологии утилизации шахтного метана предназначены для концентрации метана более 25 %(мини-ТЭС, котельные, калориферы, экологические факелы). При реализации данных технологий в эмиссионных проектах совместного осуществления (ПСО) более 60% прибыли получают в настоящее время от продажи сертификатов ЕСВ.
Шахтный газ с концентрацией метана более 25% имеется только на нескольких шахтах стран СНГ. Для достижения концентрации метана в 25 % на большинстве шахт, сверхкатегорийных по газу, необходимо многократно повысить эффективность дегазационных работ, которые в настоящее время зачастую проводятся некачественно.
Имеются отдельные теоретические разработки и эксперименты (с небольшим объемом газа) утилизации метана с концентрацией в пределах 0,8-0,9% (оксидайзеры). Данная технология требует еще больших теоретических и экспериментальных работ продолжительностью более 3-5 лет. Шахтный газ с концентрацией метана в 0,8-0,9% имеется на отдельных шахтах Кузбасса при комбинированном проветривании, но организацию его утилизации трудно реализовать, многие скважины с данной концентрацией находятся в удаленных от потребителя теплоэнергии районах[1].
Для утилизации шахтного газа нужны исследования по новым технологиям его утилизации при содержании метана менее 25%. Системно и с хорошей научной и экспериментальной базой проводятся исследования, по нашей информации, только в немецком государственном институте УМЗИХТ (экологии, безопасности и энергетики). Финансирование разработок по шахтному газу института по 2010г. осуществляет ЕС и частная фирма А-ТЕС Анлагентехник ГмбХ.
Фьючерсная цена эмиссионных сертификатов (ЕСВ) достигала максимальной величины в 25-30 евро/т СО,, хотя по прогнозам в 2002-2005 гг. предполагалась стоимость более 40 евро.
Инвестирование в утилизацию шахтного газа является наиболее рискованным бизнесом для углеводородных фондов, поэтому они просят до 50% получаемой прибыли. Успешно работающие угольные компании осуществляют самофинансирование эмиссионных проектов. Стоимость финансирования через инвесторов можно значительно уменьшить, если угольная компания перенимает более 50-60% инвестирования, что обязывает шахту к повышению надежности обеспечением газом.
Продажа эмиссионных сертификатов в настоящее время гарантируется только на период 2008-2012 гг. Что будет с эмиссионной торговлей после 2012 г, мы узнаем, скорее всего, только в 2010-2011 гг. Поэтому все задержки с реализацией ПСО после 01.01.2008 г. можно рассматривать как убытки от нереализованных возможностей.
В представленной после данной статьи рекламе указаны возможные доходы от утилизации шахтного метана при различных технологиях и условной эмиссионной цене 1 т С02 в 20 евро (фактическая цена на 18.10.2007г. составляла 23 евро).
При наличии потребителя всего тепла в течение целого года котельные являются наиболее эффективными установками, суточный доход по небольшой котельной на 10 мВт превышает 5 000 евро. К сожалению 100 % использование тепла в течение всего года возможно только в исключительных случаях.
Если исходить только из дохода на 1 м-СН4/мин, утилизируемого при различных технологиях, то на первом месте находятся кооперационные установки (мини-ТЭС). Однако при учете эксплуатационных и инвестиционных затрат, которые при мини-ТЭС в 5-8 раз выше, чем при котельных и дегазационно-факельных установках, эффективность когенерации значительно снижается.
В последние 5 лет, вследствие значительного роста стоимости электроэнергии, выросла экономическая эффективность мини-ТЭС в Украине и России. Однако в связи с большими удельными капитальными и эксплуатационными затратами через ТЭС можно утилизировать максимум 70-80% СН4, а остаток, переменную объемную часть шахтного метана, целесообразно утилизировать через экологические факельные установки. Если имеются проблемы со сбытом электроэнергии ночью, что уже наблюдается в отдельных угольных районах, то количество утилизируемого газа через факельные установки целесообразно увеличить.
К преимуществам факельных установок следует отнести и то, что область их применения значительно шире, чем у котельных и мини-ТЭС. Они могут работать и на скважинах, шахтного поля вдали от населенных пунктов, требования к стабильности шахтного газа у них существенно ниже. Суточный доход от реализации эмиссионных сертификатов может превышать 3-4тыс. евро на одну экологическую дегазационно-эмиссионную установку.
Данные установки не только улучшают нашу экологию, но и способствуют дегазации действующих шахт.
С учетом неопределенности продолжительности эмиссионной торговли и целесообразной максимальной утилизации уже с 01.01.2008г., существенной разницы в капитальных и эксплуатационных затратах различных технологий утилизации, больших сроков подготовки и изготовления мини-ТЭС можно рекомендовать, начинать утилизацию с экологических факельных установок и котельных, калориферов, сушилок при обогатительных фабриках. Данные технологии могут дополнять друг друга. С повышением надежности квитирования шахтного газа с концентрацией более 40 % можно вводить в работу и мини-ТЭС, финансирование которых может быть частично уже закрыто за счет ЕСВ от экологических факельных установок и котельных.
Заключение
Среди различных вариантов использования шахтного метана блочная установка позволяет добиваться максимальной финансовой отдачи, в то же время, обеспечивая шахту и близлежащие населенные пункты надежным источником электричества и тепла и снижая выбросы в атмосферу парникового газа.
В связи с принятием нового законодательства, регулирующего выбросы парниковых газов, во многих странах мира наблюдается значительный рост интереса к утилизации шахтного метана как одного из самых низкозатратных способов снижения вредных выбросов. Растущие цены на природный газ и энергоносители также повышают экономическую привлекательность подобных проектов.
В мировой электроэнергетике накоплен большой многолетний опыт в разработке, производстве, эксплуатации систем автономного и резервного электроснабжения на основе электростанций потребительской мощности (100-10000 кВт) с первичным поршневым двигателем, работающем на природном газе или пропане. Эти электростанции обладают замечательными особенностями: экологическая чистота, дешевизна электроэнергии, возможность использования получаемого при работе тепла, близость к потребителю, отсутствие необходимости в дорогостоящих ЛЭП и подстанциях. Эти электростанции легко перевозить и устанавливать. Станции мощностью до 1,5-2 Мвт устанавливаются в стандартном ISO контейнере .
Такие электростанции используются на буровых платформах и скважинах (работают на попутном газе), шахтах (работают на шахтном метане), очистных сооружениях (биогаз) как резервные, вспомогательные и основные источники электроэнергии в госпиталях, аэропортах, жилых массивах и пр.
Электростанции имеют межремонтный ресурс 50 тыс. часов и низкую стоимость эксплуатационных расходов: расход газа - менее 0,3 м3, расход масла - менее 0,4 г. на 1 кВт-час. Стоимость электроэнергии при использовании таких установок составит около 10 коп. за 1 кВт-час, включая эксплуатационные расходы.
Внедрение подобных электростанций может дать существенный экономический эффект для конечного потребителя, обеспечит его качественным, бесперебойным электроснабжением.
Российские компании вместе с производителями двигателей, осуществляют поставку, установку, наладку, гарантийное и послегарантийное обслуживание таких электростанций. Такие электростанции начинают производиться и в России. Так, небольшая, но известная в "дизельных" кругах петербургская компания налаживает с помощью заокеанских партнеров производство мини ТЭС на природном газе мощностью 30 кВт электрической и 30 кВт тепловой энергии. В этой электростанции "сердцем" является двигатель Российского производства, что позволит продавать подобные установки по цене в 3-5 раз ниже, чем аналогичные установки немецких фирм. Планируется также сборка более крупных электрогенераторов с использованием Российских комплектующих, что позволит дать потребителю качественную продукцию по более доступным ценам, чем прямые поставки западных пакеджеров.
Стоимость новых электростанций ведущих мировых производителей Waukesha, Cooper, Caterpillar, Cummins и др. может составить от $400 до $900 за 1 кВт мощности в зависимости от комплектации. Существенную долю стоимости в импортных установках составляют системы теплообмена, аварийного охлаждения, автоматики и электрораспределения. Все эти системы могут изготавливаться и на Российских заводах, что позволит существенно понизить цену установок для потребителя.
Российскому, стесненному в средствах потребителю, следует обратить внимание на мировой рынок подержанной и восстановленной техники. Так, корпорация Cooper Cameron активно работает на вторичном рынке газовых двигателей собственного производства. Многие компании занимаются восстановлением, ремонтом и поставкой подобной техники, которая стоит существенно дешевле новой (на 20-40%), как правило, имеет 100% ресурс и гарантии.
Американская технология восстановления двигателя состоит в следующем: коленчатый вал восстанавливается с помощью ионной технологии до номинального размера., все изнашиваемые части заменяются на новые, номинальных размеров. Никаких "ремонтных размеров" не существует. На восстановленный двигатель после испытаний выдается соответствующая международная гарантия. Деятельность фирм по продаже восстановленного оборудования активна и весьма успешна. Так международный тендер по поставке газопоршневых электростанций для строящегося газопровода в Боливии был выигран компанией BTI S.R.L. , предложившей восстановленные генераторы Waukesha.
За 1998 год в России были установлены несколько газопоршневых машин (1МВт в г. Ступино Моск. обл.., 1 МВт в Сочи, 600 кВт в Санкт-Петербурге и др.). Санкт-Петербургский 600 кВт агрегат представляет два газопоршневых генератора с двигателями Deutz-MVM мощностью по 300 кВт и обеспечивает электроэнергией и теплом офис "Лентрансгаза" на ст. Броневая. (Деловой Петербург №118 от 04.11.98) За последнее время заказчиками газовых электростанций стали торговые зоны, хлебопекарные предприятия, некоторые предприятия пищевой промышленности. Принято решение о создании собственной газопоршневой электростанции на Кировском заводе (ДП №52 от 18.05.98).
Для потребителей, находящихся на значительном отдалении от существующих газопроводов Российские поставщики предлагают услугу по доставке жидкого метана. Так 1 тонна жидкого метана с доставкой в радиусе 200 км. От Санкт Петербурга обходится потребителю лишь в 1 тысячу рублей. Что дает электроэнергию 2,5 раза дешевле, чем тариф Ленэнерго.
Несмотря на экономический кризис, газопоршневые электрогенераторные установки являются экономически привлекательными для Российского промышленного потребителя. Окупаемость новых установок составляет от 1,5 до 6 лет работы. После планируемого в ближайшее время увеличения тарифов на электроэнергию экономическая привлекательность газовых электростанций станет еще более очевидной.
Госгортехнадзор России одобрил применение газовых двигателей ведущих мировых производителей на территории России[11].
Список использованных источников
1. Астахов С.А. Утилизация шахтного газа //Уголь.- 2006.- № 08. – С.9 – 13.
2. Безпфлюг В.А Опыт утилизации шахтного метана в ФРГ и возможности его утилизации в России // Уголь.-2006.- № 08. – С.31 – 38.
3. Электронный каталог ГПНТБ России [Электронный ресурс] : база данных содержит сведения о всех видах лит., поступающей в фонд ГПНТБ России. – Электрон. дан. (10 файлов, 178 тыс. записей) – Режим доступа: [http//www.uglemet.ru; 28.03.2008.]- Загл. с экрана.
4. Электронный каталог ГПНТБ России [Электронный ресурс]: база данных содержит сведения о всех видах лит., поступающей в фонд ГПНТБ России. – Электрон. дан. (5 файлов, 200 тыс. записей) – Режим доступа: [http//www.methane.ru; 28.03.2008.]
5. Электронный каталог ГПНТБ России [Электронный ресурс]: база данных содержит сведения о всех видах лит., поступающей в фонд ГПНТБ России. – Электрон. дан. (16 файлов, 25 тыс. записей) – Режим доступа: [http//www.fire-egupmet.com; 28.05.2008.]
6. Электронный каталог ГПНТБ России [Электронный ресурс]: база данных содержит сведения о всех видах лит., поступающей в фонд ГПНТБ России. – Электрон. дан. (5 файлов, 66 тыс. записей) – Режим доступа: [http//www.technologies.ru; 28.04.2008.]
7. Электронный каталог ГПНТБ России [Электронный ресурс]: база данных содержит сведения о всех видах лит., поступающей в фонд ГПНТБ России. – Электрон. дан. (12 файлов, 78 тыс. записей) – Режим доступа: [http//www.demeta.; 28.04.2008.]
8. Электронный каталог ГПНТБ России [Электронный ресурс]: база данных содержит сведения о всех видах лит., поступающей в фонд ГПНТБ России. – Электрон. дан. (18 файлов, 26 тыс. записей) – Режим доступа: [http//www.noven.; 29.04.2008.]
9. Электронный каталог ГПНТБ России [Электронный ресурс]: база данных содержит сведения о всех видах лит., поступающей в фонд ГПНТБ России. – Электрон. дан. (15 файлов, 28 тыс. записей) – Режим доступа: [http// www.shestopalov/org.; 30.05.2008.]
10. Электронный каталог ГПНТБ России [Электронный ресурс]: база данных содержит сведения о всех видах лит., поступающей в фонд ГПНТБ России. – Электрон. дан. (5 файлов, 30 тыс. записей) – Режим доступа: [http// www.products/tech.;28.03.2008.]
11. Методические рекомендации о порядке дегазации угольных шахт (РД-15-09-2006),М.:Федеральная служба по экологическому, технологическому и атомному надзору.введены в действие с 1 марта 2007года.
12. Правила безопасности в угольных и сланцевых шахтах (ПБ-05-618- 03),серия 05, выпуск 11/колл.авт.- М.: Государственное унитарное предприятие «Научно-технический центр по безопасности промышленности гос-, гортехнадзора России» 2003 г.
13. Закон о недрах от 29.05.2002г №57Ф.З.
Похожие рефераты:
Расширение филиала "Шахта "Осинниковская" за счет ввода в отработку запасов филиала "Шахта "Тайжина"
Рациональная отработка пласта k5 в условиях ГХК шахта Краснолиманская
Межпредметные связи в курсе школьного предмета химии на предмете углерода и его соединений
Технология отработки пласта выемочного участка шахты
Метод дегазации угольных шахт с помощью сепаратора СЦВ-7
Рекреационный комплекс Украины
Топливно-энергетический комплекс мира
Проектирование адиабатной выпарной установки термического обессоливания воды
Проект улавливания бензольных углеводородов из газа
Проблемы охраны водной среды в горном деле
Сравнительный анализ: методы получения синтез-газа
Вексельное обращение в Республике Казахстан










