| Скачать .docx |
Реферат: ВАТ "Вібросепаратор" - лідер ринку сільськогосподарської техніки з обробки зернових
ЗМІСТ
Вступ
Розділ 1. Основні напрямки діяльності підприємства, види продукції та основні технічні характеристики
А) сільськогосподарська техніка
Б) комунальна техніка
Розділ 2. Елеватор металевий заготівельний
Розділ 3. Розробка технологічного процесу
Висновки
ВСТУП
ВАТ «Вібросепаратор» - лідер ринку сільськогосподарської техніки з обробки зернових – пропонує зерноочисну техніку високої якості: стаціонарні та самопересувні зерноочисні сепаратори, зернометачі, елеватори (норії), скальператори, конвеєри, вентилятори, запчастини.
Завод був заснований у 1858 році як підприємство харчової промисловості. У 1913р. до складу підприємства входили: паровий млин, маслобійний та миловарний заводи, ковбасний цех.
Після Жовтневої революції до 1922 року млин та ковбасний цех знаходились у приватних осіб.
З 1922 року по 1933 рік підприємство було у підпорядкуванні Губпромкому, який здавав його спочатку в оренду заготівельній конторі, а потім Волинській губернській спілці робітників кооперації. Підприємство називалось «Перший державний паровий млин». Так як, крім млина, працювали миловарний та м’ясний заводи, то підприємство в документах називалось ще і «Проммістечком».
В січні 1924 проммістечко було передане в підпорядкування Окрміськгоспу, який з листопада 1925 року передав його в оренду Комітету по боротьбі з безробіттям.
18 квітня 1929 року Комборбез приступив до реорганізації заводу, на базі якого почав випускати новий вид продукції – ходи селянські, яких гостро потребувало сільське господарство. Підприємство отримало нову назву «Возова та екіпажна фабрика Волклмборбезу». Швидко нарощувався випуск продукції (в травні 1929 року на 7290 крб., в листопаді 1929 року – 14500 крб.).
В 1933 році в номенклатурі з’явилася нова продукція, і фабрика перейменовується в «Житомирський державний обозний завод НКМП». Його продукцію складають ходи селянські №3, напівсни, екіпажі та двоосні вози для насосів. В період Великої Вітчизняної війни завод розпочав випускати обози малотиражного типу.
Рішенням №722 Житомирського Облвиконкому від 23.07.1960 р. підприємство перейменоване в «Житомирський механічний завод». З 31.12.1960р. випуск возів на заводі повністю припинено.
В 1986 році завод ввійшов до складу Дніпропетровського ВО «Елеватормельмаш».
Наказом міністра №187 від 08.04.88р. «Житомирський механічний завод» перейменовано на завод «Вібросепаратор».
Згідно з наказом Мінсудпрому з 01.01.89р. завод вийшов із підпорядкування Дніпропетровського ВО «Елеватормельмаш» і став самостійною виробничою одиницею.
З 01.07.94р. на базі орендного товариства «Вібросепаратор» було створено закрите акціонерне товариство «Вібросепаратор», а з 21.07.1988 року - відкрите акціонерне товариство «Вібросепаратор».
Організаційна структура підприємства достатньо складна, розгалужена. Разом з тим вона забезпечує ефективну співпрацю різних підрозділів, відповідає усім сучасним вимогам ринку.
Варто зауважити, що дана оргструктура зазнала певних змін. Це пов’язано з реорганізацією відділу збуту на відділ маркетингу, який складатиметься з бюро збуту та бюро маркетингу. Також було створено відділ зовнішніх відносин, який існує як самостійна одиниця.
Підприємство випускає млиново-елеваторне устаткування, систему машин для післязбиральної обробки зернових культур, робить реконструкцію зерноочисних комплексів типу ЗАВ 20-40; виготовляє, монтує, робить пусконалагоджувальні роботи зерноочисно-сушильних комплексівпродуктивністю 25-50 т/год, робить сервісне обслуговування устаткування, що випускається.
Загальна площа заводу загалом 13,7 га:
· площадка вул. Баранова 8,37 га
· площадка вул. Чехова 5,33 га
Площа критих приміщень: 3,9 га.
На чолі підприємства стоять досвідчені та компетентні у своїй справі люди.
Технічний директор Микола Пастушенко характеризує виробництво наступним чином: «Підприємство випускає зерноочисну техніку, транспорті засоби для подачі зерна, вентилятори усіх типів.
Освоюємо кілька програм для комунального господарства та впровадження енергозберігаючих технологій. Йдеться про швидко монтовані металеві конструкції.
У 1987 році, коли ми впроваджували вібровідцентровий принцип роботи для нашої продукції, то, образно кажучи, випереджали час. Сьогодні ж цей принцип роботи наших машин дає можливість утримуватися на ринку сільськогосподарського машинобудування. Ми постійно впроваджуємо нові технології.
За останні 10 років підприємство освоїло більше 20 одиниць нової техніки. Це зернометачі потужністю 90-110 тон, самопересувні зерноочисні машини, вентилятори нових видів. Модифікуємо транспортні засоби. Коли б ми не модернізували виробництво і не розробляли нові види продукції, то за умов ринку просто б не вижили.
Монтаж, ремонт та гарантійне обслуговування нашого обладнання здійснюють висококваліфіковані спеціалісти підприємства.»
Міністерство промислової політики України на початок 1995 року опікувалося більше ніж 200 підприємствами сільськогосподарського машинобудування. У галузі зерноочистки працювало понад 10 підприємств. Сьогодні ж в Україні працює лише 79 підприємств сільськогосподарського машинобудування. Третина з них знаходиться в стані згортання виробництва.
Житомирське ВАТ «Вібросепаратор» має майже 150-річну історію. Воно одне із підприємств вітчизняного машинобудування, яке пройшло випробування загрозою вирізування на металобрухт, банкрутства та рейдерства, і вистояло. Те, що сьогодні підприємство працює і нарощує об’єми реалізації продукції – велике досягнення нашого колективу.
Конкурентів продукції даного заводу на ринку сьогодні немає, хоча 12 підприємств в Україні випускають аналоги такої техніки. Конкуренти – західні виробники, продукція котрих на мільярд доларів щорічно ввозиться в Україну.
Основними споживачами продукції ВАТ «Вібросепаратор» є сільськогосподарські підприємства, які вирощують зернові та зернобобові культури. До 2003 року виробники сільськогосподарської продукції не прагнули укріплювати фермерські господарства та запускати великі сільгосппідприємства. За таких умов, завод орієнтувався на дрібні господарства і виробляв малопотужну техніку – 5-15тонні машини. На сьогоднішній день ефективними є лише потужні підприємства, які вирощують та обробляють зернові культури. Тому і з’явився попит на зерноочисні машини потужністю від 50 до 200 тон за годину, а також механізми, які супроводжують цю зерноочистку. Без такої техніки виробник попадає в зону ризику – залежність від цінових коливань. Це дуже неефективний сегмент ринку. Завод не обмежується українським ринком. 56% продукції заводу експортується у Казахстан, Росію, Молдову, Узбекистан. Керівництво ВАТ «Вібросепаратор» налагодило співпрацю з країнами Євросоюзу, виготовляє для них окремі вузли та комплектуючі.
Для покупців завод гарантує оперативне митне оформлення вантажів. Придбана у даного виробника техніка відправляється тим видом транспорту, який є найзручнішим для клієнта.
РОЗДІЛ I. ОСНОВНІ НАПРЯМКИ ДІЯЛЬНОСТІ ПІДПРИЄМСТВА. ВИДИ ПРОДУКЦІЇ ТА ОСНОВНІ ТЕХНІЧНІ ХАРАКТЕРИСТИКИ
Сільськогосподарська техніка
Комплекси зерноочисні
Комплекси зерноочисні К3-25, К3-50, К3сК-25 використовуються для післязбиральної очистки зерна харчового, насіннєвого та фуражного призначення.
Застосування зерноочисних комплексів дозволяє уникнути значних втрат при збереженні та очистці зерна, швидко та ефективно довести його до базисних кондицій і значно зменшити витрати ручної праці.
ВАТ «Вібросепаратор» виконує будівництво «під ключ» комплексів КЗМ-25, К3-25, К3-50, К3сК-25 та реконструкцію зерноочисних агрегатів ЗАВ і зерноочисно-сушильних комплексів КЗС на базі використання універсальних вібровідцентрових сепараторів Р8-БЦСМ-25-01 та Р8-БЦСМ-50-01.

Рис. 1.1. Схема комплекса КЗсК-25
Вібровідцентрові зернові сепаратори БЦСМ «Сузір’я» широко відомі й експлуатуються в країнах СНД. Моделі сепараторів запатентовані в США, Канаді, Англії й інших провідних країнах світу. Сепаратори призначені для роботи на елеваторах, млинах, крупозаводах, насіннєочисних лініях, механізованих складах, очищають зерно і насіння зернових, круп’яних,бобових культур від бур’янових та зернових домішок у складі зерноочисних агрегатів типу ЗАВ-40, ЗАВ-20, комплексів КЗС-20,КЗС-40.
Сепаратори виготовляються з одним, двома або чотирма уніфікованими блоками.
При переході на очистку іншої культури проводиться зміна секції решіт і регулюється подача зерна і повітря.
Сепаратори виготовляються у трьох модифікаціях (залежно від комплектації):
- базова модель (без додаткової комплектації);
- елеваторний варіант;
- комплект обладнання для будівництва та реконструкцій зерноочисних комплексів.
Таблиця 1.1 Технічні характеристики сепараторів:
| Моделі сепараторів | Р8-БЦСМ-25 | Р8-БЦСМ-25-01 | Р8-БЦСМ-50 | Р8-БЦСМ-50-01 | А1-БЦСМ-100 |
| Кількість блоків | 1 | 1 | 2 | 2 | 4 |
| Продуктивність технічна на зерні пшениці, т/год: вологість до 17% середньої щільності 775г/л | 25 | 25 | 50 | 50 | 100 |
| Ефективність очистки, не менше, % | 70 | 70 | 70 | 70 | 70 |
| Встановлена потужність електродвигунів, кВт | 3,0 | 6,0 | 4,5 | 10 | 9,0 |
| Витрати повітря при повному тиску 400 Па, м | 4000 | 4000 | 8000 | 8000 | 15000 |
Габаритні розміри, мм Довжина Ширина Висота Маса, кг |
1800 1250 3250 1290 |
1800 1250 3250 2000 |
3300 1220 3250 2400 |
3300 1220 3250 3300 |
3300 2400 3250 4900 |
З огляду на потребу господарств був розроблений комплекс устаткування, що може працювати автономно в господарствах після реконструкції існуючих ЗАВ-20 (40), що комплектуються сепараторами Р8-БЦС-25-01 (-50-01).
На існуючих ЗАВ-20 (40) ВАТ “Вібросепаратор” проводить реконструкцію з заміною основних вузлів і агрегатів: сепаратор Р8-БЦСМ-25-01 (50-01), норії, аспираційну систему, електроустаткування.

Рис.1.2. Вібровідцентрові сепаратори.
Сепаратори-ворохоочищувачі самопересувні СВС-15-01
Сепаратори-ворохоочищувачі самопересувні призначені для попередньої очистки зернового вороху, що надходить від комбайну на токах, колосових, круп’яних, олійних культур та кукурудзи від домішок переважно на відкритих площадках з твердим покриттям, в складських приміщеннях. СВС-15 можуть використовуватися для навантажування та перелопачування зерна. Розділення вихідного вороха на чисте зерно та відходи (крупні, дрібні, легкі домішки).
Таблиця 1.2 Технічні характеристики
| Основні технічні показники | СВС-15-01 «КОЛОС» |
| Продуктивність на попередньому очищенні зернового вороху пшениці, т/год: вологість до 18%,середня щільність 760 г/л, вміст домішок до 10% | 15 |
| Ефективність попередньої очистки зернового вороху, не менше, % | 60 |
| Найменша потужність двигунів, кВТ | 380 |
| Самостійність переміщення в межах робочої площі | Самостійне |
| Швидкість переміщення робоча, м/хв | 0,3 |
| Швидкість переміщення транспортна, м/хв | 5 |
Габаритні розміри, мм Довжина Ширина Висота |
5500 5300 3500 |
| Маса, кг | 2300 |

Рис.1.3. Сепаратори – ворохоочищувачі
Для вертикального підйому сипучих вантажів у складі технологічних ліній зерноочисно-сушильних комплексів, а також для подачі зерна в склади і закриті приміщення підприємство пропонує елеватори (норії) вертикальні ковшові зернові (із круглим перетином коробів і пластмасових ковшів).
Таблиця 1.3 Технічні характеристики
| Показники | Величина параметрів для елеваторів | |||||
| ЕКЗ-25-01 | ЕКЗ-25-01 | ЕКЗ-25/2-01 | ЕКЗ-25/2-02 | ЕКЗ-50-01 | ЕКЗ-50-02 | |
| Технічна продуктивність, т/год | 25 | 25 | 50 | 50 | 50 | 50 |
| Встановлена потужність, кВт | 2,5 | 2,5 | 5,5 | 5,5 | 5,5 | 5,5 |
| Швидкість руху стрічки, м/сек | 2,5 | 2,5 | 2,53 | 2,53 | 2,53 | 2,53 |
| Кількість потоків зерна | 1 | 1 | 2 | 2 | 1 | 1 |
| Маса, кг | 959 | 580 | 1440 | 1065 | 1160 | 850 |
| Висота, мм | 13830 | 7801 | 13885 | 7825 | 13800 | 7800 |

Рис.1.4. Елеватор вертикальний ковшовий
Для виділення грубих великих сторонніх домішок, з метою запобігання засміченню приймально-розподільних пристроїв наступного зерноочисного устаткування, підприємство поставляє барабанний скальператор для попереднього очищення зерна А1-Б32-0-01. Машина встановлюється в зерноочисних відділеннях елеваторів і на хлібоприймальних підприємствах.
Таблиця 1.4 Технічні характеристики:
| Основні технічні показники | А1-БЗ2_о_01 |
Продуктивність технічна на зерні пшениці т/год, вологість до 17% сер. щільність 775 г/л |
100 |
| Потужність встановленого двигуна, кВт | 0,37 |
| Технологічне споживання повітря, м3 /год | 720 |
Габаритні розміри, мм Довжина Ширина Висота |
2150 1130 1665 |
| Маса, кг | 420 |

Рис.1.5. Скальператор А1-Б32-О-01
Зернометачі самопересувні ЗМ-90М, ЗМ-110
Зернометачі механізують: вантажно-розвантажувальні роьоти на відкритих майданчиках та в зерноскладах, перелопачування, просушування і формування буртів із зерна.
Таблиця 1.5 Технічні характеристики
| Моделі | ЗМ-90М | ЗМ-110 |
| Продуктивність (на житі) не менше, т/год | 90 | 110 |
| Дальність польоту зерна від точки викиду не менше, м | 12 | 12,5 |
| Висота складування та завантаження в транспортні засоби не менше, м | 4 | 4 |
| Привод електричний, В-380В, встановлена потужність, кВт | 8,55 | 10,5 |
| Переміщення в межах току | самостійне | самостійне |
| Швидкість переміщення робоча не більше, м/хв | 1 | 1 |
| Швидкість переміщення транспортна не більше. м/хв | 8 | 8 |
| Травмування зерна не більше, % | 0,2 | 0,2 |
Габарити в робочому положенні, без повороту тримера, мм Довжина Ширина Висота |
6570 4020 3410 |
6570 5400 3510 |
Габарити в робочому положенні, з поворотом тримера на 90º, мм Довжина Ширина Висота |
3830 5270 3410 |
3830 6000 3510 |
| Маса не більше, кг | 1200 | 1400 |

Рис.1.6. Самопересувний зернометач.
Вентилятори ВЦП-5, ВЦП-6, ВЦП-8, АВД, ВВД-5, ВРПВ-3.15.1, ВРПВ-4.1, ВРПВ-6.31.
Вентилятори відцентрові пилові типу ВЦП середнього тиску переміщують повітря й інші неагресивні гази з температурою не вище 180ºС та вмістом клейких речовин і твердих домішок у кількості не більше 150 мг/м3 .
Вентилятор високого тиску АВД подає стиснуте повітря у форсунки спалювання рідкого палива.
Вентилятор високого тиску ВВД-5 переміщує повітря та неагресивні гази з температурою не вище 180ºС та вмістом клейових речовин і твердих домішок у кількості не більше 150 мг/м3 .
Вентилятори радіальні пилові вибухозахищені типу ВРПВ середнього тиску переміщують повітря та інші неагресивні гази з температурою не більше 80 ºС та вмістом клейких речовин і твердих домішок у кількості не більше 6 г/м3 .
Таблиця 1.6 Технічні характеристики
| Моделі | ВРПВ-3.15.1 | ВРПВ-4.1 | ВРПВ-6.31 | ВЦП-5 | ВЦП-6 | ВЦП-8 | АВД | ВВД |
| Виконання ГОСТ 5976-90 | №1 | №1 | №1 | №5 | №5 | №5 | ||
| Кут установки корпуса на станині і направлення обертання робочого колеса | ПР-0º; ПР-90º; ПР-270º; Л-0º; Л-90º; Л-270º |
|||||||
| Продуктивність номінальна. м/год | 1850 | 3820 | 6650 | 6000 | 8300 | 15000 | 1200 | 2250 |
| Частота обертання робочого колеса, об/хв | 2850 | 2880 | 1425 | 1800 | 1620 | 1140 | 5500 | 3080 |
| Повний тиск при номінальному режимі, кг/м | 152 | 263 | 160 | 155 | 182 | 162 | 1000 | 600 |
| Встановлена потужність, кВт | 1,5 | 5,5 | 5,5 | 7,5 | 7,5 | 18,5 | 7,5 | 5,5 |
| Частота обертання ел/двигунів, об/хв | 3000 | 3000 | 1500 | 1500 | 1500 | 1500 | 3000 | 3000 |
Габаритні розміри: Довжина Ширина Висота |
552 490 579 |
691 662 771 |
1066 812 1096 |
1225 465 1073 |
1287 805 1147 |
1655 1260 1512 |
1907 430 506 |
720 420 619 |
| Маса вентилятора без ел/двигуна не більше, кг | 29 | 52,1 | 114,3 | 155 | 182 | 285 | 53 | 73 |
| Тип вентилятора по повному тиску | С | С | С | С | С | С | В | В |
| Діаметр робочого колеса, мм | 315 | 400 | 630 | 500 | 600 | 800 | 350 | 500 |

Рис.1.7. Вентилятори різних типів
Навантажувач мішків пересувний ПМП-1
Навантажувач використовується для навантажування (пересування) вантажів у тарі (мішках, пакетах, коробках, ящиках) у транспортні засоби (автомобілі, причепи, вагони та інше), на транспортери, стелажі і т.п.
Навантажувач може застосовуватися для навантажування, складування, розвантажування, перевантажування вантажів у фермерських, насіннєвих господарствах; борошно молотильних, комбікормових, цукрових, цементних підприємствах; підприємствах, що випускають мінеральні добрива; складах, магазинах, виробничих цехах і т.п.
Таблиця 1.7 Технічні характеристики
| Швидкість переміщення вантажу не більше, м/хв | 3,5 |
| Встановлена потужність не більше, кВт | 1,5 |
| Висота підйому вантажу, м | 1,25…3,5 |
Габарити не більше, м Висота при куті 45º Довжина при куті 45º Мін. висота Макс. довжина (при висоті 1.25м) Ширина |
3,5 3,5 1,25 4,576 1,13 |
| Маса не більше, кг | 320 |

Рис. 1.8. Навантажувач мішків пересувний ПМП-1
Сепаратор повітряної очистки СВО-25
Сепаратор повітряної очистки СВО-25 використовується для додаткової очистки зерна та насіння зернових, круп’яних, бобових культур після попередньої очистки.
Сепаратор встановлюється як самостійно, так і в технологічних лініях, комплексах післязбиральної очистки та підготовки зерна на насіння.
Сепаратор проводить сортування насіння за питомою вагою.
Таблиця 1.8 Технічні характеристики
| Продуктивність на очищенні пшениці з об’ємною масою 760 кг/м3 при вологості до 15% і вмістом домішок до 5% за 1 год основного часу не менше, т/год | 25 |
| Ефективність очищення не менше, % | 50 |
| Швидкість повітряного потоку в аспіріруючому каналі, м/сек | 1-10 |
| Тип вентилятора | Відцентровий пиловий |
| Потужність електродвигуна не більше, кВт | 5,5 |
Габарити не більше, м Довжина Ширина Висота |
1700 980 1900 |
| Маса не менше, кг | 310 |

Рис.1.9. Сепаратор повітряної очистки СВО-25.
Зерносховища для довготривалого безпечного зберігання всіх типів зернових, олійних, бобових культур.
Зерносховища з металевих силосів різних об’ємів. Практичні, надійні, економічні. Дана продукція – це якісне збереження і післязбиральна обробка зернових, забезпечення надійного довготривалого збереження кондиційного зерна й тимчасове зберігання зерна з підвищеною вологістю.
Зерносховища допомагають застосовувати універсальні технології з «м’яким» повільним досушуванням, активним вентилюванням або охолодженням (залежно від стану і призначення зерна, що зберігається).
Зерносховища оснащені системами активного вентилювання і термометрії. Зерносховища можуть виготовлятися з чорних металів з лакофарбовим покриттям або оцинкованої сталі із застосуванням вітчизняних технологій, матеріалів і комплектуючих, що значно знижує вартість продукції. Дана продукція має високий рівень заводської готовності.
Зерносховища квадратної форми значно зменшують площу під забудову, що призводить до зниження вартості і витрат на збереження зерна, а також забезпечує вивантаження зерна самопливом до 1/3 об’єму. Квадратна форма ємності дає можливість добудувати сховище з меншими витратами (майже на 30%) у порівнянні з круглими ємностями.
Зерносховища монтують на залізобетонну монолітну плоску фундаментну плиту з каналом для установки розвантажую чого транспортера та перфорованими вентиляційними каналами для продування зерна повітрям (агентом сушки).
Завантаження зерна в сховище здійснюється норією і скребковими (або стрічковими) транспортерами.
Зерносховище складається з:
- технологічної башти, де розташоване обладнання для очистки і обробки зерна, норії;
- прийомних відділень з допоміжними ємностями для тимчасового збереження зерна або для завантаження готової продукції в автотранспорт;
- вагової;
- зерносушарки.

Рис.1.10. Зерносховища елеваторного типу.
Комунальна техніка
Сніговідвал (типу С)
Сніговідвал призначений для розчистки доріг від снігових заметів шляхом прибирання снігу на обочину, для прибирання грунту, сміття, планування (вирівнювання) поверхонь, майданчиків і т.п.
Сніговідвал випускається з підвісним пристроєм, що дозволяє агрегатувати на тракторах, які мають пристрій підвісний задній класів 0,6-8 по міждержавному стандарту ГОСТ 10677-2001, а також на тракторах і механізмах, що мають приєднуваний трикутник (згідно вказаного стандарту).
Розроблена підвіска тракторна НТФ, яка являється навісним пристроєм для тракторів марки «Фотон», встановлюється спереду на приєднувальні отвори рами трактора.
В конструкції підвіски використовується гідро циліндр, положення поршня якого забезпечує підйом сніговіддвала на висоту до 500мм і врізання до 150мм.
Сніговіддвал встановлений на пальцях і може бути повернутий навкруг двох осей (вертикальний і горизонтальний), що дозволяє налаштовувати кути атаки відносно напряму руху.
Піж пружинні елементи дозволяють захистити трактор при ударах.
Таблиця 1.10 Основні технічні характеристики
| Робочий захват, м | Від 1,7 до 2,5 |
| Маса, кг | Від 150 до 190 |
| Робоча висота, м | 0,75 |
Пристрій для прибирання вулиць
Навісні пристрої для прибирання вулиць призначені для очистки майданчиків, доріг, тротуарів та інших територій від різноманітного сміття, а також для щойновипавшого снігу.
Забруднення відмітається в сторону простим нахилом пристрою чи переміщується в смітник. Натягуючи розмикаючий трос, водій може звільнити сміттєзбирач зі свого сидіння, використовуючи механізм колінного валу.
Пристрої призначені для встановлення на задню підвіску трактора. Напрямок обертання і швидкість щітки встановлюється шляхом перемикання ричага блоку управління гідравлічним двигуном.
Надійні в роботі пристрої для прибирання вулиць також можуть бути встановлені на автозавантажувачі з вілковим захватом без використання інструментів.
Пристрої оснащені механізмом для вирівнювання висоти при роботі на нерівних поверхнях.
Відмінність від вітчизняних пристроїв – привод щітки від гідромотора.
Вказана відмінність надає пристрою наступні переваги:
- менша маса;
- можливість встановлення пристрою відносно осі шляхового полотна (напрямку руху трактора) вліво і вправо на кут 30º;
- можливість копіювання шляхового полотна відносно горизонту до 10º;
- заміна причіпного механізму дозволяє агрегатувати пристрій: задньонавісний трьохосьовий механізм відповідно до ГОСТ 10677-2001, IDT(ДСТУ 10677-2003), передньонавісний механізм, навісний механізм, що дозволяє агрегатувати пристрій на лапах навантажувача;
- пристрій легко адаптується до замін щіток – європейських та вітчизняного виробництва;
- пристрій комплектується гідромотором, щіткою, підшипником німецького виробництва, але має можливість установки і комплектації від вітчизняного виробника, Росії, Білорусі;
- пристрій може агрегатуватися на тракторах класу 0,6-3. для агрегатування пристрою на тракторах класу 0,6 необхідно встановити гідронасос із продуктивністю не менше 60 л/хв. (типу НШ).
Таблиця 1.11 Основні технічні характеристики:
| Найменування | Довжина щітки, мм | Обертання щітки, об/хв | Маса, кг | Маса без сміттєзбирача, кг | Тиск в гідросистемі, бар |
| DKYM 15 | 1500 | 355 | 235 | 165 | 165 |
| DKYM 16 | 1695 | 355 | 295 | 180 | 165 |
| DKYM 22 | 2250 | 355 | 340 | 200 | 165 |
| DKYM 27 | 2700 | 355 | 370 | 220 | 165 |
Бетономішалка ДВМ
Бетономішалка примусового типу ДВМ призначена для виготовлення високоякісного бетону, будівельного розчину. З допомогою бетономішалки ДВМ можливо зручно і економічно отримувати підлогу з монолітним з безшовним покриттям.
Бетономішалка оснащена приводом від валу відбору потужності трактора, обладнаного гідравлічною навісною системою, згідно міждержавного стандарту ГОСТ 10677-2001. Бетономішалка може агрегатуватися на тракторах класу 1,4-3 з вантажопідйомністю причіпного пристрою трактора більше 1500 кг.
Конструкція причіпного механізму бетономішалки дозволяє агрегатувати його як на задній навісний пристрій (система підвіски трьохточкова), так і установку на лапи навантажувача для подачі бетонної суміші і розчину в робочу зону заливки чи робоче місце каменяра.
Бетономішалка оснащена стабільним, багаторазово перевіреним редуктором. Він передає зусилля на чотири підресорних кронштейна мішалки. Регульовані лапасті мішалки забезпечують очисну змішувальну дію при будь-яких видах бетону і будівельного розчину. Бетономішалку можна піднімати як за допомогою гідравлічної системи трактора, та і за допомогою вала навантажувача.
Таблиця 1.12 Основні технічні характеристики:
| Об’єм суміші, м3 | 0,75 |
| Потужність приводу не менше, л.с. | 14 |
| Кількість обертів вала відбору потужності, об/хв | 540 |
| Годинна продуктивність | Залежить від організації робіт на буд майданчику при підготовці суміші |
| Висота, мм | 1600 |
| Ширина, мм | 1700 |
| Довжина, мм | 1700 |
| Маса, кг | 580 |
| Під’єднуваний вхідний вал редуктора | D6-32*28 (має шліцеве з’єднання) |
Контейнер для збору твердих побутових відходів (євростандарт).
Контейнер призначений для збору і перевезення твердих і сипучих побутових відходів. Використовуваний матеріал – чорний метал, відтінки покриття – згідно вимог замовника, в залежності від виду відходів.
Розміри відповідають вимогам: EN 840-3 (євростандарт). Колеса оснащені гальмівними пристроями.
За вимогами замовника контейнер може мати отвори в кришці – для відходів скла. Контейнер призначений для підйому спеціальним типовим підйомником. Загальна вантажопідйомність коліс – до 100кг (діаметр 200мм). Максимально допустиме навантаження – 500кг. Власна маса (в залежності від типу) – 130-160кг. Конструкція зварна, за рахунок чого має підвищену жорсткість, у порівнянні із штампованими конструкціями, що підвищує термін використання. Всередині ємності є елемент, який підсилює конструкцію від дії ударів. Порошкове покриття забезпечує надійний захист від корозії.
Таблиця 1.13 Основні технічні характеристики
| Найменування | Об’єм, м3 | Маса, кг | Габарити, мм |
| Контейнер КБО 1.1 | 1,1 | 135 | 1370*1000*1430 |
Контейнери металеві
Контейнери являються навісним обладнанням для тракторів із зчепленням на трьох точках. Призначені для транспортування твердих і сипучих матеріалів. Для покращення вивантаження існує передня відкривна стінка.
Таблиця 1.14 Основні технічні характеристики:
| Найменування | Об’єм, м3 | Маса, кг |
| Контейнер DH 14 | 0,55 | 193 |
| Контейнер DH 16 | 0,62 | 205 |
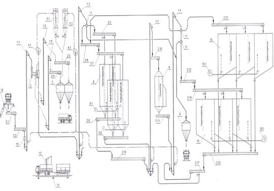
РОЗДІЛ II. ЕЛЕВАТОР МЕТАЛЕВИЙ ЗАГОТІВЕЛЬНИЙ
Проходячи на ВАТ «Вібросепаратор» практику мені довелося приймати участь у підборі елементів автоматичного контролю температури та рівня силосів у зерносховищах елеваторного типу.
Найменування і призначення
Елеватор металевий ємністю 10950 тон заготівельний. Технологічна схема, обладнання елеватора і комплект транспортних машин дозволяє прийняти зерно з автомобільного транспорту, зважити, очистити та висушити його, сформувати партії і подати на зберігання чи відпускання на автотранспорт.
Таблиця 2.1 Технологічні показники
| Найменування показника | Значення показника |
Загальна ємність, в тому числі, тон Силос ємн. 1936 м3 (1470т) з нахилюваним днищем, шт. Силос ємн. 653 м3 (496т) з конусним днищем, шт. Силос ємн. 1936 м3 (145т) з конусним днищем, шт. |
10950 6 4 1 |
Установлена продуктивність транспортних потоків: - прийом з автотранспорта, т/год - внутрішні операції, т/год - відпускання на автотранспорт, т/год |
100 100 100 |
| Очищення зерна в потоці прийому з автотранспорту (пшениця W=22%, C=10%), т/добу | 1680 |
Сушка зернових, пшениця з 19 до 15 % т/добу 25 до 15% т/добу |
1080 600 |
| Відпускання зерна на автотранспорт (цілодобово), т/добу | 2200 |
| Вивезення відходів зерноочистки, т/добу | 30,0 |
| Загальне число працюючих в найбільшій зміні в період заготівлі | 7 |
Основні технологічні рішення
Перевагою даної конструкції елеватора являється його компактність, зменшене використання металу на силоси, матеріалів для фундаментів і кабельно-провідникової продукції.
Закрита норій на башта, короткі транспортні механізми і об’єднана система вентиляції призводить до зменшення експлуатаційних розходів.
Пристрій для розвантаження зерна з автотранспорту
Пристрій прийому зерна з автотранспорту типу У15-УРАГ-У забезпечує вивантаження із самоскидів і автопотягів без розчеплення. Прийом забезпечує розвантаження автомобілів в один потік продуктивністю в 100 тон/годину (паспортна продуктивність) ланцюговими транспортерами. При розрахунку приймалася вантажопід’ємність автотранспорту 20т і 2 партії на одну приймальну лінію.
Авто прийом оснащений накопичувальною ємністю 25 тон, що дає можливість опрацьовувати протягом години до 5-ти автомобілів.
Очищення зерна
Все зерно, яке потрапляє з автотранспортом, має бути очищене і просушене до кондицій, які відповідають цільовому призначенню На елеваторі передбачене встановлення решіткового сепаратора, аспіраційної сітки, бункерів для відходів. Сепаратор протягом доби може забезпечити очищення до 1680 то зерна (по пшениці) в залежності від засміченості і вологості перероблюваної культури.
Сепаратор може очистити запланований об’єм зерна в потоці прийому з автотранспорту; зерна обмежувальних кондицій можна направляти в зерносховище і очищати перед формуванням партії, призначеної для відпускання на автотранспорт.
Сушіння зерна
Для забезпечення зберігання сирого та вологого зерна необхідно його просушити до сухого стану перед розміщенням в зерносховище на довготривале збереження.
З врахуванням термінів безпечного зберігання зерна від 1 до 5 діб і наявністю в силосах активної вентиляції, терміновому сушінню необхідно піддавати сире та вологе зерно в об’ємі середньодобового поступання.
В даному варіанті передбачена сушила з двома горілками низького тиску, розміщеними в гарячій та холодній сторонах сушили, з можливістю задавати різні режими роботи горілок.
В сушилці наявна зона, в якій відсутній зовнішній вплив на зерно, в якій волога зсередини зерна переміщується на зовнішню оболонку, що уберігає зерно від тріскання.
Сушилка має: систему рециркуляції гарячого повітря, що зменшує витрати газу на 12-15% і контроль вологості зерна безпосередньо вологоміром, вмонтованим в потік зерна; систему очистки викидуваного повітря і зменшені показники по шуму (55 дб).
Якщо поступить партія зерна вологістю більшою за 20%, і необхідно підняти продуктивність сушили, то в проекті передбачено наступне: сушила переводиться в режим сушки без зони охолодження для циклічної роботи з проміжним бункером відволожування, що дає приріст продуктивності на 20%, зерно з сушили переміщується в оперативний бункер з активною вентиляцією, в якому воно охолоджується, відволожується і частково зменшується вологість, тобто, волога зсередини зерна виходить на зовнішню оболонку, і при наступному сушінні зерна легко віддає залишок вологи.
Пристрій для навантаження на автотранспорт
Для відпускання зерна на автотранспорт передбачена ємність 145 тон, що зменшує простоювання автотранспорту. Через одну таку ємність можливо відпускати до 6 машин за годину.
Зерносховище та накопичувальні ємності
Досвід будівництва і експлуатації металевих зерносховищ показав. Що вони забезпечують високу якість зберігання зерна і мають ряд переваг у порівнянні із залізобетонними силосами. Крім того, металеві зерносховища вимагають меншої кількості обслуговуючого персоналу, а також менших витрат на їх ремонт і експлуатацію.
В даному проекті всі ємності пов’язані транспортними потоками в над- і під силосному просторі з робочою баштою, приймально-відпускними пристроями, і представляють собою замкнений технологічний ланцюг. Всі силоси оснащені системою термометрії з точністю до 0,1º у всьому об’ємі силоса і контролю рівня зерна в силосі з точністю до 1%. Всі силоси мають систему активної вентиляції.
Керівником виробничої практики переді мною було поставлене завдання підібрати комплекс елементів автоматизації зерносховищ елеваторного типу серед продукції Українських виробників.
Одним із лідерів на даному ринку є фірма «Агро-Дарина», яка виконує поставку і монтаж щитів управління зерноочищувальним, сушильним і транспортуючим обладнанням будь-яких моделей з розведенням кабельних ліній, різноманітного ступеня складності, рівня автоматизації та захисту.
Система складається із термопідвісок, які підвішуються всередині зерносховища, з’єднувальних коробок і центрального блоку. В кожному зерносховищі може бути встановлено декілька термопідвісок, сигнали від яких через з’єднувальні коробки передаються в центральний блок.
Для кожного зерносховища може використовуватися окремий блок чи один загальний блок на групу.
Термопідвіска являє собою металевий трос, вздовж якого, із визначеним кроком, розміщені датчики температури. Вся конструкція розміщується в полімерний чохол. Довжина термопідвіски, кількість і крок встановлення датчиків можуть бути різними.

Рис.2.1. Термопідвіски виробництва фірми «Агро-Дарина»
Термопідвіски кожного зерносховища підключаються до своєї з’єднувальної коробки, а ті, в свою чергу – до центрального блоку. Всі з’єднання виконуються з допомогою екранованої витої пари. Для уникнення наводок та перешкод не рекомендується прокладати з’єднувальні кабелі в одному каналі з силовими ланцюгами іншого оснащення.
В центральному блоці на індикатор виводяться значення середньої і максимальної температури по кожній термопідвісці і зрівнюється із встановленим порогом. При перевищенні порогового значення на індикаторі виводиться аварійне повідомлення і замикаються контакти на виході приладу.
Таблиця 2.2 Основні характеристики системи
| Максимальна кількість термопідвісок в одному зерносховищі | шт | 8 |
| Максимальна кількість точок вимірювання на одній термопідвісці | шт | 20 |
| Рекомендована відстань між точками (або за замовленням) | м | 1,5 |
| Максимальне віддалення з’єднувальної коробки від центрального блоку | м | 200 |
| Діапазон вимірюваних температур | С | 0 |
| Похибка | С | 0,1 |
| Розривне зусилля термопідвіски | кгс, не більше | 720 |
| Діаметр термопідвіски | мм, не більше | 6 |
| Напруга живлення центрального блоку | V/AC | 220 |
| Робочий струм вихідних контактів | А/АС | 5 |
| Використовувана потужність | Вт | 2,5 |
| Ступінь захисту вузлів системи | ІР65 | |
| Діапазон робочих температур | С | 0 |
| Режим роботи системи | неперервний |
Вимірювання вологості зерна в потоці
Фірма «Агро-Дарина» виконує поставку і монтаж різноманітних систем вимірювання вологості зерна в потоці при сушінні.
Система складається із датчика і блоку управління. Датчик виробляється із харчової нержавіючої сталі установлюється в потоці зерна безпосередньо в шахті зерносушилки чи в будь-якому іншому місці. На індикаторі блоку управління виводиться значення вологості у відносних одиницях і назва продукту. Інтерфейс дозволяє вносити поправку для кожного каналу. Можливо самостійно відкалібрувати прилад «по факту» на місці експлуатації.
Прилад дозволяє програмувати порогове значення і керувати виконавчим механізмом.
Ступінь захисту датчика і блоку управління ІР65.
Напруга живлення 220VАС.
Ще одним із популярних виробників засобів автоматики є миколаївська компанія «НЕПТУН-ЕЛЕКТРО», котра займається автоматизацією елеваторів, силосів, зерносховищ та інших об’єктів.
В сучасних комплексах зберігання зерна (зерносховищах, елеваторах, силосах) кількість виконавчих механізмів і контрольованих параметрів невпинно зростає, і давно вже вийшло за межі, коли оператор в стані самостійно керувати технологічними процесами завантаження, вивантаження, сушіння і зберігання зерна. У зв’язку з цим гостро постає питання комплексної автоматизації елеваторів, силосів, зерносховищ та інших об’єктів, на яких здійснюється переробка та зберігання зерна.
Термопідвіски і системи термометрії зерносховищ ТСС.
При довготривалому зберіганні зерна питань вимірювання його температури виходить на передній план, так як через ефект самозгоряння при підвищенні температури 35ºС відбувається порча зерна, що призводить до багатомільйонних збитків. Системи контролю температури даного виробника в зернових силосах на основі цифрових термопідвісок типу ТСС вирішують дане завдання з максимальною зручністю для клієнта.
Цифрові термопідвіски і системи термоконтролю в зернових силосах типу ТСС внесені в реєстр засобів вимірювальної техніки України під номером У2300-06.
Система термометрії «ТСС» дозволяє організувати цифрові термопідвіски в єдину сітку для вимірювання температури зерна у всіх силосах зерносховища чи елеватора. Для цього термопідвіски підключаються до спеціальних блоків збору інформації, які утворюють на базі інтерфейса RS-485, визнаного на даний момент промисловим стандартом, єдину сітку з виведенням інформації про температуру зерна і стан термопілвісок на персональний ЕОМ оператора. Дякуючи зручному програмному забезпеченню, яке налаштовується індивідуально для кожного зерносховища, можна оперативно контролювати температуру і швидкість зміни температури зерна.
Основним елементом системи ТСС являється термопідвіска (термопідвіски), що встановлює(ю)ться в силосі елеватора чи зерносховища. Дякуючи використанню цифрових датчиків температури DS18В20 фірми MAXIM (Dallas Semiconductor) реалізована єдина цифрова двухпровідна лінія зв’язку зі всіма датчиками температури термопідвіски, яких може бути до 32 в залежності від технологічних потреб.
Для зняття значень температури зерна в системі використовується цифровий блок індикації , оснащений рідкокристалічним індикатором, що дозволяє у зручній формі знімати покази датиків термопідвісок. Блок індикації підключається до блокпостів живлення чи термопідвісок через стандартний роз’їм.
В блоці індикації використовується автономне живлення від 4-х стандартних елементів типу АА, що забезпечує наступні переваги:
- безпечна для людини напруга – немає необхідності в захисному заземленні термопідвіски;
- завдяки низькій напрузі гарантована вибухобезпечність системи термометрії;
- відсутня необхідність прокладати кабелі живлення системи;
- стандартні живлячі елементи АА легко змінюється, можливе застосування стандартних акумуляторів.
Для підключення блоку індикації до термопідвісок, з яких знімаються покази, використовуються два типи блокпостів: одно канальні – для силосів з однією термопідвіскою та багатоканальні – для силосів з декількома термопідвісками.
Таблиця 2.3 Технічні параметри системи термометрії зерносховищ ТСС:
| Розривне зусилля тросу термопідвіски | 2,0 т |
| Максимальна розрахункова довжина термопідвіски для зернових культур | 32м |
| Максимальна кількість датчиків у термопідвісках | 32 |
| Діапазон вимірювання температури зерна | -20…125°С |
| Похибка вимірювання температури зерна | 0,5°С |
| Роздільна здатність вимірювання температури зерна | 0,1°С |
| Живлення блоку індикації | 4 елементи типу АА |
| Робочий діапазон температур зовнішнього повітря | -30…45°С |
| Максимальна вологість оточуючого середовища | 80% |
| Ступінь захисту термопідвісок | ІР55 |
| Ступінь захисту блоку індикації | ІР54 |
| Ступінь захисту блок-посту живлення і підключення | ІР54 |
| Ступінь захисту блоку збору інформації | ІР55 |
| Використовувана потужність термопідвіски | Не більше 0,3 Вт |
| Використовувана потужність блоку індикації | Не більше 2,5Вт |
| Використовувана потужність блоку збору інформації | Не більше 6Вт |
Сучасні великі зерносховища неможливо уявити без комплексних автоматичних систем управління технологічними процесами. У зв’язку з цим на системи термометрії зерносховищ накладається додаткова вимога – простота інтеграції в АСУ ТП.
Системи контролю температури в зернових силосах типу ТСС призначені для вирішення і цієї задачі. Дякуючи використанню блоків збору інформації даного виробника і спеціалізованого програмного забезпечення – сервера термометрії – можливо отримати наступні можливості:
- отримання даних по температурі зерна, стані системи і окремих термопідвісок через ОРС-сервер, який являється в даний момент промисловим стандартом обміну інформацією між SCADA і контролерами (перетворювачами сигналів і т.п.);
- отримання даних про температуру зберігання зерна і стан цифрових термопідвісок через ТСР/ІР-сервер, що дозволяє використовувати декілька клієнтів для контролю за системою термометрії зерносховища.
У доповнення до вказаних переваг у комплекті з системою надається тестове програмне забезпечення для налагодження сітки термометрії, що спрощує завдання системної інтеграції.
Також популярними є пристрої російського виробництва компанії «ОВЕН». Дані пристрої випускаються в корпусах щитового, настінного чи DIN-рейкового кріплення.
Корпуси виготовлені із ударостійкого пластика ABS-пластика і відповідають ГОСТ 14254-96 «Ступені захисту, що забезпечуються оболонками (код ІР), який розповсюджується на устаткування не більше 72,5 кВ». Код ІР вказує на ступінь захисту, яка забезпечується корпусом приладу, тобто можливість доступу до його небезпечних частин, а також потрапляння зовнішніх твердих предметів і води в прилад.
Клемовик у приладів щитового кріплення знаходиться на задній стінці.
Для доступу до клемовика приладу настінного кріплення необхідно зняти верхню кришку. У отворах підводу зовнішніх зв’язків установлюються гумові ущільнювачі (втулки).
Для установки приладу на стаціонарне місце роботи до нього надається комплект кріплячи елементів, які можуть бути двох типів: Н – для корпусів настінного кріплення і Щ для корпусів щитового кріплення. В комплект в залежності від корпусу входять:
Настінний Н:
- кронштейн ЗУ8,090,20 – 1шт
- гвинт М4-6g*32,58,026 – 1шт.
Щитовий Щ:
- фіксатори – 2шт.
Типи корпусів:
Н – корпус настінного кріплення. Габаритні розміри 130*105*65 мм, ступінь захисту ІР44.

Рис.2.4. Н1 – корпус настінного кріплення, габаритні розміри 145*105*65 мм, ступінь захисту ІР20.

Рис.2.5.Щ – корпус щитового кріплення, габаритні розміри 96*96*180 мм, ступінь захисту із сторони передньої панелі ІР20.

Рис. 2.6. Щ1 – корпус щитового кріплення, габаритні розміри 96*96*70 мм, ступінь захисту зі сторони передньої панелі ІР54.

Рис.2.7. Перелік продукції різних виробників може бути надзвичайно довгим, проте, кожен виробник обирає для себе необхідного постачальника.

Рис.2.8. схема технологічна елеватора
РОЗДІЛ ІІІ. РОЗРОБКА ТЕХНОЛОГІЧНОГО ПРОЦЕСУ
Згідно плану виробничої практики, я ознайомилася із методами розробки технологічного процесу у технічному відділі ВАТ «Вібросепаратор».
Для прикладу нижче буде приведена методика розробки і виготовлення такої деталі, як штуцер.
Слід зауважити, що це не настільки легко, як здається, оскільки перед тим, як запустити деталь у виробництво, вона проходить ряд теоретичних методів аналізу працівниками технічного відділу.
Працівники цього відділу не лише розробляють креслення необхідних елементів конструкцій, а й враховують доцільність та економічність їх випуску на тому чи іншому верстаті. Як буде видно нижче, кожна деталь виготовляється згідно певних ГОСТів, положень ДСТУ, з врахуванням можливостей потужностей саме цього заводу.
Переглянувши альбоми з багатьма технологіями виробництва, котрі були розроблені технічним відділом ВАТ «Вібросепаратор» у співпраці із харківською акціонерною компанією «Контакт», я ознайомилася із методами розробки не лише окремих деталей верстатів, а й цілих їх ходових частин, зокрема такого верстату, як «гільйотина».
ВИСНОВКИ
З вище викладеного, можемо зробити висновки, що ВАТ «Вібросепаратор» дійсно являється лідером у даній ніші ринку, оскільки на даний момент конкурентів машинам виробництва даного заводу немає, хоча 12 підприємств в Україні випускають аналоги такої техніки. Конкуренти заводу – західні виробники, проте завод не може змагатися з ними на світовому ринку, оскільки оснащення виробництва залишилося у спадок ще із радянських часів. Також слід звернути увагу на незахищеність українського виробника, проте керівництво заводу впевнене у своїх силах і прагнуть передати цю впевненість виробникам сільськогосподарської продукції, для яких працюють.
Відвідавши виробництво, я відмітила, що воно працює далеко не на повну свою потужність, наприклад, високопродуктивне обладнання вважають недоцільним запускати в роботу, оскільки це є економічно невигідним для виготовлення невеликих замовлень, а в крупних партіях зараз немає потреби, також немає потреби у завантаженні штампувального 800-тонного пресу, проте завод освоює виробництво високотехнологічних автоматизованих зернових комплексів, і прес мають запустити у виробничий процес. Це дуже дивно, оскільки Україна вважається аграрною державою, і сільськогосподарська техніка має бути в попиті, проте ситуація у даній галузі далеко не ідеальна.
Основними споживачами продукції заводу є сільськогосподарські підприємства, які вирощують зернові та зернобобові культури. До 2003 року виробники сільськогосподарської продукції не прагнули укріплювати фермерські господарства чи запускати великі сільгосппідприємства. За таких умов ВАТ «Вібросепаратор» було вимушене орієнтуватися на дрібні господарства і виробляти малопотужну техніку – 5-15 тонні машини, що й призвело до втрати багатьох працівників та роботи підприємства не у повній його можливості.
На сьогоднішній день ефективними є лише потужні підприємства, які вирощують та обробляють зернові культури. Тому і з’явився попит на зерноочисні машини потужністю від 50 до 200 тон за годину, а також механізми, які супроводжують цю зерноочистку. Без такої техніки виробник потрапляє у зону ризику – залежність від цінових коливань. Це дуже неефективний сегмент ринку, тому ВАТ «Вібросепаратор» не обмежується лише українським ринком. Слід звернути увагу на те, що аж 56% продукції експортується за кордон, а саме – у Казахстан, Росію, Молдову, Узбекистан, що ще раз вказує на проблеми збуту такої продукції всередині нашої держави. Також для іноземних дилерів постачають малогабаритну та малопотужну техніку, комунальну техніку, зокрема, бетономішалки цілою партією були експортовані до Германії, 62 одиниці потужної техніки зараз у процесі виробництва для дилерів у Казахстані, лише окремі вузли та комплектуючі до сільськогосподарської техніки дещо застарілих зразків можливо реалізувати в Україні.
Для закордонних покупців підприємство гарантує оперативне митне оформлення вантажів, відправляють придбану у нього техніку тим видом транспорту, який є найзручнішим для покупця, що робить гарну репутацію для заводу серед його потенційних клієнтів.
Вражає інтелектуальний потенціал підприємства, оскільки персонал, працюючий на ньому, не лише зумів вивести його з банкрутства, а й зробити лідером. Слід зазначити, що у відділах маркетингу та збуту працюють досить молоді люди, проте у технічному та механічному відділах зосереджена вся «важка артилерія» заводу, оскільки тут працюють люди, які мали справу з величезними заводами за часів Радянського Союзу, і саме завдяки їм підприємство розробляє нові технології, самостійно проводить дослідження техніки в експериментальних цехах, та має можливість гідно представити якісну продукцію на ринку машинобудівництва.