| Скачать .docx |
Реферат: Организация торговой деятельности универсама
Содержание
1. Проектирование магазина и его эффективность. 5
2.1 Расчет площади магазина. 15
2.2 Соотношение торговой и неторговой площади. 25
2.3. Схема внутренней планировки магазина. 25
Список использованных источников. 32
Введение
«Цивилизованное» магазиностроение в России началось в конце 90-х годов ХХ века. До этого опыт зарубежных компаний оказывал определенное влияние на развитие технологий, но основной сдвиг произошел после кризиса 1998 года. Развитие собственного производства привело к тому, что у отечественных компаний возникла необходимость обратить внимание на то, что происходит в стране, на новые методы коммуникации, системы продаж, новые марки. Переходным годом можно считать 1999, а 2000 – был уже годом уверенности в новых технологиях.
Создание успешного магазина или торгового центра во многом зависит от того, насколько правильно оценивается ситуация и ставятся задачи перед каждым участником процесса – архитекторами, строителями, дизайнерами, инженерами и технологами, поставщиками оборудования, консультантами, специалистами по торговой недвижимости.
Цель курсового проекта – получить необходимые знания и умения для подготовки технологической части проектной документации при создании розничных торговых предприятий.
Объектом данной курсовой работы является магазин хозяйственных товаров торговой площадью 45- м2 встроенный в жилое здание, местного значения, продажи в котором осуществляются традиционным методом.
Предметом исследования выступают: архитектурно-дизайнерское решение экстерьера магазина, количество разгрузочных мест, потребность в оборудовании, планировка торгового зала магазина.
Задачи исследования: анализ и систематизация теоретического материала, выполнение расчётов согласно объекту исследования, проведение анализа практических материалов, написание выводов, составить экономически развитое и способное конкурировать на рынке розничное торговое предприятие.
1. Проектирование магазина и его эффективность
Любого руководителя торгового предприятия интересует вопрос о том, как сделать магазин эффективно работающим, т.е. приносящим максимальную прибыль. В рекомендациях специалистов по этому поводу обычно говорится о реконструкции и обновлении торгового зала, переводе магазина из одного формата в другой, автоматизации торговли и т.д. Всё это верно, но лишь отчасти.
Выскажу на первый взгляд крамольную мысль: «Самое современное оформление торгового зала, идеально проведенная реконструкция, лучшее в мире торговое оборудование, полнейшая автоматизация, красочное оформление витрин и др. не будут иметь ровным счётом никакого значения для повышения эффективности работы магазина, если в нём отсутствует главное — глубоко продуманная концепция и чётко работающая схема торгово—технологических процессов».
На Западе любой формат магазина — прежде всего определённая философия торговли, то есть конкретные «правила игры». Они, в принципе, могут быть реализованы на любом оборудовании, в любом (даже небольшом сельском) магазине независимо от его профиля. Разработка концепции магазина — это и есть построение наиболее рациональной организации всех оперативных процессов торгового предприятия, направленное на максимально эффективное обслуживание покупателей.
Одной из важных составляющих концепции магазина является технологическая планировка, т.е совокупность всех помещений торгового предприятия в определённой взаимосвязи, обеспечивающей наиболее рациональную организацию оперативных процессов. Она является непременным условием создания или реконструкции магазина, позволяя добиваться максимально эффективного использования имеющихся торговых площадей.
Кстати, эффективность вовсе не предполагает, чтобы каждый метр торговых или вспомогательных помещений магазина был занят оборудованием или товаром. Рациональное использование площадей торгового предприятия означает то, что каждый квадратный метр помещения учитывается в операционном процессе и выполняет в нём строго определённую функцию. Задача заключается в том, чтобы заставить работать каждый метр площади с наибольшей отдачей.
В Европе и США при проектировании магазинов существуют определённые параметры того, какую прибыль должен приносить один квадратный метр площади в конкретном формате магазина и как этого добиться. У нас просчитать точные цифры пока невозможно из—за нестабильности в макроэкономике. Но, по крайней мере, мы уже можем уверенно говорить о факторах, определяющих эти показатели.
Технологическая планировка любого помещения должна учитывать следующие требования:
1. Торговые залы и вспомогательные помещения должны быть изолированы друг от друга и иметь оптимальное соотношение.
2. Помещения для хранения и подготовки товара к продаже должны быть технологически связаны с торговым залом и обеспечивать кратчайший путь доставки товара к зонам выкладки.
3. Зоны приёма товара должны размещаться вблизи помещений для их хранения.
4. Кладовые и камеры для хранения товаров не должны быть проходными. Они должны иметь достаточное количество стеллажей и приспособлений для наиболее рационального и удобного размещения товаров и их беспрепятственного вывоза к месту предпродажной подготовки или в торговый зал.
5. Планировка помещений магазина должна обеспечивать минимизацию времени, оптимизацию осуществления, удобство для пользователей и персонала всех торгово —технологических операций.
6. Планировка должна создавать покупателям возможность беспрепятственного выбора товара в минимально короткий срок. Сразу замечу: свободный доступ к товару повышает оборот на 30—70%, а плохой обзор, отсутствие доступа, задержка с исполнением просьбы «показать товар ближе» может снизить оборот вдвое.
7. Планировка должна обеспечивать максимальную обозримость ассортимента товаров, их потребительских свойств, для этого задействовать надо все имеющиеся средства (освещение, рекламу, специальные методы продаж и др.). Особенно актуально выделение специальных зон и оборудования для презентации новинок. На Западе новинки ассортимента приносят максимум прибыли. Они должны обращать внимание покупателей на новый товар, помогать продавать дорогие и элитные вещи.
8. Планировка магазина должна обеспечить лёгкость и простоту совершения покупок, свободу передвижения по торговому залу, рациональное размещение товаров, а также стимулировать совершение импульсивных покупок.
Технологическое проектирование должно предусматривать такие элементы планировки и оформления торгового зала и витрин, которые привлекали бы внимание покупателей, способствовали бы их благоприятному настроению и помогали сделать покупку. Большую роль в этом играет планировка торгового зала.
Торговый зал — основной инструмент продажи товаров и обслуживания покупателей в любом формате магазина, поэтому всегда актуальным является вопрос о том, какова должна быть его площадь. Специалисты знают, что это очень важный вопрос, потому что в общей теории магазиностроения отношение торговой площади к общей определяет коэффициент эффективности (Кэ) использования общей площади магазина:
Кэ=Sт:Sо (1)
Чем выше полученное значение, тем эффективнее используется площадь магазина.
Если коэффициент эффективности равен: 0.5, это означает, что торговая площадь занимает лишь половину (50%) площади магазина и используется неэффективно, так как значительная её часть, которая могла бы быть использована для обслуживания покупателей н выкладки товара, занята вспомогательными помещениями.
На Западе наиболее оптимальным является соотношение торговой и неторговой площади магазина как 70:30.
Торговый зал должен обеспечить большую пропускную способность, высокое качество обслуживания покупателей и хорошие условия труда работникам магазина. Для этого важно не только разместить в нем отделы и секции, но и умело направить потоки покупателей, грамотно расставить торговое оборудование, кассовые кабины, вход и выходы из зоны обслуживания.
Количество входов в торговый зал зависит от его размеров и конфигурации. Практически для прямоугольного или квадратного зала достаточно одного входа шириной не менее одного метра для небольших магазинов и не менее трёх метров для супермаркетов и гипермаркетов. Если торговый зал имеет узкую и вытянутую планировку, целесообразно иметь два входа—выхода в разных концах зала с центральным расположением расчётно—кассовых узлов. В магазинах самообслуживания число выходов с кассовыми кабинами должно минимум в два раза превышать пропускную способность входа. Причём это всего лишь общее требование, которое нуждается в уточнении применительно к различным форматам магазинов. Например, в европейских гипермаркетах наиболее рациональным признаётся использование длинной линии расположенных рядом расчетно—кассовых узлов для отделения торгового зала от вспомогательных помещений, ведущих к выходу из магазина. Это даёт возможность регулировать пропускную способность: при небольшом потоке покупателей достаточно работы двух—трёх касс, а при увеличении потока включаются дополнительные кассовые узлы.
В торговом зале вся площадь по функциональному назначению делится на установочную (предназначенную для размещения оборудования), расчётно—кассовую, проходную (проходы для движения покупателей), для выкладки товара, для работы продавцов и др.
Особое значение имеет установочная площадь. Она определяется по размерам внешних границ торгового оборудования или вспомогательных конструкций (примерочных кабин и др.). По ней можно судить об эффективности размещения оборудования в торгвом зале.
Специалисты пришли к выводу, что показателем эффективности размещения оборудования в торговом зале является коэффициент установочной площади (Ку), определяемый как отношение установочной площади к общей площади торгового зала. Оптимальная величина Ку в магазинах самообслуживания составляет 0,3—0,92; в универмагах — 0,29; в магазинах обуви — 0,33; одежды — 0,28; хозяйственных товаров — 0,32. Иначе говоря, средний показатель близок к 0,3 по большинству групп товаров. Это норма. Отклонение oт этой нормы заставлять задуматься о повышении эффективности работа зала. Рекомендуем сделать простые расчёты самостоятельно.
При загруженности магазина ограничены возможности выбора товара, напряжены потоки покупательских перемещений, затруднено обслуживание покупателей. Его целесообразно изменить.
Рассмотрим рабочее место в магазине .
Рабочее место - это зона работы одного человека или группы людей, ограниченная определенной площадью и оснащенная оборудованием, предназначенным для совершения различных операций, связанных с обслуживанием покупателей (рабочее место продавца, кассира-контролера, продавца-консультанта и др.).
Требования, предъявляемые к организации и обслуживанию рабочих мест:
• высокий уровень технического оснащения;
• соответствие оборудования требованиям эргономики (психофизиологическим и антропометрическим возможностям человека в процессе труда);
•размещение оборудования, инструментов, товаров, упаковочных материалов в удобном для работы порядке;
• обеспечение безопасности труда и удобной рабочей позы;
• бесперебойное пополнение запасов товаров, упаковочных материалов;
• своевременный ремонт оборудования и инвентаря.
Виды помещений (площадей) магазина, технологическая планировка
Помещения (площади) магазинов разделяются на торговые и неторговые.
К торговым помещениям магазина относятся:
- торговые залы;
-залы кафетериев;
-места для продажи соков;
-места для игровых автоматов.
К неторговым относятся помещения, разделенные по признаку их назначения:
-помещения и площади для приемки, хранения и подготовки товаров к продаже;
-помещения хозяйственного обслуживания оперативных процессов:
--хранения тары и упаковочных материалов, запасного оборудования,
--инструментов, прочего инвентаря, спецодежды, мастерские для ремонта тары и оборудования, ремонтно-декорационная мастерская, камера для мусора и др.;
- административно-бытовые помещения;
-технологические помещения;
-коридоры для перемещения товаров и движения работников магазина.
Технологическая планировка магазина - это совокупность всех помещений магазина в определенной взаимосвязи, позволяющей обеспечить рациональную организацию оперативных процессов. Планировка формирует пути, траектории движения людей и товаров.
Требования, предъявляемые к планировке магазина:
• торговые залы должны быть технологически связаны с помещениями для подготовки товаров к продаже;
• кладовые и помещения для подготовки товаров к продаже не должны быть проходными;
• приемочные следует располагать вблизи помещений для хранения товаров;
• помещения для приема, хранения и подготовки товаров к продаже должны обеспечивать кратчайшие пути движения товаров в торговый зал;
• планировка магазина должна создавать для покупателей условия беспрепятственного выбора товаров в минимально короткий срок;
• предусматривать оптимальное использование площадей, создание необходимых условий работникам магазина для рациональной организации оперативных процессов;
• планировка должна обеспечить легкость и простоту совершения покупок, создать максимальную видимость выложенных товаров и обеспечить обозримость ассортимента, стимулировать совершение импульсивных покупок, минимизировать время поиска нужных товаров и расстояние, которое требуется пройти для того, чтобы приобрести все намеченные товары.
Виды технологических планировок торгового зала (в зависимости от размеров и конфигурации торгового зала, ассортимента реализуемых товаров, форм и методов продажи):
• линейная - размещение товаров и проходов для покупателей в виде параллельных линий торгового оборудования, перпендикулярно линии узла расчета. Используется в основном в магазинах самообслуживания. Может быть продольной, поперечной, смешанной;
• боксовая - торговый зал разбит на отделы, изолированные друг от друга. Используется в крупных магазинах, при продаже через прилавок;
• смешанная - расстановка оборудования в магазине с использованием комбинаций линейной и боксовой планировок;
• выставочная - размещение крупногабаритных товаров на различном оборудовании, т.е. выставка товаров. Используется при продаже товаров по образцам;
• свободная - расстановка оборудования без определенной геометрической системы в соответствии с формой торгового зала.
Рассмотрим виды торгово-технологического оборудования.
Существует несколько видов торгово-технологического оборудования магазинов:
1) мебель, которая классифицируется по:
месту применения (для торговых залов, подсобных помещений);
назначению (для приемки товаров, подготовки и продажи, показа товара, выкладки и продажи, транспортировки и продажи, расчетов с покупателями, обслуживания покупателей);
товарному профилю (универсальная, специализированная);
конструкции (неразборная, сборно-разборная).
К мебели предъявляются следующие требования:
эксплуатационно-технические (стандартная, универсальная, емкая, с большой площадью экспозиции, прочная, устойчивая, надежная), экономические (недорогая, экономичная в эксплуатации, возможность массового производства на основе современной технологии),
эргономические (основные размерные соотношения мебели должны устанавливаться с учетом роста и пропорций фигуры человека, обеспечивать снижение утомляемости до минимума, хорошую обозримость товаров и свободный доступ к ним), эстетические (форма, пропорции и цвет должны соответствовать своему функциональному назначению, интерьеру торгового зала), санитарно-гигиенические (устройство мебели, материалы, используемые для изготовления, не должны затруднять ее чистку);
2) Торговый инвентарь - приспособления, инструменты, приборы, применяемые для показа и обработки товаров в процессе обслуживания покупателей, а также различных вспомогательных и хозяйственных операций
Торговый инвентарь классифицируется по месту использования (для складских и подсобных помещений, торговых залов),
назначению (для вскрытия тары и упаковки, проверки размеров и качества товаров, подготовки к продаже, отпуска, выкладки и рекламы, счетный, вспомогательный, санитарно-гигиенический, противопожарный).
3) Торговое холодильное оборудование - охлаждаемые устройства, предназначенные для кратковременного хранения, выкладки и продажи скоропортящихся товаров. Классифицируется по: назначению (для хранения товаров, показа и продажи товаров, демонстрации товара),
температурному режиму, поддерживаемому в охлаждаемой емкости (низкотемпературное, обычное).
Существуют следующие виды оборудования:
- холодильные камеры - имеют сборно-разборную конструкцию, предназначены для складских помещений магазина,
- холодильные шкафы - используются на рабочем месте продавца, имеют холодильные агрегаты,
- холодильные витрины - используются для показа и продажи охлажденных и замороженных продуктов,
- холодильные прилавки - используются для хранения, демонстрации и продажи охлажденных гастрономических продуктов в универсамах;
4 ) Торговое измерительное оборудование - весы, гири, меры длины и объема.
Весы классифицируются по:
- принципу действия (рычажные, электромеханические);
- месту и способу установки (настольные, передвижные, стационарные);
- виду указательного устройства (гирные, шкальные, шкально-гирные, циферблатные, цифровые, электронные);
- виду отсчета показаний взвешивания (визуальный отсчет, с документальной регистрацией), способу снятия показаний (с местным и дистанционным способами снятия показаний);
- контрольно-кассовое оборудование - контрольно-кассовые машины, которые классифицируются по: количеству суммирующих счетчиков; количеству рядов для набора, суммы, вводимой в машину; количеству операционных счетчиков; наличию съемных клавиш-ключей.
2. Практическая часть
2.1 Расчет площади магазина
Площадь магазина состоит из торговой и неторговой площади.
Для расчета неторговой площади следует спроектировать универсам.
Первый сигнал о том, что магазин подходит именно для него, покупатель получает при взгляде на фасад: мгновенно формируется впечатление о классе заведения и ценовой категории товара. С первых шагов необходимо настроить покупателя на положительный лад и избежать любых проявлений негатива.
Проектируемый магазин расположен в зоне местного значения (район жилой застройки). Он является встроенным в жилое здание, занимает первый этаж жилого здания, не выходит из общих габаритов.
Вытянутый открытый фасад, обеспечивает комфортную среду в торговом зале днем и более нарядный облик магазина в вечернее время. Усиливается желание зайти внутрь. Хотя естественное освещение сквозь витрины не сильно влияет на освещенность торгового зала, днем внутреннее пространство визуально расширяется, торговый зал кажется более просторным. Поэтому фасад нашего магазина является открытым, т.е. используются преимущественно прозрачные витрины. Потенциальные посетители видят товары, которые находятся внутри, видят других покупателей, активно перемещающихся по залу с корзинками. Возникает желание последовать их примеру. Магазин открыт для всех. У входа в магазин расположены две клумбы. По центру над входом расположена вывеска. Имеются урны для мусора. Предусмотрена скамейка для отдыха покупателей.
У входа в магазин расположены ступени и дорожки для подъезда инвалидных колясок и колясок с детьми.
Торговая площадь представлена в таблице 1.
| Структура торговой площади |
Показатель, м2 |
| 1. Площадь торгового зала для продовольственных товаров ( S т.з.) |
19 |
| 1.1 Продовольственные товары |
283 |
| В том числе: |
|
| Хлеб |
23 |
| Кондитерские товары |
22 |
| Бакалея |
40 |
| Молочные продукты |
34 |
| Гастрономия |
51 |
| Вино, пиво, безалкогольные напитки |
11 |
| Мясо |
29 |
| Рыба |
16 |
| Овощи |
40 |
| Фрукты |
17 |
| 1.2 Непродовольственные товары |
136 |
| В том числе |
|
| Белье |
6 |
| Обувь/домашняя |
5 |
| Трикотажные изделия |
17 |
| Галантерея, парфюмерия |
45 |
| Посудохоз. Товары. электротовары |
39 |
| Канцтовары /игрушки |
18 |
| Спортивные товары |
6 |
| 2. Площадь для дополнительных услуг ( S д.у.) в том числе |
31 |
| Зал приема и выдачи заказов |
13 |
| Зал кафетерии |
18 |
| 3. Торговая площадь магазина ( S о.т. = S т.з.+ S д.у.) |
450 |
Прямо по центру у проезжей части расположен карман для парковки автомобилей. Парковка рассчитана на оптимальное количество парковочных мест. Необходимое количество мест определяется из расчёта 1 машино-место на 15 – 25 м2 торговой площади. В нашем случае получается 30 парковочных мест (450 м2 /15 = 30).
Недалеко от проектируемого магазина расположена остановка, что должно обеспечить большее привлечение потенциальных покупателей в магазин.
Основным признаком принадлежности помещения к магазину является наличие фасадных витрин. Для начала необходимо выбрать тип витрин. Для данного типа магазина наиболее подходящими являются витрины в оконных проёмах. Одно из основных требований, предъявляемых к конструкции витринного окна является то, чтобы оно имело прямоугольную форму, вытянутую по горизонтали. Так как проектируемый магазин является встроенным в жилое здание, то размеры витрины не должны превышать в высоту 2,5-3,0 м и в ширину 4,5 м. В проектируемом нами магазине расположено шесть оконных проемов, высота и ширина которых соответственно равна 2,5; 2,5 м. Над оконными проемами расположены козырьки, которые непосредственно защищают витрины от загрязнения, от осадков и препятствуют попаданию прямых солнечных лучей на товар.
Со стороны двора жилого дома расположена хозяйственная зона для подъезда автомашин с товарами и их маневрирования. Данная зона располагается таким образом, чтобы не препятствовать покупательскому потоку, проходу проживающих в этом доме, а также проходу персонала магазина.
Единство образа магазина создает все то, что окружает покупателя. Очень важное значение в этом играет вывеска, которая в свою очередь знакомит покупателя с товарным профилем и специализацией магазина. Стиль вывески должен соответствовать общему стилю магазина. В темное время суток вывеска и витрины проектируемого магазина освещены, что в целом повышает освещённость улицы. К тому же жители района не просто это ценят, но и более активно используют вечернее время суток для покупок.
На вывеске проектируемого магазина указывается его название. Слева от входа в знание расположена табличка с указанием режима работы магазина.
Вход в наш магазин должен быть расположен по центру. Первое, на что необходимо обратить внимание при проектировании входа в магазин, - возможность использования приёмов визуального его увеличения.
Товары, расположенные во входной зоне, должны сообщать об уровне цен и давать чёткий сигнал для покупателей, показывать целевой группе, что это их магазин. Во входной зоне лучше всего разместить цветы, товары по привлекательной цене, интересные товары.
Двери в здание двойные, автоматические, между которыми находится тамбур, оборудованный тепловыми завесами. На полу у входа расположены коврики для того, чтобы поддерживать чистоту в магазине.
Потоки входящих и выходящих посетителей не должны смешиваться во входной зоне. Для того, чтобы поток входящих и выходящих людей с тележками не мешал тем, кто упаковывает покупку, ширина прохода между линией касс и стойками должно быть не менее 2,4 м. Вход для персонала магазина находится с левой стороны здания.
Можно сказать о том, что в проектируемом магазине созданы благоприятные и комфортные условия для покупателей данного магазина. В целом магазин отвечает всем предъявляемым требованиям.
Рассмотрим состав помещений для данного типа магазина, расчёт их площади
Проектируемый магазин должен располагать комплексом помещений, необходимых для рационального функционирования торгово-технологического процесса. Согласно ВСН 54-87 и СНиП II-77-80 выделяют следующие помещения:
Для приёма, хранения и подготовки товаров к продаже:
разгрузочные места;
кладовые.
Согласно СНиП II-77-80 для магазинов, размещаемых в жилых зданиях, разгрузочные места и платформы должны предусматриваться в помещениях. Согласно ВСН 54-87 количество разгрузочных мест равно 1.
Подсобные помещения:
Таблица 2.1 – Структура торговой площади магазина
| Таблица 2.1 – Расчет торговой площади магазинаПодсобные помещения |
Согласно СНиП II-77-80 |
|
| Хранение тары |
Объединить в одно помещение |
|
| Хранение контейнеров обменного фонда |
||
| Помещение для хранения упаковочных материалов, инвентаря и спецодежды |
При торговой площади свыше 400 м2 |
|
| Помещение для хранения уборочного инвентаря, моющих и дезинфицирующих средств |
При любой величине торговой площади |
|
| Бельевая |
Не предусмотрено |
|
| Моечная |
Не предусмотрено |
|
| Помещение для мусора |
При любой величине торговой площади |
|
По указаниям СНиП II-77-80 помещение для хранения тары и помещение для хранения контейнеров обменного фонда объединим в одно помещение.
Рассмотрим служебно-бытовые помещения:
| Таблица 2.2. Условия размещения служебно-бытовых помещений в магазине типа |
||
| Служебные и бытовые помещения |
Согласно СНиП II-77-80 |
|
| Кабинет директора и секретаря |
Общее помещение |
|
| Контора |
||
| Гардеробные |
Отдельное помещение |
|
| Комната персонала (приём пищи) |
Отдельное помещение |
|
| Уборные |
То же |
|
Помещения для приёма и хранения товаров:
400/10*6 + 50/10*5,3 = 266,5 м2
В проектируемом магазине разгрузка товаров осуществляется в помещениях. В подобном случае следует увеличивать нормируемую площадь на величину площади разгрузочной платформы.
Согласно СНиП II-77-80 в подобном магазине на одно разгрузочное место должно приходиться 24 м2 площади платформы. Следовательно, площадь разгрузочной платформы равна 24 м2 .
Таким образом, площадь помещений для приёма и хранения товаров равна:
266,5 + 24 = 290,5 (м2 )
Подсобные помещения:
400/10*1,2 + 50/10*0,64 = 51,2 (м2 )
Служебные помещения:
400/10*1,44 + 50/10*1,13 = 63,25 (м2 )
Итого нормируемая площадь без учёта площади разгрузочной платформы:
400/10*8,64 + 50/10*7,07 = 380,95 (м2 )
Итого нормируемая площадь с учётом площадь разгрузочной платформы:
380,95 + 24 = 404,95 (м2 )
Минимальная площадь отдельных помещений должна быть не менее 6 м2 , кроме санитарных узлов, главных касс и т.п.
Нормируемую площадь неторговых помещений допускается уменьшать по мере совершенствования торгово-технологического и транспортного оборудования, системы товароснабжения и товародвижения и с учётом конкретных условий размещения предприятий.
Общая площадь магазина равна сумме торговой площади и неторговой площади:
450 + 448,15 = 898,15(м2 )
Рассчитаем неторговые площади помещений магазина:
Разгрузочные места
Как уже упоминалось ранее, согласно СНиП II-77-80, для магазинов, размещаемых в жилых зданиях, разгрузочные места и платформы должны предусматриваться в помещениях. В проектируемом магазине площадью 300 м2 должно быть одно разгрузочное место на 24 м2 площади платформы. Следовательно, площадь разгрузочной платформы равна 24 м2 .
Кладовые.
Площадь кладовых помещений в непродовольственных магазинах следует принимать согласно СНиП II-77-80. Площадь кладовых для хозтоваров принимается равной 7м2 площади кладовых на каждые 10 м2 площади торгового зала:
450/10*7 = 315(м2 )
Допускается в соответствии с заданием на проектирование сокращать площади кладовых (СНиП II-77-80, п. 3.37). На основе п. 3.39 СНиП II-77-80 площадь общих кладовых следует принимать на 10 % меньше суммарной площади отдельных кладовых.
315-21 = 294(м2 )
Итого площадь помещений для приёма и хранения:
294 + 24 = 318(м2 )
Подсобные помещения
Помещение для прессования бумажных отходов и древесностружечных отходов: не более 450/10*0,7 = 31,5 м2 ;
Помещения для хранения упаковочных материалов и инвентаря: не более 5 м2 ;
Помещение для хранения уборочного инвентаря, моющих и дезинфицирующих средств: не более 4 м2 ;
Итого площадь подсобных помещений равна:
31,5 + 5 + 4 = 40,5 м2
Служебно-бытовые помещения
Площадь служебных и бытовых помещений следует принимать:
Кабинет директора и секретаря, контора: 6 м2 ;
Комната персонала: 9 м2 ;
Гардеробные и уборные 15 м2
Итого площадь служебно-бытовых помещений = 6 + 9 + 15 = 30 м2 ;
Итого нормируемая площадь = 318 + 40,5 + 30 = 388,5 м2
Итого общая площадь = 450 + 388,5 = 838,5 м2
В проектируемом магазине будем принимать расчёт нормируемой и общей площади магазина по СНиП II-77-80, поскольку в настоящее время торгово-технологическое и транспортное оборудование довольно усовершенствовано и занимает небольшую площадь.
Распределение площади торгового зала по функциональным зонам и определение эффективности её использования
Эффективность использования площади торговых залов магазинов при размещении оборудования определяется с помощью ряда показателей:
1) Коэффициент использования установочной площади.
Установочная площадь – это часть площади торгового зала, занятая оборудованием, предназначенным для выкладки, демонстрации товаров, проведения денежных расчётов и обслуживания покупателей. Под эту площадь отводится примерно 30 – 32 % площади торгового зала. Коэффициент использования установочной площади представляет собой отношение суммарной установочной площади оборудования к общей площади торгового зала:

, (2)
где Si – площадь оснований единицы оборудования, м2 .
Площадь узлов расчёта.
Площадь, занимаемая под узлами расчётов, включает площадь, занятую кабинами и площадь, необходимую для оказания дополнительных услуг покупателям в процессе расчётных операций. На каждые 80 – 100 м2 площади торгового зала должен приходиться 1 узел расчёта. Следовательно, в проектируемом торговом зале, площадью 450 м2 должно размещаться 4,5 узла расчёта общей площадью 45 м2. Площадь под узлами расчётов занимают в среднем – 10 % площади торгового зала.
2) Площадь проходов для покупателей.
Ширина проходов устанавливается строительными нормами и правилами. Для создания комфортных условий перемещения покупателей необходимо от 4 до 10 м2 торговой площади на покупателя. Проходы для покупателей подразделяются на магистральные (основные) и боковые. Магистральные проходы связывают все зоны торгового зала и идут вдоль стен. Их ширина должна обеспечивать беспрепятственное перемещение основных покупательских потоков.
Площадь для прохода покупателей в проектируемом торговом зале составляет 30 %.
3)Площадь под рабочими местами продавцов. Планировка рабочих мест продавцов в магазинах, применяющих традиционные формы обслуживания покупателей, зависит от ассортимента реализуемых товаров, типа предприятия. Размещают рабочие места продавцов ближе к помещениям, в которых осуществляются хранение и подготовка к продаже товаров. Данная площадь составляет 30 % площади торгового зала.
Таблица 3
Фактическое соотношение функциональных зон торгового зала
| Функциональные зоны |
Площадь, занимаемая указанной функциональной зоной |
|
| в процентном выражении, % |
в абсолютном выражении, м2 |
|
| Площадь под оборудование |
30 |
135 |
| Площадь под узлами расчетов |
10 |
45 |
| Площадь для проходов покупателей |
30 |
135 |
| Площадь под рабочими местами продавцов |
30 |
135 |
| ИТОГО |
100 |
450 |
Эффективность использования площади торговых залов магазинов при размещении оборудования определение с помощью ряда показателей:
Коэффициент использования установочной площади. Он представляет собой отношение суммарной установочной площади оборудования к общей площади торгового зала.
Куст = Sуст / So , (3)
где Sуст, So – соответственно установочная и общая площади торгового зала.
Куст = 135/450 = 0,30
Полученные значения коэффициентов установочной равны рекомендуемым значениям коэффициентов и можно сделать вывод о том, что торговая площадь используется эффективно. Относительно оборудования, можно сказать, что оно отвечает современным требованиям, удобно и имеет большую площадь выкладки. Планирование торгового зала создаёт максимальные удобства, как для продавцов, так и покупателей, обеспечивает широкий показ товаров. При увеличении коэффициента демонстрационной площади может пострадать рациональная организация технологических процессов, ухудшиться обозримость товаров.
2.2 Соотношение торговой и неторговой площади
Отношение торговой площади к общей определяет коэффициент эффективности (Кэ) использования общей площади магазина:
Кэ=Sт:Sо (4)
Чем выше полученное значение, тем эффективнее используется площадь магазина.
Кэ = 450/898,15 = 0,50103 или 50,103% т.е. получаем что торговая площадь составляет половину от общей площади, т.е. соотношение торговой площади и неторговой площади равна 50% и предлагается увеличивать торговую площадь, для этого предлагается схема внутренней планировки магазина.
2.3. Схема внутренней планировки магазина
Система самообслуживания большей частью применяется в продовольственных магазинах. Торговая площадь магазинов самообслуживания от 400 м2 и выше, в нашем случае 450 м2 .
Непродовольственные товары составляют не более 1/3 всех продаваемых в магазине товаров. Персонал в таких магазинах необходим только для советов и помощи покупателям, отправки товаров, иногда для ускорения отпуска мясных и молочных продуктов. На 60 —80 м2 площади торгового зала требуется 5 —8 человек персонала. Площадь торгового зала в магазине самообслуживания больше, чем в других магазинах, поскольку в торговом зале размещают в 2 —3 раза больше товаров при меньшем использовании высоты помещения; кроме того, 50 —66% площади торгового зала отводится для покупателей. Все товары по возможности должны быть выставлены в расфасованном виде и сгруппированы по ассортименту; товары должны быть легко обозримы.
Большое внимание следует уделять графику движения покупателей с корзинами или тележками мимо стеллажей; ширина проходов должна составлять 1,3 —1,6 м; у выхода должны располагаться кассы и места для упаковки товаров.
Пополнение продаваемых товаров производится в нерабочие часы или в рабочие часы из специального прохода, расположенного за полками для товаров.
Свободно стоящее оборудование магазина не должно быть выше 1,3 —1,4 м, что обеспечивает беспрепятственный обзор всего торгового зала. Высота пристенных полок должна быть такой, чтобы можно было удобно достать товар (верхняя полка — на высоте 1,65 м, нижняя — на высоте 0,3 м над уровнем пола). Наиболее эффективно применение островных стеллажей «гондол». Применяются также охлаждаемые лари и охлаждаемые пристенные полки. Кассы размещают так, чтобы обеспечить хороший обзор всего торгового зала (в зависимости от принятой системы планировки). Должно быть предусмотрено место для складывания выбранных товаров, их упаковки и для беспрепятственной стоянки тележек и хранения корзин для покупок у входа. На 100 м2 площади торгового зала требуется 100 корзин и 10 тележек; на 200 м2 торгового зала требуется 150 —200 корзин и 30 тележек.

1. Схема планировки магазина самообслуживания.
2. Непрерывное движение покупателей обеспечивается бесперебойной работой касс.
3. Пути движения покупателей должны охватывать также и угловые части торгового зала.


4. Торговый зал хорошо обозревается покупателями и кассирами-контролерами. В отличие от схемы на рис. 3, слева, покупатели могут не обходить весь зал.
5. Охлаждаемые полки и прилавки. 6. Островной стеллаж «гондола» с освещёнными полками.
7. Свободно стоящая касса. Разрез.
8. План свободно стоящей кассы минимальных размеров.
9. Корзина-тележка для покупок.

10. Пристенная горка для бутылок.
11. Пристенная горка для фруктов, овощей, пополняемых россыпью.
12. Перегородка торгового зала с проходом для пополнения товаров путём смены ящиков.
13. Стеллаж с проходом для пополнения товаров. Не взятый покупателем товар откладывается им в выдвижной ящик под стеллажом.

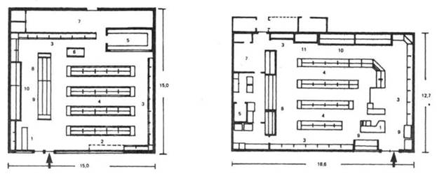
14. Магазин самообслуживания с торговым залом площадью 450 м2 .
1 – касса; 2 – место для передвижных лотков; 3 – пристенные стеллажи; 4 – островные стеллажи – «гондолы»; 5 – холодильная камера; 6 – стол для выставки товаров; 7 – склад; 8 – замороженные пищевые продукты; 9 – мороженое; 10 – молочные продукты.
15. Магазин самообслуживания того же типа, что на рис. 14, но с торговым залом площадью 194 м2 .

16. Магазин самообслуживания

17. Поперечный разрез к плану.
18. Генеральный план.
Заключение
Основная задача в данной курсовой работе заключалась в разработке проекта розничного торгового предприятия - универсама, способного успешно конкурировать на рынке.
На начальном этапе проектирования магазина необходимо было провести технико-экономические расчеты, которые позволили определить состав необходимых для данного типа магазина помещений, составить планировку помещения магазина, рассчитать площадь этих помещений с учётом требований строительных норм, то есть, разработать технологическую часть проекта.
Итак, в процессе выполнения курсовой работы был разработан проект розничного торгового предприятия - универсама, отвечающего всем требованиям и стандартам, предусмотренным нормативными документами.
Расположение магазина, его фасадная часть, территория вокруг магазина расположены и сделаны таким образом, чтобы покупателю было не только комфортно и удобно делать покупки, но, и доставляла ему удовольствие.
Правильно подобранное и расставленное оборудование позволило расширить предложение товаров, создать больше удобств для обслуживания покупателей, увеличить товарооборот на квадратный метр торговой площади и тем самым добиться более высоких показателей эффективности использования торговых площадей.
Таким образом, цель данной курсовой работы была достигнута и можно сказать о том, что данное универсама будет успешно развиваться на рынке.
Список использованных источников
1 Канаян А. Проектирование магазинов и торговых центров / Р. Канаян, А. Канаян. – М.: Юнион-Стандарт Консалтинг, 2005. – 416 с.
2 Памбухчиянц, В. К. Организация, технология и проектирование торговых предприятий: учебник для студентов высших и средних специальных учебных заведений – 2-е изд. / В. К. Памбухчиянц. – М.: ИВЦ «Маркетинг», 2005. – 315 с.
3 Тони Кент Розничная торговля: учебник для студентов вузов, обучающихся по специальности «Маркетинг», «Коммерция (торговое дело)» / Тони Кент, Оджени Омар. – М.: ЮНИТИ-ДАНА, 2007. – 719 с.
4 Леви, М. Основы розничной торговли / М. Леви, Б. Берту. – СПб.: Питер, 1999. – 483 с.
5 Арустамов, Э.А. Оборудование предприятий (торговля): учеб. пособие / Э.А. Арустамов. – М.: Издательский дом «Дашков и Ко», 2005. – 451 с.
6 ВСН 54-87 Предприятия розничной торговли. Нормы проектирования / Минстрой России. – М.: Стройиздат, 1988. – 45 с.
7 СНиП II-77-80 Магазины / Госстрой СССР. – М.: Стройиздат, 1981. – 35 с.
8 Егоров, В.Ф. Организация торговли: учебник для вузов / В.Ф. Егоров. – СПб.: Питер, 2004. – 352 с.
9 Снегирёва, В.В. Розничный магазин. Управление ассортиментом по товарным категориям / В.В. Снегирёва. – СПб.: Питер, 2007. – 416 с.
10 Пономарева, Е.С. Интерьер и оборудование гражданских зданий / Е.С. Пономарева. – Минск : Высшая школа, 1999. – 279 с.