| Похожие рефераты | Скачать .docx |
Курсовая работа: Технология производства эпоксидных смол
Министерство образования и науки РФ
Государственное общеобразовательное учреждение
Высшего профессионального образования
Владимирский государственный университет имени А.Г. и Н.Г. Столетовых
Кафедра полимерных материалов
Технология производства эпоксидных смол
Владимир, 2011
Содержание
эпоксидный смола пенопласт компаунд
Введение
1. Эпоксидные смолы
1.1 Технологический процесс изготовления эпоксидной смолы
1.2 Отверждение эпоксидных смол
1.3 Взаимодействие эпоксидных смол с различными отвердителями
1.4 Марки эпоксидных смол
2. Области применения
2.1 Эпоксидные компаунды
2.1.1 Эпоксидные формовочные компаунды
2.1.2 Эпоксидные смолы для инструмента и приспособлений
2.1.2.1 Формы из эпоксидных смол для заливочных и формовочных компаундов
2.1.2.2 Эпоксидные смолы для матриц
2.1.2.3 Системы из эпоксидных смол для штампования металла.
2.1.3 Литье, заливка, капсулирование, герметизация.
2.1.4 Стеклопластики на основе эпоксидных смол
2.1.5 Клеи на основе эпоксидных смол
2.1.6 Марки эпоксидных композиций
2.2 Пенопласты из эпоксидных смол
2.1 Химические пенопласты
2.2 Синтактические пенопласты
2.3 Покрытия эпоксидными порошками
3. Технология герметизации погружного насоса эпоксидным компаундом
3.1 Характеристика сырья
3.2 Описание принципа работы линии
3.3 Выбор оборудования
Заключение
Список использованной литературы
Приложение
Технологическая схема линии герметизации эпоксидным компаундом
Введение
Производство эпоксидных смол началось с исследований проводимых в США и Европе накануне второй мировой войны. Первые смолы — продукты реакции эпихлоргидрина с бисфенолом А — были получены в промышленных масштабах в 1947 г. За 10 лет уровень их производства составил свыше 13,6 тыс. т., в последующие шесть лет уровень производств их увеличился в 3 раза. В конце 50-х годов были получены новые эпоксидные смолы, отличные от диглицидилового эфира; в конце 1960 г. промышленностью освоено производство не менее 25 типов смол. На этом этапе термин «эпоксидная смола» становится общим и в настоящее время применяется к большому семейству материалов.
Эпоксидные смолы относятся к классу термореактивных пластиков и сходны с такими материалами как фенолы и полиэфиры. Ряд ценных свойств эпоксидных смол привел к их широкому применению в промышленности. Эпоксидные смолы универсальны вследствие своей незначительной усадки, легкости отверждения, хорошей химостойкости и чрезвычайно высокой прочности клеевого соединения.
1. Эпоксидные смолы
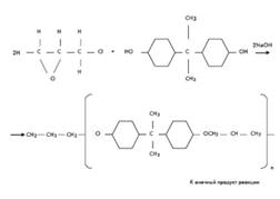
Эпоксидная смола — олигомеры, содержащие эпоксидные группы и способные под действием отвердителей (полиаминов и др.) образовывать сшитые полимеры. Наибольшее практическое и широкое применение для получения эпоксидных смол нашли дифенилолпропан (диан или бнсфенол А) и эпихлоргидрин. Реакция получения эпоксидной смолы протекает по схеме, изображенной на рис. 1.

Рис
Реакция протекает в щелочной среде в присутствии раствора NаОН. Ниже приводятся примерная рецептура и технология изготовления эпоксидной смолы.
Состав:
Дифенилолпропан — 100 массовых частей (1,0 моль)
Эпихлоргидрин — 93 массовых частей (2,3 моля)
Едкий натр (10-процентнын раствор) — 35 массовых частей (2,0 моля)
Дифенилолпропан представляет собой твердые кристаллы, температура плавления 154-156 °С, содержание свободного фенола не более 0,1%, влаги не более 1%. Эпихлоргидрин — прозрачная бесцветная жидкость, температура кипения 116-118 °С, плотность 1,15-1,16, температура вспышки 40,5 °С, содержание основного вещества 98-99%.
1.1 Технологический процесс изготовления эпоксидной смолы
В реактор из нержавеющей стали с пароводяной рубашкой и мешалкой загружают эпихлоргидрин и нагревают до 40-50 °С. При работающей мешалке постепенно вводят дифенилолпропан. После растворения дифенилол пропана и получения однородного раствора тонкой струей из мерника добавляют раствор едкого натра и при 60-70 °С проводят процесс конденсации, который продолжается 1,5-2ч. Все это время мешалка должна работать. После этого выключают обогрев аппарата, загружают воду, продолжая перемешивание. После прекращения перемешивания образовавшейся смоле дают отстояться. Разделение слоев происходит быстрее при 40-50 °С. Отстоявшийся водный слой (сверху) отделяют, а оставшуюся смолу промывают теплой водой при 40-50 °С. Количество воды определяется по объему (обычно двух-, трехкратное). Промывка (перемешивание, отстаивание с последующим отделением водного слоя) продолжается до полного удаления поваренной соли, образовавшейся при реакции. Промывка контролируется пробой (промывных вод) на присутствие хлора и щелочи.
Сушка смолы производится в том же аппарате. Для этого смолу нагревают до 40-50 °С, подключают холодильник по прямой схеме (с вакуумом) и сушат до прекращения конденсации воды в холодильнике и вспенивания смолы. Сушку смолы производят и без вакуума—при атмосферном давлении и температуре около 120°С. Сушка смолы продолжается до получения прозрачной пробы смолы при 20-25 °С. Готовая смола сливается в алюминиевую тару.
В зависимости от молярного соотношения исходных компонентов конечные продукты могут быть жидкими, вязкими и твердыми.
В связи с тем, что промывку жидкой (низкомолекулярной) смолы производить значительно легче, чем вязкой (высокомолекулярной), сначала получают низкомолекулярные смолы, которые затем сплавляют с необходимым по расчету количеством дифенилол пропана и при этом получают необходимые высокомолекулярные смолы.
Эпоксидные смолы представляют собой жидкие, вязкие или твердые прозрачные термопластичные продукты от светлого до темно- коричневого цвета. Они легко растворяются в ароматических растворителях, сложных эфирах, ацетоне, но не образуют пленок, так как не твердеют в тонком слое (пленка остается термопластичной).
Эпоксидные смолы по своему строению являются простыми полиэфирами, имеющими по концам эпоксигруппы, которые являются весьма реакциононеспособными (рис. 2).

При действии на эпоксидные смолы соединений, содержащих подвижный атом водорода, они способны отверждаться с образованием трехмерных неплавких и нерастворимых продуктов, обладающих высокими физико-техническими свойствами. Таким образом, термореактивными являются не сами эпоксидные смолы, а их смеси с отвердителями и катализаторами.
В качестве отвердителей для эпоксидных смол применяются различные вещества: диамины (гексаметилендиамин, метафенилендиамин, полиэтиленполиамин), карбоновые кислоты или их ангидриды (малеиновый, фталевый).
Эпоксидные смолы в смеси с вышеуказанными отвердителями образуют термореактивные композиции, обладающие ценными свойствами:
• высокой адгезией к поверхности материала, на которой они отвердевают;
• высокими диэлектрическими свойствами;
• высокой механической прочностью;
• хорошей химостойкостью и водостойкостью;
• при отвердевании не выделяют летучих продуктов и отличаются малой усадкой (2-2,5%).
Высокие физико-технические свойства эпоксидных смол, отличающие их от многих остальных смол, определяются строением их молекулы, а главным образом — наличием эпокси группы.
Содержание эпоксигрупп в смоле является одной из важнейших характеристик эпоксидных смол, определяющей количество отвердителя, необходимого для отверждения смолы. Содержание эпоксидных групп в смоле может быть выражено:
1. Количеством эпоксидных групп в массовых процентах. За эпоксидную группу принимают эквивалентную массу группы, равную 43 (рис. 3).

2. Эпоксидным числом, равным числу грамм-эквивалентов эпоксидных групп в 100 г смолы.
3. Эпоксидным эквивалентом, равным массе смолы в граммах, содержащей 1 грамм-эквивалент эпоксидных групп.
Метод определения эпоксидных групп основан на взаимодействии эпоксигрупп с соляной кислотой и образованием хлоргидрина по схеме (рис.4)

Кроме содержания эпоксидных групп в готовых смолах определяют:
1) содержание летучих при 110 °С;
2) содержание хлора;
3) температуру размягчения или каплепадения (для твердых смол типа ЭД-);
4) вязкость (для жидких смол типа ЭД-5 и ЭД-6);
5) растворимость в ацетоне.
1.2 Отверждение эпоксидных смол
Для отверждения эпоксидных смол применяются соединения двух типов:
1) Кислые отвердители, к которым относятся различные дикарбоновые кислоты или их ангидриды (малеиновый ангидрид, фталевый ангидрид, метилтетрагидрофталевый ангидрид, эндикангидрид, додеценилянтарный ангидрид). Для отверждения эпоксидных смол этими отвердителями требуется повышенная температура 100-200°С, поэтому данный вид отвердителей называется отвердителями горячего отверждения.
2) Аминные отвердители, к которым относятся различные амины (полиэтиленполиамин, гексаметилендиамин, метафенилендиамин). Отверждение аминами (кроме некоторых, как, например, триэтаноламин, дициандиа-мид) происходит при нормальной температуре или небольшом нагреве (70-80 °С). Поэтому эта группа называется отвердителями холодного отверждения.
Наиболее высокие физико-технические свойства композиции получаются при горячем отверждении. Свойства отвердителей приведены в таблице 1.
Отвердители эпоксидных смол
Таблица 1.
| Отвердитель | Структурная формула | Внешний вид | Молекулярная масса | Плотность | Температура плавления | Область применения |
| Малеиновый ангидрид | ![]() |
Белый кристаллический порошок | 98,06 | 51-53 | Для изготовления пропиточных и заливочных компаундов горячего отверждения | |
| Фталевый ангидрид | ![]() |
Чешуйки и порошок белого, бледно-желтого или бледно-розового цвета | 148,11 | 130 | Для изготовления заливочных компаундов горячего отверждения | |
| Метилтетрагидрофталевый ангидрид | ![]() |
Белое кристаллическое вещество | 166,09 | 64 | Для изготовления пропиточных и заливочных компаундов горячего отверждения | |
| Дициандиамид | ![]() |
Белый или светло-серый кристаллический порошок | 81,08 | 201-204 | Для изготовления эпоксидных клеев горячего отверждения | |
| Триэтаноламид | ![]() |
Прозрачная вязкая жидкость от желтого до коричневого оттенка | 149,19 | 1,1-1,2 | Как ускоритель полимеризации компаундов горячего отверждения | |
| Метафенилендиамин | ![]() |
Бесцветные слабоокрашенные кристаллы | 108,14 | 63-64 | Для изготовления пропиточных, заливочных и обмазочных компаундов холодного отверждения | |
| Гексаметилендиамин | ![]() |
Белый кристаллический порошок | 116,2 | 39 | Для изготовления компаундов холодного отверждения | |
| Полиэтиленполиамин | ![]() |
Маслянистая жидкость от светло-желтого до темно-бурого | 146 | 0,97-1,05 | Ткип = 277 | Для изготовления компаундов холодного отверждения |
1.3 Взаимодействие эпоксидных смол с различными отвердителями
1. Взаимодействие кислоты с эпоксидной группой (рис. 5).

Процесс отверждения проходит с раскрытием эпоксигруппы и образованием сначала гидроксильной группы, а затем эфирной группы, то есть происходит процесс этерификации смолы и образования трехмерного полимера.
2. Применение аминных отвердителей (рис. 6).

Амины также реагируют с раскрытием эпоксигруппы и образованием гидроксила, а затем образуют более сложные пространственные полимеры. Амины реагируют со смолой довольно активно, поэтому добавление их должно производиться незадолго перед употреблением смолы. Количество вводимых отвердителей в эпоксидную смолу определяется в зависимости от содержания эпоксигрупп или от эпоксидного числа согласно формуле

где А — количество отвердителя на 100 г смолы;
М0 — молекулярная масса отвердителя;
М, — молекулярная масса эпоксигруппы, равная 43;
К— эпоксидное число данной смолы.
В случае применения аминных отвердителей в эту формулу вводится поправочный коэффициент n (количество активных атомов водорода, содержащихся в аминных группах отвердителей), и формула принимает вид:

Физико-механические и диэлектрические свойства отвержденных эпоксидных смол могут изменяться в широких пределах в зависимости от введения в эпоксидную композицию дополнительно еще целого ряда компонентов (пластификаторов, наполнителей, разбавителей).
Пластификаторы и модификаторы (ди-бутилфталат, тиокол, полиэфиры) повышают эластичность и ударную прочность, снижают вязкость, улучшают морозостойкость эпоксидных композиций, но одновременно с этим снижают теплостойкость, адгезионные свойства, влагостойкость, а главное, диэлектрические свойства.
Наполнители (кварцевый песок, маршалит, асбест) повышают твердость и теплостойкость композиции, уменьшают усадку при отверждении, увеличивают теплопроводность, уменьшают термический коэффициент расширения, а также снижают стоимость композиции.
Разбавители и растворители эпоксидных композиций — ненасыщенные мономерные соединения (стирол, жидкий полиэфиракри-лат ТГМ-3 и алифатические эпоксидные смолы ДЭГ-1, МЭГ-1) являются сами полимеризующимися веществами и, полимеризуясь при тех же условиях, вступают во взаимодействие с основной композицией, образуя как бы твердый раствор одного полимера в другом. В большинстве случаев наличие таких разбавителей («активных разбавителей») при составлении эпоксидных композиций вызывается крайней необходимостью (например, если без них невозможно получение низковязких текучих композиций с необходимыми технологическими свойствами).
В некоторых случаях при изготовлении из эпоксидных композиций электроизоляционных лаков в композицию вводят обычные растворители (толуол, ксилол, этилцеллозольв, ацетон).
Кроме вышеупомянутых отвердителей кислотного и аминного типов, для отверждения эпоксидных смол применяются отвердители в виде различных синтетических смол. Наиболее интересными и имеющими широкое применение являются фенолоформальдегидные, полиэфирные, меламино- и мочевиноформальдегидные и полиамидные смолы.
Отверждение эпоксидных смол фенолоформальдегидными полимерами происходит за счет гидроксильной группы ОН. Отверждение происходит при 150-160 °С. Полученная композиция (эпоксидно-бакелитовая или эпоксидно-фенольная) обладает очень высокими диэлектрическими, а особенно механическими свойствами, водостойкостью и нагревостойкостью. Эти эпоксидные композиции широко применяются для производства электроизоляционных лаков, клеев.
Отверждение эпоксидных смол полиэфирами происходит благодаря наличию в молекулах полиэфира карбоксильной группы СООН. Примером может служить отверждение эпоксидной смолы кислой полиэфирной смолой, получаемой в результате конденсации глицерина и адипиновой кислоты (глицерин адипината). Отверждение происходит при 120-150 °С Полученная композиция обладает хорошей эластичностью, механическими и электрическими свойствами.
Эпоксидно-полиэфирные композиции применяются для изготовления электроизоляционных эпоксидно-полиэфирных лаков и компаундов.
Отверждение эпоксидных смол полиамидами происходит благодаря присутствию в молекуле полиамида активных групп NН2 и NН. Отверждение композиций происходит при 20-100°С. Эти композиции обладают хорошей эластичностью, имеют высокую ударную прочность, но невысокие диэлектрические свойства. Применяются для изготовления лаков, клеев, компаундов.
Полисульфидные смолы (тиоколы) также применяются для отверждения эпоксидных смол. Полученные композиции обладают высокой эластичностью, ударной прочностью и хорошими диэлектрическими свойствами. Применяются для изготовления эластичных заливочных компаундов.
1.4 Марки эпоксидных смол
Таблица
| Наименование | ТУ | Область применения |
| Эпоксидно-диановые смолы | ||
| ЭД-22 | ГОСТ 10587-84 (изм. № 1) |
Относительно низковязкая жидкая кристализующаяся при хранении смола универсального назначения. |
| ЭД-20 | ГОСТ 10587-84 (изм. № 1) |
Наиболее широко применяемая жидкая смола универсального назначения |
| ЭД-16 | ГОСТ 10587-84 (изм. № 1) |
Высоко вязкая смола, применяется в основном в качестве связующего для стеклопластиков. |
| ЭД-8,ЭД-10 | ГОСТ 10587-84 (изм. № 1) |
Твердые смолы, применяемые для заливочных композиций в радио- и электротехнической промышленности. |
| Эпоксидно-диановые смолы для ЛКМ | ||
| Э-40, Э-40р | ТУ 2225-154-05011907-97 | Для изготовления красок,эмалей, лаков, шпаклевок, покрытий стойких к агрессивным факторам окружающей среды и воздействию химических веществ. |
| Э-41 | ТУ 2225-595-11131-395-01 | Используется для изготовления эмалей, лаков, шпаклевок, а также заливочных композиций и клеев. |
| Эпоксидные смолы (импортные) | ||
| YD-128 | ИМПОРТ | Используется в лакокрасочной, электротехнической и радиоэлектронной промышленности, авиа-, судо- и машиностроении, а также в строительстве в качестве компонента заливочных и пропиточных компаундов, клеев, герметиков, связующих для армированных пластиков и др. Обладает высокой прозрачностью, хорошей адгезией к поверхностям различной природы, что позволяет получать высококачественные покрытия с заданными свойствами (с высокой термо- и химической стойкостью) в зависимости от природы выбранного отвердителя, а также - хорошими экологическими показателями. |
| ST-1000 | ИМПОРТ | Используется для получения композиций, обладающих высокой устойчивостью к длительному воздействию атмосферных факторов, сохраняя первоначальную окраску, структуру и физические свойства полимерного покрытия.Хорошо совмещается с различными смолами. Отверждается немного медленнее, чем эпоксидно-диановые аналоги. |
| DER 671 | ИМПОРТ | Используется в электротехнической и радиоэлектронной промышленности, авиа-, судо- и машиностроении, а также в строительстве в качестве компонента заливочных и пропиточных компаундов, клеев, герметиков, связующих для армированных пластиков. |
| Эпоксидные модифицированные смолы | ||
| КДА-2 | ТУ 2225-611-11131395-2005 (изм. № 1) | Связующие для стеклопластиков, клеев и электроизоляционных заливочных композиций. |
| К-02Т | ТУ 2257-601-11131395-01 (изм. №№1,2) | Для пропитки многослойных намоточных изделий с целью их цементации, повышения влагостойкости |
| ЭЗ-111 | ТУ 2225-560-00203521-01 | Для герметизации трансформаторов, для пропитки и заливки деталей электротехнических изделий. |
УП-563, УП-599. |
ТУ 2225-336-09201208-94 | Для изготовления эластичных пропиточно-заливочных компаундов, клеев и связующих для стеклопластиков |
| К-153 | ТУ 2225-598-11131395-01 (изм. №№1, 2,3) | Для заливочных, клеевых, герметизирующих, пропиточных и обволакивающих композиций в различных отраслях промышленности. |
К-115 К-176 К-201 |
ТУ 2225-597-11131395-01 (изм. №1) | Для пропитки, заливки, обволакивания и герметизации деталей, а также в качестве клеев, электроизоляционных заливочных композиций, изоляционных и защитных покрытий, связующих для стеклопластиков. |
| КДА | ТУ 2225-611-11131395-2005 (изм. № 1) | Используется в качестве связующих для стеклопластиков, клеев и электроизоляционных заливочных композиций. |
Эпоксидные смолы специального назначения (Отвержденные композиции на основе смол специального назначения обладают уникальными физико-механическими и технологическими свойствами, позволяющими применять их в экстремальных условиях работы и окружающей среды в различных областях промышленности и техники.) |
||
| ЭА | ТУ 2225-606-11131395-2003 (изм. №1) | Для изготовления низковязких эпоксидных компаундов, используемых в качестве заливочных, пропиточных и клеевых составов, в качестве разбавителя конструкционных связующих. |
| УП-610 | ТУ 2225-606-11131395-2003 (изм. №1) | Для изготовления высокопрочных стеклопластиков, заливочных и пропиточных композиций, клеев, специальных композиционных материалов. |
| УП-643 | ТУ 2225-605-11131395-2003 | В составе тепло- и химстойких связующих для стеклопластиков, клеев, компаундов в электротехнической промышленности. |
ЭХД (хлорсодержащая смола) |
ТУ 2225-607-11131395-2003 (изм. №1) | В качестве основы заливочных компаундов, герметиков, клеев и связующих для угле- и стеклопластиков, обладающих высокими механическими свойствами,пониженной горючестью, высокой влаго- и теплостойкостью,отличной атмосферостойкостью. |
УП-637 (смола на основе резорцина) |
ТУ 6-05-241-194-79 (изм. № 3) | Для изготовления заливочных и пропиточных композиций, клеев, связующих для конструкционных стеклопластиков. |
| УП-631 | ТУ 2225-020-00203306-96 | В качестве компонента при изготовлении самозатухающих и негорючих компаундов для пропитки, заливки, клеев, покрытий. |
Эпоксидно-модифицированные смолы марки ЭПОФОМ (эпоксидный компаунд для устройства наливных полов, покрытий, ремонта трубопроводов) |
||
| Эпофом-1,2,3 | ТУ 2225-596-11131395-2000 (изм. №1) | Используются в качестве защитных антикоррозионных покрытий металлических и бетонных строительных конструкций и емкостного оборудования от воздействия химически агрессивных сред; для устройства гидроизоляции, монолитных наливных покрытий бетонных полов; для грунтовки, выравнивания и нанесения отделочного слоя на различные поверхности; для склеивания различных материалов и получения инъекционных композиций для восстановления или усиления железобетонных конструкций. |
| Эпофом - 1с | ТУ 2225-596-11131395-2000 (изм. №1) | Используется в качестве пропиточной составляющей рукавного материала для ремонта трубопроводов канализационных сетей и напорных сетей холодного водоснабжения без их демонтажа и извлечения из грунта. |
2. Области применения
Благодаря своим уникальным свойствам эпоксидные смолы нашли широкое применение в промышленности. Наиболее характерными областями применения является их использование:
1) в качестве клеев для изготовления деталей ячеистой структуры в самолетостроении, в производстве малярных кистей и для отделочных покрытий по бетону;
2) для склеивания отдельных деталей и в качестве замазок при ремонте пластмассовых н металлических лодок, автомобилей и т. д.;
3) в качестве литьевых составов для изготовления малых серий отливок н экспериментальных отливок, штампов, шаблонов и инструментов;
4) в качестве набивочных и уплотнительных масс в строительстве зданий и шоссейных дорог, а также в тех случаях, когда требуется высокая химостойкость;
5) в качестве заливочных и герметизирующих составов, а также пропиточных смол и лаков в электротехнической и электронной промышленности;
6) в качестве слоистых пластиков, применяемых для изготовления корпусов самолетов и летательных аппаратов, для намотанных изделий и для зажимных приспособлений.
Покрытия, наносимые из растворов, используются в качестве защитных и отделочных: для отделки судов и кирпичной кладки, покрытий по стали, покрытий цистерн, самолетов, грунтовых покрытий в инструментальной и автомобильной промышленности, футеровки консервной тары и барабанов, отделки мебели и в качестве покрытий разборных трубчатых конструкций. Они применяются также в качестве красок для бетонных полов и для отделки гимнастических залов, лаков для полов и т. д.
Эпоксидные смолы находят применение также в качестве декоративных покрытий, в производстве печатных красок, для изготовления водоотталкивающих составов в текстильной промышленности, в зубопротезной и протезной промышленности, в хирургии, в нефтеперерабатывающей промышленности и для изготовления пенопластов.
Эпоксидные смолы используются в качестве добавок в производстве ряда других пластмасс, например виниловых и акриловых, натуральных и синтетических каучуков.
2.1 Эпоксидные компаунды
В зависимости от назначения эпоксидные компаунды можно разделить на три основные группы:
1) пропиточные;
2) заливочные (формовочные);
3) клеи.
Технические требования, предъявляемые к компаундам, обусловлены назначением последних. Пропиточные компаунды должны обладать следующими свойствами: малой начальной вязкостью, высокой пропитывающей способностью, малым водопоглащением, хорошей цементирующей способностью, хорошей нагревостойкостью и удовлетворительными электрическими свойствами в условиях повышенной влажности и температуры.
Заливочные компаунды должны обладать соответствующей вязкостью, обеспечивающей хорошее заполнение необходимых объемов; механической прочностью в полимеризованном состоянии, отвечающей возможным статическим и динамическим нагрузкам в условиях эксплуатации; малой водопоглащаемостью и влагопроницаемостью; высокой электрической прочностью; стабильностью электрических характеристик в рабочих условиях; нагревостойкость. и термостойкостью при циклическом изменении температур.
Требования к клеям ограничиваются высокой адгезией к тем или иным материалам, стойкостью клеевого шва в эксплуатационных условиях и скоростью отверждения.
Указанными техническими требованиями обусловлена и рецептура компаунда. Для быстрого отверждения при комнатной температуре можно применить гексаметилендиамин, полиэтиленполиамины и др. Для клеевого шва, работающего при повышенной температуре, можно применить малеиновый ангидрид, фталевый ангидрид, дициандиамид и другие отвердители, требующие нагрева для полимеризации.
2.1.1 Эпоксидные формовочные и заливочные коммпаунды
Эпоксидные формовочные компаунды существуют в основном двух типов: собственно формовочные компаунды и вязко-текучие (компаунды для капсулирования и герметизации).
Собственно формовочные компаунды аналогичны другим термореактивным компаундам, таким как фенольные и диаллилфталатные. Эти эпоксидные компаунды применяются для изготовления объемных изделий, например футляров, в жилищном строительстве и т. д.
Вязко-текучие компаунды применяются главным образом для герметизации электронных и электротехнических деталей и узлов и поэтому должны сравниваться с эпоксидными заливочными смолами.
Эпоксидные формовочные компаунды обладают рядом преимуществ перед обычными термореактивными формовочными компаундами, среди них:
1. стабильность размеров отвержденного продукта;
2. хорошая совместимость с наполнителем;
3. хорошие электрические и механические свойства, которые для правильно подобранной композиции сохраняются до 150 о С;
4. высокая химостойкость;
5. хорошая текучесть, что требует меньшие давления при литье. Меньшие давления позволяют применять менее дорогие формы с тонкими стенками.
6. отверждение проходит без выделения летучих и с малой усадкой.
Однако у эпоксидных компаундов есть и недостатки:
1. Эпоксидные формовочные компаунды дороже, чем обычные термореактивные компаунды.
2. Очень хорошая адгезия эпоксидных компаундов вносит некоторые трудности при выемке изделий из формы.
3. Эти материалы при температурах, при которых производится формовка, мягки и выталкивающая шпилька может проткнуть отливку.
4. Для предотвращения появления излишнего грата вследствие текучести компаундов форма должна быть герметичной.
5. Так как текучесть компаундов весьма сильно зависит от температуры, то требуется строгий контроль температуры.
2.1.2 Эпоксидные смолы для инструмента и приспособлений
Использование эпоксидных композиций для инструментов дает ряд преимуществ:
1) быстроту и простоту производства:
2) стабильность размеров;
3) отличные прочностные характеристики, особенно у армированных композиций;
4) небольшую массу;
5) низкую усадку при отверждении, что дает точную воспроизводимость размеров
2.1.2.1 Формы из эпоксидных смол для заливочных и формовочных компаундов
Эпоксидные инструменты с успехом применяются при изготовлении форм для литья пластмасс под вакуумом. Требования к композиции в этом случае более жесткие, чем при производстве моделей. Довольно плохая теплопроводность эпоксидов уменьшает теплоотвод и тем самым повышает качество отлитых изделий.
С другой стороны из-за плохой теплопроводности продолжительность литья увеличивается. Повысить теплопроводность можно введением в композицию металлических волокон что позволяет повысить рабочую температуру, но лучше использовать залитые в композицию медные трубки. по которым прокачивается хладагент. Эпоксидные смолы могут применяться для изготовления форм для эпоксидных и других термореактивных заливочных компаундов. Это контейнеры, в которые наливается жидкая смола и в них отверждается. Затем контейнеры или снимаются, или остаются. Из эпоксидов изготавливались формы и для полиэтилена, но вследствие их малой теплопроводности была получена низкая скорость процесса.
2.1.2.2 Эпоксидные смолы для матриц
Эпоксидные матрицы могут быть изготовлены литьем, но чаще требуются матрицы, армированные стекловолокном. Процесс начинается с нанесения разделительного слоя и декоративного слоя. Перед укладкой слоев на углы и во впадины модели кладутся жгуты (стеклянные и хлопковые волокла, пропитанные смолой). Это предотвращает появление воздуха в этих точках во время процесса выклейки. Стеклоткань можно предварительно пропитывать жидкой смолой или укладывать стеклоткань сухую и каждый слой промазывать смолой В некоторых случаях для получения более жестких систем с большим содержанием стекла матрица во время отверждения может вакуумироваться.
2.1.2.3 Системы из эпоксидных смол для штампования металла
Эпоксидные системы хотя и непригодны для режущих инструментов, но могут использоваться для штамповки металлических изделий в тех случаях, когда это позволяют прочностные характеристики эпоксида. Эпоксидные штампы могут быть отлиты или, чаще, для большей прочности, выклеены
Эпоксидные штампы используются дли штамповки изделий из латуни и других сплавов на основе меди, маркой стали, нержавеющей стали, титана и т. д. Из алюминия, например, с помощью эпоксидных штампов изготавливались изделия с толщиной 0,5 мм. Для более жестких листов и в тех случаях, когда требуется получение сложней формы, необходимо укреплять штампы металлическими вставка , так как прочность на сжатие эпоксида может быть недостаточной в местах с высокими концентрациями напряжений.
Использование эпоксидно-металлических штампов дает хорошие результаты вследствие их высоких прочностных свойств и хорошей теплопроводности.
При создании эпоксидных композиций для штамповки металлов обычно не добиваются получения высокой жесткости конструкции. Гораздо важнее прочность на сжатие Невысокая жесткость может быть компенсирована созданием надлежащего штамподержателя. В пуансонах, где важна ударная вязкость, наиболее ответственным фактором является поверхностная твердость. И для пуансона, и для матрицы в процессе штамповки требуется некоторая упругость; упругость создает плавность воздействия на штампуемый лист и помогает избежать возникновения складок на изделии. Упругость обычно создаётся облицовкой отлитого пуансона и облицовкой выклеенной матрицы.
2.1.3 Литье, заливка, капсулирование, герметизация
Можно выделить четыре метода применения эпоксидных композиций: блочная отливка, вакуумная заливка, заливка под давлением, окунание.
Блочная отливка. Она определяется как заливка на открытом воздухе при обычных условиях. Необходимо получить изделие без пустот и раковин, даже используя компаунды с небольшой вязкостью. Пузырьки образуются в компаунде, во время перемешивания, и особенно много их появляется во время заливки. Эти пузырьки могут быть полностью устранены применением нескольких приемов. Применяется тщательное перемешивание или катализаторы, позволяющие проводить отверждение при комнатной температуре, время жизни компаунда должно быть достаточно большим, чтобы можно было устранить пузырьки.
На практике нагревание почти также хорошо устраняет пузырьки, как и вакуумирование. Koгда пузырьки устранятся в достаточной степени, компаунд должен быть осторожно и медленно перелит в форму. Хорошие результаты дает нагревание самих форм. Затем залитое изделие должно быть немедленно нагрето до температуры, при которой происходит отверждение. Если эта температура выше комнатной, то будет наблюдаться быстрое уменьшение вязкости и оставшиеся пузырьки легче устранятся.
Вакуумная заливка. Вакуумная технология хороша практически для всех применений и по возможности проводится вместе с пропиткой под давлением. Определяя тот вакуум, который требуется в этом случае, надо руководствоваться задачами заполнения формы и давлением паров (парциальным давлением) компонентов эпоксидной композиции.

Рис
Некоторые реакционноспособные разбавители очень легко испаряются, и степень вакуума должна быть всегда такой, чтобы избежать улетучивания отвердителя. Следует предусмотреть ловушки для предотвращения попадания в атмосферу летучих продуктов. Они могут также загрязнять масло в насосе. Хорошо, когда низкий вакуум достаточен для того, чтобы компаунд натек в форму. Если же необходим высокий вакуум, то требуется особая осторожность в выборе эпоксидной композиции. Поэтому следует тщательно изучить вещества, входящие в композицию, прежде чем их применять. Если влажность слишком велика, то необходимо ее уменьшить сушкой или предварительным вакуумированнем. Там, где, конечно, возможно, хорошо производить заливку под вакуумом. Это устраняет пузырьки воздуха, находящиеся в компаунде и сушит компаунд.
Заливка методом окунания. Технология состоит из окунания в смолу изделий, которые требуется залить или капсулнровать. Компаунд, используемый для этих целей, должен иметь большую вязкость, чтобы он не стекал с изделий, а отвердитель должен быть таков, чтобы он мог обеспечить компаунду большое время жизни.
Заливка больших изделий или изделий, имеющих сложную форму. Когда производится заливка больших объемов, за исключением литья сильнонаполненными композициями, то существует опасность образования трещин. Изменение температуры по объему и местная усадка создают очень высокие напряжения во время отверждения. Высокая энергия экзотермической реакции создает условия для большой летучести отвердителя и модификаторов, что в свою очередь является причиной образования пузырьков. Лучшими отвердителями для больших отливок являются ангидриды и эпоксидно-фенольные смеси, так как они обладают меньшей энергией реакции.
Для уменьшения критических параметров хорошо применять наполнители и пластификаторы. Во многих случаях наиболее рациональным решением является заливка по стадиям; по этому методу большие заливки формируются из отдельных слоев компаундов, причем каждый последующий слой накладывается после отверждения или по крайней мере после процесса гелеобразовання в предыдущем.
Заливка композициями с большим содержанием наполнителей. Для некоторых целей, возможно, использовать маловязкие композиции и работать с ними при повышенных температурах. В этом случае нужно вводить большое количество наполнителей. Иногда возможно готовить такие композиции без существенного увеличения вязкости. Эту технологию полезно применять для заливки или капсулирования изделий, требующих хорошей пропитки и высоконаполненной оболочки. Лучше, чем проведение этого процесса в две стадии, является метод, по которому изделие покрывается сухим наполнителем и затем все вместе пропитывается ненаполненной композицией. В этом случае вакуум при пропитке должен быть ниже 1 мм рт ст.
2.1.4 Стеклопластики на основе эпоксидных смол
Эпоксидные смолы применяются в качестве связующих в производстве стеклопластиков. Они обладают хорошей адгезией к стекловолокну, могут отверждаться на холоду, не дают усадки при отверждении. Это позволяет получать на их основе высокопрочные стеклопластики. Для их формирования достаточно лишь контактного давления. На свойства стеклопластиков большое влияние оказывает вид отвердителя.
Таблица
| Отвердитель | Предел прочности при растяжении, кгс/см2 | Удельная ударная вязкость | Водопоглащение, % |
| Гексаметилендиаминг | 3000-3800 | 80-100 | 0,75 |
| Полиэтиленполиамины | 3000-3600 | 70-80 | 0,5 |
| Малеиновый ангидрид | 2700-3000 | 70-100 | 1,5 |
Действие высоких температур (200-250о ) в значительной мере влияет на свойства стеклопластиков. Для увеличения их температуроустойчивости используют модификацию эпоксидных смол. Хорошие результаты получают при модификации фенолоформальдегидными резольными смолами. Потеря прочности при повышенных температурах равна 30-50%.
Композиции на основе стекла и эпоксидной смолы дают механические свойства, лучшие в сравнении с полиэфирными смолами, электрические свойства, лучшие в сравнении с фенольнымн смолами, а влагостойкость, стойкость к усталостным нагрузкам и прочность при межслоевом сдвиге лучшие, чем у полиэфирных и фенольных смол. Лучшая прочность при высокой температуре получается со специальными фенольными и кремнийорганическими рецептурами.
Свойства стеклоэпоксидных композиций могут изменяться в довольно широких пределах с помощью выбора смолы, отвердителя и модификатора. Из-за многосторонности их свойств и очень хороших характеристик композиции на основе стекла и эпоксидной смолы находят широкое применение в военной и гражданской технике.
2.1.5 Клеи на основе эпоксидных смол
Эпоксидные клея обладают следующими преимуществами:
1. Могут склеивать разнородные материалы и тем самым устраняется гальваническая коррозия.
2. Отверждение может проводиться при невысоки температурах, чаще всего при комнатной.
3. Может быть получено хорошее склеивание матерналов, плохо поддающихся склеиванию, например стекол.
4. Чаще всего отверждение проводится без приложения давления, так как во время отверждения почти не выделяется летучих веществ.
5. Могут быть получены герметичные я химостойкие соединения.
6. Прочность клеевого слоя в довольно широких пределах не зависит от его толщины.
Кроме довольно высокой стоимости и трудностей производства у эпоксидных клеев имеются следующие недостатки:
1. Для получения хорошего склеивания требуется тщательная подготовка поверхности.
2. Для получения высокой прочности требуется хорошая конструкция соединения.
3. Ударная вязкость невысока, особенно у материалов, предназначенных для работы при повышенных температурах.
Эпоксидные композиции могут нспользоваться для склеивания металлов, разнородных материалов и пористых конструкций
Эпоксидные клеи в ряде специальных отраслей промышленности используются для приклеивания металла к пластмассе, чаще всего полиэфирных или фенольных пластмасс к алюминию или стали. Количество материалов, которые склеиваются, весьма значительно. Так, например, одной и той же композицией можно склеить между собой полиэфирную пленку, алюминий, медь, железо, магниевые сплавы, медную проволоку, изолированную пластмассой, резину и посеребренную бронзу.
Существует ряд применений эпоксидных клеев в авиационной и космической технике, наиболее распространенным из которых является склеивание разнородных материалов, например склеивание солнечных батарей на спутниках или приклеивание медной фольги к фенольной пластмассе для изготовления печатных схем.
Кроме этого, эпоксидные смолы используются довольно широко для укрепления драгоценных камней в оправах.
Эпоксидные клеи могут использоваться для связки практически любого типа наполнителя, причем количество эпоксида в этом случае в получающемся материале крайне незначительно, эпоксид идет только на покрытие частичек наполнителя и связывает их прочно в точках соприкосновении. В качестве связующего опилок они используются для изготовления скульптур и барельефов. Можно получить декоративные пористые композиции, используя эпоксиды для связки морской гальки.
Эпоксидные композиции, обычно используемые в качестве растворов, могут применяться в качестве грунтов для создания хорошей адгезии внешнего покрытия к изделию или для увеличения коррозионной стойкости. Типичным применением такого плана является создание грунтового покрытия на старой алкидной краске перед нанесением нового слоя той же краски.
Такие эпоксидные грунты используются и для создания промежуточных покрытий на бетоне для того, чтобы новые слои бетона хорошо сцеплялись со старым бетоном.
Эпоксидные смолы имеют хорошую адгезию ко всем термореактивным пластмассам, кроме кремнийорганических, и к большинству термопластичных, кроме полиолефинов, фторопластов а некоторых пластифицированных венилов.
Эпоксиды широко используются для склейки полиэфирных слоистых пластиков, например при производстве баков для горючего в военных самолетах и для ремонта судов, изготовленных из полиэфирных стеклопластиков. Специальные клеи используются для приклейки фторопластовых прокладок, для приклейки найлонофенольных покрытий головок реактивных снарядов и т. д. Были разработаны стойкие к воздействию горячего пара клеи для склейки целлофана.
Эпоксидные клеи могут иметь хорошую адгезию к стеклу и дают возможность изготавливать эпоксидные стеклопластики.
Эпоксидные смолы в качестве клеевых композиций могут применяться для многих целей и в разных видах: в виде жидкостей холодного отверждения, в виде жидкостей горячего отверждения; в виде однокомпонентной жидкости горячего отверждения; в виде порошков и лент. Эпоксидные клен кашли широкое применение для склеивания металлов в самолето- и ракетостроении.
Эпоксидные клен — это высокопрочные компаунды, и вследствие этого они требуют более тщательной подготовки склеиваемых поверхностей, чем другие менее прочные материалы. Кроме того, так как они обладают малой прочностью на неравномерный отрыв, для получения наилучших результатов место соединения надо делать таким образом, чтобы напряжение распределялось по поверхности всего клеевого слоя.
Эпоксидные клеи холодного отверждения способны работать при температуре не выше 100 °С. Клеи горячего отверждения при повышенных температурах обладают лучшими свойствами, и поэтому нашли более широкое применение. Нагревостойкие клеевые композиции применяются в основном в авиационной промышленности и космической технике; технология их применения может быть очень специфичной для каждого отдельного случая.
В эпоксидную клеевую композицию, состоящую из эпоксидкой смолы и отвердителя, могут вводиться пластификаторы и наполнители.
Введение пластификаторов увеличивает прочность клеевого соединения на неравномерный отрыв и ударную вязкость, но уменьшает его нагревостойкость. Наполнители служат для уменьшения температурного расширения композиции, снижения ее стоимости и уменьшения усадки. Наполнители и пластификаторы различных типов содержатся фактически во всех эпоксидных клеевых композициях.
2.1.6 Марки эпоксидных композиций
Таблица
| Наименование | ТУ | Область применения |
| Эпоксидные композиции | ||
| ХТ-501 | ТУ 2257-641-11131395-2010 | Заливочный материал в конусных дробилках для заполнения технологических полостей между неподвижной броней и корпусом дробилок, а также - броней дробящего конуса и корпусом конуса. |
| ХТ-104 | ТУ 2257-655-11131395-2008 | Обеспыливающее покрытия по бетону; защитный грунт (праймер) для поверхности металла, бетона и дерева; грунт под полимочевинное покрытие (например, ХТ-2002); компонент эпоксидных наливных полов |
| ХТ-902 | ТУ 2257-650-11131395-2008 | Компонент лакокрасочных эпоксидных материалов; обеспыливающего покрытия по бетону; обеспыливающего покрытия по бетону; грунт (праймер) для поверхности из металла и бетона |
| ХТ-116 | ТУ 2257-622-11131395-2007 | Связующее для формования изделий из стеклопластика и заливки форм (декоративные изделия);компонент составов для получения защитных покрытий по металлу, бетону и дереву |
| ХТ-116 | ТУ 2257-622-11131395-2007 | Связующее для формования изделий из стеклопластика и заливки форм (декоративные изделия);компонент составов для получения защитных покрытий по металлу, бетону и дереву |
| ХТ-155 | ТУ 2257-643-11131395-2007 | Связующее для формования изделий из стеклопластика; заливка электротехнических изделий и форм |
ХТ-155А/ ХТ-152Б |
ТУ 2257-643-11131395-2007 | Заливочная композиция для форм и электротехнических изделий; связующее для изделий из стеклопластика |
| ХТ-161/ХТ-444 | ТУ 2225-631-11131395-2007 | Связующее для облицовочных и декоративных плит, ламинирования изделий из стеклопластика; |
| ХТ-118А/ХТ-489 | ТУ 2257-614-11131395-2006 | Связующее для ручного формования и ламинирования изделий из стеклопластика; компонент составов для получения химстойких антикоррозионных покрытий |
| ХТ-118 | ТУ 2257-614-11131395-2006 | Низкоэкзотермичный заливочный компаунд; компонент наливных полов |
| Эпоксидные строительные материалы | ||
| Химически стойкие эпоксидные материалы серии ХТ-500 для защиты бетонных и железобетонных изделий и сооружений от агрессивных сред. | ||
| ХТ-521 | ТУ 2257-681-11131395-2010 | Предназначена для затирки швов всех видов керамической облицовки, мозаики и природного камня на стенах и полах при отделке бытовых и промышленных помещений, лабораторий и цехов химических предприятий, сельскохозяйственных объектов. Рекомендуется для применения в цехах промышленных предприятий, имеющих высокие механические нагрузки на полы. Пригодна для внутренних и наружных работ. |
| ХТ-527/1,2,3 | ТУ 2257-681-11131395-2010 | Защита бетонных конструкций от агрессивных сред в цехах химических предприятий, а так же укрепление и усиление конструкций посредством оклейки изделий стеклотканью и другими материалами. Пропиточный клей для холстов из углеродных волокон. Применяется для сухих поверхностей, позволяет варьировать время жизни от 1 до 6ч |
| ХТ-528/1,2,3 | ТУ 2257-681-11131395-2010 | Защита бетонных конструкций от агрессивных сред в цехах химических предприятий. Грунтовка поверхностей железобетонных конструкций перед их оклейкой стеклотканью с целью усиления. Фиксация закладных металлических деталей в гнездах с не большими допусками. Наклейка поверхностной арматуры. Применяется для сухих поверхностей, позволяет варьировать время жизни от 1 до 6ч. |
2.2 Пенопласты из эпоксидных смол
Пенопласты из эпоксидных смол характеризуются хорошей силой сцепления, низкой влаговодопоглощаемостью, хорошей стабильностью размеров, хорошей нагревостойкостью и особенно хорошей химостойкостью. Свойства жестких и полужестких пен, менее густых, находятся на том же уровне, что и для композиций из полиуретана. Эпоксидные смолы имеют ряд преимуществ, такие как повышенная водостойкость, способность противостоять высоким температурам и длительно работать при них. Но так как существующие более дешевые пены имеют свойства, вполне удовлетворяющие большинству промышленных требований, то вследствие крайних трудностей, заключающихся в создании эластичной эпоксидной системы, то пены из эпоксидных смол не завоевали широкого применения, и используются только для специальных целей.
Эпоксидные пены низкой вязкости нашли широкое применение как заливочный компаунд дли электронного оборудования. Эпоксидные пены большой вязкости используются как объемные опоры, часто они применяются совместно со слоистыми пластиками, создавая многослойную конструкцию. Они могут быть также использованы как теплоизоляционные покрытия.
Вследствие низкой водопоглощаемости эпоксидные пенопласты находят применение в оборудовании для рыболовных судов, в строительстве других больших судов и для замедления испарений нефтепродуктов в танкерах. Их использование для звукоизоляции менее успешно, чем пенопластов с более открытыми ячейками, вследствие одноклеточной структуры последних. Существует два типа пенопластов — химические и синтактические. Химические пенопласты производятся продуванием газа во время химической реакции в течение отверждения. Синтактические пены получаются добавлением наполнителей в систему.
2.2.1 Химические пенопласты
Эпоксидная смола может быть превращена в пену во время процесса отверждения, если в ней присутствует некоторый элемент, выделяющий газ или пар при температуре, предшествующей гелеобразованию.
Отверждающий агент может сам реагировать таким образом, что будет выделять газ. Примерами такого типа отвердителей являются амины боранов, такие как демителборан, пиридин борана, метиловый эфир борана, акнднитовая кислота и замещенный фосфатоборогидрид. Могут быть добавлены компаунды, которые, реагируя с отвердителямн, выделяют газ, например, N,N'-динитросо-N,N'-диметил терефталатамид будет реагировать с отвердителем — жирным полиамидом с выделением азота в течение отверждения, и перекись водорода будет образовывать пены преимущественно с отвердителями-аминами.
Газы, имеющие высокую температуру кипения (например, фреон), могут быть добавлены в композицию под повышенным давлением и впоследствии высвобождены. Низкокипящие жидкости могут быть дополнены испарением при нагревании. Наполнители могут применяться те, которые содержат достаточно влаги и воздушных включений, вместе с возможно реакционноспособными частями, в таком случае может быть получена пена.
Физические свойства эпоксидных химических пенопластов могут изменяться в зависимости от отвердителя, особенно для улучшения нагревостойкости или ударной вязкости. Кроме того, свойства вспениваемого продукта сильно зависят от плотности самой пены.
Прочность при сжатии для твердых пенопластов при комнатной температуре изменяется от 4,2 кгс/см2 три плотности 0,08 г/см3 примерно до 77 кгс/см2 при плотности 0,33 г/см3 . Зависимость в этом диапазоне очень близка к линейной. Для твердых пенопластов с плотностью 0,08 г/см2 модуль упругости составляет 175 кгс/см2 , в то время как для пенопластов с плотностью 0,12 г/см2 он составляет 190 кгс/см2 . Прочность при растяжении для твердых (пенопластов составляет 3,5 кгс/см2 при плотности в 0,08 г/см3 и около 35 кгс/см2 при плотности в 0,3 г/см2 . Нагревостойкость эпоксидных пенопластов в большой степени зависит и от выбранного отвердителя, и от плотности пенопласта.
Блоки эпоксидных пенопластов могут быть сжаты при повышенной температуре и затем охлаждены под давлением. Они сохранят эту сжатую форму, пока не будут нагреты вторично. Таким образом, они могут работать в сжатом виде и затем расшириться под действием нагревания.
Электрические свойства пенопласта, подобно физическим свойствам, зависят от плотности. При малой плотности ε имеет очень низкие значения, так как объем главным образом занят воздухом с ε=1. С повышением плотности пенопласта ε увеличивается, так как увеличивается количество эпоксидной смолы в единице объема.
Теплоизоляционные свойства эпоксидных пенопластов очень высокие и приближаются к свойствам воздуха для пенопластов с низкой плотностью и к свойствам эпоксидной смолы для пенопластов с высокой плотностью,
Низкая первоначальная теплопроводность зависит от размеров ячеек и плотности. Когда требуется обеспечить рассеяние тепла, то иногда целесообразно вводить металлические включения, чтобы создать пути потоку тепла. Химостойкость падает прямолинейно по сравнению с невспененной композицией.
2.2.2 Синтактические пенопласты
Второй способ производства эпоксидных пенопластов состоит в использовании микроскопических полых сфер, получаемых из органических или неорганических материалов Органические полые сферы обычно изготавливают из фенольных, мочевнно-формальдегидных или полиэфирных смол. Эти смолы наполнены инертным газом, таким как азот (в случае фенольных сфер), а также фреон или пентан (в случае полиэфирных сфер). Неорганические материалы обычно основываются на основе силиката алюминия или стекла. Применение органических сфер (или микрошариков) ограничено рабочей температурой, т. е. нагревостойкостью органических смол, используемых в их производстве. Использование неорганических же не ограничено, по крайней мере в тех пределах, где используются эпокснды. Неорганические материалы создают более жесткие системы с лучшими прочностными характеристиками, в то время как органические материалы дают меньшую плотность. Технологические характеристики органических и неорганических материалов схожи, и поэтому будет удобно обсуждать их вместе. Для полиэфирных микрошарнков, однако, требуется отдельная обработка, так как эти материалы в отличие от остальных могут расширяться далее в течение реакции отверждения.
Когда микрошарики входят как наполнители, объем этих шариков будет определять плотность отвержденного продукта.
При малых общих объемах шариков композиции могут получиться настолько жидкие, что могут течь, хотя для этих объемов снижение плотности не страшно.
Для создания пенопластов прямо на месте используют загрузку микрошариков в большом количестве. Загрузочные объемы таких пенопластов довольно велики и они обычно уплотняются на месте под значительным давлением. Сначала добавляется отвердитель, смесь перемешивается и потом добавляются фенольные шарики. Результирующий продукт — густая замазка. Вообще говоря, большие загрузочные объемы могут быть получены смешиванием шариков с размельченными частицами смолы. Дегазация системы пустотелых шариков, когда это требуется, довольно сложная вещь. Был предложен метод, заключающийся в вибрации смеси в тонкой пленке и пропускании потока горячего воздуха вдоль поверхности, чтобы разрушить пузырьки.
Так же как с химическими пенопластами, могут применяться металлические наполнители, смолистые модификаторы.
2.3 Покрытия эпоксидными порошками
Технология применения эпоксидных порошков может быть различной: распыление, разбрызгивание, в виде хлопьев, в псевдожидком слое, в камере в виде тумана.
При производстве имеют большое значение следующие факторы: температура предварительного нагрева, положение сопла, давление воздуха через сопло и скорость подачи.
Наиболее широко применяют покрытия в псевдожидком слое.
При покрытии в движущемся слое порошкообразная смесь суспендируется в газовой среде и затем наносится на изделие, нагретое выше температуры плавления смеси. Порошкообразная смола плавится на поверхности изделия, затем изделие перемещается.
При использовании термопластичных смол изделие охлаждается до комнатной температуры, при использовании термореактивных смол требуется последующее отверждение.
Покрытия в псевдожидком слое обладают рядом преимуществ перед обычными покрытиями окунанием и распылением:
1. Порошок не содержит растворителя, такие покрытия обладают лучшими свойствами, чем покрытия, содержащие растворитель.
2. Композиции для покрытий в псевдожидком слое могут составляться так, что можно получить высокие электроизоляционные свойства даже при высоких температурах
3. Покрытия обладают высокой влагостойкостью и химостойкостью.
4. Эпоксидные покрытия экономичны с точки зрения материала, так как не требуется растворителей и отходы минимальны.
5. Эпоксидное покрытие в псевдожидком слое дает хорошие результаты на изделиях сложной формы и хорошо покрывает даже ребра и острия.
6. Стоимость покрытия в псевдожидком слое составляет от 0,5 до 2/3 стоимости покрытия распылением. Особенно существен выигрыш, когда одним слоем покрытая в псевдожидком слое можно заменить несколько слоев покрытия распылением.
Наряду с преимуществами покрытие в псевдожидком слое обладает некоторыми недостатками:
1. Эпоксидные порошки для покрытий в псевдожидком слое довольно дороги. Частички порошка имеют крайне малые размеры, что затрудняет их применение. Кроме того, большая площадь поверхности затрудняет предохранение от влаги.
2. Пленки малой толщины (тоньше 0,2 мм) трудно получить. Правда, используя электростатическое осаждение, можно получать покрытия еще тоньше.
3. Разнообразие композиций ограничено требованиями применения эпоксидных смол, порошки из которых не слипаются.
4. При нанесении покрытий большой толщины трудно получить достаточные эластичность и ударную вязкость, так кА эти две характеристики зависят от толщины покрытия.
5. Технология нанесения покрытия в псевдожидком слое экономична для изделий небольших размеров, для больших изделий более пригодна технология нанесения покрытий распылением.
6. Для получения хорошего покрытия требуется тщательный контроль технологических параметров, а количество этих параметров значительно.
Нанесение покрытия в псевдожидком слое применяется для получения изоляционных слоев на выводах двигателей и для получения защитных (антикоррозионных) покрытий на небольших изделиях.
3. Технология герметизации эпоксидными компаундами
Насосы погружные «Малыш» предназначены для забора воды из колодцев и скважин с условным проходом более 100 мм.
o Номинальное напряжение: 220 В, 50 Гц.
o Номинальная сила тока: 3,7 А.
o Объемная подача воды с глубины 40 м: 432 л/ч.
o Габаритные размеры: 99×260 мм. Масса: 3,5 кг.
Для предохранения от попадания воды необходимо герметизация электрической схемы. Для этого в полость насоса вводится эпоксидный компаунд.
3.1 Характеристика сырья
1. Эпоксидная смола – ЭД-20 (ГОСТ 10587-84)
Эпоксидная смола ЭД-20 представляет собой жидкий реакционноспособный олигомерный продукт на основе диглицидилового эфира дифенилолпропана.
Неотвержденная диановая эпоксидная смола ЭД-20 может быть переведена в неплавкое и нерастворимое состояние действием отверждающих агентов (отведителей) различного типа - алифатических и ароматических ди- и полиаминов, низкомолекулярных полиамидов, ди- и поликарбоновых кислот и их ангидридов, фенолформальдегидных смол и др. соединений. В зависимости от применяемого отвердителя свойства отвержденной эпоксидной смолы ЭД-20 могут изменяться в самых широких пределах. ЭД-20 используется в промышленности в чистом виде, или в качестве компонентов композиционных материалов - заливочных и пропиточных компаундов, клеев, герметиков, связующих для армированных пластиков, защитных покрытий.
Таблица. Показатели качества
| Наименование показателя | Высший сорт | Первый сорт | Метод испытания |
| Внешний вид | Вязкая прозрачная | Вязкая прозрачная | По п. 4.2 |
| Цвет по железокобальтовой шкале, не более | 3 | 8 | По п. 4.3 |
| Массовая доля эпоксидных групп, % | 20,0-22,5 | 20,0-22,5 | По ГОСТ 12497-78 и п. 4.4 настоящего стандарта |
| Массовая доля иона хлора, %, не более | 0,001 | 0,005 | По ГОСТ 22457-77 и п. 4.5 настоящего стандарта |
| Массовая доля омыляемого хлора, %, не более | 0,3 | 0,8 | То же |
| Массовая доля гидроксильных групп, %, не более | 1,7 | - | По ГОСТ 17555-72 и п. 4.6 настоящего стандарта |
| Массовая доля летучих веществ, %, не более | 0,2 | 0,8 | По ГОСТ 22456-77 и п. 4.7 настоящего стандарта |
Динамическая вязкость, Па×с, при: (25 ± 0,1) °С (50 ± 0,1) °С |
13-20 - |
12-25 - |
По п. 4.8 |
| Температура размягчения по методу «кольцо и шар», °С, не выше | - | - | По ГОСТ 11506-73 |
| Время желатинизации, ч, не менее | 8,0 | 4,0 | По п. 4.9 |
Условия хранения
Смолу ЭД-20 хранят в плотно закрытой таре в закрытых складских помещениях при температуре не выше 40°С.
2. Наполнитель – кварцевая мука
Показатели качества
Таблица
| Характеристика | Норма |
| Окись кремния, %, не менее | 98,5 |
| Окись алюминия, %, не более | 0,4 |
| Окись железа, %, не более | 0,045 |
| Окись титана, %, не более | - |
| Окись кальция, %, не более | 0,1 |
| Содержание глинистых, %, не более | - |
Остаток на сите с сеткой, %, не более № 02 (200 мкр) № 014 (140 мкр) № 008 (80 мкр) № 005 (50 мкр) |
- - 6,5 - |
| Влажность, %, не более | 0,2 |
| Удельный вес, кг/м. куб. | 2600 |
| Насыпной вес, кг/м. куб. | 1300 |
3. Отвердитель – полиметилполиамин
Техническая характеристика
Внешний вид – жидкость от светло-желтого до темно-бурого цвета без механических включений. Допускается зеленоватая окраска продукта.
Таблица
| Характеристика | Норма |
| Массовая доля общего азота, %, не менее | 30 |
| Наличие хлор-иона | - |
| Массовая доля минеральных примесей, %, не более | 0.2 |
| Массовая доля третичных аминогрупп, %, в пределах | 5 - 9 |
| Массовая доля воды, %, не более | 2 |
| Массовая доля азота, титруемого кислотой, %, в пределах | 19,5 – 22,0 |
| Отверждающая способность, час., не более | 1,5 |
Условия хранения
ПЭПА должны храниться в плотно закрытой таре в закрытых складских помещениях при температуре окружающей среды. При замерзании бочки и цистерны с продуктом нужно разогреть в отапливаемых помещениях до полного оттаивания. Температура ПЭПА после разогрева не должна превышать +25 о С. Не допускается разогрев паром.
Не допускается совместное хранение с окислителями, кислотами, эпихлоргидрином.
4. Растворитель – метиленхлорид
Внешний вид – бесцветная прозрачная жидкость без механических примесей
Таблица. Техническая характеристика
| Характеристика | Высший сорт | Первый сорт |
| Плотность при 20 °С, г/см3 не более | 1,324 - 1,328 | 1,324 - 1,329 |
| Массовая доля воды, %, не более | 0,05 | 0,05 |
| Массовая доля железа, %, не более | 0,0001 | 0,0003 |
| Массовая доля хлористого метилена, %, не менее | 99,7 | 98,8 |
Массовая доля хлорорганических примесей, %, не более в т. ч. массовая доля хлороформа, %, не более |
0,23 0,2 |
1,10 0,8 |
Условия хранения
Метиленхлорид хранят в стальных герметичных резервуарах, в стальных бочках – в неотапливаемых складских помещениях или под навесом.
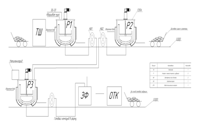
3.2 Описание принципа работы линии
Заливочные компаунды, как правило, состоят из 3-4 компонентов – смолы, отвердителя и наполнителя или смолы, отвердителя и наполнителя и пластификатора. Компаунд необходимо изготовлять непосредственно перед применением. Смола или ее смесь с пластификатором и наполнителем, но без отвердителя, могут сохраняться долго, не теряя своих свойств.
Таблица
| № операции | Наименование | Назначение | Содержание технологической операции |
| 1 | Сушка смолы и наполнителя | Удаление воздуха и влаги | а) В термошкафу смола нагревается до температуры 120 – 160о С до прекращения вспенивания и выделения газовых пузырей и вводится в реактор №1. б) Наполнитель нагревается до температуры смолы в термошкафу |
| 2 | Введение наполнителя в смолу | Подготовка смеси к введению отвердителя | При непрерывном перемешивании наполнитель вводится в смолу, находящуюся в реакторе №1 |
| 3 | Термостатирование отвердителя | Подготовка отвердителя | Отвердитель термостатируется в реакторе №2 при температуре 30о С |
| 4 | Введение отвердителя | Получение компаунда | а) Разогретая смесь смолы и наполнителя охлаждается до заданной рабочей температуры 30о С и с помощью насоса-дозатора НШ1 вводится в реактор №3 б) Жидкий отвердитель насосом НШ2 вносится в реактор №3 в охлажденную смесь смолы и наполнителя и осторожно тщательно перемешивается, после чего компаунд готов к употреблению. |
Полученный компаунд заливается через отверстие в крышке в полость электрической части насоса, предварительно вакуумированной, при температуре 30о С и выдерживается 2 часа при температурах до 120о С до полного отверждения. Реактор №3 после удаления компаунда промывается растворителем – метиленхлоридом, после чего загружается снова.

Рис
В отделе технического контроля проверяется качество изоляции. Для этого насос подсоединяется к сети и проводится измерение напряжения на его корпусе.
3.3 Выбор оборудования
Реактор с якорной мешалкой и рубашкой:
Предназначен для проведения в агрессивных жидкостях различных химических процессов с подогревом или охлаждением и перемешиванием различных жидких сред с динамической вязкостью не более 7Па, с плотностью не более 2000 кг/м3.
Рабочая среда в корпусе аппарата – нейтральная, пожароопасная, взрывоопасная или токсическая жидкость, эмульсия, газожидкостная смесь или суспензия с массовой долей твердой фазы не более 30%.
Рабочая среда в рубашке – водопроводная вода или оборотная вода, рассол, конденсат, насыщенный водяной пар или высокотемпературный органический теплоноситель с температурой от минус 30 до плюс 300 °С. Уплотнение сальниковое или торцовое (для особо токсичных сред).
Таблица. Технологические параметры:
| Условное обозначение | Объем ном., м3 |
Внутр. или наруж. диаметр корпуса, мм |
Габаритные размеры, мм | Масса, кг | Якорная мешалка | |||
| Длина | Ширина | Высота | Мощность двигателя, кВт | Частота вращения мешалки, об/мин | ||||
| Аппарат СЕон 0,025 | 0,025 | 350 | 520 | 450 | 600 | 200 | 0,75 | 100 |
Комплектуется вентилем с удлиненным следом, который позволяет полностью устранить застойную зону в штуцере нижнего выпуска.
Давление в корпусе – до 0,6 МПа
Комплектуется электрооборудованием в нормальном и взрывозащищенном исполнении.
Шестеренный насос-дозатор: 21НШ-10

Рис
Таблица. Технические характеристики
| Показатель | Значение |
| Рабочий объём | 10 см3 |
| Номинальное давление | 16 МПа |
| Кинематическая вязкость рабочей жидкости | 55-70 мм2 /с |
| Номинальная мощность, не более | 8,4 кВт |
| Масса | 2,35 кг |
Термошкаф:СМ 50/250-250-ШС
Предназначен для термической сушки сырья и материалов. Точность поддержания температуры ±5°С.

Рис
Таблица. Технические характеристики
| Объем, л | 250 |
| Размеры рабочей камеры ШхВхГ, мм | 650х650х600 |
| Неравномерность температуры по объему в установившемся тепловом режиме не хуже, °С | ±5 |
| Номинальная мощность не более, кВт | 2,0 |
| Время разогрева до максимальной температуры не более, мин | 90 |
| Нагрузка на полку, не более кг | 50 |
| Габаритные размеры, мм | 700х750х650 |
| Пожарный датчик | Да |
| Датчик температуры | Термопара |
| Масса не более, кг | 120 |
| Напряжение питающей сети, В | 380 |
Заключение
Из всего выше сказанного можно сделать вывод, что композиции на основе эпоксидных смол обладают отличными свойствами, такими как:
o высокая адгезия к металлам, полярным пластмассам, стеклу и керамике; высокие диэлектрические свойства;
o высокая механическая прочность;
o хорошая химостойкость, водостойкость, атмосферостойкость;
o радиопрозрачность;
o отсутствие летучих продуктов отверждения
o малая усадка.
Вследствие чего находят широкое применение в промышленности. Они могут перерабатываться различными методами, а именно: литье, заливка, герметизация, формование. Используются, для изготовления слоистых пластиков, в качестве клеев, покрытий.
В связи с высокими диэлектрическими свойствами эпоксидные компаунды находят широкое применение в качестве пропиточных составов для высоковольтной изоляции, в качестве герметика для заливки плат, устройств и приборов.
Также эпоксидные смолы используются в:
o текстильной промышленности;
o лакокрасочной промышленности;
o зубопротезной и протезной промышленности;
o нефтеперерабатывающей промышленности;
o авиа-и ракетостроении;
o машиностроении;
o судостроении;
o в качестве декоративных покрытий.
Список использованной литературы
1. Ли Х., Невилл К. Справочное руководство по эпоксидным смолам. Пер. с англ. / Под ред. Н.В. Александрова – М.: Энергия, 1973 – 416с.
2. Омельченко С.И. Эпоксидные смолы – Киев: Государственное издательство технической литературы, 1962 – 104 с.
3. Черняк К.И. Эпоксидные компаунды и их применение – Л.: Судпромгиз, 1963 – 258с.
4. Воробьев А. Эпоксидные смолы // Компоненты и технологии – 2003 – №8
5. Материалы сайта компании ХИМЭКС Лимитед –
6. Е.С. Ананьева, Л.Г. Полукеева, М.С. Чилизубова, А.В. Ишков Технологические характеристики пропиточных составов на основе эпоксидианового связующего и полиметилен-n-трифенилбората при изготовлении стеклопластиковых препрегов // Интернет-ресурс: http://all-epoxy.ru/tablizi/urow1/statia06.htm
Приложение
Технологическая схема линии герметизации эпоксидным компаундом
Похожие рефераты:
Безкорпусная герметизация полупроводниковых приборов
Структура и адгезионные свойства отверждённых эпоксидных смол
Электротехнические материалы и их свойства
Нанесение и получение металлических покрытий химическим способом
Композиционные триботехнические материалы на основе олигомеров сшивающихся смол
Поиск оптимального содержания пигмента в покрытиях на основе алкидного лака ПФ-060
Анализ методов улучшения жидкостекольных смесей
Гофрокартон и особенности его производства
Методы защиты от коррозии металлов и сплавов







