| Скачать .docx |
Реферат: Расчет уставок релейной защиты
СОДЕРЖАНИЕ
Введение 2
1. ОБЩАЯ ЧАСТЬ
1.1. Характеристика объекта и потребителей электроэнергии 3
1.2. Исходные данные электроприемников 3
2. СПЕЦИАЛЬНАЯ ЧАСТЬ
2.1. Расчет электрических нагрузок 4
2.2. Выбор типа камер КСО-298 6
2.3. Конструкция камер КСО-298 6
2.4. Расчет токов короткого замыкания 10
2.5. Расчет и выбор защит подстанции 13
2.6 Что такое система релейной защиты и автоматики (РЗА). 14
2.6.1 Главные преимущества микропроцессорных систем
защиты и управления: 14
2.6.2 Краткие характеристики устройств cерии SPAC 15
2.6.3 Серия устройств микропроцессорной релейной защиты Мрзс-05 16
2.6.4 Краткие характеристики устройств cерии MiCOM18
2.6.5 Выбот релейной защиты 21
2.7 Выбор марок и сечений кабелей 22
2.8 Описание принципиальной однолинейной схемы 23
Список литературы
ВВЕДЕНИЕ
Системой электроснабжения (СЭС) называют комплекс устройств для производства, передачи и распределения электрической энергии.
Системы электроснабжения промышленных предприятий обеспечивают электрической энергией промышленные потребители. Основными потребителями являются электроприводы различных машин и механизмов, электрическое освещение, электрические нагревательные устройства.
Работа приёмников электроэнергии зависит от её качества. Качество электроэнергии и, в частности, например, отклонение напряжения вызывает изменение скорости движения электроприводов, что в свою очередь вызывает уменьшение или увеличение производительности промышленных механизмов. При больших отклонениях скорости механизмов возможен брак выпускаемого продукта, снижение количества продукта и даже полное прекращение его производства.
Главными показателями работы СЭС являются надёжность и бесперебойность электроснабжения. Для предотвращения аварий в системе электроснабжения используется комплекс автоматических устройств, среди которых первостепенное значение имеют устройства релейной защиты и автоматики (РЗА). Использование современных систем РЗА совместно с быстродействующими выключателями позволяет сократить время аварийного режима, снизить возможные повреждения и сократить время на последующее восстановление нормального электроснабжения.
Темой дипломного проекта является «Распределительное устройство 6 кВ».
Целью данной работы является решение ряда вопросов, связанных с проектированием распределительного устройства:
-обеспечение надёжного и бесперебойного питания электроустановок
-обеспечение минимума затрат на монтаж и эксплуатацию электрооборудования
-обеспечение электробезопасности
-расчет нагрузок
-расчет токов короткого замыкания
-выбор электрооборудования
-построение принципиальной однолинейной схемы
-выполнение дипломного проекта в соответствии с требованиями ПУЭ.
1. ОБЩАЯ ЧАСТЬ
1.1. Характеристика объекта и потребителей электроэнергии
Распределительным устройством (РУ) называется электроустановка, предназначенная для приёма и распределения энергии на одном напряжении без преобразования и трансформации, содержащая коммутационные аппараты, устройства измерения защиты и автоматики.
РУ 6 кВ проектируется для питания картонно бумажного цеха №2 предприятия ООО «Пермский картон». Электроприемники РУ 6 кВ относятся ко второй категории надежности электроснабжения. В эту группу входят электроприемники, перерыв в электроснабжении которых может привести к массовому недоотпуску продукции, простоям механизмов и промышленного транспорта, нарушению нормальной деятельности большого числа городских и сельских жителей.
Электроприемники второй категории должны получать электроэнергию от двух независимых источников питания. При нарушении электроснабжения от одного из них допускается перерыв электроснабжения на время, необходимое для включения резервного питания действиями дежурного персонала или выездной бригады.
Исходя из категории надежности, электроснабжение РУ 6 кВ будет осуществляться от двухсекционного распределительного устройства 6 кВ подстанции «Голованы» по двум взаимно резервируемым кабельным линиям. Между секциями будет установлен секционный выключатель. Устройство автоматического включения резерва не требуется.
Распределительное устройство будет выполнено на базе сборных камер одностороннего обслуживания КСО-298.
В силовой цепи будут установлены вакуумные выключатели ВВ/TEL, шинные и линейные разъединители, заземляющие ножи.
Релейная защита будет выполнена на основе реле серии Micom.
1.2. Исходные данные электроприемников.
Технические данные электроприемников, необходимые для расчетов занесены в таблицу 1.
Таблица 1 - Исходные данные электроприемников
| Номер | Наименование электроприемника | Номинальная мощность, кВА |
| 1 | КТП-1 трансформатор Т-1(Т-2) | 2500 |
| 2 | КТП-2 трансформатор Т-1(Т-2) | 1600 |
| 3 | КТП-3 трансформатор Т-1(Т-2) | 1600 |
| 4 | Трансформатор собственных нужд ТСН-1(ТСН-2) | 25 |
| 5 | Вакуумный насос №2 АД | 315 кВт |
2. СПЕЦИАЛЬНАЯ ЧАСТЬ
2.1. Расчет электрических нагрузок
Расчет электрических нагрузок является важным этапом в создании схемы электроснабжения, так как он необходим для выбора оборудования распределительного устройства, кабелей, расчета уставок защит.
Электрические нагрузки определяем методом «Коэффициента максимума», так как этот метод наиболее точен и удобен в использовании.
1. Пользуясь исходными данными, заносим в таблицу наименование, и технические данные электроприемников (ЭП) (количество, мощность, коэффициент использования Ки, коэффициент загрузки Кз и коэффициент мощности cosjдля каждого электроприемника).
2. Определяем установленную полную мощность ЭП:
Sн = n×sн ,
где: Sн – полная мощность нескольких одинаковых ЭП, кВА;
sн – единичная мощность ЭП, кВА;
n – количество одинаковых ЭП в группе.
КТП 1: Sн = 1 × 2500 = 2500 кВА
КТП 2: Sн = 1 × 1600 = 1600 кВА
КТП 3: Sн = 1 × 1600 = 1600 кВА
ВН 2: Sн = 1 × 391 = 391 кВА
ТСН: Sн = 1 × 25 = 25 кВА
3. Находим среднюю полную мощность группы ЭП:
Sc = Sн ×Ки × Кз ,
где: Sc – средняя полная мощность нескольких одинаковых ЭП, кВА;
Ки – коэффициент использования ЭП или группы ЭП;
Кз – коэффициент загрузки.
КТП 1: Sс =2500 ×1 × 0.7= 1750 кВА
КТП 2: Sс = 1600 × 1 × 0.7 = 1120 кВА
КТП 3: Sс = 1600 × 1 × 0.7 = 1120 кВА
ВН 2: Sс = 315 × 1 × 1 = 391 кВА
ТСН: Sс = 25 ×1 × 0.7 = 18 кВА
4. Рассчитываем суммарную среднюю мощность:
SSc = 1750 + 1120 + 1120 + 391 + 18 = 4399 кВА
5. Находим суммарную среднюю мощность при питании от одного ввода:
SSc × 2 = 4399 × 2 - 391= 8407 кВА
6. Находим полную расчетную мощность:
Sp = Sc . = 4399 кВА
7. Полная расчетная мощность при питании от одного ввода:
8407 кВА
8. Находим расчетный ток:
Ip=Sp
/(Ö3 ×Uн
)
где, Ip – расчетный ток, А;
Uн – номинальное напряжение сети, кВ.
Ip
= 4399/(Ö3 × 6) = 423 А
9. Находим расчетный ток при питании от одного ввода:
Ip = 8407/(Ö3 × 6) = 809 А
Результаты сводим в таблицу 2.
Таблица 2 - Расчет электрических нагрузок
| Наименование электроприемников (ЭП) | Кол-во ЭП, шт | Установленная полная мощность, кВА | Коэффициент использования/ загрузки |
Коэф-нт реактивной мощности cos |
Средняя мощность группы ЭП | Эффективное число ЭП nэ |
Коэф-нт расчетной нагрузки Км |
Расчетная мощность | Расчетный ток I, А |
||||
| Одного ЭП sн | Общая Sн | Sc, кВА | Qc, кВАр |
Pр,кВТ | Qр, кВАр |
Sр, кВА |
|||||||
| 1 | 2 | 3 | 4 | 5 | 6 | 7 | 8 | 9 | 10 | 11 | 12 | 13 | 14 |
| 1-я секция шин (2-я секция шин) | |||||||||||||
| Тр-тор собственных нужд ТСН-1 (ТСН-2) | 1 | 25 | 25 | 1/0,7 | _ | 18 | _ | ||||||
| КТП-1 Тр-тор Т-1 (Т-2) | 1 | 2500 | 2500 | 1/0,7 | _ | 1750 | _ | ||||||
| КТП-2 Тр-тор Т-1 (Т-2) | 1 | 1600 | 1600 | 1/0,7 | _ | 1120 | _ | ||||||
| КТП-3 Тр-тор Т-1 (Т-2) | 1 | 1600 | 1600 | 1/0,7 | _ | 1120 | _ | ||||||
| (ВН-2) | 1 | 391 | 391 | 1/1 | 0,86 | 391 | 200 | ||||||
| Итого: | 4399 | 200 | 4399 | 423 | |||||||||
| Максимальная нагрузка при питании РУ от одного ввода | 8407 | 200 | 8407 | 809 | |||||||||
2.2. Выбор типа камер КСО-298 для РУ-6 кВ.
Камеры КСО-298 на напряжение 6(10) кВ предназначены для распределительных устройств переменного трехфазного тока частотой 50 герц с изолированной или заземленной через дугогасещий реактор нейтралью. Тип камер выбирается в зависимости от схемы соединения главных цепей.
Выбраные типы камер сведены в таблицу 3.
Таблица 3 - Типы камер КСО-298.
| Наименование | Схема | Количество | Номера ячеек |
| Ввод 1(2) | 7.ВВ-1000 | 2 | 3,18 |
| Секционный выключатель | 4ВВ-600 | 1 | 10 |
| Секционный разъединитель | 24-600 | 1 | 11 |
| КТП-1 трансформатор Т-1(Т-2) | 8.1.ВВ-600 | 2 | 4,17 |
| КТП-2 трансформатор Т-1(Т-2) | 8.1.ВВ-600 | 2 | 5,16 |
| КТП-3 трансформатор Т-1(Т-2) | 8.1.ВВ-600 | 2 | 6,15 |
| Вакуумный насос 2 | 8.1.ВВ-600 | 1 | 14 |
| Резерв | 8.1.ВВ-600 | 3 | 7,8,13 |
| Трансформатор собственных нужд ТСН-1(ТСН-2) | 15-400ТСН | 2 | 1,20 |
| Секционный трансформатор напряжения | 13-400ТН | 2 | 9,12 |
| Панель собственных нужд с кабельной сборкой | 28А-600 | 2 | 2,19 |
2.3. Конструкция и характеристистики камер КСО-298
Камера представляет собой сварную металлоконструкцию из листовых гнутых профилей. Внутри размещена аппаратура главных цепей, рукоятки приводов и аппаратов управления, реле защиты, управления, сигнализации. Приборы учета и измерения расположены с фасадной стороны камер КСО-298. Доступ в камеру обеспечивают две двери: верхняя - в зону высоковольтного выключателя, трансформатора напряжения или предохранителя, нижняя - в зону кабельных присоединений силового трансформатора или разъединителей. Между дверью с аппаратурой вспомогательных цепей и высоковольтным выключателем установлена съемная перегородка, предотвращающая доступ в зону высокого напряжения. В корпусе камеры имеются смотровые окна для обзора внутренней части камеры. В камерах КСО-298 имеется устройство для установки лампы внутреннего освещения (лампа накаливания 36 В), обеспечивающее возможность безопасной замены перегоревшей лампы без снятия напряжения. Сборные шины камер КСО имеют с фасада сетчатые или сплошные со смотровым окном ограждения. Все установленные в камере КСО аппараты и приборы, подлежащие заземлению, заземлены. Верхняя дверь, на которой установлены приборы вспомогательных цепей, заземлены гибким проводом. На фасаде камеры в нижней части имеется зажим заземления, предназначенный для присоединения к заземленному корпусу элементов, временно подлежащих заземлению. Каркас камеры непосредственно приваривается к металлическим заземленным конструкциям. Шины заземления (проводники) окрашены в черный цвет. Верхняя дверь является панелью, на которой смонтирована схема вспомогательных цепей. На фасаде размещена аппаратура, в основном, с задним присоединением проводов (реле защиты, управления, сигнализации, приборы учета и измерения). Приводы управления разъединителями в камерах с секционным выключателем находятся на панели камеры. В камерах с кабельными вводами предусмотрена возможность концевой разделки одного или двух трехфазных кабелей сечением до 240 мм2, а также однофазных кабелей с пластмассовой изоляцией сечением до 500 мм2. Камеры КСО-298 имеют стационарное устройство для освещения фасада камер напряжением 220 В. Каналом для магистральных шинок оперативных цепей питания электромагнитов включения, цепей управления сигнализации служит короб, расположенный в средней части КСО-298. Кроме того, в коробе размещена выходная клеммная колодка для выполнения межкамерных соединений вспомогательных цепей. Во избежание ошибочных операций при обслуживании и ремонте в камерах выполнены следующие блокировки:
- блокировка, не допускающая включение и отключение линейных и шинных разъединителей;
- блокировка, не допускающая включение заземляющих ножей при включенных рабочих ножах разъединителя;
- электрическая блокировка, не допускающая включение высоковольтного выключателя при нахождении разъединителя в промежуточном положении; блокировка, не допускающая включение выключателя ввода при включенных заземляющих ножах заземления сборных шин.
![]() |
Общий вид камеры КСО-298 показан на рисунке 1.
Рисунок 1- Общий вид камеры КСО-298.
1 – сборные шины; 2 – шинный разъединитель; 3- защитный экран; 4 – вакуумный выключатель ВВ/TEL; 5 – трансформаторы тока; 6 – блокиратор; 7 – приводы разъединителей; 8 – линейный разъединитель; 9 – клеммник; 10 – трансформатор тока нулевой последовательности.
Структура условного обозначения камер:
КСО-298-Х-ХХ:
КСО - камера сборная одностороннего обслуживания;
2 - модификация;
98 - год разработки;
Х - обозначение схемы исполнения главных цепей;
ХХ - климатическое исполнение (У, УХЛ) и категория размещения
(3; 4) по ГОСТ 15150-69 и ГОСТ 15543.1-89.
Таблица 4 - Технические характеристики камер КСО-298
| Номинальное напряжение, кВ | 6, 10 |
| Наибольшее рабочее напряжение, кВ | 7.2, 12 |
| Номинальный ток главных цепей, А | 400, 630, 1000 |
| Номинальные токи трансформаторов тока, А | 20, 30, 40, 50, 75, 80, 100, 150, 200, 300, 400, 600, 800, 1000 |
| Номинальный ток сборных шин, А | 630, 1000 |
| Номинальный ток отключения камер с высоковольтным выключателем, кА | 20 |
| Предельный сквозной ток камер с высоковольтным выключателем (амплитудное значение), А | 51 |
| Ток термической стойкости (3 с) камер с высоковольтным выключателем, кА | 20 |
Номинальное напряжение вспомогательных цепей, В - переменного оперативного тока - постоянного оперативного тока - цепи трансформаторов напряжения - цепи освещения внутри камер - цепи трансформаторов собственных нужд |
220 220 100 220 380 |
| Ток плавкой вставки высоковольтного предохранителя, А | 2, 3, 5, 8, 10, 16, 20, 31.5, 160 |
| Габаритные размеры, мм | 750 (1000)х1100х2650 |
| Масса кг, не более | 450 |
В ячейках КСО-298 применены вакуумные выключатели
ВВ/TEL-10-12,5/630-У2 и ВВ/TEL-10-12,5/630-У2
Структура условного обозначения выключателей:
ВВ – выключатель вакуумный
TEL – обозначение производителя
10 – номинальное напряжение
12,5 – номинальный ток отключения
630 – номинальный рабочий ток
Вакуумные выключатели ВВ/TEL предназначены для эксплуатации в сетях трехфазного переменного тока частотой 50 Гц номинальным напряжением до 10 кВ с изолированной и компенсированной нейтралью в нормальных и аварийных режимах.
Выключатели ВВ/TEL применяются в ячейках КРУ внутренней и наружной установки, а также в камерах КСО, как при новом строительстве, так и при замене выключателей прежних лет выпуска.
Вакуумные выключатели ВВ/ТЕL-10-20/1000 общепромышленного исполнения рассчитаны на коммутационный ресурс — 50 000 циклов “ВО” при номинальном токе, механический ресурс привода при этом составляет 150 000 циклов “ВО”, а выключатели для частых коммутаций, ориентированные на работу в электротермических установках выдерживают 100 000 циклов “ВО” при номинальном токе. При этом все выключатели имеют ресурс 100 циклов “ВО” или 150 операций отключения при номинальном токе отключения 20 кА.
Достоинствами выключателя ВВ/TEL являются:
- простая конструкция привода с магнитной защелкой и высокая надежность в работе;
- большой коммутационный и механический ресурсы;
- малые габариты и вес;
- работа в любом пространственном положении;
- удобство установки во все типы КРУ и КСО;
- малое потребление тока при включении и отключении;
- возможность управления по цепям постоянного и переменного оперативного тока;
- защищенность основных узлов от дуговых и механических воздействий;
- не требует регулировок в течение всего срока службы;
- низкая трудоемкость производства;
- умеренная цена.
Таблица 5 - Основные технические характеристики выключателей ВВ/TEL
| Номинальное напряжение, кВ | 10 |
| Номинальный ток, А | 1000, 630 |
| Номинальный ток отключения, кА | 12,5 |
| Время отключения собственное, мс, не более | 15 |
| Время включения, мс, собственное, не более | 70 |
| Ресурс по коммутационной стойкости, операций В-О: | |
| при номинальном токе | 50000 |
| при номинальном токе отключения | 150 |
| Ресурс по механической стойкости, операций В-О | 50000 |
| Стойкость к механическим воздействиям, группа по ГОСТ17516.1-90 | М6, М7 |
| Межполюсное расстояние, мм | 200, 250 |
| Масса, кг | 32, 32.5 |
| Срок службы без ремонта, лет | 25 |
2.4. Расчет токов короткого замыкания в сети
При проектировании системы электроснабжения учитываются не только нормальные продолжительные режимы работы электроустановок, но и их аварийные режимы. Одним из таких режимов является короткое замыкание.
Коротким замыканием (КЗ) называют всякое случайное или преднамеренное, не предусмотренное нормальным режимом работы, электрическое соединение различных точек электроустановки между собой и землей, при котором токи в ветвях электроустановки резко возрастают, превышая наибольший допустимый ток длительного режима.
Расчет токов КЗ в системе электроснабжения промышленных предприятий производится упрощенным способом с рядом допущений:
- считают, что трехфазная система является симметричной
- не учитывают насыщение магнитных систем, т. е. считают, что индуктивные сопротивления в процессе КЗ не изменяются
- принимают, что фазы всех источников ЭДС не изменяются в процессе КЗ
- напряжение на шинах источника принимают неизменным
- апериодическая составляющая тока КЗ не подсчитывается, так как длительность КЗ в удаленных точках превышает 0,15 с, а апериодическая составляющая за это время затухает.
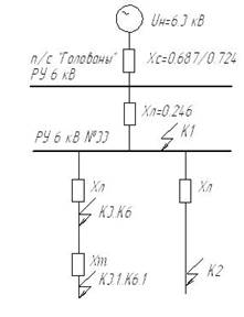
Для расчета токов КЗ составляется расчетная схема (рисунок 4) – упрощенная однолинейная схема электроустановки, в которой учитываются все источники питания, трансформаторы, кабельные линии. Ток КЗ для выбора токоведущих частей и аппаратов рассчитавается при нормальном режиме работы: параллельное включение всех источников питания, параллельная или раздельная работа трансформаторов. Возможные ремонтные режимы: отключение генераторов, трансформаторов, линий в расчете токов КЗ не учитываются.
По расчетной схеме составляется схема замещения (рисунок 5), в которой указываются все сопротивления и намечаются точки для расчета токов КЗ.
![]() |
При расчетах все сопротивления подсчитываются в именованных единицах (Ом) или в относительных единицах. Способ подсчета сопротивлений на результат не влияет. При расчете в относительных единицах задают базовые величины: напряжение Uб и мощность Sб . За базовое напряжение принимают среднее номинальное напряжение той ступени, где ведется расчет токов КЗ. За базовую мощность для удобства принимают 100 или 1000 МВА.
Рисунок 5 – Схема замещения к расчету токов короткого замыкания
Расчет для точки К3.1
1. Расчет ведем в относительных единицах (о.е.).
Принимаем Uб =6.3 кВ, Sб =100 МВА.
Расчет ведем для двух режимов: Sкс =145.6 МВА и Sкс =138.2 МВА,
где Sкс – мощность КЗ энергосистемы.
2. Находим реактивное сопротивление энергосистемы, о.е.:
xc =Sб /Sкс ;
где: Sб – базисная мощность, МВА;
xc =100/145.6=0.687 о.е.
3. Находим реактивное сопротивление линии, о.е.
xл =xуд ×Lл ×Sб /U2 н ;
где: xуд – удельное реактивное сопротивление линии Ом/км [2 стр 40]
Lд – длина линии, км.
Uн – номинальное напряжение, кВ.
xл =0.08×(1.05+0.18)×100/6.32 =0.248 о.е.
4. Находим реактивное сопротивление трансформатора, о.е:
xт =Uк×Sб/Sнт;
где: Uк – напряжение КЗ трансформатора
Sнт – номинальная мощность трансформатора, МВА
xт =0.06×100/2.5=2.4 о.е.
5. Определяем суммарное реактивное сопротивление, о.е. :
x=xс +xл +xт
x=0.687+0.248+2.4=3.335 о.е.
6. Рассчитываем мощность в точке КЗ, МВА:
Sк =Sб /x
Sк =100/3.335=29.99 МВА
7. Находим ток в точке КЗ, кА:
![]()
Iк
=Sк
/(Ö3×Uн
)
Iк =29.99/(Ö3×6.3)=2.748 кА
8. Определяем амплитуду ударного тока, кА:
Iу
=Ö2×Ку
×Iк
;
где: Ку – ударный коэффициент [3 с 359]
Iу
=Ö2×1.369×2.748=5.3 кА
Остальные расчеты ведутся аналогично.
Результаты заносятся в таблицу 6.
| Наименование | Обозначение | Числовые значения | |||||||||||
| К1 | К2 | К3 | К3.1 | К4 | К4.1 | К5 | К5.1 | К6 | К6.1 | ||||
| Данные системы | Номинальное напряжение, кВ | Uн | 6.3 | ||||||||||
| Мощность КЗ, МВА | Sск | 145.6/138.2 | |||||||||||
| Базисная мощность, МВА | Sб | 100 | |||||||||||
| Реактивное сопротивление, о.е. | Хс | 0.687/0.724 | |||||||||||
| Кабельная линия | Длина, км | Lл | 1.05 | 0.25 | 0.18 | 0.18 | 0.21 | 0.21 | 0.17 | 0.17 | - | - | |
| Реактивное сопротивление | Удельное, ом/км | Худ | 0.08 | 0.08 | 0.08 | 0.08 | 0.08 | 0.08 | 0.08 | 0.08 | - | - | |
| Рассчитанное, о.е. | Хл | 0.084 | 0.02 | 0.014 | 0.014 | 0.017 | 0.017 | 0.014 | 0.014 | - | - | ||
| Траснсформатор | Номинальная мощность, МВА | Sн | - | - | - | 2.5 | - | 1.6 | - | 1.6 | - | 0.025 | |
| Реактивное сопротивление о.е. | Хт | - | - | - | 2.4 | - | 3.75 | - | 3.75 | - | 240 | ||
| Суммарное реактивное сопротивление, о.е. | Х | 0.771 0.808 | 0.791 0.828 | 0.785 0.822 | 3.185 3.222 | 0.788 0.825 | 4.538 4.575 | 0.785 0.822 | 4.535 4.572 | 0.771 0.808 | 240.771 240.771 | ||
| Мощность в точке КЗ, МВА | Sк | 129.7 123.8 | 126.4 120.8 | 127.4 121.7 | 31.4 31 | 126.9 121.2 | 22 21.8 | 127.4 121.7 | 22 21.9 | 129.7 123.8 | 0.42 0.42 | ||
| Ток в точке КЗ, кА | Iк | 12 11.45 | 11.69 11.17 | 11.79 11.26 | 2.9 2.87 | 11.74 11.21 | 2.04 2.02 | 11.79 11.26 | 2.04 2.03 | 12 11.45 | 0.039 0.039 | ||
| Ударный коэффициент | Kу | 1.369 | 1.369 | 1.369 | 1.369 | 1.369 | 1.369 | 1.369 | 1.369 | 1.369 | 1.369 | ||
| Амплитуда ударного тока, кА | Iу | 16.43 15.68 | 16 15.29 | 16.14 15.41 | 3.97 3.93 | 16.07 15.35 | 2.79 2.77 | 16.14 15.41 | 2.79 2.78 | 16.43 15.68 | 0.053 0.053 | ||
Таблица 6 - Расчет токов короткого замыкания
2.5.Расчет и выбор защит подстанции
В электрических сетях промышленных предприятий возможно возникновение повреждений, нарушающих нормальную работу электроустановок. Наиболее распространенными и опасными видами аварийных режимов являются короткие замыкания; к аномальным режимам работы относятся перегрузки. Повреждения и аномальные режимы работы могут привести к аварии всей сети электроснабжения или её части, сопровождающейся отдельным недоотпуском электроэнергии или разрушением основного электрооборудования. Предотвратить возникновение аварий можно путем быстрого отключения поврежденного элемента или участка сети. Для этой цели электроустановки снабжают автоматически действующими устройствами – релейной защитой (РЗ), являющейся одним из видов противоаварийной автоматики. РЗ может быть предназначена для сигнализации о нарушении в сетях или для отключения поврежденного участка.
Основными требованиями к релейной защите являются:
1. Быстродействие – характеризуется временем срабатывания РЗ. Чем быстрее произойдет обнаружение и отключение поврежденного участка, тем меньше разрушительной действие аварийного тока на электрооборудование и тем легче сохранить нормальную работу потребителей неповреждённого участка сети. Время отключения складывается из времени срабатывания защиты и времени отключения выключателя.
2. Селективность – способность защиты при аварии отключать только поврежденный участок сети, оставляя в работе потребителей, подключенных к неповрежденному участку.
3. Чувствительность – способность защиты реагировать на самые малые изменения контролируемого параметра. Чувствительность характеризует устойчивое срабатывание РЗ в зоне защиты. Чувствительность всех видов защит оценивается коэффициентом чувствительности Кч к минимальному току КЗ:
Кч =Ik min /I сз ,
где Iсз –ток срабатывания защиты, А.
4. Надежность – правильное и безотказное действие РЗ во всех предусмотренных по её назначению случаях. Надежность обеспечивается применением высококачественных реле, простых и совершенных схем РЗ, качественным выполнением монтажных работ, соблюдением условий эксплуатации защитных устройств.
Основными видами защит в сетях с изолированной нейтралью являются максимальная токовая защита (МТЗ), токовая отсечка (ТО) и защита от однофазных замыканий на землю(ОЗЗ).
По способу включения реле различают первичные, включаемые непосредственно в схему защищаемого элемента цепи, и вторичные, присоединяемые к защищаемому элементу через измерительные трансформаторы тока и напряжения.
В сети 6 кВ с изолированной нейтралью целесообразно применять схему защиты с двумя трансформаторами тока, соединенными в неполную звезду. Схема обеспечивает защиту сети от междуфазных коротких замыканий и перегрузок.
![]() |
Рисунок 6 - Соединение тр-ров тока в неполную звезду.
Максимальная токовая защита
МТЗ срабатывает при превышении тока в цепи на защищаемом участке выше заданного. Защита действует на отключение с выдержкой времени. МТЗ может выполняться с независимой и ограниченно зависимой от тока характеристикой времени срабатывания.
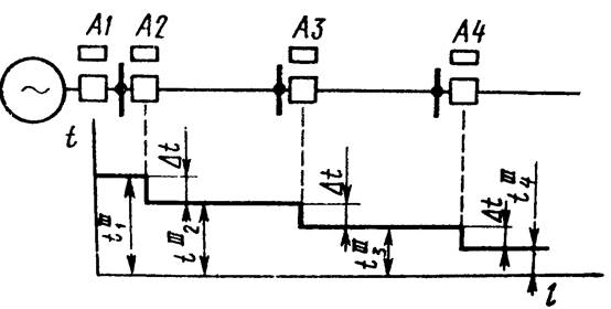
Селективность защиты с независимой характеристикой обеспечивается различной выдержкой времени. Выдержки времени у максимальных токовых защит выбирают по ступенчатому принципу: начинают выбор с наиболее удаленного от источника питания элемента и по мере приближения к источнику питания увеличивают её таким образом, что защита последующего участка имеет выдержку времени на ступень селективности больше, чем максимальная выдержка времени предыдущего участка.
t3 III =t4 III +Dt; t2 III =t3 III +Dt; t1 III =t2 III +Dt

Рисунок 7 - Согласование характеристик МТЗ с независимой выдержкой времени.
Выдержки времени у максимальных токовых защит с ограниченной характеристикой должны выбираться для определенного тока. Достоинством данной защиты является удобное согласование с пусковыми характеристиками электродвигателей. Наряду с этим она имеет существенные недостатки: Большие выдержки времени в минимальных режимах работы и при действии защиты в качестве резервной, зависимость уставки времени от максимального тока КЗ, что требует изменять уставки с развитием системы электроснабжения и держать их под постоянным наблюдением. Для РУ 6кВ целесообразнее использовать защиту с независимой выдержкой времени.
Рассчитываем МТЗ для трансформатора КТП-1:
1. Находим Iдл
:
Iдл =Sн /(Ö3×Uн ),
где Sн – номинальная мощность трансформатора, кВА
Uн
– номинальное напряжение сети, кВ
Iдл – длительно допустимый ток защищаемой цепи, А
Iдл
=2500/(Ö3×6)=240 А
2. Ток срабатывания защиты выбирается таким образом, чтобы был обеспечен возврат реле при прекращении перегрузки и снижении тока до длительно допустимого значения, т.е.
Iс.п. ³kо ×Iдл /kв ,
где Iс.п. – ток срабатывания защиты, А
kо – коэффициент отстройки, учитывающий разброс характеристик реле, точность уставки и т.д.
kв – коэффициент возврата реле, для электронных реле kв =0,95, kо =1,05. [9 стр263]
kо ×Iдл /kв =1.05×240/0.95=265
Iс.п. ³265
3. Рассчитываем ток срабатывания реле:
Iс.р. =kсх ×Iс.п /К,
где kсх – коэффициент схемы, kсх =1 для неполной звезды [9 стр263]
К – коэффициент трансформации трансформаторов тока, К=60
Iс.р - ток срабатывания реле, А.
Iс.р .=1×240/60=4 А
4. Определяем коэффициент чувствительности
Кч =Iк min /Iс.п. ,
где Кч - коэффициент чувствительности, Кч ³1.2¸1.5 [3 стр 443]
Iк min – минимальный ток КЗ, А.
В качестве Iк
min
принимаем ток двухфазного КЗ равный Ö3/2 трехфазного тока.
Кч
=Ö3×2870/(265×2)=9.4, что соответствует ПУЭ гл. 3.2.
5. Трансформатор КТП-2 является наиболее удаленным от источника питания, поэтому выбираем уставку МТЗ по времени 0.5 с.
Остальные расчеты ведутся аналогично.
Токовая отсечка
Токовой отсечкой называется мгновенная токовая защита с ограниченной зоной действия. Селективность ТО обеспечивается не выдержкой времени, а зоной её действия. В этой зоне ток срабатывания ТО отстраивается не от тока нагрузки, а от тока КЗ в конце защищаемой линии.
1. Находим ток срабатывания ТО:
Iс.о. =kо ×Iк max ,
где Iс.о. – ток срабатывания отсечки, А.
Iк max – максимальный ток КЗ на шинах НН трансформатора.
В этом случае ТО будет защищать кабель и обмотку ВН трансформатора.
Iс.о. =1.05×2900=3045 А
2. Находим ток срабатывания реле:
Iс.р. = kсх ×Iс.о. /К
Iс.р. =1×3045/60=50.7 А
3. Находим коэффициент чувствительности:
Кч =Iк min /Iс.о.
где Iк min – минимальный ток КЗ в конце защищаемой линии, т.е. на стороне ВН трансформатора.
Кч
=(Ö3/2)×11260/3045=3.2, что соответствует ПУЭ гл. 3.2.
Остальные расчеты ведутся аналогично
Защита от замыканий на землю
Защиту от замыканий на землю обеспечивает трансформатор тока нулевой последовательности (ТНП), устанавливаемый непосредственно на кабеле перед воронкой (рисунок 8).
![]() |
Рисунок 8 - Защита от замыканий на землю с кабельным ТНП.
При замыкании в сети на землю токи повреждения могут замыкаться как через землю, так и по проводящей оболочке кабеля, в том числе и неповрежденного, что может вызвать неправильное действие защиты. Поэтому воронку и кабель на участке от ТНП до воронки изолируют от земли, а заземляющий провод присоединяют к воронке кабеля и пропускают через отверстие магнитопровода ТНП в направлении кабеля. При таком исполнении цепей защиты токи, проходящие по броне и проводящей оболочке кабеля, компенсируются токами, возвращающимися по заземляющему проводу.
1. Находим ток срабатывания защиты:
Iс.з. =kотс ×3×Iс ,
где Iс.з. – ток срабатывания защиты, А.
kотс – коэффициент отстройки, обусловленный броском емкостного тока в момент замыкания, kотс =4.5 для защит без выдержки времени [1 стр213].
Iс – собственный емкостный ток линии.
Iс.з. =4.5×3×0.162=2.2 А.
Остальные расчеты ведутся аналогично.
Результаты сводятся в таблицу 7.
Защита минимального напряжения (ЗМН) используется для защиты высоковольтных двигателей и электроприемников, самозапуск которых при восстановлении питания после кратковременного перерыва недопустим или нежелателен. Защита минимального напряжения срабатывает при исчезновении напряжения или при его снижении ниже установленного значения. Напряжение срабатывания ЗМН принимается равным 70% от номинального напряжения сети, а время срабатывания принимается на ступень селективности больше времени действия быстродействующих защит от коротких замыканий.
Рассчитаем уставку по напряжению, В:
Uср =0.7×Uн ,
где: Uн – номинальной напряжение сети.
Uср =0.7×6000=4200 В
| Наименование | Обозначение | Ячейка | ||||||||
| Яч. 7,15 КТП-1 | Яч. 5,13 КТП-2 | Яч. 6,14 КТП-3 | Яч, 2,19 ТСН-1,2 | Яч. 16 ВН-2 | Яч. 4,17 Ввод | Яч. 11 Секц. выкл. | ||||
| Исходные данные | Номинальный рабочий ток, А. | Iн | 240 | 154 | 154 | 2.4 | 38 | 809 | 423 | |
| Коэффициент трансформации ТТ | K | 60 | 40 | 40 | - | 10 | 160 | 100 | ||
| Емкостный ток при ОЗЗ, А. | Iс | 0.16 | 0.12 | 0.14 | - | 0.08 | - | - | ||
| Максимальная токовая защита | Расчетные коэффициенты | Схемы | kсх | 1 | 1 | 1 | - | 1 | 1 | 1 |
| Отстройки | kо | 1.05 | 1.05 | 1.05 | - | 1.05 | 1.05 | 1.05 | ||
| Возврата | kв | 0.95 | 0.95 | 0.95 | - | 0.95 | 0.95 | 0.95 | ||
| Ток КЗ в зоне защиты | Максимальный, кА. | Iкmax | 11.79 | 11.79 | 11.74 | 12 | 11.69 | 12 | 12 | |
| Минимальный, кА. | Iкmin | 2.5 | 1.77 | 1.76 | 0.039 | 9.7 | 9.96 | 9.96 | ||
| Ток срабатывания защиты | Iс.п. | 264 | 169 | 169 | 6.3 | 42 | 890 | 465 | ||
| Чувствительность защиты | kч | 9.5 | 10.5 | 10.5 | - | 230 | 11 | 21 | ||
| Время срабатывания защиты, с. | tс.п. | 0.5 | 0.5 | 0.5 | - | 1.2 | 1.2 | |||
| Токовая отсечка | Расчетные коэффициенты | Схемы | kсх | 1 | 1 | 1 | - | 1 | 1 | 1 |
| Отстройки | kо | 1.05 | 1.05 | 1.05 | - | 1.05 | 1.05 | 1.05 | ||
| Ток КЗ в зоне защиты | Максимальный, кА. | Iкmax | 11.79 | 11.79 | 11.74 | - | 11.69 | 12 | 12 | |
| Минимальный, кА. | Iкmin | 9.8 | 9.8 | 9.6 | - | 9.7 | 9.96 | 9.96 | ||
| Ток срабатывания защиты | Iс.о. | 3045 | 2142 | 2142 | - | 2000 | 5000 | 5000 | ||
| Чувствительность защиты | Iч | 3.2 | 4.6 | 4.5 | - | 4.9 | 2 | 2 | ||
| Время срабатывания защиты, с. | tс.о. | 0 | 0 | 0 | - | 0 | 0.6 | 0.3 | ||
| Защита от замыканий на землю | Коэффициент отстройки | kо | 4.5 | 4.5 | 4.5 | - | 4.5 | - | - | |
| Ток срабатывания защиты | Iс.з. | 2.16 | 1.62 | 1.89 | - | 1.08 | - | - | ||
| Защита минимального напряжения | Уставка по напряжению, В. | Uс.з | - | - | - | - | 4200 | - | - | |
| Время срабатывания защиты, с. | Tс.з. | - | - | - | - | 0.5 | - | - | ||
Таблица 7 - Выбор защит.
2.7. Выбор марок и сечений кабелей
Сечение кабелей выбирается по длительному току электроустановки и проверяется на термическую устойчивость при коротком замыкании.
Рассмотрим выбор кабелей на примере отходящей линии между яч. 4 РУ-6 кВ и трансформатором Т-1 КТП-1.
1. Определим длительный ток, А:
Iдл
=Sн
/(Ö3×Uн
),
где: Sн – номинальная полная мощность электроустановки, кВА;
Uн – номинальное напряжение сети, кВ.
Iдл
=2500/(Ö3×6)=240.5 А.
2. Определяем минимальное сечение жил кабель по условиям термической устойчивости при коротком замыкании:
Smin
=Iк
×Ö(Та
+tс.з.
+tо.в.
)/С,
где: Iк – максимальный ток КЗ, А;
Та – постоянная затухания апериодической составляющей тока КЗ, с;
tс.з. – время срабатывания защиты, с;
tо.в. – время отключения выключателя, с;
С – коэффициент термической устойчивости для кабелей с алюминиевыми жилами.
Smin =11790×Ö(0.01+0.015+0.03)/88=31.5 мм2
3. Выбираем кабель АВВГ-6 (3´95) с максимальным длительным током 255 А.
Остальные расчеты ведутся аналогично.
Результаты сводятся в таблицу 8.
Таблица 8 - Выбор кабелей.
| Трасса | Кабель | ||||
| Начало | Конец | Марка | Количество и сечение жил | Длина, м | Номинальный ток кабеля, А |
| ячейка 3 | п/с "Голованы" | ААБл-6 | 2(3*150) | 1050 | 300 |
| ячейка 18 | п/с "Голованы" | ААБл-6 | 2(3*150) | 1050 | 300 |
| ячейка 4 | КТП-1 Т-1 | ААБл-6 | 3*95 | 180 | 255 |
| ячейка 17 | КТП-1 Т-2 | ААБл-6 | 3*95 | 180 | 255 |
| ячейка 5 | КТП-2 Т-1 | ААБл-6 | 3*50 | 170 | 165 |
| ячейка 16 | КТП-2 Т-2 | ААБл-6 | 3*50 | 170 | 165 |
| ячейка 6 | КТП-3 Т-1 | ААБл-6 | 3*50 | 210 | 165 |
| ячейка 15 | КТП-3 Т-2 | ААБл-6 | 3*50 | 210 | 165 |
| ячейка 18 | ВН-2 | ААБл-6 | 3*25 | 250 | 85 |
2.6 Что такое система релейной защиты и автоматики (РЗА).
Системы РЗА применяются для подстанций всех уровней напряжения и представляют совокупность микропроцессорных устройств релейной защиты и компьютерной системы управления позволяющих воплотить в жизнь все преимущества информационной и компьютерной технологии, а именно обеспечивают:
1. Наглядность процесса для оператора, за счет большого количества измерений и сигнализации и представления информации динамических экранах, дающих возможность оператору своевременно реагировать для избегания аварии (что отсутствует в традиционной защите)
2. Дистанционное управления как терминалами релейной защиты так и первичным оборудованием подстанции (по сравнению с только местным управлением на традиционном оборудовании)
3. Беспрерывную диагностику, позволяющую проводить предаварийную профилактику (по сравнению с пост-аварийным или периодическим сервисом традиционного оборудования)
4. "Гибкость" инженеру как в работе с устройствами релейной защите, так и в использовании системы автоматизации, позволяющей изменить философию управления и диагностики путем перепрограммирования программою обеспечения (такая возможность полностью отсутствуют в жестком неизменном – «железе» традиционного оборудования)
5. Возможность постепенного наращивание системы как релейной защиты так и в части измерения и управления
6. Встроенная система наблюдения имеет возможность регистрирования и сохранения всех величин в предаварийных и аварийных ситуациях для точного поставарийного компьютерного анализа причин аварии
7. Наличие ряда вспомогательных функций управления и контроля. Наличие автоматических управляющих последовательностей, синхронизации, автоматической разгрузки и т.д.
8. Современное рабочее место нового поколения
2.6.1 Главные преимущества микропроцессорных систем защиты и управления:
A. повышенная надежность энергообеспечения,
Б. минимальные габаритные показатели,
B. надежная защита окружающей среды,
Г. легкость расширения функций при возможной последующей реконструкции и развитии электрических сетей региона,
Д. минимальный срок окупаемости оборудования за счет уменьшения расходов на установку, наладку и обслуживание системы защиты и управления и за счет существенного снижения расходов, связанных с первичным оборудованием
2.6.2 Краткие характеристики устройств c ерии SPAC
Серия устройств SPAC 810 включает в себя несколько типоисполнений, имеющих общую аппаратную платформу и программное обеспечение, которые определяют функциональные особенности конкретного исполнения устройства. Выбор производится исходя из требуемой функциональности в части выполнения защит (направленные или ненаправленные защиты), схем выполнения цепей вторичной коммутации, а также с учётом ценовых показателей оборудования.
Комплектные устройства защиты и автоматики SPAC 810 предназначены для выполнения функций релейной защиты, автоматики, местного и дистанционного управления, измерения, сигнализации, регистрации, осциллографирования, диагностики присоединений понижающих двухобмоточных (или с «расщеплёнными» обмотками) трансформаторов, токоограничивающих реакторов, линий.
Устройства SPAC 810-Т выполняют следующие функции:
В части управления и диагностики выключателя трансформатора или линии:
• Местное (кнопками с лицевой панели терминала или выносными ключами) управление выключателем;
• Дистанционное (через АСУ ТП) управление выключателем;
• Блокировка от многократных включений выключателя;
• Расчет коммутационного и механического ресурса;
• Контроль времени включения/отключения;
• Контроль времени взвода пружины;
• Контроль давления элегаза;
• Контроль цепей управления (РПО, РПВ I, РПВ II, автомата питания цепей управления выключателем);
В части защит (в зависимости от исполнений устройств):
• Дифференциальная защита с торможением;
• Дифференциальная токовая отсечка;
• Трехступенчатая ненаправленная МТЗ;
• Одноступенчатая ненаправленная токовая защита от замыканий на землю;
• Отключение при действии газовой защиты трансформатора и РПН;
• Отключение от внешних цепей;
• Токовый орган второй гармоники со стороны ВН;
• Организация цепей пуска МТЗ;
•Логическая защита шин
•Защита максимального и минимального напряжения
В части автоматики:
• Однократное АПВ;
• УРОВ;
• АВР;
В части измерения, осциллографирования, регистрации
• Индикация аналоговых величин тока в первичных /вторичных величинах;
• Встроенный аварийный осциллограф (режим записи 800 или 1600 Гц);
• Регистрация аварийных параметров;
• Календарь и часы реального времени;
• Энергонезависимая память событий и осциллограмм;
В части связи с АСУ ТП:
• Реализация функций телеуправления, телеизмерений и телесигнализации;
• Чтение/запись всех параметров нормального и аварийного режимов;
• 2 порта связи для связи с АСУ (RS485, оптический интерфейс, SPA TTL или ИРПС «токовая петля» по заказу);
• Протоколы обмена данными с устройствами: SPA-bus и стандартный МЭК;
•Программное обеспечение для конфигурирования и задания уставок устройства;
Дополнительные возможности:
• Задаваемое пользователем из имеющегося списка назначение дискретных входных цепей, выходных реле и светодиодных индикаторов;
• Дополнительные модули входных/выходных сигналов (1 или 2 по заказу);
•Выравнивание коэффициентов трансформации измерительных трансформаторов тока плеч;
• Адаптаця к группам соединения силовых трансформаторов и измерительных трансформаторов тока;
• Разъем для связи c ПК (на лицевой плите);
• Интерфейс «человек-машина» (ИЧМ) с жидкокристаллическим 4-х строчным индикатором (ЖКИ), светодиодами и кнопками управления;
• Режим для выполнения тестирования при наладке и обслуживании.
2.6.3 Серия устройств микропроцессорной релейной защиты Мрзс-05
В общих чертах можно сказать, что МРЗС это высокоэффективная микропроцессорная система, имеющая
- полностью цифровую обработку измеряемых величин,
- очень гибкую систему конфигурирования и настройки, осуществляемую программным обеспечением,
- простое управление с помощью встроенной панели управления и мини дисплея или с помощью персонального компьютера, подключаемого через интерфейс RS232, а также по сети через интерфейс RS485,
- регистрацию аварийных ситуаций в энергонезависимой памяти.
Устройство МРЗС выполнено практически полностью на импортной элементной базе. ВосновномэтоЭРИфирм Analog Device , Motorola, Texas Instruments, Philips, Intel, NEC, Burr Broun, Thomson.
Ядром МРЗС является сигнальный процессор ADSP2115 фирмы AnalogDevice. Это высокоскоростной процессор с возможностью параллельного выполнения операций. Такие процессоры специально предназначены для цифровой обработки сигналов. Сама структурная схема устройства достаточно стандартна, но функциональное деление выполнено таким образом, что позволяет достаточно легко наращивать и расширять систему для получения более высоких возможностей в части объема принимаемых и выдаваемых сигналов, а также выполняемых функций.
Устройство обеспечивает контроль и измерение напряжений, токов, частоты, активной и реактивной мощности, максимального тока в поврежденной фазе и минимального напряжения на поврежденной фазе.
Оперативное изменение алгоритмов работы МРЗС возможно через 8 или 16 дискретных оптронных входов. Их назначение программируется пользователем: каждому из входов может быть назначен один или несколько сигналов из списка входных сигналов, используемых в МРЗС. Таким образом, можно дистанционно включать/выключать различные функции защит и автоматики, блокировать отдельные ступени защит, включать/выключать выключатель, запускать функции автоматики и т.д. Кроме того, в список логических сигналов заложены 8 функций с двумя внутренними таймерами для каждой функции, назначение которых определяется самим пользователем. При этом активным уровнем, т.е. уровнем наличия сигнала может быть как уровень "0", так и уровень "1".
МРЗС имеет 7 или 14 дискретных выходов для выдачи команд и сигнализации в виде "сухих" контактов реле. Назначение 6 (или 13-ти) выходов программируется пользователем: аналогично дискретным входам каждому реле с помощью пульта управления может быть назначен один или несколько логических сигналов из списка выходных сигналов. При этом реле могут быть помечены как сигнальные, и тогда они будут работать в триггерном режиме с запоминанием пришедшего сигнала.
На жидкокристаллическом дисплее индицируется информация о срабатывании защит и автоматики, значениях параметров срабатывания, значениях уставок, конфигурации системы, назначении дискретных входов, выходов и светодиодных индикаторов, измеренных значениях токов, напряжений, частоты, мощности, текущем времени и т.д.
Управление и конфигурирование МРЗС производится с помощью встроенных кнопок управления и жидкокристаллического дисплея либо с помощью персонального компьютера подключаемого через интерфейс RS232, а также по сети через интерфейс RS485.
МРЗС обеспечивает самодиагностику с выявлением неисправности с точностью до съемного блока. Обеспечивается непрерывная проверка исправности программного обеспечения. При включении МРЗС производится контроль исправности МРЗС с выдачей сообщения на мини дисплей в случае неисправности.
МРЗС осуществляет регистрацию событий:
- всех входных дискретных сигналов;
- срабатывания всех защит;
- срабатывания функций автоматики;
- всех выдаваемых дискретных сигналов.
Регистрация всех событий осуществляется с привязкой к текущему времени. Регистрируются последние 50 событий текущей аварии в регистраторе дискретных сигналов и 50 последних аварий в регистраторе статистики.
МРЗС осуществляет регистрацию аварийных ситуаций с записью мгновенных значений токов и напряжений при авариях с привязкой к текущему времени (хранится информация о девяти последних авариях). Существует возможность пуска регистратора аварий при срабатывании отдельных (выбранных) функций защит и автоматики. Информация регистраторов хранится в энергонезависимой памяти.
Устройство осуществляет контроль ресурса выключателя по количеству отключений, контроль положения тележки и целостности цепей управления выключателем.
Зарегистрированные события можно просмотреть на жидкокристаллическом дисплее. Информацию о событиях и авариях можно скопировать на персональный компьютер подключаемый через интерфейс RS232 или по локальной сети через интерфейс RS485, чтобы в дальнейшем в режиме осциллографа просмотреть и проанализировать аварийную ситуацию.
2.6.4 Краткие характеристики устройств c ерии MiCOM
Серия MiCOM является продуктом компании AREVA T&D. В конструкции данной серии использованы последние разработки в области цифровых технологий для релейной защиты. Серия MiCOM объединяет широкий диапазон устройств предназначенных для использования в качестве устройств релейной защиты автоматики и управления разнообразного оборудования энергосистем, такого как электродвигатели, генераторы, фидеры, воздушные линии электропередачи и кабельные линии.
Для защиты вводов и линий 6 кВ были выбраны реле максимального тока MiCOMP123. Данный тип реле является наиболее универсальным и доступным и обладает широким набором функций и гибкими параметрами, что позволяет настроить реле с максимальной чувствительностью, исключив ложные срабатывания.
Реле MiCOM P123разработаны с целю обеспечения большей функциональности в отношении релейной защиты, измерения и автоматики и управления в сети среднего напряжения.
Эти реле могут быть использованы не только в электроустановках потребителей и распределительной сети среднего напряжения, но также и в сети высокого и сверхвысокого напряжения. Конструкция данных реле делает возможным различные варианты их применения: кабельная линия, воздушная линия, электроустановки потребителей электроэнергии и т.п. Защиты от однофазных и междуфазных замыканий имеют как мгновенные ступени так и ступени с выдержками времени. Первые, например, могут быть использованы в схемах защиты с использованием логической блокировки обеспечивающей меньшее время локализации повреждений. Вторые могут быть использованы как с независимыми так и с зависимыми от тока выдержками времени на срабатывание (IEC, ALSTOM, ANSI/IEEE, C0 и специальная характеристика выпрямительной установки). Широкий набор зависимых характеристик позволяет легко адаптировать реле к существующим системам защиты независимо от того, реле какого типа были применены ранее.
- Трехфазная МТЗ
- Токовая защита от замыканий на землю
- Токовая защита от замыканий на землю с торможением
- Тепловая защита (по эффективному значению тока)
- Защита минимального тока
- Токовая защита обратной последовательности
- Защита от обрыва проводника
- Отстройка от броска тока при включении (функция пуск-наброс)
- Вывод на выходные реле сигналов пуска ступеней
- «Самоподхват» выходных реле
- УРОВ
- Контроль цепи отключения
- Управление и контроль тех. состояния выключателя
- Логика блокирования
- Логика селективности схемы
- Многократное АПВ
- Программное изменение чередования фаз (тока) на прямое или обратное
- Измерение эффективных значений тока
- Измерение максимальных значений тока и среднего тока за заданный период
- Регистратор событий
- Запись мгновенных значений
- Регистратор аварий
- Осциллограф
- Интерфейс RS 232 (на передней панели) для связи с реле по месту установки с помощью ПО MiCOM S1
- Интерфейс RS 485 (с обратной стороны) для удаленной связи
Максимальная токовая защита.
Каждый из токовых входов защиты от замыкания на землю или от междуфазных замыканий имеет три независимые ступени с выдержками времени срабатывания.
Первая и вторая ступени защиты могут работать с независимыми или зависимыми от тока характеристики срабатывания.
Третья ступень защиты может работать только с независимой характеристикой и с возможностью выбора режима работы по мгновенным (пиковым) значениям тока.
Ступени токовой защиты от замыканий на землю имеют аналогичные ступени задания уставки независимые от уставок МТЗ.
Мгновенные ступени (пусковые органы) МТЗ обозначены следующим образом: ‘I>’, ‘I>>’, ‘I>>>’ (‘Ie>’; ‘Ie>>’ и ‘Ie>>>’ для ЗНЗ).
Ступени с выдержкой времени МТЗ обозначены следующим образом: ‘tI>’, ‘tI>>’, ‘tI>>>’ (‘tIe>’; ‘tIe>>’ и ‘tIe>>>’ для ЗНЗ).
Отключение от защиты происходит в случае если:
- Один из тех фазных токов превысил заданную уставку
- Истекла выдержка времени
- Отсутствует сигнал блокирования данной ступени от функции логического блокирования.
Функция Пуск-наброс, интегрированная в реле типа MiCOM P122 и P123, предоставляет возможность на заданное время изменить выбранные пользователем уставки таким образом, чтобы исключить пуск/срабатывание реле вследствие увеличения тока нагрузки, которое может произойти при включении, например, значительной отопительной нагрузки после длительного отключения энергоснабжения или при включении двигательной нагрузки с большими кратностями пускового тока.
При включении фидера, в течении некоторого времени ток может значительно превышать ток нормального нагрузочного режима. Вследствие этого, максимальные токовые защиты, рассчитанные для защиты от коротких замыканий, могут неправильно срабатывать.
Функция Пуск-Наброс , интегрированная в реле MiCOM P122 и P123 служит для повышения выбранных пользователем уставок ступеней на заданное время. Это позволяет приблизить уставки защит к токам нагрузки путем автоматического повышения порога срабатывания в момент включения фидера. Данная функция обеспечивает стабильность защиты (отсутствие пусков и срабатываний) без поиска компромиссных уставок (загрубление, отстройка по времени и т.п.). Если какие-то ступени защиты выведены при конфигурировании реле, то они не появляются в меню функции Пуск-Наброс.
Контроль ресурса выключателя.
Функция контроля технического состояния выключателя интегрированная в MiCOM P123 может быть использования для организации системы предупредительного ремонта коммутационных аппаратов. Реле контролирует время включения/отключения выключателя путем сравнения фактического контрольного времени, подсчитывает количество операций и сумму токов или квадратов отключаемых токов в каждой из фаз. Контроль целостности цепи отключения контролируется назначенным для этой цели оптовходом реле. Результаты контроля технического состояния выключателя могут быть выведены на дисплей реле или переданы по сети.
Устройство резервирования отказа выключателя (УРОВ).
При возникновении короткого замыкания срабатывают одно или несколько устройств защиты и посылают команду на отключение выключателя присоединения, на котором произошло замыкание. Отключение выключателя должно локализовать повреждение для предотвращения или уменьшения объемов повреждения оборудования.
Кроме этого, замедление в отключении короткого замыкания на линиях электропередачи может вызвать нарушение устойчивости системы. Общепринятой практикой является использование устройств резервирования отказа выключателя, контролирующего отключение выключателя в течение заданного времени. Устройство резервирования отказа выключателя срабатывает в случае, если ток короткого замыкания не прекратился по истечении установленного времени после подачи команды на его отключение.
Функция УРОВ может быть использована для локализации повреждения путем отключения вышестоящего выключателя при отказе выключателя ближайшего к месту КЗ. Кроме этого, срабатывание функции УРОВ позволяет деблокировать защиты вышестоящего выключателя путем принудительного возврата своих выходных реле (срабатывающих без выдержки времени от пусковых органов ступеней), использованных для блокирования вышестоящих защит.
Регистратор событий.
Реле выполняет запись с привязкой по времени до 75 событий, записи которых хранятся в энергонезависимой памяти (резервирование питания с помощью аккумуляторной батареи). Это предоставляет дополнительную возможность восстановления последовательности событий произошедших с участием данного реле при изменениях режимов работы системы, выполнении операций по переключениям, изменению уставок и т.п. При исчерпании доступного объема памяти, последние события замещают самые старые события.
Часы реального времени, встроенные в реле, используются в том числе и для привязки по времени всех событий с разрешением в 1мс.
События записанные в памяти реле доступны как через передний порт связи RS232 так и удаленным доступом по заднему порту связи RS485.
Для извлечения из памяти реле данных о записанных событиях посредством удаленного доступа, руководствуйтесь к разделу «Распределение данных в памяти реле» технического руководства, в котором полностью описана данная процедура.
Регистратор аварий.
Запись регистратора аварий формируется и сохраняется в памяти при каждом превышении какой либо из заданных уставок. Регистратор аварий фиксирует и сохраняет в энергонезависимой памяти (резервируемой с помощью аккумуляторной батареи) до пяти записей аварий. Это позволяет оператору лучше понять и проанализировать аварии в энергосистеме. При исчерпании доступного объема памяти, последняя запись замещает самую старую.
Доступ к просмотру любой из пяти записей регистратора аварий выполняется в меню ЗАПИСИ/ЗАПИСИ СОБЫТИЙ/НОМЕР СОБЫТИЯ (RECORD/Fault Record). Каждая запись начинается с флага (признака) события, даты и времени события, индикации измеренных аналоговых сигналов и т.д. Следует отметить, что метка времени записи аварии более точна чем соответствующая метка времени в регистраторе событий поскольку события датируются после того как выполнена соответствующая запись аварии.
Записи регистратора аварий доступны для просмотра либо на дисплее реле, либо через передний порт связи RS232 либо средствами удаленного доступа, через порт связи RS485.
Для извлечения из памяти реле данных о записанных авариях посредством удаленного доступа, руководствуйтесь к разделу «Распределение данных в памяти реле» технического руководства, в котором полностью описана данная процедура.
2.6.5 Выбор релейной защиты
Сравнивая характеристики релейных защит SPAC , MiCOM , Мрзс-05 по Быстродействию, Селективности, Чувствительности и Надежности выяснилось что лучшие показатели у устройств cерии MiCOM.
Также устройства cерии MiCOM обладают большим набором функций и достаточно проты в эксплуатации и настройке.
Серия MiCOM объединяет широкий диапазон устройств предназначенных для использования в качестве устройств релейной защиты автоматики и управления разнообразного оборудования энергосистем, такого как электродвигатели, генераторы, фидеры, воздушные линии электропередачи и кабельные линии.
Реле MiCOM P123разработаны с целю обеспечения большей функциональности в отношении релейной защиты, измерения и автоматики и управления в сети среднего напряжения.
2.8. Описание принципиальной однолинейной схемы
По надежности электроснабжения потребители РУ-6 кВ относятся к категории II.
Распределительной устройство получает питание от ЗРУ-6 кВ подстанции «Голованы» по двум взаимно резервируемым линиям. Распределительное устройство выполнено двухсекционным. Между секциями шин установлен секционный вакуумный выключатель и секционный разъединитель. Предусмотрен режим работы при питании как от двух вводов, так и от одного ввода.
Распределительное устройство выполнено на базе сборных камер одностороннего обслуживания КСО-298. В силовой цепи установлены вакуумные выключатели ВВ/TEL, шинные и линейные разъединители, заземляющие ножи. На каждой секции установлен измерительный трансформатор напряжения НТМИ-6 и трансформатор собственных нужд ТМ-25.
Для защиты трансформаторов напряжения и трансформаторов собственных нужд предусмотрены плавкие предохранители ПКТ-6. Для защиты вводов и фидеров используются реле защиты MICOMP123, включенные через трансформаторы тока и трансформаторы тока нулевой последовательности.
В цепях учета установлены счетчики активной и реактивной энергии СЭТ-ТМ.02.2.
Для защиты изоляции питаемой нагрузки и кабелей от коммутационных перенапряжения используются ограничители перенапряжения ОПН/TEL-6/7.2 с классом напряжения 6 кВ и наибольшим длительно допустимым напряжением 7.2 кВ.
Список литературы.
1. «Типовые материалы для проектирования».
2. Афонасьев В.В. Адоньев Н.Н. «Трансформаторы тока»
Энергоатомиздат. Ленинград. 1989.
3. Баптиданов Л. Н. и Тарасов В.И. «Электрооборудование
электрических станций и подстанций»
ГОСЭНЕРГОИЗДАТ. 1989.
4. Вавилов. В.Н. «Трансформаторы напряжения и их
вторичные цепи» Энергия. 1977.
5. «Правила техники безопасности при эксплуатации
электроустановок потребителей». Энергоатомиздат.
Москва. 1989
6. ПУЭ. Москва. 2000.
7. Крупивич В.И., «Справочник
по проектированию электроснабжения» ЭНЕРГИЯ.
Москва. 1980.
8. Промышленные каталоги.
9. Руководство по эксплуатации на комплектные устройства
защиты и автоматики SPAC-810. АББЧ.656122.033-ХХ РЭ. 2006.
10. Шабад М.А. «Расчеты релейной защиты и автоматики
распределительных сетей» Монография.
Санкт- Петербург. 2003.



