| Скачать .docx |
Курсовая работа: Выбор и расчет электродвигателя
Введение
Для передачи вращающего момента, от вала двигателя к валу рабочей машины, в приводах различных машин и механизмов применяются редукторы.
Редуктором называют механизм, состоящий из зубчатых или червячных передач, выполненный в виде отдельного агрегата и служащий для передачи вращающего момента от вала двигателя к валу рабочей машины, поэтому редукторы широко применяются в приводах различных машин и механизмов. Редуктор состоит из корпуса (ленточного чугунного или сварного стального), в котором помещают элементы передачи – зубчатые колеса, валы, подшипники и т.д.
Редуктор предназначен для понижения угловой скорости и соответственно повышения вращающего момента ведомого вала по сравнению с ведущим.
Редуктор проектируют либо для привода определённой машины, либо по заданной нагрузке и передаточному числу без указания конкретного назначения.
Передаточное отношение одноступенчатых цилиндрических редукторов ограничено Umax ≤ 6,3, поэтому для реализации больших передаточных отношений в схему привода дополнительно включают цепные или ременные передачи.
Для привода ленточного конвейера спроектировать одноступенчатый цилиндрический редуктор общего назначения с прямозубыми колесами предназначенный для длительной эксплуатации. Передача нереверсивная , нагрузка близкая к постоянной. Работа двухсменная.
Исходные данные:
Тяговое усилие ленты Fл = 2,07 кН
Скорость ленты Vл = 1,33 м/с
Диаметр приводного барабана Дб = 380 мм
Схема привода
![]() |
|
![]() |
|
1. Выбор электродвигателя и кинематический расчет
По таблице 1.1 [1] принимаем:
К.п.д. пары цилиндрических зубчатых колес h1 = 0,98;
К.п.д. пары подшипников качения h3 = 0,99;
К.п.д. открытой цепной передачи h2 = 0,92;
К.п.д. потерь в опорах приводного барабана h4 = 0,99
Общий К.п.д. привода
h = h1 ×h2 2 ×h3 ×h4 = 0,98 × 0,992 × 0,92 × 0,99 = 0,87
Мощность на валу барабана
Рб = Vл ×Fл = 1.33× 2.07 = 2.75кВт
Требуемая мощность электродвигателя
кВт
Угловая скорость барабана
рад/с
Частота вращения барабана
об/мин.
По ГОСТ 19523- 81 (таблица п.1) по требуемой мощности Ртр = 3,15 кВт выбираем асинхронный трехфазный короткозамкнутый электродвигатель серии 4А с синхронной частотой частотой вращения nc = 1000 об/мин. Типа 112 МВ6 с параметрами Рдв = 4 кВт и скольжением S = 5,1%.
Номинальная частота вращения двигателя
nдв = 1000 (1-S) = 1000(1-0.051)=949 об/мин
Угловая скорость электродвигателя
рад/с
Передаточное отношение привода
![]()
Принимаем по ГОСТ 2185-66передаточное отношение редуктора Up = 4, тогда передаточное отношение цепной передачи
![]()
Вращающие моменты на валах:
На валу шестерни
Н×м
Навалу колеса Т2 = T1 ×Up = 31,7× 4 = 126,8 Н×м
Частоты вращения и угловые скорости валов
| Вал В | n1 = nдв= 949об/мин | w1 = wдв = 99,3 рад/с |
| Вал С | ||
| Вал А | n3 = nб = 67 об/мин | n3 = nб = 67 об/мин |
2.Расчет зубчатых колес редуктора
По таблице 3.3 [1] выбираем материал зубчатых колес:
для шестерни сталь 45 – термообработка улучшение, твердость НВ 230;
для колеса – сталь 45 – термообработка улучшение, твердость НВ 200.
Допускаемые контактные напряжения (формула 3.9 [1])
,
где GН limb – предел контактной выносливости при базовом числе циклов нагружения.
По таблице 3.2 [1] для материала колёс:
Н
limb
= 2НВ + 70.
КHL – коэффициент долговечности при длительной эксплуатации КHL = 1,0 (стр.33 [1]);
[Sн ]- коэффициент безопасности. Для улучшеной стали [Sн ] = 1,15 (cтр. 33 [1]).
Допускаемые контактные напряжения
для шестерни
Мпа;
для колеса
Мпа.
Коэффициент нагрузки, с учётом влияния изгиба от натяжения цепи, принимаем как для несимметрично расположенных колёс. По таблице 3.1[1] Кнл =1.25
Коэффициент ширины вунца по межосевому расстоянию Ψва = в/aw
Для прямозубых колёс Ψва = 0,16 (стр.36)
Межосевое расстояние из условия контактной выносливости активных поверхностей зубьев определяем по формуле 3.7 [1]
мм,
Принимаем по ГОСТ 2185–66 аw = 180 мм
где Ка = 49,5 – коэффициент для прямозубых колес (страница 32 [1]).
Нормальный модуль зацепления
m = (0,01¸ 0,02) аw = (0,01¸ 0,02) × 180 = (1,8¸3,5) мм.
Принимаем по ГОСТ 9563-60 m = 3 мм
Определяем суммарное число зубьев колес
![]()
Число зубьев шестерни
![]()
Число зубьев колеса
Z2 = ZE –Z1 = 120-24 = 96
Уточняем передаточное отношение
![]()
Уточняем межосевое расстояние
аw =0,5(Z1 – Z2 )m = 0.5 (24+96) ·3 =180 мм
Основные размеры шестерни и колеса:
делительные диаметры:
d1 =m·z1 = 3·24 = 72мм;
d2 =z2· m= 96·3 = 288мм.
Проверка:
мм.
диаметры вершин зубьев
da 1 = d1 + 2m = 72 + 2 × 3 = 78 мм;
da 2 = d2 + 2m = 288 + 2 × 3 = 294 мм.
диаметры впадин зубьев
df 1 = d1 - 2.5 m = 72-2.5·3 = 64.5 мм
Ширина колеса
мм.
Ширина шестерни b1 = b2 + (2÷5) = 30 + 4= 34 мм.
Коэффициент ширины шестерни по диаметру
.
Окружная скорость колеса и степень точности передачи:
м/с.
При такой скорости колёс следует принять 8-ую степень точности передачи.
По таблице 3.5 [1] при
bd
= 0.47 и твердости НВ< 350, принимаем КН
b
= 1.05.
По таблице 3.4 [1] при V = 3.6 м/с и 8-й степени точности, коэффициент КН a =1,09.
По таблице 3.6 [1] для шевронных колес коэффициент КHv = 1,05.
Тогда коэффициент нагрузки КН = КН b × КН a × КН v = 1.05 × 1,09 × 1,05 = 1.20
Проверяем контактные напряжения по формуле 3.6 [1]
Мпа < [
Н
].
Силы действующие в зацеплении:
окружная сила
Н
радиальная сила
Н,
Проверяем зубья на выносливость по напряжениям изгиба по формуле 3.25 [1]
£ [
F
].
где коэффициент нагрузки КF = KF b ×KFv
По таблице 3.7 [1] при
bd
= 0.47,твёрдости НВ<350. Коэффициент КF
b
= 1,08
По таблице 3.8 [1] при V=3.6и 8-ой степени точности коэффициент КFv = 1.45
Тогда КF = 1,08· 1,45 =1,57
YF – коэффициент прчности зуба по местным напряжениям, зависящий от эквивалентного числа зубьев zv :
тогда YF 1 = 4.09 YF 2 = 3.61 (страница 42 [1]).
Допускаемые напряжения при изгибе

По таблице 3.9 [1] для стали 45 улучшенной при твердости НВ< 350 принимаем ![]()
НВ.
для шестерни
0
Flimb
1
= 1,8 × НВ1
= 1,8 × 230 = 414Мпа;
для колеса
0
Flimb
2
= 1,81 × НВ2
= 1,8 × 200 = 360 Мпа.
Коэффициент безопасности [SF ] = [SF ]¢ [SF ]''.
По таблице 3.9 [1]: [SF ]¢ = 1,75 и [SF ]'' = 1,0.
Тогда [SF ] = 1,75 × 1,0 = 1,75.
Допускаемые напряжения:
для шестерни
Мпа;![]()
для колеса
Мпа.
Производим сравнительную оценку прочности зубьев для чего находим отношение
:
для шестерни
Мпа;
для колеса
Мпа.
Дальнейший расчет ведем для зубьев колеса , для которых это отношение меньше.
Мпа < [
F
2
] = 206Мпа.
Вывод: условие прочности выполнено.
3. Предварительный расчет валов редуктора
Предварительный расчет валов проведем на кручение. Крутящие моменты в сучениях вылов: ведущего-T1 = 31,7 H·м; ведомого –Т2 = 126.8 Н·м
3.1 Ведущий вал
Крутящий момент на валу Т1 = 12.5.
Допускаемые напряжения на кручение [tк ] = 25 Мпа.
Диаметр выходного конца вала

мм.
Так как ведущий вал редуктора соединяется муфтой МУВП с валом электродвигателя, то необходимо согласовать диаметры выходных концов валов.
По таблице 2[1] для электродвигателя 4A112М dдв = 32мм.
Тогда dв1 = 0,75 ×dдв = 0,75 × 32 =24м (страница 296 [1]);
диаметр вала под подшипниками принимаем dп1 = 20мм.
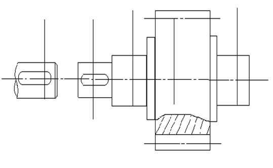
Конструкция ведущего вала

3.2 Ведомый вал:
Крутящий момент на валу Т2 = 50×м. Диаметр выходного конца вала под ведущую звездочку цепной передачи определяем по пониженным напряжениям [tк ] = 20 МПа, чем учитывается влияние изгиба вала от натяжения цепи:
мм
Принимаем dв2 = 32, диаметр вала под подшипники dп2 = 35м, под зубчатым колесом dк2 = 40.
Диаметр остальных участков валов назначаем исходя из конструктивных соображений при компоновке редуктора.
Конструкция ведомого вала
![]() |
4. Конструктивные размеры шестерни и колеса
Шестерню выполняем за одно целое с валом, ее размеры определены выше:
Z1 =24; m = 3мм; dа1 = 78; df 1 = 64.5м; b1 = 34.
Колесо кованое, его размеры
d2 = 288; da 2 = 294; b2 = 30мм; m = 3мм; Z2 = 96 мм; df 2 = 280.5мм,
диаметр ступицы колеса dст2 = 1,6 dк2 = 64мм
длина ступицы колеса lст2 = (1,2¸1,5) dк2 = (1,2¸1,5) × 40 = (48-60)мм
принимаем lст2 = b2 = 50
Толщина обода d0 = (2¸4) m = (2¸4) × 3= (6¸12)мм
принимаем d0 = 10мм.
Толщина диска С = 0,3 ×b2 = 0,3 × 30=9мм, принимаем с = 10мм
Диаметр окружности центров в диске
Дотв =0,5 (До + dст2 ) = 0.5(269+64) = 162мм
Где До = df 2 – (2do + 5m) = 294-(2·10+3·5) = 259мм
Диаметр отверстий в диске колеса
![]()
5.Конструктивные размеры корпуса редуктора
Толщина стенок корпуса и крышки
d = 0,025×aw + 1мм = 0,025 × 180 + 1 = 5,5 мм;
d1 = 0,02×aw +1мм = 0,02 × 180 + 1 = 4,6 мм
принимаем d = d1 = 8мм.
Толщина фланцев поясов корпуса и крышки
b = b1 = 1,5×d = 1,5 × 8 = 12 мм.
Толщина нижнего пояса корпуса
р = 2,35 ×d = 2,35 × 8 = 18,8 мм, принимаем p = 20 мм.
Диаметры болтов:
Фундаментных: d1 = (0,03¸0,036)×аw + 12 = (0,03¸0,036)×180 + 12 = (17,4¸18,5) мм; принимаем болты с резьбой М18;
крепящих крышку к корпусу у подшипников:
d2 = (0,7¸0,75)×d1 = (0,7¸0,75)×18 = (12,6¸13,5) мм, принимаем болты с резьбой М12.
соединяющих крышку с корпусом: d3 = (0,5¸0,6)×d1 = (0,5¸0,6)×18 = (9¸10,8) мм; принимаем болты с резьбой М10.
6. Расчет цепной передачи
Выбираем приводную роликовую однорядную цепь. Крутящий момент на валу
Т2 = 126,8Н·м
Передаточное отношение определено выше Uц = 3,55.
Число зубьев ведущей звездочки
z3 = 31 – 2Uц = 31 – 2 × 3,55 = 23,9; принимаем z3 = 24.
Число зубьев ведомой звездочки
z4 = z3 ×Uц = 24 × 3,55 = 85,2. Принимаем z4 = 85
Фактическое передаточное отношение
![]()
что соответствует принятому.
Оклонение Δ = 
Допускается ± 3%
Определяем расчетный коэффициент нагрузки (формула 7.38[1]);
Кэ = Кд ×Ка ×Кн ×Кр ×Ксм ×Кп = 1×1×1×1,25×1×1,25 = 1,56;
где Кд = 1 – динамический коэффициент при спокойной нагрузке;
Ка = 1 – коэффициент, учитывает влияние межосевого расстояния при ац £ (30÷60)t;
Кн
= 1 – коэффициент влияние угла наклона линии центров при
= 45°; Кн
=1,0
Кр – коэффициент, учитывает способ регулирования натяжения цепи Кр = 1,25 при периодическом регулировании натяжения цепи;
Ксм – коэффициент учитывает способ смазки; при непрерывной смазке Ксм = 1,0;
Кп – учитывает продолжительность работы передачи в сутки, при двухсменной работе Кп = 1,25.
Для определения шага цепи надо знать допускаемое давление [p] в шарнирах цепи. По таблице 7.18 [1] при n2 = 238 об/мин, ориентируясь на шаг цепи t = 19,05 принимаем [p] = 24 МПа.
Шаг однорядной цепи
мм.
Подбираем по таблице 7.15 [1] цепь ПР–25,4–60 по ГОСТ 13568-75, имеющую: шаг t = 25,4 мм; разрушающую нагрузку Q = 60кН; массу q = 2,6 кг/м;
Аоп = 179,7мм2 .
Скорость цепи
м/с.
Окружная сила
H.
Давление в шарнирах проверяем по формуле 7.39 [1]:
МПа.
Уточняем по таблице 7.18 [1] допускаемое давление.
р = 23 [ 1 + 0,01 (z3 – 17)] = 21 [1 + 0,01 (24 – 17)] = 22,5 МПа.
Условие р £ [p] выполнено.
Определяем число звеньев цепи (формула 7.36 [1])
,
где
(стрaница 148 [1]); zå
= z3
+ z4
= 24 + 85 = 109.
![]()
тогда Lt
= 2 · 50 + 0,5 · 109 +
= 156,4. Округляем до четного числа Lt
= 156.
Уточняем межосевое расстояние цепной передачи по формуле 7.37 [1]

Для свободного провисания цепи предусматриваем возможность уменьшения межосевого расстояния на 0,4%, т.е. на 1265 · 0,004 » 5 мм.
Определяем диаметры делительных окружностей звездочек по формуле 7.34 [1]
мм;
мм.
Определяем диаметры наружных окружностей звездочек.
мм
мм,
где d1 = 15,88 мм – диаметр ролика цепи (таблица 7.15 [1]).
Силы, действующие на цепь:
Окружная Ft ц = 1300Н (определены выше).
От центробежных сил Fv = q· u2 = 2,6 · 2,422 = 16 H.
От провисания цепи Ff = 9,81 · Kf · q· ац = 9,81 · 1,5 · 2,6 · 1,27= 49 Н,
Расчетная нагрузка на вал Fв = Ft ц + 2Fγ = 1300+ 2 · 49 = 1398H.
Проверяем коэффициент запаса прочности цепи (формула 7.40 [1])
> [S] = 8,4
где [S] = 8,4– нормативный коэффициент запаса прочности цепи (таблица 7.19 [1]).
Условие S > [S] выполнено
Размеры ведущей звездочки:
dd3 =194.6мм; Дез = 206мм
диаметр ступицы звездочки
Дст3 = 1,6 dв2 = 1,6 · 32 = 52мм;
длина ступицы lст3 = (1,2¸1,6) · dв2 = (1,2¸1,6) · 32 = (38,4÷51,2) мм;
принимаем lст3 = 50 мм.
Толщина диска звездочки
С = 0,93 Вн = 0,93 · 15,88 =14,8 мм
где Вн = 15,88 мм – расстояние между пластинами внутреннего звена цепи (табл. 7.15 [1])
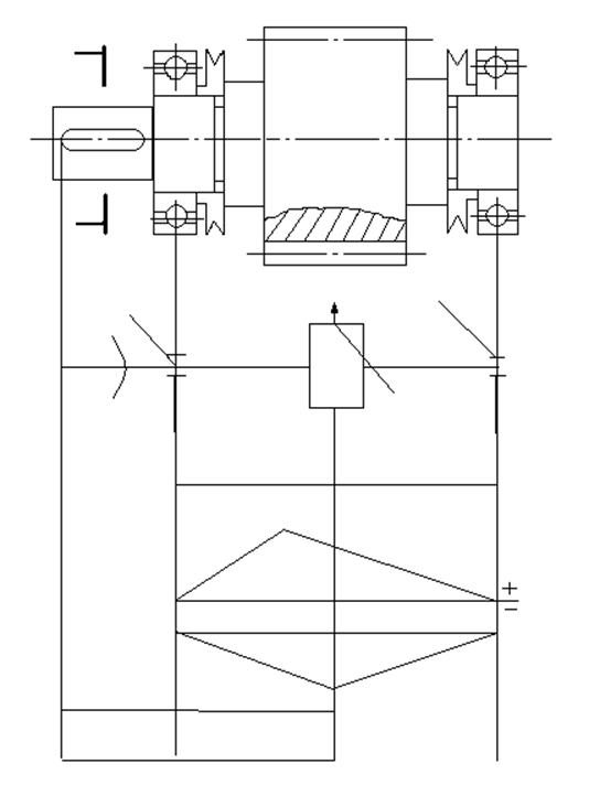
7. Первый этап компоновки редуктора
Компоновку выполняется в два этапа. Превый этап позволяет приближенно определить положение зубчатых колес и ведущей звездочки цепной передачи относительно опор для последующего определения опорных реакций и набора подшипников.
Компоновочный чертеж выполняем в одной проекции – разрез по осям валов, при снятой крышке корпуса в масштабе М 1:1.
Примерно по середине листа проводим горизонтальную осевую линию, затем две вертикальные оси валов на расстоянии аw = 180 мм.
Вычерчиваем упрощенно шестерню и колесо: шестерня выполнена за одно целое с валом: длина ступицы колеса равна ширине венца колеса.
Очерчиваем внутреннюю стенку корпуса:
а) принимаем зазор от окружности вершин зубьев колеса до внутренней стенки корпуса А = δ =10 мм;
б) принимаем зазор между торцом ступицы шестерни и внутренней стенкой корпуса А1 = 10 мм;
в) принимаем зазор между наружным кольцом подшипника ведущего вала и внутренней стенкой корпуса А2 = 10 мм.
Предварительно намечаем радиальные шарикоподшипники легкой серии по ГОСТ 8338-75. Габариты подшипников выбираем из таблицы П3. [1] по диаметру вала в месте посадки подшипника: dп1 = 30 мм; dп2 = 35 мм.
| Условное обозначение подшибника | d | D | B | Грузоподъёмность, кН | |
| Размеры, мм | |||||
| 206 | 30 | 62 | 16 | 19,5 | 10 |
| 207 | 35 | 72 | 17 | 25,5 | 13,7 |
Решаем вопрос смазки подшипников. Принимаем для подшипников пластичную смазку. Для предотвращения вытекания смазки внутрь и вымывания пластичной смазки жидким маслом из зоны зацепления устанавливаем мазеудерживающие кольца. Их ширина определяет размер У=10 мм; принимаем У = 10 мм.
Находим расстояние от середины шестерни до точек приложения реакции подшипников к валам:
на ведущем валу
мм;
на ведомом валу
мм;
тоесть l1 = l2 = 54 мм.
Из расчета цепной передачи определяем расстояние от точки приложения натяжения цепи к валу, до точки приложения реакции ближайшего из подшипника ведомого вала.
Длина гнезда подшибника
мм,
S = 10 мм – толщина врезной крышки;
Определяем расстояние от точки приложения натяжения цепи к валу до реакции ближайшего подшибника ведомого вала
мм
8. Проверка долговечности подшипников
8.1 Ведущий вал
Силы, действующие в зацеплении:
Ft = 500 H; Fr = 182 H, из первого этапа компоновки l1 = 46 мм.
Расчетная схема вала

Определяем реакции опор:
а) в горизонтальной плоскости
H;
б) в вертикальной плоскости
Н.
Определяем изгибающие моменты и строим эпюры:
а) в горизонтальной плоскости
Mx 1 = 0; Mx 2 = 0; Mcx = Rx 1 · l1 = 440· 54 = 23760 H·мм = 23,76 Н·м;
б) в вертикальной плоскости
My1 = 0; My2 = 0; Mcy = Ry1 · l1 = 160·54 = 8640 H·мм = 8,64 Н·м.
Определяем суммарные реакции опор
![]()
Так как осевая нагрузка в зацеплении отсутствует, то коэффициент осевой нагрузки
y = 0, а радиальной x = 1,0.
Эквивалентную нагрузку определяем по формуле
Рэ = x· v· R· Кб · Кт
при t < 100°C, температурный коэффициент Кт = 1,0 (табл. 9.20 [1] );
V = 1,0 – коэффициент при вращении внутреннего кольца подшипника.
Кб =1.2 –коэфициент безопасности для редукторов
Тогда Рэ = 1,0 · 1,0 · 470 · 1,2 · 1,0 = 570 H = 0,57кН.
Расчетная долговечность, часов
часов.
8.2 Ведомый вал
Силы действующие в зацеплении: Ft = 880 H; Fr = 320 H; Fц = 1398 H. Крутящий момент на валу Т2 = 126 Н·м. n2 = 238об /мин
Из первого этапа компоновки: l2 = 54 мм; l3 = 70 мм.
Расчетная схема вала

Составляющие действующие на вал от натяжения цепи.
Fц x = Fц y = Fц · sinγ = 1398 · sin 45° = 1398 · 0,7071 = 988 Н.
Определяем реакции опор:
а) в горизонтальной плоскости
åm3 = 0; Fц x · (2l2 + l3 ) – Ft · l2 – Rx 4 · 2l2 = 0;
Н;
åm4 = 0; – Rx3 · 2l2 + Ft · l2 + Fц x · l3 = 0
H.
Проверка:
åxi = 0; Rx3 + Fц x – Ft – Rx4 = 1126 + 988 – 880 – 1234= 0.
Следовательно реакции определены верно.
б) в вертикальной плоскости
åm3 = 0; Fr ·l2 + Fц y · (2l2 + l3 ) – Ry4 · 2l2 = 0
H;
åm4 = 0; – Ry3 · 2l 2 – Fr · l 2 + Fц y ·l 3 = 0;
Н.
Проверка:
åyi = 0; Ry3 + Fr + Fц y – Ry4 = 480 + 320+988 – 1788 = 0.
Следовательно реакции определены верно.
Определяем изгибающие моменты и строим эпюры:
а) в горизонтальной плоскости
Мx 3 = 0; Mbx = 0;
Max = - Rx 3 · l2 = - 1126· 54 = - 60800 H·мм = -60,8 Н·м;
M4х = - Fц x · l3 = - 988 ·70 = - 69160 H·мм = - 69,16 Н·м;
б) в вертикальной плоскости
M3 y = 0,Mby = 0;
May = Ry 3 · l2 = 480 · 54 = 25920 H·мм = 25,92 Н·м;
M4 y = - Fц y · l3 = - 998 · 70 = - 69160 H·мм = - 69,16 Н·м.
Определяем суммарные реакции опор
Н;
Н.
Эквивалентную нагрузку определяем для более нагруженной опоры “4”, так как
R4 > R3 .
Значения коэффициентов принимаем те же, что и для ведущего вала:
x = 1,0,v = 1,0, Кт = 1,0, Кб = 1,2. У = 0;
Определяем эквивалентную нагрузку
Рэ4 = x· v· R4 · Кт · Кб = 1,0 · 1,0 · 2,18 · 1,2 · 1,0 = 2,62 кН.
Расчетная долговечность, часов
часов.
Подшипники ведущего вала № 205 имеют ресурс Lh = 69·104 ч, а подшипники ведомого вала № 206 имеют ресурс Lh = 64,52·103 часов.
9. Проверка прочности шпоночных соединений
Шпонки призматические со скругленными торцами. Размеры сечений шпонок, пазов и длины по ГОСТ 23360 – 78. Материал шпонок сталь 45, нормализованная.
Напряжения смятия и условие прочности
;
допускаемые напряжения при стальной ступице [
см
] = 120 МПа, а при чугунной ступице [Gсм
] = 70 МПа.
9.1 Ведущий вал
Крутящий момент на валу Т1 = 31,7 Н·м.
Шпонка на выходном конце вала для соединения муфтой с валом электродвигателя. По таблице 8.9 [1] при dв1 = 18 мм находим b×h = 8×7 мм; t1 = 4 мм; длина шпонки
l = 40 мм, при длине ступицы полумуфты lст = 45 мм (Таблица 11.5 [1]).
Тогда ![]()
9.2 Ведомый вал
Крутящий момент на валу Т2 = 126,8 Н·м.
Шпонка под зубчатым колесом dк2 = 40 мм. По табл. 8.9 [1] принимаем b×h = 12×8 мм; t1 = 5 мм; длина шпонки l = 45 мм . При длине ступицы колеса lст3 = 50 мм.
Тогда ![]()
Шпонка на выходном конце вала, под ведущую звёздочку цепной передачи,
dв2 = 32мм; По таблице8.9[1] b×h = 10×8; t1 = 5мм; l = 50мм; при длине ступицы звёздочки lст = 55мм
Звёздочка литая из стали 45Л
Тогда ![]()
Вывод: Условие
см
£ [
см
] выполнено.
10. Уточненный расчет валов
Будем выполнять расчет для предположительно опасных сечений. Прочность соблюдена при S³ [S].
10.1 Ведущий вал
Материал вала сталь 45, улучшенная так как вал изготовлен за одно целое с шестерней. По таблице 3.3 [1] при диаметре заготовки до 90 мм (в нашем случае da
1
= 78 мм) принимаем
в
= 780 МПа.
Предел выносливости при симметричном цикле изгиба
= 0,43·
в
= 0,43 · 780 = 335 МПа.
Предел выносливости при симметричном цикле касательных напряжений
t-1
= 0,58·
= 0,58 · 335 = 193 МПа.
Сечение А-А .
Это сечение выходного конца вала dв1 = 24 мм под муфту, для соединения вала двигателя с валом редуктора. Концентрацию напряжений вызывает наличие шпоночной канавки. По таблице 8.9 [1] при dв1 = 24 мм находим b = 8 мм; t1 = 4 мм. Это сечение рассчитываем на кручение. Коэффициент запаса прочности сечения
.
Момент сопротивления кручению
мм3
.
Крутящий момент на валу Т1 = 12,5 Н·м.
Амплитуда и среднее напряжение цикла касательных напряжений
МПа.
Принимаем по таблице 8.5 [1] K
= 1,78,
по таблице 8.8 [1] et = 0,83 и yt = 0,1. Тогда

10.2 Ведомый вал
Материал вала – сталь 45, нормализованная. По табл.3.3[1] принимаем в = 580 МПа.
Cечение вала А-А.
Это сечение под зубчатым колесом dк2 = 40 мм. Крутящий момент на валу
Т2 = 126,8 Н·м. Концентрация напряжений обусловлена наличием шпоночной канавки. По табл. 8.9 [1] при dк2 =35мм находим b = 12 мм, t1 = 5 мм.
Вал подвергается совместному действию изгиба и кручения.
Момент сопротивления изгибу:
мм3
.
Амплитуда нормальных напряжений:
МПа. ![]()
Амплитуда и среднее напряжение цикла касательных напряжений:
МПа.
По табл. 8.5 [1] K
= 1,58; Kt
= 1,48;
По табл. 8.8 [1] e
= 0,85; et
= 0,73; yt
= 0,1.
Коэффициент запаса прочности по нормальным напряжениям
.
Коэффициент запаса прочности по касательным напряжениям

Результирующий коэффициент запаса прочности сечения

Сечение вала Б-Б.
Это сечение выходного конца вала под ведущую звездочку цепной передачи
dв2 = 32мм. Концентрация напряжений обусловлена наличием шпоночной канавки. По табл. 8.9 [1] при dв2 =25 мм находим b = 10 мм, t1 = 5 мм.
Вал подвергается совместному действию изгиба и кручения
Изгибающий момент в сечении под звездочкой
Mи = Fц · x, приняв x =50 мм получим
Ми = 1398 · 50 = 69,9 Н·м.
Момент сопротивления кручению
мм3
.
Момент сопротивления изгибу
мм3
.
Амплитуда нормальных напряжений
МПа;
m
= 0.
Амплитуда и среднее напряжение цикла касательных напряжений
МПа.
По табл. 8.5 [1] принимаем К
= 1,58; Кt
= 1,48.
По табл. 8.8 [1] находим e
= 0,87; et
= 0,76;
Коэффициент запаса прочности по нормальным напряжениям

Коэффициент запаса прочности по касательным напряжениям

Результирующий коэффициент запаса прочности сечения

Вывод: прочность валов обеспечена.
11. Выбор сорта смазки
Смазывание зубчатого зацепления производится окунанием зубчатого колеса в масло, заливаемое внутрь корпуса редуктора.
Объем масляной ванны (Vм ) определяется из расчета 0,25 дм3 масла на 1 кВт передаваемой мощности.
Vм = 0,25· Ртр = 3,15 = 0,7 дм3 .
По табл. 10.8 [1] устанавливаем вязкость масла. При контактных напряжениях
н
= 302 МПа и скорости колес V = 4,26 м/с рекомендуемая вязкость масла
u50 = 28·10-6 м2 /c
По табл. 10.10 [1] по ГОСТ 20799 – 75 выбираем масло индустриальное И - 30А.
Подшипниковые камеры заполняют пластичной смазкой УТ-1 (Табл. 9.14 [1]). Периодически смазка пополняется шприцем через пресс – масленки.
12. Посадки деталей редуктора
Посадки назначаем в соответствии с указаниями таблица 10.13. [1]
по ГОСТ 25347 – 82.
Посадка зубчатого колеса на вал
.
Посадка ведущей звездочки на вал
.
Шейки валов под подшипники выполняем с отклонением вала к6. Отклонения отверстий в корпусе под наружные кольца подшипников по Н7.
Посадки остальных деталей указаны на сборочном чертеже редуктора.
13. Сборка редуктора
Перед сборкой внутреннюю полость редуктора тщательно очищают и покрывают маслостойкой краской. Сборку производят в соответствии с чертежом общего вала, начиная с узлов валов;
На ведущий вал насаживают мазеудерживающие кольца и устанавливают шарикоподшипники номер 206, предварительно нагретые в масле до t = 90 – 100 °С и надевают сквозную подшипниковую крышку.
В ведомый вал закладывают шпонку 12×8×45 мм и напрессовывают колесо до упора в бурт вала, устанавливают распорную втулку, мазеудерживающие кольца, шарикоподшипники номер 207 предварительно нагретые в масле и надевают сквозную подшипниковую крышку.
Собранные валы укладывают в основание корпуса, заполняют подшипниковые камеры пластичной смазкой. Покрывают поверхности стыка корпуса и крышки спиртовым лаком, устанавливают в проточки корпуса глухие врезные подшипниковые крышки и устанавливают крышку корпуса.
Перед установкой сквозных подшипниковых крышек в проточки закладывают войлочные сальники.
Для центровки крышка устанавливается на корпусе с помощью двух конических штифтов.
Проверяют проворачиванием валов отсутствие заклинивания подшипников и закрепляют крышку корпуса болтами.
Ввертывают пробку маслоспускного отверстия с прокладкой, жезловый маслоуказатель и пресс-масленки. Заливают внутрь корпуса масло индустриального И – 30А и закрывают смотровое отверстие крышкой с прокладкой, из маслостойкой резины, и закрепляют крышку болтами.
Собранный редуктор обкатывают и подвергают испытанию на стенде.
Литература
Чернавский С.А. и др. “Курсовое проектирование деталей машин”. М., 1987г.
Устюгов.И.И «Детали машин». М 1981г.


