| Похожие рефераты | Скачать .docx |
Реферат: Котельные установки
1. Котельные установки
1.1 Общие сведения и понятия о котельных установках
Котельная установка представляет собой комплекс устройств, размещенных в специальных помещениях и служащих для преобразования химической энергии топлива в тепловую энергию пара или горячей воды. Основные элементы котельной установки – котел, топочное устройство (топка), питательные и тягодутьевые устройства.
Котел – теплообменное устройство, в котором тепло от горячих продуктов горения топлива передается воде. В результате этого в паровых котлах вода превращается в пар, а в водогрейных котлах нагревается до требуемой температуры.
Топочное устройство служит для сжигания топлива и превращения его химической энергии в тепло нагретых газов.
Питательные устройства (насосы, инжекторы) предназначены для подачи воды в котел.
Тягодутьевое устройство состоит из дутьевых вентиляторов, системы газовоздуховодов, дымососов и дымовой трубы, с помощью которых обеспечиваются подача необходимого количества воздуха в топку и движение продуктов сгорания по газоходам котла, а также удаление их в атмосферу. Продукты сгорания, перемещаясь по газоходам и соприкасаясь с поверхностью нагрева, передают тепло воде.
Для обеспечения более экономичной работы современные котельные установки имеют вспомогательные элементы: водяной экономайзер и воздухоподогреватель, служащие соответственно для подогрева воды и воздуха; устройства для подачи топлива и удаления золы, для очистки дымовых газов и питательной воды; приборы теплового контроля и средства автоматизации, обеспечивающие нормальную и бесперебойную работу всех звеньев котельной.
В зависимости от того, для какой цели используется тепловая энергия, котельные подразделяются на энергетические, отопительно-производственные и отопительные.
Энергетические котельные снабжают паром паросиловые установки, вырабатывающие электроэнергию, и обычно входят в комплекс электрической станции. Отопительно-производственные котельные сооружаются на промышленных предприятиях и обеспечивают тепловой энергией системы отопления и вентиляции, горячего водоснабжения зданий и технологические процессы производства. Отопительные котельные предназначаются для тех же целей, но обслуживают жилые и общественные здания. Они делятся на отдельно стоящие, сблокированные, т.е. примыкающие к другим зданиям, и встроенные в здания. В последнее время все чаще строят отдельно стоящие укрупненные котельные с расчетом на обслуживание группы зданий, жилого квартала, микрорайона.
Устройство встроенных в жилые и общественные здания котельных в настоящее время допускается только при соответствующем обосновании и согласовании с органами санитарного надзора.
Котельные малой мощности (индивидуальные и небольшие групповые) обычно состоят из котлов, циркуляционных и подпиточных насосов и тягодутьевых устройств. В зависимости от этого оборудования в основном определяются размеры помещений котельной.
Котельные средней и большой мощности — 3,5 МВт и выше - отличаются сложностью оборудования и составом служебно-бытовых помещений. Объемно-планировочные решения этих котельных должны удовлетворять требованиям Санитарных норм проектирования промышленных предприятий (СИ 245—71), СНиП П-М.2-72 и 11-35-76.
1.2 Классификация котельных установок
Котельные установки в зависимости от характера потребителей разделяются на энергетические, производственно-отопительные и отопительные. По виду вырабатываемого теплоносителя они делятся на паровые (для выработки пара) и водогрейные (для выработки горячей воды).
Энергетические котельные установки вырабатывают пар для паровых турбин на тепловых электростанциях. Такие котельные оборудуют, как правило, котлоагрегатами большой и средней мощности, которые вырабатывают пар повышенных параметров.
Производственно-отопительные котельные установки (обычно паровые) вырабатывают пар не только для производственных нужд, но и для целей отопления, вентиляции и горячего водоснабжения.
Отопительные котельные установки (в основном водогрейные, но они могут быть и паровыми) предназначены для обслуживания систем отопления производственных и жилых помещений.
В зависимости от масштаба теплоснабжения отопительные котельные разделяются на местные (индивидуальные), групповые и районные.
Местные котельные обычно оборудуют водогрейными котлами с нагревом воды до температуры не более 115°С или паровыми котлами с рабочим давлением до 70 кПа. Такие котельные предназначены для снабжения теплом одного или нескольких зданий.
Групповые котельные установки обеспечивают теплом группы зданий, жилые кварталы или небольшие микрорайоны. Такие котельные оборудуют как паровыми, так и водогрейными котлами, как правило, большей теплопроизводительности, чем котлы для местных котельных. Эти котельные обычно размещают в специально сооруженных отдельных зданиях.
Районные отопительные котельные служат для теплоснабжения крупных жилых массивов: их оборудуют сравнительно мощными водогрейными или паровыми котлами.
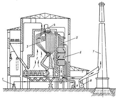
На рис. 1.1 представлена схема котельной установки с паровыми котлами. Установка состоит из парового котла 4, который имеет два барабана — верхний и нижний. Барабаны соединены между собой тремя пучками труб, образующих поверхность нагрева котла. При работе котла нижний барабан заполнен водой, верхний — в нижней части водой, а в верхней — насыщенным водяным паром. В нижней части котла расположена топка 2 с механической колосниковой решеткой для сжигания твердого топлива. При сжигании жидкого или газообразного топлива вместо решетки устанавливают форсунки или горелки, через которые топливо вместе с воздухом подается в топку. Котел ограничен кирпичными стенами —обмуровкой.

Рис. 1.1. Схема паровой котельной установки
Рабочий процесс в котельной протекает следующим образом. Топливо из топливного склада подается транспортером в бункер, откуда оно поступает на колосниковую решетку топки, где сгорает. В результате горения топлива образуются дымовые газы – горячие продукты сгорания.
Дымовые газы из топки поступают в газоходы котла, образуемые обмуровкой и специальными перегородками, установленными в пучках труб. При движении газы омывают пучки труб котла и пароперегревателя 3, проходят через экономайзер 5 и воздухоподогреватель 6, где они также охлаждаются вследствие передачи тепла воде, поступающей в котел, и воздуху, подаваемому в топку. Затем значительно охлажденные дымовые газы при помощи дымососа 5 удаляются через дымовую трубу 7 в атмосферу. Дымовые газы от котла могут отводиться и без дымососа под действием естественной тяги, создаваемой дымовой трубой.
Вода из источника водоснабжения по питательному трубопроводу подается насосом 1 в водяной экономайзер, откуда после подогрева поступает в верхний барабан котла. Заполнение барабана котла водой контролируется по водоуказательному стеклу, установленному на барабане.
Из верхнего барабана котла вода по трубам опускается в нижний барабан, откуда по левому пучку труб она снова поднимается в верхний барабан. При этом вода испаряется, а образующийся пар собирается в верхней части верхнего барабана. Затем пар поступает в пароперегреватель 3, где за счет тепла дымовых газов он полностью подсушивается, и температура его повышается.
Из пароперегревателя пар поступает в главный паропровод и оттуда к потребителю, а после использования конденсируется и в виде горячей воды (конденсата) возвращается обратно в котельную.
Потери конденсата у потребителя восполняются водой из водопровода или из других источников водоснабжения. Перед подачей в котел воду подвергают соответствующей обработке.
Воздух, необходимый для горения топлива, забирается, как правило, вверху помещения котельной и подается вентилятором 9 в воздухоподогреватель, где он подогревается и затем направляется в топку. В котельных небольшой мощности воздухоподогреватели обычно отсутствуют, и холодный воздух в топку подается или вентилятором, или за счет разрежения в топке, создаваемого дымовой трубой. Котельные установки оборудуют водоподготовительными устройствами (на схеме не показаны), контрольно-измерительными приборами и соответствующими средствами автоматизации, что обеспечивает их бесперебойную и надежную эксплуатацию.
Водогрейные котельные установки предназначены для получения горячей воды, используемой для отопления, горячего водоснабжения и других целей.
На рис. 1.2 приведена схема районной отопительной котельной с водогрейными котлами 1 типа ПТВМ-50 теплопроизводительностью 58 МВт. Котлы могут работать на жидком и газообразном топливе, поэтому они оборудованы горелками и форсунками 3.
Воздух, необходимый для горения, подается в топку дутьевыми вентиляторами 4, приводимыми в действие электродвигателями. На каждом котле установлено 12 горелок и столько же вентиляторов.
Вода в котел подается насосами 5, приводимыми в действие электродвигателями. Пройдя через поверхность нагрева, вода нагревается и поступает к потребителям, где отдает часть тепла и с пониженной температурой снова возвращается в котел. Дымовые газы из котла удаляются в атмосферу через трубу 2.

Рис. 1.2. Схема районной отопительной котельной установки с водогрейными котлами
Компоновка котельной полуоткрытого типа: нижняя часть котлов (примерно до высоты 6 м) расположена в здании, а верхняя их часть — на открытом воздухе. Внутри котельной размещаются дутьевые вентиляторы, насосы, а также щит управления. На перекрытии котельной установлен деаэратор 6 для удаления воздуха из воды.
Котельная установка с паровыми котлами (рис. 1.1) имеет компоновку закрытого типа, когда все основное оборудование котельной размещено в здании.
Для обеспечения нормальной эксплуатации котельные с водогрейными котлами оборудуют необходимой арматурой, контрольно-измерительными приборами и средствами автоматизации.
Водогрейная котельная имеет один теплоноситель — воду в отличие от паровой котельной, у которой два теплоносителя — вода и пар. В связи с этим в паровой котельной необходимо иметь отдельные трубопроводы для пара и воды, а также баки для сбора конденсата. Однако это не значит, что схемы водогрейных котельных проще паровых. Водогрейная и паровая котельные по сложности устройства бывают различными в зависимости от вида используемого топлива, конструкции котлов, топок и т. п. В состав как паровой, так и водогрейной котельной установки обычно входят несколько котлоагрегатов, но не менее двух и не более четырех-пяти. Все они связываются между собой общими коммуникациями—трубопроводами, газопроводами и др.
1.3 Классификация котельных агрегатов
Котлы как технические устройства для производства пара или горячей воды отличаются многообразием конструктивных форм, принципов действия, используемых видов топлива и производственных показателей. Вместе с тем по способу организации движения воды и пароводяной смеси все котлы могут быть разделены на следующие две группы:
• котлы с естественной циркуляцией;
• котлы с принудительным движением теплоносителя (воды, пароводяной смеси).
В современных отопительных и отопительно-производственных котельных для производства пара используются в основном котлы с естественной циркуляцией, а для производства горячей воды — котлы с принудительным движением теплоносителя, работающие по прямоточному принципу.
Современные паровые котлы с естественной циркуляцией выполняются из вертикальных труб, расположенных между двумя коллекторами (барабанами). Одна часть труб, называемых обогреваемыми «подъемными трубами», обогревается факелом и продуктами сгорания топлива, а другая, обычно не обогреваемая часть труб, находится вне котельного агрегата и носит название «опускные трубы». В обогреваемых подъемных трубах вода нагревается до кипения, частично испаряется и в виде пароводяной смеси поступает в барабан котла, где происходит ее разделение на пар и воду. По опускным не обогреваемым трубам вода из верхнего барабана поступает в нижний коллектор (барабан).
Движение теплоносителя в котлах с естественной циркуляцией осуществляется за счет движущего напора, создаваемого разностью весов столба воды в опускных и столба пароводяной смеси в подъемных трубах.
В паровых котлах с многократной принудительной циркуляцией поверхности нагрева выполняются в виде змеевиков, образующих циркуляционные контуры. Движение воды и пароводяной смеси в таких контурах осуществляется с помощью циркуляционного насоса.
В прямоточных паровых котлах кратность циркуляции составляет единицу, т.е. питательная вода, нагреваясь, последовательно превращается в пароводяную смесь, насыщенный и перегретый пар. В водогрейных котлах вода при движении по контуру циркуляции нагревается за один оборот от начальной до конечной температуры.
По виду теплоносителя котлы разделяются па водогрейные и паровые. Основными показателями водогрейного котла являются тепловая мощность, т.е. теплопроизводительность, и температура воды; основными показателями парового котла — паропроизводительность, давление и температура.
Водогрейные котлы, назначением которых является получение горячей воды заданных параметров, применяют для теплоснабжения систем отопления и вентиляции, бытовых и технологических потребителей. Водогрейные котлы, работающие обычно по прямоточному принципу с постоянным расходом воды, устанавливают не только на ТЭЦ, но и в районных отопительных, а также отопительно-производственных котельных в качестве основного источника теплоснабжения.
Паровой котёл — установка, предназначенная для генерации насыщенного или перегретого пара, а также для подогрева воды (котёл отопительный).
По относительному движению теплообменивающихся сред (дымовых газов, воды и пара) паровые котлы (парогенераторы) могут быть подразделены на две группы: водотрубные котлы и жаротрубные котлы. В водотрубных парогенераторах внутри труб движется вода и пароводяная смесь, а дымовые газы омывают трубы снаружи. В России в XX веке преимущественно использовались водотрубные котлы Шухова. В жаротрубных, наоборот, внутри труб движутся дымовые газы, а вода омывает трубы снаружи.
По принципу движения воды и пароводяной смеси парогенераторы подразделяются на агрегаты с естественной циркуляцией и с принудительной циркуляцией. Последние подразделяются на прямоточные и с многократно-принудительной циркуляцией.
В качестве подпитывающего насоса как правило применяется трех-плунжерный насос высокого давления серий P21/23-130D либо P30/43-130D.
Котлы сверх критического давления (СКД) - давление пара свыше 22.4МПа.
1.4 Основные элементы паровых и водогрейных котлов
Топки для сжигания газообразных, жидких и твердых топлив. При сжигании газа и мазута, а также твердого пылеугольного топлива используются, как правило, камерные топки. Топка ограничена фронтальной, задней, боковыми стенами, а также подом и сводом. Вдоль стен топки располагаются испарительные поверхности нагрева (кипятильные трубы) диаметром 50...80 мм, воспринимающие излучаемую теплоту от факела и продуктов сгорания. При сжигании газообразного или жидкого топлива под камерной топки обычно не экранируют, а в случае угольной пыли в нижней части топочной камеры выполняют «холодную» воронку для удаления золы, выпадающей из горящего факела.
Верхние концы труб ввальцованы в барабан, а нижние присоединены к коллекторам путем вальцовки или сварки. У ряда котлов кипятильные трубы заднего экрана перед присоединением их к барабану разводят в верхней части топки в несколько рядов, расположенных в шахматном порядке и образующих фестон.
Для обслуживания топки и газоходов в котельном агрегате используется следующая гарнитура: лазы, закрываемые дверцы, гляделки, взрывные клапаны, шиберы, поворотные заслонки, обдувочные аппараты, дробеочистка.
Закрываемые дверцы, лазы в обмуровке предназначены для осмотра и производства ремонтных работ при останове котла. Для наблюдения за процессом горения топлива в топке и состоянием конвективных газоходов служат гляделки. Взрывные предохранительные клапаны используются для защиты обмуровки от разрушения при хлопках в топке и газоходах котла и устанавливаются в верхних частях топки, последнего газохода агрегата, экономайзера и в своде.
Для регулирования тяги и перекрытия борова служат чугунные дымовые шиберы или поворотные заслонки.
При работе на газообразном топливе, чтобы предотвратить скопление горючих газов в топках, дымоходах и боровах котельной установки во время перерыва в работе, в них всегда должна поддерживаться небольшая тяга; для этого в каждом отдельном борове котла к сборному борову должен быть свой шибер с отверстием в верхней части диаметром не менее 50 мм.
Обдувочные аппараты и дробеочистка предназначены для очистки поверхностей нагрева от золы и сажи.
Барабаны паровых котлов. Следует отметить многоцелевое назначение барабанов паровых котлов, в частности, в них осуществляются следующие процессы:
• разделение пароводяной смеси, поступающей из подъемных обогреваемых труб, на пар и воду и сбор пара;
• прием питательной воды из водяного экономайзера либо непосредственно из питательной магистрали;
• внутрикотловая обработка воды (термическое и химическое умягчение воды);
• непрерывная продувка;
• осушка пара от капелек котловой воды;
• промывка пара от растворенных в нем солей;
• защита от превышения давления пара.
Барабаны котлов изготовляют из котельной стали со штампованными днищами и лазом. Внутреннюю часть объема барабана, заполненную до определенного уровня водой, называют водяным объемом, а заполненную паром при работе котла — паровым объемом. Поверхность кипящей воды в барабане, отделяющая водяной объем от парового, называется зеркалом испарения. В паровом котле горячими газами омывается только та часть барабана, которая с внутренней стороны охлаждается водой. Линия, отделяющая обогреваемую газами поверхность от необогреваемой, называется огневой линией.
Пароводяная смесь поступает по подъемным кипятильным трубам, ввальцованным в днище барабана. Из барабана вода по опускным трубам подается в нижние коллекторы.
На поверхности зеркала испарения возникают выбросы, гребни и даже фонтаны, при этом в пар может попасть значительное количество капелек котловой воды, что снижает качество пара в результате повышения его солесодержания. Капли котловой воды испаряются, а соли, содержащиеся в них, осаждаются на внутренней поверхности пароперегревателя, ухудшая теплообмен, в результате которого повышается температура его стенок, что может привести к их пережогу. Соли могут также откладываться в арматуре паропроводов и привести к нарушению ее плотности.
Для равномерного поступления пара в паровое пространство барабана и снижения его влажности используются различные сепарационные устройства.
Для снижения возможности отложения накипи на испарительных поверхностях нагрева применяется внутрикотловая обработка воды: фосфатирование, щелочение, использование комплексонов.
Фосфатирование имеет целью создать в котловой воде условия, при которых накипеобразователи выделяются в форме неприкипающего шлама. Для осуществления этого необходимо поддерживать определенную щелочность котловой воды.
В отличие от фосфатирования обработка воды комплексонами может обеспечить безнакипный и бесшламовый режимы котловой воды. В качестве комплексона рекомендуется использовать натриевую соль «Трилон Б».
Поддержание допустимого по нормам солесодержания в котловой воде осуществляется продувкой котла, т.е. удалением из него некоторой части котловой воды, всегда имеющей более высокую концентрацию солей, чем питательная вода.
Для осуществления ступенчатого испарения воды барабан котла делят перегородкой на несколько отсеков, имеющих самостоятельные контуры циркуляции. В один из отсеков, называемый «чистым», поступает питательная вода. Проходя через контур циркуляции, вода испаряется, а солесодержание котловой воды в чистом отсеке повышается до определенного уровня. Для поддержания солесодержания в этом отсеке часть котловой воды из чистого отсека самотеком направляют через специальное отверстие - диффузор в нижней части перегородки в другой отсек, называемый «солевым», так как солесодержание в нем существенно выше, чем в чистом отсеке.
Непрерывная продувка воды осуществляется из места с наибольшей концентрацией солей, т.е. из солевого отсека. Пар, образующийся на обеих ступенях испарения, смешивается в паровом пространстве и выходит из барабана через ряд труб, расположенных в его верхней части.
С повышением давления пар способен растворять некоторые примеси котловой воды (кремниевую кислоту, оксиды металлов).
Для снижения солесодержания пара в некоторых котлах применяется промывка пара питательной водой.
Пароперегреватели котлов. Получение перегретого пара из сухого насыщенного осуществляется в пароперегревателе. Пароперегреватель — один из наиболее ответственных элементов котельного агрегата, так как из всех поверхностей нагрева он работает в наиболее тяжелых температурных условиях (температура перегрева до 425 °С). Змеевики пароперегревателя и коллекторы выполняются из углеродистой стали.
По способу тепловосприятия пароперегреватели подразделяются на конвективные, радиационно-конвективные и радиационные. В котельных агрегатах низкого и среднего давлений используются конвективные пароперегреватели с вертикальным или горизонтальным расположением труб. Для получения пара с температурой перегрева более 500 °С применяют комбинированные пароперегреватели, т.е. в них одна часть поверхности (радиационная) воспринимает теплоту за счет излучения, а другая часть — конвекцией. Радиационная часть поверхности нагрева пароперегревателя располагается в виде ширм непосредственно в верхней части топочной камеры.
В зависимости от направлений движения газов и пара различают три основные схемы включения пароперегревателя в газовый поток: прямоточную, при которой газы и пар движутся в одном направлении; противоточную, где газы и пар движутся в противоположных направлениях; смешанную, в которой в одной части змеевиков пароперегревателя газы и пар движутся прямоточно, а в другой — в противоположных направлениях.
Оптимальной по условиям надежности работы является смешанная схема включения пароперегревателя, при которой первая по ходу пара часть пароперегревателя выполняется противоточной, а завершение перегрева пара происходит во второй его части при прямоточном движении теплоносителей. При этом в части змеевиков, расположенных в области наибольшей тепловой нагрузки пароперегревателя, в начале газохода будет умеренная температура пара, а завершение перегрева пара происходит при меньшей тепловой нагрузке.
Температуру пара в котлах с давлением до 2,4 МПа не регулируют. При давлении 3,9 МПа и выше температуру регулируют следующими способами: впрыском конденсата в пар; использованием поверхностных пароохладителей; с помощью газового регулирования путем изменения расхода продуктов сгорания через пароперегреватель либо перемещения положения факела в топке с помощью поворотных горелок.
Пароперегреватель должен иметь манометр, предохранительный клапан, запорный вентиль для отключения пароперегревателя от паровой магистрали, прибор для измерения температуры перегретого пара.
Водяные экономайзеры. В экономайзере питательная вода перед подачей в котел подогревается дымовыми газами за счет использования теплоты продуктов сгорания топлива. Наряду с предварительным подогревом возможно частичное испарение питательной воды, поступающей в барабан котла. В зависимости от температуры, до которой ведется подогрев воды, экономайзеры подразделяют на два типа — некипящие и кипящие. В некипящих экономайзерах по условиям надежности их работы подогрев воды ведут до температуры на 20 °С ниже температуры насыщенного пара в паровом котле или температуры кипения воды при имеющемся рабочем давлении в водогрейном котле. В кипящих экономайзерах происходит не только подогрев воды, но и частичное (до 15 мае. %) ее испарение.
В зависимости от металла, из которого изготавливают экономайзеры, их разделяют на чугунные и стальные. Чугунные экономайзеры используют при давлении в барабане котла не более 2,4 МПа, а стальные могут применяться при любых давлениях. В чугунных экономайзерах недопустимо кипение воды, так как это приводит к гидравлическим ударам и разрушению экономайзера. Для очистки поверхности нагрева водяные экономайзеры имеют обдувочные устройства.
Воздухоподогреватели. В современных котельных агрегатах воздухоподогреватель играет весьма существенную роль, воспринимая теплоту от отходящих газов и передавая ее воздуху, он уменьшает наиболее заметную статью потерь теплоты с уходящими газами. При использовании подогретого воздуха повышается температура горения топлива, интенсифицируется процесс сжигания, повышается коэффициент полезного действия котельного агрегата. Вместе с тем при установке воздушного подогревателя увеличиваются аэродинамические сопротивления воздушного и дымового трактов, которые преодолеваются созданием искусственной тяги, т.е. путем установки дымососа и вентилятора.
Температура подогрева воздуха выбирается в зависимости от способа сжигания и вида топлива. Для природного газа и мазута, сжигаемых в камерных топках, температура горячего воздуха составляет 200...250 °С, а для пылеугольного сжигания твердого топлива — 300...420°С.
При наличии в котельном агрегате экономайзера и воздухоподогревателя первым по ходу газа устанавливается экономайзер, а вторым — воздухоподогреватель, что позволяет более глубоко охладить продукты горения, так как температура холодного воздуха ниже температуры питательной воды на входе в экономайзер.
По принципу действия воздухоподогреватели разделяют на рекуперативные и регенеративные. В рекуперативном воздухоподогревателе передача теплоты от продуктов сгорания к воздуху происходит непрерывно через разделительную стенку, по одну сторону которой движутся продукты сгорания, а по другую — нагреваемый воздух.
В регенеративных воздухоподогревателях передача теплоты от продуктов сгорания к нагреваемому воздуху осуществляется путем попеременного нагревания и охлаждения одной и той же поверхности нагрева.
Газопоршневые установки. Газопоршневая установка (ГПУ) предназначена для питания электроэнергией потребителей трехфазного (380/220 В, 50 Гц) переменного тока. Газовые электростанции используются в качестве источника постоянного и гарантированного электроснабжения больниц, банков, торговых комплексов, аэропортов, производственных и нефтегазодобывающих предприятий. Моторесурс газового двигателя выше, чем у бензогенераторов и дизельных электростанций, что приводит к уменьшению срока окупаемости. Использование газовых электрогенераторов позволяет владельцу быть независимым от плановых и аварийных отключений электроэнергии, а зачастую и вовсе отказаться от услуг поставщиков электроэнергии.
В основе работы газопоршневых двигателей (далее ГПД) лежит принцип действия двигателя внутреннего сгорания. ДВС – это тип двигателя, тепловая машина, в которой химическая энергия топлива (обычно применяется жидкое или газообразное углеводородное топливо), сгорающего в рабочей зоне, преобразуется в механическую работу.
На данный момент в промышленности выпускаются два типа поршневых двигателей, работающих на газе: газовые двигатели - с электрическим (искровым) зажиганием, и газодизели - с воспламенением газовоздушной смеси впрыском запального (жидкого) топлива. Газовые двигатели получили широкое применение в энергетике за счет повсеместной тенденции использования газа как более дешевого топлива (как природного, так и альтернативного) и относительно экологически более безопасного с точки зрения выбросов с выхлопными газами.
Из ГПУ с теплообменниками в принципе всё аналогично, но дополнительно используется система утилизации тепла.
Установка работает на нескольких видах топлива, имеет относительно низкий уровень начальных инвестиций за 1 кВт и обладает широкой линейкой выходной мощности.
Топливо для газопоршневых установок. Одним из важнейших моментов при выборе типа ГТУ является изучение состава топлива. Производители газовых двигателей предъявляют свои требования к качеству и составу топлива для каждой модели.
В настоящее время многие производители проводят адаптацию своих двигателей под соответствующее топливо, что в большинстве случаев не занимает много времени и не требует больших финансовых затрат.
Помимо природного газа, газопоршневые установки могут использовать в качестве топлива: пропан, бутан, попутный нефтяной газ, газы химической промышленности, коксовый газ, древесный газ, пиролизный газ, газ мусорных свалок, газ сточных вод и т. д.
Применение в качестве топлива перечисленных специфических газов вносит важный вклад в сохранение окружающей среды и кроме того позволяет использовать регенеративные источники энергии.
Газорегуляторный пункт. Газорегуляторный пункт – система устройств для автоматического снижения и поддержания постоянного давления газа в распределительных газопроводах. Газорегуляторный пункт включает регулятор давления для поддержания давления газа, фильтр для улавливания механических примесей, предохранительные клапаны, препятствующие попаданию газа в распределительные газопроводы при аварийном давлении газа сверх допустимых параметров, и контрольно-измерительные приборы для учёта количества проходящего газа, температуры, давления и телеметрического измерения этих параметров.
Газорегуляторные пункты сооружаются на городских распределительных газопроводах, а также на территории промышленных и коммунально-бытовых предприятий, имеющих разветвленную сеть газопроводов. Пункты, монтируемые непосредственно у потребителей и предназначенные для снабжения газом котлов, печей и др. агрегатов, обычно называют газорегуляторными устройствами. В зависимости от давления газа на входе газорегуляторные пункты бывают: среднего (от 0,05 до 3 кгс/см2 ) и высокого (до 12 кгс/см2 ) давления (1 кгс/см2 =0,1Мн/м2 ).
Предохранительные устройства и контрольно-измерительные приборы. Для водогрейных котлов предохраняющим устройством от повышения в них давления могут служить обводные линии с обратными клапанами (рис.), пропускающие воду в направлении от котла к трубопроводу системы отопления. При таком несложном устройстве, если задвижки, установленные у котла, почему-либо окажутся закрытыми, то все равно связь с атмосферой через расширительный, сосуд не нарушится.
Если на трубопроводе между котлами и расширительным сосудом кроме указанных задвижек имеется другая какая-либо запорная арматура, то должны быть установлены рычажные предохранительное клапаны .
Паровые котлы при до 70 кПа снабжаются предохранительным устройством в виде гидравлического затвора
Для безопасной и правильной эксплуатации паровые котлы кроме предохранительных устройств снабжают водоуказательными приборами, пробочными кранами и манометрами.
Для учета расхода питательной воды, подаваемой в паровой котел, или воды, циркулирующей в системе водяного отопления, устанавливают водомер или диафрагмы. Для измерения температуры воды, поступающей в систему водяного отопления и возвращающейся в котел, предусматривают в специальных футлярах термометры.
1.4 Виды и свойства топлива, сжигаемого в отопительных котельных
Топливо – это горючее вещество, использование которого для получения теплоты экономически оправдано. Целесообразность применения тех или иных горючих веществ в качестве топлива должна обосновываться технико-экономическими факторами: стоимость добычи и транспортировки; теплота сгорания, влияние на окружающую среду; доступность для широкого использования и т.п.
Топливо состоит из горючей и негорючей частей. Горючей частью является углерод, водород и сера, а негорючей — кислород, азот. зола и влага.
Различают твердое, жидкое и газообразное топливо. Твердое топливо — дрова, торф, бурый и каменный угли, сланцы; жидкое — нефть и продукты ее переработки — мазут, керосин и др., газообразное — природные и искусственные газы.
Различают также естественное топливо, непосредственно существующее в природе — дрова, уголь, торф, природный газ, и искусственное, являющееся продуктом переработки естественного топлива — древесный уголь, мазут, искусственные газы и др.
В зависимости от величины теплоты сгорания различают высокосортное топливо (с высокой теплотой сгорания) и низкосортное.
Из твердых топлив в отопительных котельных в основном сжигают ископаемые угли, которые делятся на три группы — бурые, каменные и антрациты.
Из жидких топлив в отопительных котельных применяют мазут — остаточный продукт переработки нефти с плотностью 0,96—0,98 т/м3. Его хранят в подземных стальных или железобетонных резервуарах, установленных вне котельных. Емкость резервуаров рассчитывают на потребность не менее 15 сут. работы котельной.
Газообразное топливо — это смесь горючих и негорючих газов. В естественном газе в основном содержатся метан, этан и тяжелые углеводороды, а также негорючие газы — углекислый газ и азот . В среднем природные газы состоят из 96% метана, 2% этана, 0,5% тяжелых углеводородов и 1,5% углекислого газа и азота.
По сравнению с твердым топливом газообразное имеет ряд преимуществ — простота и меньшая трудоемкость обслуживания котлов; лучшее перемешивание горючего а с воздухом, в результате чего возможно горение с наименьшим избытком воздуха и, следовательно, меньшими потерями тепла с отходящими газами.
Однако при сжигании газа следует учитывать и особенности этого процесса — взрывоопасность и ядовитость газа. Природный газ при содержании его в воздухе от 3,8 до 17,8% (по объему) образует смесь, которая от огня или искры взрывается. Утечки газа опасны и потому, что он ядовит. Поэтому природный газ, не имеющий цвета, вкуса и запаха, предварительно одоризуют, добавляя к нему вещества с сильным запахом.
Экономичность котла оценивается его коэффициентом полезного действия, который для всех типов чугунных котлов, работающих на твердом топливе, равен 0,6—0,7, а при работе на газообразном топливе 0,8-0,85.
Коэффициент полезного действия котельной установки — отношение количества тепла, выработанного этой установкой, к теплоте сгорания всего сожженного в котлах топлива.
Подробную информацию о технических решениях по применению видов топлива и о требованиях к проектированию котельных установок можно найти в СНиП II-35-76 «Котельные установки», гл. 4:
4.2 Для котельных производительностью более 20 Гкал/ч, для которых газообразное топливо установлено в качестве основного, должно предусматриваться резервное топливо - топочный мазут. При разработке проектов котельных эти виды топлива следует рассматривать как равнозначные.
4.3 Для котельных производительностью 20 Гкал/ч резервное топливо к газообразному не предусматривается; для этих котельных, отнесенных к первой категории, может предусматриваться аварийное жидкое топливо, необходимость которого, а также его вид (топочный мазут, легкое нефтяное топливо) определяется органом, устанавливающим виды топлива для проектируемой котельной.
4.4 При переводе котельных с котлами, оборудованными камерными топками для сжигания твердого топлива, на сжигание газообразного в качестве резервного должно сохраняться твердое топливо.
4.5 Растопку и «подсвечивание» котлов с камерными топками для сжигания твердого топлива следует предусматривать топочным мазутом или газообразным топливом.
1.5 Водоподготовка и водно-химический режим
Водоподготовка — обработка воды, поступающей из природного водоисточника, например, водозаборных сооружений, для различных нужд, например, хозяйственно-бытовых, технологических: на питание паровых и водогрейных котлов или для различных технологических целей. Водоподготовка производится на ТЭС, транспорте, в коммунальном хозяйстве, на промышленных предприятиях.
Водоподготовка заключается в освобождении воды от грубодисперсных и коллоидных примесей и содержащихся в ней солей, тем самым предотвращается отложение накипи, унос солей паром, коррозия металлов, а также загрязнение обрабатываемых материалов при использовании воды в технологических процессах.
Водоподготовка включает следующие основные методы (этапы) обработки:
· осветление (удаление из воды коагуляцией, отстаиванием и фильтрованием коллоидальных и суспензированных загрязнений);
· умягчение (устранение жёсткости воды осаждением солей кальция и магния, известью и содой или удаление их из воды катионированием);
· обессоливание и обескремнивание (ионный обмен или дистилляцией в испарителях);
· удаление растворённых газов (термическим или химическим методом) и окислов железа и меди (фильтрованием).
В Строительных нормах и правилах СНиП II-35-76, гл. 10, оговорены общие требования, применяемые к водоподготовке.
Водно-химический режим работы котельной должен обеспечивать работу котлов, пароводяного тракта, теплоиспользующего оборудования и тепловых сетей без коррозионных повреждений и отложений накипи и шлама на внутренних поверхностях, получение пара и воды требуемого качества.
Технологию обработки воды следует выбирать в зависимости от требований к качеству пара, питательной и котловой воды, воды для систем теплоснабжения и горячего водоснабжения, количества и качества сбрасываемых стоков, а также от качества исходной воды.
Показатели качества исходной воды для питания паровых котлов, производственных потребителей и подпитки тепловых сетей закрытых систем теплоснабжения необходимо выбирать на основании анализов, выполненных в соответствии с ГОСТ 2761-57* «Источники централизованного хозяйственно-питьевого водоснабжения. Правила выбора и оценки качества».
Вода для подпитки тепловых сетей открытых систем теплоснабжения и систем горячего водоснабжения должна отвечать ГОСТ 2874-73 «Вода питьевая».
Показатели качества пара и питательной воды паровых котлов должны соответствовать ГОСТ 20995-75 «Котлы паровые стационарные давлением до 4 МПа. Показатели качества питательной воды и пара».
Способ обработки воды для питания паровых котлов следует принимать исходя из указанных требований СНиП II-35-76.
Так же в СНиП оговорены нормы обработки воды систем теплоснабжения и горячего водоснабжения.
Технология обработки воды для открытых систем теплоснабжения и систем горячего водоснабжения, а также применяемые реагенты и материалы не должны ухудшать качество исходной воды. При выборе реагентов и материалов необходимо руководствоваться Перечнем новых материалов и реагентов, разрешенных Главным санитарно-эпидемиологическим управлением Министерства здравоохранения РФ для применения в практике хозяйственно-питьевого водоснабжения.
Объем химического контроля качества воды для тепловых сетей открытых систем теплоснабжения и систем горячего водоснабжения должен соответствовать ГОСТ 2874-73 «Вода питьевая».
При выборе оборудования для обработки исходной воды и конденсата, а также оборудования реагентного хозяйства, кроме указаний настоящего раздела, следует руководствоваться строительными нормами и правилами по проектированию наружных сетей и сооружений водоснабжения СНиП 2.04.02-84*.
1.6 Размещение и компоновка котельных
В зданиях дошкольных учреждений и учебных заведений встроенные котельные допускаются только для собственных нужд. Размещение котельных в больничных корпусах вообще не допускается. Их располагают в отдельных хозяйственных корпусах.
Максимальная мощность встроенных котельных не должна превышать: при работе на жидком и газообразном топливе — 3,5 МВт, на твердом топливе, в зависимости от сернистости и зольности, 0,6 — 1,7 МВт. Не разрешается размещать котельные под основными помещениями зданий общественного назначения (торговыми залами магазинов, фойе и зрительными залами зрелищных предприятий, классами и аудиториями учебных заведений, групповыми комнатами дошкольных учреждений).
Сблокированные котельные устраивают в коммунально-бытовых и производственных предприятиях, если близость расположения их не влияет на технологические процессы производства, не ухудшает санитарно-гигиенические условия и допускается противопожарными нормами (не создает пожарную опасность). Отдельно стоящие котельные следует размещать, как правило, в центре тепловых нагрузок с учетом розы ветров.
Площадка для строительства котельных должна удовлетворять требованиям СНиП П-М.1-71 и должна быть увязана с проектом планировки и застройки населенного пункта.
Так же выбор места расположения котельной зависит от архитектурных условий (расположения дымовой трубы в комплексе зданий), уровня грунтовых вод, возможности рационально разместить склад топлива и др.
Площадь основного котельного помещения определяют после выбора типа котлов и расчета их количества.
Требования по размещению котельных определены СНиП II-35-76 «Котельные установки».
2. Экскурсия по котельной
Во время прохождения практики познакомились с принципами работы пунктов теплоснабжения, с видами оборудования и процессами, протекающими в различных агрегатах.
На одной из экскурсий посетили котельную, отапливающую главное здание Южно-Уральского Государственного Университета и бассейн СК ЮУрГУ.
В здании котельной находятся три котла, которые работают на природном газе среднего давления.
На котлах установлено следующее оборудование:
· горелки с электромагнитными клапанами, регулирующими подачу газа;
· амбразура, которая регулирует расход газа;
· центробежные вентиляторы, служащие для обогащения газовой смеси кислородом;
· бионообменные фильтры (используются для умягчения воды);
· диараторы (устройства для обезгаживания воды);
· на котлах располагаются два сбросных клапана, для снятия давления;
· расширительные баки – для температурного расширения воды;
· также котлы оборудованы вибровставками, которые препятствуют расшатыванию системы.
Помещение котельной представляет повышенную опасность для окружающих строений. Поэтому оно оборудовано специальными дверьми, которые открываются только наружу, покрыто легко сбрасываемой кровлей, присутствует естественная вытяжная вентиляция.
Похожие рефераты:
Отопительно-производственная котельная ГУП ФАПК Якутия
Система тепло- и энергоснабжения промышленного предприятия
Диплом - Проектирование котельной
Перевод на природный газ котла ДКВР 20/13 котельной Речицкого пивзавода
Система автоматизации на котлоагрегатах
Проектирование диспетчерского центра котельных установок
Расчет теплового баланса парового котла
Энергетика: Паровые котлы ДКВР (двухбарабанные водотрубные реконструированные)
Эколого-экономическая оценка деятельности МУП "Сыктывкарский банно-прачечный трест"
Поверочный расчет парового котла ДКВР 4-14, работающего на твердом топливе Кузнецкий Д
Системы теплоснабжения молочного предприятия в городе Курске