| Похожие рефераты | Скачать .docx |
Курсовая работа: Проектирование электрического освещения коровника на 400 голов
Костромская ГСХА
Кафедра электропривода и электротехнологии
КУРСОВАЯ РАБОТА
На тему: “Проектирование электрического освещения коровника на 400 голов”
Выполнил:
студент 736 гр.
Иванов Д.М.
Принял:
Смолина Т.С.
Кострома 2003 г.
Содержание
Введение
1. Светотехнический раздел
1.1 Исходные данные расчёта
1.2 Размещение световых приборов и определение мощности осветительной установки
1.2.1 Точечный метод расчёта люминесцентных ламп
1.2.2 Точечный метод расчёта ламп накаливания
1.2.3 Метод удельной мощности
1.2.4 Метод коэффициента использования
1.3 Светотехническая ведомость
2. Электротехнический раздел
2.1 Выбор сечения проводов и кабелей
2.2 Выбор силового и осветительного щитов. Выбор защитной аппаратуры
3. Расчёт технико-экономических показателей осветительной установки
Доклад на защиту курсовой работы
Введение
Свет является одним из важнейших параметров микроклимата. Большинство технологических процессов сельскохозяйственного производства связано с жизнедеятельностью живых организмов, эволюционировавших в естественных природных условиях, где сильнейшее воздействие на их развитие оказывало излучение солнца. При содержании животных в искусственных условиях световое излучение так же играет важнейшую роль в их развитии и жизнедеятельности.
От уровня освещенности и спектрального состава света зависит рост и развитие, здоровье и продуктивность животных, расход кормов и качество полученной продукции. Под воздействием света усиливаются окислительные процессы и обмен веществ, стимулируются функции эндокринных желез, повышается устойчивость организма к болезням.
1. Светотехнический раздел
1.1 Исходные данные расчёта
| № | Назначение помещения | Размеры A Х B, м | Характер среды | Степень защиты IP | Нормируемая освещённость, освещаемая плоскость Ен, лк | Источник света |
| 1 | Помещение для содержания коров | 52,7 Х 20 | Особо сырое с химически активной средой | IP54 | 75, горизонтальное (пол) | ЛЛ |
| 2 | Венткамера | 4,8 Х 4,8 | Сухое | IP23 | 50, горизонтальное (пол) | ЛЛ |
| 3 | Тамбур | 3,6 Х 20 | Влажное | IP23 | 20, горизонтальное (пол) | ЛН |
| 4 | Тамбур | 3,6 Х 7 | Влажное | IP23 | 20, горизонтальное (пол) | ЛН |
| 5 | Тамбур | 4,8 Х 5 | Влажное | IP23 | 20, горизонтальное (пол) | ЛН |
| 5.1 | Тамбур | 4,8 Х 2,2 | Влажное | IP23 | 20, горизонтальное (пол) | ЛН |
| 5.2 | Тамбур | 2,2 Х 5 | Влажное | IP23 | 20, горизонтальное (пол) | ЛН |
| 5.3 | Тамбур | 1,9 Х 5 | Влажное | IP23 | 20, горизонтальное (пол) | ЛН |
| 5.4 | Тамбур | 3,6 Х 5 | Влажное | IP23 | 20, горизонтальное (пол) | ЛН |
| 6 | Электрощитовая | 1,5 Х 3,3 | Сухое | IP20 | 150, вертикальное (щит В-1,5) | ЛЛ |
| 7 | Инвентарная | 1,2 Х 2 | Сухое | IP20 | 20, горизонтальное (пол) | ЛН |
| 8 | Площадка для выгула животных | 50 Х 20 | Особо сырое | 2, горизонтальное | ||
| 9 | Крыльцо | 3 Х 2 | Особо сырое | IP54 | 5, горизонтальное | ЛН |
| 10 | Крыльцо | 4 Х 3 | Особо сырое | IP54 | 5, горизонтальное | ЛН |
1.2 Размещение световых приборов и определение мощности осветительной установки
Существует два вида размещения световых приборов: равномерное и локализованное. При локализованном способе размещения световых приборов выбор места расположения их решается в каждом случае индивидуально в зависимости от технологического процесса и плана размещения освещаемых объектов. При равномерном размещении светильники располагают по вершинам квадратов, прямоугольников или ромбов.
В практике расчёта общего электрического освещения помещений наиболее распространены следующие методы: точечный, метод коэффициента использования светового потока осветительной установки и метод удельной мощности.
1.2.1 Точечный метод расчёта люминесцентных ламп
Точечный метод применяется для расчёта общего равномерного и локализованного освещения помещений и открытых пространств, а так же местного при любом расположении освещаемых плоскостей. Метод позволяет определить световой поток светильников, необходимый для создания требуемой освещённости в расчётной точке при известном размещении световых приборов и условии, что отражение от стен, потолка и рабочей поверхности не играет существенной роли.
Электрощитовая № 6.
Нормируемая освещённость: Ен=150 лк, вертикальное освещение - щиток В-1,5;
Степень защиты: IP20;
Источник света: люминесцентная лампа (ЛЛ);
Размеры помещения: А Х В, м: 1,5 Х 3,3;
Расчётная высота осветительной установки:
;
Н0 - высота помещения, Н0 =3м;
hСВ - высота свеса светильника;
hР - высота рабочей поверхности hР =1,5м.
Определяем световой поток:
![]()
Е - нормируемая освещённость
S- площадь помещения
![]()
Выбираем светильник:
1) по назначению
2) по степени защиты IP20
3) по светораспределению - КСС Д
4) по экономическим показателям
КСС - кривая силы света.
Выбираем светильник для промышленных помещений: ЛСП15 2х65Вт, КСС Д, КПД=90%, IP54, hСВ =0,3м;
Длина светильника, LСВ =1,5м
Нр=3-0,3-1,5=1,2м
Рассчитываем расстояние между светильниками:
![]()
λС , λЭ - относительные светотехнические и энергетические наивыгоднейшие расстояния между светильниками, численные значения которых зависят от типа кривой силы света [1] с.11
λЭ - для люминесцентных ламп не учитывается
λС =1,6
![]()
Количество светильников по стороне А:
=>1 светильник по стороне А
Количество светильников по стороне В:
=>1 светильник по стороне В
Для ЛЛ количество светильников округляют в меньшую сторону, для ЛН в большую.
Расстояние между светильниками по стороне А и по стороне В не рассчитываем т.к NA =1 и NВ =1
Дальнейший расчёт ведут в зависимости от размеров светового прибора. Если размеры светового прибора меньше 0,5Нр (точечный источник света), то сначала определяют в каждой контрольной точке условную освещённость. Если длина светового прибора больше 0,5Нр (линейный источник света), то сначала определяют относительную условную освещённость. При этом необходимо определить как считать светильники: как сплошную линию или по отдельности. Если длина разрыва Lразр
между светильниками в ряду меньше 0,5Нр, то ряд светильников считают как одну сплошную линию, в противном случае каждый светильник считают по отдельности. Численные значения относительной условной освещённости ε находят по кривым изолюкс [2] в зависимости от приведённой длины
и удалённости точки от светящейся линии
(рис.1.1).
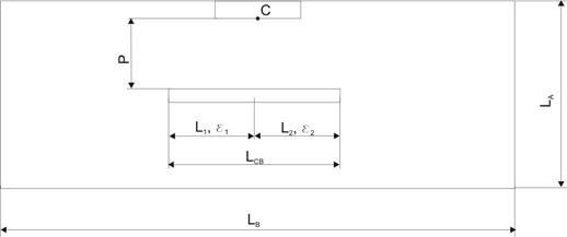
По условиюLСВ =1,5м ≥ 0,5Нр=0,6мвыбранный светильник считается как линейный источник света.

Рисунок 1.2.1 Расположение люминесцентных ламп.
Распределительный щит имеет толщину Lh=0,4м
![]()
Пересчитаем заданную вертикальную освещённость в горизонтальную по формуле:
![]()
Расчёт условной освещённости в выбранной точке С сведём в таблицу.
| №кт | №св | L1 | L1 ' | L2 | L2 ' | p | p' | ε1 | ε2 | ε |
| С | 1 | 0,75 | 0,625 | 0,75 | 0,625 | 0,35 | 0,29 | 95 | 95 | 190 |
,
,![]()
Находим световой поток, приходящийся на 1 метр длины лампы по формуле:
![]()
Кз - коэффициент запаса.
Для с/х помещений Кз=1,15 для ламп накаливания, Кз=1,3 для газоразрядных ламп.
μ=1,1 - коэффициент, учитывающий дополнительную освещённость от удалённых светильников и отражения от ограждающих конструкций.
![]()
Световой поток приходящийся на длину светильника:
![]()
Световой поток приходящийся на одну лампу:
![]()
Выбираем лампу [2] ЛДЦ со световым потоком 3160лм, мощностью 65Вт, номинальное напряжение 110В, ток 0,67А
Рассчитываем отклонение табличного потока от расчётного:
![]()
Выбранная лампа вписывается в диапазон
![]()
1.2.2 Точечный метод расчёта ламп накаливания
Точечный метод применяется для расчёта общего равномерного и локализованного освещения помещений и открытых пространств, а так же местного при любом расположении освещаемых плоскостей. Метод позволяет определить световой поток светильников, необходимый для создания требуемой освещённости в расчётной точке при известном размещении световых приборов и условии, что отражение от стен, потолка и рабочей поверхности не играет существенной роли.
Тамбур №3. Ен=20 лк, горизонтальное освещение - пол, IP23, ЛН, Н0 =3м, hР =0м. Размеры помещения: А Х В, м: 3,6 Х 20
Определяем световой поток:
![]()
Выбираем светильник для промышленных помещений: НСП21 1х100Вт, КСС Д, КПД=75%, IP53, hСВ =0,3м
Hр=3-0,3=2,7м
λЭ
=1,8, λС
=1,4,![]()
Рассчитываем расстояние между светильниками:
![]()
Количество светильников по стороне А:
=>1 светильник по стороне А
Количество светильников по стороне В:
=>5 светильников по стороне В
Расстояние между светильниками по стороне А не рассчитываем т.к NA =1.
Расстояние между светильниками по стороне В:
![]()

Рисунок 1.2.2 Расположение ламп накаливания.
Условная освещённость:
![]()
- сила света i-го светильника с условной лампой в направлении расчётной точки [1]
- угол между вертикалью и направлением силы света i-го светильника в расчётную точку
Расчёт условной освещённости в выбранных точках С и D сведём в таблицу.
| №кт | №св | d | α | cos3 α | e | ∑e | |
| С | 2 | 0 | 0 | 233,4 | 1 | 32,016 | 32,016 |
| 1,3 | 4 | 55 | 170,5 | 0,175 | 4,096 | 8, 192 | |
| 40, 208 | |||||||
| D | 2,3 | 2, 193 | 39 | 207,1 | 0,468 | 13,285 | 26,57 |
| 1 | 6,067 | 66 | 147,1 | 0,067 | 1,356 | 1,356 | |
| 27,926 |
Световой поток источника света в каждом светильнике рассчитываем по формуле:
![]()
Кз=1,15
μ=1,1 - коэффициент, учитывающий дополнительную освещённость от удалённых светильников и отражения от ограждающих конструкций.
![]()
По данному световому потоку выбираем лампу [2] Б215-225-60 со световым потоком 715 лм, мощностью 60Вт, номинальное напряжение 220В.
Рассчитываем отклонение табличного потока от расчётного:
![]()
Выбранная лампа вписывается в диапазон
![]()
1.2.3 Метод удельной мощности
Этот метод является упрощением метода коэффициента использования и рекомендуется для расчёта осветительных установок второстепенных помещений, к освещению которых не предъявляются особые требования, и для предварительного определения осветительной нагрузки на начальной стадии проектирования.
Значение удельной мощности зависит от типа и светораспределения светильника, размеров помещения, высоты подвеса, коэффициентов отражения потолка, стен и рабочей поверхности.
Тамбур № 5.
Ен=20 лк, горизонтальное освещение - пол, IP23, ЛН, Н0 =3м, hР =0м
Размеры помещения: А Х В, м: 4,8 Х 5
Определяем световой поток:
![]()
Выбираем светильник для промышленных помещений: НПП04 1х60Вт, КСС Д, КПД=50%, IP54, hСВ =0м
Hр=3м
λЭ
=1,6, λС
=1,2,![]()
Рассчитываем расстояние между светильниками:
![]()
Количество светильников по стороне А:
=>2 светильника по стороне А
Количество светильников по стороне В:
=>2 светильника по стороне В
Сначала необходимо определить коэффициенты отражения потолка, стен и рабочей поверхности [1]:
коэффициент отражения потолка: ρп =50%
коэффициент отражения стен: ρс =30%
коэффициент отражения рабочей поверхности: ρр =10%
Выбранный светильник НПП04х60 является потолочным.
Нр=3м
Площадь помещения: S=A*B=4,8*5=24м2
По мощности светильника, коэффициентам отражения и площади помещения выбираем удельную мощность общего равномерного освещения [1] Рудт =27,5Вт/м2 при Кзт =1,3
Так как коэффициент запаса Кз=1,15 не совпадает с табличным (Кзт =1,3), то производим пропорциональный пересчёт удельной мощности по формуле:
,
Ент - табличное значение нормируемой освещённости;
η - КПД выбранного светильника
![]()
Общая мощность осветительной установки: ![]()
N- количество светильников в помещении, N=4; n- число ламп в светильнике, n=1; Р - мощность светильника, Р=60.
![]()
Общая расчётная мощность осветительной установки:
![]()
Рассчитываем отклонение общей мощности от расчётной мощности:
Расчётная мощность одной лампы: ![]()
Выбираем лампу [2] Б215-225-60 со световым потоком 715 лм, мощностью 60Вт, номинальное напряжение 220В.
Рассчитываем отклонение мощности лампы от расчётной мощности:
![]()
Лампа выбранной мощности вписывается в диапазон
![]()
1.2.4 Метод коэффициента использования
Этот метод применяют при расчёте общего равномерного освещения горизонтальных поверхностей в помещении со светлыми ограждающими поверхностями и при отсутствии крупных затеняющих предметов.
Венткамера № 2.
Ен=50 лк, горизонтальное освещение - пол, IP23, ЛЛ, Н0 =3м, hР =0м
Размеры помещения: А Х В, м: 4,8 Х 4,8
Определяем световой поток:
![]()
Выбираем светильник для промышленных помещений: ЛСП14 2х40Вт, КСС Д, КПД=65%, IP54, hСВ =0,3м, LСВ =1,2м
Нр=3-0,3=2,7м
Рассчитываем расстояние между светильниками:
![]()
Количество светильников по стороне А:
=>1 светильник по стороне А
Количество светильников по стороне В:
=>1 светильник по стороне В
Принимаемρп =70%ρс =50%ρр =30%
Определяем индекс помещения:
![]()
Зная тип светового прибора, коэффициенты отражения и индекс помещения по справочным данным [1, 2] определяем коэффициент использования светового потока: ηоу =0,34
Вычисляем световой поток лампы в светильнике:
![]()
S- площадь помещения, S=A*B=23,04м2
Кз - коэффициент запаса. Для с/х помещений Кз=1,15 для ламп накаливания, Кз=1,3 для газоразрядных ламп.
N- количество светильников в помещении, N=1
z - коэффициент неравномерности, z=1,2
![]()
Так как расчётный световой поток приходится на две лампы, то его необходимо разделить на две части.
![]()
по данному световому потоку выбираем лампу [2] ЛД со световым потоком 2500 лм, мощностью 40Вт, ток 0,43А, напряжение 110В.
Рассчитываем отклонение табличного потока от расчётного:
![]()
Выбранная лампа вписывается в диапазон
![]()
Оставшиеся помещения рассчитываем точечным методом, в том числе и наружное освещение.
1.3 Расчёт прожекторной установки
Прожекторы применяют для освещения больших площадей.
Прожектор - световой прибор, перераспределяющий свет лампы внутри малых телесных углов и обеспечивающий угловую концентрацию светового потока с коэффициентом усиления более 30 для круглосимметричных и более 15 для симметричных приборов. Прожекторы служат для освещения удалённых объектов, находящихся на расстояниях, в десятки, сотни и даже тысячи раз превышающих размеры прожектора, или для передачи световых сигналов на большие дистанции. В группе прожекторов необходимо выделить прожекторы общего назначения, поисковые прожекторы, маяки, светофоры, фары.
Ен=2 лк, горизонтальное освещение;
Размеры площадки: А Х В, м: 50 Х 20
Определяем приближенное значение мощности установки:
![]()
S=A*B
Руд - удельная мощность всей установки;
m=0,2…0,25 для ламп накаливания;
m=0,12…0,16 для люминесцентных ламп.
Принимаем в качестве источника света лампу накаливания.
![]()
Выбираем прожектор [3] ПЗС-45 Г220-1000, наименьшая высота установки h=21м
Определяем показатель
![]()
Из справочника [3] по величине найденного показателя выбираем наивыгоднейший угол наклона оси прожектора к горизонту: ![]()
Рассчитываем и строим изолюксы на освещаемой территории. Результаты расчётов сводим в таблицу.
Последовательность расчёта покажем на примере одной строки таблицы.
Задаёмся значением отношения x/h, кратным числу 0,5. Например, x/h=2. Из справочника [3] при
и x/h=2 находим ξ=0,1; ρ=2,2; ρ3
=11.
Вычисляем освещённость, создаваемую прожектором на условной плоскости:
![]()
На условной плоскости по изолюксам [3] для прожектора ПЗС-45 с лампой 1000Вт и по величинам ординат ξ и em находим абсциссу η=0,25.
Определяем координату у на рассчитываемой поверхности:
![]()
Таким образом, координаты двух точек будут x=42м и у=±11,55м. Аналогично рассчитываются все строки таблицы.
| x/h | x, м | ξ | ρ | ρ3 | em , клк | η | у, м |
| 1 | 21 | 0,745 | 1,29 | 2,15 | 1,896 | 0 | 0 |
| 1,5 | 31,5 | 0,23 | 1,8 | 5,45 | 4,807 | 0,21 | 8,3 |
| 2 | 42 | 0,1 | 2,2 | 11 | 9,702 | 0,25 | 11,55 |
| 2,5 | 52,5 | 0,025 | 2,7 | 19 | 16,76 | 0,23 | 13,04 |
| 3 | 63 | 0,045 | 3,2 | 31,5 | 27,78 | 0,21 | 14,11 |
| 3,5 | 73,5 | 0,09 | 3,6 | 48 | 42,34 | 0,13 | 9,83 |
| 1,25 | 26,3 | 0,32 | 1,55 | 3,72 | 3,28 | 0,21 | 6,8 |
| 3,6 | 75,6 | 0,1 | 3,7 | 50,65 | 44,67 | 0,11 | 8,61 |
| 3,75 | 78,8 | 0,11 | 3,85 | 57,07 | 50,34 | 0,05 | 3,99 |
Найденных шесть строк (х=1; 1,5; 2; 2,5; 3; 3,5) оказалось недостаточно для надёжного построения кривой изолюкс на реальной поверхности. Поэтому намечаем дополнительные значения x и x/h, которых в справочнике [3] нет. По этим данным строим графики зависимостей ξ и ρ от соотношения x/h (рис.1.3.1) и находим промежуточные их значения ещё для трёх величин отношения x/h=1,25; 3,6; 3,75.
По рассчитанным значениям x и у строим кривую изолюкс (рис.1.3.2). На рисунке наносим контуры хозяйственного двора так, чтобы его территория как можно больше оказалась накрытой кривой изолюкс. Из рисунка видно, что опора прожектора должна быть установлена на расстоянии 27м от малой стороны контура двора.

Рисунок 1.3.1Графики зависимостей ξ и ρ от отношения x/h

Рисунок 1.3.2 Расчётная изолюкса прожектора ПЗС-45
1.3 Светотехническая ведомость
| Характеристика помещения | Коэффициент отражения, % | Вид освещения | Система освещения | Нормируемая освещённость | Источник света | Коэффициент запаса | Светильник | Лампа | Штепсельные розетки или пониж. трансформаторы | Установленная мощность прибора, Вт | Удельная мощность, Вт/м2 | ||||||||
| № по плану | площадь, м2 | высота, м2 | класс помещения по среде | потолка | стен | пола | тип | кол-во | тип | мощность | число | мощность и тип, кВт | |||||||
| 1 | 2х1054 | 3 | IP54 | --- | --- | --- | общее | техноло-гическое | 75 | ЛЛ | 1,3 | ЛСП18 | 65 | ЛХБ | 1х40 | 48 | 2740400 | ||
| 2 | 2х23,04 | 3 | IP23 | 70 | 50 | 30 | общее | дежурное | 50 | ЛЛ | 1,3 | ЛСП14 | 1 | ЛД | 2х40 | 96 | 1843,2 | ||
| 3 | 1х72 | 3 | IP23 | --- | --- | --- | общее | дежурное | 20 | ЛН | 1,15 | НСП21 | 5 | Б 215-225-60 | 1х60 | 60 | 21600 | ||
| 4 | 2х25,2 | 3 | IP23 | --- | --- | --- | общее | дежурное | 20 | ЛН | 1,15 | НСП21 | 2 | Б 215-225-60 | 1х60 | 60 | 3024 | ||
| 5 | 4х24 | 3 | IP23 | 50 | 30 | 10 | общее | дежурное | 20 | ЛН | 1,15 | НПП04 | 4 | Б 215-225-60 | 1х60 | 60 | 5760 | ||
| 5.1 | 4х10,56 | 3 | IP23 | --- | --- | --- | общее | дежурное | 20 | ЛН | 1,15 | НСП21 | 2 | Б 215-225-75 | 1х75 | 75 | 1584 | ||
| 5.2 | 2х11 | 3 | IP23 | --- | --- | --- | общее | дежурное | 20 | ЛН | 1,15 | НСП21 | 2 | Б 215-225-75 | 1х75 | 1 | 0,5 | 75 | 1650 |
| 5.3 | 1х9,5 | 3 | IP23 | --- | --- | --- | общее | дежурное | 20 | ЛН | 1,15 | НСП21 | 2 | Б 215-225-75 | 1х75 | 1 | 0,5 | 75 | 1425 |
| 5.4 | 1х18 | 3 | IP23 | --- | --- | --- | общее | дежурное | 20 | ЛН | 1,15 | НСП21 | 2 | Б 215-225-60 | 1х60 | 60 | 2160 | ||
| 6 | 1х4,95 | 3 | IP20 | --- | --- | --- | общее | дежурное | 150 | ЛЛ | 1,3 | ЛСП15 | 1 | ЛДЦ | 2х65 | 156 | 643,5 | ||
| 7 | 2х2,4 | 3 | IP20 | --- | --- | --- | общее | дежурное | 20 | ЛН | 1,15 | НСП21 | 1 | Б 215-225-60 | 1х60 | 60 | 144 | ||
| 8 | 2х1000 | 21 | --- | --- | --- | --- | общее | техноло-гическое | 2 | ЛН | ПЗС-45 | 1 | Г220-1000 | 1х1000 | 1000 | 1000000 | |||
| 9 | 8х6 | 3 | IP54 | --- | --- | --- | общее | дежурное | 5 | ЛН | 1,15 | НСП11 | 1 | В 215-225-25 | 1х25 | 25 | 150 | ||
| 10 | 6х12 | 3 | IP54 | --- | --- | --- | общее | дежурное | 5 | ЛН | 1,15 | НСП11 | 1 | В 215-225-25 | 1х25 | 25 | 300 | ||
2. Электротехнический раздел
Расчёт электрических осветительных сетей включает и определение сечений проводов и кабелей, при которых рабочий ток линий не создаёт перегрева проводов, обеспечиваются требуемые уровни напряжения у ламп и достаточная механическая прочность проводов.
2.1 Выбор сечения проводов и кабелей
Питание осветительной сети осуществляется от трансформаторов. При напряжении силовых приёмников 380В питание установок осуществляется, как правило, от трансформаторов 380/220В, общих для силовой и осветительной нагрузки. Более того, осветительные щиты запитываются через силовой распределительный щит (пункт). На каждый осветительный щит в силовом распределительном пункте предусматривается отдельная группа.
На рис.2.1 изображена расчётная схема осветительной сети.
Таблица 2.1Мощность нагрузки и длины участков.
| Нагрузка | Мощность нагрузки, Вт | |||||||||
| Р63, Р68, Р72, Р106, Р86, Р88, Р93, Р98, Р105 | 25 | |||||||||
| Р1…Р62, Р77…Р79 | 48 | |||||||||
| Р69, Р73…Р76, Р82…Р85, Р89…Р92, Р96, Р97, Р102, Р103, Р104 | 60 | |||||||||
| Р64, Р65, Р70, Р71, Р80, Р81, Р94, Р95, Р99, Р100 | 75 | |||||||||
| Р87 | 96 | |||||||||
| Р66 | 156 | |||||||||
| Р67, Р101 | 500 | |||||||||
| Участок | CO | OB | BC | CD | DG | Gd | de | ef | fg | |
| Длина участка, м | 1,2 | 0,6 | 2 | 13,9 | 54 | 2,1 | 0,8 | 6,9 | 3,3 | |
Сечение жил проводов можно рассчитать по потере напряжения и на минимум проводникового материала.
Расчёт сечения проводов по потере напряжения производят по формуле:
![]()
С - коэффициент, зависящий от напряжения сети, материала токоведущей жилы, числа проводов в группе [1] ;
Mi - электрический момент i-го участка, приёмника (светильника), кВт*м;
∆U- располагаемая потеря напряжения, %.
Электрический момент определяют как произведение мощности i-го светильника на расстояние от щита (или точки разветвления) до этого светильника
Расчёт сечения проводов производится из условия, что суммарная потеря напряжения, начиная от ввода до самой дальней лампы, не должно превышать 4% [5]. Для этого произвольно выбирают потери на отдельных участках и рассчитывают электрические моменты и сечения этих участков.
Расчёт участка С - О
Общая мощность люминесцентных ламп (включая потери ПРА) PLL =6,588 кВт
Общая мощность ламп накаливания РLN =3,14 кВт
Суммарная мощность (включая розетки) РО =11,228 кВт
![]()
Расчёт группы II
Рассчитаем для примера наиболее протяжённый участок в этой группе.
Общая мощность люминесцентных ламп (включая потери ПРА) в точке ВPBLL =0,636 кВт
Общая мощность ламп накаливания в точке ВРBLN =3,14 кВт
Суммарная мощность (включая розетки) в точке ВРB =5,276 кВт
![]()
Суммарная мощность в точке CРС =4,445 кВт
![]()
Суммарная мощность в точке DРD =3,687 кВт
![]()
Суммарная мощность в точке GРG =0,976 кВт
![]()
Суммарная мощность в точке dРd =0,536 кВт
![]()
Суммарная мощность в точке eРe =0,44 кВт
![]()
Суммарная мощность в точке fРf =0,2 кВт
![]()
![]()
Рассчитаем участок С-O-B-C-D-G-d-e-f-gпо потере напряжения.
Зададимся потерями напряжения (распределим 4%) на участках:
ΔUCO =0,2%, ΔUOB =0,1%, ΔUBC =0,2%, ΔUCD =1,5%, ΔUDG =1,6%, ΔUGd =0,1%, ΔUde =0,1%, ΔUef =0,1%, ΔUfg =0,1%,
В качестве проводящего материала выбираем алюминий, т.к нагрузка осветительной сети невелика. На расчётной схеме указаны штрихами количество проводов участка.
Для удобства расчёта обозначим коэфф. С следующим образом:
С1 - трёхфазная с нулём, С1=44
С2 - двухфазная с нулём, С2=19,5
С3 - однофазная, С3=7,4
Расчет сечения участков сети:
принимаем 2,5мм2
принимаем 2,5мм2
принимаем 2,5мм2
принимаем 2,5мм2
принимаем 2,5мм2
принимаем 2,5мм2
принимаем 2,5мм2
принимаем 2,5мм2
принимаем 2,5мм2
Согласно [6] сечение жил алюминиевых проводов должно быть не менее 2,5мм2
Проверяем выбранные сечения по потери напряжения
![]()
![]()
![]()
![]()
![]()
![]()
![]()
![]()
![]()
Суммарные потери напряжения:
![]()
Рассчитаем токи участков защищаемых плавкими предохранителями или автоматическими выключателями по формуле:
![]()
Рi - расчётная нагрузка (включая потери ПРА), кВт; UФ - фазное напряжение сети, кВ (UФ =220В); cosφ- коэффициент мощности нагрузки, для ламп накаливания cosφLN =1, для люминесцентных cosφLL =0,95; m- количество фаз сети.
![]()
Так как на участке С-О в качестве потребителей находятся как лампы накаливания, так и люминесцентные лампы то необходимо рассчитать средневзвешенный cosφ.
![]()
![]()
Принимаем провод АППВ сечением 2х2,5мм2 [6] с допустимым током Iд=24А > 17,608А условие выполняется. На участке O-A в качестве потребителей только люминесцентные лампы, поэтому вычисление средневзвешенного cosφ не требуется.
![]()
Принимаем кабель АВВГ сечением 1х2,5мм2 [6] с допустимым током Iд=17А > 14,239А условие выполняется.
На участке О-В в качестве потребителей находятся как лампы накаливания, так и люминесцентные лампы то необходимо рассчитать средневзвешенный cosφ.
![]()
![]()
Принимаем провод АППВ сечением 2х2,5мм2 [6] с допустимым током Iд=24А > 8,062А условие выполняется.
Таблица 2.2Выбор сечения проводов.
| Участок | L, м | М, кВт×м | с | S, мм2 | SГОСТ, мм2 | DU,% |
| CO | 1,2 | 13,474 | 44 | 1,531 | 2,5 | 0,122 |
| ОА | 4,2 | 24,998 | 19,5 | 2,14 | 2,5 | 0,513 |
| Аb | 2 | 5,952 | 7,4 | 2,01 | 2,5 | 0,322 |
| bc | 4 | 9,408 | 7,4 | 2,12 | 2,5 | 0,509 |
| cd | 4 | 6,912 | 7,4 | 1,87 | 2,5 | 0,374 |
| de | 4 | 4,992 | 7,4 | 1,69 | 2,5 | 0,270 |
| ef | 54,6 | 19,094 | 7,4 | 1,98 | 2,5 | 1,032 |
| OB | 0,6 | 3,166 | 44 | 0,719 | 2,5 | 0,029 |
| Ba | 0,6 | 0, 199 | 7,4 | 0,27 | 2,5 | 0,011 |
| ab | 1,5 | 0,263 | 7,4 | 0,36 | 2,5 | 0,014 |
| bc | 0,4 | 0,06 | 7,4 | 0,08 | 2,5 | 0,003 |
| cd | 1,5 | 0,09 | 7,4 | 0,12 | 2,5 | 0,005 |
| BC | 2 | 8,89 | 44 | 1,01 | 2,5 | 0,081 |
| Ca | 4,5 | 0,263 | 7,4 | 0,36 | 2,5 | 0,014 |
| Cb | 2,2 | 0,319 | 7,4 | 0,43 | 2,5 | 0,017 |
| bc | 0,8 | 0,096 | 7,4 | 0,13 | 2,5 | 0,005 |
| cd | 1,5 | 0,09 | 7,4 | 0,12 | 2,5 | 0,005 |
| CD | 13,9 | 52,983 | 19,5 | 1,811 | 2,5 | 1,087 |
| DG | 54 | 56,75 | 19,5 | 1,819 | 2,5 | 1,164 |
| Gd | 2,1 | 1,126 | 7,4 | 1,521 | 2,5 | 0,061 |
| de | 0,8 | 0,352 | 7,4 | 0,476 | 2,5 | 0,019 |
| ef | 6,9 | 1,38 | 7,4 | 1,865 | 2,5 | 0,075 |
| fg | 3,3 | 0,307 | 7,4 | 0,416 | 2,5 | 0,017 |
| DF | 10,9 | 18,252 | 19,5 | 0,94 | 2,5 | 0,374 |
| Fa | 2,1 | 1,544 | 7,4 | 2,09 | 2,5 | 0,083 |
| ab | 1,7 | 0,298 | 7,4 | 0,40 | 2,5 | 0,016 |
| bc | 3,2 | 0,292 | 7,4 | 0,39 | 2,5 | 0,016 |
| Fd | 6,2 | 0,449 | 7,4 | 0,61 | 2,5 | 0,024 |
2.2 Выбор силового и осветительного щитов. Выбор защитной аппаратуры
Все осветительные сети подлежат защите от токов короткого замыкания. Так же требуется защита от перегрузок. Для приема и распределения электроэнергии и защиты отходящих линий в осветительных сетях применяются вводные щиты.
Щит выбирается в зависимости от окружающей среды, назначения и количества групп. Аппараты защиты устанавливаются на линиях, отходящих от щита управления. Для защиты отходящих линий устанавливаем автоматические выключатели.
Сначала выбираем силовой щит. Принимаем щит СП-62, с защитой групп предохранителями. Определяем ток плавкой вставки предохранителя:
IВ ³K*IР
где K- коэффициент, учитывающий пусковые токи (для газоразрядных ламп низкого давления и ламп накаливания мощностью до 300 Вт, K=1, для других ламп K=1,2 [1]); IР - расчетный ток группы, А.
K*IP =1*17,61=17,61 A
Принимаем к установке предохранитель ПР-2-60 с током плавкой вставки IПВ =20 А, проверяем сечение проводов из условия защиты сети от перегрузки и короткого замыкания:
IД ³1,25*IПВ 1,25*20=25А ≤24А
Так как сечение провода не проходит по условию защиты, то меняем сечение провода (участок СО) АППВ на 4мм2 с допустимым током 32А.
Ток вставки комбинированного и теплового расцепителей для защиты осветительных групп определяем по формуле: [1]
IК =IТ =К′*IР
Для автомата на вводе: IК =IТ =1*17,61=17,61 А
Для автомата первой группы: IК1 =IТ1 =1*14,24=14,24 А
Для автомата второй группы: IК2 =IТ2 =1*8,1=8,1 А
Для приема, распределения электроэнергии и защиты отходящих линий выбираем вводно-распределительное устройство: щит СУ 9442-16, степень защиты IP20 [1]. Автоматический выключатель на вводе в щит типа: АЕ 2036 с комбинированным расцепителем, ток номинальный выключателя 25 А. [1], принимаем ток расцепителя равным 25 А.
Проверяем сечение проводов на соответствие расчетному току вставки защитного аппарата: [1]
IД ³1,25*IК
где IК - ток комбинированного расцепителя автомата, А.
1,25*25=31,25 ≤ 32 А
Условие защиты от перегрузки и КЗ выполняется, следовательно провод выбран верно.
Проверяем сечение проводов в группе II.
1,25*IК =1,25*10=12,5 А
Так как в группе имеются розетки, то защищаем ее и от перегрузок, должно выполняться условие:
IД ³0,66*IК 24>6,6
Условие соблюдается, следовательно автомат выбран верно.
Выбор автоматических выключателей для защиты остальных групп производим аналогично и результаты расчетов заносим в таблицу.
Таблица 2.3Аппараты защиты.
Номер группы |
Расчетный ток, А | Марка автом. выключателя | Номинальный ток выкл. А | Номинальный ток расцепит. А |
| I | 14,24 | АЕ2036 | 25 | 16 |
| II | 8,1 | АЕ 2036 | 25 | 10 |
Таблица 2.4Сечения проводов из условий защиты
| Участок | Ток участка IР , А | Марка провода | Допустимый ток провода IД , А |
| СО | 17,61 | 2АППВ 2х4 мм2 | 32 |
| ОА | 14,24 | 4АВВГ 1х2,5мм2 | 17 |
| ОВ | 8,1 | 2АППВ 2х2,5мм2 | 24 |
3. Расчёт технико-экономических показателей осветительной установки
Экономическую эффективность осветительной установки оценивают приведенными затратами: З=ЕН ×К+Э
где, З - приведенные затраты по рассматриваемому варианту, руб.;
ЕН =0,15 - нормативный коэффициент эффективности капитальных вложений;
К - капитальные вложения на сооружение осветительной установки, руб;
Э - годовые эксплуатационные расходы на систему искусственного освещения, руб.
Капитальные затраты на изготовление осветительной установки рассчитываются по формуле: К=N× (КЛ ×n+КС +КМ +a×РЛ ×КМЭ ×n×10-3 )
где,N- общее число светильников одного типа в осветительной установке, шт;
КЛ - цена одной лампы, руб;
n- число ламп в одном светильнике;
КС - цена одного светильника, руб.;
КМ - стоимость монтажа одного светильника, руб.;
a - коэффициент, учитывающий потери энергии в ПРА, принимается 1,2 при люминесцентных лампах и 1,1 при лампах ДРЛ и ДРИ;
РЛ - мощность одной лампы, Вт;
КМЭ - стоимость монтажа электротехнической части осветительной установки (щитки, сеть и др.) на 1 кВт установленной мощности ламп с учетом потерь в ПРА, ориентировочно принимаем 600 руб/кВт.
Стоимость монтажа светильника принимаем равной 25% от стоимости светильника.
Годовые эксплуатационные расходы по содержанию искусственного освещения определяются по формуле: Э=ЭА +ЭО +ЭЭ
где, ЭА - годовые затраты на амортизацию системы освещения, руб.;
ЭО - годовые расходы на обслуживание и текущий ремонт осветительной установки, руб.;
ЭЭ - стоимость израсходованной за год электрической энергии с учетом потерь в ПРА и сетях, руб.
Амортизационные отчисления в размере 10% капитальных затрат, соответствующие 10-летнему сроку службы светильников, проводок и электрооборудования, рассчитываются по формуле:
ЭА =0,1×N× (КС +КМ +a×РЛ ×n×10-3 )
Годовые расходы на обслуживание и текущий ремонт осветительной установки складываются в основном из стоимости ламп и расходов на чистку светильников:
ЭО
=ЭЛ
+ЭЧ
=
где, ЭЛ - стоимость сменяемых в течении года ламп, руб.; ЭЧ - расходы на чистку светильников за год, руб.; ТР - продолжительность работы осветительной установки в год, ч; ТЛ - номинальный срок службы лампы, принимается для ламп накаливания общего назначения 1000 ч, для люминесцентных ламп 12000ч; СЗ - стоимость работ по замене одной лампы, руб.; n- количество чисток светильников в год [2] ; С1 - стоимость одной чистки одного светильника, руб. Принимаем стоимость замены одной лампы 0,7С1. Стоимость электрической энергии израсходованной за год определяется по формуле:
ЭЭ =a×b×РЛ ×n×ТР ×ЦЭ ×10-3
где,
b=0,1×DU- коэффициент, учитывающий потери электрической энергии в осветительных сетях; DU- потери напряжения в осветительной сети до средних ламп,%; ЦЭ - стоимость электрической энергии, руб. / (кВт×ч)
Так как отсутствуют данные потери напряжения, коэффициент принимаем равным 1,03 при лампах накаливания, 1,037 - при люминесцентных лампах. Пример расчета покажем на светильнике НПП21
Капитальные затраты:
К=16× (4×1+120+32,5+1×60×600×1×10-3 ) =3080 руб.
Амортизационные отчисления:
ЭА =0,1×16× (120+32,5+1×60×600×1×10-3 ) =301,6 руб.
Расходы на обслуживание и текущий ремонт:
ЭО
=
руб.
Стоимость электрической энергии, израсходованной за год:
ЭЭ =1×1,03×60×1×16×4380×1×10-3 =433,1 руб
Годовые эксплуатационные расходы:
Э=301,6+944,64+433,1=1679,3 руб
Экономическая эффективность осветительной установки:
З=0,15×3080+1679,3=2141,3 руб
Остальные светильники считаем аналогично, данные сводим в таблицу
Таблица 3.1Технико-экономические показатели осветительной установки.
| Светильник | Количество | Кап. затраты | Экспл. расход | Эк. эффект. |
| НПП04 | 16 | 3080 | 1679,3 | 2141,3 |
| ЛСП18 | 130 | 24089 | 12866,3 | 16479,7 |
| ЛСП14 | 2 | 436,2 | 317,4 | 382,8 |
| НСП21 | 27 | 5323,5 | 2941,2 | 3739,7 |
| ЛСП15 | 1 | 254,1 | 189,5 | 227,6 |
| НСП11 | 14 | 2401 | 1219 | 1579 |

Рисунок 2.1Расчётная схема осветительной сети.
Используемые литературные источники
1. Проектирование электрического освещения: Учебное пособие / Н.А. Фалилеев, В.Г. Ляпин; Всесоюзн. с.-х. ин-т заоч. образования. М., 1989.97 с.
2. Справочная книга по светотехнике / Под ред. С 74 Ю.Б. Айзенберга. - М.: Энергоатомиздат, 1983. - 472 с., ил.
3. Справочная книга для проектирования электрического освещения. /Под ред. Г.М. Кнорринга. Л., “Энергия", 1976, 384с.
4. Баев И.В. Практикум по электрическому освещению и облучению. - М.: Агропромиздат, 1991. - 175 с., ил. - (Учебники и учебн. пособия для студентов высш. учеб. заведений).
5. Нормы технологического проектирования электрических сетей сельскохозяйственного назначения НТСП - 88 М.: АО РОСЭП №07.04.97
6. Правила устройства электроустановок/ Минэнерго СССР. - 6-е изд., перераб. и доп. - М.: Энергоатомиздат, 1986. - 648 с.: ил.
Доклад на защиту курсовой работы
Было задание спроектировать электрическое освещение коровника на 400 голов. Проектирование начиналось с характеристики среды помещений и выбора нормированной освещённости.
Помещение для содержания коров особо сырое с химически активной средой, что требует степени защиты не ниже IP53. Тамбур - помещение влажное, остальные помещения с сухой средой. Нормированная освещённость выбиралась согласно СНИП и "отраслевых норм освещения сельскохозяйственных зданий, предприятий и сооружений". В качестве источника света для содержания коров выбраны люминесцентные лампы. В помещениях электрощитовой и венткамеры выбраны люминесцентные лампы как для помещений с высокой освещённостью. В остальных помещениях выбраны лампы накаливания как для второстепенных помещений и помещений с низкой освещённостью.
Во всех помещениях выбраны светильники с косинусным светораспределением, в соответствии с назначением помещений, условий окружающей среды и наибольшим КПД. В помещении для содержания коров выбрано рабочее освещение, в остальных помещениях - дежурное.
Размещение светильников производилось с учётом наивыгоднейших относительных светотехнических и энергетических расстояний. Светильники размещались по вершинам прямоугольников.
Расчёт мощности осветительной установки в помещении электрощитовой и наружное производилось точечным методом, где нормируется вертикальная освещённость и как открытое пространство. Помещение для содержания коров и основной тамбур рассчитывались также точечным методом. Расчёт освещения венткамеры производился методом коэффициента использования светового потока как закрытого помещения, где нормируется горизонтальная освещённость, отсутствуют большие затеняющие предметы и имеются светлые заграждающие конструкции. Расчет остальных помещений производился по методу удельной мощности как второстепенных помещений, к освещению которых не предъявляются особые требования. По результатам расчёта производился выбор ламп и проверялось отклонение светового потока от допустимого на величину - 10, +20%.
Компоновка осветительной сети производилась с учётом длины группы и допустимого количества ламп на фазу. Так как длина здания 120м, а помещения одинаковы и расположены симметрично по сторонам здания, то наибольшая длина группы, с учётом изгибов сети, будет около 85м. Всего в помещении 176 ламп, что требует двух групп освещения. В первую группу, выполненную трёхпроводной, включим светильники рабочего освещения помещения для содержания коров, во вторую дежурную группу, выполненную четырёхпроводной, включим светильники остальных помещений и наружное освещение.
Расчёт сечения проводов производился по потере напряжения. Для этого произвольно принимались потери напряжения на отдельных участках групп и по рассчитанным значениям электрических моментов этих участков производился расчёт их сечений. Выбранные сечения проводов проверялись на механическую прочность и по допустимому току. В помещении для содержания коров была выбрана тросовая проводка кабелем АВВГ, а в остальных помещениях проводом АППВ открыто по стенам и в стальных трубах, в зависимости от категории. Расчётный ток в группах определялся с учётом количества фаз, мощности и средневзвешенного косинуса фи.
Для управления осветительной установкой был выбран осветительный щиток СУ 9442-16 с однополюсными автоматическими выключателями А3161, которые были заменены на автоматические выключатели АЕ2036. Уставка автомата выбиралась с учётом расчётных и пусковых токов. Так как ни в одной группе нет ламп накаливания мощностью свыше 300Вт и ламп высокого давления, коэффициент, учитывающий пусковые токи был принят равным единице. Вся сеть защищалась предохранителями ПР-2-60 установленными в силовом щитке СП-62. Значения установок автоматов принимались стандартными, ближайшими к расчётным и согласовывались с допустимыми токами проводов, проверялись на короткое замыкание, а во второй группе и на перегрузку, так как там имеются розетки.
Затраты на устройство осветительной установки составляют 35584 руб.
Прожекторная установка для выгула коров была принята стационарной с прожектором ПЗС-45 Г220-1000 с наименьшей высотой установки 21м.
Доклад окончен. Спасибо за внимание.
Похожие рефераты:
Реконструкция электротехнической части фермы КРС на 200 голов
Электрооборудование свинарника на 1200 голов СПК "Холопеничи"
Проектирование и расчет электрического освещения
Организация интеллектуальной сети в г. Кокшетау на базе платформы оборудования Alcatel S12
Электроснабжение текстильного комбината
Проект осветительной установки свинарника для опоросов на 24 места
Теория безопасности жизнедеятельности
Проект осветительной установки
Проектирование локальной сети для рабочих мест на базе сети Ethernet