| Скачать .docx | Скачать .pdf |
Реферат: санитарно-гигиенические требования к воде в свинарнике на 540 мест
Министерство сельского хозяйства РФ
Алтайский государственный аграрный университет
Кафедра скотоводства и коневодства
Курсовой проект по зоогигиене.
Тема: санитарно- гигиенические требования к воде в
свинарнике на 540 мест.
Выполнил: студент 331 группы
Ступарь Н.В.
Проверил: Гончарова Любовь Николаевна.
Барнаул 2010
Содержание.
Введение……………………………………………………………. стр. 2-4
1. Методы очистки воды……………………………………………стр. 4-6
2. Гигиенические требования и нормативы качества воды………стр. 6-12
3. Контроль качества питьевой воды………………………………стр. 12-15
4. Порядок организации работ по выбору показателей химического состава питьевой воды………………………………………………стр. 15-17
5. Порядок составления рабочей программы производительного контроля качества………………………………………………………………стр. 17-20
6. Технология и сооружения для глубокой очистки сточных вод.стр. 20-21
7. Использование сточных вод…………………………………….стр. 20
8. Замкнутые системы водопользования на промышленных предприятиях………………………………………………………..стр. 20-22
9. Характеристика отдельной животноводческой фермы, здания.стр. 23-24
10. Расчет система вентиляции…………………………………….стр. 24-29
11.Расчетс система отопления помещения………………………..стр. 29-31
12.Рассчитываем тепловой баланс………………………………...стр. 31
13. Графическая часть………………………………………………стр. 32-33
14.Список используемой литературы……………………………..стр. 34
Введение.
Зоогигиена - наука, изучающая влияние окружающей среды на здоровье
животного. Цель - установить пути его оздоровления. Все научные достижения зоогигиены применяются в практическом животноводстве при содержании
млекопитающих в лабораториях или домашних зооуголках в процессе ухода за ними, при проведении санитарных и оздоровительных мероприятий.
Животное, для того чтобы его организм нормально функционировал, нуждается в светлом, чистом помещении, в доброкачественном корме и полноценном по составу рационе, в свежей воде, в нормальном для данного вида
микроклимате. Все это влияет на характер размножения млекопитающих, продолжительность их жизни в неволе и др. Вопросы кормления будут рассмотрены далее, в специальном разделе, здесь же остановимся подробнее на параметрах окружающей среды, которые необходимо поддерживать в домашнем зооуголке для нормальной жизнедеятельности млекопитающих.
Требования настоящих Санитарных правил должны выполняться при разработке государственных стандартов, строительных норм и правил в области питьевого водоснабжения населения, проектной и технической документации систем водоснабжения, а также при строительстве и эксплуатации систем водоснабжения.
Качество питьевой воды, подаваемой системой водоснабжения, должно соответствовать требованиям настоящих Санитарных правил.
Показатели, характеризующие региональные особенности химического состава питьевой воды, устанавливаются индивидуально для каждой системы водоснабжения в соответствии с правилами, указанными в приложении 1.
На основании требований настоящих Санитарных правил организация, осуществляющая эксплуатацию системы водоснабжения, разрабатывает рабочую программу производственного контроля качества воды (далее ¾ рабочая программа) в соответствии с правилами, указанными в приложении . Рабочая программа согласовывается с центром государственного санитарно-эпидемиологического надзора в городе или районе (далее — центр Госсанэпиднадзора) и утверждается соответствующим органом местного самоуправления.
При возникновении на объектах и сооружениях системы водоснабжения аварийных ситуаций или технических нарушений, которые приводят или могут привести к ухудшению качества питьевой воды и условий водоснабжения населения, организация, осуществляющая эксплуатацию системы водоснабжения, обязана немедленно принять меры по их устранению.
Организация, осуществляющая производственный контроль качества питьевой воды, также обязана немедленно информировать центр
3
Госсанэпиднадзора о каждом результате лабораторного исследования проб воды, не соответствующем гигиеническим нормативам.
В случаях, связанных с явлениями природного характера, которые не могут быть заблаговременно предусмотрены, или с аварийными ситуациями, устранение которых не может быть осуществлено немедленно, могут быть допущены временные отклонения от гигиенических нормативов качества питьевой воды только по показателям химического состава.
Отклонения от гигиенических нормативов допускаются при выполнении следующих условий:
— обеспечение населения питьевой водой не может быть достигнуто иным способом;
— соблюдения согласованных с центром Госсанэпиднадзора на ограниченный период времени максимально допустимых отклонений от гигиенических нормативов;
— максимального ограничения срока действия отступлений;
— отсутствия угрозы здоровью населения в период действия отклонений;
— обеспечения информации населения о введении отклонений и сроках их действия, об отсутствии риска для здоровья, а также о рекомендациях по использованию питьевой воды.
Решение о временном отклонении от гигиенических нормативов качества питьевой воды принимается органом местного самоуправления по согласованию с главным государственным санитарным врачом по соответствующей территории.
Одновременно с принятием решения о временном отступлении от гигиенических нормативов утверждается план мероприятий по обеспечению качества воды, соответствующего гигиеническим нормативам, включая календарный план работ, сроки их выполнения и объемы финансирования.
Подача питьевой воды населению запрещается или ее использование ограничивается в следующих случаях:
¾ в установленный срок действия временных отклонений от гигиенических нормативов не устранены причины, обусловливающие ухудшение качества питьевой воды;
¾ системой водоснабжения не обеспечиваются производство и подача населению питьевой воды, качество которой соответствует требованиям настоящих Санитарных правил, в связи с чем имеется реальная опасность для здоровья населения.
Решение о запрещении или ограничении использования населением питьевой воды из конкретной системы водоснабжения принимается органом местного самоуправления по постановлению главного государственного санитарного врача по соответствующей территории на основании оценки опасности и риска для здоровья населения, связанных как с дальнейшим потреблением воды, не соответствующей гигиеническим нормативам, так и с прекращением или ограничением ее использования в питьевых и бытовых целях.
4
В случае принятия решения о запрещении или ограничении использования питьевой воды органами местного самоуправления, организациями, обеспечивающими эксплуатацию системы водоснабжения, разрабатываются по согласованию с центром Госсанэпиднадзора и осуществляются мероприятия, направленные на выявление и устранение причин ухудшения ее качества и обеспечение населения питьевой водой, отвечающей требованиям Санитарных правил.
Орган местного самоуправления, центр Госсанэпиднадзора в обязательном порядке информируют население о принятом решении о запрещении или ограничении использования питьевой воды, о ее качестве, осуществляемых мероприятиях, а также о рекомендациях по действиям населения в данной ситуации.
1.Методы очистки воды
Озонирование
Проблема обеспечения населения питьевой водой, отвечающей требованиям стандарта, является одной из основных задач, стоящих перед предприятиями и организациями водообеспечения России.
В результате зарегулирования рек и строительства на них водохранилищ создались условия для развития планктона, что способствует увеличению цветности и появлению в воде привкусов и запахов. Органические примеси и химические загрязнения выносятся в водоёмы с неочищенными сточными водами населённых пунктов и промышленных предприятий. В результате этого во многих водоёмах, особенно вблизи крупных городов, природная вода содержит фенолы (до 2 - 7 ПДК), хлорорганические пестициды, аммонийный и нитритный азот (до 10 - 16 ПДК), нефтепродукты и многие другие загрязнения.
Периодически возникающие аварийные ситуации приводят к существенному ухудшению качества воды природных источников и соответственно качества питьевой воды. Только в последние годы отмечались резкое снижение её качества и появление в ней фенолов в количествах, превышающих ПДК в 100 и 1000 раз в промышленных районах России. В подземных водах часто обнаруживаются марганец, амины, нефтепродукты.
Барьерная роль существующих водопроводных очистных сооружений не велика, и в питьевой воде, потребляемой населением, содержатся практически те же загрязнения, что и в природной воде.
Одним из наиболее реальных и высокоэффективных методов очистки воды от указанных загрязнений является озонирование. Озонирование воды позволяет существенно улучшить качество питьевой и очищенной сточной воды и решить проблемы: здравоохранения и экологии.
Озонирование воды позволит кроме решения основных задач по улучшению качества очищенных сточных вод, упростить технологию подготовки природных вод. Наиболее широкое применение технология озонирования получила в области подготовки питьевой воды.
5
В существующем многообразии методов и способов решения проблемы качественной очистки и обеззараживания воды озонирование является предпочтительным, что вызвано:
· трудностями решения проблем, связанных с образованием в очищенной воде в результате её хлорирования токсичных хлорорганических соединений;
· недостаточным количеством хлорреагентов, выпускаемых российской промышленностью;
· возможностью получения озона на месте применения;
· высокой активностью озона в отношении обеззараживания воды от бактерий и вирусов.
Озонирование можно применять как альтернативный метод очистки воды взамен традиционного хлорирования, в сочетании с хлором, перекисью водорода и другими окислителями, вместе с УФ-облучением, обработкой ультразвуком, фильтрацией с использованием песка, активированного угля, ионообменных смол. Наиболее традиционным является использование озона в конце технологической схемы. Для эффективного обеззараживания при этом необходимо создать концентрацию озона 0.4-1мг/л и поддерживать её в течение 4 минут. Озон можно использовать для предварительной обработки воды с целью перевода растворённых веществ в коллоидную форму с последующим осаждением на фильтрах, так как он обладает флоккулирующим эффектом.
Преимущество озонирования состоит в том, что под действием озона одновременно с обеззараживанием происходит обесцвечивание воды, а также устраняются запахи и привкусы воды и вообще улучшаются её вкусовые качества. Озон не изменяет натуральные свойства воды, так как его избыток (не прореагировавший озон) через несколько минут превращается в кислород. С одной стороны, это вызывает некоторые технические трудности, а с другой - создаёт определённые преимущества, так как даже при некотором передозировании остаточные количества его не могут быть велики и не требуют устранения. Остаточный озон в количестве 3.5-5 мг/л в течение 30 минут снижается до 0.2-0.3 мг/л.
Озонная обработка удаляет земляной привкус воды в результате снижения концентрации геосмина в 5-10 раз. Несмотря на появление у воды после обработки озоном нового вкусового компонента, суммарные вкусовые качества озонированной воды улучшаются.
Озон начали применять для дезинфекции питьевых вод раньше, чем хлор. Но несмотря на это озон ещё не нашёл достаточного распространения в технике водоподготовки, особенно в России. Основными причинами этого являлась, по видимому, нехватка электроэнергии, а также то, что химические и физические свойства водного раствора озона ещё мало изучены. В настоящее время на ряде водоподготовительных установок в теплоэнергетике возникла также проблема интенсивного зарастания ионообменных фильтров биомассой.
6
Не изменяя ионообменных свойств загрузки, биомасса увеличивает сопротивление загрузки, что приводит к существенному снижению скорости фильтрования.
Согласно литературным данным, для предотвращения развития биомассы и стерилизации фильтров применяют различные окислители, такие как активный хлор, содержащийся в электроактивированном растворе хлористого натрия, формальдегид, перуксусная кислота, хлорамин Т и др.
Механизм бактерицидного действия хлора и его кислородсодержащих соединений заключается во взаимодействии с составными частями клетки микроорганизма, в первую очередь с ферментами, что ведёт к нарушению обмена веществ в клетке и отмиранию микроорганизмов. В практике обработки воды применяют свободный хлор, соли хлорноватистой кислоты (гипохлориты) и диоксид хлора ClO2. При растворении хлора в воде происходит гидролиз с образованием хлорноватистой и хлороводородной (соляной) кислот.
2. Гигиенические требования и нормативы качества воды.
Питьевая вода должна быть безопасна в эпидемическом и радиационном отношении, безвредна по химическому составу и иметь благоприятные органолептические свойства.
Качество воды должно соответствовать гигиеническим нормативам перед ее поступлением в распределительную сеть, а также в точках водоразбора наружной и внутренней водопроводной сети.
Безопасность воды в эпидемическом отношении определяется ее соответствием нормативам по микробиологическим и паразитологическим показателям, представленным в таблице 1.
Таблица 1
| Показатели |
Единицы измерения |
Нормативы |
| Термотолерантные колиформные бактерии |
Число бактерий в 100 мл 1) |
Отсутствие |
| Общие колиформные бактерии 2) |
Число бактерий в 100 мл 1) |
Отсутствие |
| Общее микробное число 2) |
Число образующих колонии бактерий в 1мл |
Не более 50 |
| Колифаги 3) |
Число бляшкообразующих единиц (БОЕ) в 100 мл |
Отсутствие |
| Споры сульфатредуцирующих клостридий 4) |
Число спор в 20 мл |
Отсутствие |
| Цисты лямблий 3) |
Число цист в 50 л |
Отсутствие |
7
Примечания:
1) При определении проводится трехкратное исследование по 100 мл отобранной пробы воды.
2) Превышение норматива не допускается в 95% проб, отбираемых в точках водоразбора наружной и внутренней водопроводной сети в течение 12 месяцев, при количестве исследуемых проб не менее 100 за год.
3) Определение проводится только в системах водоснабжения из поверхностных источников перед подачей воды в распределительную сеть.
4) Определение проводится при оценке эффективности технологии обработки воды.
При исследовании микробиологических показателей качества питьевой воды в каждой пробе проводится определение термотолерантных колиформных бактерий, общих колиформных бактерий, общего микробного числа и колифагов.
При обнаружении в пробе питьевой воды термотолерантных колиформных бактерий и (или) общих колиформных бактерий, и (или) колифагов проводится их определение в повторно взятых в экстренном порядке пробах воды. В таких случаях для выявления причин загрязнения одновременно проводится определение хлоридов, азота аммонийного, нитратов и нитритов.
При обнаружении в повторно взятых пробах воды общих колиформных бактерий в количестве более 2 в 100 мл и (или) термотолерантных колиформных бактерий, и (или) колифагов проводится исследование проб воды для определения патогенных бактерий кишечной группы и (или) энтеровирусов.
Исследования питьевой воды на наличие патогенных бактерий кишечной группы и энтеровирусов проводится также по эпидемиологическим показаниям по решению центра Госсанэпиднадзора.
Исследования воды на наличие патогенных микроорганизмов могут проводиться только в лабораториях, имеющих разрешение для работы с возбудителями соответствующей группы патогенности и лицензию на выполнение этих работ.
Безвредность питьевой воды по химическому составу определяется ее соответствием нормативам по:
Обобщенным показателям и содержанию вредных химических веществ, наиболее часто встречающихся в природных водах на территории Российской Федерации, а также веществ антропогенного происхождения, получивших глобальное распространение (таблица 2);
8
Таблица 2
| Показатели |
Единицы измерения |
Нормативы (предельно допустимые концентрации (ПДК), не более |
Показатель вредности 1) |
Класс опасности |
| Водородный показатель, |
единицы рН |
в пределах 6 ¾ 9 |
||
| Общая минерализация (сухой остаток) |
мг/л |
1000 (1500) 2) |
||
| Жесткость общая |
ммоль/л |
7,0 (10) 2) |
||
| Окисляемость перманганатная |
мг/л |
5,0 |
||
| Нефтепродукты, суммарно |
мг/л |
0,1 |
||
| Поверхностно-активные вещества (ПАВ), анионоактивные |
мг/л |
0,5 |
||
| Фенольный индекс |
мг/л |
0,25 |
||
| Неорганические вещества |
||||
| Алюминий (Аl3+) |
мг/л |
05, |
2 |
|
| Барий (Ва2+) |
-"- |
0,1 |
2 |
|
| Бериллий (Ве2+) |
-"- |
0,0002 |
1 |
|
| Бор (В, суммарно) |
-"- |
0,5 |
2 |
|
| Железо (Fе, суммарно) |
-"- |
0,3 (1,0) 2) орг. |
||
| Кадмий (Сd, суммарно) |
-"- |
0,001 |
2 |
|
| Марганец (Мn, суммарно) |
-"- |
0,1 (0,5) 2) |
3 |
|
| Медь (Сu, суммарно) |
-"- |
1,0 |
3 |
|
| Молибден (Мo, суммарно) |
-"- |
0,25 |
2 |
|
| Мышьяк (Аs, |
-"- |
0,05 |
3 |
|
| Никель (Ni, суммарно) |
мг/л |
0,1 |
3 |
|
| Нитраты (по NО3) |
-"- |
45 |
3 |
|
| Ртуть (Нg, суммарно) |
-"- |
0,005 |
1 |
|
| Свинец (Рb, суммарно) |
-"- |
0,03 |
2 |
|
| Селен (Sе, суммарно) |
-"- |
0,01 |
2 |
|
| Стронций (Sr2+) |
-"- |
7 |
2 |
|
| Сульфаты (SO42-) |
-"- |
500 |
4 |
|
| для климатических районов |
||||
| - I и II |
-"- |
1,5 |
2 |
|
| - III |
-"- |
1,2 |
2 |
|
| Хлориды (Сl-) |
-"- |
350 |
4 |
|
| Хром (Сr6+) |
-"- |
0,05 |
3 |
|
| Цианиды (CN-) |
-"- |
0,035 |
2 |
|
| Цинк (Zn2+) |
-"- |
5,0 |
3 |
|
| Органические вещества |
||||
| g-ГХЦГ (линдан) |
-"- |
0,002 |
1 |
|
| ДДТ (сумма изомеров) |
-"- |
0,002 |
2 |
|
| 2,4-Д |
-"- |
0,03 |
2 |
|
Примечания:
1) Лимитирующий признак вредности вещества, по которому установлен норматив: "с.-т." ¾ санитарно-токсикологический, "орг." ¾ органолептический.
2) Величина, указанная в скобках, может быть установлена по постановлению главного государственного санитарного врача по соответствующей территории для конкретной системы водоснабжения на основании оценки санитарно-эпидемиологической обстановки в населенном пункте и применяемой технологии водоподготовки.
3) Нормативы приняты в соответствии с рекомендациями ВОЗ.
3.4.2. Содержанию вредных химических веществ, поступающих и образующихся в воде в процессе ее обработки в системе водоснабжения (таблица 3);
10
Таблица 3
| Показатели |
Единицы измерения |
Нормативы (предельно допустимые концентрации (ПДК), не более |
Показатель вредности |
Класс опасности |
| Хлор 1) |
||||
| - остаточный свободный |
мг/л |
в пределах 0,3 - 0,5 |
орг. |
3 |
| - остаточный связанный |
мг/л |
в пределах 0,8 - 1,2 |
орг. |
3 |
| Хлороформ (при хлорировании воды) |
мг/л |
0,2( 2) |
с.-т. |
2 |
| Озон остаточный 3) |
мг/л |
0,3 |
орг. |
|
| Формальдегид (при озонировании воды) |
мг/л |
0,05 |
с.-т. |
2 |
| Полиакриламид |
мг/л |
2,0 |
с.-т. |
2 |
| Активированная кремнекислота (по Si) |
мг/л |
10 |
с.-т. |
2 |
| Полифосфаты (по РО43-) |
мг/л |
3,5 |
орг. |
3 |
| Остаточные количества алюминий- и железосодержащих коагулянтов |
мг/л |
см. показатели "Алюминий", "Железо" таблицы 2. |
11
Примечания:
1) При обеззараживании воды свободным хлором время его контакта с водой должно составлять не менее 30 минут, связанным хлором ¾ не менее 60 минут.
Контроль за содержанием остаточного хлора производится перед подачей воды в распределительную сеть.
При одновременном присутствии в воде свободного и связанного хлора их общая концентрация не должна превышать 1,2 мг/л.
В отдельных случаях по согласованию с центром Госсанэпиднадзора может быть допущена повышенная концентрация хлора в питьевой воде.
2) Норматив принят в соответствии с рекомендациями ВОЗ.
3) Контроль за содержанием остаточного озона производится после камеры смещения при обеспечении времени контакта не менее 12 минут.
3.4.3. Содержанию вредных химических веществ, поступающих в источники водоснабжения в результате хозяйственной деятельности человека
3.4.4. При обнаружении в питьевой воде нескольких химических веществ, относящихся к 1 и 2 классам опасности и нормируемых по санитарно-токсикологическому признаку вредности, сумма отношений обнаруженных концентраций каждого из них в воде к величине его ПДК не должна быть больше 1. Расчет ведется по формуле:
![]()
где С1, С2, Сn ¾ концентрации индивидуальных химических веществ 1 и 2 класса опасности: факт. (фактическая) и доп. (допустимая).
3.5. Благоприятные органолептические свойства воды определяются ее соответствием нормативам, указанным в таблице 4, а также нормативам содержания веществ, оказывающих влияние на органолептические свойства воды, приведенным в таблицах 2 и 3 и в Приложении 2.
Таблица 4
| Показатели |
Единицы измерения |
Нормативы, не более |
| Запах |
баллы |
2 |
| Привкус |
баллы |
2 |
| Цветность |
градусы |
20 (35) |
| Мутность |
ЕМФ (единицы мутности по формазину) или мг/л (по каолину) |
2,6(3,5) |
12
Примечание:
Величина, указанная в скобках, может быть установлена по постановлению главного государственного санитарного врача по соответствующей территории для конкретной системы водоснабжения на основании оценки санитарно-эпидемиологической обстановки в населенном пункте и применяемой технологии водоподготовки.
3.5.1. Не допускается присутствие в питьевой воде различимых невооруженным глазом водных организмов и поверхностной пленки.
3.6. Радиационная безопасность питьевой воды определяется ее соответствием нормативам по показателям общей a- и b- активности, представленным в таблице 5.
Таблица 5
| Показатели |
Единицы измерения |
Нормативы |
Показатель вредности |
| Общая a-радиоактивность |
Бк/л |
0,1 |
радиац. |
| Общая b-радиоактивность |
Бк/л |
1,0 |
радиац. |
3.6.1. Идентификация присутствующих в воде радионуклидов и измерение их индивидуальных концентраций проводятся при превышении нормативов общей активности. Оценка обнаруженных концентраций проводится в соответствии с ГН 2.6.1.054-96.
3.Контроль качества питьевой воды
4.1. В соответствии с Законом РСФСР "О санитарно-эпидемиологическом благополучии населения" за качеством питьевой воды должен осуществляться производственный контроль, государственный и ведомственный санитарно-эпидемиологический надзор.
4.2. Производственный контроль качества питьевой воды обеспечивается организацией, осуществляющей эксплуатацию системы водоснабжения по рабочей программе.
Организация, осуществляющая эксплуатацию системы водоснабжения в соответствии с рабочей программой постоянно контролирует качество воды в местах водозабора, перед поступлением в распределительную сеть, а также в точках водоразбора наружной и внутренней водопроводной сети.
4.3. Количество и периодичность проб воды в местах водозабора, отбираемых для лабораторных исследований, устанавливаются с учетом требований, указанных в таблице 6.
13
Таблица 6
| Количество проб в течение одного года, не менее |
||
| Виды показателей |
Для подземных источников |
Для поверхностных источников |
| Микробиологические |
4 (по сезонам года) |
12 (ежемесячно) |
| Паразитологические |
не проводятся |
12 (ежемесячно) |
| Органолептические |
4 (по сезонам года) |
12 (ежемесячно) |
| Обобщенные показатели |
4 (по сезонам года) |
12 (ежемесячно) |
| Неорганические и органические вещества |
1 |
4 (по сезонам года) |
| Радиологические |
1 |
1 |
4.4. Виды определяемых показателей и количество исследуемых проб питьевой воды перед ее поступлением в распределительную сеть устанавливаются с учетом требований, указанных в таблице 7.
Таблица 7
| Количество проб в течение одного года, не менее |
|||||
| Для подземных источников |
Для поверхностных источников |
||||
| Виды показателей |
Численность населения, обеспечиваемого водой из данной системы водоснабжения, тыс. чел. |
||||
| до 20 |
20-100 |
Свыше 100 |
до 100 |
Свыше 100 |
|
| Паразитологические |
не проводятся |
12(4) |
12 (4) |
||
| Микробиологические |
50(1) |
150(2) |
365(3) |
365(3) |
365(3) |
| Органолептические |
50(1) |
150(2) |
365(3) |
365(3) |
365(3) |
| Обобщенные показатели |
4(4) |
6(5) |
12(6) |
12(6) |
24(7) |
| Неорганические и органические вещества |
1 |
1 |
1 |
4(4) |
12(6) |
| Показатели, связанные с технологией водоподготовки |
Остаточный хлор, остаточный озон ¾ не реже одного раза в час, остальные реагенты не реже одного раза в смену |
||||
| Радиологические |
1 |
1 |
1 |
1 |
1 |
Примечания:
1. Принимается следующая периодичность отбора проб воды: 1) ¾ еженедельно, 2) ¾ три раза в неделю, 3) ¾ ежедневно, 4) ¾ один раз в сезон года, 5) ¾ один раз в два месяца, 6) ¾ ежемесячно, 7) ¾ два раза в месяц.
2. При отсутствии обеззараживания воды на водопроводе из подземных источников, обеспечивающим водой население до 20 тыс. человек, отбор проб для исследований по микробиологическим и органолептическим показателям проводится не реже одного раза в месяц.
3. На период паводков и чрезвычайных ситуаций должен устанавливаться усиленный режим контроля качества питьевой воды по согласованию с центром Госсанэпиднадзора.
4.5. Производственный контроль качества питьевой воды в распределительной водопроводной сети проводится по микробиологическим и органолептическим показателям с частотой, указанной в таблице 8.
Таблица 8
| Количество обсаживаемого населения, тыс. человек |
Количество проб в месяц |
| до 10 |
2 |
| 10-20 |
10 |
| 20-50 |
30 |
| 50-100 |
100 |
| более 100 |
100 + 1 проба па каждые 5 тыс. человек, свыше 100 тысяч населения |
Примечание:
В число проб не входят обязательные контрольные пробы после ремонта и иных технических работ на распределительной сети
4.6. Отбор проб в распределительной сети проводят из уличных водоразборных устройств на наиболее возвышенных и тупиковых ее участках, а также из кранов внутренних водопроводных сетей всех домов, имеющих подкачку и местные водонапорные баки.
4.7. Производственный контроль качества питьевой воды в соответствии с рабочей программой осуществляется лабораториями организаций, эксплуатирующих системы водоснабжения, или по договорам с ними лабораториями других организаций, аккредитованными в установленном порядке на право выполнения исследований (испытаний) качества питьевой воды.
4.8. Государственный санитарно-эпидемиологический надзор за качеством питьевой воды осуществляют центры Госсанэпиднадзора в соответствующих территориях, ведомственный санитарно-эпидемиологический надзор ¾ санитарно-эпидемиологические учреждения, организации и подразделения федеральных органов исполнительной власти, уполномоченные на осуществление данной функции.
4.9. Организация и проведение государственного и ведомственного санитарно-эпидемиологического надзора осуществляется в соответствии с нормативными и методическими документами Госсанэпидслужбы России в плановом порядке и по санитарно-эпидемиологическим показаниям.
4.10. Для проведения лабораторных исследований (измерений) качества питьевой воды допускаются метрологически аттестованные методики, соответствующие требованиям ГОСТ 8.563-96 и ГОСТ 8.556-91, установленные значения показателей погрешности которых не превышают норм погрешности по ГОСТ 27384-87, а также методики, утвержденные или допущенные к применению Госстандартом России или Госсанэпидслужбой России. Отбор проб воды для анализа проводят в соответствии с требованиями государственных стандартов.
Правила установления контролируемых показателей качества питьевой воды и составления рабочей программы производственного контроля качества питьевой воды
16
4.Порядок организации работ по выбору показателей химического состава питьевой воды
5.1. В соответствии с п. 3.3. настоящих Санитарных правил выбор показателей химического состава питьевой воды, подлежащих постоянному производственному контролю, проводится для каждой системы водоснабжения на основании результатов оценки химического состава воды источников водоснабжения, а также технологии производства питьевой воды в системе водоснабжения.
5.2. Выбор показателей, характеризующих химический состав питьевой воды, для проведения расширенных исследований проводится организацией, осуществляющей эксплуатацию системы водоснабжения совместно с центром Госсанэпиднадзора в городе, районе в два этапа.
5.2.1. На первом этапе организацией, осуществляющей эксплуатацию системы водоснабжения, совместно с центром Госсанэпиднадзора анализируются следующие материалы за период не менее 3-х последних лет:
- государственной статистической отчетности предприятий и организаций, а также иных официальных данных о составе и объемах сточных вод, поступающих в источники водоснабжения выше места водозабора в пределах их водосборной территории;
- органов охраны природы, гидрометеослужбы, управления водными ресурсами, геологии и использования недр, предприятий и организаций о качестве поверхностных, подземных вод и питьевой воды в системе водоснабжения по результатам осуществляемого ими мониторинга качества вод и производственного контроля;
- центра Госсанэпиднадзора по результатам санитарных обследований предприятий и организаций, осуществляющих хозяйственную деятельность и являющихся источниками загрязнения поверхностных и подземных вод, а также по результатам исследований качества вод в местах водопользования населения и в системе водоснабжения;
- органов управления и организаций сельского хозяйства об ассортименте и валовом объеме пестицидов и агрохимикатов, применяемых на территории водосбора (для поверхностного источника) и в пределах зоны санитарной охраны (для подземного источника). На основании проведенного анализа составляется перечень веществ, характеризующих химический состав воды конкретного источника водоснабжения и имеющих гигиенические нормативы в соответствии Приложением 2 настоящих Санитарных правил.
5.2.2. На втором этапе организацией, осуществляющей эксплуатацию системы водоснабжения, проводятся расширенные лабораторные исследования воды по составленному перечню химических веществ, а также по показателям, приведенным в таблице 2 настоящих Санитарных правил.
5.2.2.1. Для системы водоснабжения, использующей реагентные методы обработки воды, при проведении расширенных исследований перед подачей
17
воды в распределительную сеть дополнительно включают показатели, указанные в таблице 3 настоящих Санитарных правил.
5.2.2.2. Расширенные лабораторные исследования воды проводятся в течение одного года в местах водозабора системы водоснабжения, а при наличии обработки воды или смешения воды различных водозаборов - также перед подачей питьевой воды в распределительную сеть.
5.2.2.3. Минимальное количество исследуемых проб воды в зависимости от типа источника водоснабжения, позволяющее обеспечить равномерность получения информации о качестве воды в течение года, принимается:
- для подземных источников - 4 пробы в год, отбираемых в каждый сезон;
- для поверхностных источников - 12 проб в год, отбираемых ежемесячно.
5.2.2.4. При необходимости получения более представительной и достоверной информации о химическом составе воды и динамике концентраций присутствующих в ней веществ, количество исследуемых проб воды и их периодичность должны быть увеличены в соответствии с поставленными задачами оценки качества воды источника водоснабжения.
5.2.2.5. При проведении расширенных исследований рекомендуется применение современных универсальных физико-химических методов исследования водных сред (хромато-масс-спектрометрических и других), позволяющих получить максимально полную информацию о химическом составе воды.
5.3. Центром Госсанэпиднадзора анализируются результаты расширенных исследований химического состава воды по каждой системе водоснабжения и с учетом оценки санитарно-гигиенических условий питьевого водопользования населения и санитарно-эпидемиологической обстановки на территории города, населенного пункта, района определяется потенциальная опасность влияния присутствующих в воде химических веществ на здоровье населения.
5.4. На основании проведенной оценки центр Госсанэпиднадзора разрабатывает предложения по перечню контролируемых показателей, количеству и периодичности отбора проб питьевой воды для постоянного производственного контроля.
5. Порядок составления рабочей программы производственного контроля качества питьевой воды
6.1. Организация, осуществляющая эксплуатацию системы водоснабжения на основании настоящих Санитарных правил разрабатывает рабочую программу.
6.2. Для системы водоснабжения, имеющей несколько водозаборов, рабочая программа составляется для каждого водозабора с учетом его особенностей. Для подземных водозаборов, объединенных общей зоной санитарной охраны
18
и эксплуатирующих один водоносный горизонт может составляться одна рабочая программа при наличии гидрогеологического обоснования.
6.3. Рабочая программа должна содержать:
6.3.1. Перечень контролируемых показателей качества воды и их гигиенические нормативы, установленные настоящими Санитарными правилами:
¾ микробиологические и паразитологические (п. 4.3., таблица 1);
¾ органолептические (п. 4.5., таблица 4);
¾ радиологические (п. 4.6., таблица 5);
¾ обобщенные (п. 4.4.1., таблица 2);
¾ остаточные количества реагентов (п. 4.4.2., таблица 3);
¾ химические вещества, выбранные для постоянного контроля в соответствии с правилами, указанными в разделе 1 настоящего приложения (п. 4.4.1., таблица 2 и п. 4.4.3., приложение 2 Санитарных правил).
6.3.2. Методики определения контролируемых показателей.
6.3.3. План пунктов отбора проб воды в местах водозабора, перед сдачей воды в распределительную сеть водопровода (в резервуаре чистой воды) и в пунктах водоразбора наружной и внутренней сети водопровода;
6.3.4. Количество контролируемых проб воды и периодичность их отбора для лабораторных исследований (испытаний), перечень показателей, определяемых в исследуемых пробах воды.
6.3.5. Календарные графики отбора проб воды и проведения их исследования (испытания).
6.4.Количество исследуемых проб воды и периодичность их отбора определяются для каждой системы водоснабжения индивидуально с учетом предложений центра Госсанэпиднадзора, но не должны быть ниже установленных п. 5.3., таблица 6. п. 5.4., таблица 7 и п. 5.5., таблица 8 настоящих Санитарных правил.
6.5. В рабочей программе должно быть предусмотрено проведение ежемесячного анализа результатов контроля качества воды и определен порядок передачи информации по результатам контроля администрации системы водоснабжения, центру Госсанэпиднадзора и органу местного самоуправления.
6.6. Рабочая программа представляется для согласования в центр Госсанэпиднадзора в городе, районе и последующего утверждения администрацией соответствующего органа местного самоуправления.
6.7. Рабочая программа утверждается на срок не более 5 лет. В течение указанного срока в рабочую программу могут вноситься изменения и дополнения по согласованию с центром госсанпиннадзора.
ГИГИЕНИЧЕСКИЕ НОРМАТИВЫ СОДЕРЖАНИЯ ВРЕДНЫХ ВЕЩЕСТВ В ПИТЬЕВОЙ ВОДЕ
1. В настоящий список включены гигиенические нормативы вредных веществ в питьевой воде. В него входят индивидуальные химические
19
вещества, которые могут присутствовать в питьевой воде в указанном виде и могут быть идентифицированы современными аналитическими методами.
2. Химические вещества расположены в списке в соответствии со строением органических и неорганических соединений. Каждый подраздел является расширением соответствующего раздела. Внутри подразделов вещества расположены в порядке возрастания численных значений их нормативов.
Если строение молекулы органического вещества позволяет отнести его одновременно к нескольким химическим классам, то в перечне его помещают по функциональной группе, с наибольшим индексом расширения (по горизонтальной рубрикации).
Органические кислоты, в том числе, пестициды, нормируются по аниону, независимо от того в какой форме представлена данная кислота в перечне (в виде кислоты, ее аниона или ее соли).
Элементы и катионы (п. 1 раздела "неорганические вещества") нормируются суммарно для всех степеней окисления, если это не указано иначе.
3. Перечень имеет следующую вертикальную рубрикацию.
3.1. В первой колонке перечня приведены наиболее часто употребляемые названия химических веществ.
3.2. Во второй колонке приведены синонимы названий химических веществ и некоторые тривиальные и общепринятые наименования.
3.3. В третьей колонке приведены величины ПДК или ОДУ в мг/л, где:
ПДК ¾ максимальные концентрации, при которых вещества не оказывают прямого или опосредованного влияния на состояние здоровья человека (при воздействии на организм в течение всей жизни) и не ухудшают гигиенические условия водопотребления;
ОДУ (отмечены звездочкой) ¾ ориентировочные допустимые уровни веществ в водопроводной воде, разработанные на основе расчетных и экспресс-экспериментальных методов прогноза токсичности.
Если в колонке величины нормативов указано "отсутствие", это означает, что концентрация данного соединения в питьевой воде должна быть ниже предела обнаружения применяемого метода анализа.
3.4. В четвертой колонке указан лимитирующий признак вредности веществ, по которому установлен норматив:
- с.-т. ¾ санитарно-токсикологический;
- орг. ¾ органолептический с расшифровкой характера изменения органолептических свойств воды (зап. ¾ изменяет запах воды; окр. ¾ придает воде окраску; пен. ¾ вызывает образование пены; пл. ¾ образует пленку на поверхности воды; привк. ¾ придает воде привкус; оп. ¾ вызывает опалесценцию).
3.5. В пятой колонке указан класс опасности вещества:
1 класс ¾ чрезвычайно опасные;
2 класс ¾ высокоопасные;
3 класс ¾ опасные;
4 класс ¾ умеренно опасные
20
В основу классификации положены показатели, характеризующие различную степень опасности для человека химических соединений, загрязняющих питьевую воду в зависимости от токсичности, кумулятивности, способности вызывать отдаленные эффекты, лимитирующего показателя вредности.
Классы опасности веществ учитывают:
¾ при выборе соединений, подлежащих первоочередному контролю в питьевой воде;
¾ при установлении последовательности водоохранных мероприятий, требующих дополнительных капиталовложений;
¾ при обосновании рекомендаций о замене в технологических процессах высокоопасных веществ на менее опасные;
¾ при определении приоритетности разработки селективных методов аналитического контроля веществ в воде.
6.Технология и сооружения для глубокой очистки сточных вод.
Требования к качеству очищенных сточных вод, сбрасываемых в водоемы общественного пользования, постоянно повышаются, что естественно вызывает необходимость разработки эффективных методов очистки и доочистки, очистки сточных вод. Эти требования касаются, в первую очередь, взвешенных и органических веществ, биогенных элементов, ряда специфических загрязнений: СПАВ, нефтепродуктов, солей тяжелых металлов и т.д. содержащихся в сточных водах.
Для обеспечения требуемого качества очищенных сточных вод по БПК5, ХПК, аммонийному азоту, солесодержанию были проведены соответствующие исследования, которые убедительно показали, что указанная степень очистки сточных вод наиболее реально достигается при использовании сочетания биологического, физико-химического и сорбционного методов с использованием активного угля и озона, в ряде случаев схема дополняется мембранными фильтрами.
В зависимости от экологической обстановки, в отдельных регионах страны к очищенным сточным водам предъявляются еще более высокие требования.
По результатам экспериментальных исследований и производственных испытаний разработана технологическая схема и выпускается в заводском исполнении станция сверхглубокой очистки сточных вод для малонаселенных мест и разработана методика расчета очистных сооружений сверхглубокой очистки для более крупных объектов.
При разработке станций сверхглубокой очистки сточных вод все сооружения и методы, входящие в общий процесс очистки воды, были максимально интенсифицированы. Оптимизация каждого из этих методов в общем процессе очистки позволила получить качество сточных вод, удовлетворяющее требованиям ПДК, и сделала очистные сооружения надежными и гибкими.
21
Оптимизация процесса биологической очистки сточных вод в аэротенках-отстойниках основана на разделении его на несколько этапов.
Наличие двух групп микроорганизмов с разными скоростями размножения обусловливает двухступенчатый процесс в аэротенке, когда в первой ступени происходит окисление углеродсодержащих загрязнений и аммонификация, а во второй - нитрификация сточных вод.
Одновременно процесс очистки сточных вод в аэротанках усилен за счет повышения рабочей концентрации активного ила. Это возможно благодаря конструктивным особенностям аэротанков-отстойников, работающих с использованием взвешенного слоя ила в отстойной зоне. Дальнейшее повышение концентрации ила достигается путем применения биоценоза взвешенных и прикрепленных культур активного ила, для чего в зоне аэрации размещаются насадки из различных материалов, на поверхности которых развиваются и прикрепляются микроорганизмы активного ила.
Все аэрационные сооружения оборудованы эффективной мелкопузырчатой системой аэрации из пластмассы. По сравнению с традиционными керамическими пластинами и дырчатыми трубами пластмассовые аэраторы обеспечивают снижение капитальных затрат - на 40-50%, сокращение энергозатрат до 40%, снижение потерь напора воздуха - в 1,5-2 раза , что позволяет обеспечить длительный период работы аэраторов без текущего и капитального ремонта.
7.Использование сточных вод
Производственные сточные воды после соответствующей очистки могут быть повторно использованы в технологическом процессе, для чего на многих предприятиях создаются системы оборотного водоснабжения, либо замкнутые (бессточные) системы водоснабжения и канализации, при которых исключается сброс каких-либо вод в водоёмы.
В этих случаях наиболее перспективны методы физико-химической очистки сточных вод (коагулирование, отстаивание, фильтрация) в качестве самостоятельных способов очистки сточных вод или в сочетании с биологической очисткой сточных вод. Также методы дополнительной обработки (сорбция, ионообмен, гиперфильтрация и др.), обеспечивающие весьма высокую степень очистки сточных вод, позволяют производить их спуск в водоёмы или использовать в системах оборотного водоснабжения промышленных предприятий.
Имеющиеся в хозяйственно-бытовых сточных водах в значительном количестве вещества, содержащие азот, калий, фосфор, кальций и др. элементы, являются ценными удобрениями для сельскохозяйственных культур. В связи с этим сточные воды используются для орошения сельскохозяйственных земель. Целесообразно обезвреживание сточных вод на станциях биологической очистки сточных вод производить с подачей очищенных сточных вод на поля. Осадки сточных вод после
22
соответствующей обработки (сбраживание, сушка) обычно используют в качестве удобрений.
8.Замкнутые системы водопользования на промышленных предприятиях
В 70-е — 80-е годы в бывшем Советском Союзе было построено и запроектировано достаточно большое количество замкнутых систем водопользования (ЗСВ). Так, к 1991 г. функционировало 94, строилось 34, имелись готовые проекты на 35 замкнутых систем. Сегодня основным путем развития водного хозяйства промышленных предприятий является создание замкнутых бессточных и безотходных систем (ЗСВ). Только создавая ЗСВ, можно существенно уменьшить потребление свежей воды и, главное, резко сократить сброс загрязненной в водоемы. Для успешного функционирования замкнутых систем водопользования необходимо совершенствование основной технологии и создание нормально действующей системы очистки и повторного использования воды.
В замкнутых системах доля оборотного водоснабжения должна быть доведена до величины 93—99%.
При создании ЗСВ и (или) отдельных ее частей всегда требуется решать проблему "нейтральных" солей, накапливающихся в любой оборотной системе. Если позволяют местные условия (водоприемник, качество эвакуируемых стоков, контроль за ними и др.), то подготовленные воды можно сбрасывать в городскую канализацию или в водоем. Если нет — их необходимо обессоливать с получением конденсата и сухих солей, которые следует утилизировать.
Эти процессы осуществляются на так называемых «хвостовых установках», наличие которых и позволяет сделать систему замкнутой. К ним относятся установки:
переработки и утилизации концентрированных отработанных технологических растворов;
механического обезвоживания и сушки осадка;
стабилизационные, биоинженерные, деминерализационные и сжигания.
Наличие таких установок усложняет и удорожает систему, которая, по существу представляет химико-технологический комплекс (цех) по производству чистой воды. Наиболее "трудный" вид хвостовых установок — это деминерализационные для обработки засоленных "продувочных" стоков. Традиционно применяемые для этой цели выпарные аппараты с принудительной и естественной циркуляцией опресняемой воды морально устарели, хотя и достаточно успешно работают на некоторых промышленных предприятиях.
Сегодня разработаны и выпускаются новые горизонтальнотрубные пленочные испарители (ГТПИ) производительностью от 0,1 до 700 м3/ч.
Достоинствами ГТПИ являются компактность и возможность создания
23
эффективных аппаратов малой и средней производительности. Это позволяет создавать локальные установки для упаривания практически любых отработанных технологических стоков по месту их образования. Таким образом, ГТПИ могут служить основой создания разнообразных (в том числе и малых) ЗСВ на любых промышленных предприятиях.
Особое внимание необходимо обращать на проектирование узлов (цехов, участков) механического обезвоживания. Регулярные обследования таких сооружений показывают, что данная задача решается неудовлетворительно: трудно проводить ремонт и замену аппаратов и др. Более того, почти нигде не предусматривается сушка (гранулирование, окусковывание) обезвоженных осадков, что крайне затрудняет их транспортировку и, особенно, последующую утилизацию.
Все выше изложенное обусловливает необходимость глубокой обработки этих стоков с целью обезвреживания, очистки, кондиционирования и повторного использования воды, а также обработки и утилизации образующихся при этом осадков. Кроме того, общезаводские очистные сооружения рассчитаны на прием и переработку практически всех стоков предприятия одновременно, общим потоком.
Это не позволяет достаточно эффективно извлекать полезные компоненты и использовать их повторно. Также стоит отметить высокую нагрузку на природу, что обусловлено захоронением комплексных промышленных отходов.
Эффективным методом переработки «хвостов стоков» после предварительной очистки и разделения, обеспечивающим полностью замкнутый цикл водопотребления и исключающим попадание стоков в природные водоемы, является их переработка по месту образования. Это может быть обеспечено локальными замкнутыми системами водопотребления технологических процессов. Одной из технологий, позволяющей создавать такие системы, является предварительная очистка и концентрирование, например мембранами, дальнейшее упаривание с получением высококачественного дистиллята, возвращаемого в технологию, и высококонцентрированных растворов или шламов, направляемых на утилизацию либо хранение.
Метод термодистилляционной переработки стоков более двадцати лет успешно реализуется в металлургии. Многолетняя эксплуатация промышленных выпарных установок, и не только в металлургии, доказала их высокую надежность, экологическую безопасность и экономическую эффективность.
Технологии полностью исключают неочищенные стоки в канализацию или водоемы. Именно создание локальных замкнутых систем водопотребления на основе ГТПИ является наиболее эффективным направлением в переработке химически загрязненных стоков и снижении техногенной нагрузки на природные водоемы.
24
9. Характеристика отдельной животноводческой фермы, здания.
Ферма построена с учётом научно-технического прогресса, износа зданий. Для чего имеется резервный участок на территории фермы.
Здание предназначено для содержания ремонтного молодняка свиней, рассчитано на 540 мест. В этом здании животных содержат в зимний период. Внутри здания смонтированы кормушки, индивидуальные поилки, кормовые проезды. Рядом со зданием находится выгульный двор.
Общее санитарно-гигиеническое состояние помещения хорошее. Все параметры микроклимата поддерживаются в норме. Вентиляция работает исправно. Помещение в летний период подвергается сушке, дезинфекции и текущему ремонту.
Поголовье животных находится в здании и делится на четыре производственные группы:
I. 100 голов по 54 кг;
II. 95 голов по 60 кг;
III.235 голов по 63 кг;
IV.110 голов по 80 кг.
Свинарник построен по типовому проекту на 540 мест, линейные размеры соответствуют стандартам.
Линейные размеры свинарника.
Длина 108м, ширина 12м, высота 2,5м. Линейные размеры выбирают из расчёта поголовья свиней, технологического оборудования, обеспечения нормального микроклимата. При размерах превышающих нормы возникают нарушения микроклимата. Высота должна быть не ниже 2,4м при раздаче кормов мобильными средствами и тракторами.
Стены в здании кирпичные, толщина в 2,5 кирпича, пол бетонный и покрытый опилками. Имеется в наличии вытяжная труба высотой 5м, сечение её 0.9*0,9м. Сечение приточного канала 0,25*0,25м. В свинарнике имеется 35двойных окон размером 1,20*0,9 м, 3 двойных двери размером 2,40*2,10м.
25
Tв=10
Tн=-10
Tн=-20(на январь)
Все размеры рассчитаны с учётом физиологии животных. Через окно осуществляется естественное освещение помещения, ограждающие конструкции обеспечивают оптимальный температурный режим.
10. Расчет система вентиляции.
В здании установлена система естественной вентиляции. Это проточно-вытяжная система. Вентиляция осуществляется через каналы: приточные, расположены внизу; вытяжная труба в потолке высотой 5м.
Часовой объём вентиляции - это количество воздуха, в метрах кубических, который необходимо подать в данное помещение за один час, для обеспечения в нём требуемого нормативами воздушного режима.
Вентиляция предназначена для обеспечения воздухообмена в помещение. Из свинарника удаляются накопившиеся газы, пыль, водяной пар. Часовой объём вентиляции рассчитывают обычно по двум показателям: 1. содержащие в воздухе СОІ; 2. накопление водяных паров. Но в данной работе расчёт проведён по второму показателю. Исходной величиной является часовой объём вентиляции.
Для расчёта часового объёма вентиляции используют следующую формулу:
где
L - Количество воздуха, которое необходимо удалить из помещения, мі/час.
Q – количество влаги выделяемой животными в парообразном виде и испаряющейся с пола, кормушек, поилок, г/ч.
q - абсолютная влажность воздуха помещения при которой относительная влажность будет в пределах нормы, г/м3
q - абсолютная влажность воздуха( атмосферного), г/мі
Рассчитываем Q для всех четырёх групп животных и суммируем:
Q= Q+Q+Q+Q+10%
26
Q=n*a, где
n- количество коров.
a- количество влаги (или тепла) выделяемое животным, ккал/час.
10%- испарение с пола, кормушек, поилок, ограждений, г /час.
Когда в таблице не имеется нужной живой массы, используют формулу интерполяции:
Q=
где;
в- количество тепла, выделяемого животным с более низкой живой массой по сравнению с животным с заданной массой, ккал/ч.
а- количество тепла, выделяемого животным с более высокой живой массой по сравнению с животным с заданной массой, ккал/ч.
с- живая масса животного с более высокой живой массой, кг.
с- живая масса животного с более низкой живой массой, кг.
д – живая масса заданного животного, кг.
Q1 = 100* (65+(92-65)+(54-50) =7600 г/ч
60-50
Q2 = 95*92 =8740 г/ч
Q3=235*(107+(107-92)+(63-60)= 25615г/ч
80-60
Q4 =110* 107=11770 г/ч
Q=7600 +8740 +25615 +11770 +10%=59098 г/ч
Для расчёта часового объёма вентиляции нужно знать q и q они определяются по таблице метеорологических данных, среднюю абсолютную влажность воздуха, г/м
. За ноябрь месяц q=2,5 г/м![]()
27
Для расчёта q находим в таблице максимальной упругости водяных паров воздуха. Средняя температура внутри помещения 10 , отсюда находим, что это значение равно 9,17мм. рт.ст.
Пропорция:
9,17-100%
Х-70%
Х=
мм рт.ст.
Находим часовой объём вентиляции:
L= ![]()
L=
=15076,02 м
/ч
Далее рассчитываем кратность воздухообмена по формуле:
Кр=
,где
V-внутренний объём помещения
Кр=
≈5 раз/ч.
Находим объём вентиляции на одно животное:
V
, где
n-количество животных
V1=
м
/ч
28
Находим общую площадь сечения вытяжных каналов:
Z=S1*U*t,
из этой формулы выражаем S
S1=
=, где
t-расчётное время, 1ч=3600 сек.
S-искомая площадь сечения вытяжных каналов.
U-скорость движения воздуха в канале, м/с, скорость определяем по формуле:
U=0,5*4,427*
,где
Н-высота вентиляционной трубы по вертикали, м.
tв- температура воздуха внутри помещения, єС.
tн-температура наружного воздуха, єС
U=0,5*4,427
= 0,7м/с.
S1=
6м![]()
Находим общую площадь сечения приточных каналов, она составляет 80% от вытяжных:
S2=6*0,8=4,8 м![]()
Определяем количество приточных (N) и вытяжных каналов по формуле:
29
N
, N=
,где
N
=7 вытяжных каналов;
N
приточных каналов;
а1-площадь вытяжного канала в типовых проектах (0,9*0,9)
а - площадь приточного канала (0,25*0,25)
Из всех расчётов видно, что в помещении нужно установить 77приточных и 7 вытяжных каналов.
11.Расчет система отопления помещения.
Отопление осуществляется за счет центрального водяного отопления. Подача горячей воды в радиаторы коровника регулируется в зависимости от температуры помещения.
Тепловой баланс рассчитывается для нормализации температурного режима помещения. Он рассчитывается на самые холодные месяцы года и должен быть положительным. Расход тепла в животноводческих помещениях зависит от вида животного, теплоёмкости конституции, тепло проводимость материалов, климатической зоны.
Тепловой баланс рассчитывается по формуле:
Qж=[∆t*(L *0,31)+(∑К*S)] +Wиспар., где
Qж-тепло выделяемое животными, ккал/час.
∆t-разность между наружной и внутренней температурой воздуха ( январь), єС.
L’-объёмная масса вентиляционного воздуха, мі/ч.
0,31-тепло(ккал), затраченное на обогрев 1м3 воздуха, вводимого при вентиляции, на 1°С.
30
S-площадь ограждающих конструкций, м2
К-коэффициент общей теплопередачи через ограждающие конструкции(ккал/м2*°С)
Wиспар. – расход тепла на испарение влаги с поверхности пола и других ограждений, ккал/час.
Wиспар. Находится 0,595*10%, где
0,595-количество ккал. расходуемых на испарение 1 г воды.
10%-надбавка на испарение с ограждающих конструкций.
Находим количество тепла выделяемого животными:
Qж= Q1+Q2+Q3+Q4
Формула интерполяции
Q1 =
ккал/ч
Q2= 95*160 =15200 ккал/ч
Q3=
ккал/ч
Q4= 110*189=20790ккал/ч
Qж=14500+15200+38622+20790=89112ккал/ч
Находим разность температур
∆t=10-(-20)=30С
Определяем объёмную массу вентиляционного воздуха:
L’=L*м, где
м-масса 1м
воздуха( из таблицы м=1,247)
31
L’=15076,02*1,247=18799,8м
/кг.
Находим коэффициент теплоотдачи:
К*Sпола=1296*0=0 ккал/ч.
К*Sпотолка=1296*0,39=505,4 ккал/ч
К*Sокон=75,6*2,3=173,9ккал/ч
К*Sдверей=25,2*2=50,4 ккал/ч
К*Sист. Стен=475,2*1,91=907,6 ккал/ч
Складываем полученные данные и получаем ∑К*S. Учитывают теплопотери через окна, двери, стены и принимают поправку 0,13.
∑К*S=0+505,4+50,4+173,9+907,6=1637,3+0,13*(173,9+50,4+907,6)=
=1784,4 ккал/ч
Wиспар = 0,595*5373=3196,9ккал/ч
12.Рассчитываем тепловой баланс:
89112=[30*(18799,8*0,31)+1784,4]+3196,9 =179818,3ккал/ч.
Дф=89112-179818,3= - 90706,3
Получился отрицательный тепловой баланс. Это говорит о недостатке тепла в помещении. Известно, что 1КВт/ч равен 860 ккал энергии, отсюда:
- 90706,3/860=- 105,5КВт/ч
105,5/20≈5 электро коллориферов нужно установить в помещении мощностью 20 КВт/ч.
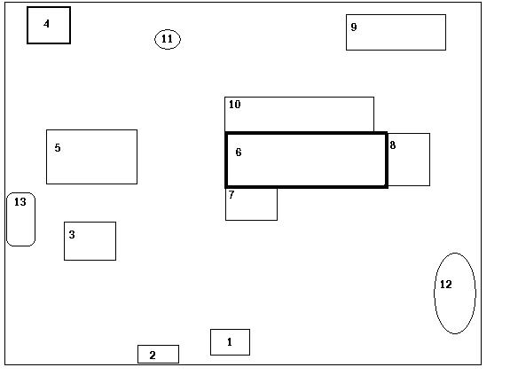
13. Графическая часть
Графическая часть позволяет полезно отобразить расположение зданий на территории фермы.
32

Рис. Генеральный план фермы. 1-административное здание; 2-ветсанпропускник; 3-кормоприготовительный цех; 4-изолятор, санчасть; 5-свинарник; 6-свинарник на 200 голов; 7-кормо-хранилище; 8-родильное отделение; 9- навозохранилище; 10- выгульные дворы; 11- водонапорная башня; 12- сенажный бурт; 13- сено-база.
При соблюдении параметров микроклимата можно добиться наивысших показателей продуктивности, что и делается на этой ферме. Зоотехник соблюдает все зоотехнические нормы. Экономика хозяйства развита достаточно, чтобы развиваться и внедрять новые технологии.
В последнее время много внимания уделяется полноценному кормлению. В корма добавляют минеральные и витаминные добавки. Это ведёт к хорошему здоровью животных, продуктивности и получению здорового потомства.
Климатические условия дают хорошую возможность рационально использовать пастбища.
Положительным аспектом развития хозяйства является то, что хозяйство многоотраслевое. Сами заготавливают корма для кормления животных. Так же осуществляют экспорт сырья: продажа молока, мяса, зерна. Так же в хозяйстве выращивают сахарную свеклу, отходы производства идут на кормление животных.
33
14.Список используемой литературы.
Волков Г.К. Значение зоогигиены в практике животноводства / Г.К. Волков, И.Р. Смирнова // Зоотехния. – 2008. - №9. – С.31 – 32.
2. Гигиена сельскохозяйственных животных: В 2 кн. Кн.1. Общая зоогигиена/ А.Ф.Кузнецов, М.В.Демчук, А.И.Карелин и др.; Под ред. А.Ф.Кузнецова и М.Ф.Демчука. – М.: Агропромиздат, 1991. – 399 с.
3. Гигиена сельскохозяйственных животных: В 2 кн. Кн.2. Частная зоогигиена/ А.Ф.Кузнецов, М.В.Демчук, А.И.Карелин и др.; Под ред. А.Ф.Кузнецова и М.Ф.Демчука. – М.: Агропромиздат, 1992. – 192 с.
4. Костюнина В.Ф. Зоогигиена с основами ветеринарии и санитарии/ В.Ф.Костюнина, Е.И.Туманова, Л.Г.Демидчик. – М.: Агропромиздат, 1991. – 480 с.
5. Онищенко В.И. Основы зоогигиены и ветпрофилактики/ В.И.Онищенко, Н.С.Калюжный. – М.: Высш.шк., 1984. – 304 с.
6. Практикум по зоогигиене/ А.Ф.Кузнецов, А.А.Шуканов, В.И.Баланин и др.; Под ред. А.Ф.Кузнецова. – М.: Колос, 1999. – 208 с.
7. Справочник зоотехника/ Г.Н.Доброхотов, А.А.Косынкин, В.К.Онисовец. – 4-е изд., перераб. – М.: Колос, 1980. – 768 с.
34